□□□□□□□□□□□□□□□□□□□□□□□□□□□□□□□□□□□□□□□
いつも弊社ホームページをご覧頂き誠にありがとうございます。
パークスクエア千歳船橋はお陰様で販売を終了致しました。弊社問合せフォームにてご要望頂けましたら、当お部屋でキャンセル等が発生した場合、他のお部屋が販売になりました際にご紹介させて頂きます。
弊社では、仲介手数料無料orお値引(50%off、30%off、20%off)にて皆様のマイホーム探しのお手伝いをさせて頂きいております。パークスクエア千歳船橋の類似物件や、お探しのご条件等をお聞かせ頂けましたらご条件に合ったお部屋をご紹介させて頂きます。また、ご来社頂き一緒に探させて頂くことも可能ですので、是非弊社問合せフォームよりお気軽にお問合せください。
不動産Agent 六棒株式会社
TEL:03‐5413‐5336
□□□□□□□□□□□□□□□□□□□□□□□□□□□□□□□□□□□□□□□
リノベーションマンション【パークスクエア千歳船橋】のご紹介です。
千歳船橋駅から徒歩20分と少し距離がありますが、
環八通り沿いなので夜道は明るいですよ(/・ω・)/
また、マンションから徒歩約2分ほどのところに
「宝性寺」バス停があります。
駅まで6分程度でいけちゃいます\( ´・ω・`)┐しゅたっ
小学校も中学校も公園も徒歩10分圏内なので
子育て環境は良さそうですよ◎
* … * … * … * …* … * … * … * …*
◆ アクセス ◆
小田急小田原線「千歳船橋」駅徒歩20分
京王線「八幡山」駅徒歩22分
バス6分「宝性寺」停下車徒歩2分
* … * … * … * …* … * … * … * …*
◆ライフインフォメーション◆
デニーズ・・・約80m
ファミリーマート・・・約210m
船橋希望中学校・・・約300m
希望丘小学校・・・約530m
サミットストア・・・約590m
蘆花恒春園・・・約700m
* … * … * … * …* … * … * … * …*
さて、小田急線の千歳船橋駅に到着です\( ´・ω・`)┐しゅたっ
本日ご案内するのは徒歩約20分の「パークスクエア千歳船橋」です。
お部屋までご案内させて頂きます(o*。_。)oペコッ
改札を出るとおじさん発見( ´艸`)♡
◆文化勲章受章者で国民的俳優だった故森繁久彌氏の生前のヒット作「屋根の上のバイオリン弾き」の主人公テヴィエ役の胸像
◆もののけ姫の乙事主の声優さん(4本の牙を持つ猪神)
駅を降りて交番側にはファーストフード
マクドナルド、モスバーガーなどがあります。
その他にも居酒屋や松屋などもあり便利ですね(((uдu*)ゥンゥン
反対の南口にはオオゼキやオリジン弁当など。。
商店街のようになっているので飲食店も充実しています。
商店街を抜けてしばらく住宅街を歩くと東京農業大学があります。
大根持って踊るので有名なとこですね( ´艸`)♡
今年収穫祭私参加してきましたが、凄いひとでしたよ!
猪の丸焼きや自分達でとってきたはちみつ、農大らしい出店がたくさん!
味噌なんかは長蛇の列でしたよ(;・∀・)
とても楽しめました\(^o^)/


さて、話がかなり脱線致しました(o*。_。)oペコッ
物件は農大とは正反対になります(;・∀・)
という感じで環八通り沿い歩いていきまーす!
夜道も車の通りがあるのでもし歩くとしても明るいですよ(((uдu*)ゥンゥン
物件の手前には結構大きなUNIQLOがありました!
いつもお世話になっております(o*。_。)oペコッ
UNIQLOの対面は区立船橋小学校があります。
環八通りをそのまま真っすぐ行くと・・・・
神戸屋レストランを通り過ぎデニーズがあり、そのお隣になります\(´°v°)/んぴッ
パークスクエア千歳船橋は平成9年築、地下1階付き地上6階建て、総世帯数41戸。
外観はグレーのタイル貼り、御影石を敷き詰めたエントランスなど高級感が漂っていました。

オートロックや24時間セキュリティシステム、
管理人室もありセキュリティ面充実していましたよ。
宅配BOXもあります。
お仕事で忙しくてもお荷物預かってくれますよo(^O^*=*^O^)o ワクワク
トランクルームなど快適な暮らしをサポートしてくれる施設も揃っています。
大切なペットも一緒に暮らせます。(細則あり)
駐車場の空きもあるそうです!
共有廊下は外廊下タイプになります。
屋根付きなので暴風雨以外は濡れずに帰宅する事が出来そうです。
さて今回のお部屋は4階になります。
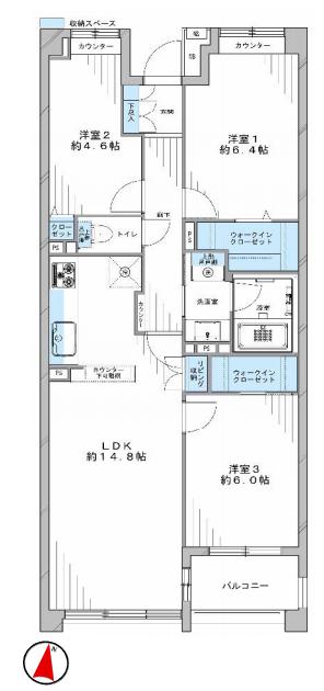
間取り図はこちら↓
クリックすると別タブで開くことも可能です。
間取り図とお部屋比較すると見やすいですよ
では、営業部小倉が【パークスクエア千歳船橋 4階角部屋】
お部屋一緒にご案内させて頂きます(o*。_。)oペコッ
こちら今回のお部屋玄関前になります|ω・`)ちら
アルコープのあるマンション特有のしっかりとした造りの玄関前ですね
最近のマンションはコスパをよくするため、
アルコープのないマンションが増えているそうです。
あると高級感あるもあり嬉しいですよね(^^♪
お子様の飛び出しによる隣人との衝突なども防げますよ
では♡早速お部屋いってみましょう
お邪魔しまーす┏○ペコ
右手にはトールタイプのシューズボックス
下はダウンライトで照らされ奥行を出し、玄関を広くみせますφ(`д´)メモメモ…
シューズボックスは高さ調整の出来るタイプです。
ブーツも入りますね(((uдu*)ゥンゥン
傘も収納出来るようになっています。
玄関廊下進みリビングにご案内させて頂きます
(っ・ω・)っ どうぞ
南向きの明るい陽射しがここまでのびています。
角部屋の特性を生かし、窓を多くとりお部屋を自然光で照らします。
明るい食卓ですね(*´・ω・)(・ω・`*)ネー
お隣は和室になります。
畳のメリットは素材であるイ草は、繊維がスポンジのようになっており
断熱性・保温性に優れ、湿気を吸収してくれるそうですよ(*´・ω・)(・ω・`*)へー
また、畳には空気が多く含まれているので空気の層は音を吸収する作用があり
走り回る子供の防音効果も期待できます。
クッション性もあるのでお年寄りやお子さんが転んでケガをするリスクも
軽減してくれますね\(^o^)/
冬は暖かくて夏は涼しい畳でゴロゴロ🐈にゃー
和室からバルコニーへ出れますよ。
最後にご案内させて頂きますのでちょっとスルーしますねε=┏(・ω・)┛
また後ほど(o*。_。)oペコッ
和室は閉めても特に圧迫感ありませんね。
明るい畳は清潔感があっていいですね(n*´ω`*n)♡
1つは欲しい押し入れ!
お客様用のお布団や、衣替えしたお洋服はこちらへε=ε=(ノ≧∇≦)ノ
夏お世話になった扇風機など色々なものがしまえて便利ですね!!
カウンターがあり、L字キッチンのようですね|ω・`)ちら
キッチンにスポットライトあてていきます(”◇”)ゞ
シンク前には窓があり光が差し込みます。
毎日使うキッチン。明るい気持ちで使えそうですね(^^♪
3口ガスコンログリル付きのシステムキッチンです。
大人が3人くらいキッチン経っても余裕そうですね(;゚д゚)ゴクリ…
収納もこ~~~~~~んなにありますよ。
カウンターの下が収納になっているのは便利ですね!
廊下戻ります、の前にこちらにも収納がありました|д゚)
ブレーカー隠しと高さ調整の出来る棚ですね!
掃除機入れたり、日用品のストックを入れたり用途は様々(*´・ω・)(・ω・`*)ネー
こちらにも収納がありますよ!
あまり奥行がないのでしまう物は限らてきますかね?
廊下につながる扉の可動域なので、ぶつかる可能性もありますΣ(゚Д゚)
なので普段あまり取り出さないものをしまっておくといいかもですね(((uдu*)ゥンゥン
廊下に出て一番手前の右側が洗面所になります。
独立洗面台と洗濯機置場です|ω・`)ちら
可愛い形の独立洗面台ですね((ノェ`*)っ))タシタシ
鏡両サイドと横に棚と、下にも収納がありますよ♡
スライド式の棚もあるので収納しやすいですねo(^o^)o ワクワク
開き戸タイプにはかごに洗剤類を入れれば出し入れも楽ですよね!
洗濯機により高さ調整のゴムが必要かもですね!
下のかの防音にもなるのでネットでググってみて下さい( ´∀`)bグッ!
続いて浴槽は浴室乾燥機能
湿気知らず、悪天候知らず~♪な主婦の味方\( ´・ω・`)┐
暖房機能を使えば冬のヒートショック防止にもなりますよ
石のタイル調がアクセントの浴室。
高級感があっていいですね!
続いてトイレですε=(ノ゚Д゚)ノ ∥WC∥
後ろにちょっとした棚があります。
トイレットペーパーのストックなど置けますね (*^艸^)
ニッチカウンターもあるので、飾り棚としても◎
ウォシュレット機能も付いていますよ((ノェ`*)っ))タシタシ
いま外国のひとがお土産に買って行くそうですよ
玄関廊下にも収納ありましたΣ(゚Д゚)
こちらも嬉しい便利な可動式ですねφ(`д´)メモメモ…
続いて洋室のご紹介させて頂きます(o*。_。)oペコッ
こちらのお部屋は洋室約6.4帖!
出窓付きになりますよ!
こちら玄関側になり人の往来がある為すりガラスになっています。
奥行があるのでなんでも置けそうですね(((uдu*)ゥンゥン
収納部分はウォークインクローゼットが完備。
照明つきで出し入れもしやすいですね。
最後に2面採光の洋室約4.8帖。
かなりデッドスペースがありますね(;・∀・)
ちょうどシングルベッドが置けるくらいでしょうか?
ベッドを持ってきたいときは採寸をオススメ致します(”◇”)ゞ
カウンターがうまく作られていますよ。
勉強机やパソコン机にしてもいいですね!!
趣味部屋や、子供部屋にいかがですか?

窓部分は二重サッシになっています。
防音効果もアップしますし、結露防止にもなります☆
ウォークインクローゼットではないですが収納広く取られています。
十分なスペースあるので洋室に物が溢れる事はなさそうですね( ´∀` )
さてお部屋いかがでしたか?
最後の最後に!南向き日当たり良好、
バルコニーへいってみましょう♪(((((((((((っ・ω・)っ
環八通りで車の騒音など気になりそう。。。。
と心配されていた方もご安心ください。
こちも二重サッシになっています。
防音性もアップするので、気にならないと思いますよ(((uдu*)ゥンゥン
(個人の見解なので是非!内見の際ご確認ください☆)
4階なので陽を遮るものはなさそうですね(((uдu*)ゥンゥン
高いビルもなく、空が高いです\(^o^)/

さて、【パークスクエア千歳船橋 4階カドベヤ】はいかがでしたでしょうか?
他にも詳細が知りたい!!実際に見学をしたい!!などありましたら
仲介手数料最大無料の当社
お電話ください(^-^*)/
TEL 03-5413-5336
お気軽にお問い合わせください。
スタッフ一同お待ちしております。
過去に販売していたお部屋の概要 このお部屋の販売は終了いたしました。
| 価格 | -万円 |
| 面積 | 73.94㎡ |
| 間取り | 3bedrooms(3LDK) |
| 管理費 | 月額15,700円 修繕積立金:月額17,400円 |
| 所在階 | 2階 |
| お問い合わせ・ご内見のご予約はこちらからお気軽にどうぞ | |
間取り図はこちら↓
クリックすると別タブで開くことも可能です。
間取り図とお部屋比較しながら一緒にお部屋みましょう(((((((((((っ・ω・)っ
こちら今回のお部屋玄関前になります!
玄関前にはアルコープがありますよ|ω・`)ちら
凹の部分を指します(((uдu*)ゥンゥン
共用廊下に人がいるのに気付かずドアを開けたとしても
相手にケガをさせる恐れがなくなります。
また、廊下からの視線を遮るのでプライバシー保護にも役立つのです☆
我が家感も増しますね( ´艸`)
では♡早速お部屋いってみましょう
お邪魔しまーす┏○ペコ
玄関右手には姿鏡付きのトールタイプのシューズボックスが完備
右と左と二つあります!収納力高いですね( ´艸`)
鏡もついているのでお出かけ前の最終チェックも出来ますよ( ´∀`)bグッ!
玄関廊下進んでいくと一番突き当りがリビングになります。
先にリビング、和室、洋室という順でご紹介させて頂きます(*´・ω・)(・ω・`*)ネー
約15.9帖の開放感ある明るいリビングがお出迎え♡
人気のカウンターキッチンが見えますね|ω・`)ちら
キッチンは後でご紹介させて頂きますね!
ダウンライトで高級感のある落ち着いた室内に(〃▽〃)ポッ
こちらのお部屋家具付き販売になります。
今ある家具をお使いになれますよo(^O^*=*^O^)o ワクワク
お子さんの遊び部屋やお昼寝に使用出来る和室☆
押し入れも広いですね( ´艸`)
お昼寝布団や人目につきたくないものが収納出来ますよ
開けておくとこんな感じで|ω・`)ちら
閉めるとこんな感じです。。
明るい畳の色のおかげで閉めても圧迫感などなく明るい室内でした◎
畳の素材であるイ草は、繊維がスポンジのようになっており断熱性・保温性に優れ、湿気を吸収してくれるそうですよ(*´・ω・)(・ω・`*)へー
また、畳には空気が多く含まれているので空気の層は音を吸収する作用があり、走り回る子供の防音効果も期待できます。
クッション性もあるのでお年寄りやお子さんが転んでケガをするリスクを軽減してくれますね\(^o^)/
和室はリビングに繋がる扉だけでなく、廊下方面にも出れますよ!
廊下からのリビングの扉も開けて撮影するとこーんな感じです(っ・ω・)っ 📷
和室のある生活はいいですね(*^^*)
続いて洋室4.9帖のお部屋は(((((((((((っ・ω・)っ
洋室はどちらも振り分けタイプでプライバシーが守れます◎
シューズボックスとアルコープの関係で
窓付近がベッド置くのがやっとって感じですね(; ・`д・´)
玄関は人の出入りや北風などが気にならないように二重サッシを導入\( ´・ω・`)┐
徒歩分数が離れている分とても住環境にこだわりが見えます(((uдu*)ゥンゥン
クローゼットもありますよ(^^♪
ハンガーをかけるとこもあります。
収納広くはないのでお気に入りの服だけいれるのもありですね( ´艸`)
こちら洋室約6.0帖ウォークインクローゼット付きです。
出窓になっているので、緑を置いたり色々と遊べそうですね(^^♪
どちらが玄関へんも扉かわからなくなりますね((ノェ`*)っ))タシタシ
十分な収納スペースとられていますよ!
上部に棚も設置されているので
衣替えなど、すぐに必要のないものは上にしまうと良いですね(((uдu*)ゥンゥン
お待たせ致しましたー!続いて水回りまわっていきましょう
ε=ε=ε=ε=ε=┏(*´∀`)┛
白くて可愛い人気のカウンターキッチンですよ♡
浄水器機能一体型3口ガスコンログリル付きの食洗機付き!
シンクに既に水切りが設置されてこの広さ!!理想ですね(((uдu*)ゥンゥン
最近グリルのアレンジ料理注目されていますね(*´・ω・)(・ω・`*)
皆さんは挑戦したことありますか??
食洗機付きです!
今まで黙々と一人でやっていた食後の片付けも、
食洗機に任せてその分家族団らんの時間に(〃▽〃)ポッ
廊下に出て左手にうっっっすーーーいクローゼットがΣ(゚Д゚)
なにをしまうんだ??
皆さん思いますよね、多分(^▽^;)
ブレーカー隠しのフェイク収納ですかね。
うまく有効活用してみて下さい (*^艸^)ふふ
右手はちゃんとした(ちょっと語弊があるかな)収納です。
高さ調整が可能な棚ですよ(^^♪
廊下に収納あるのは便利ですよね(((uдu*)ゥンゥン
次の扉はどこに続いてるかなo(^O^*=*^O^)o ワクワク
トイレでしたー!!ε=(ノ゚Д゚)ノ ∥WC∥
なんと!嬉しいウォシュレット機能付ですよΣ(゚Д゚)
上部に棚も設置されていて機能性高いですね(〃▽〃)ポッ
次は流れ的にあそこですね(*´・ω・)(・ω・`*)ネー
そう最後にご紹介するのは!!!
じゃ~~~~ん\( ´・ω・`)┐しゅたっ
独立洗面台と洗濯機置場のある脱衣所です。
リビングと同様木の温もりを感じる暖かい癒し空間でした◎
洗面台はシャワーヘッドタイプなので隅々までお掃除出来ますよ!
おこさんの手洗いもしやすいですね(*^^*)
収納は鏡の後ろも下もΣ(゚Д゚)
下はスライド式の棚もあるので収納するものにより
上手く使い分けられますね(((uдu*)ゥンゥン
洗濯機置場の上にも棚がありますよ|ω・`)ちら
リネン類いれたり活用してみてください!!
浴室は浴室乾燥機能
湿気知らず、悪天候知らず~♪な主婦の味方\( ´・ω・`)┐
暖房機能を使えば冬のヒートショック防止にもなりますよ
明るく清潔感のある浴室でした!!
追い焚き機能も付いていますよ (*^艸^)
入る時間がバラバラでもいつでも温かいお湯に浸かれます♡
一日の疲れを洗い流してください((ノェ`*)っ))タシタシ
さてお部屋いかがでしたか?
最後に!南向き日当たり良好
バルコニーへいってみましょう♪(((((((((((っ・ω・)っ
南向き日当たり良好◎
道路沿いの為、ちゃんと目隠しまでありますよ( ´∀`)bグッ!
その為眺望は望めませんが…
目の前の緑に癒されください\(^o^)/
さて、【パークスクエア千歳船橋】はいかがでしたでしょうか?
他にも詳細が知りたい!!実際に見学をしたい!!などありましたら
仲介手数料最大無料の当社
お電話ください(^-^*)/
TEL 03-5413-5336
お気軽にお問い合わせください。
スタッフ一同お待ちしております。
弊社、不動産Agent 六棒株式会社では、
□リノベーションマンションはほぼ全て仲介手数料無料!
□その他一般仲介物件は仲介手数料20%~30%OFF!
にてお取り扱いしております!※弊社の「Agent Fee=仲介手数料」についてはご案内、ご面談の際に営業担当者よりご説明いたします!
なるべく沢山のお部屋をホームページに掲載したいと思っておりますが、時間的成約もございますので、残念ながらご紹介できるお部屋の一部しか掲載できておりません。
このホームページに掲載中のお部屋、その他サイト等で気になるお部屋、街を歩いていて気になったマンション等々ございましたら是非、弊社営業部までご相談ください!
~不動産Agent 六棒株式会社の特徴~
・一般仲介物件の仲介手数料は20%~30%OFFにてご案内中です!
・リノベーションマンションについてはほぼ全て仲介手数料無料です!
・住宅ローンに自信あります!
・頭金10万円より購入できます。是非ご相談下さい!
・お部屋のご見学は車で2~3件まとめて案内します!
・物件数3000件以上、新築戸建、リノベ物件も多数ご用意しております!
過去に販売していたお部屋の概要 このお部屋の販売は終了いたしました。
| 価格 | -万円 |
| 面積 | 73.94㎡ |
| 間取り | 3bedrooms(3LDK) |
| 管理費 | 月額15,700円 修繕積立金:月額11,100円 |
| 所在階 | 2階 |
| お問い合わせ・ご内見のご予約はこちらからお気軽にどうぞ | |
間取りのご紹介です。3LDK、73.94㎡。
南向きのため陽当たり・通風良好☀
お部屋は環八通りに面しておらず二重サッシのため音は気になりません。
室内は只今リノベーション工事中!
一足先に充実のリノベーション内容と完成イメージパースをご紹介いたします。
■キッチン・・・LIXIL製システムキッチン(食洗機)
■浴室・・・パナソニック製ユニットバス(浴室乾燥機)
■洗面・・・・パナソニック製洗面台
■トイレ・・・LIXIL製シャワートイレ
■床・・・パナソニック製フローリング(廊下/洋室/LDK)、フロアタイル(洗面室/トイレ)
■建具・・・パナソニック製内装ドア
■照明・・・LEDダウンライト/LEDシーリングライト
■その他・・・全クロス張替え、ハウスクリーニング、エコカラットタイル(リビング)
■アフターサービス保証付
【内装工事終了予定:2015年9月下旬】
LDKの完成イメージです。リビングの壁面には調湿・消臭効果のあるエコカラットが使われ、暮らしに快適性をもたらしています。縦長で家具の配置もしやすそうです。
浴室乾燥機、追い焚き、食洗機、ウォークインクローゼットなど室内設備も充実しています。
工事終了前のご紹介も可能です。
ご内見のご希望・ご質問などございましたら、お気軽にお問い合わせくださいませ♪







































































































































































弊社 公式HP
六棒総合研究所
掲載予定物件
価格変更と販売終了物件
ハザードマップ検索
適合証明書.jp
Instagram