・
□□□□□□□□□□□□□□□□□□□□□□□□□□□□□□□□□□□□□□□
いつも弊社ホームページをご覧頂き誠にありがとうございます。
三軒茶屋サンハイツはお陰様で販売を終了致しました。弊社問合せフォームにてご要望頂けましたら、当お部屋でキャンセル等が発生した場合、他のお部屋が販売になりました際にご紹介させて頂きます。
不動産Agent 六棒株式会社
TEL:03‐5413‐5336
□□□□□□□□□□□□□□□□□□□□□□□□□□□□□□□□□□□□□□□
・
渋谷から2駅おとなりの三軒茶屋から『三軒茶屋サンハイツ』のご紹介です!キャロットタワーなどの新しい建物と昔ながらの古い建物が混在する魅力的な雰囲気♫散策しがいがありそうです (●´∀`)
アクセス
東急田園都市線「三軒茶屋」駅 徒歩10分
東急世田谷線「若林」駅 徒歩5分
三軒茶屋駅周辺には、さんちゃのランドマークのキャロットタワーや多くの飲食店がありにぎやか。キャロットタワー26Fの無料展望ロビーからは、富士山も綺麗に見えるそうです (●´∀`)また、区役所の出張所等の公共機関も充実のエリアです。
『すずらん通り』、『三茶3番街』、『エコー仲見世』などの名前が付けられた細い通りがいくつもあり、飲食店や店舗が密集しています。通ってみましたが、穴場なお店とかありそうな雰囲気・・・。夜になったら人もたくさん訪れるそうです(´∀`)
駅周辺には、スーパーやディスカウントショップもありますので、お買い物はばっちりです(*´▽`)
マンションまでは駅をでたら世田谷通りを若林方面にまっすぐ歩いて行くと到着します。

徒歩10分ですが、道は平坦。道沿いにはお店が続いていますので、楽しく歩くことができました♫
お隣のマンションの1Fにはピーコックがあります!!お買い物は安心ですね
(*´˘`*)♡
こちらが今回ご紹介させていただく『三軒茶屋サンハイツ』♫昭和53年築、7階建て、総世帯数26戸のマンションです。
前面道路は、世田谷通りですので、交通量は多めです。世田谷通りに面したエントランスからマンションに入ります。
エントランスの扉は歩道から少し奥まったところにあります。
エントランスの横にマンション専用のゴミ置場(マンション内から入れます。)、また敷地内には駐輪場(月額300円)がございます。

こちらが、1Fのエントランスホールです (●´∀`)左手の白い扉は、管理人室。管理は巡回管理です。
エントランスホールには防犯カメラが設置されています♫セキュリティもバッチリですね(´∀`*)
共用廊下は内廊下タイプ。玄関前で雨や風の影響を受ける心配がありません。外から見えない分、プライバシーも保ちやすいですね!
今回ご紹介するお部屋は3階。専有面積35.52㎡の1LDK。お一人暮らしの方にオススメのお部屋です。
間取り図はコチラ ↓ ↓ ↓
※間取り図は別タブで開きますので、確認しながらご覧いただく事ができます。
只今リノベーション工事中
2026年1月中旬完成予定ですのでお楽しみに!
・
以上で三軒茶屋サンハイツのご案内を終わります。
いかがでしたでしょうか??
三軒茶屋駅から徒歩10分のマンションです。
リノベーション済みという事で室内はとてもキレイですよ (っ・ω・)っ
内見のご予約やご質問などございましたらお気軽にお問い合わせくださいませ。
ご連絡お待ちしております。
弊社、不動産Agent 六棒株式会社では、一般仲介物件は仲介手数料20%~30%OFF!
にてお取り扱いしております!
なるべく沢山のお部屋をホームページに掲載したいと思っておりますが、時間的成約もございますので、残念ながらご紹介できるお部屋の一部しか掲載できておりません。
このホームページに掲載中のお部屋、その他サイト等で気になるお部屋、街を歩いていて気になったマンション等々ございましたら是非、弊社営業部までご相談ください!
~不動産Agent 六棒株式会社の特徴~
・一般仲介物件の仲介手数料は20%~30%OFFにてご案内中です!
・住宅ローンに自信あります!
・頭金10万円より購入できます。是非ご相談下さい!
・お部屋のご見学は車で2~3件まとめて案内します!
・物件数3000件以上、新築戸建、リノベ物件も多数ご用意しております!
過去に販売していたお部屋の概要 こちらのお部屋の販売は終了いたしました
| 価格 | -万円 |
| 面積 | 41.76㎡ |
| 間取り | 1bedrooms(1LDK) |
| 管理費 | 月額15,900円 修繕積立金:月額10,440円 |
| 所在階 | 2階 |
| お問い合わせ・ご内見のご予約はこちらからお気軽にどうぞ | |
ここで間取り図のご紹介です。
※間取り図は別タブで開きますので、確認しながらご覧頂く事が出来ます。
今回ご紹介するお部屋は2階、間取りは1LDK、専有面積は41.76㎡。南東角部屋で、お一人暮らしの方にお勧めのお部屋です。では、早速行ってみましょう!
エレベーターを2階で降りるとホールになっていて、そこに並んだ玄関ドアのひとつが今回ご紹介するお部屋です。
カメラ付きインターホンが設置されていて、モニターで玄関前の訪問者を確認する事が出来ます。ドアスコープもありますが、わざわざ玄関まで来なくてすむのがいいですよね。
木目を生かしたフローリングに白のクロスのナチュラルな雰囲気。お部屋へのドアが横向きに付いているので、宅配便やフードデリバリーの受け取り時にお部屋の中を覗かれる心配もありません。
玄関ドアには二重ロックで防犯面も安心!人感センサーが自動的にライトを点けてくれるので、いつでも明るい玄関が迎えてくれますよ(*´▽`*)シューズボックスはトールタイプ。収納力抜群で、棚は高さが変えられるのでブーツなどでも収納可能です。
では、お部屋の中へ…
こちらは約11.8帖のリビング・ダイニング・キッチン。西向きに窓があるL字型のお部屋です。L字の細長い側にキッチンを配することで、四角いスペースをリビングに使うことが出来るようになっています。特に壁付けキッチンは生活感がでやすいので、ある程度独立した感じになるのは嬉しいですね。
リビング部分にある西向きの窓の外は緑がいっぱい!!寛げるリビングになること間違いなしです♬
キッチン横の扉の中は、洗濯機スペースになっていました。棚も付いているので、洗剤などの洗濯グッズはまとめてここに置いておけますよ。
では、キッチンを詳しく見ていきましょう。調理台はナチュラルカラーの木目パネルを使用。お部屋の雰囲気にピッタリです。
収納は調理台下のスライドキャビネットと吊戸棚。引き出しタイプのスライドキャビネットは出し入れしやすく、収納物の確認もしやすいのが特徴です。真逆なのが吊戸棚。特徴を生かして収納するのが良さそうです。
調理台横には冷蔵庫のスペースも用意されていました。きれいに収まっていいのですが、入らなかったなんて事にならないよう冷蔵庫のサイズには注意しましょう。
コンロは3口、グリルも付いて調理器具も充実。
調理中は換気扇をお忘れなく。早めに回し始めると効果的らしいですよ。水栓は浄水機能付きシャワー水栓。切替えるだけで気軽に美味しいお水を使えます。ノズルが伸びるのでシンクを流すのにも便利ですよ。
では、奥のお部屋へ…
こちらは約6.4帖の洋室。南・東のバルコニーに面した大きな窓があるお部屋です。LDKと同じナチュラルテイストで、家具も幅広く選べそうですね。引き戸を使用することによってデッドスペースを作らず、お部屋のスペースを無駄なく使えます。
収納は間口が広くて使いやすそうなクローゼット。下にはキャリーバッグやスーツケースなどの大きな物も入れておけますよ。衣装ケースなどを置くのもありですね。
次は洗面室へ…
洗面室には洗面台の他に、浴室、トイレ、給湯器がまとまっていて、脱衣所も兼ねています。給湯器の前は結構スペースが空いていますので、ランドリーボックスなどを置くとよさそうですね。足元の配管も隠れて一石二鳥です(^^)
洗面台の上部には照明も付いていて、鏡を見る時に影になることもありません。
収納は洗面台下と三面鏡裏のキャビネット。細々とした物が多くなりがちな洗面廻りには豊富な収納は嬉しいですね。いろいろなタイプの収納で、大きな物から細かい物までバランスよく収まりそうです。
水栓はハンドシャワータイプ。ヘッドが伸びて洗面ボウルのお掃除も楽々です。
次はトイレへ…
洗浄便座はTOTO製のウォシュレット。トイレットペーパーなどのストックに便利な棚も付いています。高さ調節が出来るのがいいですね。
浴室は、ブラウンの鏡面仕上げのパネル使用で高級感のある雰囲気。
追い焚き機能付きユニットバスは「ふろ自動」ボタンひとつでお風呂を沸かすことが出来ます。そのまま保温もしてくれるのでいつでも温かいお風呂に入れますよ。
浴室換気乾燥機は浴室の換気やお洗濯物乾燥、浴室暖房など様々な使い方が出来ます。これからの寒い季節なら浴室暖房の出番ですね。
それでは最後はバルコニーへ出てみましょう。洋室の窓から出られます。窓は南向きの上半分だけが素通しのガラス、あとはすりガラスになっていました。
広さは5.42㎡、南・東向きのL字型バルコニーです。
東向き部分。物干し金具が付いていますので、お洗濯物はこちら側に干すようです。方角的に午前中がチャンス!正面は抜けていますが、お隣のバルコニーが近かったりで若干人目が気になるかもしれませんね。
南側は…
緑豊富な素晴らしい眺めになっています。まるで公園の中にいるようですね。お隣の建物の公開空地だと思うんですが、眺めだけお借りしちゃいましょう(笑)木漏れ日が気持ち良さそうですね♬
・
以上で三軒茶屋サンハイツのご案内を終わります。
いかがでしたでしょうか??
三軒茶屋駅から徒歩10分のマンションです。
リノベーション済みという事で室内はとてもキレイですよ (っ・ω・)っ
内見のご予約やご質問などございましたらお気軽にお問い合わせくださいませ。
ご連絡お待ちしております。
弊社、不動産Agent 六棒株式会社では、
□リノベーションマンションはほぼ全て仲介手数料無料!
□その他一般仲介物件は仲介手数料20%~30%OFF!
にてお取り扱いしております!※弊社の「Agent Fee=仲介手数料」についてはご案内、ご面談の際に営業担当者よりご説明いたします!
なるべく沢山のお部屋をホームページに掲載したいと思っておりますが、時間的成約もございますので、残念ながらご紹介できるお部屋の一部しか掲載できておりません。
このホームページに掲載中のお部屋、その他サイト等で気になるお部屋、街を歩いていて気になったマンション等々ございましたら是非、弊社営業部までご相談ください!
~不動産Agent 六棒株式会社の特徴~
・一般仲介物件の仲介手数料は20%~30%OFFにてご案内中です!
・リノベーションマンションについてはほぼ全て仲介手数料無料です!
・住宅ローンに自信あります!
・頭金10万円より購入できます。是非ご相談下さい!
・お部屋のご見学は車で2~3件まとめて案内します!
・物件数3000件以上、新築戸建、リノベ物件も多数ご用意しております!
過去に販売していたお部屋の概要 こちらのお部屋の販売は終了いたしました
| 価格 | -万円 |
| 面積 | 41.76㎡ |
| 間取り | 1bedrooms(1LDK) |
| 管理費 | 月額15,900円 修繕積立金:月額10,440円 |
| 所在階 | 3F |
| お問い合わせ・ご内見のご予約はこちらからお気軽にどうぞ | |
間取りは1LDK、41.76㎡。
陽当り良好の角部屋です。
間取りはクリックすると別タブで開くのでゼヒ写真と見比べながらご覧ください♪
お部屋は3階の角部屋。マンション自体にオートロックはありませんが、お部屋のインターホンにはTVモニターがついています。来訪者の顏が確認できるので防犯面も安心安全です。
ではお部屋の中へおじゃまします。室内はリノベーション済みでぴかぴかです♡室内は白基調。明るい空間になっています。
玄関横には背の高いシューズBOXがあります。
1、2名分の手持ちの靴ならここにまとめて収まりそうですね!
表扉の半分は鏡になっているのでお出かけ前の身だしなみチェックも忘れず済ませられますよ。
また玄関ホールには人感センサーがついています。
人の動きを感知して自動で照明が消灯するので、スイッチを押す手間が省け、更に節電効果も期待できます。暗い中帰ってきてすぐ電気がつくとホッとしますよね。
玄関をあがると廊下があり、その先に1枚扉があります。
さっそく入ってみましょう。
ガチャ。ささ、どうぞお入りください。
扉の先は約12.4帖のリビングダイニングキッチン。
建具、フローリング、キッチンも同じ系統の色合いで統一感がありますね(*´▽`*)
ちなみにキッチン側から扉方向を見ると、扉の横側にも空間が続いています。
(*‘ω‘ *)!!
扉横のスペースはこんな感じ。ここをリビング、キッチン側をダイニングキッチンと2部屋っぽく分けて使えそうな気がしませんか??窓から見える緑もいい感じです。
キッチンはクリナップ製。吊戸棚にワークトップ下の引き出しと収納スペースも豊富です。コンロ横にちょっとしたカウンターがあるので調味料などすぐ使う物はここに置くとよさそうです。
設備はというと、水栓は浄水機能付き、コンロは3口、グリルありで◎!
水栓はホースを伸ばしてシャワーとしても利用可能です。大きなお鍋にお水を入れるのも簡単に出来ますね♪
洋室とリビングダイニングキッチンは2枚の可動扉で仕切られています。
扉をガラガラ~と横にスライドさせまして・・・洋室は約6.8帖。
南、東の2面に窓があり開放感があります。
上から見るとお部屋はこんな形をしています。
6.8帖あればベッドも余裕を持っておけそうです。
洋室にはクローゼットがついています。
大きな収納はここだけになるので、工夫してなるべくたくさん仕舞いたいところです。
リビングダイニングキッチンに戻ってきて、次は洗面室を見ていきましょう。
ちょうどキッチンの向かい側に扉があります。
こちらが洗面室。脱衣スペースを囲むようにトイレ、洗濯機置場、洗面化粧台、バスルームがあります。水廻りの設備がまとまっているとお掃除もまとめてこなしやすそうですね♪
洗面化粧台はパナソニック製。3面鏡の間のライトで顏が明るく見えるのがいいですね。女性の方はメイクしやすいはず(´▽`*)収納も豊富なので小物類からドライヤーまで色々ここに収納しておけそうです。
水栓はホースを伸ばしてシャワーとしても利用可能です。
寝ぐせがすごくてもこれでザッと直してパッと出かけましょう!!
洗濯機置場横の白い扉はトイレです。
TOTOの温水洗浄便座です(´▽`*)
おしりだって洗ってほしい。のです!!
ペーパーホルダーはダブル。なんだか得した気分になるのは私だけでしょうか?
トイレ内には縦長の吊戸棚がついています。
サニタリー用品はペーパーのストックを1,2個入れておくのによさそうなサイズです。
洗面化粧台の横はバスルームです。
扉の横には浴室換気乾燥機の操作パネルがついています。乾燥機があれば雨の日や夜のお洗濯も安心です( ˘ω˘)
壁の一面には木目調の壁パネルが使われています。
ナチュラルな雰囲気でステキです。
バスタブはラウンド型でゆったり浸かれそう♡
追い焚き機能がついているのでこころゆくまで温まってくださいませ(*´▽`*)
最後に洋室からバルコニーに出てみましょう!どきどき。
バルコニーは約5.42㎡。L字型で南と東に面しています。
この日は小雨でしたが晴れた日は陽ざしが期待できます☀
こちらは南側。
南側正面の眺望です。
目の前は大きな木が生えています。緑がドーンと目に飛び込んでくる感じ。個人的にはこういうの好きです(´▽`*)みなさまどうでしょうか?
左右はこんな感じです(*‘ω‘ *)
こちらは東側。
東側はマンションビューです。
陽ざしを遮るような高い建物はないのでお洗濯物もよく乾きそうですよ♪
三軒茶屋サンハイツ、いかがでしたでしょうか?
内見のご予約やご質問などございましたらお気軽にお問い合わせくださいませ。
ご連絡お待ちしております。
弊社、不動産Agent 六棒株式会社では、
□リノベーションマンションはほぼ全て仲介手数料無料!
□その他一般仲介物件は仲介手数料20%~30%OFF!
にてお取り扱いしております!※弊社の「Agent Fee=仲介手数料」についてはご案内、ご面談の際に営業担当者よりご説明いたします!
なるべく沢山のお部屋をホームページに掲載したいと思っておりますが、時間的成約もございますので、残念ながらご紹介できるお部屋の一部しか掲載できておりません。
このホームページに掲載中のお部屋、その他サイト等で気になるお部屋、街を歩いていて気になったマンション等々ございましたら是非、弊社営業部までご相談ください!
~不動産Agent 六棒株式会社の特徴~
・一般仲介物件の仲介手数料は20%~30%OFFにてご案内中です!
・リノベーションマンションについてはほぼ全て仲介手数料無料です!
・住宅ローンに自信あります!
・頭金10万円より購入できます。是非ご相談下さい!
・お部屋のご見学は車で2~3件まとめて案内します!
・物件数3000件以上、新築戸建、リノベ物件も多数ご用意しております!
過去に販売していたお部屋の概要 このお部屋の販売は終了いたしました。
| 価格 | -万円 |
| 面積 | 41.76㎡ |
| 間取り | 2bedrooms(2DK) |
| 管理費 | 月額15,900円 修繕積立金:月額10,440円 |
| 所在階 | 1階 |
| お問い合わせ・ご内見のご予約はこちらからお気軽にどうぞ | |
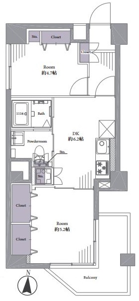
それでは、間取りのご紹介です。2DK、41.76㎡。1階の角部屋。
ペットも一緒に暮らせます。(細則有り)
【リノベーション内容】
■キッチン・・・システムキッチン(パナソニック)
■浴室・・・ユニットバスWT1116(TOTO)、追い焚き機能付き、浴室乾燥機付き
■洗面所・・・洗面化粧台 (Panasonic)、洗濯水栓、防水パン
■トイレ・・・TOTO、ウォシュレット機能付き
■その他・・・フローリング貼替、壁・天井クロス張替、フロアタイル貼替、クッションフロア張替、建具・玄関収納交換、給湯器交換、エアコン(1基)、カラーTVモニター付インターフォン、新規照明器具取付、スイッチ・コンセント交換、ハウスクリーニング
安心のアフターサービス保証も付いています。
24時間365日のセキュリティ(セコム)が導入されているので何かと安心です。※セコム契約後、月額3,240円(税込)
こちらの物件は、家具付きの販売となる物件です!!家具の方もチェックしてみてくださいね。

扉を開けると フルリノベーションを終え綺麗に生まれ変わった玄関がお出迎え☆ピッカピカです(´∀`*)このギャップがたまりません。

玄関照明は人感センサーになっているので節電はもちろん夜間のお帰りの際も便利です。玄関右手に上下に分かれたシューズボックス☆

便利な可動棚なので、お持ちの靴の大きさに合わせて動かしてみて下さい♪♪ブーツの収納もOKです。一部カウンターになっているので、インテリアや植物などを飾ったりとディスプレイも楽しめます。
廊下右手は、約4.7帖の洋室です。ベットルームになるお部屋だと思います。開口部は西向きです。
こちらのお部屋は収納が充実です。右手に扉付きのクローゼット♫バーも付いているので、ロングコート等の衣類の収納にも良いですね♪♪左手には、可動式棚の収納です。収納が大きいと生活スペースが広く使えて◎
ダイニングキッチンは、約6.2帖のお部屋。こちらから、サニタリールームと奥の洋室に出入りすることができます☆
キッチンは、白の清潔感のあるコンパクトなシステムキッチンです。
キッチンは上下に収納があり調理道具がたくさん入れられそうです♪

ワークスペースが狭いのですが、シンプルな造りのキッチンなので、お手入れなどはしやすそうです!

まずは、左手にトイレです☆上部には、扉付の収納棚があるので、ストック品の収納も完璧です♪♪
トイレと洗面室とは、扉が設置されていません。

洗面台は、鏡の裏が収納になっていて、細かいもので溢れがちな洗面周りがスッキリ片付いて便利です♪シャワーヘッドも嬉しいです (●´∀`)
バスルームは、優しい木調のパネル☆ゆっくり大きなバスタブにつかって疲れを癒せそうです♪♪追い焚き機能付きでいつでも暖かいお風呂に入れます。

ワインドなミラーが素敵です。モザイクパターンの床は、水はけが良く、すばやく乾燥します。
浴室乾燥機もついているので、雨の日のお洗濯も困りません!
改めまして、こちらの物件は、家具付きの販売なのでソファもテーブルも含まれています(*´˘`*)♡
エアコンが付いているので、ご入居すぐに快適な生活が出来ますねっ☆
開口部は、東向きと南向きの二面採光♫

こちらのお部屋の収納も大容量 (●´∀`)扉付きのクローゼット×2です!!バーも設置されていて、丈の長いお洋服でもキレイに収納できます♬
こちらのお部屋はダイニングキッチンとは、スライド式ドアで隔てられているので、開けて使えば一つのお部屋の様に使うこともできます(*´▽`)

それでは、バルコニーです♫約5.2帖の洋室から出ることができます。東側は、マンションの駐輪場になっています。ブラインドを付けてみても良いですね(´∀`*)
いかがでしたでしょうか。
世田谷通りに面していますが、反対側で静かなお部屋。
人気のエリア『さんちゃ』でスタイリッシュな暮らしはどうでしょうか (●´∀`)
内見のご希望、ご質問などございましたら、![]()













































































































































弊社 公式HP
六棒総合研究所
掲載予定物件
価格変更と販売終了物件
ハザードマップ検索
適合証明書.jp
Facebook
Twitter
Instagram