□□□□□□□□□□□□□□□□□□□□□□□□□□□□□□□□□□□□□□□
いつも弊社ホームページをご覧頂き誠にありがとうございます。
東急ドエル・アルス等々力弐番館はお陰様で販売を終了致しました。弊社問合せフォームにてご要望頂けましたら、当お部屋でキャンセル等が発生した場合、他のお部屋が販売になりました際にご紹介させて頂きます。
弊社では、仲介手数料無料orお値引(50%off、30%off、20%off)にて皆様のマイホーム探しのお手伝いをさせて頂きいております。東急ドエル・アルス等々力弐番館の類似物件や、お探しのご条件等をお聞かせ頂けましたらご条件に合ったお部屋をご紹介させて頂きます。また、ご来社頂き一緒に探させて頂くことも可能ですので、是非弊社問合せフォームよりお気軽にお問合せください。
不動産Agent 六棒株式会社
TEL:03‐5413‐5336
□□□□□□□□□□□□□□□□□□□□□□□□□□□□□□□□□□□□□□□
東急大井町線「尾山台」駅より徒歩15分。
ふたつ先の東急大井町線・東横線「自由が丘」駅より徒歩20分。
『東急ドエル・アルス等々力弐番館』のご紹介です!
駅から少し歩きますが、落ち着いた住環境をお望みの方におすすめの静かな場所です。
こちらは尾山台駅。改札を出るとハッピーロード尾山台商店街が形成されています。
歩道のみならず、車道も石畳になっているちょっとオシャレな感じ商店街です。
スーパーや青果店、カフェが併設されたパン屋さんや飲食店がキュキュッと並んでおり、お買い物も便利。尾山台駅からマンションへ向かうには商店街を抜けて行けます。
こちらは自由が丘の駅前。インテリアショップや雑貨屋さん、カフェ、スイーツのお店が多く集まる女性に人気のエリアです。この日は自由が丘からマンションまで向かってみました。
自由が丘のお店を見つつ、マンションまで向かうと徒歩20分の道のりも楽しく感じます♪IDEE(インテリアショップ)の上においしそうなベイクショップが入っていたり・・・
ヴィンテージ家具のお店や世界のトップパティシエ辻口シェフのパティスリーがあったり、と散策しがいもあります。スーパーや薬局など生活に必要なお店も揃っています。
自由が丘の街並みを抜けて目黒通りへ。
目黒通りを等々力方面へ歩いていきます。
西友と紀伊国屋がほぼ並んで建っているのが見えたら、目黒通りより道を1本入り、住宅街を少し歩くと到着します。近所にスーパーが2つもあると便利でいいですね!
東急ドエル・アルス等々力弐番館は静かな住宅街の角地に佇んでいます。
平成6年築、地下1階付き地上5階建て、総世帯数29戸。
タイル貼りでスタイリッシュな外観です。
建物を囲んでいる植栽もよく手入れがされています。
管理は日勤管理。オートロックも完備されており防犯面も安心です。
エレベーターでお部屋へ向かいます。
間取りのご紹介です。2SLDK、65.64㎡。4階。
クローゼット、ウォークインクローゼットをはじめ、廊下に可動棚、キッチンにパントリーと収納豊富なお部屋です。
<リノベーション内容 平成26年12月完了>
■キッチン・・・パナソニック製システムキッチン(食洗乾燥機)
■浴室・・・パナソニック製ユニットバス(浴室乾燥機)
■洗面・・・パナソニック製洗面化粧台
■トイレ・・・LIXIL製シャワートイレ
■床・・パナソニック製フローリング
■建具・・・パナソニック製内装ドア
■照明・・・LEDダウンライト/シーリングライト
■共通・・・全クロス張替え、ハウスクリーニング、etc・・・
お部屋は4階。外廊下ですが、目の前についたてが設置されているので外からの視線が気になることはありません。
白基調の明るい玄関ホール。
人感センサーがついており、人が通ると自動でパッと明かりがつきます。
荷物で手がふさがっている時など便利です。
設置されたシューズBOXはトールサイズで収納力も◎!
棚の高さを変えればブーツなど背の高い履物も収納しておけます。
玄関をあがると廊下が目の前にまっすぐ伸びており、サービスルーム、洋室、トイレ、洗面室等々の扉が左右に並んでいます。順番に見ていきます。
玄関をあがってすぐ左側は約3.7帖のサービスルーム。
広さがあまりないので、書斎として利用したり、思い切って1部屋まるごと収納スペースとして使ってもいいかも。クローゼットもついています。
サービスルームの向かい側は約4.7帖の洋室。
壁面の一部にあたたかみのある色合いのアクセントクロスが使用されています。
こちらのお部屋にもクローゼットがあります。
続いて水廻りの設備のご紹介です。
トイレはウォシュレットつき。
上の吊り棚にペーパーのストックや掃除用具を入れて置けば足元もスッキリ。
トイレのお隣に洗面室。
洗面化粧台、洗濯機置場、バスルームがまとまっています。
洗面化粧台は鏡の裏、洗面ボウルの下、洗面化粧台横と収納たっぷり。
タオルからシャンプーのストックまでまとめて仕舞っておけそうです。
鏡の間にライトが入っているので 顔がパッと明るく見えます。
洗剤や洗濯ネットなどの保管スペースも洗濯機置場の上に設置されています。
バスルームは追い焚き ・浴室換気乾燥機能付き。
予備暖房と涼風も入るので季節を問わず快適なバスタイムがお過ごしいただけます。
明るく清潔感のある雰囲気も◎!
廊下には棚のついた収納が2か所設置されています。
日用品のストックなどもスッキリ保管しておけます。
いよいよLDKへ。
LDKは約13.5帖。
2面に窓がある明るい空間はくつろぎの場にピッタリです。
天井に埋め込みタイプのエアコンも新規で設置済み。引っ越した日から快適に過ごせますね。
LDK内にはエコカラットとブラケット照明で飾られたTEL台もつくられています。
キッチンは独立式。
リビング側から見えにくく、急な来客時にも雑然としたキッチン内部を見られなくて済みます。
キッチンは3口コンロ、浄水機能付き水栓、食洗機付きとスペックもグー。
引き出しタイプの収納はキッチングッズの出し入れもしやすく使い勝手がよさそうです。
キッチン向かって右側に冷蔵庫が置けるようになっています。
キッチンスペースにはパントリーも設置されています。
食材の保管場所に便利ですね!機能的なキッチンだとお料理も手際よく進められるハズ。
2部屋ある洋室のうち、1部屋はLDKに隣接しています。
TEL台の横の扉をあけると・・・
扉の奥は約6.0帖の洋室。ほぼ南向きの窓から明るい陽ざしが差し込みます。
こちらのお部屋に物入れとウォークインクローゼットがつくられています。
収納が大きいと生活スペースを有効的に使えるのがうれしいですね!
最後に約6.0帖の洋室からバルコニーに出てみます。
南西向き、約4.11㎡。
ちょうど眼下に戸建の屋根がくる感じなので眺望も良好。
空が広く見えて快適です!
遠くの方には富士山もチラッと見えます。実際に見るとけっこうハッキリ見えますよ~
東急ドエル・アルス等々力弐番館、いかがでしたでしょうか?
少しでも気になったら、お早目のご内見をおすすめいたします。
お問合せは今すぐお電話03-5413-5336もしくはお問合せフォームからお気軽にどうぞ!
過去に販売していたお部屋の概要 このお部屋の販売は終了いたしました。
| 価格 | -万円 |
| 面積 | 79.17㎡ |
| 間取り | 3bedrooms(3SLDK) |
| 管理費 | 月額22,600円 修繕積立金:月額10,450円 |
| 所在階 | 2階 |
| お問い合わせ・ご内見のご予約はこちらからお気軽にどうぞ | |
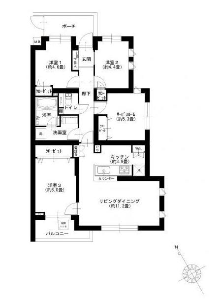
間取りのご紹介です。3SLDK、79.17㎡。
東南・南西角部屋の陽当たり良好なお部屋です。
玄関はポーチ付きで戸建感覚です。
目の前の廊下からは静かな住宅街が見えます。高い建物もないので、空もよく見えますよ。
白基調の明るい玄関ホール。ニッチもつくられているので、ちょっとしたインテリアや写真を飾ってステキな玄関を演出できます。自由が丘まで玄関に飾る物を探しに行こうかな、なんて楽しみもできそうです。
シューズBOXは収納量も◎。棚の高さを変えればブーツや長靴もおしまいいただけます。
玄関を上がると目の前は廊下がまっすぐ伸びています。
まずは正面の採光部のある扉の奥へ。
扉の奥は約15.1畳のリビングダイニングキッチン。
リビングダイニング部分で約11.2畳。ダイニングテーブルとソファやローテーブルもゆとりをもって配置できそうです。南東向きで明るいお部屋は家族の集いの場にピッタリ。
壁のエコカラットもステキです。家具付きでの販売になるので置いてあるテーブルやソファはいただけます。
キッチンスペースはゆとりの約3.9畳。一番奥に冷蔵庫が置けるようになっています。
3口コンロに浄水器付き水栓、食洗機とスペックも◎。スライド式の引き出し収納もキッチングッズの出し入れがしやすそうです。これだけ設備が揃っていれば、お料理の支度も後片付けもサクサクすすめられますね。
キッチンスペースには、物入れもつくられています。食品のストックや食器など仕舞いたい物が多い場所だけに収納が多いと助かります。カウンターもついているので、出来上がったお料理を置いておけば家族が運んでくれるかも・・・!
つづいて洗面室のご紹介です。(入口は廊下にあります。)
入口入って正面に洗濯機置場、右側に洗面化粧台とバスルーム。
洗面化粧台は3面鏡の裏が収納になっており、ゴチャゴチャ散らかりがちなハブラシや洗面まわりの物もスッキリ収納いただけます。
洗面ボウルの横にもカウンターがあり、物が置けるので身支度もスムーズに進められそうです。
洗濯機置場は上に棚があるので、手の届くところに洗剤が置いておけます。使いたい物が使いたい場所の近くに置けると家事もスムーズに進められます。
バスルームはナチュラルな色合いの木目調のパネルが使われており、リラックスできる雰囲気です。追い焚き、浴室乾燥機もついており、毎日快適なバスタイムが過ごせます。
さらにテレビがついています
これはついつい長湯してしまいそうです。
トイレは洗面室のすぐ隣に位置しています。ウォシュレット付き。
棚とカウンターと物が置ける場所が多いので、トイレットペーパーのストックから掃除用具まで必要なものはトイレ内に置いておけそう。棚に扉はないので、BOXなどを利用して収納してもいいかも・・・。
ここから洋室3部屋とサービスルームをご紹介します。
1部屋目は約4.4の洋室。玄関から一番近いお部屋になります。
小さ目ですが、クローゼットもつくられています。
2部屋目は約4.6畳。約4.4畳の洋室の向かいに入口があります。
こちらにもクローゼットがつくられています。
こちらは約5.3畳のサービスルーム。
幅の広いクローゼットもつくられています。
洋室3部屋目はリビング内に入口があります。
約6.0畳の広さ。淡い色合いのカラークロスが使用されており、他の洋室とまた少し違う雰囲気です。
こちらのお部屋には大型のクローゼットがつくられており、生活スペースを有効に使うことができそう。
約6.0畳の洋室からバルコニーに出てみます。南西向き。
ご覧のとおり、陽当たり◎。気持ちよくお洗濯物が乾かせますよ。
外は静かで穏やかな住宅街が続いています。
上を見上げればサンサンと輝く太陽も!
ご内見のご希望、その他ご質問などもお気軽にお問合せください![]()








































































































