・
□□□□□□□□□□□□□□□□□□□□□□□□□□□□□□□□□□□□□□□
いつも弊社ホームページをご覧頂き誠にありがとうございます。
シティコート広尾はお陰様で販売を終了致しました。弊社問合せフォームにてご要望頂けましたら、当お部屋でキャンセル等が発生した場合、他のお部屋が販売になりました際にご紹介させて頂きます。
不動産Agent 六棒株式会社
TEL:03‐5413‐5336
□□□□□□□□□□□□□□□□□□□□□□□□□□□□□□□□□□□□□□□
・
ザ高級住宅街 広尾
シティコート広尾をご紹介致します。
アクセス
東京メトロ日比谷線「広尾」駅徒歩13分
JR山手線「恵比寿」駅徒歩14分
広尾駅は東京メトロの日比谷線ですが
山手線の恵比寿駅もマンションから同程度の徒歩距離ですので、
どのに出るにも便利な場所です。
駅からは商店街を抜けていきます。
オシャレなカフェから昔ながらの文房具屋さ、お魚屋さんまで、長く住んでらっしゃるご年配の方も多い場所で、歴史と伝統を感じる落ち着いた商店街です。
目の前にお寺が見えたら、右折します。
すぐ近くが六本木とは思えない何とも落ち着いた雰囲気です。
賃貸アパート?と間違うほどの豪邸を横目に進んで行くと
シティーコート広尾に到着です。
平成4年9月築 4階建 総戸数36戸 3面バルコニーの角部屋です。
低層の佇まいが何とも素敵です。
棟の真ん中が駐車場になっております。
綺麗に管理されたエントランスを抜けると
ホテルの様なピカピカの床です。
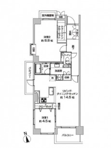
ここで間取り図のご紹介です。
※間取り図は別タブで開きますので、確認しながらご覧いただくことが出来ます。
今回ご紹介するお部屋は2階、専有面積76.63㎡の3LDK。DINKSやファミリーの方にお勧めのお部屋です。では、早速行ってみましょう!
【玄関廊下】
玄関はモノトーンにダークブラウンを合わせたモダンな雰囲気。左右に伸びるカーペット貼りの廊下が間接照明の柔らかい光に照らされています。シューズボックスは収納力のあるトールタイプなので玄関内もスッキリ保つことが出来ますよ。
【洋室1】
廊下右側には約6.5帖と約4.1帖の洋室が二つ。こちらは約6.5帖の洋室1です。北向きって暗いイメージがありますが、意外と明るいんですね。奥に棚があるクローゼットが付いています。
【トイレ】
廊下を右へ・・・トイレは洗浄機能一体型のタンクレス。手洗いカウンターやいろいろ飾ってインテリアを楽しめるニッチカウンターが付いています。
【洗面室・浴室】
洗面室には洗面化粧台の他に洗濯機スペースと浴室がまとまっていて脱衣室も兼ねています。洗面化粧台は身だしなみを整えるのに便利な三面鏡付き。鏡の間に照明が付けられているので影になることもありません。
浴室はゆとりの1418サイズ。木目パネルに囲まれた落ち着いた雰囲気です。追い焚き機能や浴室換気乾燥機などの便利機能も完備。
【LDK】
廊下の突き当りは約15.8帖のリビング・ダイニング・キッチン。南向きバルコニーに面したお部屋です。床は廊下と同じくカーペット貼りで、カーペットは複数のサンプルから選ぶことも可能とのこと。
【LDK】
天井の段差に付けられた間接照明が上への広がりを感じさせてくれますね。カウンターや物入も付いていてリビングに散らかりがちな様々なものを収納することが出来ますよ。
【キッチン】
キッチンは窪んだ位置にあるのでオープンキッチンでありながら比較的目立たなくなっています。コンロとシンクが向かい合った形でⅡ型に並んでいるため、動線がよく作業スペースも広くとれそうです。食洗器が付いているので食後はのんびりさせてもらいましょう!
【洋室3】
こちらはLDKに隣接した洋室3。南向きの窓が付いています。柱や梁による出っ張りがあまりなく無駄なくスペースを使えそうですね。収納は大きなウォークインクローゼット!ハンガーパイプだけでなく棚も造りつけられているので使い勝手も良さそうです。
・
以上でシティコート広尾のご案内を終わります。
いかがでしたでしょうか??
広尾駅から徒歩13分のマンションです。
リノベーション済みという事で室内はとてもキレイですよ (っ・ω・)っ
内見のご予約やご質問などございましたらお気軽にお問い合わせくださいませ。
ご連絡お待ちしております。
弊社、不動産Agent 六棒株式会社では、
□リノベーションマンションはほぼ全て仲介手数料無料!
□その他一般仲介物件は仲介手数料20%~30%OFF!
にてお取り扱いしております!※弊社の「Agent Fee=仲介手数料」についてはご案内、ご面談の際に営業担当者よりご説明いたします!
なるべく沢山のお部屋をホームページに掲載したいと思っておりますが、時間的成約もございますので、残念ながらご紹介できるお部屋の一部しか掲載できておりません。
このホームページに掲載中のお部屋、その他サイト等で気になるお部屋、街を歩いていて気になったマンション等々ございましたら是非、弊社営業部までご相談ください!
~不動産Agent 六棒株式会社の特徴~
・一般仲介物件の仲介手数料は20%~30%OFFにてご案内中です!
・リノベーションマンションについてはほぼ全て仲介手数料無料です!
・住宅ローンに自信あります!
・頭金10万円より購入できます。是非ご相談下さい!
・お部屋のご見学は車で2~3件まとめて案内します!
・物件数3000件以上、新築戸建、リノベ物件も多数ご用意しております!
過去に販売していたお部屋の概要 こちらのお部屋の販売は終了いたしました
| 価格 | -万円 |
| 面積 | 67.29㎡ |
| 間取り | 2bedrooms(2LDK) |
| 管理費 | 月額24,630円 修繕積立金:月額13,860円 |
| 所在階 | 4階 |
| お問い合わせ・ご内見のご予約はこちらからお気軽にどうぞ | |
間取りのご紹介です。2DK、67.29㎡。
南向きの角部屋につき陽当り・眺望ともに良好なお部屋です。
【リノベーション内容】
■キッチン・・・システムキッチン
■浴室・・・ユニットバス(panasonic)、浴室換気乾燥暖房機付き
■洗面所・・・LIXILシャワー付き洗面化粧台 、防水パン
■トイレ・・・TOTOウォシュレット機能付き
■その他・・・壁・天井クロス張替、クッションフロア張替、建具・玄関収納交換、給湯器交換、新規照明器具取付、収納棚新設、スイッチ・コンセント交換、ハウスクリーニング
■アフターサービス保証付き
エレベーターを出ると、開放的な空間が広がります。
最上階なので空が見えて気持ちが良いですね。
玄関タイルがピカピカです。ほんとホテルのようですね。
玄関の左側は全てシューズボックスです。これなら靴持ちの方でも安心です。
玄関をあがると目の前に廊下があり、その先にダイニングキッチンの扉があります。宅急便など急な来訪があっても玄関から居住スペースが見えることはありません。
トイレ及び、浴室は廊下の途中にありますが、先にリビングをご紹介致します。
廊下から扉をあけてリビングダイニングへ。南東の角地でバルコニーは南向きです。
今日は空が曇っていますが、それでもこの明るさです。
L型のカウンターキッチンが何ともおしゃれです。
コーナーの収納は引出せる様になっており、さらに奥から収納が出てきます。
水栓もグースネックで、おしゃれな部屋の雰囲気とマッチしています。
コンロもよくあるタイプではなく、温度調整がボタン一つでできるピピッとコンロです。
なかなかリノベーション物件では見ない商品です。良い物を使ってます。
リビングに面した約4.5帖の洋室は2面採光で非常に明るいお部屋です。
収納もタップリあります。
バルコニーからの眺望です。向いの家と視線がかぶらない様に緑が配置されています。
都心にいるのを忘れてしまいそうな景色です。
8.8帖のベッドルームには大型のウォークインクローゼットがついています。
2面採光の為、明るく風通しの良いお部屋です。
トイレにはボール型のかわいい手洗い場が付いています。
そして、トイレットペーパーホルダが2個ついています!
ホテルみたいです。
棚にはゴミ箱を収納するラックがついていますので、トイレをすっきり保てます。
洗面化粧台は鏡の裏に収納場所が確保されており、ゴチャゴチャ散らかりがちな小物類もスッキリ仕舞っておけるようになっています。洗面ボウルとカウンターが一体になっているのでお掃除がしやすいのも◎。
鏡の両脇に電気が付く、オシャレな仕様です。
キッチン?と思うような大容量の洗面カウンター下の収納です。
リネン庫は奥行があるのでバスタオルの楽々収納できますね。
防水パン付の洗濯機置き場です。
バスルームは追い焚き、浴室換気乾燥機能付き。
雨の日や夜のお洗濯も乾燥機があれば安心。いつもカラリと乾いた状態にしておけばカビの発生もグンと減るはず。
シティコート広尾、いかがでしたでしょうか?
都心の利便性と静かな環境の両方をもとめる方にお勧めです。
ご内見のご希望・ご質問などございましたら、お気軽にお問い合わせくださいませ♪






































































弊社 公式HP
六棒総合研究所
掲載予定物件
価格変更と販売終了物件
ハザードマップ検索
適合証明書.jp
Facebook
Twitter
Instagram