□□□□□□□□□□□□□□□□□□□□□□□□□□□□□□□□□□□□□□□
いつも弊社ホームページをご覧頂き誠にありがとうございます。
クラッシィハウス広尾フィオリーレはお陰様で販売を終了致しました。弊社問合せフォームにてご要望頂けましたら、当お部屋でキャンセル等が発生した場合、他のお部屋が販売になりました際にご紹介させて頂きます。
弊社では、仲介手数料無料orお値引(50%off、30%off、20%off)にて皆様のマイホーム探しのお手伝いをさせて頂きいております。クラッシィハウス広尾フィオリーレの類似物件や、お探しのご条件等をお聞かせ頂けましたらご条件に合ったお部屋をご紹介させて頂きます。また、ご来社頂き一緒に探させて頂くことも可能ですので、是非弊社問合せフォームよりお気軽にお問合せください。
不動産Agent 六棒株式会社
TEL:03‐5413‐5336
□□□□□□□□□□□□□□□□□□□□□□□□□□□□□□□□□□□□□□□
渋谷区広尾の閑静な住宅街に佇むハイクオリティレジデンス、『クラッシィハウス広尾フィオリーレ』のご紹介です。
アクセス
東京メトロ日比谷線「広尾」駅徒歩13分
東京メトロ日比谷線・JR山手線・埼京線・湘南新宿ライン「恵比寿」駅徒歩13分
クラッシィハウス広尾フィオリーレは平成15年築、5階建て、総世帯数14戸、住友商事旧分譲・大成建設施工のマンションです。気品と重厚感あふれる外観で、周囲は緑に囲まれています。※ペットの飼育も可能です。(規約あり)
エントランス前は広々。ゆとりがあります。
それにしても・・・このあたり静かです。(第一種低層住居専用地域です。)
マンション側面の道路。陽ざしがサンサンとふりそそいでいます。
車の通りもあまりなく、どこかのんびりと穏やかな空気が漂っています。
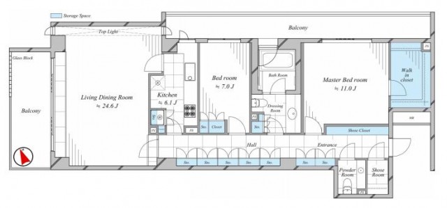
間取りのご紹介です。約121.51㎡ある広々とした2LDK。
ウォークインクローゼット、シューズインクローゼット、廊下壁面収納など収納豊富なところも魅力的です。
駐車場の専用使用権がついてるのでお車をお持ちの方も安心。(月額45,000円)
室内はリフォーム中!
一足先にリフォーム内容をご紹介いたします。
■キッチン・・・床タイル、水栓金具
■在来浴室・・・壁・床タイル、浴槽、水栓金具
■洗面・・・床タイル、水栓金具
■トイレ・・・LIXIL製シャワートイレ
■床・・・大建工業製フローリング(LD/各洋室)
■照明・・・LEDダウンライト、LEDシーリングライト
■その他・・・全クロス張替え、エコカラット、モザイクタイル、ウィンドフィルム、ハウスクリーニング
■アフターサービス保証付
【内装工事終了予定:2015年4月下旬】
ご内見のご希望・ご質問などございましたら、お気軽にお問い合わせくださいませ♪









