□□□□□□□□□□□□□□□□□□□□□□□□□□□□□□□□□□□□□□□
いつも弊社ホームページをご覧頂き誠にありがとうございます。
第三宮庭マンションはお陰様で販売を終了致しました。弊社問合せフォームにてご要望頂けましたら、当お部屋でキャンセル等が発生した場合、他のお部屋が販売になりました際にご紹介させて頂きます。
弊社では、仲介手数料無料orお値引(50%off、30%off、20%off)にて皆様のマイホーム探しのお手伝いをさせて頂きいております。第三宮庭マンションの類似物件や、お探しのご条件等をお聞かせ頂けましたらご条件に合ったお部屋をご紹介させて頂きます。また、ご来社頂き一緒に探させて頂くことも可能ですので、是非弊社問合せフォームよりお気軽にお問合せください。
不動産Agent 六棒株式会社
TEL:03‐5413‐5336
□□□□□□□□□□□□□□□□□□□□□□□□□□□□□□□□□□□□□□□
副都心線「北参道」駅より徒歩2分。第三宮庭マンションのご紹介です!
アクセス
副都心線「北参道」駅徒歩2分
JR山手線「原宿」駅より徒歩7分
KR中央線・総武線・都営大江戸線「代々木」駅より徒歩6分
ご紹介する第三宮庭マンションは3駅4路線利用可能と交通アクセスに恵まれた立地にあります。最寄駅の北参道からだと渋谷駅へ約5分・新宿三丁目駅へは約3分・池袋駅へは約14分と人気エリアへの移動もスムーズで通勤・お出かけに便利です。
マンション周辺の日常のお買い物場所というと、徒歩5分圏内にミニコープとコンビニがいくつかある程度。少し少ない印象でしょうか・・・。普段はこの辺りで済ましてお休みの日に大きなスーパーがあるところまで足をのばすのもよさそうです。
北参道駅周辺は落ち着いた雰囲気ですが、にぎやかな原宿も徒歩7分程度。ラフォーレに東急プラザと商業施設がもりだくさん。お休みの日のショッピングは充実した時間が過ごせそうです。グルメも充実しています。
原宿といえば若者の街。若者が集う場所といえば、竹下通り、ということでちょっと立ち寄り。クレープ片手の中高生やお買い物をする若者、観光客、外国人ですごい人です。
正直、ここを通るだけで体力が半分以下になりそうな世代ですが、この辺りで暮らしたら流行に敏感になりそうでもありますよね (っ´∀`c)
またマンションからは緑豊かな明治神宮もお散歩圏内。中は東京にいることを忘れるほど静かです。たまにはのんびり過ごしたいな、なんて気分の時に訪れてみてはいかがでしょうか。
第三宮庭マンションは昭和43年築、8階建て、総世帯数47戸。
レトロで落ち着いた雰囲気のマンションです。
事務所としても利用可能となっています。(条件あり)
中も落ち着いた雰囲気。日中は通勤の管理人さんがいます。
エレベーターでお部屋へ。
エレベーターホールでは中の様子がしっかり見えるので女性でも安心だと思いますよ!!
共用廊下は内廊下タイプです!!
雨や風の日にエレベーターから玄関前まで駆け抜ける心配はありませんね!!
こちらが今回ご案内させて頂くお部屋です!!
いろいろと変化球に満ちたお部屋でもあります!!
それでは!!
さっそく入っちゃいましょう!!( ・`ω・´)
エントランスから内廊下、玄関のドアまではちょっとレトロな雰囲気が出てたんですけどね、ドアを開けてみると!ところがどっこい!急に今風な感じに!!
夢じゃありませんよ・・・!
シューズボックスは高さの調整が可能です!下半分がなぜか半分しかありませんが、大きなシューズボックスなので気にすることもないと思います。
玄関入ってすぐ右手のドアを開けると洗面台が見えてきます。タイル貼りの壁は可愛らしいですね!!なんとなくハウステンボスって感じがします。小学校の修学旅行以来いってないですけど・・・!!
そして浴槽があります・・・
そうです!!
鏡にも写ってましたけどお風呂と洗面が同じ空間にあるのです!!
ふむふむ。今どき珍しいというか、お洒落にこだわるとこういうのもありなのかなと。
東京で働いていると、毎日浴槽にお湯を張って、、、という事もないですもんね。
たいていはシャワーで済ませてしまいますし、お風呂には無駄が一切ないこのスタイルの方が便利なのかもしれません( ̄∀ ̄*)
少し離れてしまいますが、表参道にある銭湯「清水湯」はなかなか評判がいいみたいですよ!!
休日に散歩がてら行ってみるのもありかもしれませんね!
先に進みます。
廊下を進んで二つ目のドアを開けるとトイレです。
もちろんウォシュレット付き!しかもTOTO製だそうです!!
大事な所は、しっかり詰めてくるこのお部屋はなかなか侮れません!!
吊り棚も付いているので消耗品の置場には困りませんよ。
では次へ!!
玄関の先はダイニングキッチンになっています!
白でまとめられた清潔感あるキッチンです。
グリル付きの3口ガスコンロ。これさえあれば食べたいものは何でも作れちゃいますね!!
それから、キッチンの隣にはちょっとした納戸になっています。しっかりと扉も付いていますのでお米や野菜はもちろん、別途ラックやハンガーポールを設置すればウォークインクローゼットとしてお洋服でさえもしまえちゃいますね!!
そして、引き戸を開けて更に奥へ進むと約7.5帖の洋室があります!
このお部屋はちょっと面白いので順番にご紹介していきますね!!
まずはクローゼット!
とても広いクローゼットが備えつけられています!
この大きさのクローゼットがあれば二人で住んでも衣替えの必要はなさそうですね!
シーズンごとの衣替えはとても面倒ですから!!(`ω´)
次に洗濯機置場と屋内物干し!!
そうです!
窓際の一帯が洗濯関連のスペースとしてお使い頂けるのです!
一面の窓がちょうど南を向いているので洗濯物もすぐに乾きそうですね。 (*^艸^)
でも!
部屋干ししている時に急な来客があったりもたまにしますよね??たまーに。
そんな時の為に!?
間仕切りカーテンが付いています!!
角度はお好きな感じに調整できますよ♪♪
閉めておくと温室効果でお洗濯物もすぐに乾きそうですね!!
夏場の昼間などはカーテンを閉めておけば暑さも少しはマシになるかもしれませんね、、、
この間仕切りカーテンをうまく利用することで生活に幅が出てきそうです(☆Д☆)
最後は4.5帖の洋室です!!
体感では4.5帖よりも広く感じるんですよね(゜Д゜)
窓際には棚が付いていますので、写真のお花のような観葉植物や小物を飾っておくことができます。
棚の部分が窓のように開閉できるのですが中には室外機がはいっていますのであしからず。
何かに使えそうなスペースではあるんですけどね、、、
以上で第三宮庭マンションのご案内を終わります!
いかがでしたでしょうか??
新宿からも渋谷からも交通のアクセスは抜群で、しかも閑静な住宅街です。
内見のご予約やご質問、気になる点などございましたら下記のお問い合わせフォーム、もしくはお電話でお気軽にお問合せ下さいませヽ(´∀`)
tell:03-5413-5336
弊社、不動産Agent 六棒株式会社では、
□リノベーションマンションはほぼ全て仲介手数料無料!
□その他一般仲介物件は仲介手数料20%~30%OFF!
にてお取り扱いしております!※弊社の「Agent Fee=仲介手数料」についてはご案内、ご面談の際に営業担当者よりご説明いたします!
なるべく沢山のお部屋をホームページに掲載したいと思っておりますが、時間的成約もございますので、残念ながらご紹介できるお部屋の一部しか掲載できておりません。
このホームページに掲載中のお部屋、その他サイト等で気になるお部屋、街を歩いていて気になったマンション等々ございましたら是非、弊社営業部までご相談ください!
~不動産Agent 六棒株式会社の特徴~
・一般仲介物件の仲介手数料は20%~30%OFFにてご案内中です!
・リノベーションマンションについてはほぼ全て仲介手数料無料です!
・住宅ローンに自信あります!
・頭金10万円より購入できます。是非ご相談下さい!
・お部屋のご見学は車で2~3件まとめて案内します!
・物件数3000件以上、新築戸建、リノベ物件も多数ご用意しております!
過去に販売していたお部屋の概要 このお部屋の販売は終了いたしました。
| 価格 | -万円 |
| 面積 | 40.50㎡ |
| 間取り | 1bedrooms(1LDK) |
| 管理費 | 月額:12,990円 修繕積立金:月額10,030円 |
| 所在階 | 5階 |
| お問い合わせ・ご内見のご予約はこちらからお気軽にどうぞ | |
間取りのご紹介です。1LDK、40.50㎡。
バルコニーから明治神宮の緑が見えるお部屋です。
【リノベーション内容】
■キッチン・・・システムキッチン(パナソニック)
■浴室・・・ユニットバス(パナソニック)、追い焚き機能付き、浴室換気乾燥暖房機付き
■洗面所・・・洗面化粧台 、洗濯水栓、防水パン
■トイレ・・・LIXIL
■その他・・・フローリング貼替、壁・天井クロス貼替、フロアタイル貼替、建具・玄関収納交換、給湯器交換、エアコン(1基)、カラーTVモニター付きインターホン、新規照明器具取付、収納棚新設、スイッチ・コンセント交換、ハウスクリーニング
■アフターサービス保証付き
白と木目を基調とした明るい室内。
インターホンはTVモニターがついており、来訪者の顔も玄関を開ける前にしっかり確認できます。
玄関横にはたっぷり収納できるウォークインクローゼットが設置されています。靴から日用品のストック、掃除機や季節家電などまとめてこの中で保管できそうですね。
玄関をあがると目の前は廊下。これなら宅急便など玄関先での対応時も生活スペースが見られる心配はありません。
廊下を進んですぐ右手にあるのはトイレ。ウォシュレットとペーパーのストックや小物の保管に便利な吊戸棚が設置されています。
トイレの向かい側は洗面室。バスルームと洗面化粧台がまとまっています。玄関から近いと帰宅後の手洗い・うがいもスムーズにできますね♪
洗面化粧台は鏡の裏が収納になっており、ゴチャゴチャ散らかりがちな小物類もスッキリお仕舞いただけます。洗面ボウル下の収納スペースにシャンプーのストックなどを入れて置くのもよさそうです。
バスルームは追い焚き、浴室換気乾燥機能付き。窓際のスペースはシャンプー類の置場にちょうどいいですね!
廊下をまっすぐ進んだ先、採光部のある扉の奥は約10.0帖のLDK。
どんな色あいの家具を置いてもしっくり馴染みそうな雰囲気です。
キッチンは開放感のあるオープンタイプ。
浄水機能付き水栓、お料理のはかどる3口ガスコンロと設備も◎です。LDK内には窓がないのでお料理中はレンジフードをオンにするのをお忘れなく・・・。
洗濯機置場はLDK内にあり、ちょうどキッチンの斜め後ろあたりにあります。お料理しながらお洗濯と家事もまとめて片付けやすそうです。洗濯機を使わない時は扉を閉めておけば生活感も隠しておけます。洗濯機の横はカウンターになっています。
LDKから洋室へ。3枚の可動式扉で仕切れるようになっています。
洋室は約5.1帖。窓は西向き。
エアコンが設置されているので引っ越したその日から快適にお過ごしいただけます。
洋室内には壁一面の大型クローゼットがつくられています。
収納が大きいと居住スペースが有効的に使えるのがうれしいですね。
最後に洋室からインナーバルコニーに出てみます。これなら雨や花粉の時期でも気にせずお洗濯物が干しておけます。干すスペースが足りない時は浴室の乾燥機をご利用くださいませ。
上には蛍光灯がついているので夜のお洗濯でも安心。
窓からは明治神宮の緑が見えます。この緑の手前に山手線の線路が通っているのですが 、窓が二重サッシになっているので閉めれば走行音は気になりません。
第三宮庭マンション、いかがでしたでしょうか?
ご内見のご希望・ご質問などございましたら、お気軽にお問い合わせください♪
過去に販売していたお部屋の概要 このお部屋の販売は終了いたしました。
| 価格 | -万円 |
| 面積 | 68.05㎡ |
| 間取り | 3bedrooms(3LDK) |
| 管理費 | 月額:17,480円 修繕積立金:月額16,340円 |
| 所在階 | 8階 |
間取りのご紹介です。2LDK、約68.05㎡。
玄関を開けると、石貼りの床!ピッカピカです!
右にシューズボックスがあります。
すぐ左に約15.6帖のLDK。
キッチンからご紹介!
新品でピカピカ!コンロは3口です。
収納は吊棚がないのでシステムキッチンの後ろに食器棚を置いた方が良さそうです。
如何でしょうか?
広々したこの空間!何でしょう?ワクワクしてきますね!
あそこにソファでここにはテレビで……なんて、想像(妄想)しながら撮影してしまう私は……。
続いては、洋室 約5.1帖のお部屋、クローゼット付。
こちらの部屋はバルコニーへ出れます。
眺望はこちら!
ワンダフルビューじゃないですか?
もちろんこちらのお部屋からは同じ方向で見えます!
洋室約6帖。
お部屋からは、明治神宮は見えませんが緑は見えます!
サンルーム(約4㎡)
雨が振ってたり、風が強い日にはこちらで干せますよ!
その他、テーブルやイスを置いても面白そうですね^^
ウォッシュ付トイレであります!
残念ながら収納できる棚類は無いのですが、上に空間が在るのでそこを利用して見るのも良いですね。
洗面台。
広~い洗面室に収納棚の完備! 洗面室からバルコニーへ出入りが可能なので沢山洗濯物があっても距離感は『0m』感覚!これは助かります。
洗面台は3面鏡でモチロン、鏡の裏は収納スペースになっております。
バスルーム。床が滑りにくい素材使用してます。
追炊き機能完備!いつでも温かいお風呂を戴けちゃいます^^
サービスルーム
収納部屋も良し、ゲストルームとか……。
収納部屋には勿体ないような……ムム~。
気になったらゼヒご内見をおすすめいたします!
過去に販売していたお部屋の概要 このお部屋の販売は終了いたしました。
| 価格 | -万円 |
| 面積 | 47.03㎡ |
| 間取り | 1bedroom(1LDK) |
| 管理費 | 月額14,310円 修繕積立金:月額11,540円 |
| 所在階 | 6階 |
間取りのご紹介です。(47.03㎡ 1LDK㎡)
眺望良好のお部屋です。
玄関をあけますと清潔感ある白いクロス、左側には胸ぐらいまでの高さがあるカウンター収納。
3つの扉のこちらの収納、シューズもバッチリしまえちゃいますね。
収納の高さも高すぎず使い勝手が良さそうです。カウンター部分には写真やお花を飾ったり、季節を感じるインテリアでも楽しめそうですね。ハロウィンが終わり~次はクリスマスですね。
ブラウンのカウンター部分にクリスマスカラー、映えそうですね♪
玄関入り左を向くと、正面のドアはLDKへ。左側は洗濯置き場・トイレです。
右側は浴室・洗面化粧台です。
洗濯置き場です。洗剤置きに助かる棚もあります。洗剤買いだめしても大丈夫そうですね。
ウォシュレット付トイレです。背面にステキなカウンター部分がありました。こうやってインテリアを楽しめる空間があると、オシャレ度アップですね。
吊戸棚もありトイレットペーパーのストックも大丈夫ですね!
サニタリールームです。入って左にはリネン庫があります。正面には洗面化粧台、右側に浴室です。
入って左側にあるリネン庫、高さの調整もできるので使い勝手も良さそうです。全て収納として使うも良し、下段には収納上段にはインテリアなんて使い方も良いですね~
スラッとした洗面化粧台です。洗面ボウルも十分なサイズ、二面のミラーをあけますと裏には細々したものが収納できます。洗面ボウル左にハンドウォッシュなど置けそうなスペース。このような配慮って嬉しいですね。
追炊き機能・浴室乾燥付きバスルームです。シックな色合いの浴室パネルはリラックスして入浴できそうです。24時間換気もできカビ防止もでき安心ですね。
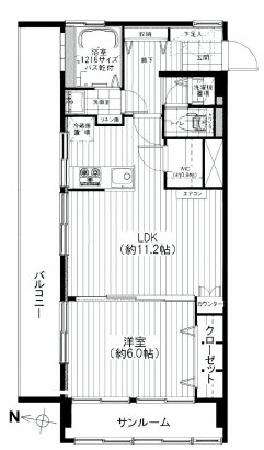
バルコニーに面している11.2帖のリビング・ダイニング・キッチンです。リビング・ダイニングの先には6.0帖の洋室があります。3枚の引き戸をあけると、開放感でいっぱいですね!
リビング・ダイニング・キッチンはバルコニーに面していて窓があり自然換気もでき明るいお部屋です。備え付けのカウンター収納もあり、電話を置くのにバッチリですね。備え付けはデザインも部屋とマッチしていて嬉しいですね♪
明るい対面式カウンターキッチンです。窓のあるキッチン、こちらからはお料理しながらでも都会的な景色がみえます!夜はどんな景色になるのでしょう。みてみたいですね。
嬉しい3口コンロで一気にお料理のスピードアップ!煮る、焼く、蒸すとできちゃいますね。
バルコニー・サンルーフに面している6.0帖の明るい洋室には奥行きのあるクローゼット付きです。
サンルーフです。外の様な中の様なお部屋が広がるような快適さと、屋外の開放感が溶け合うスペースが、お部屋の使い方を広げてくれそうです。
サンルーフからの眺望です。こちらからは木々もみえつつ線路もみえます。気持ちの良い青空ももちろん十分に感じられます。
バルコニー側のドアです。防音性と気密性を高める二重サッシになっています。
次はバルコニーへでてみたいと思います。
キッチンから洋室まで続いている33.11㎡のバルコニーです。これだけのゆとりあるバルコニー自分好みの空間作りたいですね♪
バルコニーからの眺望です。建ち並ぶビルは丁度良い絵になり、夜の眺望も気になります♪
広いバルコニーとこちらの眺望なんだか贅沢ですよね☆
すぐにスタートできちゃうこちらのお部屋は家具付きです!
皆様のご内見、心よりお待ちしております!












































































































































弊社 公式HP
六棒総合研究所
掲載予定物件
価格変更と販売終了物件
ハザードマップ検索
適合証明書.jp
Facebook
Twitter
Instagram