・
□□□□□□□□□□□□□□□□□□□□□□□□□□□□□□□□□□□□□□□
いつも弊社ホームページをご覧頂き誠にありがとうございます。
ジェントルエア神宮前はお陰様で販売を終了致しました。弊社問合せフォームにてご要望頂けましたら、当お部屋でキャンセル等が発生した場合、他のお部屋が販売になりました際にご紹介させて頂きます。
不動産Agent 六棒株式会社
TEL:03‐5413‐5336
□□□□□□□□□□□□□□□□□□□□□□□□□□□□□□□□□□□□□□□
・
神宮前唯一のタワーマンション!『ジェントルエア神宮前』のご紹介です。
アクセス
東京メトロ副都心線「北参道」駅徒歩6分
JR山手線「原宿」駅徒歩11分
JR総武線「千駄ヶ谷」駅徒歩10分
東京メトロ銀座線「外苑前」駅徒歩11分
にぎやかな原宿や表参道がご近所のジェントルエア神宮前。
この辺りはお買い物にグルメ、新しいものが充実しており刺激的な毎日が送れます(人´∀`)
そして都心でありながらもこの辺りは緑が豊かなスポットも多数あります。
こちらは1歩中へ入れば都内にいるのを忘れるほど静かな明治神宮。
広大な敷地を誇る代々木公園や新宿御苑もお散歩圏内。
マイナスイオンをあびて日頃の疲れもリセットできそうです。
外苑前の銀杏並木もフラリと見にこれる距離。
住んでみると以外と落ち着いた環境であることに驚くかもしれません。
マンションの斜め向かいには千駄谷小学校。登下校時には元気な子供たちの
姿も見ることができそうです。
マンションの正面、通りの向かい側にはカフェ併設の大型セレクトショップ
「ロンハーマン千駄ヶ谷」があります。
最寄駅の「北参道」駅の近くには高品質のOKスーパーもあり意外と便利!
ジェントルエア神宮前は平成19年築、地下2階付、地上22階建て、総世帯数111戸。鹿島建設既分譲。まだまだ新しいタワー&大規模マンションです。
駐車場は通りに面していて、入口が広く入れやすそうです。
駐輪場は建物の裏側にありスロープも緩やかで、ノンタッチキーのオートロックで自転車を押しながらでも大丈夫です。
エントランスもノンタッチキーのオートロックが2重になっています。1つ目のオートロックを入ると正面にコンシェルジュデスクがあり、クリーニングの取次、宅急便発送、タクシー・ハイヤー・レンタカー手配等々などのサービスが受けられます。快適&上質な毎日が待っています。
エントランス右側は吹き抜けのロビーがあります。
2つ目のオートロックを入り、エレベーターホールを抜けてお部屋へ。
廊下は絨毯敷きでホテルライクな内廊下です。
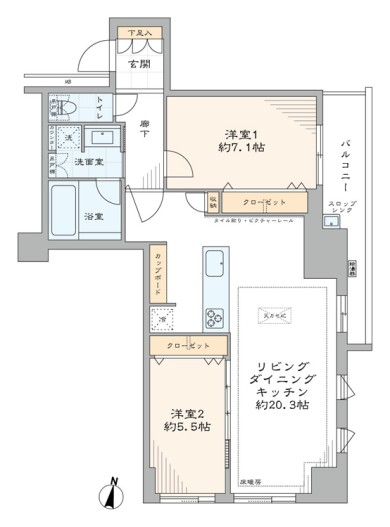
今回ご紹介するお部屋は13階、専有面積74.35㎡の2LDK。おひとり暮らしからスモールファミリーの方まで幅広くお使いいただけるお部屋です。20帖超のリビングが楽しみですね♬
間取り図はコチラ ↓ ↓ ↓
※間取り図は別タブで開きますので、確認しながらご覧いただくことが出来ます。
では早速行ってみましょう!
【共用廊下:ホテルライクな内廊下】
【玄関:白を基調とした明るい玄関】
【LDK:約20.3帖・南×東の二面採光】
【LDK:ビルトインエアコン】
【キッチン:開放的なカウンターキッチン】
【キッチン:食器洗浄乾燥機・カップボード付き】
【洋室2:約5.5帖・仕切りを開放してLDK とつなげて使用可能】
【LDK+洋室2】
【洋室1:約7.1帖・東向きバルコニー付き】
【洗面室:洗面台・洗濯スペース】
【浴室:追い炊き機能・浴室換気乾燥機付き】
【トイレ:洗浄機能一体型タンクレス・独立手洗い・吊戸棚付き】
【バルコニー:5.17㎡・東向き・スロップシンク付き】
【眺望:13階からの素晴らしい眺め】
・
以上でジェントルエア神宮前のご案内を終わります。
いかがでしたでしょうか??
原宿駅から徒歩11分のマンションです。
リノベーション済みという事で室内はとてもキレイですよ (っ・ω・)っ
内見のご予約やご質問などございましたらお気軽にお問い合わせくださいませ。
ご連絡お待ちしております。
弊社、不動産Agent 六棒株式会社では、
□リノベーションマンションはほぼ全て仲介手数料無料!
□その他一般仲介物件は仲介手数料20%~30%OFF!
にてお取り扱いしております!※弊社の「Agent Fee=仲介手数料」についてはご案内、ご面談の際に営業担当者よりご説明いたします!
なるべく沢山のお部屋をホームページに掲載したいと思っておりますが、時間的成約もございますので、残念ながらご紹介できるお部屋の一部しか掲載できておりません。
このホームページに掲載中のお部屋、その他サイト等で気になるお部屋、街を歩いていて気になったマンション等々ございましたら是非、弊社営業部までご相談ください!
~不動産Agent 六棒株式会社の特徴~
・一般仲介物件の仲介手数料は20%~30%OFFにてご案内中です!
・リノベーションマンションについてはほぼ全て仲介手数料無料です!
・住宅ローンに自信あります!
・頭金10万円より購入できます。是非ご相談下さい!
・お部屋のご見学は車で2~3件まとめて案内します!
・物件数3000件以上、新築戸建、リノベ物件も多数ご用意しております!
過去に販売していたお部屋の概要 こちらのお部屋の販売は終了いたしました
| 価格 | -万円 |
| 面積 | 72.36㎡ |
| 間取り | 2bedrooms(2LDK) |
| 管理費 | 月額16,600円 修繕積立金:月額9,030円 その他:月額370円 |
| 所在階 | 1階 |
| お問い合わせ・ご内見のご予約はこちらからお気軽にどうぞ | |
間取りのご紹介です。2LDK、72.36㎡。
1階のお部屋ですが、SECOMも完備で安心です。
ペットの飼育も2匹までOKです(別途飼育細則あり)
〈リフォーム内容〉
■キッチン・・・水栓交換、コンロ交換
■洗面室・・・水栓交換、洗濯乾燥機新規交換、FT張替え
■WC・・・ウォシュレット交換、CF張替え
■その他・・・洋室引き戸新規・クロス全室貼替え、フローリング(LL45)、シーリングライト新規交換、ハウスクリーニング等
玄関を入ると左側に姿見鏡があり、お出かけ前のチェックこちらで。
右側はトールタイプのシューズBOXはあります。
廊下は右側に曲がり、玄関からお部屋の中が見えずプライバシーが守られます。
壁にはエコカラットは貼られていて、空気環境が快適に保たれます。
玄関から最初の扉はトイレ。手洗いボウルも設置されています。
トイレの隣はサニタリールーム。
ドラム式洗濯乾燥機付きで、洗面台まわりの収納もたっぷり!
ドラム式洗濯乾燥機のスペースもあり、洗面カウンターの幅が広く広々とています。
バスルームは高級感のあるタイル貼り。
各所に手すりを配置する配慮もなされています。
今度は廊下を左に曲がります。
こちらには壁一面の収納スペースがあり、日用品のストックなどの収納に重宝します。
それではLDKへ!
リビングダイニングに入ると、すぐ隣に独立キッチンの入口があります。
約4.1帖と広く食器棚なども置けそうです。
ワークトップが広く使いやすいキッチンの設備は、3口ガスコンロ・浄水器一体型水栓・食洗機も付いていて充実しています。
リビングダイニングは13.0帖。ホワイトで統一されていて広く感じます。
床暖房にエアコンはビルトインタイプで夏も冬も安心ですね!
リビングダイニングと隣のベッドルームは南向きで、1階ですが引き戸を開けると大変明るいお部屋です。
1つ目のベッドルームへ!
5.8帖のベッドルーム。エアコンの配管は設置済み。
柱や梁の出っ張りがなく使いやすそうなお部屋です。
こちらのお部屋は奥行があり容量豊富な大型ウォークインクローゼットあります。
続いてリビングダイニングと引き戸で仕切られた6.0帖のベッドルーム。
こちらのお部屋はクローゼットはありませんが、リビングの続きとしてもお使いになれるお部屋です。
奥行きのあるバルコニーは10.37㎡で広々としています。
スロップシンクも設置されていますので、観葉植物のお手入れなどもバルコニーで出来そうです。
通りの裏側ですので、騒音は気になりません。
都心でありながら緑豊かな神宮前のタワーレジデンス『ジェントルエア神宮橋』はいかがでしたでしょうか。
みなさまのご内見、心よりお待ちしております!





































































