・
□□□□□□□□□□□□□□□□□□□□□□□□□□□□□□□□□□□□□□□
いつも弊社ホームページをご覧頂き誠にありがとうございます。
リシェ広尾はお陰様で販売を終了致しました。弊社問合せフォームにてご要望頂けましたら、当お部屋でキャンセル等が発生した場合、他のお部屋が販売になりました際にご紹介させて頂きます。
不動産Agent 六棒株式会社
TEL:03‐5413‐5336
□□□□□□□□□□□□□□□□□□□□□□□□□□□□□□□□□□□□□□□
・
広尾・恵比寿・白金台が生活圏。
華やかな都心の生活が送れそう・・・(人´∀`)
リノベーションマンション『リシェ広尾』のご紹介です!
アクセス
東京メトロ日比谷線「広尾」駅徒歩11分
JR山手線・湘南新宿ライン・埼京線・東京メトロ日比谷線「恵比寿」駅徒歩13分
南北線・都営三田線「白金台」駅徒歩13分
白金台駅よりマンションへ向かってみます。駅を出ると目の前は目黒通り。
スーパーにファミレス、ドラッグストアなどが周囲に並び、日常生活で必要な物はこの辺で揃いそうですφ(.. )白金台ってだけでオシャレなお店が永遠と並んでいるんじゃ・・・なんて思ってましたが暮らしやすそうな雰囲気です。
白金台駅から向かうと外苑西通り、別名「プラチナ通り」を抜けて行きます。
イチョウ並木がキレイですね✿
オシャレなお店はこの通り沿いにたくさんありました!
ファッション、レストランやお食事処、カフェやケーキ屋さんなどなど・・・。駅から徒歩13分と少し距離がありますが、見ながら歩いているとアッと言う間に着きます。
ここに住んだら一度じっくり散策してみたいところです。
首都高が見えたらもうすぐ到着。24時間営業のマルエツプチが近所(マンションから約40m)にあるのでちょっとしたお買い物なら近所で十分足りそうです。
三越やレストランが入っている恵比寿ガーデンプレイスもマンションから歩いて10分程度。休日は遠出しなくても近所でショッピングにグルメと充実した時間が過ごせそうです (´∀`o)
リシェ広尾は平成11年築、地下1階付き地上13階建て、総世帯数70戸。
2色のタイル貼りの外観が印象的。
細則がありますが、ペットの飼育が可能となっています。
階段を数段上がった先にエントランス。
管理形態は日勤管理です。
目の前は外苑西通り+首都高です。
エントランスを入り、オートロックを解除。
ガラス張りの壁面に等間隔に置かれた観葉植物、吹き抜けの空間が開放感をもたらす高級感あふれるエントランスロビー。
白いグランドピアノが飾られ、ホテルのような洗練されたロビーです。
エレベーターでお部屋へ向かいます。
今回ご紹介のお部屋、間取り図はこちら ↓ ↓ ↓
※間取り図は別タブで開きますので、確認しながらご覧いただくことが出来ます。
専有面積64.27㎡の2LDK、階数は11階。お一人暮らしの方からスモールファミリーまで幅広くお使いいただけるお部屋です。では早速行ってみましょう!
【玄関廊下:プライバシーを守るL字の廊下】
【玄関:大きな姿見・収納力のあるトールタイプのシューズボックス】
【洗面室:三面鏡付き洗面化粧台・洗濯機スペース・リネン庫】
【浴室:1418のゆったりサイズ・追い焚き機能・浴室換気乾燥機付き】
【トイレ:洗浄機能一体型タンクレストイレ・手洗いカウンター付き】
【洋室2:約4.7帖・ウォークインクローゼット付き】
【洋室1:約5.3帖・南東向き・オープンクローゼット付き】
【LDK:約15帖・エアコン・床暖房・家具付(小物を除く)】
【LDK:DEN・カップボード付き】
【DENからの眺め】
【キッチン:奥まった所にあるセミ独立タイプ・食器洗浄乾燥機付き】
・
以上でリシェ広尾のご案内を終わります。
いかがでしたでしょうか??
広尾駅から徒歩12分のマンションです。
リノベーション済みという事で室内はとてもキレイですよ (っ・ω・)っ
内見のご予約やご質問などございましたらお気軽にお問い合わせくださいませ。
ご連絡お待ちしております。
弊社、不動産Agent 六棒株式会社では、
□リノベーションマンションはほぼ全て仲介手数料無料!
□その他一般仲介物件は仲介手数料20%~30%OFF!
にてお取り扱いしております!※弊社の「Agent Fee=仲介手数料」についてはご案内、ご面談の際に営業担当者よりご説明いたします!
なるべく沢山のお部屋をホームページに掲載したいと思っておりますが、時間的成約もございますので、残念ながらご紹介できるお部屋の一部しか掲載できておりません。
このホームページに掲載中のお部屋、その他サイト等で気になるお部屋、街を歩いていて気になったマンション等々ございましたら是非、弊社営業部までご相談ください!
~不動産Agent 六棒株式会社の特徴~
・一般仲介物件の仲介手数料は20%~30%OFFにてご案内中です!
・リノベーションマンションについてはほぼ全て仲介手数料無料です!
・住宅ローンに自信あります!
・頭金10万円より購入できます。是非ご相談下さい!
・お部屋のご見学は車で2~3件まとめて案内します!
・物件数3000件以上、新築戸建、リノベ物件も多数ご用意しております!
過去に販売していたお部屋の概要 こちらのお部屋の販売は終了いたしました
| 価格 | -万円 |
| 面積 | 60.61㎡ |
| 間取り | 2bedrooms(2LDK) |
| 管理費 | 月額16,400円 修繕積立金:月額9,700円 |
| 所在階 | 3階 |
| お問い合わせ・ご内見のご予約はこちらからお気軽にどうぞ | |
間取り図はこちら ↓ ↓ ↓
※図は別タブで開きますので、確認しながらご覧頂くことが出来ます。
専有面積60.61㎡の2LDK、階数は3階。お一人暮らしの方からスモールファミリーまで幅広くお使いいただけるお部屋です。では早速行ってみましょう!
【玄関:人感センサー付き照明】
【トイレ:洗浄機能一体型】
【浴室:追い焚き機能・浴室換気乾燥機付き】
【洗面室:三面鏡付き洗面化粧台・洗濯機スペース・収納棚】
【洋室1:約7.2帖・ウォークインクローゼット付き】
【LDK:約13帖・エアコン付き】
【LDK:白と木目のナチュラルな雰囲気】
【キッチン:カウンタータイプ・食器洗浄乾燥機付き】
【洋室2:約6.4帖・LDKと隣接した三角形のお部屋】
・
以上でリシェ広尾のご案内を終わります。
いかがでしたでしょうか??
広尾駅から徒歩12分のマンションです。
リノベーション済みという事で室内はとてもキレイですよ (っ・ω・)っ
内見のご予約やご質問などございましたらお気軽にお問い合わせくださいませ。
ご連絡お待ちしております。
弊社、不動産Agent 六棒株式会社では、一般仲介物件は仲介手数料20%~30%OFF!
にてお取り扱いしております!
なるべく沢山のお部屋をホームページに掲載したいと思っておりますが、時間的成約もございますので、残念ながらご紹介できるお部屋の一部しか掲載できておりません。
このホームページに掲載中のお部屋、その他サイト等で気になるお部屋、街を歩いていて気になったマンション等々ございましたら是非、弊社営業部までご相談ください!
~不動産Agent 六棒株式会社の特徴~
・一般仲介物件の仲介手数料は20%~30%OFFにてご案内中です!
・住宅ローンに自信あります!
・頭金10万円より購入できます。是非ご相談下さい!
・お部屋のご見学は車で2~3件まとめて案内します!
・物件数3000件以上、新築戸建、リノベ物件も多数ご用意しております!
過去に販売していたお部屋の概要 こちらのお部屋の販売は終了いたしました
| 価格 | -万円 |
| 面積 | 68.03㎡ |
| 間取り | 2bedrooms(2LDK) |
| 管理費 | 月額18,400円 修繕積立金:月額10,880円 |
| 所在階 | 12階 |
| お問い合わせ・ご内見のご予約はこちらからお気軽にどうぞ | |
ここで間取り図とレイアウト例をご紹介いたします。
※図は別タブで開きますので、確認しながらご覧頂くことが出来ます。
今回ご紹介するお部屋は12階、間取りは2LDK、専有面積は68.03㎡。三方角部屋のお部屋です。全体が三角形なのがどんな感じになっているか楽しみですね。1階には、無償で使えるトランクルームも付いていますよ。では、早速行ってみましょう!
エレベーターを12階で降りると、ご覧のような豪華なホールになっていました!!まるでホテルのようですね。
お部屋はホールから外に出た所。玄関ドア横にはモニター付きインターホンが設置されていて、お部屋の中から訪問者を確認する事が出来ます。オートロックは付いていますが、応対する前に映像で確認出来れば更に安心ですね。
玄関からホールに掛けては大理石様のタイル貼り。建具の鏡面仕上げも併せて高級感がありますね。ホールは左方向に続いているようです。
人感センサーが自動的にライトを点けてくれるので、もう暗い中でスイッチを探す必要はありません。消し忘れも防げて一石二鳥ですよ。いつでも明るい玄関が迎えてくれるのって嬉しいですよね♪
シューズボックスはトールタイプが二つ。収納力は折り紙付き!!可動式の棚を調節すれば、ブーツなど背の高い靴でもそのまま収納可能です。
では、お部屋の中へ…
こちらは約17.6帖のリビング・ダイニング・キッチン。西向きの窓がある明るいお部屋です。キッチンは右側の奥まった所にあり、見えている部分をリビング・ダイニングに充てられると考えるとかなり余裕がありますね。スペース的に、レイアウト例にあったように窓際がダイニング、手前がリビングが良さそうです。
床には床暖房が設置されていて足元からポッカポカ。エアコンによる暖房が苦手な方でも安心ですよ。出っ張った柱には全面鏡が貼られていて、お部屋を広く見せるのに一役買っています。
鏡の横にはクローゼット。三角形なのでハンガーポールの取付などには少し工夫が必要そうですね。西向きの窓の外は、見晴らしの良い眺めになっていました。
北東側の洋室の仕切りを開けてLDKとつなげた様子です。引込式の扉は開放時にもスッキリ。洋室は窓も多いので更に明るいお部屋になりますよ。ライフスタイルや状況によって、いろいろな使い方が出来るのは便利ですね。
仕切り戸を閉めれば…
本来の約6.3帖の洋室に戻ります。二面採光で採光、通風共に良好。入口の引き戸はデッドスペースも作らず、スペースを無駄なく使う事が出来ますよ。きれいな四角いお部屋です。
三角形の収納が窓際にありました。収納などを三角形にする事によって、お部屋を四角くする事が出来るんですね。まるでパズルのようです。
LDKとなっていますがキッチンはほぼ独立タイプ。カウンターキッチンのように会話が弾む感じではありませんが、人目を気にせずお料理が出来るという特徴があります。お料理に集中出来ていいと、お料理好きな方には人気のキッチンです。
では、キッチンを詳しく見ていきましょう。残念ながらFIX窓で開きませんが、奥には窓もあり明るいキッチンです。調理台後ろには広いスペースがあり、冷蔵庫や家電ラックが置けるようになっていました。
収納は吊戸棚と調理台下のスライドキャビネット。引き出しタイプのスライドキャビネットは開口部が大きく、大きな物でも楽に出し入れ可能です。ぎっしり詰めてしまっても、中身の確認がしやすいのもいいですよね。
コンロは3口。タイマーや温度設定が可能な高機能タイプです。IHだけかと思ったらガスコンロでもこんな事が出来るようになっていたんですね。世の中に置いていかれてる気がします。
コンロの下にはグリル付き。お魚グリルなんて呼ばれる事もありますが、野菜でも肉でも何でも焼けるんですよ。レシピもたくさんありますから是非調べてみて下さい。ただし、使う時は換気扇をお忘れなく!
幅が広く作業スペースも十分。休日にみんなでお料理なんて楽しそうですね♬
食器洗浄乾燥機付き。洗い物をお任せして、みんなで食後をのんびり過ごしましょう!洗い物による手荒れに悩む事ももうありません。水栓は浄水機能付きシャワー水栓。お料理にお茶にと、気軽に美味しいお水を使えますよ。
では、次のお部屋へ…
こちらは約7.5帖の洋室。窓が多く明るいお部屋です。台形ですが、ベッド二つくらいなら置ける広さがありますよ。内装の色使いがシンプルなので、家具のチョイスにも幅が持てそうです。
こちらの収納はウォークインクローゼット!!両側にハンガーポールが設置された、きれいな四角形のクローゼットです。キャリーバッグやスーツケースなどの嵩張る物も収納出来ますし、衣装ケースなどで収納力アップもアリですね。
ホールに戻って…
三つの扉の内、右側は収納になっていました。
左側はトイレです。
トイレはタンクレス!
タンクとは別に手洗いが付いていると、高級感がありますよね。下には物が入るようになっていますが、ここって意外と大事です。トイレ掃除の道具を頭上の吊戸棚に入れるのは嫌ですからね。
トイレは洗浄便座付き。TOTO製のウォシュレットです。トイレットペーパーなどのストックに便利な吊戸棚も付いていますよ。
次は洗面室へ…
洗面室には洗面台の他に洗濯機スペース、浴室、リネン庫がまとまっていて、脱衣所も兼ねています。入浴中にお洗濯をすれば効率的ですね。
洗面台は三面鏡付き。幅が広く、譲り合えば二人くらいは同時に使えそうですよ。朝のラッシュ時には助かります。
収納は洗面台下のスライドキャビネットと三面鏡裏のキャビネット。大小様々なタイプの収納で、大きな物から細かい物までバランスよく収納する事が出来そうです。
水栓はハンドシャワータイプ。ヘッドが伸びて広い洗面ボウルも隅々まで流せますよ。シームレスの洗面ボウルはお掃除も楽々です。
洗濯機スペースには吊戸棚も付いているので、洗剤などはこちらへどうぞ。浴室脇にはリネン庫がありました。
浴室は木目のパネル使用で落ち着いた雰囲気。リラックスしたバスタイムを過ごせそう♬
追い焚き機能付きで「ふろ自動」ボタン一つでお風呂を沸かす事が出来ます。そのまま保温もしてくれるので、同居の方とのお風呂の時間が合わなくても大丈夫。いつでも温かいお風呂に入れますよ。
ゆったり浸かれる広々浴槽。
浴室換気乾燥機は浴室の換気の他に、寒い季節の浴室暖房や雨天や花粉の季節のお洗濯物乾燥など様々な使い方があります。「涼風」ボタンを使えば暑い夏も快適に!残念ながら冷房ではありませんが、濡れた頭を風が心地良く冷やしてくれますよ♬
それでは、最後はバルコニーをまとめてご紹介。
二つあるバルコニーは各洋室から出る事が出来ます。まずは、南西向きのバルコニーから出てみましょう!
ご覧の通り、陽当り抜群のバルコニー!!手すりには物干し金具が設置されお洗濯物も干せるようになっていて、これなら気持ち良く乾きそうですね♬ 三角形のバルコニーですが、奥行きがあるからか意外に広く感じましたよ。
外の眺めも開放的で最高です!
では、今度は北東向きのバルコニーへ…
こちらは三角形が鋭角なので、少々コンパクトな印象です。
外はこちら側もいい眺め!!写真では分かりづらいですが、東京タワーやスカイツリーも見えますよ。広い空って気持ちいいですね(^^♪
・
以上でリシェ広尾のご案内を終わります。
いかがでしたでしょうか??
広尾駅から徒歩12分のマンションです。
室内はとてもキレイですよ (っ・ω・)っ
内見のご予約やご質問などございましたらお気軽にお問い合わせくださいませ。
ご連絡お待ちしております。
弊社、不動産Agent 六棒株式会社では、
□リノベーションマンションはほぼ全て仲介手数料無料!
□その他一般仲介物件は仲介手数料20%~30%OFF!
にてお取り扱いしております!※弊社の「Agent Fee=仲介手数料」についてはご案内、ご面談の際に営業担当者よりご説明いたします!
なるべく沢山のお部屋をホームページに掲載したいと思っておりますが、時間的成約もございますので、残念ながらご紹介できるお部屋の一部しか掲載できておりません。
このホームページに掲載中のお部屋、その他サイト等で気になるお部屋、街を歩いていて気になったマンション等々ございましたら是非、弊社営業部までご相談ください!
~不動産Agent 六棒株式会社の特徴~
・一般仲介物件の仲介手数料は20%~30%OFFにてご案内中です!
・リノベーションマンションについてはほぼ全て仲介手数料無料です!
・住宅ローンに自信あります!
・頭金10万円より購入できます。是非ご相談下さい!
・お部屋のご見学は車で2~3件まとめて案内します!
・物件数3000件以上、新築戸建、リノベ物件も多数ご用意しております!
過去に販売していたお部屋の概要 このお部屋の販売は終了いたしました。
| 価格 | -万円 |
| 面積 | 64.27㎡ |
| 間取り | 1bedrooms(1SLDK) |
| 管理費 | 月額17,400円 修繕積立金:月額10,280円 |
| 所在階 | 8階 |
| お問い合わせ・ご内見のご予約はこちらからお気軽にどうぞ | |
ここで間取り図をご紹介いたします。
※間取り図は別タブで開きますので、確認しながらご覧頂くことが出来ます。
今回ご紹介するお部屋は8階、間取りは1SLDK、専有面積は64.27㎡。お一人暮らしからファミリーまで、幅広くお使いいただけるお部屋です。では、早速行ってみましょう!
8階でエレベーターを降りると・・・ロビー?? いや間違いなく8階でした^^;)8・9階が吹き抜けになっていてリゾートホテルのようです。
ホールを囲むようにある玄関ドアのひとつが、今回お邪魔するお部屋。ドア横にはモニター付きインターホンが設置されて、お部屋の中から訪問者を確認する事が出来ます。映像で確認出来るのはいいですね。
中に入ると正面にはシューズボックス。玄関内に入って左側を見ても壁!なかなかお部屋の様子が分かりません。宅配便やフードデリバリーなどの受け取り時にお部屋の中が見えないプライバシーに配慮した造りで、最近よく見かけます。最近は使う機会も段違いに増えてますからね。
玄関に設置された人感センサーが自動的にライトを点けてくれるので、暗い中手探りでスイッチを探す必要はありません。なにより、いつも明るい玄関に帰つて来れるのは嬉しいものですよね(*´▽`*)
トールタイプのシューズボックスが玄関から廊下にかけて二つあります。収納力抜群で、靴好きの方も大満足ですね♪ 可動式の棚を調節すれば、ブーツなどでもそのまま収納可能ですよ。扉に付いた姿見も重宝しそうです。
廊下を更に右へ曲がると、やっとお部屋のドアが見えてきました。木目を生かした建具で落ち着いた雰囲気です。
では、お部屋の中へ…
こちらは約16.7帖のリビング・ダイニング・キッチン。南東側に窓が並ぶ明るいお部屋です。
窓際には柱との間のちょっとしたスペースを利用した収納棚がありました。こういうのって工夫が感じられて嬉しいですよね。南西向きの窓の外は良い眺め。遮るものもなく、日射しも期待出来そうです。
キッチンは人気のカウンタータイプ。コミュニケーションが取りやすく、調理中でも会話が弾みます。更に、こちら側からはキッチン内が見えづらいのもメリットのひとつ。ひと目を気にせず、思う存分腕を振るえますよ(^^)
では、キッチンを詳しく見ていきましょう。キッチン内には冷蔵庫や家電ラックなどのスペースも確保されています。
調理台はL字型。作業スペースも十分取れ、調理中も移動が少なくて済む効率的なタイプです。コンロが壁に向いていて、油跳ねなどを気にしなくていいのも助かりますね。
調理台下にはスライドキャビネット、戸棚、食器洗浄乾燥機。食洗機付きなんですね、憧れます!!手荒れの心配もなく、食後もみんなでまったり出来ますね♬ スライドキャビネットは開口部が大きく、大きな鍋なども楽に出し入れ可能。ビッシリ詰めても中身が確認しやすいのもgoodです。
コンロは3口、タイマーや温度設定も可能な高機能タイプです。最近はガスコンロでもこんな事が出来るんですね^^;)
グリルって魚のイメージが強いですが、他の食材にもいろいろと使えるんですよ。グリルを使ったレシピはたくさんありますので、ご興味のある方は是非調べてみて下さい。使う時は換気扇をお忘れなく!
水栓は浄水機能付きシャワー水栓。お料理やお茶を淹れたりに、気軽に美味しいお水を使えます。お米を研ぐのも美味しいお水を使った方がいいらしいですよ。
では、次のお部屋へ…
こちらは約4帖の洋室。窓の無いお部屋です。4帖と小さめですが、引き戸使用なのでデッドスペースもできず、有効に広さを使えますよ。
収納は間口が広くて使いやすそうなクローゼット。ハンガーポールの他に棚が設置されてたマルチタイプです。ひと目で中が見えて無駄な買い物も減りそうですね^^;)
扉は引込式なので開放してもスッキリ。キッチンからもよく見えるので、キッズルームにしても良さそうです。
次はトイレへ…
トイレ内には専用の洗面台が設置されています。鏡やカウンターが付いていて高級感がありますね。
トイレットペーパーなどのストックに便利な戸棚も付いています。低い位置で使いやすそうですね。もちろん洗浄便座付き。INAX製のシャワートイレです。
次のお部屋へ…
こちらは約5.9帖のサービスルーム。サービスルームとは窓の面積不足などで法律上居室と認められないお部屋の事です。とはいえ、あくまでも法律上なので現状に即してない事も多く、普通に居室として使える事がほとんどです。こちらのお部屋も全く問題ありませんよ。
収納はウォークインクローゼット!!L字型にハンガーポールが付けられた広い収納です。キャリーバッグなどの大きな物も置けますし、衣装ケースなどを使えば収納力も上がりますよ。窓は横に開くタイプ。外はホールなのでしっかり面格子が設置されていました。
次は洗面室へ…
洗面室には洗面台の他に、洗濯機スペースと浴室がまとまっていて、脱衣所も兼ねています。入浴中にお洗濯が出来れば効率的ですね。洗濯機スペースには棚も付いていますので、洗剤などのお洗濯グッズはこちらへどうぞ。
洗面台は身だしなみチェックに便利な三面鏡付き。上部に付けらた照明のおかげで鏡を見る時に影になったりする事もありません。
収納は洗面台下と三面鏡裏のキャビネット。細々した物が多くなりがちな洗面廻りには、豊富な収納が助かります。洗面台横のカウンターも活躍の予感(^^)
水洗はハンドシャワータイプ。ノズルが伸びて洗面ボウルを流したりに便利ですよ。
浴室は木目の鏡面仕上げパネルを使った落ち着いた雰囲気。リラックスしてバスタイムを過ごせそう♪
切替ボタンを押せば、照明の色を変えられます。爽やかな浴室から、更にリラックス出来そうな浴室に早変わり!!夜はこっちの方が良さそうですね。
追い焚き機能付きユニットバスはワンタッチでお風呂を沸かせます。そのまま保温もしてくれるのでいつでも温かいお風呂に入れますよ。
浴室換気乾燥機は浴室の換気の他に、雨天や花粉の季節のお洗濯物乾燥や寒い季節の浴室暖房など様々な使い方があります。暑い夏なら「涼風」ボタンを使えば快適にバスタイムを過ごせますよ。残念ながら冷房ではありませんが、濡れた頭を風が心地良く冷やしてくれます。気分はまるで露天風呂♬
それでは、最後はバルコニーのご紹介。
LDKの二つの大きな窓から出られます。窓には、防音性、遮熱性を高めるインナーサッシが設置されていました。
広さは5.15㎡、南東向き。幅はありませんが奥行きが広く、数字より広々と感じるバルコニーです。物干し金具が設置されていてお洗濯物を干せるようになっていますね。午前中を中心に陽当り良好ですので、カラッと気持ち良く乾きそうです(*´▽`*)
外には開放的な景色が広がっています。プラチナ通りの街路樹もいい感じですね。
目の前には首都高速2号目黒線が通っていますので外に出れば音はしますが、二重サッシのおかげで室内は静かなのでご安心下さい(^^)
・
以上でリシェ広尾のご案内を終わります。
いかがでしたでしょうか??
広尾駅から徒歩12分のマンションです。
室内はとてもキレイですよ (っ・ω・)っ
内見のご予約やご質問などございましたらお気軽にお問い合わせくださいませ。
ご連絡お待ちしております。
弊社、不動産Agent 六棒株式会社では、一般仲介物件は仲介手数料20%~30%OFF!
にてお取り扱いしております!
なるべく沢山のお部屋をホームページに掲載したいと思っておりますが、時間的成約もございますので、残念ながらご紹介できるお部屋の一部しか掲載できておりません。
このホームページに掲載中のお部屋、その他サイト等で気になるお部屋、街を歩いていて気になったマンション等々ございましたら是非、弊社営業部までご相談ください!
~不動産Agent 六棒株式会社の特徴~
・一般仲介物件の仲介手数料は20%~30%OFFにてご案内中です!
・住宅ローンに自信あります!
・頭金10万円より購入できます。是非ご相談下さい!
・お部屋のご見学は車で2~3件まとめて案内します!
・物件数3000件以上、新築戸建、リノベ物件も多数ご用意しております!
過去に販売していたお部屋の概要 こちらのお部屋の販売は終了いたしました
| 価格 | -万円 |
| 面積 | 51.69㎡ |
| 間取り | 1bedrooms(1LDK) |
| 管理費 | 月額14,000円 修繕積立金:月額8,270円 |
| 所在階 | 5F |
| お問い合わせ・ご内見のご予約はこちらからお気軽にどうぞ | |
こちらが今回ご紹介させて頂くお部屋の間取りです。
51.69㎡の1LDK!!
少々変わった形のお部屋になっていますね!
それでは実際に見ていきましょう!!
エレベーターを降りると高級感漂うホールになっています。
ここは5階のハズなので、4階と5階が吹き抜けで繋がっているという事ですね!
なんだかオシャレー!!
各フロアに4~5部屋という感じなので、目的のお部屋はすぐに見つけることが出来ます。
玄関前にはモニター付きのインターフォンが付いていますね。
オートロックが付いているので、防犯的な心配は不要かと思いますが念の為、インターフォンが鳴ったら廊下の様子を確認しましょう!
それでは中に入っていきます!
今回のお部屋はリノベーション済みの物件ではございません。
ルームクリーニングのみではありますが、住まれてた方はかなり綺麗に使っていたようです。
サッと見た感じではありますが、特に汚れなどが気になることはありませんでしたよ!
大容量のセパレートタイプのシューズボックス付きの玄関です。
中央がカウンター状になっているので、お花や写真などで飾り付けたりするのも良いかもしれませんね!
あと、奥行が30㎝くらいだったので、足の大きな男性は靴を横向きに入れる必要があるかもしれません。(スリッパがちょうど入る感じです)
それでは玄関を後にして奥へと進みましょう。
玄関突当りのドアを開けるとこちらはリビング・ダイニング・キッチンです。
広さは約14.1帖。
キッチンも気になるトコロではありますが、まずはLD部分を見ていきましょう!
手前の四角い部分をダイニング、窓際の三角の部分をリビングという認識が良さそうです。
簡易的な照明が付いているだけなので、きちんと室内が明るくなるとまた見え方も違ってきそうです。
斜めについた大きな窓は南西向きです。
目の前に隣のマンションが建っていますが、南東・北西方面は開けています。
それでは次はキッチンを見ていきましょう。
キッチンは半独立型のオープンキッチンになっています。
入口に暖簾等をつければプライベート感も出ますし、香りの強い食材を使っても他のお部屋に匂いが広がりにくくもなります。
新規交換はされてないので、多少は使用感の残る感は否めませんが、よほどの潔癖な方ではない限り気にならないレベルだと思います!
新車でも1回乗っちゃえば中古車ですし!気にしちゃ損です!!
完全な独立キッチンではなく小窓が付いているので、LDにいる家族とコミュニケーションを取りながらお料理をすることができます。
お皿の受け渡しも小窓があればスムーズですよね!
次は玄関に戻ってこちらのドアを開けてみましょう!
中は洗面室になっています。
大きなミラーの付いた洗面化粧台です。三面鏡とは違ってつなぎ目も無いので視認性もバツグンですね!!
水栓はシャワーヘッドになっているので、大きな洗面ボウルの隅々まで水を流すことが出来ます。簡単な洗髪程度でしたらわざわざお風呂まで行く必要もなさそうです。
洗面化粧台の正面には洗濯機置場、その隣には収納スペースもありました。
洗面室は脱衣所も兼ねている場所なので、脱いだお洋服はすぐに洗濯することができますよ。すぐ隣に収納スペースがあるので、洗濯グッズの置き場所に困ることもなさそうです。
次はお風呂です。
換気扇にはダイヤル式のタイマーが付いているので、入浴後はしっかりと換気しておきましょう。カビの予防にもなるので個人的には常にONでもいいかと思います。
お風呂もキレイです。
浴槽はオーソドックスな深みのあるタイプです。最近のトレンドは浅めの洋風なものですが、日本人たるもの肩までしっかり浸かって100まで数えたいものですよね!!!
旧式ではありますが、追い焚き機能付きです。
追い焚き機能に最新と旧式で違いがあるのかは正直、謎ではありますが・・・・ お湯を温めることが出来れば必要十分な気もします。
男性は特にシャワーだけでお風呂を済ませがちではありますが、せっかくいいお風呂があるのでちゃんと使ってくださいね!
それではお風呂を出て、玄関と反対側です。
こちらはトイレです。
背面がウッドパネルになっていて、何となくログハウス風のトイレです。
別付の手洗い器が付いています。よく見るのはトイレのタンクの上で水が流れるタイプですが、ちょっと良いマンションではちょこちょこ見かけます。
トイレ自体も余裕を持った広さになっています。コンセントも余っているので、本棚を置いたりして、ちょっとした音楽でも流せるような他にはないこだわり方をしてみても面白いかもしれませんね。
それではリビングに戻ってきて次はコチラです。
こちらは約6.6帖の洋室です。
淡いブルーのアクセントクロスが優しい雰囲気を出していますね。
ウォークインクローゼットも付いています。
かなりの広さがあるので、季節もののお洋服などはコチラで全てまかなえそうですね。
お部屋の中に余計な家具を置く必要もないので空間を広く使うことが出来そうです。
窓は出窓になっています。
次はバルコニーへ出てみましょう!
ガラガラガラーーーッッ!!(実際は「スーーーッ」でした)
バルコニーは西向きです。
陽当り!という面では△ですが、眺望は◎です。
夏!!って感じの写真が撮れた気がします!
いい感じの坂、いい感じの緑、いい感じの青空と雲!
正面に見えているのは恵比寿ガーデンプレイスのタワーです。
お金持ちになったら毎日あそこの叙々苑で夜景を見ながら牛タンを食べたいですね。
ということで、以上でリシェ広尾のご案内を終わります。
いかがでしたでしょうか??
広尾駅から徒歩12分のマンションです。
室内はとてもキレイですよ (っ・ω・)っ
内見のご予約やご質問などございましたらお気軽にお問い合わせくださいませ。
ご連絡お待ちしております。
弊社、不動産Agent 六棒株式会社では、
□リノベーションマンションはほぼ全て仲介手数料無料!
□その他一般仲介物件は仲介手数料20%~30%OFF!
にてお取り扱いしております!※弊社の「Agent Fee=仲介手数料」についてはご案内、ご面談の際に営業担当者よりご説明いたします!
なるべく沢山のお部屋をホームページに掲載したいと思っておりますが、時間的成約もございますので、残念ながらご紹介できるお部屋の一部しか掲載できておりません。
このホームページに掲載中のお部屋、その他サイト等で気になるお部屋、街を歩いていて気になったマンション等々ございましたら是非、弊社営業部までご相談ください!
~不動産Agent 六棒株式会社の特徴~
・一般仲介物件の仲介手数料は20%~30%OFFにてご案内中です!
・リノベーションマンションについてはほぼ全て仲介手数料無料です!
・住宅ローンに自信あります!
・頭金10万円より購入できます。是非ご相談下さい!
・お部屋のご見学は車で2~3件まとめて案内します!
・物件数3000件以上、新築戸建、リノベ物件も多数ご用意しております!
過去に販売していたお部屋の概要 このお部屋の販売は終了いたしました。
| 価格 | -万円 |
| 面積 | 44㎡ |
| 間取り | 1bedrooms(1LDK) |
| 管理費 | 月額11,900円 修繕積立金:月額7,040円 |
| 所在階 | 2階 |
| お問い合わせ・ご内見のご予約はこちらからお気軽にどうぞ | |

自然素材をふんだんに使用したリノベーションマンション。
ウォークインクローゼット付き1LDKのお部屋です。


玄関には天井までのシューズクローゼットを完備。
玄関先から廊下まで続く大容量の収納スペースは高さ調整も出来、玄関周り以外の収納にも多機能に利用できて嬉しいですね!
全身が映る姿見はお出かけ前のチェックに大活躍☆

天然無垢オーク材のフローリングが美しいリビングダイニング。
耐久性に優れ、暖かく、また経年変化で過ごすほどに味も出てきます。
素材の持つ素朴な風合いと温かみで癒される住空間となっています。

キッチンは人気の対面式。
お料理中もリビングスペースが見渡せるので、小さなお子様のいるご家庭も安心です。
システムキッチンは新設でとても綺麗です。
食洗機・浄水器付きで作業スペースも広々としています!

リビングから続く洋室です。
仕切りのドアはスライド式で、全面開放するとキッチンから広々とした空間が広がります☆

南西向きのバルコニーに面した約6.1帖の洋室。
リビングダイニングと同じ無垢材のフローリングを使用していて、裸足でもさらりと気持ちの良い優しい肌触り。
ウォークインクローゼット完備で家族の衣服や小物類まで収納出来、お部屋をすっきり広々と使用できます。

優しい木材を使用し、あたたかい雰囲気を作り出すサニタリールーム。
デザイン性の高い洗面台が日常に洗練された時間をもたらします。

同じく木材で統一された清潔感のある空間。
雑貨などを飾ってオリジナル溢れるスペースにしても楽しいですね☆

木目が美しいモダンなバスルーム。
ユニットバス・ワイドミラーは新規新設でとても綺麗です!
雨の日も快適な浴室乾燥機・お財布にも優しい追炊き機能付きで、日々の暮らしを快適にしてくれます。

ウッド調のパネルが敷き詰められたバルコニー。
鮮やかな色のタイルが毎日を新鮮で元気な気持ちにしてくれます☆
南西向きで日当たりも良いので、お洗濯物もよく乾きそうですね!
「広尾」「白金台」が生活圏・・・洗練された上質な街並みがここにあります。
永住の地にふさわしい利便性良好な住宅地での快適な毎日。
ぜひ一度ご見学にいらして下さい。
内見のご予約やご質問などございましたらお気軽にお問い合わせくださいませ!
ご連絡お待ちしています!!
弊社、不動産Agent 六棒株式会社では、
□リノベーションマンションはほぼ全て仲介手数料無料!
□その他一般仲介物件は仲介手数料20%~30%OFF!
にてお取り扱いしております!※弊社の「Agent Fee=仲介手数料」についてはご案内、ご面談の際に営業担当者よりご説明いたします!
なるべく沢山のお部屋をホームページに掲載したいと思っておりますが、時間的成約もございますので、残念ながらご紹介できるお部屋の一部しか掲載できておりません。
このホームページに掲載中のお部屋、その他サイト等で気になるお部屋、街を歩いていて気になったマンション等々ございましたら是非、弊社営業部までご相談ください!
~不動産Agent 六棒株式会社の特徴~
・一般仲介物件の仲介手数料は20%~30%OFFにてご案内中です!
・リノベーションマンションについてはほぼ全て仲介手数料無料です!
・住宅ローンに自信あります!
・頭金10万円より購入できます。是非ご相談下さい!
・お部屋のご見学は車で2~3件まとめて案内します!
・物件数3000件以上、新築戸建、リノベ物件も多数ご用意しております!
過去に販売していたお部屋の概要 このお部屋の販売は終了いたしました。
| 価格 | -万円 |
| 面積 | 64.27㎡ |
| 間取り | 1bedroom(1SLDK) |
| 管理費 | 月額17,400円 修繕積立金:月額10,280円 |
| 所在階 | 12F |
| お問い合わせ・ご内見のご予約はこちらからお気軽にどうぞ | |
間取りのご紹介です。1SLDK、専有面積は64.27㎡。
12階、南東向きにつき眺望・陽当たり・通風ともに恵まれたお部屋です。
建具やフローリングは木の風合い漂う木目柄仕様でコーディネート。所々にエコカラットやアクセントクロスが使用されデザイン性のある空間になっています。
食洗機や追い焚き機能、浴室乾燥機など快適な生活をサポートしてくれる設備も充実しています♪
【リノベーション内容】
■キッチン・・・LIXIL製システムキッチン(食洗機付)
■浴室・・・LIXIL製ユニットバス(浴室乾燥機)
■洗面・・・・LIXIL製洗面台
■トイレ・・・LIXIL製トイレ
■床・・・DAIKEN製フローリング
■建具・・・DAIKEN製内装ドア
■照明・・・LEDダウンライト/LEDシーリングライト
■その他・・・給湯器(追い焚き機能付き)、全クロス張替え、アクセントクロス/エコカラット、ハウスクリーニング
■アフターサービス保証付
玄関を入ると正面にカウンタータイプのシューズBOXがありオブジェのディスプレイなどに長保します。
シューズBOXはカウンタータイプとトールタイプの2箇所。
どちらも可動棚で高さ調節可能です。
廊下はⅬ字に曲がり玄関~お部屋の中が見えない造りになっています。
廊下の角には可動棚の収納スペースがあり、玄関まわりの収納が大変豊富です!
最初のお部屋へ。
こちらは共用廊下に面した5.3帖のサービスルームですが、十分お部屋としてお使い頂けます。
収納はⅬ字にハンガーポールの設置された、十分な容量のあるウォークインクローゼット。
隣のドアはトイレ。
吊戸棚や手洗い水栓などが設置されたウォッシュレットタイプのトイレ。
こちらはサニタリールーム。
左側にランドリースペースがあり、上部には引き出し可能な吊戸棚が設置されています。
洗面台はボウルが大きく使いやすいシャンプードレッサータイプで三面鏡の裏など機能的。
バスルームは1418サイズの浴槽や追炊き・浴室乾燥機などの設備が整っています。
廊下の突き当りからLDKへ。
入ってすぐ左側にTEL台があり、エコカラットが設置されています。
TVモニター付きインターホンもこちらに。
キッチンは入って右側、オープンタイプで開放感があります。
スペースも広く、冷蔵庫以外にも食器棚なども置くことができそうです!
キッチン設備は3口ガスコンロにグリル、浄水器一体に食洗器も付いて充実しています。
引き戸で仕切られた洋室は4.5帖。
こちらのお部屋の収納もウォークインクローゼットで、可動棚も設置されています。
LDKは約17.3帖。
南向きで採光面も多く、明るい日差しが差し込むリビングです。
LDKの窓は曇りガラスになっているので、カーテンを開けても目線が気にならずお部屋が明るいです。
約5.15㎡のバルコニーは2箇所から出入り可能。
正面に高い建物がなく景色は抜けています。
高速道路が真下にありますが、全ての窓が二重サッシになっているのでお部屋の中は意外と静かです。
工事中のご紹介も可能です。
ご内見のご希望・ご質問などございましたら、お気軽にお問い合わせくださいませ♪
過去に販売していたお部屋の概要 このお部屋の販売は終了いたしました。
| 価格 | -万円 |
| 面積 | 64.27㎡ |
| 間取り | 1bedroom(1LDK) |
| 管理費 | 月額:16,400円 修繕積立金:月額4,850円 |
| 所在階 | 6階 |
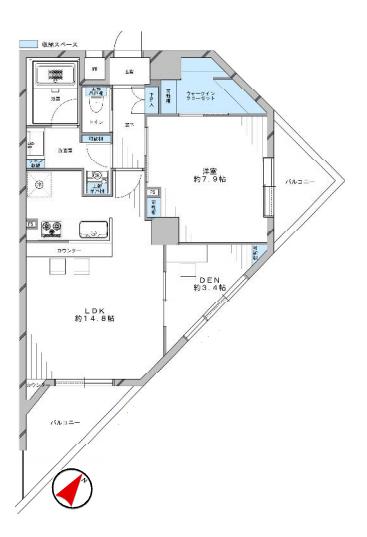
間取りのご紹介です。1LDK+DEN、60.61㎡。
地下1階部分に使用料無料のトランクルームもついています。
なお、9月より修繕積立金9,700円に改定される予定があります。
<リノベーション内容 平成26年8月完了>
■玄関・・・玄関収納、人感センサー
■キッチン・・・パナソニック製システムキッチン(対面カウンター付き)
■浴室・・・パナソニック製ユニットバス(浴室換気乾燥機)
■洗面・・・パナソニック製シャワー付洗面台(サイドキャビネット付き)
■トイレ・・・LIXIL製シャワートイレ(吊戸棚)
■床・・パナソニック製フローリング(廊下/洋室/LDK)、フロアタイル(玄関/洗面/トイレ)
■建具・・・パナソニック製内装ドア
■共通・・・給湯器(追い焚き機能付き)、分電盤、ウォークインクローゼット(洋室)、LEDダウンライト、LEDシーリングライト、エコカラット(ダイニング)、カウンターデスク(DEN)、スイッチパネル、全クロス張替え、ハウスクリーニング、etc・・・
玄関前の壁面もエントランスロビー同様にガラス張り。
開放感のあるつくりになっています。
白基調の明るい玄関ホール。
備えつけのシューズBOXはトールサイズで収納力も◎!
玄関をあがると目の前に廊下がまっすぐ伸びています。
左側に洋室、右側にトイレと洗面室、正面にLDKの扉があります。
まずは洋室へ。
約7.9帖の洋室。ベッドルームとしてお使いいただくかと思います。
ほぼ東向きなので朝は日差しで気持ちよく目覚められそうです。
こちらのお部屋には収納スペースがたっぷり。インテリアや本などを飾りながら収納できるオープンシェルフや収納豊富なウォークインクローゼットが設置されています。
ウォークインクローゼット内にも可動棚や枕棚がついているので整理整頓もしやすそうです。
洋室からはバルコニーに出られるようになっています。(バルコニーは2か所あります)扉は二重サッシ。窓にはウィンドフィルムが貼られ、プライバシーも確保しています。
バルコニーからの眺めは◎!遠くに東京タワーの上の方もチラリと見えます。
この日はあいにくの曇天でしたが晴れた日は爽快な眺めが望めそうです( ´∀`)
つづいてトイレ。ウォシュレット機能付きです。
上には吊り棚が設置されているのでペーパーのストックや掃除用具もスッキリ収納いただけます。
洗面室内は洗濯機置場、洗面化粧台、バスルームがまとまっています。
オフホワイト基調で清潔感のある雰囲気です。
3面鏡の裏が一面収納になっている洗面化粧台。コスメやハブラシなどゴチャゴチャしがちな物もスッキリ片付けておけるようになっています。
さらに横はリネン庫。タオルやシャンプーのストックなどの保管場所に便利です。
洗面室内には天井まであるオープンシェルフも設置されています。
着替えや日用品のストックなどの置場としても活躍するのではないでしょうか。
洗濯機置き場。上には吊り棚がついています。
大理石調のボーダー柄がやさしい印象のバスルーム。
1日の疲れもスーッと取れそうな雰囲気です。
追い焚きと浴室換気乾燥機付きとスペックも◎。
首都高が近いので外干しはちょっと抵抗がある・・・という方も安心してお洗濯物が乾かせます。
廊下をまっすぐ進んだ先、採光部のある扉の奥は・・・
約14.8畳のLDK。東南向きの明るいお部屋はくつろぎのスペースにピッタリです。
反対側からもご覧ください。
キッチンは開放感のあるオープンスタイル。
ライトアップされた壁面のエコカラットもオシャレです。
キッチンの向かいにはダイニングカウンター。
食事をしたり、のんびりお茶を飲んだり、夜はちょっと一杯と乾杯したり・・・
ダイニングテーブルを用意する必要がないのでリビングスペースを広々使えるのがうれしいですね。
リビング内にはお部屋の角に小さなカウンターも設置されています。
システムキッチンはホワイトの木目柄。
スライド式の収納はキッチングッズの出し入れもしやすく使い勝手もよさそうです。
テーブルとキッチンの距離が近いと後片付けのスピードもグンと上がりそうです。
LDKに隣接してDENがつくられています。
アルミフレームの扉でLDKと仕切られています。
DENは約3.4帖。カウンターデスクも設置されています。
本を読んだり、持ち帰った仕事を片付けたり・・・とこの中で落ち着いて作業ができそうです。
壁面には本や書類などを収納できる可動棚も設置済み。
最後にリビング側のバルコニーへ出てみます。南東向き。
首都高、その向こうにビル群と都会の風景。
これは夜景も期待できそうです ✧
ご内見のご予約・ご質問などございましたらお気軽にお問合せください![]()






















































































































































































































































































































