・
□□□□□□□□□□□□□□□□□□□□□□□□□□□□□□□□□□□□□□□
いつも弊社ホームページをご覧頂き誠にありがとうございます。
渋谷藤和コープはお陰様で販売を終了致しました。弊社問合せフォームにてご要望頂けましたら、当お部屋でキャンセル等が発生した場合、他のお部屋が販売になりました際にご紹介させて頂きます。
不動産Agent 六棒株式会社
TEL:03‐5413‐5336
□□□□□□□□□□□□□□□□□□□□□□□□□□□□□□□□□□□□□□□
・
京王井の頭線「神泉」駅徒歩1分。
渋谷駅からでも徒歩7分。リノベーションマンション『渋谷藤和コープ』のご紹介です!
アクセス
山手線・埼京線・湘南新宿ライン・銀座線・半蔵門線・副都心線・東急東横線・田園都市線・京王井の頭線「渋谷」駅徒歩7分
京王井の頭線「神泉」駅徒歩1分
街をご案内する前に、まずはこちらをご覧ください!
□□□□□□□□□□□□□□□□□□□□□□□□□□□□□□□□□□□□□□□
★★★【渋谷藤和コープ】周辺のハザードマップをCHECK!!★★★
お部屋の記事を読む前に…!周辺のハザードマップをチェックしておきませんか!
渋谷藤和コープのハザードマップは★こちらから…どうぞ★
□□□□□□□□□□□□□□□□□□□□□□□□□□□□□□□□□□□□□□□
ご案内に戻りましょう。9路線が乗り入れる渋谷。どこへ行くにもどこから来るにもアクセスは良好。マンションはここから歩いて徒歩6分です。
が・・・さすが渋谷、人が多い!ボーッとしてると流されていきます・・・。
駅周辺にはヒカリエに東急、西武、丸井、パルコ、などデパートや商業施設が集まりお買い物もグルメも充実。アクティブな毎日が送れそうな予感(人´∀`).☆.。.:*・
渋谷からマンションへ向かうのは道玄坂を通っていくのがよさそうです。
道玄坂上交番前へ出たらマンションまであと少し。どこを歩いても美味しそうな飲食店や手軽に入れるファーストフード店などがチラホラ。ハンパなく散策のしがい、あります。
こちらは最寄駅の神泉駅。マンションまで徒歩1分です。
徒歩3分圏内にマルエツプチやコンビニがありますが、大型スーパーまでは少し足を伸ばす必要がありそうです。
渋谷から徒歩6分と少し歩いただけで周囲はすっかり落ち着いた印象に変わりました。マンション前の通りには美味しそうな飲食店が立ち並んでいます。
渋谷藤和コープは昭和46年築、12階建て、総世帯数136戸の大規模マンション。
旧法借地権~2032年
平成16年に耐震補強工事実施済み。
2020年 大規模修繕工事実施検討中!
また、2013年には玄関扉改修工事実施。
2015年には窓サッシを更新工事実施済みです。
渋谷藤和コープは『借地権』のマンション。名義変更料や土地取得税、移転登録費用などがかからず初期費用を抑える事が出来ます。また、毎年の土地部分の固定資産税、都市計画税も払う必要もありません。
エントランスは階段を上がった先。道路側からは見えないところにあります。
お店や会社なども入っています。
管理形態は日勤管理。管理体制も良好です。
それではオートロックを通ってエレベーターでお部屋へ!
ここで間取り図のご紹介です。
※間取り図は別タブで開きますので、間取り図と記事や写真を照らし合わせながらご覧いただくことができます。
□□□□□□□□□□□□□□□□□□□□□□□□□□□□□□□□□□□□□□□
★★★【渋谷藤和コープ】周辺のハザードマップをCHECK!!★★★
お部屋の記事を読む前に…!周辺のハザードマップをチェックしておきませんか!
渋谷藤和コープのハザードマップは★こちらから…どうぞ★
□□□□□□□□□□□□□□□□□□□□□□□□□□□□□□□□□□□□□□□
お部屋は3階、専有面積34.56㎡、間取りは1LDK。おひとり暮らしの方におすすめのお部屋です。2021年には大規模修繕工事を実施済み!
【玄関:トールタイプのシューズボックス】
【洗面室:三面鏡付き洗面化粧台・洗濯機スペースは廊下に有】
【トイレ:洗浄機能一体型・吊り戸棚付き】
【浴室:追い焚き機能・浴室換気乾燥機付き】
【LDK:L字型の約9.6帖・家具(小物を除く)・エアコン付き】
【LDK:天井にも木目を使用したナチュラルな雰囲気】
【キッチン:食器洗浄乾燥機付き】
【洋室:約3.5帖・オープンクローゼット付き】
・
以上で渋谷藤和コープのご案内を終わります。
いかがでしたでしょうか??
神泉駅から徒歩1分のマンションです。
リノベーション済みという事で室内はとてもキレイですよ (っ・ω・)っ
内見のご予約やご質問などございましたらお気軽にお問い合わせくださいませ。
ご連絡お待ちしております。
弊社、不動産Agent 六棒株式会社では、
□リノベーションマンションはほぼ全て仲介手数料無料!
□その他一般仲介物件は仲介手数料20%~30%OFF!
にてお取り扱いしております!※弊社の「Agent Fee=仲介手数料」についてはご案内、ご面談の際に営業担当者よりご説明いたします!
なるべく沢山のお部屋をホームページに掲載したいと思っておりますが、時間的成約もございますので、残念ながらご紹介できるお部屋の一部しか掲載できておりません。
このホームページに掲載中のお部屋、その他サイト等で気になるお部屋、街を歩いていて気になったマンション等々ございましたら是非、弊社営業部までご相談ください!
~不動産Agent 六棒株式会社の特徴~
・一般仲介物件の仲介手数料は20%~30%OFFにてご案内中です!
・リノベーションマンションについてはほぼ全て仲介手数料無料です!
・住宅ローンに自信あります!
・頭金10万円より購入できます。是非ご相談下さい!
・お部屋のご見学は車で2~3件まとめて案内します!
・物件数3000件以上、新築戸建、リノベ物件も多数ご用意しております!
過去に販売していたお部屋の概要 こちらのお部屋の販売は終了いたしました
| 価格 | -万円 |
| 面積 | 45.00㎡ |
| 間取り | 1bedroom(1LDK) |
| 管理費 | 月額11,500円 修繕積立金:月額8,700円 地代:月額3,500円 |
| 所在階 | 6階 |
| お問い合わせ・ご内見のご予約はこちらからお気軽にどうぞ | |
ここで間取り図のご紹介です。
※間取り図は別タブで開きますので、間取り図と記事や写真を照らし合わせながらご覧いただくことができます。
□□□□□□□□□□□□□□□□□□□□□□□□□□□□□□□□□□□□□□□
★★★【渋谷藤和コープ】周辺のハザードマップをCHECK!!★★★
お部屋の記事を読む前に…!周辺のハザードマップをチェックしておきませんか!
渋谷藤和コープのハザードマップは★こちらから…どうぞ★
□□□□□□□□□□□□□□□□□□□□□□□□□□□□□□□□□□□□□□□
お部屋は6階、専有面積45.00㎡、間取りは1LDK。テレワークに便利なワークスペース付の、シングルやDINKSの方にお勧めのお部屋です。2021年現在に大規模修繕工事も実施中、共用部分も綺麗になりますよ!

エレベーターホールからは、エレベーター降りて右側のドアの向こうへ進めば外廊下、左側は内廊下になっています。今回のお部屋は内廊下部分にありますので左へ…

ドア横にはモニター付きインターホンが付いていて、お部屋の中から訪問者を確認する事が出来ます。エントランスにはオートロック完備なので怪しい人が玄関まで来ることもないと思いますが、手が離せない時などに便利ですね。

廊下は左へ続いていて、玄関戸口からはお部屋の中が見えないような造りになっています。これなら、宅配やフードデリバリーの受け取りの時に中を覗かれる心配もありません。バタバタしてドア開けっ放しとかよくありますからね^^;

人感センサーが自動的にライトを点けてくれるので、暗い中スイッチを探さなくても大丈夫!時間がたてば消えるので消し忘れも防げて一石二鳥です。三和土はそれほど広くありませんので靴はマメに片づけたいですね。そんな時の強い味方が…

このシューズボックス!トールタイプで収納力がありますのでどんどん放り込んでいってください。ただし、濡れた靴は乾いてからしまいましょう。反対側には照明付きのニッチカウンターが設置され、インテリアを楽しむことも出来ますよ。
・・
右側のドアは…


トイレです。グレーを基調にした落ち着いた雰囲気。TOTO製のウォシュレットや、トイレットペーパーのストックに便利な吊戸棚が付いています。

左へ伸びた廊下の左の扉は洗濯機スペース。中には照明や、洗剤なども置けるちょっとしたカウンターもあって便利ですよ。洗面室にあるイメージですが、最近はこういった独立したタイプも増えています。

では、お部屋の中へ…

キッチンの横を通って先へ進むと…

こちらは約10.6帖のリビング・ダイニング・キッチン+約5.6帖の洋室。仕切りの扉を開けてつなげた様子です。手前のLDKには窓がありませんが、こうすれば奥の洋室の窓からの光が入りますよ。普段はこんな感じでワンルームとして使う方が多いのではないでしょうか。

ダウンライト、スポットライト、間接照明など様々な照明を使用していて、雰囲気作りもこだわりを感じます。ちなみに、置いてある家具やエアコンは付いてきますので、このままのイメージで生活することが出来ます。

落ち着いた雰囲気のまさに寛ぎの空間ですね♪
造り付けのマルチカウンターにはコードの穴とかも開いていて、テレビやレコーダーなどが置けるようになっています。とはいえ、なんかテレビを置くのがもったいないような気もしませんか?


洋室側から。

引き込み式の扉を閉めれば…

約5.6帖の洋室に戻ります。南西向きのバルコニーに面した明るいお部屋で、シンプルな色使いなので家具も幅広く合わせられそうです。ただ、ワンルーム使いならLDKとの統一感も考えないといけませんね。

左側のドアはウォークインクローゼット!! 広さは約0.9帖、L字型にハンガーポールの付いた大きな収納です。洋服だけでなくキャリーバッグなどの嵩張るものも入れておくことが出来ますよ。

右側の引き戸は…

約1帖のワークスペース。デスクが造り付けになっていて、在宅ワークや趣味の部屋として使えるお部屋です。広いわけではありませんが、隠れ家的な雰囲気がたまりません♪

デスク背面の壁はスタイリッシュなアクセントウォール。ZOOMなどの時にも便利です。

デスク前はリビングの空気が感じられるよう大きな窓になっています。集中したい時にはブラインドを閉めることも出来ますよ。

次はキッチンへ…

収納はスライドキャビネットと吊戸棚。スライドキャビネットはぎっしり詰めても中が見やすく、出し入れもしやすい優れものです。

コンロは2口、グリル付き。グリルって魚のイメージが強いですが、肉、野菜など何を焼いてもおいしいんですよ。我家はあまり魚を食べないのですがそれでも頻繁に活躍しています。野菜もフライパンで焼くのとは何か違うんですよね♪

何より嬉しいのはやはり食器洗浄乾燥機ではないでしょうか。
入れてスイッチを押せばもう終わりですよ!!まるで夢のようです!(^^)!

水栓は浄水機能付きシャワー水栓。切り替えるだけで気軽に美味しいお水を使えます。ノズルが伸びるので、シンクを流したりにも便利ですよ。キッチンの背後には冷蔵庫スペースもありました。すっきり収まるのはいいのですが、サイズオーバーには注意しましょう。

次は洗面室へ…
洗面室には洗面台の他に浴室、リネン棚がまとまっていて、脱衣所も兼ねています。すぐ使えるところにタオルとかを置いておけるのはいいですね。


一枚鏡を使った洗面台にはミラーキャビネットはありませんが、細々としたものはサイドの棚に置いておけます。大きなものは洗面台下へどうぞ。

浴室はダークブラウンのパネルを使用。高級感のある雰囲気になっています。パネルは鏡面仕上げなのでお掃除も楽々!

追い焚き機能付きユニットバスは「自動」ボタンひとつでお風呂を沸かす事が出来ます。そのまま保温もしてくれるので、いつでも温かいお風呂に入れますよ。


浴室換気乾燥機は浴室換気の他にも、浴室暖房、雨天や花粉の季節のお洗濯物乾燥など様々な使い方が出来ます。「涼風」ボタンを使えば暑い季節の入浴も快適に!残念ながら冷房ではありませんが顔が涼しくて気分はまるで露天風呂(^^♪

それでは、最後はバルコニーをご紹介。
窓にはペアガラスが使用され、防音性や断熱性がアップしています。

広さは6.50㎡、南西向き。日当たり抜群のバルコニーです。お洗濯物も気持ちよく乾きそう♪ それにしてもリニューアル工事のおかげでとても綺麗ですね。とても築50年近いとは思えません。

バルコニーからの眺めになります。6階とはいえ、この辺りでこの解放感はなかなかありませんよ!
・
以上で渋谷藤和コープのご案内を終わります。
いかがでしたでしょうか??
神泉駅から徒歩1分のマンションです。
リノベーション済みという事で室内はとてもキレイですよ (っ・ω・)っ
内見のご予約やご質問などございましたらお気軽にお問い合わせくださいませ。
ご連絡お待ちしております。
□□□□□□□□□□□□□□□□□□□□□□□□□□□□□□□□□□□□□□□
★★★【渋谷藤和コープ】周辺のハザードマップをCHECK!!★★★
お部屋のお問い合わせ前に…!周辺のハザードマップをチェックしておきませんか!
渋谷藤和コープのハザードマップは★こちらから…どうぞ★
□□□□□□□□□□□□□□□□□□□□□□□□□□□□□□□□□□□□□□□
弊社、不動産Agent 六棒株式会社では、
□リノベーションマンションはほぼ全て仲介手数料無料!
□その他一般仲介物件は仲介手数料20%~30%OFF!
にてお取り扱いしております!※弊社の「Agent Fee=仲介手数料」についてはご案内、ご面談の際に営業担当者よりご説明いたします!
なるべく沢山のお部屋をホームページに掲載したいと思っておりますが、時間的成約もございますので、残念ながらご紹介できるお部屋の一部しか掲載できておりません。
このホームページに掲載中のお部屋、その他サイト等で気になるお部屋、街を歩いていて気になったマンション等々ございましたら是非、弊社営業部までご相談ください!
~不動産Agent 六棒株式会社の特徴~
・一般仲介物件の仲介手数料は20%~30%OFFにてご案内中です!
・リノベーションマンションについてはほぼ全て仲介手数料無料です!
・住宅ローンに自信あります!
・頭金10万円より購入できます。是非ご相談下さい!
・お部屋のご見学は車で2~3件まとめて案内します!
・物件数3000件以上、新築戸建、リノベ物件も多数ご用意しております!
過去に販売していたお部屋の概要 このお部屋の販売は終了いたしました。
| 価格 | -万円 |
| 面積 | 34.56㎡ |
| 間取り | 1bedroom(1DK) |
| 管理費 | 月額8,500円 修繕積立金:月額6,400円 地代:月額3,500円 |
| 所在階 | 3階 |
| お問い合わせ・ご内見のご予約はこちらからお気軽にどうぞ | |
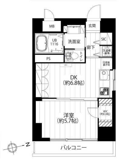
ここで間取り図のご紹介です。
※間取り図は別タブで開きますので、確認しながらご覧いただく事が出来ます。
□□□□□□□□□□□□□□□□□□□□□□□□□□□□□□□□□□□□□□□
★★★【渋谷藤和コープ】周辺のハザードマップをCHECK!!★★★
お部屋の記事を読む前に…!周辺のハザードマップをチェックしておきませんか!
渋谷藤和コープのハザードマップは★こちらから…どうぞ★
□□□□□□□□□□□□□□□□□□□□□□□□□□□□□□□□□□□□□□□
今回のお部屋は3階、間取りは1DK、専有面積は34.56㎡。お一人暮らしの方にお勧めです。
エレベーターで3階まで上がり、広いエレベーターホールを通って明るい外廊下を進むと玄関に到着です。
玄関横にはテレビモニター付きインターホンが設置されていて、お部屋の中から訪問者を確認する事が出来ます。応対する前に映像でチェックすれば、セールスなどにつかまる事も無くなりますね。
短めの廊下は木目を多く使ったナチュラルな雰囲気。バリアフリーで段差の小さい上り口も多くなっていますが、靴を履く時などに座れるこの高さ、個人的にはいいと思います。
出っ張りなどの無いスッキリとした玄関。ドアにはダブルロックで防犯面も安心です。
人感センサーは自動的に照明を点けてくれるので、もう暗い中スイッチを探す必要もありません。消し忘れも防げて一石二鳥ですね。
シューズボックスはトールタイプ。収納力抜群なのはもちろん、奥行きがあって手前に背の高い物も収納可能ですよ。
では、いよいよお部屋の方へ…
こちらは約6.8帖のダイニングキッチン+約5.7帖の洋室。洋室の仕切り戸を開けてダイニングキッチンとつなげた様子です。ワンルームのような使い方で、お一人暮らしならこんな感じで使う方が多いのではないでしょうか。つなげる事で二面採光になり、明るさと共に風通しも良くなりますよ。
アクセントウォールは立体的。白一色ながら間接照明やスポットライトなど光の当て方で表情が変わります。造り付けのカウンターの下は収納に!収納に余裕があるとお部屋の中を綺麗に保ちやすくなりますよね。
洋室側から。
仕切り扉は引込式なので開放時にもスッキリ。引き出して閉めれば…
本来の約5.7帖の洋室に戻ります。引き戸はデッドスペースも作らないので約5.7帖まるまる使う事が出来ますよ。大きな窓があってとても明るいお部屋です。
収納はなんとウォークインクローゼット!両側にハンガーポールが設置された約0.8帖のクローゼットです。キャリーバッグやスーツケースなどの嵩張る物も難なく入る大きさ。衣装ケースなどで収納力アップもアリですね。
こちらにある家具やエアコンは付いて来るそうですよ。新生活を快適に始められるのは嬉しいですね。工事待ちとかよく聞く話です^^;)
次はキッチンを見ていきましょう。
調理台はお部屋の雰囲気に合わせた木目パネル。鏡面仕上げで高級感もあります。
収納は調理台下と吊戸棚。扉タイプや引き出しタイプ、それぞれの良さがありますから上手く使い分けていきましょう。吊戸棚なんかは出し入れしづらいですから、あまり使わない物を入れたりになりそうですね。それとも、背の高い方は逆だったりするんでしょうか?
水栓は浄水機能付きシャワー水栓。切替えるだけで、気軽に美味しいお水を使う事が出来ます。ヘッドが伸びるのでシンクのお掃除などにも便利です。
コンロは2口、グリルも付いています。今は電子レンジで出来るレシピもたくさん出ていますので、コンロは二つくらいあれば十分な気もします。グリルだってお魚だけでなく、野菜でも肉でも何を焼いても美味しいんですよ。是非お試しを♪
窓はありますが、調理中は換気扇をお忘れなく。併用が効果的らしいですよ。
廊下へ戻ってすぐには洗濯機スペース。綺麗な扉も付いていて、まさかここに洗濯機が隠れているとは思いませんよね(笑)
次は洗面室へ…
洗面室には洗面台、トイレ、浴室がまとまっていて、脱衣所も兼ねています。
白一色で清潔感のある洗面台は三面鏡付き。照明付きで鏡を使う時に影になったりもしません。
こちらの洗面室は収納豊富。洗面台右にトールタイプのリネン庫、反対側にはオープンの収納棚、洗面台下には扉付きの収納、三面鏡裏にはキャビネットが付いています。収納は多すぎて困る事は無いですからね(^^)
水洗はハンドシャワータイプ。洗面ボウルが大きめなので寝ぐせくらいなら直せそう。
トイレはINAX製の洗浄便座付き。トイレットペーパーなどの収納に便利な吊戸棚も付いています。
浴室はブラウンの鏡面仕上げパネル使用。落ち着いた雰囲気で、リラックスしたバスタイムを過ごせそうですね。鏡面仕上げはツルツルでお掃除も楽々ですよ。
追い焚き機能付きユニットバスは「ふろ自動」というボタンひとつでお風呂を沸かす事が出来ます。更に追い焚き機能で保温もしてくれるので、いつでも温かいお風呂に入れますよ。昔お湯を張っているのを忘れて大惨事になった事がありましたが、もうそんな心配も無いんですね^^;)
浴室換気乾燥機は浴室の換気やお洗濯物乾燥、浴室暖房など様々な使い方があります。「涼風」なんてボタンもありますので、暑い季節にも活躍してくれそう。残念ながら冷房ではないようですが、濡れた体には十分涼しそうです。熱中症予防にどうぞ。
それでは、最後はバルコニーのご紹介。
奥の洋室の窓から出られます。三枚の窓の内一番右はFIX窓になっているので開きません。
広さは3.51㎡、東向きのバルコニー。物干し金具が設置されていてお洗濯物も干せるようになっています。
眺望抜群というわけではありませんが、立地的にはまずまずの眺めだと思います。「神泉」の駅が見えるのが凄いですね。さすが徒歩1分です(^^)
・
以上で渋谷藤和コープのご案内を終わります。
いかがでしたでしょうか??
神泉駅から徒歩1分のマンションです。
リノベーション済みという事で室内はとてもキレイですよ (っ・ω・)っ
内見のご予約やご質問などございましたらお気軽にお問い合わせくださいませ。
ご連絡お待ちしております。
□□□□□□□□□□□□□□□□□□□□□□□□□□□□□□□□□□□□□□□
★★★【渋谷藤和コープ】周辺のハザードマップをCHECK!!★★★
お部屋のお問い合わせ前に…!周辺のハザードマップをチェックしておきませんか!
渋谷藤和コープのハザードマップは★こちらから…どうぞ★
□□□□□□□□□□□□□□□□□□□□□□□□□□□□□□□□□□□□□□□
弊社、不動産Agent 六棒株式会社では、
□リノベーションマンションはほぼ全て仲介手数料無料!
□その他一般仲介物件は仲介手数料20%~30%OFF!
にてお取り扱いしております!※弊社の「Agent Fee=仲介手数料」についてはご案内、ご面談の際に営業担当者よりご説明いたします!
なるべく沢山のお部屋をホームページに掲載したいと思っておりますが、時間的成約もございますので、残念ながらご紹介できるお部屋の一部しか掲載できておりません。
このホームページに掲載中のお部屋、その他サイト等で気になるお部屋、街を歩いていて気になったマンション等々ございましたら是非、弊社営業部までご相談ください!
~不動産Agent 六棒株式会社の特徴~
・一般仲介物件の仲介手数料は20%~30%OFFにてご案内中です!
・リノベーションマンションについてはほぼ全て仲介手数料無料です!
・住宅ローンに自信あります!
・頭金10万円より購入できます。是非ご相談下さい!
・お部屋のご見学は車で2~3件まとめて案内します!
・物件数3000件以上、新築戸建、リノベ物件も多数ご用意しております!
過去に販売していたお部屋の概要 このお部屋の販売は終了いたしました。
| 価格 | -万円 |
| 面積 | 34.56㎡ |
| 間取り | 1bedroom(1LDK) |
| 管理費 | 月額8,500円 修繕積立金:月額6,400円 地代:月額3,500円 |
| 所在階 | 7階 |
| お問い合わせ・ご内見のご予約はこちらからお気軽にどうぞ | |
ここで間取り図のご紹介です。
※間取り図は別タブで開きますので、確認しながらご覧いただく事が出来ます。
□□□□□□□□□□□□□□□□□□□□□□□□□□□□□□□□□□□□□□□
★★★【渋谷藤和コープ】周辺のハザードマップをCHECK!!★★★
お部屋の記事を読む前に…!周辺のハザードマップをチェックしておきませんか!
渋谷藤和コープのハザードマップは★こちらから…どうぞ★
□□□□□□□□□□□□□□□□□□□□□□□□□□□□□□□□□□□□□□□
今回のお部屋は1LDK、34.56㎡、7階。
138世帯の大規模マンション!
- ペット飼育可
- 長期修繕計画(案)あり
- 家具付き
- R1住宅
- アフターサービス保証書付
- 24時間ゴミ出し可能
そして最新の設備仕様へ一新する新規内装リノベーション物件!
見どころ盛沢山ですね♬
では、早速行ってみましょう!
エレベーターで7階まで上がります。広いエレベーターホールですね!
エレベーターホールからは内廊下が続いていますが、今回のお部屋はこちらのドアを開けて外廊下を進んだ所にあります。
玄関ドア横にはテレビモニター付きインターホンが設置されていて、お部屋の中から訪問者を確認する事が出来ます。息をひそめてドアスコープを覗くのはもう過去の話しなんですね^^;)
フローリングや建具が自然な木の風合いを生かしていて、ナチュラルな雰囲気の空間になっています。完成直後という事でとても綺麗ですね(^^)
玄関ドアにはダブルロック設置で防犯面でも安心!
中に入った時に照明を点けてくれたのは人感センサー。いつも明るい玄関が迎えてくれるのは嬉しいものですよね(*´▽`*)シューズボックスはトールタイプです。棚は高さが変えられるので、ブーツなどでも収納可能ですよ。
では、まずは正面のドアから…
こちらは約8帖のリビング・ダイニング・キッチン+約4.6帖の洋室。仕切り扉を開けて洋室をリビングの一部とした様子です。合わせて12.6帖の広いお部屋になっています。
仕切り扉は引込式になっているので開放時にもスッキリ(^^)
リビング部分にはシーリングファンライトやアクセントパネルが設置されていてお洒落な雰囲気。ただし、これらはただお洒落なだけではありません。シーリングファンライトは空気を撹拌して冷暖房効率を上げてくれるので省エネにもつながりますし、アクセントパネルは『エコカラット』といって湿度調節や消臭効果のある機能性素材で出来ているんですよ。『エコカラット』は最近TVCMでも紹介されているので、ご存知の方もいらっしゃるかもしれませんね。
扉を閉めれば…
こちらは本来の約4.6帖の洋室に戻ります。使い方に選択肢があるのは嬉しいですよね。
収納は約1帖のウォークインクローゼット!ハンガーポールがコの字型に設置されたタイプです。
床面が広いので嵩張る物も難なく収納可能ですよ。衣装ケースなどで収納力アップもいいかもしれませんね。
閉めた時のリビングの様子です。
では、今度はキッチンを見ていきましょう。
調理台下は収納と食洗機。洗い物を食洗機にお任せすれば、食後をのんびり過ごせますよ。
上部は吊戸棚と換気扇。エコカラットがあるとはいえ調理中は換気扇をお忘れなく!
コンロは2口。片面焼きグリルも付いていて調理器具も充実しています。
調理台後ろには冷蔵庫や家電ラックのスペース。隣はクローゼットです。
では、いちど廊下に戻って…
すぐの扉は洗濯機スペース。中に棚も設置されていますので、すぐ手の届く所に洗剤などを置いておく事が出来ますよ。
次は洗面室へ…
こちらには洗面台、浴室、トイレがまとまっています。
まずは三面鏡付きの洗面台。
収納は三面鏡裏のキャビネットと洗面台。キャビネットは細かい物が多くなりがちな洗面周りにはピッタリの収納です。
更に洗面台左にはリネン庫、右にはニッチがありました。収納はいくらあっても困りません(^^)
次は浴室へ…
ベージュの木目模様パネル使用の落ち着いた雰囲気の浴室です。
追い焚き機能はスイッチ一つでお風呂を沸かしてくれたり、設定した温度にお湯を保ってくれたりと、とても便利な機能です。一度使ったら止められませんよ。
浴槽は1116サイズ。
前の写真で気になられた方もいらっしゃったかもしれませんが、天井に穴が開いています。どうやら昨今の事情で、浴室乾燥機がまだ付いていないようです。『浴室乾燥機付き!』とありますので、必ず付くのでご安心を。
次はトイレへ…
吊戸棚と温水洗浄便座付き。温水洗浄便座はTOTO製のウォシュレットです。
それでは最後にバルコニーのご紹介。
どちらのお部屋からでも出られます。窓ガラスは防音、断熱、結露防止などの効果のある複層ガラスになっていましたよ♪♪
広さは3.51㎡、二部屋分の幅のあるバルコニーです。足元まで柵になっていて開放感たっぷり♪♪
外の様子です。遠くまで見渡せるわけではありませんが、都会らしいダイナミックな眺めですね。渋谷から徒歩7分、神泉から1分ですから十分素晴らしい眺めと言っていいと思います(^^)
・
いかがでしたでしょうか??
神泉駅から徒歩1分のマンションです。
リノベーション済みという事で室内はとてもキレイですよ (っ・ω・)っ
内見のご予約やご質問などございましたらお気軽にお問い合わせくださいませ。
ご連絡お待ちしております。
□□□□□□□□□□□□□□□□□□□□□□□□□□□□□□□□□□□□□□□
★★★【渋谷藤和コープ】周辺のハザードマップをCHECK!!★★★
お部屋のお問い合わせ前に…!周辺のハザードマップをチェックしておきませんか!
渋谷藤和コープのハザードマップは★こちらから…どうぞ★
□□□□□□□□□□□□□□□□□□□□□□□□□□□□□□□□□□□□□□□
弊社、不動産Agent 六棒株式会社では、
□リノベーションマンションはほぼ全て仲介手数料無料!
□その他一般仲介物件は仲介手数料20%~30%OFF!
にてお取り扱いしております!※弊社の「Agent Fee=仲介手数料」についてはご案内、ご面談の際に営業担当者よりご説明いたします!
なるべく沢山のお部屋をホームページに掲載したいと思っておりますが、時間的成約もございますので、残念ながらご紹介できるお部屋の一部しか掲載できておりません。
このホームページに掲載中のお部屋、その他サイト等で気になるお部屋、街を歩いていて気になったマンション等々ございましたら是非、弊社営業部までご相談ください!
~不動産Agent 六棒株式会社の特徴~
・一般仲介物件の仲介手数料は20%~30%OFFにてご案内中です!
・リノベーションマンションについてはほぼ全て仲介手数料無料です!
・住宅ローンに自信あります!
・頭金10万円より購入できます。是非ご相談下さい!
・お部屋のご見学は車で2~3件まとめて案内します!
・物件数3000件以上、新築戸建、リノベ物件も多数ご用意しております!
過去に販売していたお部屋の概要 このお部屋の販売は終了いたしました。
| 価格 | -万円 |
| 面積 | 45.00㎡ |
| 間取り | 1bedrooms(1LDK) |
| 管理費 | 月額11,500円 修繕積立金:月額8,700円 地代:月額3,500円 |
| 所在階 | 9階 |
| お問い合わせ・ご内見のご予約はこちらからお気軽にどうぞ | |
間取りのご紹介です。1LDK、45.00㎡。9階。
南向きにつき、陽当たり・眺望・通風ともに恵まれたお部屋です。
ペットも一緒に暮らせます。(10kg、50㎝以下、犬猫1匹まで)
室内は只今リノベーション工事中!
一足先に充実のリノベーション内容をご紹介いたします。
■フローリング、天井・壁、クロス
■洗面所、トイレ、CF
■システムキッチン
■ユニットバス、洗面化粧台、ウォシュレット
■給湯器
■建具、下足入れ、納戸
■コスモスイッチ、照明器具、クリーニング、他
【内装工事終了予定:2014年10月下旬】
安心のアフターサービス保証も付いています。
工事終了前のご紹介も可能ですので、ご質問などはお気軽にお問合せくださいませ![]()


















































































































































弊社 公式HP
六棒総合研究所
掲載予定物件
価格変更と販売終了物件
ハザードマップ検索
適合証明書.jp
Facebook
Twitter
Instagram