・
□□□□□□□□□□□□□□□□□□□□□□□□□□□□□□□□□□□□□□□
いつも弊社ホームページをご覧頂き誠にありがとうございます。
秀和参宮橋レジデンスはお陰様で販売を終了致しました。弊社問合せフォームにてご要望頂けましたら、当お部屋でキャンセル等が発生した場合、他のお部屋が販売になりました際にご紹介させて頂きます。
不動産Agent 六棒株式会社
TEL:03‐5413‐5336
□□□□□□□□□□□□□□□□□□□□□□□□□□□□□□□□□□□□□□□
・
代々木エリアより108戸の大規模マンション、『秀和参宮橋レジデンス』のご紹介です!
アクセス
小田急線「参宮橋」駅徒歩4分
京王線「初台」駅徒歩11分
都営大江戸線「代々木」駅徒歩13分
この日は参宮橋駅より向かってみました。改札をでると目の前は左右に
商店街がのびています。マルマンストアーやコンビニなどがありお買い物も便利。
渋谷や新宿も徒歩圏ですが、近所で日常生活品は揃えることができそうです。
ここでハザードマップをご紹介します!
□□□□□□□□□□□□□□□□□□□□□□□□□□□□□□□□□□□□□□□
★★★【秀和参宮橋レジデンス】周辺のハザードマップをCHECK!!★★★
お部屋の記事を読む前に…!周辺のハザードマップをチェックしておきませんか!
秀和参宮橋レジデンスのハザードマップは★こちらから…どうぞ★
□□□□□□□□□□□□□□□□□□□□□□□□□□□□□□□□□□□□□□□
さて、ご案内に戻りましょう!
マンションまでは 住宅街の中を通っても、首都高沿いを歩いても、どちらでも
行けます。商店街の中やマンションへ向かう途中にはコじゃれた飲食店やパン屋さんも
ところどころにあります。こんなにおしゃれな感じのお店が近くにあるなんて・・・
うらやましいです。
参宮橋からは明治神宮もすぐ。思い立ったらすぐお参りに行けます。
明治神宮へ向かう途中には代々木ポニー公園もあり、小学校6年生までは乗馬体験
もできますよ!かわいいポニーの姿に癒されます。
さらに明治神宮の横は都会で一番広い空が見える代々木公園。
都会ながらも自然が近くに感じられる環境でのびのびした毎日が過ごせそうです。
秀和参宮橋レジデンスは昭和43年築、8階建て、総世帯数108戸の大規模マンション。
築年数は少々経過していますが、キレイに管理されています。
マンションのエントランスはこのタイル敷きの通路を進んだ奥の方にあります。道路からは見えません。
道路沿いには駐車場と・・・
ゴミ置き場が。管理人さんによってしっかり管理されていることが伺えます。
通路には植物がわんさか植えられています。お花も咲いていたり・・・和みます。
そのまま進むと広々としたマンションのエントランス前にはパラソルとテーブルセット、さらにエントランス内部にもイスとテーブルがあります。
マンションの方同士でお話ししたりできるスペースがあっていいですね!
広場の更に奥にはトランクルーム、駐輪場、バイク置場などなど。最新の空き状況は内見の際に管理人さんに聞いてみましょう!
エントランスは出入りがスムーズな自動ドア。夜間オートロックで管理は安心の住込管理。人が常駐することで防犯効果が期待できます。
エントランスホールでもちょっとした団欒が出来るようになっていました。
ホワイトボードには催し物のお知らせが張ってありましたよ!
エレベーターでお部屋へ向かいます。
ここで間取り図のご紹介です。
※間取り図は別タブで開きますので、確認しながらご覧いただくことが出来ます。
□□□□□□□□□□□□□□□□□□□□□□□□□□□□□□□□□□□□□□□
★★★【秀和参宮橋レジデンス】周辺のハザードマップをCHECK!!★★★
お部屋の記事を読む前に…!周辺のハザードマップをチェックしておきませんか!
秀和参宮橋レジデンスのハザードマップは★こちらから…どうぞ★
□□□□□□□□□□□□□□□□□□□□□□□□□□□□□□□□□□□□□□□
今回ご紹介するお部屋は5階、専有面積50.94㎡の1SLDK。お一人暮らしやDINKSの方にお勧めのお部屋です。では、早速行ってみましょう!
玄関から伸びる廊下には自然の木目を活かしたフローリングを使用。建具と合わせてナチュラルな雰囲気になっています。玄関の照明には人感センサーが付いているので、いつでも明るい玄関が迎えてくれますよ。
廊下へ上がってすぐには大きなシューズインクローゼット!
棚とハンガーパイプも設置され、靴以外にもアウターや傘の収納に使えるようになっています。キャリーバッグなどを置いておくにも良さそうですね。
洗面室には洗面化粧台の他に洗濯機スペース、浴室がまとまっていて脱衣室も兼ねています。洗面化粧台は身だしなみを整えるのに便利な三面鏡付き。裏がキャビネットになっているので、洗面周りに散らかりがちな細々したものもスッキリと片付けることができますよ。洗濯機スペースには吊り戸棚が付いているので、洗濯洗剤などのランドリー用品はそちらへどうぞ。
浴室は柔らかな色合いのパネルを使った寛ぎ空間。
小さいながら窓も付いていて日中なら外光を感じながら入浴することが可能です。朝風呂いいですよね♬ 換気に関しても浴室換気乾燥機と併せて使うと効果的ですよ。追い焚き機能が付いていてお風呂の準備はボタンひとつ!保温もしてくれるのでご家族の入浴時間がバラバラになっても安心です。
トイレはTOTO製の温水洗浄機能一体型。
トイレットペーパーのストックや掃除道具の収納に便利な吊り戸棚も付いています。
こちらはサービスルーム。
サービスルームとは、採光などの関係で法律上「洋室」と呼べないお部屋のこと。あくまでも法律上なので居室として使えることがほとんどです。こちらのお部屋もオープンクローゼットの付いた立派な洋室なのでご心配なく。
こちらはリビング・ダイニング・キッチン。
南東向きバルコニーに面したお部屋です。ナチュラルな建具にストーン調の床を合わせたナチュラルモダン。ダクトレールやレンジフードの黒がいい感じのアクセントになっています。黒を使った家具も雰囲気によく合っていますが、こちらはディスプレイ用で付いて来ませんので、ご自身で選ぶ時の参考にさせてもらいましょう!

こちらはDENスペース。
LDKの一角にデスクや棚が造り付けになった書斎にピッタリのスペースです。仕切りはありませんが天井に張られた木目パネルによって上手くゾーニングされています。
キッチンは人気のカウンタータイプ。
フラットなトップやガラスの油跳ねガードなど解放感にこだわった、リビングダイニングとの一体感が特徴のキッチンです。食器洗浄乾燥機や浄水機能一体型水栓などの便利機能も充実!空いた時間はのんびりまったり過ごしましょう♬
最後は眺望のご紹介。
視線や陽射しを遮るような高い建物もなく素晴らしい眺めです♬ 明治神宮越しの渋谷のビル群もナカナカですね。
・
以上で秀和参宮橋レジデンスのご案内を終わります。
いかがでしたでしょうか??
参宮橋駅から徒歩4分のマンションです。
リノベーション済みという事で室内はとてもキレイですよ (っ・ω・)っ
内見のご予約やご質問などございましたらお気軽にお問い合わせくださいませ。
ご連絡お待ちしております。
□□□□□□□□□□□□□□□□□□□□□□□□□□□□□□□□□□□□□□□
★★★【秀和参宮橋レジデンス】周辺のハザードマップをCHECK!!★★★
お部屋のお問い合わせ前に…!周辺のハザードマップをチェックしておきませんか!
秀和参宮橋レジデンスのハザードマップは★こちらから…どうぞ★
□□□□□□□□□□□□□□□□□□□□□□□□□□□□□□□□□□□□□□□
弊社、不動産Agent 六棒株式会社では、
□リノベーションマンションはほぼ全て仲介手数料無料!
□その他一般仲介物件は仲介手数料20%~30%OFF!
にてお取り扱いしております!※弊社の「Agent Fee=仲介手数料」についてはご案内、ご面談の際に営業担当者よりご説明いたします!
なるべく沢山のお部屋をホームページに掲載したいと思っておりますが、時間的成約もございますので、残念ながらご紹介できるお部屋の一部しか掲載できておりません。
このホームページに掲載中のお部屋、その他サイト等で気になるお部屋、街を歩いていて気になったマンション等々ございましたら是非、弊社営業部までご相談ください!
~不動産Agent 六棒株式会社の特徴~
・一般仲介物件の仲介手数料は20%~30%OFFにてご案内中です!
・リノベーションマンションについてはほぼ全て仲介手数料無料です!
・住宅ローンに自信あります!
・頭金10万円より購入できます。是非ご相談下さい!
・お部屋のご見学は車で2~3件まとめて案内します!
・物件数3000件以上、新築戸建、リノベ物件も多数ご用意しております!
過去に販売していたお部屋の概要 こちらのお部屋の販売は終了いたしました
| 価格 | -万円 |
| 面積 | 104.56㎡ |
| 間取り | 4bedrooms(4LDK) |
| 管理費 | 月額19,000円 修繕積立金:月額22,100円 |
| 所在階 | 6階 |
| お問い合わせ・ご内見のご予約はこちらからお気軽にどうぞ | |
ここで間取り図のご紹介です。
※間取り図は別タブで開きますので、確認しながらご覧いただく事が出来ます。
□□□□□□□□□□□□□□□□□□□□□□□□□□□□□□□□□□□□□□□
★★★【秀和参宮橋レジデンス】周辺のハザードマップをCHECK!!★★★
お部屋の記事を読む前に…!周辺のハザードマップをチェックしておきませんか!
秀和参宮橋レジデンスのハザードマップは★こちらから…どうぞ★
□□□□□□□□□□□□□□□□□□□□□□□□□□□□□□□□□□□□□□□
今回のお部屋は4LDK+WIC+SIC、104.56㎡、6階。
109戸のビッグコミュニティ
- 夜間オートロック完備
- 住込管理
- 約22帖あるリビング
- 5路線3駅利用可能
そして最新の設備仕様へ一新する新規内装リノベーション物件!
見どころ盛沢山ですね♬
では、早速行ってみましょう!
・・・とこちらは現在リノベーション中のお部屋で
令和2年4月11日頃完成予定のお部屋になります。
★室内写真準備中★
内装工事中でも見学は可能です!
お気軽にお問い合わせ下さい ♪
小田急線 参宮橋駅 徒歩4分のマンションです。
リノベーション中という事で完成が楽しみですね (っ・ω・)っ
内見のご予約やご質問などございましたらお気軽にお問い合わせくださいませ。
ご連絡お待ちしております。
□□□□□□□□□□□□□□□□□□□□□□□□□□□□□□□□□□□□□□□
★★★【秀和参宮橋レジデンス】周辺のハザードマップをCHECK!!★★★
お部屋のお問い合わせ前に…!周辺のハザードマップをチェックしておきませんか!
秀和参宮橋レジデンスのハザードマップは★こちらから…どうぞ★
□□□□□□□□□□□□□□□□□□□□□□□□□□□□□□□□□□□□□□□
弊社、不動産Agent 六棒株式会社では、
□リノベーションマンションはほぼ全て仲介手数料無料!
□その他一般仲介物件は仲介手数料20%~30%OFF!
にてお取り扱いしております!※弊社の「Agent Fee=仲介手数料」についてはご案内、ご面談の際に営業担当者よりご説明いたします!
なるべく沢山のお部屋をホームページに掲載したいと思っておりますが、時間的成約もございますので、残念ながらご紹介できるお部屋の一部しか掲載できておりません。
このホームページに掲載中のお部屋、その他サイト等で気になるお部屋、街を歩いていて気になったマンション等々ございましたら是非、弊社営業部までご相談ください!
~不動産Agent 六棒株式会社の特徴~
・センチュリー21加盟店です!
・一般仲介物件の仲介手数料は20%~30%OFFにてご案内中です!
・リノベーションマンションについてはほぼ全て仲介手数料無料です!
・住宅ローンに自信あります!
・頭金10万円より購入できます。是非ご相談下さい!
・お部屋のご見学は車で2~3件まとめて案内します!
・物件数3000件以上、新築戸建、リノベ物件も多数ご用意しております!
過去に販売していたお部屋の概要 このお部屋の販売は終了いたしました。
| 価格 | -万円 |
| 面積 | 59.40㎡ |
| 間取り | 2bedrooms(2LDK) |
| 管理費 | 月額10,800円 修繕積立金:月額12,600円 |
| 所在階 | 3階 |
| お問い合わせ・ご内見のご予約はこちらからお気軽にどうぞ | |
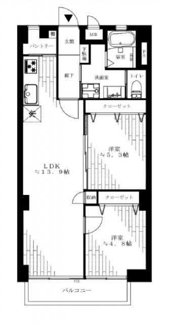
こちらが今回ご紹介させて頂くお部屋です。
専有面積59.4㎡の2LDK、新規内装リノベーション済みです。
エレベーターからお部屋までは外廊下を進んで行きます。
文字通り外に面しているので、雨や風の影響は受けてしまいますが、その反面臭いや湿気が籠りにくく快適に過ごせるメリットもあります。
ホテルの様な内廊下も人気ではありますが、個人的には外廊下の方が好きですね。
玄関前にはモニター付きのインターフォンが付いています。
お部屋の中にいながら廊下の様子を確認することが出来るので、防犯的にも安心できますね。治安の悪いエリアではありませんが、常に防犯意識は持っておきましょう。
中に入って行きます。
新規内装リノベーション済みの物件なので、玄関からピカピカです。
シューズボックスは中央が棚になっているので、靴の脱ぎ履きの際にカバンなどを置いておくことが出来ます。
足もとには間接照明が設置されているので、玄関を下から優しく照らしてくれます。
それでは玄関突当りのドアを開けてみましょう。
こちらはリビング・ダイニング・キッチンです。
広さは約13.9帖。南向きのバルコニーに面した窓からは明るい光が入ってきています。
縦に長い空間です。
ダイニングスペースとリビングスペースをしっかり分けることが出来そうです。
シンプルな形なので家具の配置もしやすそうですね!
コチラはリビングのお隣の洋室です。
約5.3帖の広さがありますよ。
大きなクローゼットが付いています。
お洋服を掛けることのできるポールも付いているので、収納力も高そうです。
写真の様にドアを全開にできるので、お探しのコートもすぐに見つけることが出来ますね!
リビングとはスライド式のドアで仕切られているので、開けていればリビングの一部とした、閉じれば1つの洋室として使用することが出来ます。
状況に応じて使い分けてほしいです!
次はキッチンを見ていきましょう。
水栓は浄水機能付きのシャワーヘッドです。シンクの隅々まで水を流すことが出来るので洗い物の際には大活躍してくれます。
コンロは3口のグリル付きガスコンロです。グリルは片面焼きタイプ。トーストもグリルで焼くと美味しいですが、オーブンよりも火力が強いので焦がさないように注意してくださいね!
食器洗浄機も付いています。
ボタン一つで洗浄から乾燥まで終わらせてくれるので、空いた時間を有効に使うことが出来ますね。手洗いよりも使う水の量も少なくて済むので、経済的でもありますよ。
キッチンの壁はタイル貼りなので汚れが目立ちにくく、油が飛び散っても簡単に手入れすることができますし、インテリアのアクセントとしてもとても効果的ですね。
キッチンの奥はパントリーになっています。日本語でいう所の食料庫ですね。
食料庫とは言いつつもなかなかの広さがあるので、食品だけでなく季節ものの家電なども収納することができそうです。
それでは玄関まで戻って洗面室を見てみましょう!
洗面室には洗濯機置場も付いています。
脱衣所も兼ねている場所なので、脱いだお洋服はそのまま洗濯機へとシュゥゥゥーッ!! 超!エキサイティン!
いきなりですが、唐突に思い出しまして。バトルドーム懐かしいですね。
洗面化粧台は三面鏡タイプです。
照明も縦方向に付いているので顔をうつした時に暗い部分が出来ず、普段なら見えづらい所もはっきり写してくれます。
水栓はシャワーヘッドになっているので簡単なシャンプー程度ならお風呂まで行く必要もありませんよ!
洗面台の奥は
トイレになっていました。
ひと目でそれと分かるLIXIL製のトイレです。
丸みを帯びた可愛い?デザインなので女性にも人気があるとかないとか。
流す水も加圧されているそうで、従来の物に比べてかなり節水できる設計になっているようです。
リモコンでタイプなので操作性も良さそうです。
次はお風呂です。
お風呂には浴室換気乾燥機能が付いています。
湿気を取り除くことで、カビの発生を抑制することが出来ますし、雨の日は浴室で洗濯物を干すことだってできちゃいます。
暖房機能もあれば冬の一番風呂も怖くはないですよ!
追炊き機能もあるので、1日中熱いお風呂を楽しむことができますよ。
出勤前にお風呂へ入ってシャキッとしてからお仕事へ向かうのもオススメです。
それではリビングへ戻って・・・
こちらの洋室のご案内です。
こちらは約4.8帖の洋室です。
バルコニーに面しているので外の光で明るいお部屋です。
クローゼットも付いているので、収納場所に困ることも無さそうですね!
最後にバルコニーへ出てみましょう。
窓は二重サッシになっています。断熱効果に優れていて外気の温度を部屋に伝えにくいので寒がりの方には特にオススメです。あるのと無いのとでは大違いですよ。
バルコニーは2部屋分の長さがあります。
洗濯物も余裕を持って干すことが出来そうですね。
目の前にお隣のマンションが建っているので陽当たりは、季節と時間帯によるかもしれません。
撮影時は曇りだったので、晴れていればまた雰囲気も違ったと思いますよ!
では、以上で秀和参宮橋レジデンスのご案内を終わります。
いかがでしたでしょうか??
参宮橋駅から徒歩4分のマンションです。
リノベーション済みという事で室内はとてもキレイですよ
内見のご予約やご質問などございましたらお気軽にお問い合わせくださいませ。
ご連絡お待ちしております。
弊社、不動産Agent 六棒株式会社では、
□リノベーションマンションはほぼ全て仲介手数料無料!
□その他一般仲介物件は仲介手数料20%~30%OFF!
にてお取り扱いしております!※弊社の「Agent Fee=仲介手数料」についてはご案内、ご面談の際に営業担当者よりご説明いたします!
なるべく沢山のお部屋をホームページに掲載したいと思っておりますが、時間的成約もございますので、残念ながらご紹介できるお部屋の一部しか掲載できておりません。
このホームページに掲載中のお部屋、その他サイト等で気になるお部屋、街を歩いていて気になったマンション等々ございましたら是非、弊社営業部までご相談ください!
~不動産Agent 六棒株式会社の特徴~
・一般仲介物件の仲介手数料は20%~30%OFFにてご案内中です!
・リノベーションマンションについてはほぼ全て仲介手数料無料です!
・住宅ローンに自信あります!
・頭金10万円より購入できます。是非ご相談下さい!
・お部屋のご見学は車で2~3件まとめて案内します!
・物件数3000件以上、新築戸建、リノベ物件も多数ご用意しております!
過去に販売していたお部屋の概要 このお部屋の販売は終了いたしました。
| 価格 | -万円 | |
| 面積 |
|
|
| 間取り | 2bedrooms(2LDK) | |
| 管理費 | 月額9,200円 修繕積立金:月額7,700円 | |
| 所在階 | 2階 | |
| お問い合わせ・ご内見のご予約はこちらからお気軽にどうぞ | ||
間取りのご紹介です。2LDK、専有面積は50.94㎡。
室内はリフォーム済み。
お部屋に合わせた家具もついています。
【リフォーム内容】
■クロス全室貼り替え、フロアタイル張替(洗面室・トイレ)
■エアコン新規設置(リビング・5.8帖洋室)
■ダウンライト新規設置
■キッチン水栓新規交換
■ウォシュレット一体型トイレ新規交換
■洗濯パン・水栓新規交換
■ルームクリーニング等
人感センサー付きの玄関ホール。人の気配に合わせて自動で照明が消灯します。消し忘れもなく経済的。インターホンは来訪者の顔が確認できるTVモニターがついています。
玄関横に設置されたシューズBOXはたっぷり仕舞えるトールサイズ。
表扉の半分には縦長の鏡が設置されているのでお出かけ前の身だしなみチェックもサッとおこなえて便利です。
玄関をあがると目の前に廊下がまっすぐのびています。左側に洗面室とトイレ、右側にLDKの扉があります。
洗面室。洗面化粧台、洗濯機置場、バスルームがまとまっています。
玄関から近いので帰宅後の手洗い・うがいもスムーズ。
洗濯機置場と洗面化粧台はお隣同士。鏡の裏や吊戸棚など収納スペースもあり使い勝手がよさそうです。洗剤は洗面ボウル下の収納スペースに入れておく感じでしょうか。
バスルームは浴室換気乾燥機能付き。窓があるので自然換気ができるのもうれしいですね。これでカビの発生も食い止められるハズ・・・!
トイレは洗面室のお隣にあります。
ウォシュレットとペーパーのストックを仕舞っておくのに便利な吊戸棚がついています。
廊下をまっすぐ進んだ先の壁面にはガラスの飾り棚が設置されていました。
壁面のタイルもおしゃれですね♡
お気に入りの小物や思い出の品など並べてみてはいかがでしょう??
採光部のある扉をあけてLDKへ。
LDKは約11.4帖。家具が置いてあるので実際の生活イメージもわきやすいのではないでしょうか。エアコンも設置されており、引っ越したその日から快適な生活が送れます。
リビングスペース。LDK内には窓がないのですが、ダウンライトとスポットライトがお部屋全体を照らしているので暗さは感じません。
キッチンに近い側がダイニングスペース。
ダークブラウンのキッチンは上下に収納スペースがたっぷり。
3口ガスコンロでお料理もスムーズに進められそうです。
キッチンの横は棚付の納戸。掃除機や季節家電、日用品のストックなど、この中にまとめて仕舞っておけそうです。
洋室2部屋はLDK内から行けるようになっています。
3枚の可動扉側の洋室は約6帖。
壁面の一部には淡い色合いのアクセントクロスが使われています。
(収納はありません。)
もう1部屋の洋室は約5.8帖。こちらも壁面の一部にアクセントクロスが使われています。
こちらの洋室にはエアコンとウォークインクローゼットがついてます。
洋室の扉をあけてLDKとつなげるとこんな感じになります。
約6帖の洋室はLDKの延長として使うのもよさそうです。
最後に洋室2部屋に面しているバルコニーに出てみます。
広さは不明ですが、お洗濯物を干すには十分な広さかと。向きは南東向き。
外はエントランス前の道路を挟んで住宅が広がる風景。
この日は曇天でしたが、晴れた日は陽ざしも期待できそうです!
ご内見のご希望・ご質問などございましたら、お気軽にお問い合わせくださいませ♪
過去に販売していたお部屋の概要 このお部屋の販売は終了いたしました。
| 価格 | -万円 |
| 面積 | 42.31㎡ |
| 間取り | 1bedroom(1LDK) |
| 管理費 | 月額:7,700円 修繕積立金:月額6,400円 |
| 所在階 | 3階 |
間取の紹介です。
42.31㎡ 1LDK 7月にリノベーション工事を終えたばかりで、オシャレなお部屋に生まれ変わりました☆
玄関右側にはシューズボックスがあります。玄関は人感センサー付きのライトがある為、真っ暗な中のお帰りでも安心ですね☆
廊下に上がってすぐ右側にはサニタリールームがあります。
洗面台は“ザ・シンプル”ですね(#^.^#)逆に無駄がなくスタイリッシュな感じがします☆
洗面台の隣りに洗濯機置場があります。上が出窓になっていて、奥行きのあるスペースがあるので、収納にお使いください♪
バスルームもキレイに入れ替えられているのでピカピカ☆
気持ちいいバスタイムが送れそうですね~(#^.^#)
10.9帖のリビングダイニングキッチンは南向きの窓もあってとっても明るいです。
西側の壁と天井の梁がダークブラウンになっていて、素敵なアクセントですね。
キッチンも新品に交換されています☆奥様にはとっても嬉しい食洗機つき。
これでお食事後の片づけも楽ちんラクチン。
リビングの奥には5.5帖の洋室があります。
東側の壁が一面クローゼットになっているので、収納力は◎です!
リビングからも洋室からも出られるバルコニーは柵が壁になっていないので開放感があっていいですね☆下には緑がいっぱい。癒されます~☆
いかがでしたか?新宿からほど近い参宮橋で、いっぱいの緑に囲まれながら暮らすのもなかなかいいですよねッ!
皆様のご内見・お問い合わせ、お待ちしております(^v^)
過去に販売していたお部屋の概要 このお部屋の販売は終了いたしました。
| 価格 | -万円 |
| 面積 | 59.37㎡ |
| 間取り | 2bedrooms(2LDK) |
| 管理費 | 月額10,800円 修繕積立金:月額9,000円 |
| 所在階 | 2F |
間取りのご紹介です。2LDK、59.37㎡。
ウォークインクローゼットが2つもある収納豊富なお部屋です。
室内は只今リノベーション工事中!
一足先に充実のリノベーション内容をご紹介いたします。
■キッチン・・・システムキッチン ラクエラ(クリナップ)
■浴室・・・ユニットバスWH1116(TOTO)、追い焚き機能、浴室乾燥機能付き
■洗面所・・・洗面化粧台 (Panasonic)、洗濯水栓、防水パン
■トイレ・・・アメージュシリーズ(LIXIL)、ウォシュレット機能付き
■その他・・・フローリング貼替、壁・天井クロス張替、フロアタイル貼替、クッションフロア張替、建具・玄関収納交換、給湯器交換、エアコン1基、カラーTVモニター付きインターフォン、新規照明器具取付、スイッチ・コンセント交換、ハウスクリーニング
【内装工事終了予定:2014年5月下旬】
ピカピカのお部屋に生まれ変わるのが待ち遠しいですね!
工事終了前のご紹介も可能ですので、ご質問などはお気軽にお問合せくださいませ。
過去に販売していたお部屋の概要 このお部屋の販売は終了いたしました。
| 価格 | -万円 |
| 面積 | 104.56㎡ |
| 間取り | 3bedrooms(3LDK) |
| 管理費 | 月額19,000円 修繕積立金:月額15,800円 |
| 所在階 | 3F |
ここで間取りのご紹介です。3LDK、104.56㎡。
共用廊下は外廊下。
玄関を入ると左側には扉が一面鏡になっている大型のシューズBOXが
あります。中の棚がちょっと斜め下を向いているので靴も見やすくて◎。
玄関をあがり、左方向に伸びる廊下。左右には洗面室の入口と洋室へつづく
廊下があります。まずはまっすぐ進むと・・・。
約22.0畳の広々リビングダイニングキッチン。
一面南西向きのバルコニーに面しており、陽当たり、開放感ともにバッチリです!
キッチンスペース。
システムキッチンの反対側にカウンターもつくられています。
真っ白のシステムキッチンは調理スペースもゆとりがあって作業がしやすそう。
下の収納も引き出しタイプなので物の出し入れがしやすく助かりますね。
水まわりの設備は一か所にまとまっており、写真の左側の扉が入口です。
正面にトイレ、左右に洗面室とバスルームがあります。
真っ白の洗面化粧台。鏡の左右、半円型の洗面ボウルの下は収納になっています。
洗面化粧台のすぐ隣は洗濯機置場。
上にはフタのついた収納もつくられています。
洗剤の収納場所にちょうどいいですね!
ブラウンの木目柄パネルがつかわれた落ち着きとくつろぎを感じるバスルーム。
バスタブもゆったりして、1日の疲れもスッキリとれそうです。
トイレはウォシュレット付き。
こちらは洋室3部屋の入口がある廊下です。
1部屋目は約7.5畳の広さ。整理整頓がしやすそうなクローゼットがつくられています。
窓は3部屋の中で一番小さ目ですが、クロスが白なので明るいです。
2部屋目は約8.0畳の広さ。
1部屋目の2倍くらいの大きさのクローゼットがつくられています。
(クローゼットの中は扉で隠れた右側の部分も左側と同じようなつくりです。)
3部屋目は洋室の中で一番広く約12.0畳あります。
クローゼットも一番大きく、壁一面につくられています。
衣類も1か所にしまえれば衣替えの手間も省けていいですね。
最後に約7.83㎡あるバルコニーにでてみます。南西向き。
時刻は16時頃。バルコニー正面向かって左側には建物が建っていますが、
右側に移動するとちょうど太陽が目の前に見えて眺めもなかなかグーです。
都心ながらも周囲が静かなところもオススメです。
みなさまのご内見、こころよりお待ちしております!




















































































































































弊社 公式HP
六棒総合研究所
掲載予定物件
価格変更と販売終了物件
ハザードマップ検索
適合証明書.jp
Facebook
Twitter
Instagram