・
□□□□□□□□□□□□□□□□□□□□□□□□□□□□□□□□□□□□□□□
いつも弊社ホームページをご覧頂き誠にありがとうございます。
代々木ハビテーションはお陰様で販売を終了致しました。弊社問合せフォームにてご要望頂けましたら、当お部屋でキャンセル等が発生した場合、他のお部屋が販売になりました際にご紹介させて頂きます。
不動産Agent 六棒株式会社
TEL:03‐5413‐5336
□□□□□□□□□□□□□□□□□□□□□□□□□□□□□□□□□□□□□□□
今回ご紹介するのは、小田急線『代々木八幡』駅から徒歩9分、『代々木ハビテーション』です♪♪緑も多く落ち着いた住宅地。3駅3路線利用可能、アクセスもなかなかです (●´∀`)
アクセス
小田急線 『代々木八幡』駅 徒歩8分
小田急線・東京メトロ千代田線 『代々木上原』駅 徒歩10分
京王線『初台』駅 徒歩11分
代々木上原駅は千代田線の始発駅、座って出勤できます。
マンションへご案内する前に、まずはこちらをご覧ください⬇️
□□□□□□□□□□□□□□□□□□□□□□□□□□□□□□□□□□□□□□□
★★★【代々木ハビテーション】周辺のハザードマップをCHECK!!★★★
お部屋の記事を読む前に…!周辺のハザードマップをチェックしておきませんか!
代々木ハビテーションのハザードマップは★こちらから…どうぞ★
□□□□□□□□□□□□□□□□□□□□□□□□□□□□□□□□□□□□□□□
渋谷区元代々木町は、代々木公園、明治神宮の西側♪♪ちょうど代々木上原、代々木八幡、初台に囲まれたエリア。周辺にはステキなレストランやカフェも多くおしゃれ
(*´˘`*)♡代々木公園にも歩いて行けるので、お休みの日にいかがでしょう。
こちらが今回ご紹介させていただく『代々木ハビテーション』です。
昭和43年築、地上7階建て、総世帯数68戸のマンション。
ペットの飼育も可能です。(規約あり)
植栽も綺麗にお手入れされていてgood♪♪

前面の道路は、やや交通量が多いです。道の反対側は、なんとスーパーです!!営業時間は8:30〜21:30、バッチリですね (●´∀`)

こちらがエントランスです♪♪エントランス前の階段は横にスロープがありベビーカーや車いすでも楽にのぼれます(*´▽`)

光の差し込むエントランスホールには、ポストと管理人室。管理人さんもいらっしゃるので管理体制も◎
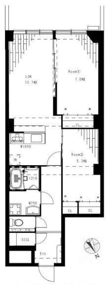
ここで間取り図のご紹介です。
※間取り図は別タブで開きますので、確認しながらご覧いただくことができます。
□□□□□□□□□□□□□□□□□□□□□□□□□□□□□□□□□□□□□□□
★★★【代々木ハビテーション】周辺のハザードマップをCHECK!!★★★
お部屋の記事を読む前に…!周辺のハザードマップをチェックしておきませんか!
代々木ハビテーションのハザードマップは★こちらから…どうぞ★
□□□□□□□□□□□□□□□□□□□□□□□□□□□□□□□□□□□□□□□
今回ご紹介するお部屋は最上階の7階、専有面積41.79㎡、1LDK。お一人暮らしの方にお勧めのお部屋です。では、さっそく行ってみましょう!
玄関から真っ直ぐに伸びた廊下には、お部屋へのドアと共に収納棚や洗濯機スペースなども並んでいます。洗濯機スペースは扉付き。収納かな?と思って開けたのでちょっとびっくりしてしまいました^^;)
洗面室は洗面化粧台の他にトイレと浴室がまとまっていて脱衣室を兼ねています。洗面化粧台は身だしなみを整えるのに便利な三面鏡付き。鏡の間に照明が仕込まれているので影になることもありませんよ。三面鏡裏のキャビネットには洗面周りの細々したものをスッキリと片付けることが可能です。
浴室は白をベースにモノトーンでまとめられた明るい雰囲気。追い焚き機能や浴室換気乾燥機などの便利機能も完備しています。天候を気にせず洗濯ができるのは嬉しいですね。
トイレはINAX製の洗浄機能一体型。トイレットペーパーストックや掃除道具を入れておける吊戸棚も付いています。
こちらは約4.3帖の洋室。
LDKとは独立した廊下に面したお部屋です。窓は北向きですが意外と明るいですね。実はイメージほど北向きって暗いわけではないんですよ。もちろん直接陽射しは入りませんが、前が開けていたりお日様を反射してくれるものがあれば柔らかな光が入って来ます。
収納はウォークインクローゼット!!!L字のハンガーパイプの他に可動棚まで設置されている使い勝手のよい収納です。
こちらは約12帖のリビング・ダイニング・キッチン。
長辺を南向きのバルコニーに面したお部屋です。大きな窓からの光でとても明るいですね。家具がないのもありますが、濃いめのフローリングに白のクロスは上に向かって広がりを感じるので広く見せる効果もありそうです。
キッチンは人気のカウンタータイプ。
一般的なカウンターキッチンとは違いコンロ部分は壁側、シンクがLDを向いたⅡ型になっています。こっちの方が鍋を思いっきり振るえていいですよね。解放感をそのままに使いやすさを考慮したバランスの取れたキッチンです。食後は食器洗浄乾燥機に洗い物をお任せしてのんびりさせてもらいましょう♬
・
以上で代々木ハビテーションのご案内を終わります。
いかがでしたでしょうか??
代々木八幡駅から徒歩9分のマンションです。
リノベーション済みという事で室内はとてもキレイですよ (っ・ω・)っ
内見のご予約やご質問などございましたらお気軽にお問い合わせくださいませ。
ご連絡お待ちしております。
□□□□□□□□□□□□□□□□□□□□□□□□□□□□□□□□□□□□□□□
★★★【代々木ハビテーション】周辺のハザードマップをCHECK!!★★★
お部屋のご購入前に…!周辺のハザードマップをチェックしておきませんか!
代々木ハビテーションのハザードマップは★こちらから…どうぞ★
□□□□□□□□□□□□□□□□□□□□□□□□□□□□□□□□□□□□□□□
弊社、不動産Agent 六棒株式会社では、一般仲介物件は仲介手数料20%~30%OFF!
にてお取り扱いしております!
なるべく沢山のお部屋をホームページに掲載したいと思っておりますが、時間的成約もございますので、残念ながらご紹介できるお部屋の一部しか掲載できておりません。
このホームページに掲載中のお部屋、その他サイト等で気になるお部屋、街を歩いていて気になったマンション等々ございましたら是非、弊社営業部までご相談ください!
~不動産Agent 六棒株式会社の特徴~
・一般仲介物件の仲介手数料は20%~30%OFFにてご案内中です!
・住宅ローンに自信あります!
・頭金10万円より購入できます。是非ご相談下さい!
・お部屋のご見学は車で2~3件まとめて案内します!
・物件数3000件以上、新築戸建、リノベ物件も多数ご用意しております!
過去に販売していたお部屋の概要 こちらのお部屋の販売は終了いたしました
| 価格 | -万円 |
| 面積 | 60.89㎡ |
| 間取り | 2bedrooms(2LDK) |
| 管理費 | 月額14,730円 修繕積立金:月額13,200円 |
| 所在階 | 3階 |
| お問い合わせ・ご内見のご予約はこちらからお気軽にどうぞ | |
ここで間取り図のご紹介です。
※間取り図は別タブで開きますので、確認しながらご覧いただく事が出来ます。
□□□□□□□□□□□□□□□□□□□□□□□□□□□□□□□□□□□□□□□
★★★【代々木ハビテーション】周辺のハザードマップをCHECK!!★★★
お部屋の記事を読む前に…!周辺のハザードマップをチェックしておきませんか!
代々木ハビテーションのハザードマップは★こちらから…どうぞ★
□□□□□□□□□□□□□□□□□□□□□□□□□□□□□□□□□□□□□□□
今回ご紹介するお部屋は3階、間取りは2LDK、専有面積は60.89㎡。
では、早速行ってみましょう。
エレベーターを3階で降りて…
開放的な外廊下を進みます。
玄関横にはテレビモニター付きインターホンが設置されていて、お部屋の中から訪問者を確認する事が出来ます。『ハイ』と言う前によくチェックしましょう。
木材が多く使われていて落ち着きのある雰囲気。幅もゆったりとしています。家具を入れる時とかに助かるんですよね。
玄関ドアはダブルロック。鍵一つと二つでは安全性が全然違うらしいですよ。
人感センサーは中に入っただけで自動的にライトを点けてくれます。両手が塞がっていても大丈夫。消し忘れの心配もありません。玄関内には服装チェックに重宝する姿見や、ブーツを履いたり靴紐を結んだりに便利なスツールなど、嬉しいポイントがいっぱい♬
ドアの向こうにはシューズインクローゼット!靴がたくさん入るのはもちろんの事、ベビーカーやキャリーケースなども置いておけます。
では、まずは正面のドアから…
こちらは約13.7帖のリビング・ダイニング・キッチンです。手前からキッチン、ダイニング、リビングのオーソドックスなタイプ。奥の窓からは明るい日差しが射し込んでいて、明るいお部屋になっています。
家具付きではありませんが、置いてあると生活のイメージがし易くて助かります。大きさや色などの参考にもなりますしね。
では、隣のお部屋へ…
こちらは約7帖の洋室。洋室としては広めで、今はベッドが一つ置いてありますが二つでも余裕で置けそうです。
収納は間口が広くて使い易そうなクローゼット。奥行きもあって収納力も十分ですよ。
仕切り扉を開けていけば…
この洋室はリビングの一部としても使えます。普段は開けておいて広いワンルームの様な使い方をしたり、寝室として使ってなければ大勢お客様がいらした時の選択肢としてもアリですね。
次はキッチンを…
収納は洗面台下と吊戸棚。扉タイプは奥の方が取りづらかったりしますので、上手く収納グッズを使いましょう。書類ケースを使ってフライパンを立てて収納!とかテレビでよくやってますよね。
コンロは3口。片面焼きグリルも付いています。
お料理中は換気扇をお忘れなく!
調理台後ろには冷蔵庫や家電ラック、食器棚などの為のスペースがたっぷりとってありました。
では、次のお部屋へ…
こちらは約5.3帖の洋室。先程より小さいとはいえ寝室としても十分使える広さです。アトリエみたいになっていますね。趣味のお部屋のイメージでしょうか。
収納は、お部屋いっぱいの幅を使ってクローゼットが二つ。中がひと目で確認出来ていいですね。無駄なお買い物も減らせるらしいですよ。
では、廊下へ戻って…洗面室です。
洗面台、洗濯機スペース、浴室がまとまっています。
洗面台は既成ではなく造り付け。タイルがお洒落なスッキリタイプです。
収納などは特にありませんので、洗面ボウルの横や洗面台の下を上手く使いましょう。
次は浴室へ…
追い焚き機能が付いていますので、いつでも温かいお風呂に入れます。スマホに夢中で長風呂しても大丈夫ですよ。
浴室乾燥機は浴室の乾燥だけでなくお洗濯物乾燥も可能。梅雨の時期はもちろんの事、花粉の季節にも大活躍です。
次はトイレへ…
ナチュラルなお部屋とは少し印象の違う、シャープな雰囲気のトイレです。
手洗いカウンターの下には、ちょっとした収納も付いています。お掃除道具など入れておけますね。温水洗浄便座付き。TOTO製のウォシュレットです。
それでは、最後はバルコニーのご紹介。
LDK、洋室どちらの窓からでも出られます。
広さは7.74㎡。陽当り抜群で、お洗濯物も気持ち良く乾きそうですね♬
バルコニーからの眺めは開放的。代々木にいるって事を忘れそうです(^^)
・
以上で代々木ハビテーションのご案内を終わります。
いかがでしたでしょうか??
代々木八幡駅から徒歩9分のマンションです。
リノベーション済みという事で室内はとてもキレイですよ (っ・ω・)っ
内見のご予約やご質問などございましたらお気軽にお問い合わせくださいませ。
ご連絡お待ちしております。
□□□□□□□□□□□□□□□□□□□□□□□□□□□□□□□□□□□□□□□
★★★【代々木ハビテーション】周辺のハザードマップをCHECK!!★★★
お部屋のご購入前に…!周辺のハザードマップをチェックしておきませんか!
代々木ハビテーションのハザードマップは★こちらから…どうぞ★
□□□□□□□□□□□□□□□□□□□□□□□□□□□□□□□□□□□□□□□
弊社、不動産Agent 六棒株式会社では、
□リノベーションマンションはほぼ全て仲介手数料無料!
□その他一般仲介物件は仲介手数料20%~30%OFF!
にてお取り扱いしております!※弊社の「Agent Fee=仲介手数料」についてはご案内、ご面談の際に営業担当者よりご説明いたします!
なるべく沢山のお部屋をホームページに掲載したいと思っておりますが、時間的成約もございますので、残念ながらご紹介できるお部屋の一部しか掲載できておりません。
このホームページに掲載中のお部屋、その他サイト等で気になるお部屋、街を歩いていて気になったマンション等々ございましたら是非、弊社営業部までご相談ください!
~不動産Agent 六棒株式会社の特徴~
・一般仲介物件の仲介手数料は20%~30%OFFにてご案内中です!
・リノベーションマンションについてはほぼ全て仲介手数料無料です!
・住宅ローンに自信あります!
・頭金10万円より購入できます。是非ご相談下さい!
・お部屋のご見学は車で2~3件まとめて案内します!
・物件数3000件以上、新築戸建、リノベ物件も多数ご用意しております!
過去に販売していたお部屋の概要 このお部屋の販売は終了いたしました。
| 価格 | -万円 |
| 面積 | 51.60㎡ |
| 間取り | 2bedrooms(2LDK) |
| 管理費 | 月額12,850円 修繕積立金:月額11,400円 |
| 所在階 | 5階 |
| お問い合わせ・ご内見のご予約はこちらからお気軽にどうぞ | |
今回の御部屋を紹介します!

さぁ!お部屋に入ってみましょう。
玄関を開けると、明るく優しい光が出迎えてくれます。
朝は一日を気持ちよくスタートさせてくれ、夜は一日の疲れを癒してくれる空間かとおもいます。

白を中心とした明るい玄関には、開き戸タイプの大きいシューズクロークがあり、横にはお客様を落ち着いて出迎える素敵な飾り棚があります。

玄関・廊下は、天然大理石貼りとなっており、高級感を演出しています(^^♪
そして玄関横には、ウォークインクローゼットがります!

マンションは収納が少なく感じます!
この収納力は、魅力のセールスポイントの一つですよ♬🎶
次は、水廻りのレポートです!


水廻りの全部が新規リフォーム交換済みです🎶
新しい生活を気持ちよく快適にスタートできます☆

素敵な洗面所でしたので、大きく撮影しました!!!!

浴室には、なんと……TVがついてました!
これは、お風呂に何時間も入ってと言ってるのですね?(笑)
水廻りのレポートは終了します(”◇”)ゞ
次は洋室を見てみます!


エアコンも取付可能なお部屋です。
本棚タイプの収納もついたお部屋は、子供部屋に快適です!
次は、おまたせしました!キッチンエリアのご紹介です!


洗練されたオープンなキッチンは、奥様には明るく快適な家事を提供します!
対面カウンターキッチンは、リビングの様子を感じ取り、お子様の動きを見ながら料理に集中できますね(^^♪

もちろん!TVモニター付きインターフォンもついてます!
安心してくださいね☆彡


キッチンは、嬉しい食洗器がついてます!料理が、どんどん得意なっていきそうです!
おまたせしました!リビングのご紹介です!どど~んと大きい写真でご紹介しますよ(^^





素敵なリビングダイニングだとおもいませんか?
こんな素敵な空間に暮らしたいです☆彡

天井を見てください!
埋込のシーリングライトが高級感を演出し、2段の折り上げ天井が高級感の上をもいく、ラグジュアリー感を視界に入れてくれます♬
バルコニーに出る前に、ベットルームをご紹介!


バルコニーに面した窓は、二重サッシを採用しています!
快適な空間を提供してくれます(^^♪
最期に眺望とウッドタイプのデッキを敷いたバルコニーを紹介します!


緑溢れる眺望は、快適な空間と安らぎを約束してくれます(^O^)
是非一度ご見学ください!
弊社、不動産Agent 六棒株式会社では、
□リノベーションマンションはほぼ全て仲介手数料無料!
□その他一般仲介物件は仲介手数料20%~30%OFF!
にてお取り扱いしております!※弊社の「Agent Fee=仲介手数料」についてはご案内、ご面談の際に営業担当者よりご説明いたします!
なるべく沢山のお部屋をホームページに掲載したいと思っておりますが、時間的成約もございますので、残念ながらご紹介できるお部屋の一部しか掲載できておりません。
このホームページに掲載中のお部屋、その他サイト等で気になるお部屋、街を歩いていて気になったマンション等々ございましたら是非、弊社営業部までご相談ください!
~不動産Agent 六棒株式会社の特徴~
・一般仲介物件の仲介手数料は20%~30%OFFにてご案内中です!
・リノベーションマンションについてはほぼ全て仲介手数料無料です!
・住宅ローンに自信あります!
・頭金10万円より購入できます。是非ご相談下さい!
・お部屋のご見学は車で2~3件まとめて案内します!
・物件数3000件以上、新築戸建、リノベ物件も多数ご用意しております!
過去に販売していたお部屋の概要 このお部屋の販売は終了いたしました。
| 価格 | -万円 |
| 面積 | 60.37㎡ |
| 間取り | 2bedrooms (2LDK) |
| 管理費 | 月額14010円 修繕積立金:月額12300円 |
| 所在階 | 1階 |
| お問い合わせ・ご内見のご予約はこちらからお気軽にどうぞ | |
間取りのご紹介です。2LDK、60.37㎡。
室内はバリアフリーになっており、足の不自由な方でも安心して生活できます。
このお部屋は、女性スタッフが内装のデザインから建具等の発注まで行った、「女性目線」のお部屋です。
昨年の12月にリノベーション工事をしているので、室内はとても綺麗です☆
玄関左のシューズボックスは天井までのトールサイズ。可動式の棚なので、ブーツや長靴、スニーカー、サンダル等々、大きさや高さに合わせて、自由にアレンジしてください(*^^)v
玄関には人感センサー付きライトがあります。
真っ暗なお部屋に帰って来ても、玄関に入るとパッと明るく照らしてくれるのが嬉しいです☆
こちらも全て新規に交換しているのでとってもキレイ☆
洗面台は小さいながらも両サイドにカウンターがありるので、朝のお出掛け準備にはとても便利♪
蛇口はホースになっているので、朝髪だけ洗いたいっ!という時もこの洗面台でらくらく☆
洗濯機置場には可動式の棚が3段ありますので、洗濯用品だけでなく、タオルのストックも収納できそうです。
バスルームは大きくはありませんが、新規に入れ替えていますので、とても綺麗です。また、ダークブラウンのパネルで高級感を演出しているので、ゆったりしたバスタイムを楽しめそうです。
浴室換気乾燥機も付いています!夏の暑い日には涼風、冬の寒い日には暖房をつけてから入ると、とても快適です。またこれからの季節、中々外で洗濯物を干せなくなるので、こちらが大活躍する事が良そうです。
玄関から右の手前のドアは4.5帖の洋室です。廊下側(北側)の窓からは日が射し込んできていました。
南側の壁にはクローゼットが付いています。扉が大きく開くので、大きな物もこちらに収納できます。
サニタリールームの隣には、トイレがあります。上部に吊り棚がありますので、掃除道具・ペーパーのストック等々、上手にお使いしただけそうです。
廊下突き当りのドアを開けると、まず飛び込んできたのがキッチンです。
カウンター越しにリビングが良く見えます☆
コンロは2口ですが、浄水器付水栓と大きなシンクで、毎日のお料理も楽しく出来そうです(*^^)v
収納スペースはキッチン株にご覧の様に6つに分刈れているので、キッチン周りも綺麗に収納できそうです☆
キッチン周辺のクロスはレンガ風だったり、花柄だったり、ちょっとかわいくなっています。
こういった所も、女性ならではのアイデアですね(^v^)
キッチンからリビングを眺めると、南側の壁はほぼ一面窓になっているので、とても開放的で明るく、気持ちのいいリビングでした。
西側にはこんな一角が。
両サイドがガラス棚になっている壁一面の棚でした☆
真ん中のカウンターには、テレビを置いて、両サイドのガラス棚には本や雑誌、お気に入りの植物や写真等を置けば、とても素敵な飾り棚のでき上がりです(*^^)v
リビングには洗濯物の部屋干し用のリングが天井から下がっています。
乾燥機を使うほどではないけれど、外で干すのはちょっとね・・・といった洗濯物これで部屋干ししましょう☆
キッチンの西側にあるのが、4.5帖のサービスルームです。新規に取り付けたLEDダウンライトが落ち着きのあるお部屋を作ってくれていました。
南側にあるドアを開くと、また向う側にドアが見えます。
その手前に広い空間が・・・
中に入ってみると、ウォークスルークローゼットでした。
両サイドにハンガーラックがあり、上部は棚になっているので、大大大容量でした!(^^)!
突き当りのドアを開けると、先程のリビングの棚が見えました。
サービスルーム側からでもリビング側からでもこのWSCに出入りできる、と言うわけです。
リビングダイニングキッチンから南側のバルコニーに出ます。1階で、裏側の道路よりも少し低くなっていますが、植栽が目隠しになってくれています。
そして目の前に緑があるって、とても気持ちいいですね♪
いかがでしたか??
コンパクトなお部屋ではありますが、女性スタッフが作ったこのお部屋、可愛いだけではなくとても「目」の行き届いた造りになっています。
皆さんの「目」でも一度確かめてみてください。
皆さんからのお問い合わせ、心よりお待ちしています。
過去に販売していたお部屋の概要 このお部屋の販売は終了いたしました。
| 価格 | -万円 |
| 面積 | 51.60㎡ |
| 間取り | 2bedrooms(2LDK) |
| 管理費 | 月額:11,700円 修繕積立金:月額10,200円 |
| 所在階 | 2階 |
| お問い合わせ・ご内見のご予約はこちらからお気軽にどうぞ | |
間取りのご紹介です。2LDK、51.60㎡。
南向きで日当り良好なお部屋です。
玄関を開けると、生まれ変わったばかりのキレイなお部屋が出迎えてくれました☆白を基調にした清潔感のある玄関です。
玄関照明は人感センサーになっているので節電はもちろん夜間のお帰りの際も便利です (●´∀`)
玄関の左側には天井まで続くトールサイズのシューズボックスがあります。可動式の棚なので、靴のサイズに合わせてご自由にアレンジしてください☆
玄関進んで右手に新規交換済みのピカピカなトイレです☆
嬉しいウォシュレット付になります。
棚等は設置されていませんので、後から棚を設置したり、突っ張り棒で収納を作ったりと工夫したいですね♪♪
お隣のお部屋は、水まわりが一ヶ所にまとまった洗面室です。コンパクトな空間ですが、小回りが効くので作業がし易く家事の効率もアップしそうですよ♬
一番奥に洗濯機置場です☆
お次は真っ白な洗面台です☆鏡の裏側に収納スペースがありますので、歯ブラシから洗顔フォームまでゴチャゴチャ散らかりがちな洗面まわりの物はこちらにお仕舞いただけます。♪♪
シャワーヘッドも嬉しいですね~♪♪
そして、バスルームはネイビーとホワイトの組み合わせがスタイリッシュ♪♪
縦長ミラーとその下には棚も付いているので小物を置くスペースもあります。ミラー横にもシャンプーなどのボトルもキレイに並べて置ける棚があり、清潔感のある空間を保てますね◎追い焚きと浴室乾燥機能が付いています。雨の日でも安心してお洗濯ができますよ(*´∀`*)
それではリビングダイニングキッチンへ♪♪
リビングダイニングキッチンは、約12帖とゆったりした空間♪♪窓は南向きなので日当りもバッチリ 。ナチュラルな色調のフローリングも素敵です(●´∀`)
ステキなL字型のシステムキッチンです☆大きめのワークトップ&シンクで使い勝手◎
キャビネットはスライド式なのでキッチングッズの収納も楽々(●´∀`●)
IHクッキングヒーターが設置されています。火を使わないので安心♬高火力でお料理もバッチリ(*´∇`*)
冷蔵庫置場もしっかり用意されています。ダウンライトも良い雰囲気です♪♪
キッチンお隣のスライド式ドアのお部屋は、約4.5帖の洋室☆
こちらのお部屋にはクローゼットが設置されています♪奥行きもしっかりで収納力バツグン☆
バーも付いているので、ロングコート等の衣類の収納にも良いですね♪♪
こちらのお部屋は、バルコニーに面した約5.2帖の洋室☆こちらのお部屋も南向きの窓で日当り良好(o´∀`ノ
こちらのお部屋にもクローゼットがあります。収納が大きいと生活スペースが広く使えて◎
それでは最後にバルコニーに出てみましょう♪♪南向きで陽当たりバツグン♪♪お洗濯物も良く乾きそう (●´∀`)
2階ですので眺望がすごく良いとは言えませんが、お隣とは離れているので充分です♪♪
3路線3駅利用可!通勤~通学~お買い物にと便利な街。
休日も充実のエリアです(o´∀`ノ
内見のご希望、ご質問などございましたら、![]()























































































































































弊社 公式HP
六棒総合研究所
掲載予定物件
価格変更と販売終了物件
ハザードマップ検索
適合証明書.jp
Facebook
Twitter
Instagram