・
□□□□□□□□□□□□□□□□□□□□□□□□□□□□□□□□□□□□□□□
いつも弊社ホームページをご覧頂き誠にありがとうございます。
エクセル旗の台はお陰様で販売を終了致しました。弊社問合せフォームにてご要望頂けましたら、当お部屋でキャンセル等が発生した場合、他のお部屋が販売になりました際にご紹介させて頂きます。
不動産Agent 六棒株式会社
TEL:03‐5413‐5336
□□□□□□□□□□□□□□□□□□□□□□□□□□□□□□□□□□□□□□□
・
品川区エリアよりリノベーションマンション『エクセル旗の台』のご紹介です。
□□□□□□□□□□□□□□□□□□□□□□□□□□□□□□□□□□□□□□□
★★★【エクセル旗の台】周辺のハザードマップをCHECK!!★★★
お部屋の記事を読む前に…!周辺のハザードマップをチェックしておきませんか!
エクセル旗の台のハザードマップは★こちらから…どうぞ★
□□□□□□□□□□□□□□□□□□□□□□□□□□□□□□□□□□□□□□□
ハザードマップもご確認いただきましたので、次は街の紹介です!
東急大井町線、池上線の2路線利用可能な旗の台。マンションはここから歩いて徒歩5分ほどのところにあります。2路線とも両隣駅との間隔が短いのでお隣の長原駅や荏原町駅も徒歩で利用可能です。
旗の台付近は複数の商店街がきれめなく続いておりお買い物はとても便利。大学病院や各種クリニックもあります。また区立小中学校や私立中学校、大学など学校も多く朝の時間帯は駅のまわりは通学の学生で非常ににぎやかな雰囲気になります。
目指すマンションは南口を出て商店街通りを中原街道方面へ。中原街道を洗足池方面へ少し歩くと到着します。
中原街道をはさんでマンションの向かい側には回転すし、徒歩3分ほど歩くと中原街道沿いに大型スーパーやブックオフもあったりします。オシャレなお店は少ないものの、生活利便性は◎。暮らしやすい環境です。
さらに中原街道をグングン歩くと緑豊かな洗足池公園が現れます。マンションからだと12分ほどとお散歩に訪れるのにピッタリ!ベンチも多く配置されており、木々やカモが泳ぐ姿を見ながらのんびり過ごせますよ。春には桜も楽しめます✿
エクセル旗の台は昭和54年築、7階建て、総世帯数38戸。
外観はレンガ色のタイル貼り。ペットの飼育も可能です。(規約あり)
前は中原街道なので周辺の交通量は多めです。
エントランス。(オートロックはありません。)
エントランスの奥は駐輪スペース。
エントランス内部もタイル貼りになっており、清掃も行き届いてキレイに保たれています。管理形態は管理会社による巡回管理です。
ここで間取り図のご紹介です。
間取り図は別タブで開きますので、確認しながらご覧頂く事が出来ます。
今回ご紹介のお部屋は、7階、間取りは1DK、専有面積は40.63㎡になります。
□□□□□□□□□□□□□□□□□□□□□□□□□□□□□□□□□□□□□□□
★★★【エクセル旗の台】周辺のハザードマップをCHECK!!★★★
お部屋の記事を読む前に…!周辺のハザードマップをチェックしておきませんか!
エクセル旗の台のハザードマップは★こちらから…どうぞ★
□□□□□□□□□□□□□□□□□□□□□□□□□□□□□□□□□□□□□□□
エレベーターを降りると幅の広い内廊下になっています。内廊下はプライバシーや防犯面に優れ、悪天候などにも強くていいですよね。
玄関にはテレビモニター付きインターホンが設置されていて、お部屋の中から訪問者を映像で確認する事が出来ます。見てから応対するか決めれば、しつこいセールスに悩まされる事もありません。
ドアを開けると正面はシューズボックス、中が見えづらくなっているのでプライバシー的にもGOOD!宅配便やフードデリバリーなどが多くなっていますからね。
玄関ドアには安心のダブルロック♬
人感センサー設置で暗い中スイッチを探す必要もありません。なにより、いつも明るい玄関が迎えてくれるのが嬉しいですよね(^^)シューズボックスはトールタイプ。収納力十分で玄関内をスッキリ使うことが出来そうです。フットライト付き、左側には傘なども入れられる、高さのある収納も付いています。
玄関ホールはコンパクト。その分、お部屋にスぺ―スを使ってるって事ですよね。
それではお邪魔します!
こちらは約11.8帖のリビング・ダイニング・キッチン。キッチンが壁付けで四角いオープンなスペースが使えるので、レイアウトの自由度も高いお部屋です。二面採光で風通しも良さそうですよ。一つ窓に比べて10倍近く換気能力が上がるとか!
ブラウンのフローリングに白いクロス。シンプルな色使いで家具も合わせやすい印象です。
窓際の壁はレンガ風のアクセントウォール。白一色の中にも変化を付けています。前にローボードを置いたりして、リビングをちょっとお洒落な雰囲気に出来そうですね♪♪ 初めからエアコンが付いているのも◎工事で待たされて暑さを我慢する事もありません。
次はキッチンへ…
圧迫感が無いように壁に合わせた白の調理台です。窓が付いているのもいいですね。採光や換気など何役も果たしてくれています。
収納は調理台下に吊戸棚と豊富。出し入れしやすい引き出しタイプ、逆にしづらい吊戸棚、特徴を生かせば使いやすそうですね。
コンロは三口。タイマーや温度設定などが可能な高機能なタイプです。ガスコンロって、いつの間にかこんな事が出来るようになっていたんですね^^;
窓があるとはいえ、調理中は換気扇を忘れずに!匂いって後から気になったりしますからね。特にグリルを使う時は絶対ですよ(笑)
調理台左横には冷蔵庫スペースも確保されています。サイズにはお気を付けを。
今度はキッチン後ろのドアへ…
こちらは洗面室。トイレ、洗面台、洗濯機スペース、浴室がひとまとめになっています。
洗面台は三面鏡付き。上部にライトも付いているので洗面台を使う時に影になったりもしませんよ。水周りはやっぱり清潔感のある白がいいですよね。
収納は洗面台下と三面鏡裏のキャビネット。小分けになったキャビネットは、細かい物が多くなりがちな洗面周りにピッタリです。
次は浴室へ…
一面だけブラウンの木目パネルを使用していて、落ち着いた雰囲気の浴室です。いいリラックスタイムが過ごせそうですね♬
追い焚き機能などは付いていませんが、今の浴槽は保温機能が高いのでしっかりふたをしておけば結構な時間温かさを保ってくれますよ。
次はトイレへ…
後ろには大きな吊戸棚が設置されています。真ん中部分はカウンターになっていて何か飾る事も出来ますよ。今はインテリアになる消臭剤などもあるようですから、そんなのもいいかもしれませんね。もちろん温水洗浄便座付き。LIXIL製のシャワートイレです。
LDKに戻って窓横のドアを…
こちらは約6帖の洋室。フローリングやクロスはLDKとお揃いですね。北東側にバルコニーに面した窓がある明るいお部屋です。お部屋の形が真四角ではありませんので家具を置く際はご注意を。ただ、約6帖ありますので余裕はありそうですけどね。
何と、このお部屋にもエアコン付!
収納は奥行きのあるクローゼット。奥には棚も付いていて収納力は抜群です。
それでは最後にバルコニーのご紹介。LDK、洋室どちらのお部屋からでも出る事が出来ます。
広さ3.12㎡、三角形のコンパクトなバルコニーになります。室外機などを置くとほぼいっぱいですね。向きは南東向きで、午前中を中心に陽当りは良さそうです。
バルコニーからの眺望です。只今大規模修繕中で足場が邪魔ですが、無くなれば開放的で気持ちいい眺めになりそうです。工事中は煩わしいですが、定期的な修繕は大事ですからね(^^)
・
以上でエクセル旗の台のご案内を終わります。
いかがでしたでしょうか??
旗の台駅から徒歩5分のマンションです。
内見のご予約やご質問などございましたらお気軽にお問い合わせくださいませ。
ご連絡お待ちしております。
□□□□□□□□□□□□□□□□□□□□□□□□□□□□□□□□□□□□□□□
★★★【エクセル旗の台】周辺のハザードマップをCHECK!!★★★
お部屋のお問い合わせ前に…!周辺のハザードマップをチェックしておきませんか!
エクセル旗の台のハザードマップは★こちらから…どうぞ★
□□□□□□□□□□□□□□□□□□□□□□□□□□□□□□□□□□□□□□□
弊社、不動産Agent 六棒株式会社では、
□リノベーションマンションはほぼ全て仲介手数料無料!
□その他一般仲介物件は仲介手数料20%~30%OFF!
にてお取り扱いしております!※弊社の「Agent Fee=仲介手数料」についてはご案内、ご面談の際に営業担当者よりご説明いたします!
なるべく沢山のお部屋をホームページに掲載したいと思っておりますが、時間的成約もございますので、残念ながらご紹介できるお部屋の一部しか掲載できておりません。
このホームページに掲載中のお部屋、その他サイト等で気になるお部屋、街を歩いていて気になったマンション等々ございましたら是非、弊社営業部までご相談ください!
~不動産Agent 六棒株式会社の特徴~
・一般仲介物件の仲介手数料は20%~30%OFFにてご案内中です!
・リノベーションマンションについてはほぼ全て仲介手数料無料です!
・住宅ローンに自信あります!
・頭金10万円より購入できます。是非ご相談下さい!
・お部屋のご見学は車で2~3件まとめて案内します!
・物件数3000件以上、新築戸建、リノベ物件も多数ご用意しております!
過去に販売していたお部屋の概要 このお部屋の販売は終了いたしました。
| 価格 | -万円 |
| 面積 | 35.54㎡ |
| 間取り | 1bedrooms(1LDK) |
| 管理費 | 月額13,100円 修繕積立金:月額7,530円 |
| 所在階 | 1F |
| お問い合わせ・ご内見のご予約はこちらからお気軽にどうぞ | |
ここで。間取り図の紹介です。
※こちらクリックすると別画面にて表示されますので、以降確認しながら見る事ができますよ。
こちらの物件は、1LDK、35.54㎡。
窓の外には共用スペースのお庭のようなスペースがあるようで…楽しみです♪♪
□□□□□□□□□□□□□□□□□□□□□□□□□□□□□□□□□□□□□□□
★★★【エクセル旗の台】周辺のハザードマップをCHECK!!★★★
お部屋の記事を読む前に…!周辺のハザードマップをチェックしておきませんか!
エクセル旗の台のハザードマップは★こちらから…どうぞ★
□□□□□□□□□□□□□□□□□□□□□□□□□□□□□□□□□□□□□□□
では、お部屋に行ってみましょう。
お部屋は、エントランスを入ってすぐの所です。
カメラ付きインターホンが設置されています。
玄関を開ける前に、訪問者を確認する事が出来て安心ですよ。
では、お部屋に入ってみますね。
玄関を入ると、廊下の突き当りにシューズボックスがありました。珍しいですが、玄関を広く使えるのはいいですね。
シューズボックスは斜めに立て掛けるように収納するタイプです。お店の陳列棚みたいですね。ブーツなどは入らなそうですので、別の置場を考えましょう。

人感センサーも設置されているので自動的にライトが点きます。いつも明るい玄関が待っているのは嬉しいですね。
では、廊下左のドアから開けてみましょう。
こちらが約9.1帖のリビング・ダイニング・キッチンとなります。
白を基調とした明るいイメージのお部屋です。
エアコンが初めから付いています。新生活を快適に始められますね。
キッチンを見てみましょう。
ブラウンを基調とした、壁付けのオープンキッチンです。
収納は調理台の下と、上部にあります。
上部の吊戸棚は出し入れがしづらいので、あまり使わない物を入れましょう。
シンクは広め、コンロは3口あります。グリルも設置されていますよ。
右コンロには『高温炒め機能』が付いています。野菜炒めなどシャキッと仕上がりそうですね♬
では、次のお部屋へ行ってみたいと思います。
ガチャ
こちらが約5.5帖の洋室になります。
リビングと同じテイストのお部屋ですね。奥のガラスブロックがお洒落です。
扉の横の扉を…
クローゼットでした。間口はあまりありませんが奥行きがあります。床面も広いので、収納ケースを置いたりも出来そうですよ。
ではリビングに戻って…
こちらが洗面室となります。
入ってすぐ右側にある洗面台には、鏡の後ろと洗面台下に収納があります。いろいろなタイプがあって、大きい物から細かい物までうまく収まりそうです。
また、鏡の左右の扉は右からでも左からでも開けられる仕様になっています。これは便利!!
洗面台の横には、洗濯機スペースがあります。
洗面台の後ろ側には、バスルームがあります。
追い炊き機能が搭載されているので、いつでも温かいお風呂に入れますよ。
壁の一部がブラウンになっていて落ち着きますね。
では、こちらを後にしまして…
廊下の左側のドアを開けてみます。
こちらはトレイでした。
トレイの床も白で統一されているで、清潔感があります。
もちろん、ウォシュレットが完備されていますよ。
では、最後に窓を開けて外に出てみましょう!
こちらが共有スペースになります。
管理人さんが、毎日綺麗にお掃除をしてくれているんですよ。
綺麗に砂利が敷かれていますね。
管理人さんにお話を伺ったところ、これから緑が増える予定との事でした!
この日はとても暑かったんですが、風が通ってとても気持ち良かったですよ。
とても静かで、時間がゆっくり流れている感じです(*´ω`)
・
以上でエクセル旗の台のご案内を終わります。
いかがでしたでしょうか??
旗の台駅から徒歩5分のマンションです。
リノベーション済みという事で室内はとてもキレイですよ (っ・ω・)っ
内見のご予約やご質問などございましたらお気軽にお問い合わせくださいませ。
ご連絡お待ちしております。
□□□□□□□□□□□□□□□□□□□□□□□□□□□□□□□□□□□□□□□
★★★【エクセル旗の台】周辺のハザードマップをCHECK!!★★★
お部屋のお問い合わせ前に…!周辺のハザードマップをチェックしておきませんか!
エクセル旗の台のハザードマップは★こちらから…どうぞ★
□□□□□□□□□□□□□□□□□□□□□□□□□□□□□□□□□□□□□□□
弊社、不動産Agent 六棒株式会社では、
□リノベーションマンションはほぼ全て仲介手数料無料!
□その他一般仲介物件は仲介手数料20%~30%OFF!
にてお取り扱いしております!※弊社の「Agent Fee=仲介手数料」についてはご案内、ご面談の際に営業担当者よりご説明いたします!
なるべく沢山のお部屋をホームページに掲載したいと思っておりますが、時間的成約もございますので、残念ながらご紹介できるお部屋の一部しか掲載できておりません。
このホームページに掲載中のお部屋、その他サイト等で気になるお部屋、街を歩いていて気になったマンション等々ございましたら是非、弊社営業部までご相談ください!
~不動産Agent 六棒株式会社の特徴~
・一般仲介物件の仲介手数料は20%~30%OFFにてご案内中です!
・リノベーションマンションについてはほぼ全て仲介手数料無料です!
・住宅ローンに自信あります!
・頭金10万円より購入できます。是非ご相談下さい!
・お部屋のご見学は車で2~3件まとめて案内します!
・物件数3000件以上、新築戸建、リノベ物件も多数ご用意しております!
過去に販売していたお部屋の概要 このお部屋の販売は終了いたしました。
| 価格 | -万円 |
| 面積 | 47.34㎡ |
| 間取り | 2bedrooms(2LDK) |
| 管理費 | 月額17,500円 修繕積立金:月額10,040円 |
| 所在階 | 6階 |
| お問い合わせ・ご内見のご予約はこちらからお気軽にどうぞ | |
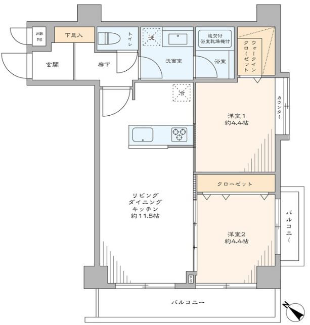
共用廊下は内廊下タイプ。玄関前で雨や風の影響をうけることなく、プライバシーも保たます。
間取りは2LDK、47.34㎡。
南西、南東角部屋で2面にバルコニーのあるお部屋です。
クリックすると別タブで開きますので写真と見比べながらご覧ください♡
お部屋は6階の角部屋。玄関前で他の居住者の歩く音などは気にせず過ごせますね。インターホンにはTVモニターがついており、事前に来訪者の顏が確認できるので防犯面も安心です。ではピンポーン♪おじゃまします。
玄関を入ると白基調の明るい玄関ホールがお出迎え♡
室内はリノベーション済みでピカピカです。
玄関横の白い扉はシューズBOXがです。天井まで高さがあって大きいですね。
中はこんな感じ。見た目通りたくさん入ります。
棚の高さは調節できるのでブーツなど背の高い履物もしまっておけますよ♪
これだけ収納できればお部屋で入りきらない靴を管理することはなさそうです。
また玄関には人感センサーがついています。人の動きを感知して自動で照明が消灯するのでスイッチを押す手間が省ける上、節電効果もあります。
夜はすぐ明かりがつくとなんだかほっとしますよね。
玄関をあがると廊下がまっすぐのびています。
廊下をまっすぐ進み、右側にある扉をあけてリビングダイニングキッチンを見ていきましょう。
ガチャ。
リビングダイニングキッチンは約11.5帖の縦長空間。
南西向きの明るい空間はくつろぎの場にピッタリ♡
家具の配置もしやすそうです。
窓側からもご覧ください。
キッチンは対面式。窓に向かって食事の準備ができるので朝から気持ちよくお料理ができそうです。
キッチンはクリナップ製。ワークトップはしっとりとした質感が魅力の人造大理石が使われています。
設備はというと、水栓は浄水機能付き、グリルもついています。
水栓はホースを伸ばすとシャワーとしても利用可能です。大きなお鍋にお水を入れるのもシャワーにすれば楽々こなせます。
2部屋ある洋室はリビングに隣接しています。
最初に写真右側の3枚の可動扉をあけてみると・・・
約4.4帖の洋室です。2面に窓があり開放感がありますね!
最後にご紹介しますが、どちらの窓もバルコニーに面していますよ。
こちらのお部屋には大きなクローゼットがついています。
収納が大きいと居住スペースが広く使えるのがうれしいですね。
洋室とリビングをつなげて広々とした空間として使うこともできます。生活シーンや家族構成に合わせてフレキシブルに使えるのがうれしいですね( *´艸`)
もう1部屋の洋室は・・・
約4.4帖。広さは同じです。
多少暗く感じるのは窓が少し小さいからでしょうか(*‘ω‘ *)
こちらのお部屋にはウォークインクローゼットがついています。収納は問題ありません。
窓際はカウンターになっているのでお好みのインテリアや植物などが手軽に飾っておけますよ。
今度はリビングダイニングキッチンを出て廊下側にある水廻りの設備を見ていきましょう。レッツゴー!
廊下を出てすぐ右側の扉は洗面室です。
こちらが洗面室。洗濯機置場、洗面化粧台、バスルームがここにまとまっています。
洗面化粧台はLIXIL製。白で清潔感たっぷり&収納が豊富です。
お隣は洗濯機置場になっています。
水栓はホースを伸ばすとシャワーとしても利用可能。
朝のねぐせがひどくても、これでザーッと濡らして直せば問題ありません。(多分)
バスルームの扉の横には浴室換気乾燥機の操作パネルがついています。
雨の日のお洗濯も乾燥機があれば安心ですね。
壁パネルは木目調でナチュラルな雰囲気♡
TOTO製の追い焚き機能付きユニットバスに新規交換されています。
冷える季節はこころゆくまで追い焚きであたたまってくださいませ。
洗面室のお隣の扉はトイレです。
トイレだけ独立してるんですね。これなら遊びに来たお友達に貸しやすいはず!
TOTO製洗浄便座付きトイレに新規交換されています。
おしりだって洗ってほしい。のです。
最後にバルコニーに出てみましょう。
2面にありますよ!まずは南西側からレッツゴー。
こちらが南西側のバルコニー。
この日は少し曇天でしたが晴れた日は陽ざしが期待できそうです。
正面の眺望。高いマンションが建っていますが、距離があるので人目等は気にせずごせそうです。
左右の方が抜けている箇所があって眺めがいいですね。
もう1つのバルコニーは南西向き。
南西向きのバルコニー。こちらのほうが少しコンパクトな印象です。
ただ眺望はこちらの方がイイ!!(*´▽`*)
正面の眺望はグーンと抜けていてスカイビューが楽しめます♪
左右も同じ雰囲気です。静かでとても快適です。
エクセル旗の台、いかがでしたでしょうか?
内見のご予約やご質問などございましたらお気軽にお問い合わせくださいませ。
ご連絡お待ちしております。
弊社、不動産Agent 六棒株式会社では、
□リノベーションマンションはほぼ全て仲介手数料無料!
□その他一般仲介物件は仲介手数料20%~30%OFF!
にてお取り扱いしております!※弊社の「Agent Fee=仲介手数料」についてはご案内、ご面談の際に営業担当者よりご説明いたします!
なるべく沢山のお部屋をホームページに掲載したいと思っておりますが、時間的成約もございますので、残念ながらご紹介できるお部屋の一部しか掲載できておりません。
このホームページに掲載中のお部屋、その他サイト等で気になるお部屋、街を歩いていて気になったマンション等々ございましたら是非、弊社営業部までご相談ください!
~不動産Agent 六棒株式会社の特徴~
・一般仲介物件の仲介手数料は20%~30%OFFにてご案内中です!
・リノベーションマンションについてはほぼ全て仲介手数料無料です!
・住宅ローンに自信あります!
・頭金10万円より購入できます。是非ご相談下さい!
・お部屋のご見学は車で2~3件まとめて案内します!
・物件数3000件以上、新築戸建、リノベ物件も多数ご用意しております!
過去に販売していたお部屋の概要 このお部屋の販売は終了いたしました。
| 価格 | -万円 |
| 面積 | 40.63㎡ |
| 間取り | 1bedrooms(1LDK) |
| 管理費 | 月額15,000円 修繕積立金:月額8,610円 |
| 所在階 | 7階 |
| お問い合わせ・ご内見のご予約はこちらからお気軽にどうぞ | |
今回ご紹介するお部屋は、こちらのお部屋です♬
専有面積:40.63㎡の1LDK
最上階で陽当りも眺望も風通しも良好です♡

リフォーム内容は、
≪新規交換≫ユニットバス、洗面化粧台、洗濯パン、照明器具
エコカラット貼…LDK
クロス貼替…全室(壁・天井)
ハウスクリーニング
その他ご不明な点は担当者迄ご連絡を下さい。
それでは、お部屋のレポートに行ってきますε≡≡ヘ( ´Д`)ノ

白を基調とした明るい建具に、濃い色の大理石調の玄関、部屋がぼやけず「ビシッ!]としますね☆彡

大きな3枚折戸の下足入れは天井から足元までのトールタイプ!
収納力が高く、女性のブーツや傘も収納できます(*^^)v
次は水回りに突入です(´▽`*)

トイレの上部にも収納は、もちろん完備しています!

新規に交換されたユニットバスは、一日の疲れを癒す最高の空間になってくれますね☆彡

洗面所も洗濯機防水パンは、もちろん新規交換済みです!
水廻りが一新されていると、心がウキウキしませんか(笑)
次はベットルームです(”◇”)ゞ

1枚目の写真だと「あれ?窓は無いんですか?」とおもわれますが、、、
安心してください!窓はあります☆彡

収納も4枚折れ戸タイプの収納です。
白の扉とマッチして、素敵というよりは、かっこいいですよね(^_-)-☆
お待たせしました、キッチンをレポートしてみたいとおもいます◆◆◆

白を基調とした落ち着いたキッチン…
なんと、コンロの前とシンクの前に窓があります☆彡
キッチンに窓が有るのと無いのだと、まったく違ってきます!
もちろん窓はあった方がいいに気に入ってますよね☆彡



次はリビングを撮影しました!
どぉーんと大画像で確認してみて下さいね(≧◇≦)



ちょっと濃い感じで撮影してみました(笑)

リビングには、エコカラットの石貼りとなっています☆彡
高級感が1つあがりましたよね(*^▽^*)
最期にバルコニーと眺望レポートです☆


さすが7階の眺望は絶景ですよね(^。^)y-.。o○
弊社、不動産Agent 六棒株式会社では、
□リノベーションマンションはほぼ全て仲介手数料無料!
□その他一般仲介物件は仲介手数料20%~30%OFF!
にてお取り扱いしております!※弊社の「Agent Fee=仲介手数料」についてはご案内、ご面談の際に営業担当者よりご説明いたします!
なるべく沢山のお部屋をホームページに掲載したいと思っておりますが、時間的成約もございますので、残念ながらご紹介できるお部屋の一部しか掲載できておりません。
このホームページに掲載中のお部屋、その他サイト等で気になるお部屋、街を歩いていて気になったマンション等々ございましたら是非、弊社営業部までご相談ください!
~不動産Agent 六棒株式会社の特徴~
・一般仲介物件の仲介手数料は20%~30%OFFにてご案内中です!
・リノベーションマンションについてはほぼ全て仲介手数料無料です!
・住宅ローンに自信あります!
・頭金10万円より購入できます。是非ご相談下さい!
・お部屋のご見学は車で2~3件まとめて案内します!
・物件数3000件以上、新築戸建、リノベ物件も多数ご用意しております!
過去に販売していたお部屋の概要 このお部屋の販売は終了いたしました。
| 価格 | -万円 |
| 面積 | 41.08㎡ |
| 間取り | 1bedrooms (1LDK) |
| 管理費 | 月額15200円 修繕積立金:月額8710円 |
| 所在階 | 5階 |
| お問い合わせ・ご内見のご予約はこちらからお気軽にどうぞ | |
間取りのご紹介です。1LDK、41.08㎡。
南向きにつき陽当り良好なお部屋です。
玄関を入るとすぐ横にシューズBOXが設置されています。
上のカウンター部分はちょうどよいディスプレイスペース。
インテリアなどを飾ってステキな玄関を演出できますね。
インターホンはTVモニター付き。来訪者の顔も確認できて安心です。
玄関をあがると・・・
廊下などはなく 約20.3㎡のLDKになっています。
南向きの窓からサンサンと陽ざしが入る明るい空間です☀
※現在はテレビ・家具付きになっていますが、写真は設置される前の物です。
壁面にはオープンシェルフが設置されています。
本やCDを置いたり、お気に入りのインテリアや食器を置いたりと見せながらの収納が楽しめますね!
窓側からもご覧ください。 一部壁面がライム色っぽい感じになっています。
なんだか気分もあがります。
キッチンは落ち着いたグレー。正面には窓もあるので自然換気もバッチリできます。窓越しの光で手元が明るいのもうれしいですね。冷蔵庫は黄色の壁の向う側に置けるようになっています。
キッチンと反対の壁面には洗面室の扉、そこから壁をはさんで洗濯機置場が設置されています。アンティーク調の扉がオシャレです。
洗面室内はトイレ、洗面化粧台、バスルームが入っています。
白い設備に白い壁面タイルで清潔感もたっぷり。
見た目もオシャレな洗面化粧台は鏡の裏が収納になっており、ハブラシや洗顔フォームなど生活感がにじみがちな物も見えないところへ仕舞って置けるようになっています。ちなみに中も鏡です。
洗面化粧台のお隣は見た目もスッキリのタンクレストイレ。
ウォシュレット機能とダブルのペーパーホルダーが設置されています。
バスルームは追い焚き機能付き。
いつでもあたたかいお風呂に入れます。
つづいてLDKから洋室へ。
洋室は約7.1㎡。窓は東向き。朝日で自然に起きられそうな、そんなお部屋です。
南側の壁面の一部はガラスブロックになっており、こちらからも光が感じられます。
これなら日中は電気は必要ないかもしれません。
収納に枕棚付きのクローゼットが設置されています。アンティーク調の扉もかわいいです。
最後にLDK、洋室の両方から出られるバルコニーに出てみます。
約4.65㎡、南東向き。
ご覧の通り、陽当たり良好。これならお洗濯物もカラッと気持ちよく乾くハズ。
眼下に住宅街の広がるスコーンと抜けた開放感のある眺め。ハッとしてグッときます。日がくれればドラマティックに風景も一変しそう。夜景も楽しみですね☆
エクセル旗の台、いかがでしたでしょうか?
眺めがいいお部屋で暮らしてみたい方、おすすめです。お問合せは今すぐお電話03-5413-5336もしくはお問合せフォームからお気軽にどうぞ!





































































































































































































弊社 公式HP
六棒総合研究所
掲載予定物件
価格変更と販売終了物件
ハザードマップ検索
適合証明書.jp
Facebook
Twitter
Instagram