・
□□□□□□□□□□□□□□□□□□□□□□□□□□□□□□□□□□□□□□□
いつも弊社ホームページをご覧頂き誠にありがとうございます。
五反田サマリヤマンションはお陰様で販売を終了致しました。弊社問合せフォームにてご要望頂けましたら、当お部屋でキャンセル等が発生した場合、他のお部屋が販売になりました際にご紹介させて頂きます。
不動産Agent 六棒株式会社
TEL:03‐5413‐5336
□□□□□□□□□□□□□□□□□□□□□□□□□□□□□□□□□□□□□□□
・
JR山手線・都営浅草線・東急池上線「五反田」駅より徒歩5分。
リノベーションマンション『五反田サマリアマンション』のご紹介です!
JR山手線・埼京線・湘南新宿ライン・東京臨海高速鉄道「大崎」駅も徒歩8分で利用可能です。
東口を出て、右側ソニー通りを進みます。
駅ビルの「レミィ五反田」には東急ストアが入っており、JR山手線・東急池上線の出口もこちらにあります。
西口にはアトレがあり、成城石井も入ってます。
五反田駅からはひたすらまっすぐ進み、途中には、スーパーマーケット・
薬局などもあり、大変便利です。
オシャレなイタリアンレストラン「ARIETTA」を過ぎると到着です。
1階にはお弁当屋さんが入ってます。
煉瓦造りのアプローチから、エントランスを入ります。
大変きれいに管理して頂いている日勤の管理人さんにごあいさつ。
存在感のあるレッドのエレベーターでお部屋の階へ向かいます。
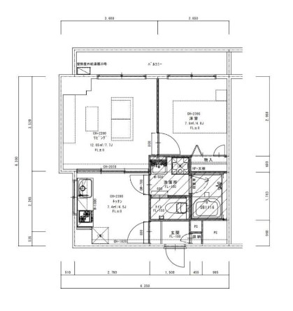
ここで間取り図のご紹介です。
※間取り図は別タブで開きますので、確認しながらご覧いただく事が出来ます。
今回ご紹介するお部屋は4階、間取りは2LDK、専有面積は55.73㎡。おひとり暮らしからファミリーまで幅広くお使いいただけるお部屋です。では…

エレベーターで4階まで上がり、外廊下を進みます。

ドア横にはテレビモニター付きインターホンが設置されていて、お部屋の中から訪問者を確認する事が出来ます。「ハイ」と返事をする前に映像でチェックすれば、嫌な思いをしてセールスを断らなくて済みますよ。

玄関ホールは木目をふんだんに使った落ち着いた雰囲気。広いという訳ではありませんが、やっぱり幅があると広々と感じますね。上り口も広くとられていて、お子様が一緒の時などはとても助かります。

人感センサーが自動的にライトを点けてくれますので、暗い中手探りでスイッチを探す必要もありません。いつでも明るい玄関のお出迎え♬ シューズボックスはロータイプ、トールタイプがそれぞれ一つづつ。収納力抜群で玄関に散らかりがちな靴を楽に収納することが出来ますよ。
・・
ホール右側のドアはトイレになっています。


洗浄便座はTOTO製のウォシュレット。手洗いボウル脇にはハンドソープなどちょっとした物が置けるようになっています。

カウンターと吊戸棚が付いています。吊戸棚はトイレットペーパーなどのストックに便利。低めに設置されているところに優しさを感じますね。

では、次は正面のドアを…

こちらは約12.9帖のリビング・ダイニング・キッチン。
南向きバルコニーに面した明るいお部屋です。正方形がずれてくっついたような真ん中がくびれた形。広々感はありませんが、奥がリビング、手前がダイニングとレイアウトはしやすそうですね。


キッチンは壁付けタイプ。場所をとらずに部屋を広く使うことが出来ます。ただし、キッチン内が目立つので出来るだけ綺麗にしておきましょうね^^;)

引き出しタイプのスライドキャビネットは出し入れがし易く、たくさん詰めても収納物の確認がしやすい優れもの。逆に吊戸棚は出し入れに難があり、あまり使わないものを入れておくのが良さそうです。イメージだとカセットコンロとか土鍋とかでしょうか(^-^;

調理台左には冷蔵庫スペース、右後ろには家電ラックやカップボードの置けるスペースがあります。個室になっているので冷蔵庫はサイズに注意しましょう。意外に奥行が盲点ですよ。

みんなの憧れ食洗機!!これからの乾燥の季節、食器洗いは手に厳しいですからね。やりたくない家事の常連は伊達ではありません(^-^;)食後をみんなでのんびり過ごせるのも最高です♬ 独立した浄水器水栓付。


コンロは3口グリル付き。タイマーや温度設定が可能な高機能タイプです。IHだけかと思ったらガスコンロでもこんな事が出来るようになっていたんですね。これ我が家でも欲しいです(^^)

では、隣のお部屋へ…

こちらは約5.2帖の洋室。
LDKと同じ南向きバルコニーに面したお部屋です。引き戸を使用しているのでデッドスペースなどを考える必要がなく、無駄なくスペースを使えますよ。シンプルな色使いで家具やカーテンなども幅広くチョイス出来そう。

収納はウォークインクローゼット!!
L字型にハンガーポールが付いた広い収納です。チェストや衣装ケースなどで足元を有効に使えば、さらに収納力UP↑↑↑

次のお部屋へ…

こちらは約5.1帖の洋室。
北向きの窓のあるお部屋です。北向きって暗いイメージがあるかもしれませんが、実はそんなこともないんですよ。窓の外は外廊下。

ウォークインではありませんが出し入れしやすそうなクローゼット付き。

左側の扉を開けると…

こちらは約1.9帖のDEN!
デスクが造り付けられ、書斎やホビールームとして使えるお部屋です。在宅ワークなどにも便利そうですね。もうひとつある扉を開けると直接LDKに出ることも出来るので、物置としての使い勝手も良さそうです。

次は洗面室へ…
洗面室には洗面台の他に、洗濯機スペース、浴室がまとまっていて、脱衣所も兼ねています。入浴中にお洗濯をすれば効率的ですね。

後ろのチェックに便利な三面鏡付きの洗面台。上部の照明のおかげで、影になる事もありません。やはり白は清潔感があっていいですね。

水洗はハンドシャワータイプ。ヘッドが引き出せてボウルの掃除も楽々です。鏡の裏や洗面台下にキャビネットがあって収納も豊富。洗面周りの細々したものをまるっと収納しておけますよ。

浴室は、ブラウンの木目パネルをアクセントにした落ち着いた雰囲気。

シャワーヘッドホルダーはスライドタイプ。追い焚き機能付きユニットバスは「自動」ボタンひとつでお風呂を沸かすことが出来ます。ご家族でお風呂の時間が揃わなくても、保温や温め直しをしてくれるのでいつでも温かいお風呂に入れますよ。

足を伸ばして浸かれる広々浴槽♪

浴室換気乾燥機は浴室の換気の他に、雨天や花粉の季節のお洗濯物乾燥、寒い季節の浴室暖房など様々な使い方があります。暑い季節には「涼風」ボタンを使って快適なバスタイムを。残念ながら冷房ではありませんが、火照った顔に風が心地良く、目をつぶれば露天風呂気分を味わえます(*^^*)

それでは最後にバルコニーへ…
約5.2帖の洋室、LDKのどちらの窓からでも出られます。

広さは7.2㎡、南向き。二部屋分の幅があるバルコニーです。ご覧の通り陽当たりは良好、お洗濯物も気持ちよく乾きそうですね。天井には物干し金具が付いていますので竿だけご用意ください。

正面奥に見えるのは品川区立日野学園。高いビルが多いのにちょうど正面だけ開けていて、なんか気持ち良くないですか?
・
以上で五反田サマリヤマンションのご案内を終わります。
いかがでしたでしょうか??
五反田駅から徒歩5分のマンションです。
リノベーション済みという事で室内はとてもキレイですよ (っ・ω・)っ
内見のご予約やご質問などございましたらお気軽にお問い合わせくださいませ。
ご連絡お待ちしております。
弊社、不動産Agent 六棒株式会社では、
□リノベーションマンションはほぼ全て仲介手数料無料!
□その他一般仲介物件は仲介手数料20%~30%OFF!
にてお取り扱いしております!※弊社の「Agent Fee=仲介手数料」についてはご案内、ご面談の際に営業担当者よりご説明いたします!
なるべく沢山のお部屋をホームページに掲載したいと思っておりますが、時間的成約もございますので、残念ながらご紹介できるお部屋の一部しか掲載できておりません。
このホームページに掲載中のお部屋、その他サイト等で気になるお部屋、街を歩いていて気になったマンション等々ございましたら是非、弊社営業部までご相談ください!
~不動産Agent 六棒株式会社の特徴~
・一般仲介物件の仲介手数料は20%~30%OFFにてご案内中です!
・リノベーションマンションについてはほぼ全て仲介手数料無料です!
・住宅ローンに自信あります!
・頭金10万円より購入できます。是非ご相談下さい!
・お部屋のご見学は車で2~3件まとめて案内します!
・物件数3000件以上、新築戸建、リノベ物件も多数ご用意しております!
過去に販売していたお部屋の概要 このお部屋の販売は終了いたしました。
| 価格 | -万円 |
| 面積 | 39.20㎡ |
| 間取り | 1bedrooms(1LDK) |
| 管理費 | 月額:13,720円 修繕積立金:13,720円 |
| 所在階 | 2階 |
| お問い合わせ・ご内見のご予約はこちらからお気軽にどうぞ | |
ここで間取り図のご紹介です。
※間取り図は別タブで開きますので、確認しながらご覧頂くことが出来ます。
今回ご紹介するお部屋は2階、間取りは1LDK、専有面積は39.20㎡。お一人暮らしの方にお勧めのお部屋です。では、早速行ってみましょう。
エレベーターで2階まで上がり、吹き抜けを囲むようになった外廊下を進むとお部屋に到着です。
玄関ドア横にはモニター付きインターホンが設置されていて、お部屋の中から訪問者を確認する事が出来ます。応対するかを映像を見てから決められるのはいいですよね。ドアスコープもありますが、なんか苦手です^^;)
お部屋へのドアは玄関から横向きになっていて、宅配便やフードデリバリーなどの受け取り時に戸口からお部屋の中がみえづらくなっています。昔に比べると使用頻度も増えているので、これは嬉しいですね。玄関ホールや廊下は無く、すぐ扉になっています。
玄関正面のカウンターではインテリアを楽しむ事が出来ます。「玄関は家の顏」って言いますからセンスアップのチャンス!くれぐれも物置にならない様に気を付けましょう(笑)シューズボックスはトールタイプ。収納力は抜群、ブーツなどでもそのまま収納可能ですよ。
では、お部屋の中へ…
こちらは約4.5帖のダイニングキッチンと約7.7帖のリビング。仕切りの扉を開けてひとつのお部屋にした様子です。キッチンにも窓はありますが、バルコニーに面した窓が明るいので日中は開けておきたいですね。
リビング側から…
こちら側からだとキッチンが見えません。生活感のあるキッチンですが、これなら開けておいても問題ありませんね。ナチュラルテイストのお部屋は色使いがシンプルで、幅広い家具を合わせる事が出来そうです。
閉めた様子。扉に入ったスリットがいい感じにアクセントになっています。では、キッチンを詳しく見ていきましょう。
キッチンは壁付けタイプ。省スペースでお部屋を広く使う事が出来ます。統一感のある木目のパネルを使用していて、お部屋によく馴染んでいますね。
収納は調理台下のスライドキャビネットと吊り扉。引き出しタイプは出し入れがしやすく、大きな鍋でも楽に収納出来ますよ。
コンロは3口、グリルも付いています。グリルって魚のイメージが強いですが、肉や野菜、何を焼いても美味しく調理できるんですよ。レシピの中にはトンカツや唐揚げなんかもありますので、ご興味のある方は是非調べてみて下さい。
キッチンの窓の外は隣のビルの壁になっていました。眺望はありませんが光や風は入って来ますのでご心配なく。ただし、調理中の換気は窓だけに任せずに換気扇を使いましょう!
次は隣のお部屋へ…
こちらは約4.8帖の洋室。リビングと同じバルコニーに面したお部屋です。ベッドルームになると思いますが、大きめのベッドでも入る広さがありますよ。
収納は間口が広くて使いやすそうなクローゼット。奥行きもあってキャリーバッグやスーツケースなどの嵩張る物も収納可能です。
次は洗面室へ…
少し段差がありますので足元にお気を付け下さい。
洗面室には洗面台の他に、洗濯機スペース、浴室、トイレがまとまっていて、脱衣所も兼ねています。お風呂に入る時にすぐ洗濯出来れば効率的ですよね。
洗面台の収納は鏡の裏のキャビネットと洗面台下になります。キャビネットは細々した物が多くなりがちな洗面廻りにはぴったりの収納です。
水栓はハンドシャワータイプ。ヘッドが伸びて洗面ボウルを流したりに便利ですよ。
トイレは洗浄便座付き。棚などはありませんので、トイレットペーパーなどのストック用に、ご自身でつっぱり棚などを付けると良いかもしれませんね。
浴室はダークブラウンのアクセントパネルを使用した落ち着いた雰囲気。リラックスしたバスタイムを過ごせそう♬
追い焚き機能付きユニットバスは「自動」ボタンひとつでお風呂を沸かせます。保温もしてくれるのでいつでも温かいお風呂に入れますよ。また、スマホに夢中で長風呂しても風邪ひく心配もありません(笑)
浴室換気乾燥は浴室乾燥の他に、寒い季節の浴室暖房、雨天や花粉の季節のお洗濯物乾燥など様々な使い方があります。「涼風」ボタンは暑い季節に活躍してくれそう。残念ながら冷房ではありませんが、お風呂で濡れた体には充分涼しいと思いますよ。涼しい風に吹かれながらゆっくり浴槽に浸かれば、暑さに疲れた体もシャキッと回復しそうです♬
それでは、最後はバルコニーのご紹介。
リビング、洋室どちらの窓からでも出られます。窓は防音性、遮熱性、防犯性が高い二重サッシになっていました。
広さは6.36㎡、北向き。二部屋にまたがる広々としたバルコニーです。物干し金具も付いていて、お洗濯物も干せるようになっていますよ。
前はビルが並んでいますが、道幅があるので意外に開放的な眺めになっています。2階くらいだと街路樹が身近に感じられていいものですね♬
・
以上で五反田サマリヤマンションのご案内を終わります。
いかがでしたでしょうか??
五反田駅から徒歩5分のマンションです。
リノベーション済みという事で室内はとてもキレイですよ (っ・ω・)っ
内見のご予約やご質問などございましたらお気軽にお問い合わせくださいませ。
ご連絡お待ちしております。
弊社、不動産Agent 六棒株式会社では、
□リノベーションマンションはほぼ全て仲介手数料無料!
□その他一般仲介物件は仲介手数料20%~30%OFF!
にてお取り扱いしております!※弊社の「Agent Fee=仲介手数料」についてはご案内、ご面談の際に営業担当者よりご説明いたします!
なるべく沢山のお部屋をホームページに掲載したいと思っておりますが、時間的成約もございますので、残念ながらご紹介できるお部屋の一部しか掲載できておりません。
このホームページに掲載中のお部屋、その他サイト等で気になるお部屋、街を歩いていて気になったマンション等々ございましたら是非、弊社営業部までご相談ください!
~不動産Agent 六棒株式会社の特徴~
・一般仲介物件の仲介手数料は20%~30%OFFにてご案内中です!
・リノベーションマンションについてはほぼ全て仲介手数料無料です!
・住宅ローンに自信あります!
・頭金10万円より購入できます。是非ご相談下さい!
・お部屋のご見学は車で2~3件まとめて案内します!
・物件数3000件以上、新築戸建、リノベ物件も多数ご用意しております!
過去に販売していたお部屋の概要 このお部屋の販売は終了いたしました。
| 価格 | -万円 |
| 面積 | 48.45㎡ |
| 間取り | 2bedrooms(2LDK) |
| 管理費 | 月額:16,960円 修繕積立金:16,960円 |
| 所在階 | 10F |
| お問い合わせ・ご内見のご予約はこちらからお気軽にどうぞ | |
間取り図はこちら。
南向きの2LDK 48.45㎡
オートロックはありませんが、インターホンはモニター付きで安心。
木のぬくもりを感じる落ち着いた色合いの内装色。
右側にはトールサイズのシューズBOX、間接照明が足元を照らします。
左側にはインテリアのディスプレイがおけそうなカウンター。
こちらも間接照明でディスプレイも一際目をひきそうです。
玄関を上がり、すぐ左側にサニタリールーム。
大きな鏡の洗面台がうれしいですね!
浴槽もゆったり広々。もちろん追炊き・浴室乾燥機アリです!
こちらは玄関ホールすぐ右側、4.5帖のベッドルーム。
南向きのリビングダイニングは8.7帖。
明るい室内をダウンライトとライディングレールにはスポットライトでさらに明るく!
空気をきれいにしてくれるエコカラットでちょっとしたアクセント!
使いやすいキッチンカウンター。キッチン設備も3口ガスコンロ・浄水器内臓水栓等充実しています。
カウンター下と横には収納庫・食器棚など置けそうなスペースもあります。
こちらも南向きの6.2帖のベッドルーム。
クローゼットはゆったりサイズ。パイプハンガーが2重なのがうれしいですね!
リビングとベッドルームをつなぐ南向きのバルコニー。
最上階のバルコニーからは、青空にまっすぐ伸びる五反田のビル群。
向かいに中学校があり、正面は抜けた眺望です。
大切なペットと一緒に暮らせます。(規約有)
皆様のご内見、心よりお待ちしております!


























































































弊社 公式HP
六棒総合研究所
掲載予定物件
価格変更と販売終了物件
ハザードマップ検索
適合証明書.jp
Facebook
Twitter
Instagram