□□□□□□□□□□□□□□□□□□□□□□□□□□□□□□□□□□□□□□□
いつも弊社ホームページをご覧頂き誠にありがとうございます。
ハマイハイライズはお陰様で販売を終了致しました。弊社問合せフォームにてご要望頂けましたら、当お部屋でキャンセル等が発生した場合、他のお部屋が販売になりました際にご紹介させて頂きます。
弊社では、仲介手数料無料orお値引(50%off、30%off、20%off)にて皆様のマイホーム探しのお手伝いをさせて頂きいております。ハマイハイライズの類似物件や、お探しのご条件等をお聞かせ頂けましたらご条件に合ったお部屋をご紹介させて頂きます。また、ご来社頂き一緒に探させて頂くことも可能ですので、是非弊社問合せフォームよりお気軽にお問合せください。
不動産Agent 六棒株式会社
TEL:03‐5413‐5336
□□□□□□□□□□□□□□□□□□□□□□□□□□□□□□□□□□□□□□□
アクセス
東急目黒線「不動前」駅徒歩6分
東急池上線「大崎広小路」駅徒歩8分
JR山手線、東急池上線、都営浅草線「五反田」駅徒歩8分
各所へのアクセスも良好です。
不動前駅の改札を出ると横はパン屋さん。商店街もあり、本屋さんからスーパー、飲食店などお店が並んでおりお買い物も便利。
マンションまでは、改札を出るとすぐにマクドナルドのある通りが見えるので 、ここを道なりに歩いていきます。
途中にマルエツプチやコンビニもあります。何かと利用する機会も多そう。氷川神社があったので立ち寄って参拝。ここまで来たらマンションまであと少し。道を1本折れて少し歩けば到着します。
首都高が走っている大通りにでました。首都高沿いを歩いていくと五反田TOCもすぐ。飲食店やユニクロ、ABCマートのアウトレット店などが入っています。五反田駅も徒歩圏なので日常のお買い物場所に困ることはなさそうです。
ハマイハイライズは昭和49年築、8階建て、総世帯数42戸。
2007年8月に大規模修繕工事実施済み、2012年7月にはエレベータ―改修工事実施済みと管理も行き届いています。
1階に会社が入っているのでエントランスは2か所。(違う面にあります。)
こちらがマンションのエントランス。
エントランスには管理人室も隣接しています。
手入れも行き届いている印象です。
ここからは営業部:大島がご案内致します!!
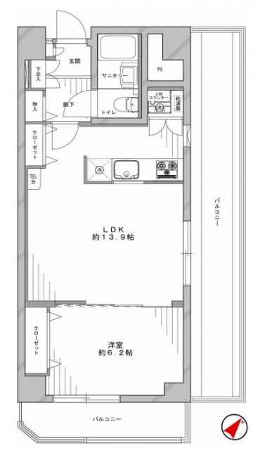
こちらが今回ご紹介させて頂くお部屋の間取りです。
1LDK、54.08㎡。3階。です!
当物件のリノベーション内容をご紹介いたします!
・システムキッチン新規交換 ・ユニットバス新規交換
・建具新規交換 ・建具新規交換
・クロス全室貼り替え ・フローリング全室貼り替え
・ウォシュレット一体型トイレ新規交換
・照明器具設置 ・洗濯パン、水栓新規交換
・洗面化粧台新規交換 ・ルームクリーニング 他
エレベーターでお部屋のあるフロアへと上がってきました。
廊下は内廊下になっています。
雨や風の影響をうけない内廊下は人気があります。
静かな雰囲気の廊下を進んでいきますよ!!
お部屋の前まで来ました。
玄関先にはモニター付きのインターフォンが付いています。
お部屋の中から廊下の様子を確認することが出来るので防犯的にも安心ですね。
それでは中へ入っていきましょう。
玄関にシューズボックスは付いていませんが、左手に可動棚が付いてるので、履物はこちらに置くことが出来そうです。
スペースに余裕があるので、別途シューズラック等を設置することもできそうです。
ひとまず、廊下を奥まで進んでいきましょう。
突きあたりのドアを開けるとリビング・ダイニング・キッチンです。
照明には埋め込み式のダウンライトが使用されているので、天井に無駄な凹凸が出来ず、空間を広く感じることができます。
家具が置いてあると、実際に使用する際のイメージが付きやすいですよね!
お引渡しの前に撤去いたしますので、お好きな家具を探し出してください!!
次はキッチンです。

入口には収納スペースが設置されています。
後でも出てきますが、収納はたっぷりと用意されたキッチンですよ!
壁に囲まれたクローズドキッチンになっていますね。
クローズドキッチンは、対面型のキッチンとは逆でコミュニケーションはとりづらくなるものの、キッチンが散らかっていてもある程度隠しやすく、クッキングスペースをまとめることができることが特徴です。お料理に集中しやすいため、料理が好きな方は壁付キッチンを好む方も多いですよ!
浄水器機能付きの水栓はシャワーヘッドになっています。シンクの隅々まで水を流すことが出来るので洗い物やお掃除もラクラクです!
他にも3口のグリル付きガスコンロや食器洗浄機も付いています。
食器洗浄機があると面倒な洗い物もボタン一つで乾燥までしてくれますよ!高温のお湯で洗うことが出来るので、思っている以上に綺麗になりますよ!
足もとの収納は引き出しタイプです。
奥まで無駄なく使う事が出来るので、見た目以上の収納力を誇ります。
上から出し入れすることが出来るので、腰への負担も幾分かマシですよ。
それでは廊下へ戻って他の場所を見ていきましょう!
先ずはこちら。
こちらはサービスルームですね。
「洋室」というには窓が無かったりちょっと狭かったりで、サービスルームと呼ばせて頂いています。
もちろん寝室としてお使い頂いても良いですよ!
大きなクローゼットも付いています。
ハンガーポールがコの字に付いているので、お洋服も大量に掛けることが出来そうです。
時間のかかる面倒な衣替えもあっという間に終りそうですね!
廊下を挟んでサービスルームの反対側には・・・
こちらは洗面室ですね!
洗濯機置場にホースが付いていますが、気にしないでください!
大きな三面鏡の付いた洗面化粧台が付いています。
ミラーの内部は収納スペースになっているので、歯ブラシや基礎化粧品などの小物はこちらに入れておきましょう。
水栓はビルドインタイプのシャワーヘッドになっています。通常の水栓と違って根元に汚れが溜まったりしないので、お掃除も楽ですよ!
お隣には・・・
トイレです。
TOTOのウォシュレット機能付きのトイレです。
トイレ・洗面器といった衛生陶器部門で、全体シェアの約6割を握っているトイレ業界のトップに位置する会社がTOTOです。
テレビでCMも毎日見ますし、もはや説明不要ですよね!!?
トイレの反対側は。
こちらはお風呂です。
浴室には換気乾燥機能が付いているので、入浴後は湿気を取り除いておきましょう。
カビは劣化を早める原因にもなるので、できれば24時間スイッチを入れておきたいですね。
浴室の端から端まである大きなミラーは空間を実寸以上に広く見せてくれる効果があります。
大きな分、お手入れがちょっと大変だったりするのですが、最近の流行でもあるので!!
追い焚き機能があればいつでも熱いお風呂に入ることができますね。
お仕事で帰りが遅くなっても、タップリのお湯に肩まで浸かれば次の日も頑張れそうな気がしてきますよ!!
リビングに戻って最後のお部屋です。
バルコニーに面した洋室です。
クローゼットが付いているので、お部屋の中に収納家具を置く必要もなさそうです。
空間を広く使う事が出来るのは嬉しいですね!
それでは最後にバルコニーです。
2部屋分の幅があるワイドバルコニーです。
南東向きではありますが、目の前に背の高い建物が建っているので、陽当たりはチョット何ともな感じかもしれません。
この日は天気が良くなかったので、また陽当たりのチェックに来たいと思います。。。
マンションの駐車場が間にあるので圧迫感はありませんよ。
では、以上でハマイハイライズのご案内を終わります。
いかがでしたでしょうか??
五反田駅から徒歩10分のマンションです。
リノベーション済みという事で室内はとてもキレイですよ (っ・ω・)っ
内見のご予約やご質問などございましたらお気軽にお問い合わせくださいませ。
ご連絡お待ちしております。
弊社、不動産Agent 六棒株式会社では、
□リノベーションマンションはほぼ全て仲介手数料無料!
□その他一般仲介物件は仲介手数料20%~30%OFF!
にてお取り扱いしております!※弊社の「Agent Fee=仲介手数料」についてはご案内、ご面談の際に営業担当者よりご説明いたします!
なるべく沢山のお部屋をホームページに掲載したいと思っておりますが、時間的成約もございますので、残念ながらご紹介できるお部屋の一部しか掲載できておりません。
このホームページに掲載中のお部屋、その他サイト等で気になるお部屋、街を歩いていて気になったマンション等々ございましたら是非、弊社営業部までご相談ください!
~不動産Agent 六棒株式会社の特徴~
・一般仲介物件の仲介手数料は20%~30%OFFにてご案内中です!
・リノベーションマンションについてはほぼ全て仲介手数料無料です!
・住宅ローンに自信あります!
・頭金10万円より購入できます。是非ご相談下さい!
・お部屋のご見学は車で2~3件まとめて案内します!
・物件数3000件以上、新築戸建、リノベ物件も多数ご用意しております!
過去に販売していたお部屋の概要 このお部屋の販売は終了いたしました。
| 価格 | -万円 |
| 面積 | 45.48㎡ |
| 間取り | 1bedroom(1LDK) |
| 管理費 | 月額5,470円 修繕積立金:月額6,110円 |
| 所在階 | 4階 |
| お問い合わせ・ご内見のご予約はこちらからお気軽にどうぞ | |
間取りのご紹介です。1LDK、45.48㎡。
東南角部屋、2面採光・2面バルコニーの陽当たりにも恵まれたお部屋です。
1人OR2人暮らしの方にオススメです。
<充実のリノベーション内容>
■玄関・・・玄関収納、人感センサー
■キッチン・・・パナソニック製システムキッチン
■在来浴室(3点)・・・天井、壁パネル、床タイル、浴槽、LIXIL製洗面カウンター、LIXIL製シャワートイレ
■床・・・パナソニック製フローリング(廊下、洋室、DK)フロアタイル(玄関、洗面、トイレ)
■建具・・・パナソニック製内装ドア
■共通・・・給水・給湯管新規(専有部)給湯器(給湯専用)、分電盤、LEDダウンライト、シーリングライト、スイッチパネル、TVモニターインターホン、全クロス張替え、ハウスクリーニング、etc・・・
玄関を入ると右側にシューズBOXと収納スペースが並びます。
玄関照明は人感センサー。
玄関ホールの収納スペースは可動棚で背の高いものや、日用品の収納にも重宝します。
こちらはサニタリールーム
トイレ・洗面台・バスと一緒のスペースに並んでいますが、ホテルライクなサニタリールームです。
そしてこちらは13.9帖のLDK。
水回りをコンパクトにした分、居住空間を広く使えるのが嬉しいですね!
柱の出っ張りがなくスッキリとしています。
各所に設置された間接照明がオシャレですね!
リビングにもクローゼットがあり、収納力は十分!
TEL台もあり、オブジェのディスプレイにも良さそうです。
TVモニターインターホンもこちらに設置してあります。
キッチンは独立タイプ。小窓があるので、お料理などはこちらから。
熱や匂いが篭もりやすい独立キッチンですが、窓があるので換気もばっちり!
キッチンスペースに洗濯機置き場があり家事動線に配慮しています。
こちらは6.2帖のベッドルーム。
引き戸を開ければ、更に大きなお部屋としてもお使いになれます。
ホテルライクなデザインの新規リノベーション住戸『ハマイハイライズ』いかがでしたでしょうか。
大切なペットも一緒に暮らせます。(飼育細則有)
皆様のご内見、心よりお待ちしております!












































































