・
□□□□□□□□□□□□□□□□□□□□□□□□□□□□□□□□□□□□□□□
いつも弊社ホームページをご覧頂き誠にありがとうございます。
池田山ロイヤルマンションはお陰様で販売を終了致しました。弊社問合せフォームにてご要望頂けましたら、当お部屋でキャンセル等が発生した場合、他のお部屋が販売になりました際にご紹介させて頂きます。
不動産Agent 六棒株式会社
TEL:03‐5413‐5336
□□□□□□□□□□□□□□□□□□□□□□□□□□□□□□□□□□□□□□□
・
今回ご紹介するのは、JR山手線他『五反田』駅から徒歩8分、『池田山ロイヤルマンション』です♪♪ステキな眺望のお部屋ですよ~(´∀`●)
アクセス
JR山手線・東急池上線・都営浅草線 『五反田』駅 徒歩8分
JR山手線・東急目黒線 『目黒』駅 徒歩12分
東京メトロ南北線・都営三田線『白金台』駅 徒歩12分
五反田といえば、オフィス街・繁華街といった印象が強い街。駅周辺には大規模商業施設や飲食店が軒を連ねます☆しかし一方、武家屋敷跡の邸宅街・参議院公邸・外国大使館などもあり、閑静なエリアといった一面も(*´▽`)駅の南側には、目黒川が流れています。目黒川は桜の名所なので、春になると川が桜の花びらでピンク色に染まります♪♪
五反田駅には、直結のショッピングセンターが2つあります!!『アトレヴィ五反田』&『レミィ五反田』(●´∀`)スーパーも入っていますので、こちらの2つのショッピングセンターでお買い物は充実です♪♪

マンション南側の最寄駅は五反田駅ですが、西側の最寄り駅は、『目黒』駅。徒歩約12分でバッチリ徒歩圏内♫駅周辺には沢山の商業施設と飲食店が立ち並びとてもにぎやかです。駅直結の商業施設「アトレ」には、飲食店から雑貨屋さん、衣料品店、成城石井まで入っていますよ♪♪北側にも『白金台』駅とアクセスの良い環境です(o´∀`ノ

マンション北側には『東京都庭園美術館』と面積が6万坪ある緑豊かな『自然教育園』♪♪都会の中でも四季折々の自然を観察できます。公共施設も揃っていて◎な住環境です♫

日常品のお買い物環境ですが、五反田駅と目黒駅の周辺にはスーパーマーケットやドラッグストアなどが揃っていますのでバッチリです。駅近くで帰りがけのお買い物も安心です(*´˘`*)♡わたくし的にはマンション北側の目黒通りにあります『いなげや』さんが一番行きやすいのかなと思います♫上の工事中の建物の写真ですが、目黒通りに『ドン.キホーテ』が建設中!近くにあると便利です♫
こちらは緑豊かな癒しの場『池田山公園』。
池を中心とした回遊式庭園は高低差のある起伏に富んだ造りになっています。元々は江戸時代の岡山城主・池田氏の下屋敷の奥庭部分にあたるそう♪♪雪吊もされていてステキな公園です(´∀`●)
そして奥に見える白い建物が今回ご紹介させていただくマンション『池田山ロイヤルマンション』です(●’∀’●)ノこれは眺望に期待大です!
それでは正面から♪♪こちらが今回ご紹介させていただく『池田山ロイヤルマンション』です♪♪昭和44年築、地上5階建て、総世帯数30戸のマンション☆傾斜地に建てられているマンションです。
こちらがマンションのエントランス。建物にエントランスは3か所です。
エントランスを入ると階段です。エントランス入った部分は3Fと4Fの中間地点。
ここで間取り図のご紹介です。
※間取り図は別タブで開きますので、確認しながらご覧いただくことが出来ます。
今回ご紹介するお部屋はB2階、専有面積66.12㎡の2LDK。地下2階というとびっくりされるかもしれませんが、池田山公園側から見ると2階にあたる高さなのでご心配なく。収納豊富なファミリータイプのお部屋です。
では、早速行ってみましょう!
玄関を入ると、廊下というよりホールと呼んだ方がしっくりくるスペースになっています。玄関照明には人感センサーが付けられ、自動的にライトを点けてくれるので暗い中スイッチを探す必要もありません。両手が塞がっている時などほんと有難いですよね。シューズボックスは収納力のあるトールタイプ。可動式の棚を調節すればヒールやブーツなどでもそのまま収納出来ますよ。
こちらは約16.8帖のリビング・ダイニング・キッチン。
窓から池田山公園の緑を望めるワイドスパンのお部屋です。右の窓部分をオプションで間仕切り出来るそうですが、この解放感を考えたら絶対もったいないですよね。窓には防音性、断熱性、防犯性を高めるインナーサッシが付いていますが、防音の必要はあまりなさそうです。
白のクロスと木の温もりを感じられるフローリングを合わせたナチュラルテイストの内装は、シンプルな色使いで家具やカーテンなどを幅広く選ぶことが出来そうですね。くすみグレーのアクセントもインテリアの邪魔になりません。こちらのお部屋にはバルコニーがないため、室内干し用の着脱式物干し金具が付いています。エアコンを使う時には乾燥も抑えられて一石二鳥ですよ。
キッチンはカウンタータイプ。開放的で、お料理中でもリビングダイニングとコミュニケーションをとりやすいのが特徴です。白を基調にしたシステムキッチンはお部屋との統一感もバッチリ。洗い物は食器洗浄乾燥機にお任せして、食後はみんなでのんびりしちゃいましょう♬
ホールへ戻って、こちらは約7.1帖の洋室。
南西向きの窓のあるお部屋です。眺望はありませんが光が入ってきて意外と明るいですよ。収納はウォークインクローゼット!!!洋室としては余裕がある大きさですし収納家具の必要もなさそうなので、ベッドも少し大きなサイズにしてはいかがですか?
こちらは約4.9帖の洋室。
収納はオープンスタイルのクローゼット。風通しが良く湿気や臭いがこもったりしませんし、奥まっていて見えないのもいいですね。
トイレはTOTO製の洗浄機能付き。トイレットペーパーや掃除道具を入れておくのに便利な吊戸棚も付いています。
洗面室には洗面化粧台の他に浴室とリネン棚がまとまっていて、脱衣所も兼ねています。洗面化粧台は三面鏡付き。裏がキャビネットになっているので洗面周りの細々とした物もすっきり収納可能です。ミドルミラーは小さなお子様でも使いやすく、歯磨きの習慣付けにも役立つそうですよ。
浴室は木目のアクセントを使った落ち着いた雰囲気。リラックスしたいバスタイムにはピッタリですね。追い焚き機能付きのユニットバスは、ボタン一つでお風呂を沸かしそのまま保温もしてくれるので、いつでも温かいお風呂に入れますよ。浴室換気乾燥機付き。
それでは最後にLDKの窓からの眺望をご紹介!
ここは別荘地ですか?と勘違いしそうな緑豊かな眺めです。都心でも緑が見えるお部屋はたくさんありますが、ここまで緑に包まれた感じはなかなかないと思いますよ!
・
以上で池田山ロイヤルマンションのご案内を終わります。
いかがでしたでしょうか??
五反田駅から徒歩8分のマンションです。
リノベーション済みという事で室内はとてもキレイですよ (っ・ω・)っ
内見のご予約やご質問などございましたらお気軽にお問い合わせくださいませ。
ご連絡お待ちしております。
弊社、不動産Agent 六棒株式会社では、
□リノベーションマンションはほぼ全て仲介手数料無料!
□その他一般仲介物件は仲介手数料20%~30%OFF!
にてお取り扱いしております!※弊社の「Agent Fee=仲介手数料」についてはご案内、ご面談の際に営業担当者よりご説明いたします!
なるべく沢山のお部屋をホームページに掲載したいと思っておりますが、時間的成約もございますので、残念ながらご紹介できるお部屋の一部しか掲載できておりません。
このホームページに掲載中のお部屋、その他サイト等で気になるお部屋、街を歩いていて気になったマンション等々ございましたら是非、弊社営業部までご相談ください!
~不動産Agent 六棒株式会社の特徴~
・一般仲介物件の仲介手数料は20%~30%OFFにてご案内中です!
・リノベーションマンションについてはほぼ全て仲介手数料無料です!
・住宅ローンに自信あります!
・頭金10万円より購入できます。是非ご相談下さい!
・お部屋のご見学は車で2~3件まとめて案内します!
・物件数3000件以上、新築戸建、リノベ物件も多数ご用意しております!
過去に販売していたお部屋の概要 こちらのお部屋の販売は終了いたしました
| 価格 | -万円 |
| 面積 | 66.12㎡ |
| 間取り | 2bedrooms(2LDK) |
| 管理費 | 月額10,000円 修繕積立金:月額25,000円 |
| 所在階 | B1階 |
| お問い合わせ・ご内見のご予約はこちらからお気軽にどうぞ | |
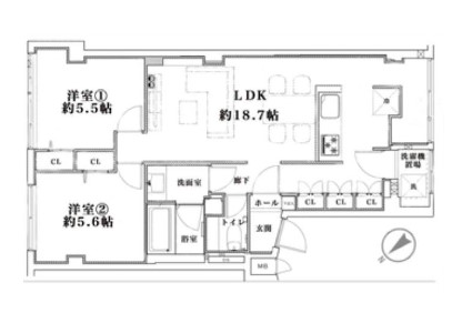
ここで間取り図のご紹介です。
※間取り図は別タブで開きますので、確認しながらご覧頂くことが出来ます。
今回ご紹介するお部屋はB1階(公園側から見れば3階部分)、間取りは2LDK、専有面積は66.12㎡。広々リビングのファミリータイプのお部屋です。では、早速行ってみましょう!
エントランスは3階と4階の間なので、階段を半階分降ります。
玄関ドア横にはモニター付きインターホンが設置されていて、お部屋の中から訪問者を確認する事が出来ます。返事をする前に映像でチェック出来るのは嬉しいですね。
玄関ホールはコンパクト。お部屋へのドアは横向きについているので、宅配便やフードデリバリーなどを受取る時にお部屋の中が見えてしまうなんて事もありません。
ダブルロックが破りづらいのはもちろんですが、それ以前に、侵入に時間がかかるのを嫌う空き巣などに狙われづらくする効果が大きいそうです。ダミーのロックを付けているお宅を見た事もありますよ。
人感センサーが自動的にライトを点けてくれるので、もう暗い中スイッチを探す必要もありません。いつでも明るい玄関が迎えてくれるのも嬉しいですよね(^^)シューズボックスはトールタイプ。棚を調節すればブーツなどでも収納可能です。
では、お部屋の方へ…
こちらは約18.7帖のリビング・ダイニング・キッチンです。木目を生かしたフローリングと白のクロスのナチュラルな雰囲気、縦長でレイアウトしやすそうなお部屋です。リビング部分にはレンガ風のアクセントとニッチカウンターでゾーンニング。色を増やさない控えめなアクセントが上品な感じですね。
キッチンは人気のカウンタータイプ。リビングダイニングとのコミュニケーションが取りやすく、ご家族との会話も弾みそう♬
玄関ホールから入った所です。正面のLDKの横にはこんな通路がありましたので、今度はこちらを進みます。
通路右側にずらりと並んだ3つの扉は、全て収納棚になっていました。かなりの収納力!棚は可動式なので、掃除機などの背の高い物も入れる事が出来そうです。
通路正面のドアは洗濯機スペース。大きな窓付きですので湿気が籠る事もありませんね。
左に曲がるとキッチンに出ます。買い物をして帰ったらこちらが近道なんですね(^^)
調理台下にはスライドキャビネットと食器洗浄乾燥機。スライドタイプは出し入れがしやすく、大きな鍋などでも楽々と入れる事が出来ます。食洗機憧れますよね!洗い物をお任せすれば、食後の時間をみんなでのんびり過ごせそう♬
水栓は浄水機能付きシャワー水栓。切り替えるだけで気軽に美味しいお水を使えます。ヘッドが伸びるので、シンクを流したりにも便利ですよ。
コンロは3口、グリルも付いて調理器具も充実。グリルって魚のイメージが強いですが、何を焼いても美味しくなる優れものなんですよ(^^)レシピもネット上にたくさん上がってますので、ご興味のある方は是非一度調べてみて下さい。
オープンキッチンですから調理中は換気扇をお忘れなく!少し前から回しておくと効果的らしいですよ。調理台後方には、冷蔵庫や家電ラックが置けるスぺ―スも確保されていました。
キッチンの奥には謎のスペースが・・・南西向きの大きな窓からは燦々と光が射しています。このお部屋にはバルコニーがありませんのでサンルームでしょうか?何にでも使えそうなスペースです。
次はトイレへ…
トイレは洗浄便座付き。INAX製のシャワートイレです。横には大きめのカウンターがあり、何かを飾ったり、トイレットペーパーなどをストックしたりなどいろいろな使い方が出来そうです。
次は洗面室です。
洗面室には、浴室が一緒になっていて脱衣所を兼ねています。洗面台はオリジナリティのある造り付け。サイドのスペースも物を置いたりに役立ちます。
浴室は白と黒のスタイリッシュな雰囲気。お部屋のナチュラルな感じとはだいぶ違いますね。朝のシャワーが似合いそうな印象です。
「切替」ボタンを押すと、照明がクリアな色から温かみのある暖色系に変わりました。夜お風呂に入るなら断然こちらがいいですね(^^)
追い焚き機能付きユニットバスはワンタッチでお風呂を沸かす事が出来ます。保温もしてくれるので、ご家族でお風呂の時間がバラバラになっても大丈夫。いつでも温かいお風呂に入れますよ。
ゆったり浸かれる広々浴槽。
浴室換気乾燥は浴室乾燥の他に、寒い季節の浴室暖房、雨天や花粉の季節のお洗濯物乾燥など様々な使い方があります。中には「涼風」なんてボタンもありますので、暑い季節にも活躍してくれそう。冷房ではありませんが、お風呂で濡れた体には充分涼しいと思いますよ。
次のお部屋へ…
こちらは約5.5帖の洋室。北東向きの窓のある明るいお部屋です。LDKと同じナチュラルテイスト。色使いがシンプルなので家具も幅広い選択が出来そうですね。
クローゼットが付いていますので家具を置く必要もありません。広く開いて使いやすそうなタイプです。
では、隣のお部屋へ…
こちらは約5.6帖の洋室。隣の洋室とほぼ同じ大きさですが、形が整っているのでより広く感じます。ベッドも二つくらいなら入りそうなので、メインのベッドルームに良さそうです。
同じタイプのクローゼット付き。
それでは、最後は窓の外を見てみましょう!
二つの洋室共通の眺望となります。池田山公園に隣接しているらしいのですが…
お~、想像以上!山の中の別荘に遊びに来たみたいで、とても都会の真ん中のマンションからの眺めとは思えません。木々の間に見える水面も涼し気。季節を感じながら暮らすっていいですよね。今年の眺望ベスト3入り間違いなしです(笑)
・
以上で池田山ロイヤルマンションのご案内を終わります。
いかがでしたでしょうか??
五反田駅から徒歩8分のマンションです。
リノベーション済みという事で室内はとてもキレイですよ (っ・ω・)っ
内見のご予約やご質問などございましたらお気軽にお問い合わせくださいませ。
ご連絡お待ちしております。
弊社、不動産Agent 六棒株式会社では、
□リノベーションマンションはほぼ全て仲介手数料無料!
□その他一般仲介物件は仲介手数料20%~30%OFF!
にてお取り扱いしております!※弊社の「Agent Fee=仲介手数料」についてはご案内、ご面談の際に営業担当者よりご説明いたします!
なるべく沢山のお部屋をホームページに掲載したいと思っておりますが、時間的成約もございますので、残念ながらご紹介できるお部屋の一部しか掲載できておりません。
このホームページに掲載中のお部屋、その他サイト等で気になるお部屋、街を歩いていて気になったマンション等々ございましたら是非、弊社営業部までご相談ください!
~不動産Agent 六棒株式会社の特徴~
・一般仲介物件の仲介手数料は20%~30%OFFにてご案内中です!
・リノベーションマンションについてはほぼ全て仲介手数料無料です!
・住宅ローンに自信あります!
・頭金10万円より購入できます。是非ご相談下さい!
・お部屋のご見学は車で2~3件まとめて案内します!
・物件数3000件以上、新築戸建、リノベ物件も多数ご用意しております!
過去に販売していたお部屋の概要 このお部屋の販売は終了いたしました。
| 価格 | -万円 |
| 面積 | 66.12㎡ |
| 間取り | 3bedrooms(3LDK) |
| 管理費 | 月額10,000円 修繕積立金:月額25,000円 |
| 所在階 | 4F |
| お問い合わせ・ご内見のご予約はこちらからお気軽にどうぞ | |
今回のお部屋をご紹介させて頂きます!
池田山ロイヤルマンション 4階部分です!
エントランス入口は3階と4階の中心にありますので、
4階は道路側から見ると1.5階部分になります!
公園側から見ると4階に見えます!
物件のPOINT!は、居室内から見る「池田山公園」の緑の眺望です!
緑の眺望は安心感を与えてくれます!
池田山公園を望める高級エリアの落ち着いた邸宅は、都心の喧騒から離れたスローライフを堪能できるかと考えられます!
また、今回新設された、サンルームは静かな道路に面した優しい空間です!
それではご覧ください!

リノベーション内容
サンルーム新設、LEDダウンライト・シーリングライト新設、人感センサー新設、壁・天井クロス張替、フローリング張替、フロアタイル張替、建具入替交換、システムキッチン新規入替交換、追炊き機能付きユニットバス新規入替交換、浴室乾燥機設置、照明器具新規交換、洗面化粧台新規交換W900、ウォシュレットタイプ付きトイレ設備新規交換、TVモニーター付きインターフォン新規交換入替、給湯器新規交換入替。(その他詳細につきましては担当者にお尋ね下さい。)
早速玄関を開けてみましょう!

ヴィンテージマンションでありがちな旧式の玄関ドアではなく、少しオシャレなエンジ色のドアを開けると正面には想像していた1.5倍の収納力のあるシューズクロークがありビックリしました!

玄関の靴を脱ぐたたきの部分やフローリングは、白を基調とした落ちついた雰囲気を出し、出かける時や帰宅時の安心感を共有できるスペースに仕上がっています!
早速水回りを見学したいとおもいます( `ー´)ノ


濃い目の建具を配色した機能性の高い洗面所です!
洗面ボールも使いやすく、三面鏡の裏の収納ももちろん完備しています(*’▽’)
そしてW900(ワイド=横幅)の洗面台は、通常のタイプより大き目なものが入っています!ゆとりが贅沢感をかもし出していますねぇ~(やりますねぇ(笑))

お風呂も茶系統のユニットバスが入っています!
ワングレード上のステップにいるユニットバスは、もちろん追い炊き機能付き・浴室乾燥機付きですよ!(^^)!


トイレも広めに造ってありました!
写真左側のカウンターを作ることにより、閉塞感のあるトイレの空間を開放し、リラックスできる場所に生まれ変わりました!
こちらは、北東側の池田山公園側の5.4帖のお部屋です!落ち着いたフローリングカラーと池田山公園の緑がベストマッチです!(^^♪

5.4帖の洋室の収納と、その横の7.2帖のメインベットルームです!
メインベットルームも池田山公園の緑とフローリングの感じが優しいスローライフを提供してくれそうです!

メインベットルームの収納です!
収納に手を入れ洋服を出している時に、ふと横を見ると池田山公園の緑が感じられます!
貼る服を入れてる時の公園の新緑、夏服を入れている時の公園の優しさ、秋服を入れている時の公園の赤茶色、冬服を入れている時の公園の寂しさを全て感じられるポジションだとおもいます!

このマンションは下層階だと緑の下を眺める形になってしまいます!
この階を含む前後がベストviewポイントですよ

優しい木漏れ日が、快適な朝の目覚まし時計となってくれることを約束します☆彡
次はキッチンを見てみたいとおもいます!

キッチンもフローリングに合わせた落ち着いた色で、家事を長く楽しくできる雰囲気となっています!(*^。^*)

キッチン上部吊戸棚も収納力があり、キッチン回りをすっきりとしてくれます!
新規交換済みのレンジフードもベストマッチですよね(^^♪

家事が進みそうなキッチンです!もちろん食器洗い乾燥機も標準装備ですよ!
食器洗い乾燥機と3口コンロです!料理が趣味になりそうですよね!

キッチン横には、もちろん追い炊き用のリモコンパネルとTVモニター付きインターフォンが設置されています!
家事は同線が大事ですよね!なるべく無駄な動きは減らしたいです(^^♪
スポーツ選手も無駄な動きは減らしたいとおもっています。
家事はスポーツですよね(笑)

広いダイニングキッチンですよね!家族の団欒が広がりそうです!
美味しい食事を毎日食べれそうですよね(^^♪

広いリビングダイニングです!
よく、お客様に聞かれますが、「長方形のリビング」「正方形のリビング」どちらがいいですか?聞かれます!難しい質問ですが、生活スタイルによってなんとも言えませんが、オーソドックスに、マンションモデルルームにあるような、ダイニングテーブルセット・ソファーセットを配置するなら、長方形のリビングが効率のいい配置ですよと答えています!
ただ人によって生活スタイルはバラバラですので、必ず相談してくださいね!
長く使うリビングですので!

素敵なダイニングキッチンですよね!
目を瞑ると、いろいろな家具の配置が浮かんできます!
家具の置くスペースが広い間取りには、素敵な家具を配置したいですよね(^^♪

リビングダイニングの奥に見えるのが今回の一押しポイントの一つのサンルームです!

自分は、今まで「サンルーム」付きのマンションは何戸か見学したことがあります!
いつも見て「完成度が低いなぁ」とおもって、いいイメージを持っていなかったですが、今回のサンルームを見て少しビックリしました!

今まで見たサンルームは、「この空間にずっと居たくないなぁ」とおもうのが、ほとんどでしたが、ここのお部屋のサンルームは、「ずっと居たい」とおもう空間でした。
何で?と言われる上手く説明できませんが、全てが調和をもっていて、安心できる色使いや、圧迫感のない眺望も優しい空間を作ってくれているのかもしれませんね(^^♪

最後に南西側の眺望を確認したいとおもいます!

目の前、マンションの前が道路ですので、ピッタリとした建物がないです!
また、一戸建てが多い地域ですので、安心エリアです!
低層マンション風の池田山ロイヤルマンションは贅沢な空間・優しい時間を提供してくれると約束できますよ(^。^)y-.。o○
これだけの仕様のマンション、最初に自分で住んで将来賃貸に出してもいいかとおもう東京で投資目線のできるお部屋です!
内見のご希望、ご質問などございましたら、
過去に販売していたお部屋の概要 このお部屋の販売は終了いたしました。
| 価格 | -万円 |
| 面積 | 66.12㎡ |
| 間取り | 3bedroom(3LDK) |
| 管理費 | 月額10,000円 修繕積立金:月額25,000円 |
| 所在階 | 1階 |
それでは、間取りのご紹介です。3LDK、66.12㎡。1階。
大きなリビングでファミリーにおススメの間取りです(●´∀`)
扉を開けると、キレイにリノベーションされた清潔感のある玄関です(●´∀`)インターフォンはTVモニター付き。知らない人は追い払えちゃいます♫
玄関右手には、シューズボックスがあります。少し小さいですかね。ブーツの収納もちょっと難しいかも。
玄関にはピクチャーレールも設置されています。お気に入りの一枚を飾ってみてください。
玄関入ってすぐのスライドドアがトイレです。嬉しいウォシュレット付き♫
背後には棚があるので、ストック品の収納や消臭剤を置くスペースとして利用してみて下さい♥♡

それでは廊下突き当りのリビングダイニングキッチンを見ていきましょう♫

リビングダイニングキッチンは、約12.1帖の広々としたお部屋。白めのフローリングとグレーのクロスがステキな雰囲気です。各お部屋へはこちらから出入りすることになりますので、自然と家族が集まる間取り。広めのリビングダイニングは、家族の集まるお部屋にぴったりです。
入って左手がキッチンスペース♫清潔感のある壁付きのシステムキッチンです。
壁付キッチンは収納も上下にあり、作業スペースもきちんと確保されているので料理もスムーズに出来そう♪
独立したスペースが確保されているので、思いっきり腕を振るってください(o´∀`ノ
こちらのキッチンには、収納が沢山☆コンロのお隣には可動式の収納棚。食器などをしまうスペースにしても良いですし、買い溜めにも大活躍です(´∀`●)そ、し、て!!床下収納×4!!(笑)最大限に収納を増やす気持ちが嬉しくなります♪♪
コンロは3つ口で沢山の料理が楽しめそう。大きな人造大理石のワークトップ&シンクで使い勝手の良いキッチンです。
キッチンの奥には、パントリー♫大きな物から小さな物、長い物まで収納できます。
それでは、リビングダイニングキッチンから出入りする洋室を見ていきます♫まずは、キッチンのお隣約5.8帖の洋室です。南西向きの開口部のお部屋です。
こちらのお部屋には大型のクローゼットが設置されています♪
奥行きもしっかりで収納力バツグン☆バーも付いているので、ロングコート等の衣類の収納にも良いですね♪♪収納が大きいと生活スペースが広く使えて◎

こちらは窓の外、現在工事中で足場が組まれています。目の前は高い壁ですので、陽当りは望めません。
こちらがのスライドドアの向こうが、水回りを集めた洗面室&バスルームです。段差がありますのでお気を付けください。

洗面室は少し狭めですかね。洗面台は、ミラー横にポケットが4つ、カウンター下にも収納があるので、歯ブラシ、化粧品などの小物からお掃除用具、洗剤といった物までしっかりしまえます。
シャワーヘッドも嬉しいですね♫シャワーヘッドは、シャンプーに便利ですが、お掃除にも便利ですよ (●´∀`)
バスルームは、ホワイトと木調パネルで清潔感のある空間です。追炊き機能付きなので、いつでも温かい湯船に浸かれるのは嬉しいですね。
ミラー横にはシャンプーなどのボトルもキレイに並べて置ける棚があり、清潔感のある空間を保つことができます♪♪
乾燥・涼風・暖房・換気と機能は充実♪♪快適なバスタイムを過ごせそう(o´∀`ノお洗濯物も干せます♫
棚等は設置されていませんので、後から棚を設置したり、突っ張り棒で収納を作ったりと工夫したいですね(*´∀`*)
こちらは、洗面室のお隣約4.3帖の洋室です。こちらの窓は、北東西向き(´∀`*)クローゼットもあり収納もOK♪奥行きもしっかりです♪♪
こちらの物件にはバルコニーがありませんので、こちらのお部屋に設置されている取り外し可能な物干しバーを使ってお洗濯物を干すことになります。
こちらは3つめの洋室。広さは約5.4帖。こちらの窓も北東向き♫
こちらのお部屋はリビングダイニングキッチンとは、スライド式ドアで隔てられているので、開けて使えば一つのお部屋の様に使うこともできます(*´▽`)
それではお待ちかね!!北東向きの窓の眺望です(*´▽`)
じゃじゃーん!!!!どうでしょうか?池田山公園の景色が窓一面です(´∀`●)お殿様が見ていたお庭を毎日眺めることができるんです。+゚ *。。+゚ *。
いかがでしたでしょうか。
緑の多い閑静な住宅街♪♪ステキな眺望のお部屋で充実した生活が送れると思います。+゚ *。。+゚ *。
内見のご希望、ご質問などございましたら、![]()






























































































































