・
□□□□□□□□□□□□□□□□□□□□□□□□□□□□□□□□□□□□□□□
いつも弊社ホームページをご覧頂き誠にありがとうございます。
ラグナタワーはお陰様で販売を終了致しました。弊社問合せフォームにてご要望頂けましたら、当お部屋でキャンセル等が発生した場合、他のお部屋が販売になりました際にご紹介させて頂きます。
不動産Agent 六棒株式会社
TEL:03‐5413‐5336
□□□□□□□□□□□□□□□□□□□□□□□□□□□□□□□□□□□□□□□
・
人気の天王洲エリアに建つシンボル的大規模タワーマンション『ラグナタワー』のご紹介です!充実した共用施設、要チェックです。
☆アクセス
りんかい線・モノレール「天王洲アイル」徒歩7分
りんかい線「品川シーサイド」駅徒歩9分
京浜急行線「新馬場駅」徒歩8分
☆ライフインフォメーション
ローソン・・・約30m
まいばすけっと・・・約450m
イオン品川シーサイド店・・・約700m
品川区立城南第二小学校・・・約160m
品川区立東海中学校・・・約400m
品川区立品川図書館・・・約700m
□□□□□□□□□□□□□□□□□□□□□□□□□□□□□□□□□□□□□□□
★★★【ラグナタワー】周辺のハザードマップをCHECK!!★★★
お部屋の記事を読む前に…!周辺のハザードマップをチェックしておきませんか!
ラグナタワーのハザードマップは★こちらから…どうぞ★
□□□□□□□□□□□□□□□□□□□□□□□□□□□□□□□□□□□□□□□
ハザードマップもご確認いただきましたので、次は街の紹介です!
天王洲アイル…
江戸時代末期に江戸防衛のため築造された第四台場をベースとして造成され、1939年に完成した埋め立て地が始まりです。1980年代以前はほとんどが倉庫や物流センターとして使われていましたが、1985年に再開発が始まり、1996年に現在の姿になりました。現在も成長を続けるこの地域ですが、景観に優れているためにテレビドラマや映画、TVCMの撮影などに頻繁に使われるロケーションの名所にもなっています。
帰り道のお買い物であれば、駅のそばに『まいばすけっと』があります。結構遅くまで営業していて助かりますね。
徒歩10分程のひとつとなりの駅、品川シーサイドには、お買い物や食事の出来るAEON STYLEがあります。こちらは更に遅い24時までお買い物が出来ますし、お休みの日に来ても楽しそうですね。
しながわ百景にも選ばれている天王洲公園野球場です。この日も暑い中練習中の方がいらっしゃいましたよ。
天王洲アイル駅からですと、マンションまでは天王洲アイル公園、東品川海上公園の中を通って行く事が出来ます。
『アイル橋』
『ミッフィーお花のひろば』
徒歩圏内には保育園から高校まで揃っています。
ラグナタワーは平成17年築、地下1階付き地上31階建て、総世帯数501戸。天王洲エリアに建つ大規模タワーマンションです。
クリーニング、宅配便、共用施設の予約などを行ってくれる便利なコンシェルジュサービスが快適な暮らしをサポートしてくれます。
また共用施設も充実しています♪
共用施設
■ゲストルーム・シアタールーム
■屋上スカイガーデン・ビューラウンジ
■パーティーサロン
■各階ダストステーション・・・等
管理は安心・安全の24時間有人管理。細則がありますが、ペットも一緒に暮らせます。
建物の周りには広い公開空地があり、綺麗に整えられています。
最初は公園かと思いました^^;)
さすが大規模マンションです。エントランス前にはポストまでありますよ。
駐車場は屋内の機械式。
このような駐輪場が何か所もあり、しっかりロックもかかっています。
エントランス前の石畳の車寄せ、雰囲気がありますね♪♪
大きなキャノピーの付いたエントランスから中へ入ります。
オートロックを開けて更に中へ…
まるで、リゾートホテルのようなロビーですね!
フロントではコンシェルジュがいろいろなサポートをしてくれます。
エレベーターは2階から19階用と、20階から31階までの高層階用があるようです。
32階屋上スカイガーデンです。31階までエレベーターで上がり、そこから階段で一階分上がります。
デッキパネルの敷かれたスペースにはイスやテーブルが置いてあります。夏にビアガーデン、冬には星を見たりと期待が膨らみますね♬
外にはこんな眺望が広がっていますよ。
では、寄り道はこれくらいにして、そろそろお部屋に向かいましょう。
ここで間取り図とリノベーション内容のご紹介です。
※間取り図は別タブで開きますので、確認しながらご覧頂くことが出来ます。
□□□□□□□□□□□□□□□□□□□□□□□□□□□□□□□□□□□□□□□
★★★【ラグナタワー】周辺のハザードマップをCHECK!!★★★
お部屋の記事を読む前に…!周辺のハザードマップをチェックしておきませんか!
ラグナタワーのハザードマップは★こちらから…どうぞ★
□□□□□□□□□□□□□□□□□□□□□□□□□□□□□□□□□□□□□□□
今回ご紹介するお部屋は25階。専有面積は83.98㎡の2LDK。80㎡以上の広さがありますが、ゆとりのあるレイアウトでお二人暮らしの方にもお勧めのお部屋です。眺めが楽しみですね!では、早速行ってみましょう!
【玄関廊下】
正面の大きなガラスドアからリビングの光が射す明るい玄関です。照明には人感センサーが付いているので日が暮れてからも明るい玄関が迎えてくれますよ。
【LD】
こちらは約13.2帖のリビング・ダイニング。西向きのバルコニーに面したお部屋です。キッチン抜きで13.2帖だと結構広いんですね!中間調のフローリングに白いクロスを合わせたシンプルな内装で、カーテンや家具も幅広くチョイス出来そうです。エアコンはスッキリとした天井埋め込み式!
【LD】
LD部分には床暖房が設置されているので、エアコン暖房が苦手な方でも寒い季節を快適に過ごせますよ。次は右奥のキッチンへ行ってみましょう。
【キッチン】
キッチンは半独立タイプ。扉こそありませんがLDとは分離された約3.6帖の空間です。最近ではカウンターキッチンなどLDとの一体感を大事にしたキッチンが人気ですが、お料理好きの方の中には独立型を支持する方も多いとか。集中出来るところがいいそうです。食器洗浄乾燥機付き♬
【トイレ】
トイレはタンクレスの洗浄機能一体型。いろいろ飾ってインテリアを楽しめる手洗いカウンターや、トイレットペーパーストックなどの収納に便利な吊り戸棚も付いています。
【洗面室】
洗面室には洗面化粧台の他に、洗濯機スペース、浴室がまとまっています。洗面化粧台は身だしなみを整えるのに便利な三面鏡付き。裏がキャビネットになっているので、洗面周りに散らかりがちな細々したものもスッキリと片付けることができますよ。洗濯機スペースにも吊戸棚が付いているので、洗剤や洗濯ネットなどの洗濯グッズはこちらへどうぞ。
【浴室】
1620サイズの広々とした浴室は木目パネルに囲まれた落ち着いた雰囲気。ゆったりと湯舟に浸かれば一日の疲れも洗い流せそうですね♬ 追い焚き機能や浴室換気乾燥機などの便利機能も完備。忙しい毎日、お天気を気にせずにお洗濯出来るのは助かります。
【洋室2】
こちらは約6.7帖の洋室2。
【洋室1】
洋室1の広さはなんと約12.5帖!LDに匹敵する広さがあります。これなら大きなサイズのベッドを置いても窮屈な感じになることはなさそうですね。クローゼット二つと物入も付いていて収納も充実しています。
【眺望】
お待たせしました、最後にバルコニーからの眺めをご紹介します。さすが25階!普通の高層階とは一味違いますね!西向きなので綺麗な夕焼けも期待出来そうです。
・
以上でラグナタワーのご案内を終わります。
いかがでしたでしょうか??
天王洲アイル駅から徒歩7分のマンションです。
リノベーション済みという事で室内はとてもキレイですよ (っ・ω・)っ
内見のご予約やご質問などございましたらお気軽にお問い合わせくださいませ。
ご連絡お待ちしております。
□□□□□□□□□□□□□□□□□□□□□□□□□□□□□□□□□□□□□□□
★★★【ラグナタワー】周辺のハザードマップをCHECK!!★★★
お問い合わせの前に…!周辺のハザードマップをチェックしておきませんか!
ラグナタワーのハザードマップは★こちらから…どうぞ★
□□□□□□□□□□□□□□□□□□□□□□□□□□□□□□□□□□□□□□□
弊社、不動産Agent 六棒株式会社では、
□リノベーションマンションはほぼ全て仲介手数料無料!
□その他一般仲介物件は仲介手数料20%~30%OFF!
にてお取り扱いしております!※弊社の「Agent Fee=仲介手数料」についてはご案内、ご面談の際に営業担当者よりご説明いたします!
なるべく沢山のお部屋をホームページに掲載したいと思っておりますが、時間的成約もございますので、残念ながらご紹介できるお部屋の一部しか掲載できておりません。
このホームページに掲載中のお部屋、その他サイト等で気になるお部屋、街を歩いていて気になったマンション等々ございましたら是非、弊社営業部までご相談ください!
~不動産Agent 六棒株式会社の特徴~
・一般仲介物件の仲介手数料は20%~30%OFFにてご案内中です!
・リノベーションマンションについてはほぼ全て仲介手数料無料です!
・住宅ローンに自信あります!
・頭金10万円より購入できます。是非ご相談下さい!
・お部屋のご見学は車で2~3件まとめて案内します!
・物件数3000件以上、新築戸建、リノベ物件も多数ご用意しております!
過去に販売していたお部屋の概要 こちらのお部屋の販売は終了いたしました
| 価格 | -万円 |
| 面積 | 78.34㎡ |
| 間取り | 2bedrooms(2LDK) |
| 管理費 | 月額19,300円 修繕積立金:月額22,100円 組合費:月額500円 トランクルーム使用料:月額300円 インターネット接続サービス料:月額1,296円 |
| 所在階 | 4階 |
| お問い合わせ・ご内見のご予約はこちらからお気軽にどうぞ | |
ここで間取り図とリノベーション内容のご紹介です。
※間取り図は別タブで開きますので、確認しながらご覧頂くことが出来ます。
~リノベーション内容~
●フローリング新規貼替
●壁・天井クロス新規交換
●床暖房新規交換
●給湯器新規交換
●建具・玄関収納等新規交換
●LIXIL製洗面化粧台新規交換
●LIXIL製洗浄便座付きトイレ新規交換
●TOTO製追い焚き機能付きユニットバス新規交換(浴室換気乾燥機付)
●LIXIL製システムキッチン新規交換(食器洗浄乾燥機付)
●照明器具新規設置
●エアコン2基新規設置
●ハウスクリーニング ・・・等
□□□□□□□□□□□□□□□□□□□□□□□□□□□□□□□□□□□□□□□
★★★【ラグナタワー】周辺のハザードマップをCHECK!!★★★
お部屋の記事を読む前に…!周辺のハザードマップをチェックしておきませんか!
ラグナタワーのハザードマップは★こちらから…どうぞ★
□□□□□□□□□□□□□□□□□□□□□□□□□□□□□□□□□□□□□□□
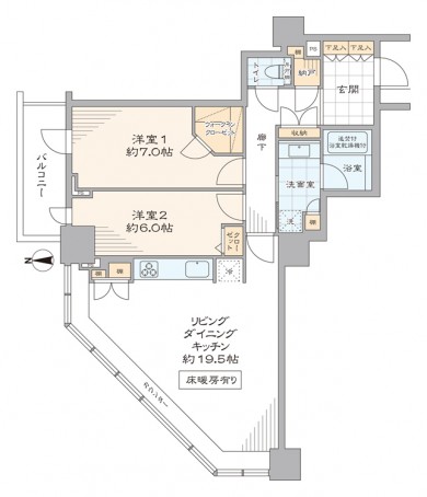
今回ご紹介するお部屋は4階、間取りは2LDK、専有面積は78.34㎡。20帖近いワイドスパンのLDKを持つファミリータイプのお部屋です。では、早速行ってみましょう!
2F~19F用のエレベーターを使って4階まで上がります。廊下はホテルのような内廊下。絨毯張りで歩く音も気になりません。モニター付きインターホンでお部屋の中から訪問者を確認する事が出来ますので、確認してから応対するかを決める事も出来ますよ。
玄関ドアには安心のダブルロック。人感センサーが自動的にライトを点けてくれますので、暗い中手探りでスイッチを探す必要もありません。荷物が多い時などにはとても助かりますね。トールタイプのシューズボックスは収納力抜群!玄関に散らかりがちな靴を楽に収納することが出来ますよ。左へ伸びた廊下には収納棚や納戸など収納も豊富です♪
ではお部屋の中へ…
まず目に飛び込んで来るのは、ずらりと並ぶ窓、窓、窓!!
こちらは約19.5帖のリビング・ダイニング・キッチン。北西向きの大きな窓を持つ三角形のお部屋です。直角三角形の斜辺が全部窓になっていてかなり迫力がありますよ。エアコンはビルドイン。スッキリ天井に収まり、配管などでせっかくの雰囲気が壊れることもありません。床には床暖房付き。エアコンの暖房が苦手な方には嬉しいですね。
キッチンは壁付けタイプ。スペースを取らずお部屋を広く使うことのできるキッチンです。ただし、キッチン内がこちら向きで目立ちますので、綺麗に保つ必要はありそうですね。食器洗浄乾燥機付きの調理台はLIXIL製のシステムキッチン。ディスポーザーも付いていますよ。収納は調理台下のスライドキャビネットや吊戸棚の他に、収納棚も付いています。
洗面室には洗面台の他に浴室と洗濯機スペースもあり、脱衣所も兼ねています。白を基調とした明るい洗面台は三面鏡付き。幅が広く、二人くらいなら並んで使えそうですよ。朝のラッシュ時には助かりますね♬
浴室はブラウンの鏡面仕上げパネル使用で落ち着いた雰囲気。リラックスにはぴったりですね。TOTO製のユニットバスは追い焚き機能付きで、いつでも温かいお風呂に入る事が出来ますよ。ご家族でお風呂のタイミングがばらばらになっても、スイッチひとつで温め直してくれるので安心です。雨の日のお洗濯物は浴室換気乾燥機にお任せ下さい。
トイレは洗浄便座付き。INAX製のシャワートイレです。トイレットペーパーなどのストックに便利な吊戸棚も付いてますよ。
こちらは約6帖の洋室。北向きの窓とクローゼットが付いたお部屋です。内装がシンプルなので、家具などを自由に選ぶことが出来そうですね。
こちらは約7帖の洋室。同じく北向きの窓が付いたお部屋です。ただし、収納はウォークインクローゼット!!L字型にハンガーポールが設置された大きな収納です。キャリーバッグやスーツケースなどの大きな物も入れておけますし、衣装ケースなどを使えば収納力をアップすることも可能ですよ。
最後はバルコニーのご紹介。
広さは5.82㎡、北向き。ゆったりとした奥行きで、数字より広く感じるバルコニーです。物干し金具が備え付けになっていて、お洗濯物も干せるようになっていますよ。高層階だとそうはいきませんからね。
前には広いスペースがありバルコニーからはとても開放的な眺めが望めます。マンションの敷地になりますので、将来建物が建つ心配もありませんよ。
・
以上でラグナタワーのご案内を終わります。
いかがでしたでしょうか??
天王洲アイル駅から徒歩7分のマンションです。
リノベーション済みという事で室内はとてもキレイですよ (っ・ω・)っ
内見のご予約やご質問などございましたらお気軽にお問い合わせくださいませ。
ご連絡お待ちしております。
□□□□□□□□□□□□□□□□□□□□□□□□□□□□□□□□□□□□□□□
★★★【ラグナタワー】周辺のハザードマップをCHECK!!★★★
お問い合わせの前に…!周辺のハザードマップをチェックしておきませんか!
ラグナタワーのハザードマップは★こちらから…どうぞ★
□□□□□□□□□□□□□□□□□□□□□□□□□□□□□□□□□□□□□□□
弊社、不動産Agent 六棒株式会社では、
□リノベーションマンションはほぼ全て仲介手数料無料!
□その他一般仲介物件は仲介手数料20%~30%OFF!
にてお取り扱いしております!※弊社の「Agent Fee=仲介手数料」についてはご案内、ご面談の際に営業担当者よりご説明いたします!
なるべく沢山のお部屋をホームページに掲載したいと思っておりますが、時間的成約もございますので、残念ながらご紹介できるお部屋の一部しか掲載できておりません。
このホームページに掲載中のお部屋、その他サイト等で気になるお部屋、街を歩いていて気になったマンション等々ございましたら是非、弊社営業部までご相談ください!
~不動産Agent 六棒株式会社の特徴~
・一般仲介物件の仲介手数料は20%~30%OFFにてご案内中です!
・リノベーションマンションについてはほぼ全て仲介手数料無料です!
・住宅ローンに自信あります!
・頭金10万円より購入できます。是非ご相談下さい!
・お部屋のご見学は車で2~3件まとめて案内します!
・物件数3000件以上、新築戸建、リノベ物件も多数ご用意しております!
過去に販売していたお部屋の概要 このお部屋の販売は終了いたしました。
| 価格 | -万円 |
| 面積 | 95.31㎡ |
| 間取り | 3bedrooms(3LDK) |
| 管理費 | 月額23,500円 修繕積立金:月額26,900円 組合費:月額500円 トランクルーム使用料:月額300円 インターネット接続サービス料:月額1,296円 |
| 所在階 | 23F |
| お問い合わせ・ご内見のご予約はこちらからお気軽にどうぞ | |
エレベーターに乗っている間に、間取り図をご紹介しておきます。
※間取り図は別タブで開きますので、確認しながらご覧いただく事が出来ます。
今回のお部屋は23階!、間取りは3LDK、専有面積は95.31㎡となります。
23階は、今までお邪魔したお部屋の中で一番高い階です。眺望も楽しみですが、浮かれていると迷子になりそうな広いお部屋も気になります(笑)
□□□□□□□□□□□□□□□□□□□□□□□□□□□□□□□□□□□□□□□
★★★【ラグナタワー】周辺のハザードマップをCHECK!!★★★
お部屋の記事を読む前に…!周辺のハザードマップをチェックしておきませんか!
ラグナタワーのハザードマップは★こちらから…どうぞ★
□□□□□□□□□□□□□□□□□□□□□□□□□□□□□□□□□□□□□□□
いつもより乗っている時間も長めですが…着いたようですね、行ってみましょう!
エレべーターを降りて…
内廊下を進みます。
廊下部分の床にはカーペットが敷かれていて、歩く音もほぼしません。廊下を歩く音がうるさいとか、ここでは心配なさそうですね。
玄関に到着です。
玄関にはカメラ付きインターホンが設置されていて、お部屋の中からでも訪問者を確認する事が出来ます。わざわざ玄関まで来なくてよくて、いいですよね。ダブルロックも心強いです。
それではお邪魔します。
広い玄関から廊下にかけては大理石が敷かれていて、明るい色使いでありながら重厚感を感じます。
振り返って玄関内の様子です。
人感センサーは自動的に玄関のライトを点けてくれるので、荷物がいっぱいで両手が塞がっている時など助かります。
ここからは怒涛の収納ラッシュですよ(^^)
入って右側にはトールタイプのシューズボックスと、棚板がガラスの飾り棚があります。シューズボックスは棚板の高さが変えられるのでブーツなどでも収納可能です。
左側のドアを開けると…収納になっていました。
奥には棚があり、手前には広いスペースがあります。シューズボックスに入りきらない靴を置いてもいいですし、ゴルフバッグなどの趣味の道具を置いても良さそうですね。
廊下の右側にも収納が三つ並んでいます。
更に廊下の曲がり角にもひとつ…
こちらはあまり奥行きがなく、本棚みたいな感じです。
収納っていくらあってもいいですよね(^^)
それではそろそろお部屋の方に…
まずは、廊下を曲がった右側のドアを開けてみましょう。
こちらがリビング・ダイニング・キッチンとなります。
大きな窓からの光が明るい、ナチュラルで柔らかい雰囲気のお部屋です。
廊下は重厚で高級感のある大理石や鏡面仕上げを多く使用していましたが、お部屋の中は自然を感じる素材や木の風合いを生かした部分が多くなっています。カラーを統一しながら素材の質感で雰囲気を変えているんですね(^^)
窓のカーテンを開けてみると…
外の風景が絵画みたいで素敵です♬ 夜にお部屋を真っ暗にして、夜景を見たりしてみたいですね。
眺望の全貌は後程バルコニーから見てみましょう。お楽しみに!
家具などは見本なので販売価格には含まれませんが、あると生活のイメージがし易くて助かります。大きさや色の参考にもなりますよ。
入ってすぐの所には造り付けのデスクがありました。
ちょっとした書き物から、お子様の勉強机としても使えそうですね。勉強は個室でやるより、リビングなどでやったほうが成績が上がるという説もあるそうですよ。
エアコンは初めからビルドインタイプの物が二つ付いています。ビルドインだとお部屋がスッキリしますよね。新生活を快適に始められるのも嬉しいです。
ライティングされた飾り棚です。
お部屋には、天井の間接照明、壁の間接照明、ダウンライト、スポットライトと様々なライトが設置されています。照明に関するこだわりを感じますね。
では、キッチンを見ていきましょう。
お部屋の雰囲気に合った調理台です。
引き出しタイプの収納は、出し入れがしやすくていいですね。調理台後方には、冷蔵庫や食器棚のスペースも確保されています。
水栓は浄水機能付きシャワー水栓です。
ワンタッチで美味しいお水に切り替わりますよ。ヘッドが伸びるのでシンクのお掃除なども楽々です。
憧れの食洗器。
洗い物はお任せして、食後はのんびりしちゃいましょう。
コンロは3口です。
グリルを使う時は換気扇をお忘れなく。特にお魚の時は絶対ですよ!
では次へ…
ダイニングそばの引き戸です。
洋室ですね。
窓の無いお部屋ですが、扉を開けておけばリビングからの光も入ってきますよ。
壁にはオープンシェルフが二つあります。お部屋の使い方によって、収納にしても飾り棚にしてもいいですね。
このお部屋には扉が三つあって、ひとつ目は入って来たリビングからの引き戸です。
これが二つ目で、引き戸を開けるとそこは・・・廊下でした^^;)廊下からも直接入れるってことですね。
三つ目のドアを開けると…
なんと、ウォークインクローゼットになっていました!とても広くて住めそうなほどです(笑)
左側には収納棚が。右側にはハンガーパイプが設置されて、洋服を掛けられるようになっていました。
ここにも入って来たドアとは別のドアがあります。開けてみると・・・廊下でした。ここも廊下からも入れるってことですね。さっきいた部屋も廊下から入れて・・・???だいぶ混乱してきました^^;)
では、このまま廊下へ戻って…
すぐのドアを開けてみましょう。
こちら、洗面室となります。
白を基調とした清潔感がある洗面台です。
ミラーキャビネットと洗面台下が収納になっていました。細かい物から大きな物まで上手いこと収まりそうです。
水洗はハンドシャワータイプです。
洗濯機スペースの上には、高さ調整可能な棚が二段あります。洗剤やランドリーバッグなど洗濯関係の物をまとめておけますね。
次は浴室へ行ってみます。
浴室は、やっぱり明るい方が好きなんですよね~♬
追い焚き機能が付いているので、いつでも温かいお風呂に入れますよ。お風呂って自分のタイミングで入りたくないですか?『冷めちゃうから早く入っちゃいなさい』って子供の頃よく言われたものです^^;)
ゆったりと浸かれそうな広々とした浴槽です。
浴室乾燥機能も付いています。
浴室のカビ予防の他に、雨天のお洗濯物乾燥やヒートショック予防など様々な役に立ってくれます。どんどん使っていきましょう。
次は、玄関近くのドアを開けてみます。
手洗器の付いたカウンターが設置された、高級感のあるトイレとなります。カウンターの下には収納も付いています。
もちろんウォシュレットも完備しています。最近は当たり前になっていますので、無いと困る方も多いのでは。TOTOさん有難うございます(笑)
では、先程左に曲がった廊下を、今度は真っ直ぐ進んでみましょう。
正面突き当りのドアを開けてみます。
こちらが、東側真ん中の洋室となります。
シンプルで家具を選ばないお部屋になっていますね。どんなテイストにも染められそうです。窓はバルコニーに面していますが、ここから出る事は出来ませんでした。
ドア近くの引き戸の奥は、クローゼットになっていました。ハンガーパイプがL字型に設置されていて、ウォークインクローゼットと言っても許されるような気が…(^^)
では、次のお部屋へ…
となりのドアです。
こちらが南東側の洋室となります。
となりのお部屋より広いお部屋ですね。窓も大きくなっています。
このお部屋もドアの近くに収納があるようです。
ドアを開けると…
こちらは、正真正銘のウォークインクローゼットでした。
ハンガーパイプがコの字型に設置されている、奥行きのあるタイプです。床面が広いので、大きな物を置いたり、衣装ケースなどで収納力をアップするのも良いですね。
それでは、最後にバルコニーへ出てみましょう!
幅はあまりありませんが、奥行きがあってゆったりとしたバルコニーですね。
どうですか、この眺望!テンション上がります(笑)
東京湾を一望出来る、湾岸エリアならではの眺望ですね。
・
以上でラグナタワーのご案内を終わります。
いかがでしたでしょうか??
天王洲アイル駅から徒歩7分のマンションです。
リノベーション済みという事で室内はとてもキレイですよ (っ・ω・)っ
内見のご予約やご質問などございましたらお気軽にお問い合わせくださいませ。
ご連絡お待ちしております。
□□□□□□□□□□□□□□□□□□□□□□□□□□□□□□□□□□□□□□□
★★★【ラグナタワー】周辺のハザードマップをCHECK!!★★★
お問い合わせの前に…!周辺のハザードマップをチェックしておきませんか!
ラグナタワーのハザードマップは★こちらから…どうぞ★
□□□□□□□□□□□□□□□□□□□□□□□□□□□□□□□□□□□□□□□
弊社、不動産Agent 六棒株式会社では、
□リノベーションマンションはほぼ全て仲介手数料無料!
□その他一般仲介物件は仲介手数料20%~30%OFF!
にてお取り扱いしております!※弊社の「Agent Fee=仲介手数料」についてはご案内、ご面談の際に営業担当者よりご説明いたします!
なるべく沢山のお部屋をホームページに掲載したいと思っておりますが、時間的成約もございますので、残念ながらご紹介できるお部屋の一部しか掲載できておりません。
このホームページに掲載中のお部屋、その他サイト等で気になるお部屋、街を歩いていて気になったマンション等々ございましたら是非、弊社営業部までご相談ください!
~不動産Agent 六棒株式会社の特徴~
・一般仲介物件の仲介手数料は20%~30%OFFにてご案内中です!
・リノベーションマンションについてはほぼ全て仲介手数料無料です!
・住宅ローンに自信あります!
・頭金10万円より購入できます。是非ご相談下さい!
・お部屋のご見学は車で2~3件まとめて案内します!
・物件数3000件以上、新築戸建、リノベ物件も多数ご用意しております!
過去に販売していたお部屋の概要 このお部屋の販売は終了いたしました。
| 価格 | -万円 |
| 面積 | 80.36㎡ |
| 間取り | 2bedrooms(2LDK) |
| 管理費 | 月額19,800円 修繕積立金:月額22,700円 組合費:月額500円 インターネット接続サービス料:月額1,296円 |
| 所在階 | 3階 |
| お問い合わせ・ご内見のご予約はこちらからお気軽にどうぞ | |

今回ご紹介するお部屋の間取りをご紹介です♪
2LDK、80.36㎡のお部屋です。
<リノベーション内容>
■ガスコンロ新規交換
■クロス張替
■照明器具一部設置
■給湯器新規交換(床暖房・追炊き付き)
■ウォシュレット新規交換
■キッチン水栓交換
■洗濯パン新規交換
■ルームクリーニング
等
それでは早速お部屋へ入って行きましょう!



リビングダイニングキッチンは落ち着きのあるシンプルなお部屋です!
照明がたくさんちりばめられ、明るい空間になっていますよ(*´˘`*)♡
南西向きの窓は横に長く造られており自然のの光を取り込んでくれます☆ミ

お洒落なこちらの家具はお部屋と一緒にお渡しです(●’艸`*)
すぐに快適な空間で生活する事が出来ますよ♪

洋室は淡いカラーでまとめられ、落ち着きのある空間になっています。
ウォークインクローゼットが用意されているのでお洋服の収納に困ることはありません(o´∀`ノ
お部屋からは南向きのバルコニーに行くことが可能です!

キッチンはこちら!大きなキッチンですね(*´▽`)
調理スペースが大きいので複数人でお料理も出来ちゃいます!
上下に収納がたっぷりなのでお部屋をきれいに保てそうです♪

バスルームは白でまとめられた清潔感ある空間になっています!
入浴時間が異なっても追い焚き機能が解決です(´∀`●)

サニタリールームは横に大きな造りです!
三面鏡がとても大きいですね♪
洗面台周りにはスペースがあるのでアロマや装飾などを置いて楽しめますよ(*´v`*)ノ
いかがでしたでしょうか?
ご質問等ございましたらお気軽にご連絡ください!
皆様のご連絡心よりお待ちしております♪
過去に販売していたお部屋の概要 このお部屋の販売は終了いたしました。
| 価格 | -万円 |
| 面積 | 83.69㎡ |
| 間取り | 2bedrooms(2LDK) |
| 管理費 | 月額20,700円 修繕積立金:月額23,600円 組合費:月額500円 インターネット接続サ |
| 所在階 | 2階 |
| お問い合わせ・ご内見のご予約はこちらからお気軽にどうぞ | |
間取りのご紹介です。2LDK、専有面積は83.69㎡。
ウォークインクローゼットをはじめ、シューズインクローク、カップボード、廊下収納など収納スペース豊富なお部屋です。
※修繕積立金値上予定:平成32年3月~33,700円/平成37年3月~38,500円
【リフォーム内容】
■キッチン・・・水栓金具、浄水栓金具、ガラストップコンロ
■浴室・・・シャワーホースヘッド
■洗面・・・吊度
■トイレ・・・LIXIL製シャワー便座
■床・・・パナソニック製フローリング(廊下/洋室/LDK)
■照明・・・LEDダウンライト、LEDシーリングライト
■その他・・・全クロス張替え、ハウスクリーニング、全クロス張替え
ご内見のご希望・ご質問などございましたら、お気軽にお問い合わせくださいませ♪























































































































































































弊社 公式HP
六棒総合研究所
掲載予定物件
価格変更と販売終了物件
ハザードマップ検索
適合証明書.jp
Facebook
Twitter
Instagram