・
□□□□□□□□□□□□□□□□□□□□□□□□□□□□□□□□□□□□□□□
いつも弊社ホームページをご覧頂き誠にありがとうございます。
武蔵小山フラワーマンションはお陰様で販売を終了致しました。弊社問合せフォームにてご要望頂けましたら、当お部屋でキャンセル等が発生した場合、他のお部屋が販売になりました際にご紹介させて頂きます。
不動産Agent 六棒株式会社
TEL:03‐5413‐5336
□□□□□□□□□□□□□□□□□□□□□□□□□□□□□□□□□□□□□□□
・
むさこの愛称で親しまれる武蔵小山よりリノベーションマンション
武蔵小山フラワーマンションのご紹介です!
街をご案内する前にまずはこちらをご覧ください。
□□□□□□□□□□□□□□□□□□□□□□□□□□□□□□□□□□□□□□□
★★★【武蔵小山フラワーマンション】周辺のハザードマップをCHECK!!★★★
お部屋の記事を読む前に…!周辺のハザードマップをチェックしておきませんか!
武蔵小山フラワーマンションのハザードマップは★こちらから…どうぞ★
□□□□□□□□□□□□□□□□□□□□□□□□□□□□□□□□□□□□□□□
最寄は東急目黒線の武蔵小山駅。 目黒駅まで電車で3分、渋谷駅まで12分と都心へのアクセスも良好!駅の上はビルになっており、東急ストアや無印良品、カフェなどが入っておりお仕事帰りのお買い物やちょっとした食事も便利。
武蔵小山といえば全長800mあるパルムアーケードがあることでも有名なところ。中にはグルメからショッピングまで楽しめる250ものお店が軒を連ねており、日中ともなればお買い物客でにぎわいをみせます。充実したお店群にくわえ、物価が安いのも魅力的です。
ちなみに商店街にはリスのパルとパム、たけのこのたけ丸というキャラがします。イベント時には着ぐるみが登場することもあるみたいですよ!
そしてそして!武蔵小山といえば只今絶賛駅前再開発中なのです!
最大でタワーが5本建つとか、商業施設も入るとかで大変貌をとげている真っ最中です。この地に昔あった飲食店街がなくなったのはさみしいですが、今後どうなるか楽しみですね!
駅から徒歩10分ほど歩くと緑豊かな林試の森公園もあります。以前は林業試験場として使われていたため、その当時の珍しい樹木も残されているそうです。1週すると約45分で回れるそうで、お散歩やジョギング、リフレッシュに訪れるのにピッタリ。木が多いので夏場でも日陰が多く歩きやすいですよ。
武蔵小山フラワーマンションは昭和46年築、11階建て、総世帯数65戸。
築年数は少々経過していますが、平成19年に大規模修繕工事、平成28年にバルコニー側サッシ、玄関ドア交換工事など管理がしっかりされています。
管理形態は自主管理。
エントランス前の通り。ちょうど道を挟んだ向かい側にコンビニがあります。
道路より少し奥まったところがエントランス。
(オートロックはありません。)
中に入るとエレベーターと向かいあうように管理人室があります。
エントランスの並びには店舗が入るようになっていますが、現在は空いているようです。
敷地内には駐車場、駐輪場、バイク置場もありますよ。
空き状況は変動するのでご内見の際にご確認くださいませ。
エレベーターは1基。
平成30年1月にリニューアル工事がなされているので新しいです( ˘ω˘)
共用廊下は外廊下タイプです。
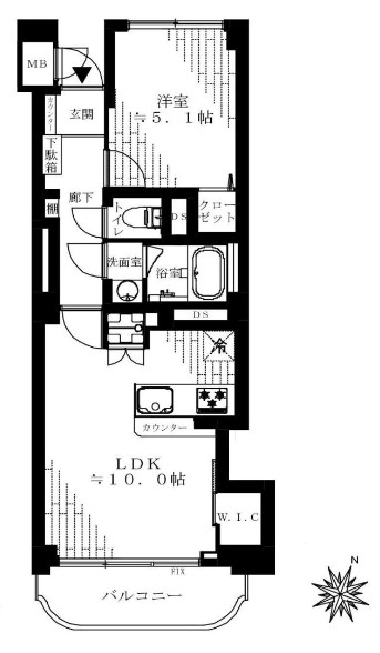
ここで間取り図のご紹介です。
※間取り図は別タブで開きますので、確認しながらご覧頂く事が出来ます。
□□□□□□□□□□□□□□□□□□□□□□□□□□□□□□□□□□□□□□□
★★★【武蔵小山フラワーマンション】周辺のハザードマップをCHECK!!★★★
お部屋の記事を読む前に…!周辺のハザードマップをチェックしておきませんか!
武蔵小山フラワーマンションのハザードマップは★こちらから…どうぞ★
□□□□□□□□□□□□□□□□□□□□□□□□□□□□□□□□□□□□□□□
今回ご紹介のお部屋は10階、間取りは1LDK、専有面積は43.32㎡となります。
エレベーターで10階まで…明るい黄色で気分UP♪♪
明るい外廊下を進むと玄関に到着です。
玄関はアルコーブの奥、廊下からは見えない位置にありました。ドア横にはテレビモニター付きインターホンがあり、お部屋の中から訪問者を確認する事が出来ます。「ハイ」と返事をする前にチェックをすれば、しつこいセールスに悩まされる事もありませんね。
ドアを開けると、リノベーションしたての綺麗なお部屋が迎えてくれました。フローリングがお洒落です♪♪
振り返って玄関の様子。ドアには二重ロックが設置されていますので安心です!
人感センサーは中に入っただけで自動的にライトを点けてくれます。もう、暗い中手探りでスイッチを探す事もありません。消し忘れも防げて一石二鳥ですよ(^^)
シューズボックスはトールタイプ。天井までで収納力抜群です。廊下の途中には、収納に使ったり何か飾ったり出来る棚が設置されています。
まずは正面のドアから…
こちらは約10帖のリビング・ダイニング・キッチン。バルコニーに面した大きな窓のあるお部屋です。
白をメインにしてドアのブルーがいいアクセントになっていますね。キッチンはカウンターキッチン。キッチンからはお部屋の様子がよく見えますが、こちらからはキッチン内が目立たない様になっています。
窓際の引き戸を開けると、ウォークインクローゼットになっていました。L字型にハンガーポールが設置されたタイプ。広さがあるので嵩張る物も入りますし、ご覧の様な収納グッズを使って収納力を更にアップさせる事も出来そうです。
次はキッチンへ…
調理台下は食洗機と引き出しタイプの収納になっていました。食洗機があれば、食後はのんびり過ごせますね♬
水栓は浄水機能付きシャワー水栓。手軽に美味しいお水を使えます。
三口コンロに片面焼きグリルと調理器具も充実!グリルは魚焼きグリルなんて呼ばれていますが、是非お魚以外も焼いてみて下さいね。
肉を焼いたりすると、匂いって後から気になったりしますよね^^;)調理中は換気扇をお忘れなく! 調理台後方には冷蔵庫や家電ラックなどのスペースも確保されていましたよ。
キッチン内の収納かな?と思って開けた扉は洗濯機スペース!でした。一般的に洗面室などにある事が多いですが、家事動線などを考えるとキッチンにあるのはとても合理的だと思います。
では、いちど廊下に戻って洗面室へ…
丸い洗面ボウルがかわいいですね。収納が洗面台下だけになりますので、細かい物を置くスペースを作るのにも丸い形が役立っています。
次は浴室へ…
ダークブラウンのアクセントパネルを使った、落ち着いた雰囲気の浴室です。浴室はリラックス出来るのが一番ですよね。
追い焚き機能はスイッチ一つでお風呂を沸かしてくれたり、設定温度にお湯を保ってくれたりととても便利な機能です。一度使ったら止められませんよ(^^)
換気扇は天井ではなく壁に設置されていましたので、お掃除がし易くていいですね。
次はトイレへ…
温水洗浄便座付き。TOTO製のウォシュレットです。縦長の吊戸棚は収納力がいまひとつですが、出し入れがし易くて助かります。
では、次のお部屋へ…
こちらは約5.1帖の洋室。上下に分かれた部屋幅いっぱいの窓があるお部屋です。
白一色のシンプルな色使い。家具やカーテンなどのチョイスにも幅をもたせられそうですね。
収納は、広く開いて使い易そうなクローゼット。
窓の外は外廊下。顏の高さを避けるために上下に分かれているんですね。窓には網入りの分厚いガラスが入っていましたよ。
それでは最後はバルコニーのご紹介。LDKの窓から出ます。
広さは4.18㎡、南東向き。角が丸みをおびたバルコニーです。
駅方向を見ると再開発による駅前複合施設の建設が進んでいました。2021年完成予定との事。工事早く終わるといいですね。マンション部分は41階建てと高いですが、余裕を持って建っているので圧迫感を感じる程ではないと思います。
目を反対側に向ければ、遮る物のない開放的な眺めが広がっていましたよ。
・
以上で武蔵小山フラワーマンションのご案内を終わります。
いかがでしたでしょうか??
武蔵小山駅から徒歩3分のマンションです。
リノベーション済みという事で室内はとてもキレイですよ (っ・ω・)っ
内見のご予約やご質問などございましたらお気軽にお問い合わせくださいませ。
ご連絡お待ちしております。
□□□□□□□□□□□□□□□□□□□□□□□□□□□□□□□□□□□□□□□
★★★【武蔵小山フラワーマンション】周辺のハザードマップをCHECK!!★★★
お部屋のご購入前に…!周辺のハザードマップをチェックしておきませんか!
武蔵小山フラワーマンションのハザードマップは★こちらから…どうぞ★
□□□□□□□□□□□□□□□□□□□□□□□□□□□□□□□□□□□□□□□
弊社、不動産Agent 六棒株式会社では、
□リノベーションマンションはほぼ全て仲介手数料無料!
□その他一般仲介物件は仲介手数料20%~30%OFF!
にてお取り扱いしております!※弊社の「Agent Fee=仲介手数料」についてはご案内、ご面談の際に営業担当者よりご説明いたします!
なるべく沢山のお部屋をホームページに掲載したいと思っておりますが、時間的成約もございますので、残念ながらご紹介できるお部屋の一部しか掲載できておりません。
このホームページに掲載中のお部屋、その他サイト等で気になるお部屋、街を歩いていて気になったマンション等々ございましたら是非、弊社営業部までご相談ください!
~不動産Agent 六棒株式会社の特徴~
・センチュリー21加盟店です!
・一般仲介物件の仲介手数料は20%~30%OFFにてご案内中です!
・リノベーションマンションについてはほぼ全て仲介手数料無料です!
・住宅ローンに自信あります!
・頭金10万円より購入できます。是非ご相談下さい!
・お部屋のご見学は車で2~3件まとめて案内します!
・物件数3000件以上、新築戸建、リノベ物件も多数ご用意しております!
過去に販売していたお部屋の概要 このお部屋の販売は終了いたしました。
| 価格 | -万円 |
| 面積 | 38.58㎡ |
| 間取り | 1bedroom(1LDK) |
| 管理費 | 月額11,100円 修繕積立金:月額6,600円 |
| 所在階 | 8F |
| お問い合わせ・ご内見のご予約はこちらからお気軽にどうぞ | |
間取りのご紹介です。1LDK、38.58㎡。
南向きで陽当り・通風良好なお部屋です☀
玄関前の共用廊下。マンションにオートロックはありませんが、お部屋にはTVモニター付きインターホンが設置されており、毎日の安心安全な生活をサポートしてくれます。平成28年に交換された玄関ドアはダブルロックキーでピッキング対策も◎。
ではお部屋の中へ。
玄関ホールは白基調の明るい空間。
人感センサーがついているので、人を感知して自動で照明が消灯します。
スイッチを押す手間が省ける上、節電効果もあります。
玄関正面には天井まで高さのあるシューズBOXが設置されています。
棚の高さは変えられるのでブーツや長靴など背の高い履物もお仕舞いただけます。
玄関をあがると、右手はウォークインクローゼットになっています。
大きな荷物などはここにまとめて置けますよ(´▽`*)
窓があるんで換気ができるのもうれしいですね。
窓側上には棚が設置されています。
上の空間まで余すところなく物が収納できますね。
つづいて玄関をあがって左手の扉の奥は・・・
約9.8帖のLDKです。
手前がキッチンスペース、奥がリビングダイニングスペース。
リビングにいる家族と会話を楽しみながらお料理ができます♪
キッチンは3口コンロ、浄水機能付きのシャワー水栓とスペック◎。
シンクや野菜もラクラク洗えます!
リビングダイニングスペースは南向き。
明るい空間は家族のくつろぎの場にピッタリ♡
家具が置いてあるので実際の生活のイメージもつきやすいのではないでしょうか。
窓側からもご覧ください。
キッチン横の扉から洗面室へいけるようになっています。
水まわりが近いと家事もまとめてこなしやすそうです。
洗面室。脱衣スペースに余裕があります。
入口に段差がないので出入りもスムーズ(*‘ω‘ *)
洗面化粧台は鏡の裏や引き出しなど収納スペースが豊富。
蛇口は引き出せるシャワーノズルになっており、洗髪やお掃除もラクにできます。
壁面のモザイクパネルもオシャレでステキですね♡
トイレはウォシュレット付き。上には吊戸棚、横には可動棚が設置されており、収納スペースもしっかり確保されています。窓があるのもグー。
洗濯機置場。上には吊戸棚がついています。
洗剤や洗濯ネットなども手の届くところに置いておけて便利。
バスルームは追い焚き、浴室換気乾燥機能付きと設備充実。
乾燥機があれば雨の日や夜のお洗濯も安心です。カビ対策にもなりますよ。
ちなみにTOTO製です。
1部屋ある洋室はLDKに隣接しており、3枚の可動扉で仕切れるようになっています。
洋室は約4.1帖。
大型のクローゼットがあるので、大きな収納家具は用意しなくて済みそうです。
お部屋が広く使えていいですね。
扉をあけて洋室とLDKをつなげると一体感のあるより明るい空間になりました。可動棚は壁の向こう側へ仕舞い込めるので開けたままでもスッキリ見えます。
お好みで使い分けてみてくださいね。
最後に洋室とLDKに面しているバルコニーに出てみます。
約5.74㎡、南向き。
この日は曇天でしたが、晴れた日は陽ざしが期待できます☀
眺望。遠くに高層ビルが見える開放感のある眺めです。これは夜景も楽しみですね☆
ただ、工事中の再開発地が眼下に見えるので、多少眺望は今後変わるかもしれません(・ω・)
内見のご予約やご質問などございましたらお気軽にお問い合わせくださいませ♪
弊社、不動産Agent 六棒株式会社では、
□リノベーションマンションはほぼ全て仲介手数料無料!
□その他一般仲介物件は仲介手数料20%~30%OFF!
にてお取り扱いしております!※弊社の「Agent Fee=仲介手数料」についてはご案内、ご面談の際に営業担当者よりご説明いたします!
なるべく沢山のお部屋をホームページに掲載したいと思っておりますが、時間的成約もございますので、残念ながらご紹介できるお部屋の一部しか掲載できておりません。
このホームページに掲載中のお部屋、その他サイト等で気になるお部屋、街を歩いていて気になったマンション等々ございましたら是非、弊社営業部までご相談ください!
~不動産Agent 六棒株式会社の特徴~
・センチュリー21加盟店です!
・一般仲介物件の仲介手数料は20%~30%OFFにてご案内中です!
・リノベーションマンションについてはほぼ全て仲介手数料無料です!
・住宅ローンに自信あります!
・頭金10万円より購入できます。是非ご相談下さい!
・お部屋のご見学は車で2~3件まとめて案内します!
・物件数3000件以上、新築戸建、リノベ物件も多数ご用意しております!
過去に販売していたお部屋の概要 このお部屋の販売は終了いたしました。
| 価格 | -万円 |
| 面積 | 38.58㎡ |
| 間取り | 1bedroom(1LDK) |
| 管理費 | 月額:11,100円 修繕積立金:月額6,600円 |
| 所在階 | 5階 |
| お問い合わせ・ご内見のご予約はこちらからお気軽にどうぞ | |
間取りのご紹介です。1LDK、38.58㎡。
南東向きにつき陽当り良好なお部屋です。
眺望も良好です!これは夜景も期待できそうです。
室内は只今リノベーション工事中!
一足先に充実のリノベーション内容をご紹介いたします。
■キッチン・・・システムキッチン
■浴室・・・ユニットバス(TOTO)、追い焚き機能付き、浴室換気乾燥暖房機付き
■洗面所・・・洗面化粧台 、洗濯水栓、防水パン
■トイレ・・・LIXIL、ウォシュレット機能付き
■その他・・・フローリング貼替、壁・天井クロス張替、フロアタイル貼替、クッションフロア張替、建具・玄関収納交換、給湯器交換、エアコン(1基)、カラーTVモニター付きインターフォン、新規照明器具取付、収納棚新設、スイッチ・コンセント交換、ハウスクリーニング
■アフターサービス保証付き
【内装工事終了予定:2015年6月中旬】
















































































































弊社 公式HP
六棒総合研究所
掲載予定物件
価格変更と販売終了物件
ハザードマップ検索
適合証明書.jp
Facebook
Twitter
Instagram