・
□□□□□□□□□□□□□□□□□□□□□□□□□□□□□□□□□□□□□□□
いつも弊社ホームページをご覧頂き誠にありがとうございます。
大森永谷マンションはお陰様で販売を終了致しました。弊社問合せフォームにてご要望頂けましたら、当お部屋でキャンセル等が発生した場合、他のお部屋が販売になりました際にご紹介させて頂きます。
不動産Agent 六棒株式会社
TEL:03‐5413‐5336
□□□□□□□□□□□□□□□□□□□□□□□□□□□□□□□□□□□□□□□
・
品川区南大井エリアより総世帯数260戸の大規模マンション!
大森永谷マンション のご紹介です。ゼヒご覧ください。
アクセス
京急本線「立会川」駅徒歩6分
JR京浜東北線「大森」駅徒歩13分
さて、大井町と言えば!!?
ここで坂本竜馬!と答えることができる人はかなりの歴史オタクですよ!!
あまり知られていませんが、ペリー来航の際に若かりし龍馬がこの地で湾岸警備をしていたそうですよ!!
さりげなく、いろんなところに坂本竜馬がいます(`・ω・´)
そして、大森・大井町には!!
大井競馬場と!
平和島競艇場と!!
しながわ水族館がありますよ!!
お休みの日のレジャーには困りませんね(っ´∀`c)
マンションから徒歩10分程の品川区民公園にはプール・バーベキュー場・釣り堀などもありますよ!!
大森永谷マンションは昭和48年築、15階建て、総世帯数260戸の大規模マンション。
平成25年8月に大規模修繕工事が実施済みとなっています。
また敷地内にバイク置場、駐輪場があります。(空き状況は都度確認が必要です。)
エントランス横に管理人室があります。
オートロックは付いていないですが、管理人さんが目を光らせてくれていますよ!!
エレベーターは一番奥にあります。
緑の屋根が付いた通路をまっすぐ進んでいきます。
上からみるとこんな感じです。
緑の通路の横は駐車スペースになっています。
マンション専用のゴミ置き場も敷地内にありました。
外に出なくてもゴミを捨てにこれるのが便利ですね(*‘ω‘ *)
ゴミ置き場の横は駐輪スペースになっているようです。
エレベーターは2基設置。朝のラッシュ時もスムーズに外出ができそうです。
それではエレベーターで今回のフロアへあがりましょう!!
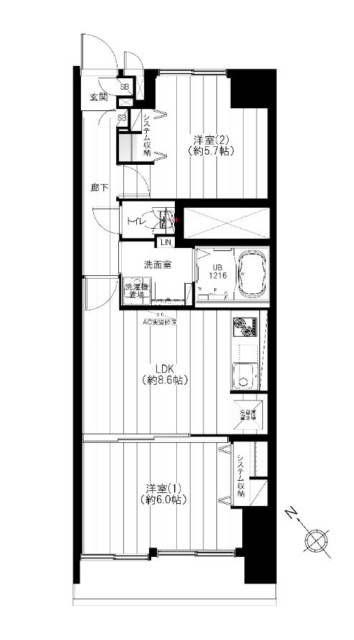
今回ご紹介するのは2階、専有面積50.58㎡の2LDK。おひとり暮らしからスモールファミリーの方まで幅広くお使いいただけるお部屋です。
間取り図はコチラ ↓ ↓ ↓
※間取り図は別タブで開きますので、確認しながらご覧いただくことができます。
只今リノベーション工事中
12月下旬完成予定ですのでお楽しみに!
・
以上で大森永谷マンションのご案内を終わります。
いかがでしたでしょうか??
大森駅から徒歩13分のマンションです。
リノベーション済みという事で室内はとてもキレイですよ (っ・ω・)っ
内見のご予約やご質問などございましたらお気軽にお問い合わせくださいませ。
ご連絡お待ちしております。
弊社、不動産Agent 六棒株式会社では、一般仲介物件は仲介手数料20%~30%OFF!
にてお取り扱いしております!
なるべく沢山のお部屋をホームページに掲載したいと思っておりますが、時間的成約もございますので、残念ながらご紹介できるお部屋の一部しか掲載できておりません。
このホームページに掲載中のお部屋、その他サイト等で気になるお部屋、街を歩いていて気になったマンション等々ございましたら是非、弊社営業部までご相談ください!
~不動産Agent 六棒株式会社の特徴~
・一般仲介物件の仲介手数料は20%~30%OFFにてご案内中です!
・住宅ローンに自信あります!
・頭金10万円より購入できます。是非ご相談下さい!
・お部屋のご見学は車で2~3件まとめて案内します!
・物件数3000件以上、新築戸建、リノベ物件も多数ご用意しております!
過去に販売していたお部屋の概要 こちらのお部屋の販売は終了いたしました
| 価格 | -万円 |
| 面積 | 53.46㎡ |
| 間取り | 1bedroom(1SLDK) |
| 管理費 | 月額8,200円 修繕積立金:月額5,300円 |
| 所在階 | 3階 |
| お問い合わせ・ご内見のご予約はこちらからお気軽にどうぞ | |
ここで間取り図のご紹介です。
※間取り図は別タブで開きますので、確認しながらご覧いただく事が出来ます。
今回ご紹介するお部屋は3階、間取りは1SLDK、専有面積は53.46㎡。1SLDKとはなっていますが、実質2LDKのお部屋です。お一人暮らしやDINKSの方におススメ!

廊下は左に折れていて戸口から室内が見えないような造り。宅配便やフードデリバリーなど知らない人が訪ねて来ることも多い昨今、これならプライバシー的に安心ですね。玄関外にはモニター付きインターホンも設置されているので、事前に映像で確認することも可能です。

こちらは約3.9帖のサービスルーム。
廊下に面した独立性の高いお部屋です。サービスルームとは採光や換気によって建築基準法で居室とは認められない部屋のこと。とはいえ法律上のことなので洋室として使えることがほとんどです。もちろんこのお部屋も、窓や大きなウォークインクローゼットを備えた立派な洋室ですよ!

廊下の突き当りはトイレになっています。
INAX製の洗浄機能一体型。トイレットペーパーや掃除道具を置いておくのに便利な棚も付いています。

洗面室には洗面化粧台、洗濯機スペース、浴室がまとまっていて脱衣所を兼ねています。洗面化粧台は身だしなみを整えるのに便利な三面鏡付き。ミラーキャビネットなど収納も豊富で、洗面周りの細々としたものもすっきり収まります。洗濯機スペースには吊戸棚も付いているので洗剤などはこちらへどうぞ。

モノトーンでまとめられたスタイリッシュな浴室。
追い焚き機能付きユニットバスで、ボタン一つでお風呂を沸かすことが出来ます。保温もしてくれるのでいつでも温かいお風呂に入れますよ。嬉しいのは浴室換気乾燥機!!天気を気にせずご自身のタイミングで洗濯機をまわせます♬

こちらは約12.1帖のリビング・ダイニング・キッチン。
南西向きのバルコニーに面した窓のある明るいお部屋です。木目を生かしたフローリングをもとにシンプルな色使いでコーディネイトされ、居心地のよさそうな落ち着いた雰囲気になっていますね。

家具は付いてきませんが、飾ってあることによって生活のイメージが付きやすくて助かります。大きさや色、素材感などいろいろ参考にさせてもらいましょう!LDKにも収納棚が付いていて、散らかり勝ちなリビングを片付けるのに便利です。

キッチンは人気のカウンタータイプ。リビングダイニングとコミュニケーションがとりやすく、お料理中でもご家族やご友人との会話が弾むキッチンです。コンロ前に設置された油跳ね防止の衝立も、透明なガラス製なので解放感を損なうことはありません。食器洗浄乾燥機や浄水機能一体型水栓など便利機能も充実しています。

こちらは約4.3帖の洋室。
陽当たりはご覧の通り!LDKと同じく南西向きバルコニーに面したお部屋です。大きなウォークインクローゼットが設置され室内に収納家具を置く必要はありません。さらに、全ての扉をデッドスペースを作らない引き戸にすることによって、お部屋のスペースを有効に使えるようになっています。セミダブルくらいなら余裕で置けそうですよ。
・
以上で大森永谷マンションのご案内を終わります。
いかがでしたでしょうか??
大森駅から徒歩13分のマンションです。
リノベーション済みという事で室内はとてもキレイですよ (っ・ω・)っ
内見のご予約やご質問などございましたらお気軽にお問い合わせくださいませ。
ご連絡お待ちしております。
弊社、不動産Agent 六棒株式会社では、一般仲介物件は仲介手数料20%~30%OFF!
にてお取り扱いしております!
なるべく沢山のお部屋をホームページに掲載したいと思っておりますが、時間的成約もございますので、残念ながらご紹介できるお部屋の一部しか掲載できておりません。
このホームページに掲載中のお部屋、その他サイト等で気になるお部屋、街を歩いていて気になったマンション等々ございましたら是非、弊社営業部までご相談ください!
~不動産Agent 六棒株式会社の特徴~
・一般仲介物件の仲介手数料は20%~30%OFFにてご案内中です!
・住宅ローンに自信あります!
・頭金10万円より購入できます。是非ご相談下さい!
・お部屋のご見学は車で2~3件まとめて案内します!
・物件数3000件以上、新築戸建、リノベ物件も多数ご用意しております!
過去に販売していたお部屋の概要 こちらのお部屋の販売は終了いたしました
| 価格 | -万円 |
| 面積 | 48.60㎡ |
| 間取り | 2bedroom(2LDK) |
| 管理費 | 月額7,800円 修繕積立金:月額5,000円 |
| 所在階 | 10階 |
| お問い合わせ・ご内見のご予約はこちらからお気軽にどうぞ | |
ここで間取り図のご紹介です。
※間取り図は別タブで開きますので、確認しながらご覧頂くことが出来ます。
今回ご紹介するお部屋は10階、間取りは2LDK、専有面積は48.60㎡。お一人暮らし、又はDINKSの方などにお勧めのお部屋です。では、早速行ってみましょう。
エレベーターを10階で降りると広いエレベーターホールに出ました。そこから外廊下を進むとお部屋へ到着です。
玄関ドア横にはテレビモニター付きインターホンが設置されていて、お部屋の中から訪問者を確認する事が出来ます。事前にチェックすれば、しつこいセールスに悩まされる事もありませんね。
廊下は木目を生かした温かい雰囲気。リノベーション直後なのでとても綺麗です。最近は段差のあまりない上り口も増えていますが、このくらいあった方が靴を履いたりする時に座れていいんですよね(^^)
人感センサーが自動的にライトを点けてくれるので、暗い中手探りでスイッチを探す必要はありません。両手が塞がっている時などにはほんと助かりますよね。いつでも明るい玄関が迎えてくれるのも嬉しいです(*´▽`*)
シューズボックスは大小二つ。ロータイプ上のカウンターには照明も付いていて、いろいろ飾ってインテリアを楽しむことが出来ます。家の顏、綺麗に飾ってあげましょう!トールタイプの方は奥行きが少し狭め。
では、お部屋の中へ…
こちらは約8.6帖のリビング・ダイニング・キッチン+約6帖の洋室。仕切り戸を開けて二部屋をつなげた様子です。ご家族構成によっては、こんな感じに広いLDKとして使うのもありですね。LDKには窓がありませんので、広さだけでなく明るさもアップしますよ。
収納された引込式の扉を引き出せば…
本来の約6帖の洋室に戻ります。南西向きのバルコニーに面した大きな窓があり、とても明るいお部屋ですね。
収納はクローゼット。ハンガーポールと棚が設置されたシステム収納タイプです。奥行きも深いので収納力も抜群ですよ。
LDKだけだとこんな感じ。リビングとダイニング両方作るのはチョット窮屈かもしれませんね。兼用の家具がいいかな・・・
LDKのアクセントパネルはただのお洒落ではありません。「エコカラット」といって空気をキレイにしたり湿度調節をしたりしてくれます。
キッチンは壁付けタイプ。場所をとらずに部屋を広く使うことが出来ます。ただし、キッチン内が目立つので出来るだけ綺麗にしておきましょうね^^;)
収納は調理台下と吊戸棚。引き出しタイプのスライドキャビネットは出し入れがし易く、たくさん詰めても中身の確認がしやすいのが特徴です。
コンロは2口、グリル付き。調理中は換気扇をお忘れなく!窓を開け、少し前から回し始めると効果的らしいですよ。
食器洗浄乾燥機!!!憧れなんですよね~、洗い物から解放されるなんて夢のようです♡水栓は浄水機能付きシャワー水栓。切替えるだけで気軽に美味しいお水を使う事が出来ます。ノズルが伸びてシンクのお掃除も楽々♬
廊下へ戻って、次のお部屋へ…
こちらは約5.7帖の洋室。北東向きの窓のあるお部屋です。
収納は先程と同じシステム収納。サイズは少しコンパクトです。窓の外は外廊下。面格子やインナーサッシが設置されているので、騒音や防犯面で安心ですね。
次はトイレへ…
洗浄便座はTOTO製のウォシュレット。トイレットペーパーなどのストックに便利な吊戸棚も付いていますよ。梁のおかげで少し低い位置で助かります。この位置ならトイレットペーパー落下事件も起きなかったかと^^;)
次は洗面室へ…
洗面室には洗面台の他に、洗濯機スペース、浴室、リネン棚がまとまっていて、脱衣所も兼ねています。洗濯機スペースの上部には棚やハンガーポールも付いていて、かゆい所に手が届くって感じですね(^^)
洗面台は三面鏡付き。鏡上部の照明のおかげで鏡を使う時に影になることもありません。
こちらはとにかく収納が豊富!細々した物が多くなりがちな洗面廻りには、豊富な収納は有り難いですね。細かい物から大きな物までバランスよく収まりそうです。
水栓はハンドシャワータイプ。ノズルが伸びてシンクを流したりに便利です。ヘッド自体も高くなるので簡単なシャンプーもお任せ下さい。
浴室は木目のアクセントパネルで温かな雰囲気。リラックスしたバスタイムを過ごせそう♬
ノーリツ製追い焚き機能が付いたユニットバス。「ふろ自動」ボタンひとつでお風呂を沸かすことが出来ます。そのまま保温してくれるのでいつでも温かいお風呂に入れますよ。
ゆったり浸かれる1216サイズの浴槽。
浴室換気乾燥機は浴室の換気乾燥はもちろんのこと、暑い季節は涼風、寒い季節は浴室暖房、梅雨の季節は洗濯物乾燥など、一年を通して大活躍!もちろん24時間換気も付いていますよ。
それでは最後はバルコニーのご紹介。
奥の洋室の窓から出られます。窓にはインナーサッシ設置で、防音性や断熱性がパワーアップ!!
広さ7㎡、南西向き。奥行きが深くゆったりとしたバルコニーです。これならお洗濯物を干すのも楽ですね。お昼くらいからがお勧めです。
外はご覧の通りのいい眺め!今日は残念なお天気でしたが、晴れた日には富士山も見えるらしいですよ♬
・
以上で大森永谷マンションのご案内を終わります。いかがでしたでしょうか?
内見のご予約やご質問などございましたらお氣軽にお問い合わせくださいませ♪
弊社、不動産Agent 六棒株式会社では、
□リノベーションマンションはほぼ全て仲介手数料無料!
□その他一般仲介物件は仲介手数料20%~30%OFF!
にてお取り扱いしております!※弊社の「Agent Fee=仲介手数料」についてはご案内、ご面談の際に営業担当者よりご説明いたします!
なるべく沢山のお部屋をホームページに掲載したいと思っておりますが、時間的成約もございますので、残念ながらご紹介できるお部屋の一部しか掲載できておりません。
このホームページに掲載中のお部屋、その他サイト等で気になるお部屋、街を歩いていて気になったマンション等々ございましたら是非、弊社営業部までご相談ください!
~不動産Agent 六棒株式会社の特徴~
・一般仲介物件の仲介手数料は20%~30%OFFにてご案内中です!
・リノベーションマンションについてはほぼ全て仲介手数料無料です!
・住宅ローンに自信あります!
・頭金10万円より購入できます。是非ご相談下さい!
・お部屋のご見学は車で2~3件まとめて案内します!
・物件数3000件以上、新築戸建、リノベ物件も多数ご用意しております!
過去に販売していたお部屋の概要 このお部屋の販売は終了いたしました。
| 価格 | -万円 |
| 面積 | 37.80㎡ |
| 間取り | 1bedroom(1LDK) |
| 管理費 | 月額6,500円 修繕積立金:月額4,100円 組合費:月額200円 |
| 所在階 | 6F |
| お問い合わせ・ご内見のご予約はこちらからお気軽にどうぞ | |
間取りのご紹介です。1LDK、37.80㎡。
クリックすると別タブで開きますので、よかったら間取りをみながら写真を
ご覧ください!
ご紹介するお部屋は6階です。
階数表示の下には「禁煙」プレートが貼られています。
玄関前の共用廊下には目の高さについたてが設置され、プライバシーに配慮されたつくりになっています(*‘ω‘ *)

インターホンはTVモニター付き。
事前に来訪者の顏が確認できるので防犯面も安心ですね。
ではお部屋の中へおじゃまします。
室内はリノベーション済みでピカピカです(´▽`*)
玄関横の木目調の扉はシューズBOXです。
背の高いタイプで収納力もバッチリ!
玄関をあがると廊下がまっすぐ伸びています。
建具もフローリングも木目調でやさしい雰囲気です。
廊下をまっすぐ進み、正面の扉をあけてLDKから見ていきましょう(*´▽`*)
ささ、どうぞお入りください。
LDKは南西向きに大きな窓が付いた明るい空間となっています。
どんな色合いの家具を置いてもしっくり馴染みそうですね(*´▽`*)
LDKを入ってすぐ左側は洗濯機置場になっています。
洗剤は上の棚に置いておけますよ。
扉等は特にないので気になる方は後からブラインドやカーテンなどを設置してもよさそうです。
エアコンも新規で設置済み。引っ越したその日から快適に過ごせますね!
ちなみに機種は日立の白くまくんです。
窓側からもLDKをご覧ください。
壁付けでキッチンが設置されています。
天井に設置された2つのダウンライトがお料理する手元をやさしく照らしてくれます。
浄水器一体型水栓にグリル、スライド収納と使い勝手がよさそうなキッチンです。ちょうどシンクとコンロの間にコンセントの差口があるので、ミキサーなどの調理家電を使う時に便利です。
水栓はホースを伸ばすとシャワーになります。
お鍋にお水を入れたり、シンクを隅々までお掃除するのにいいですね。
つづいてLDKを出て廊下側を順番に見ていきましょう。
廊下を出て右側の扉は洗面室です。
扉はスライド式です。
洗面室内には洗面化粧台とバスルームがまとまっています。
洗面化粧台はシュッとスリムな印象のものが設置されています。
化粧水のボトルや歯ブラシなどの小物類は洗面ボウル下の収納スペースに保管しておくとよさそうです。
こちらはバスルーム。
バスルームも壁パネルはお部屋と同じく木目調です。
やさしい雰囲気で1日の疲れも癒されながらリセットできそうです(*´ 艸`)
追い焚き、浴室換気乾燥機能付きと設備も充実しています。
毎日使うところですので、設備は充実しているに越したことはありませんd(´∀`*)ネッ!
洗面室のお隣がトイレになっています。
トイレはウォシュレットとサニタリー用品を仕舞うのに便利な吊戸棚がついています。チェックのアクセントクロスもおしゃれですね。
トイレのお隣は洋室です。
扉を左側へスライドして入ってみましょう。
少しお部屋の形が変わっているので家具の配置には工夫が要るかも?
という印象です(*‘ω‘ *)
この窓際のスペースをどう使うか・・・!
間取りを見ながら色々想像してみてくださいね。
収納にはクローゼットがついていますよ。
最後にLDKへ戻ってきてバルコニーに出てみましょう。
扉は二重サッシになっています。
防音や結露対策、断熱に効果テキメンです+.゚(*´∀`)b
南西向きのバルコニーは約4.90㎡。
1、2名分のお洗濯物を干すには充分な広さではないでしょうか(*‘ω‘ *)
バルコニー正面の眺望です。
大きなマンションが建っていますが、距離があります。
晴れた日は陽ざしがしっかり届きそうです☀
左右も開放感のある眺めが楽しめます。
静かな住宅街が広がる風景なのですが、ひとつお伝えしておきますと右下には線路が走っています。
一定間隔で電車が走る音がしますが、個人的には気にならないレベルです。音の感じ方には個人差がございますので、ゼヒ現地で実際にご確認されることをおすすめいたします。
大森永谷マンション、いかがでしょうか?
内見のご予約やご質問などございましたらお氣軽にお問い合わせくださいませ♪
弊社、不動産Agent 六棒株式会社では、
□リノベーションマンションはほぼ全て仲介手数料無料!
□その他一般仲介物件は仲介手数料20%~30%OFF!
にてお取り扱いしております!※弊社の「Agent Fee=仲介手数料」についてはご案内、ご面談の際に営業担当者よりご説明いたします!
なるべく沢山のお部屋をホームページに掲載したいと思っておりますが、時間的成約もございますので、残念ながらご紹介できるお部屋の一部しか掲載できておりません。
このホームページに掲載中のお部屋、その他サイト等で気になるお部屋、街を歩いていて気になったマンション等々ございましたら是非、弊社営業部までご相談ください!
~不動産Agent 六棒株式会社の特徴~
・一般仲介物件の仲介手数料は20%~30%OFFにてご案内中です!
・リノベーションマンションについてはほぼ全て仲介手数料無料です!
・住宅ローンに自信あります!
・頭金10万円より購入できます。是非ご相談下さい!
・お部屋のご見学は車で2~3件まとめて案内します!
・物件数3000件以上、新築戸建、リノベ物件も多数ご用意しております!
過去に販売していたお部屋の概要 このお部屋の販売は終了いたしました。
| 価格 | -万円 |
| 面積 | 42.30㎡ |
| 間取り | 1bedroom(1LDK) |
| 管理費 | 月額:7,200円 修繕積立金:月額4,600円 組合費:月額200円 |
| 所在階 | 14階 |
| お問い合わせ・ご内見のご予約はこちらからお気軽にどうぞ | |
ここで間取りのご紹介です。1LDK、42.30㎡。
クリックすると別タブで開きますので、よかったら間取りをみながら写真を
ご覧ください!
ご紹介するお部屋は14階。
エレベーターでグイグイ上がってきましたよ!!
玄関前からは開放感のある眺めが楽しめます。
朝一番でいい眺めをみると、気分よく1日のスタートがはじめられそう
ですねd(´∀`*)ネッ!
お部屋にはTVモニター付きインターホンが設置されています。
事前に来訪者の顏が確認できるので防犯面も安心(*´ 艸`)
ではお部屋の中へおじゃまします。
室内はリノベーション済でピカピカです+.ヽ(´∀`*)ノ ゚+.゚
玄関はなんと大理石貼りでツルツルですよ!
玄関をあがるとすぐ横に背の高いシューズBOXが設置されています。
収納力があるので靴はまとめてここで管理できそうですね!
棚の高さが調節できるのも便利です。
玄関をあがると廊下がまっすぐ伸びています。
廊下をグイグイ進んだ先、正面の扉をあけてLDKから見ていきましょう!
じゃじゃん。
LDKは南東向きに大きな窓がついた明るい空間です゚+.゚(´▽`人)゚+.゚ィィ!!
家具が置いてあるので実際の生活イメージもつきやすいですね!
窓際に2人掛けのソファを置いてもゆとりがあります。
壁側にはちょっとしたデスクが置けるくらいの余裕がありますよ。
天井にはダウンライトの他、ダクトレールにスポットライトがついています。
照明を変えたり、後から付け足したりとアレンジができるのがいいですね。
LDK内には奥行きのある棚付きの収納があります。
日用品のストックなど生活感が出るアイテムはこの中へ入れておくとよさそうです。
ところで・・・この壁に造作された中に鏡の付いた棚にワタクシ心惹かれました(*´ 艸`)中に置くものでお部屋のイメージもグンと変わりそうでステキです。
そろそろキッチンを見ていきましょう。
キッチンスペース。一番奥に冷蔵庫が置けるようになっています。
壁側にちょっとした収納家具が設置できるくらいの余裕があります。
キッチンはオフホワイトっぽい色合いでお部屋に馴染んでいます。
スライド式の収納は物の出し入れがしやすく使い勝手がよさそうです。
浄水器一体型水栓に食洗器、グリル付きと設備も充実しています。
水栓はホースを伸ばすとシャワーになるので大きなお鍋に水を入れるのも簡単にできますよ。
そしてキッチンの向かい側はカウンターになっています。
写真のようにダイニングテーブル代わりに利用するのがいいですね!
食べた後の後片付けもスムーズに進められそうです。
今度はLDKを出て廊下側を見ていきましょう。
廊下を出てすぐ右側の扉はトイレです。
トイレはモチロン、ウォシュレット付きです。
上には吊戸棚が設置されています。
トイレの掃除道具などはこの中へどうぞ。
トイレの向かい側は洗面室になっています。
洗面室は脱衣スペースを囲むように洗面化粧台、バスルーム、洗濯機置場が配置されています。やや脱衣スペースがコンパクトな印象です(*‘ω‘ *)
洗濯機置場の上には吊戸棚が設置されています。
手の届くところに洗剤が置いておけて◎。
バスルームの表扉にはタオル掛けがついています。
お風呂から出る時に手がすぐ届くところにバスタオルがあると便利ですよね。
ナチュラルな色合いの壁パネルでやわらかい雰囲気のバスルームです(*´ 艸`)ステキ
追い焚き機能、浴室換気乾燥機がついて設備も充実しています。
毎日使うところなので設備が充実しているのはお部屋を選ぶ際にも重要ポイントではないでしょうか!?(*‘ω‘ *)
洗面化粧台は鏡の裏、引き出しと収納スペースが豊富。
ドライヤーやタオルなども仕舞っておけそうです。
水栓はホースを伸ばすとシャワーになります。
これで寝ぐせも簡単になおせますね!身だしなみバッチリで外出できるはず。
さらに玄関側へ進みます。
右側の扉は多目的収納になっています。
L型に枕棚とポールが設置された広々とした収納スペースです。
掃除機や扇風機などの季節家電、衣替えのお洋服など色々まとめて仕舞っておけそうです。
多目的収納の向かい側は洋室です。
どうぞお入りください。
ベッドとちょっとした家具を置いてちょうどよい広さという印象です(*‘ω‘ *)
クローゼットもついていますよ!
LDKに戻ってきて最後にバルコニーに出てみましょう。
バルコニーは南東向き、6.30㎡。
この日は曇天でしたが晴れた日は陽ざしが期待できますよ☀
真正面の眺望。お部屋が高層階なだけあり、開放感たっぷりの眺めが楽しめますd(´∀`*)これは遊びに来たお友達に自慢できますね!
左右の眺めもグー。これは夜景も楽しみですね☆
大森永谷マンション、いかがでしょうか?
内見のご予約やご質問などございましたらお気軽にお問い合わせくださいませ。
ご連絡お待ちしております。
過去に販売していたお部屋の概要 このお部屋の販売は終了いたしました。
| 価格 | -万円 |
| 面積 | 48.60㎡ |
| 間取り | 2bedrooms(2LDK) |
| 管理費 | 月額:7,800円 修繕積立金:月額5,000円 組合費:月額200円 |
| 所在階 | 8階 |
| お問い合わせ・ご内見のご予約はこちらからお気軽にどうぞ | |
こちらが今回ご紹介させて頂くお部屋の間取りです。
南西向きのバルコニーからの眺望もGOODです!!
さっそく参りましょう(((((((((((っ・ω・)っ
エレベーターを降りると外廊下になっています。
湿気や臭いが籠らないので、この規模のマンションだとオススメですよ!!
目の前にJRの東海道本線が通っています(・∀・)
ドアの前にはカメラ付きのインターフォンが付いています。
オートロックが付いて居なくても、お部屋の中から廊下の様子を確認できるのは心強いですね!!
面倒な訪問者は顔を合わせることなくお帰り頂けますよ∠(`・ω・´)
玄関に入ると、中は木目を生かした優しさのある内装です。
リノベーション済みという事でピカピカですよ(☆Д☆)
玄関の照明は人感センサーで反応しているので、無駄な電気代をカットすることが出来ます!!
左側には手前からシューズインクローゼット・洗濯機置場・マルチクローゼットとなっています。
間取り図とは順番が少し違いますが、まぁ、気にしないでください(`・ω・´)
一枚には収まらなかったので。
全てに扉が付いているので、来客時にはしっかりと目隠しが出来ますね!!
急な来客でも安心です(*^艸^)
玄関はおしまいにして奥へと進みましょう -=≡ヘ(*・ω・)ノ
こちらはリビング・ダイニング・キッチンです。
広さは約8帖です。
縦に長いお部屋になっていますね!
小さなカウンタースペースがあるので、日用品などはこちらに置くことが出来そうです。
奥にも何やらお部屋がありますね・・
奥の洋室は約7.5帖。
リビングとはスライド式のドアで仕切られているので、このように開けてしまえば大きなLDKとしても使うことが出来ますヽ(・∀・ )ノ
こちらにもエコカラットが使われています。
南西向きの窓なのでとても明るいお部屋ですよ 。゜+.(o´∀`o)゜+.゜
ウォークインクローゼットが付いています。
コの字にハンガーポールが付いているので、かなりの量のお洋服を掛けることが出来そうです。面倒な衣替えもあっという間に終わりそうですね ( ̄∀ ̄*)
もちろんドアを閉めれば1つのお部屋としても機能します。
状況に応じて使い分けていきたいです!!
次はキッチンです。
3口のグリル付きガスコンロ、浄水機能付きの水栓はシャワーヘッドになっています。
正面の壁にカウンター状になっている部分があるので、常温で保存できる調味料などはこちらに置いておく事もできそうです(U^ω^)
収納力も申し分ないです。
どんなお料理がこのキッチンから生まれていくのか・・・ 想像するだけで楽しくなっちゃいますね(○´ω`○)
キッチンの背後に扉がありますね。。。
こちらは洗面室です!!
大きな棚が付いているので、タオルなどはこちらにストックすることが出来ます。
洗面化粧台にはビルドインタイプの水栓が付いています。
上から下へ水が流れるので、一般的なもののように根元に水垢が溜まることがありません。
シャワーヘッドになっているので、簡単な洗髪もできますし、お掃除も捗ります (´∀`)
ミラーの内部は収納スペースになっているので、歯ブラシや基礎化粧品といった小物を入れることが出来ます。
電源もついているのでドライヤーやヘアアイロンも使えますよ(・`ω´・ ○)
次はお風呂です。
浴室乾燥機能が付いているので、雨の日はお洗濯物を浴室で干すことが出来ます。
乾燥させることで劣化を防ぐこともできますので、日常的に使っていきたい機能ですよ!!
追い焚き機能を使えば、時間にしばれることなくお風呂を楽しむことが出来ますよ。
たまに入る朝風呂ってなんだか、すっごく楽しい気分になりますよね??
横長のミラーが浴室を広く見せてくれるので、リラックス効果も当社比3倍です!!
洗面台の隣のドアを開けるとトイレになっています。
ウォシュレットが付いているのは嬉しいですね (っ´∀`c)
吊戸棚の他にカウンターも付いています。
観葉植物を置けば、無機質になりがちなトイレの雰囲気もガラッと変わると思いますよ!
玄関の前のドアを忘れていました・・・
こちらは約5.6帖の洋室です。
窓が付いているシンプルなお部屋です。寝室にはちょうど良さそうな気がします。
2重サッシになっているので、遮音性に優れたお部屋になっています (/ω・\)
最後にバルコニーです。
目の前には東海道本線が通っています。
2重サッシのおかげで、お部屋の中ではほとんど気にならないレベルになります。
電車好きには嬉しい眺望ですね!!
では、以上で大森永谷マンションのご案内を終わります。
いかがでしたでしょうか??
管理体制良好の大規模マンションでした。
リノベーション済みという事で室内はとてもキレイですよ (・`ω´・ ○)
内見のご予約やご質問などございましたらお気軽にお問い合わせくださいませ。
ご連絡お待ちしております。
弊社、不動産Agent 六棒株式会社では、
□リノベーションマンションはほぼ全て仲介手数料無料!
□その他一般仲介物件は仲介手数料20%~30%OFF!
にてお取り扱いしております!※弊社の「Agent Fee=仲介手数料」についてはご案内、ご面談の際に営業担当者よりご説明いたします!
なるべく沢山のお部屋をホームページに掲載したいと思っておりますが、時間的成約もございますので、残念ながらご紹介できるお部屋の一部しか掲載できておりません。
このホームページに掲載中のお部屋、その他サイト等で気になるお部屋、街を歩いていて気になったマンション等々ございましたら是非、弊社営業部までご相談ください!
~不動産Agent 六棒株式会社の特徴~
・一般仲介物件の仲介手数料は20%~30%OFFにてご案内中です!
・リノベーションマンションについてはほぼ全て仲介手数料無料です!
・住宅ローンに自信あります!
・頭金10万円より購入できます。是非ご相談下さい!
・お部屋のご見学は車で2~3件まとめて案内します!
・物件数3000件以上、新築戸建、リノベ物件も多数ご用意しております!
過去に販売していたお部屋の概要 このお部屋の販売は終了いたしました。
| 価格 | -万円 |
| 面積 | 37.80㎡ |
| 間取り | 1bedroom(1LDK) |
| 管理費 | 月額6,500円 修繕積立金:月額4,100円 組合費:月額200円 |
| 所在階 | 8階 |
| お問い合わせ・ご内見のご予約はこちらからお気軽にどうぞ | |
間取りのご紹介です。1LDK、37.80㎡。
8階・南向きにつき陽当り・眺望ともに良好☀
シングルの方におすすめです。室内はリノベーション済み。
眺望。視界を遮るものがない爽快な眺めです。
【リノベーション内容】
■キッチン・・・システムキッチン(パナソニック)
■浴室・・・ユニットバス(TOTO)、浴室換気乾燥暖房機付
■洗面所・・・洗面化粧台 、洗濯水栓、防水パン
■トイレ・・・LIXIL、ウォシュレット付き
■その他・・・フローリング貼替、建具・玄関収納交換、壁・天井クロス貼替、フロアタイル貼替、クッションフロア貼替、給湯器交換、エアコン(1基)、カラーTVモニター付きインターホン、新規照明器具取付、収納棚新設、スイッチ・コンセント交換、ハウスクリーニング
■アフターサービス保証付き
ご内見のご希望・ご質問などございましたら、お気軽にお問い合わせくださいませ♪














































































































































































































































弊社 公式HP
六棒総合研究所
掲載予定物件
価格変更と販売終了物件
ハザードマップ検索
適合証明書.jp
Facebook
Twitter
Instagram