・
□□□□□□□□□□□□□□□□□□□□□□□□□□□□□□□□□□□□□□□
いつも弊社ホームページをご覧頂き誠にありがとうございます。
パレス池田山はお陰様で販売を終了致しました。弊社問合せフォームにてご要望頂けましたら、当お部屋でキャンセル等が発生した場合、他のお部屋が販売になりました際にご紹介させて頂きます。
不動産Agent 六棒株式会社
TEL:03‐5413‐5336
□□□□□□□□□□□□□□□□□□□□□□□□□□□□□□□□□□□□□□□
・
池田山公園や自然教育園・庭園美術館など緑豊かな立地にある、低層ビンテージマンションのご紹介です!
JR山手線・東急池上線・都営浅草線「五反田」駅徒歩8分、JR山手線・東急目黒線・東京メトロ南北線・三田線「目黒」駅徒歩10分で利用可能。
今回は、五反田駅からお部屋へ向かいます。
西口にはアトレがあり、成城石井も入ってます。
駅ビルの「レミィ五反田」には東急ストアなど多くの店舗が入っており、JR山手線・東急池上線の出入口もこちらにあります。
こちらは緑豊かな癒しの場「池田山公園」
池を中心とした回遊式庭園は高低差のある起伏に富んだ造りになっています。
通り沿いから長いアプローチが続きます。
そして到着!
『パレス池田山』
昭和56年3月築、4階建て地下1階付、総戸数28戸。
平成21年大規模修繕工事済み。
白基調の重厚感のある外観とエントランス階段。
階段を上がると広々としたエントランスホール。
こちらはエントランスロビー。
安心の住込み管理で共有部は大変きれいに管理されていました。
アプローチからエントランスロビーまで大変ゆったりとした造りになっています。
共有部には中庭をはじめ緑が多くあり、きれいに植栽されています。
緑のエレベーターで上がります。
各階廊下にも植栽があり、常に緑を目にしながらお部屋へ向かいます。
今回ご紹介するのは2階、専有面積66.42㎡の2SLDK。おひとり暮らしからスモールファミリーの方まで幅広くお使いいただけるお部屋です。
間取り図はコチラ ↓ ↓ ↓
※間取り図は別タブで開きますので、確認しながらご覧いただくことができます。
《リノベーション内容予定》
◇システムキッチン交換(食洗機付)◇洗面化粧台交換 ◇トイレ交換 ◇建具交換
◇照明器具交換 ◇フローリング張替 ◇フロアタイル貼替 ◇クロス貼替
◇専有部内給排水管交換 ◇ハウスクリーニング等
では早速行ってみましょう!
【サービスルーム】
約3.5帖のサービスルーム。昨今サービスルームというと洋室として使われることが多いのですが、こちらは納戸として想定されているようです。シューズボックスもここにあるので、玄関から靴のまま入ってここから入るイメージでしょうか。もうひとつのドアから廊下に出ることができます。通常の上り口もありますがこちらはお客様用ですかね。
【洗面室】
洗面室には洗面化粧台の他に洗濯機スペースと浴室がまとまっていて脱衣室も兼ねています。洗面化粧台は身だしなみを整えるのに便利な三面鏡付き。裏がキャビネットになっているので、洗面周りに散らかりがちな細々したものもスッキリと片付けることができますよ。浴室方面が気になって仕方ありませんが・・・笑
【浴室】
すりガラス仕様と便利な浴室乾燥機を兼ね備えた、デザイン性と快適さを両立する浴室空間ですね◎
【トイレ】
温水洗浄機能一体型のトイレです。埋め込み収納が付いていて、トイレットペーパーや掃除用品もすっきり片付きます✨
【洋室1】
こちらは約5.6帖の洋室です。床までの大きな窓で開放感があり、クローゼット付きで収納も便利です◎
【LDK】
こちらは約20.5帖のリビング・ダイニング・キッチンです。二面採光で明るさと広さを両立した居心地の良い空間です。
【LDK】
木目にモノトーンを合わせたナチュラルモダンなお部屋♬
【キッチン】
キッチンは人気のカウンタータイプ。お料理中でもご家族と一緒の時間を過ごせる一体感が人気の理由です。食器洗浄乾燥機に洗い物をお任せして食後はのんびりしちゃいましょう!
【LDK+洋室2】
LDKに隣接する洋室は約3帖とコンパクトですが、二面が扉でLDKとつなげて広く使用することも可能です。書斎・趣味スペースなど、ライフスタイルに合わせて柔軟に活用できる点が魅力ですよね◎♪
・
以上でパレス池田山のご案内を終わります。
いかがでしたでしょうか??
五反田駅から徒歩8分のマンションです。
リノベーション済みという事で室内はとてもキレイですよ (っ・ω・)っ
内見のご予約やご質問などございましたらお気軽にお問い合わせくださいませ。
ご連絡お待ちしております。
弊社、不動産Agent 六棒株式会社では、
□リノベーションマンションはほぼ全て仲介手数料無料!
□その他一般仲介物件は仲介手数料20%~30%OFF!
にてお取り扱いしております!※弊社の「Agent Fee=仲介手数料」についてはご案内、ご面談の際に営業担当者よりご説明いたします!
なるべく沢山のお部屋をホームページに掲載したいと思っておりますが、時間的成約もございますので、残念ながらご紹介できるお部屋の一部しか掲載できておりません。
このホームページに掲載中のお部屋、その他サイト等で気になるお部屋、街を歩いていて気になったマンション等々ございましたら是非、弊社営業部までご相談ください!
~不動産Agent 六棒株式会社の特徴~
・一般仲介物件の仲介手数料は20%~30%OFFにてご案内中です!
・リノベーションマンションについてはほぼ全て仲介手数料無料です!
・住宅ローンに自信あります!
・頭金10万円より購入できます。是非ご相談下さい!
・お部屋のご見学は車で2~3件まとめて案内します!
・物件数3000件以上、新築戸建、リノベ物件も多数ご用意しております!
過去に販売していたお部屋の概要 こちらのお部屋の販売は終了いたしました
| 価格 | -万円 |
| 面積 | 76.75㎡ |
| 間取り | 2bedrooms(2LDK) |
| 管理費 | 月額:30,700円 修繕積立金:9,200円 |
| 所在階 | 2階 |
| お問い合わせ・ご内見のご予約はこちらからお気軽にどうぞ | |
間取りのご紹介です。2LDK、76.75㎡。2階。
<リノベーション内容>
■フローリング、壁・天井クロス新規貼替
■給水管・給湯管新規交換(専有部)
■照明器具新規設置
■建具・玄関収納等新規交換
■ノーリツ製洗面化粧台新規交換
■TOTO製洗浄便座月付トイレ新規交換
■TOTO製ユニットバス新規交換(浴室換気乾燥機付・魔法瓶浴槽)
■クリナップ製システムキッチン新規交換(人造大理石トップ)
■ハウスクリーニング・・・等
※7月にリノベーション工事が完了しました!!
玄関を開けると、まだできたばかりの明るくきれいなお部屋が出迎えてくれました。
先ず目に飛び込んでくるのは廊下いっぱいの収納棚~~~~~☆
いやぁ、壮観ですわぁ☆
手前二つはシューズボックスです。もちろんトールサイズで可動式なので、あれもこれもぜーんぶ入りますよ(多分)☆
奥の二つは収納棚です。これだけあれば、掃除機に扇風機に空気清浄機に・・・みーんなはいるんじゃないですか!?
収納魂に火が付きますね~笑
廊下を戻って一番手前が7.5帖の洋室です♪
北向きの窓が気になるので開けてみると・・・
中庭の植栽が目の前にありました(^v^)
中庭は吹抜けになっているので、陽の光に照らされ、植物たちが元気な顔を見せてくれました~(*^。^*)
南側にはクローゼットがあります。奥行きもあって広い造りになっているので、夏物・冬物綺麗に整頓できそうですね☆
洋室の隣りにサニタリールームがあります。
洗面台はとっても広く、カウンターが両サイドについているので、歯磨きの時もお化粧の時も、コンタクトを入れる時もとっても便利です!(^^)!
鏡の下のタイルがアクセントになって、オシャレ感出てますね~☆
洗面台の隣りには収納棚があります。
奥行きはありませんが、タオルや掃除道具をしまっておくスペースとしては充分ですね(^_-)-☆
洗濯機置場は棚の正面にあります。こちらには棚はありませんので、先程の棚を有効活用してくださいねっ!!
バスルームは全体的に白基調で清潔感がある室内です。
シャワーヘッドのボタンでお湯を出したり止めたりできるので、節水できますよ♪
魔法瓶浴槽なので、一度温めたお湯がなかなか冷めにくくなっているんです。とってもエコですね~♪
また、浴室換気乾燥機も付いていますので、雨の日や、外では干しにくい物などはこの乾燥機をお使いください(^^)/
トイレはシンクがないタイプなので、とってもスッキリ☆
棚付の小さな洗面台が付いています(^v^)
上部に吊り棚もあるので、室内はいつもスッキリさせておけますよっ(^_-)-☆
廊下の突き当りの引戸を開けると、20.2帖のゆったりリビングダイニングキッチンが広がります。
窓が南側と西側についているので、とても明るく開放感があります☆
キッチンはとっても使いやすいL字型。作業台が広いので、このキッチンならいろんなお料理にチャレンジできますねっ(*^。^*)
収納もたっぷりありますので、いろんな種類のフライパンやお鍋を揃えたくなっちゃいますね♪
キッチンの隣には可動式の棚があるので、食材のストックや調理器具、ゴミ箱も置いておきたいですね(^v^)
奥様好みのキッチンにアレンジしちゃってください(^v^)
キッチンカウンターの奥には奥行きたっぷりの収納棚があります。
これだけ収納が多いと、リビングも本当にスッキリと使えて、気持ちいい毎日が過ごせそうですね!!
リビングの奥に4.9帖の洋室があります。
南から西にかけて窓がL字につながっているので、とっても明るく、部屋が大きく見えました☆
北側の壁は一面クローゼットなので、こちらにも大きな物をしまっておけますよ。
お布団なんかもしまっておけそうですね(*^^)v
リビングからテラスに出ることができます。
あれ??ここは2階では??と思いますが、お庭が広がっているんです☆
テラス同様、専有部分ではありませんが、お隣さんともフェンスで区切られているので、
ちょっとしたガーデニングなんかやりたくなっちゃいますね~(#^.^#)
いかがですか?五反田駅から8分歩いただけで、こんな静かな場所があるんですね♪
緑も多く、部屋の中は収納が多いので、部屋の中も外もスッキリと気持ちのいい場所でした。
皆さんにもこの贅沢な空間を味わっていただきたいっ!!
皆様のお問い合わせ、心よりお待ちしております。
過去に販売していたお部屋の概要 このお部屋の販売は終了いたしました。
| 価格 | -万円 |
| 面積 | 81.87㎡ |
| 間取り | 2bedrooms(2LDK) |
| 管理費 | 月額:32,700円 修繕積立金:9,800円 |
| 所在階 | 2階 |
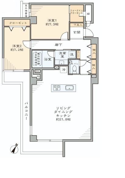
間取図はこちら。
南東向きの2LDK 81.87㎡ アイランドキッチンのLDKは広々21.8帖!
プライベート・パブリック分離の間取り設計。
給湯基本料:910円・従量料金1,290円/㎡(10㎡超)
下水道料基本料金:1560円(10㎡以下)・従量料金290円/㎡(10㎡超)
白基調の清潔感のある玄関ホールは廊下へ一直線でないため、プライバシーが守られています。
シューズBOXは可動棚タイプで高さ調整可能。
まずはサニタリールームから。
正面に洗面台、右側にバスルーム、左側にランドリースペースの配置になっています。
三面鏡の裏は収納スペースになっています。
落ち着いた色合いのバスルーム。浴槽槽は冷めにくい魔法瓶浴槽で水栓はタイマー式。
続いて、7.3帖のベッドルーム。
収納タップリウォークインクローゼット。
こちらは7.2帖のベッドルーム
L時のコーナー窓で採光を多く取り入れます。
玄関ホールからリビングへ。
途中には姿見鏡と収納スペースが並んでいます。
リビングまでの廊下の途中にトイレがあります。
そして21.8帖の広々リビング。
南東向きにお部屋は、明るい日差しが差し込みます。
開放感のあるアイランドキッチン。
キッチンは3口ガスコンロ、蛇口一体型浄水器水栓等充実しており、食器洗浄乾燥機も取り付け可能です。(別途費用)
半円のふくらみが印象的なバルコニー。
バルコニーからも緑が望める気持ちのいいお部屋です。
緑に囲まれて過ごす『パレス池田山』いかがでしたでしょうか。
安心のアフターサービス保証付き!
皆様のご内見、心よりお待ちしております!


































































































弊社 公式HP
六棒総合研究所
掲載予定物件
価格変更と販売終了物件
ハザードマップ検索
適合証明書.jp
Facebook
Twitter
Instagram