□□□□□□□□□□□□□□□□□□□□□□□□□□□□□□□□□□□□□□□
いつも弊社ホームページをご覧頂き誠にありがとうございます。
スカーラ品川戸越スカイタワーはお陰様で販売を終了致しました。弊社問合せフォームにてご要望頂けましたら、当お部屋でキャンセル等が発生した場合、他のお部屋が販売になりました際にご紹介させて頂きます。
弊社では、仲介手数料無料orお値引(50%off、30%off、20%off)にて皆様のマイホーム探しのお手伝いをさせて頂きいております。スカーラ品川戸越スカイタワーの類似物件や、お探しのご条件等をお聞かせ頂けましたらご条件に合ったお部屋をご紹介させて頂きます。また、ご来社頂き一緒に探させて頂くことも可能ですので、是非弊社問合せフォームよりお気軽にお問合せください。
不動産Agent 六棒株式会社
TEL:03‐5413‐5336
□□□□□□□□□□□□□□□□□□□□□□□□□□□□□□□□□□□□□□□

東急池上線『戸越銀座』より徒歩7分。
2SLDKのリノベーションマンションのご紹介です!
都営浅草線『戸越』駅徒歩9分、目黒線『武蔵小山』駅徒歩15分も利用可能。
駅前は戸越銀座商店街。いたるところで商店街のマスコットキャラの銀ちゃん(戸越銀次郎)がお出迎えしてくれます。

戸越銀座商店街はスーパーやコンビニ、飲食店からABCマート・・・
とお買物にはとても便利。暮らしやすい環境が整っています。


この日は戸越銀座駅から行ってみました。改札をでるとお隣は亀屋万年堂。
その間の細い道を抜けてマンションまで向かってみました。
意外とこの細い道、利用される方が多いみたいです。抜けると線路沿いにでて住宅街
の中に入っていきます。

マンションは中原街道沿い。マンション近くにはラーメン屋やコンビニもあります。

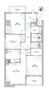
ここで間取りのご紹介です。2SLDK、68.88㎡。

スカーラ品川戸越スカイタワーは平成11年築、14階建て、総世帯数33戸。
タイル貼りのシュッとした外観がカッコイイです。

管理は巡回管理ですが、エントランスはオートロックがついているので安心です。


エレベーターでお部屋のある2階へ。階段でもすぐ上がれる距離なのもいいですね。
お部屋は南西角部屋です。

玄関を入ると左手にはトールサイズのシューズBOXがつくられています。
照明による陰影で幻想的な空間になっています。もちろん収納量も◎。

廊下をまっすぐ進み・・・

つきあたり右側のガラスの入った扉の奥は約12.6畳のLDK。


南側の窓から差し込む柔らかな陽ざしで明るく開放的なリビングスペース。
壁面に施したアクセントクロスもスタイリッシュでオシャレです。
カウンターもつくられているのでオブジェや植物などお好みのものをディスプレイ
すればさらにおしゃれリビングになりそうです!

LDKの入口横には収納もつくられています。(棚の高さも変えられます。)
家族で共有のものをしまうのに重宝しそうです。

キッチンスペース。窓があるので自然換気ができるのもうれしいです。



ホワイトの木目柄のキッチンは3口コンロ、カウンター部分は人造大理石と見た目もステキですがスペックも◎。収納も上下にたっぷり。
キッチングッズも整理整頓しやすそう。
カウンターキッチンなのでリビングにいる家族と会話を楽しみながらお料理の支度ができますね。

LDKと3枚の可動式の扉で区切られた奥は洋室になっています。
扉は壁の向こうへしまいこめるので、開けたままでも見た目はスッキリです。

扉をあけると約5.5畳の広さ。こちらも壁面にはスタイリッシュなアクセントクロスが使用されています。

さらに収納はウォークインクローゼットがつくられています。
大型収納があると生活空間を広く使えるので助かります。

2部屋つなげて広々と利用することもできます。
生活シーンに合わせてフレキシブルなレイアウトをお楽しみいただけます。

バルコニーは2か所。約5.5畳の洋室から南側に面したバルコニーにでられます。
人口芝生敷き&扉は二重サッシ。

目の前は中原街道。車の走る音はそれなりにしますが、サッシをしめてしまえば気になりません。音の感じ方は個人差があるのでこの辺は是非現地で実際にご確認されることをおすすめします。目の前に太陽も登っていて陽当りは◎!

洋室は他にも2部屋。

1部屋目は約4.0畳のサービスルーム。枕棚付きの幅広クローゼットがつくられています。

2部屋目は約6.0畳の広さ。こちらにも枕棚付きのクローゼットがつくられています。

約6.0畳の洋室側にもバルコニーがつくられています。北西向き。

外は静かで穏やかな住宅街がつづいています。

最後に水廻りをまとめてご紹介します。
洗面室は入口入って右手にバスルーム、正面に洗面化粧台、左手に洗濯機置場の並びになています。


洗面化粧台は3面鏡の裏が収納になっています。ゴチャゴチャしがちな水廻りもスッキリ保てます。お掃除しやすい洗面ボール一体型カウンターなところもナイスです。
左側にはリネン庫もあるのでタオルやシャンプーのストックなんかを置いておけます。

洗濯機置場の上には棚がつくられているので洗剤をここに収納すれば足元はスッキリ。


アンティークブラウン柄をアクセントにした落ち着いた雰囲気のバスルーム。
追い焚き機能と浴室換気乾燥機付きです。
天井に入ったラインの照明もカッコイイです。

トイレは洗面室をでて左手にあります。
ウォシュレット吊戸棚付き。ちなみに節水型のECOトイレです。








弊社 公式HP
六棒総合研究所
掲載予定物件
価格変更と販売終了物件
ハザードマップ検索
適合証明書.jp
Instagram