・
□□□□□□□□□□□□□□□□□□□□□□□□□□□□□□□□□□□□□□□
いつも弊社ホームページをご覧頂き誠にありがとうございます。
アルテール新宿はお陰様で販売を終了致しました。弊社問合せフォームにてご要望頂けましたら、当お部屋でキャンセル等が発生した場合、他のお部屋が販売になりました際にご紹介させて頂きます。
不動産Agent 六棒株式会社
TEL:03‐5413‐5336
□□□□□□□□□□□□□□□□□□□□□□□□□□□□□□□□□□□□□□□
・
東京メトロ丸ノ内線「西新宿」徒歩2分!!
リノベーションマンション『アルテール新宿』のご紹介です!
JR新宿駅からも徒歩12分の距離にあります。
ご案内の前にまずはこちらをご覧ください!
□□□□□□□□□□□□□□□□□□□□□□□□□□□□□□□□□□□□□□□
★★★【アルテール新宿】周辺のハザードマップをCHECK!!★★★
お部屋の記事を読む前に…!周辺のハザードマップをチェックしておきませんか!
アルテール新宿のハザードマップは★こちらから…どうぞ★
□□□□□□□□□□□□□□□□□□□□□□□□□□□□□□□□□□□□□□□
東京メトロ丸ノ内線「西新宿」駅からは青梅街道を進み徒歩2分ほど。
周辺には飲食店などが多くあります。
新宿アイランドも近くこちらにも多くの飲食店や郵便局・書店・薬局なども入っています。
大きな公園、新宿中央公園も散歩にちょうど良い距離にあります。
マンションの隣には成子天神社。
その左側に佇む大きなマンションです。
『アルテール新宿』
昭和58年築、13階建て、総戸数161戸の大規模マンションです!
安心の新耐震基準!
1階部分には飲食店などが入っています。
奥まで進むとゴミ置場がありました。マンションとはまた別棟でした。
エントランスは青梅街道沿いにあります。
大規模修繕済みでエントランスもリニューアルされて大変きれいになっています。
安心のオートロック完備。
オートロックを入ると正面に管理室。
エレベーターは2基。待ち時間が短くて済みそうです。
過去に販売していたお部屋の概要 こちらのお部屋の販売は終了いたしました
| 価格 | -万円 |
| 面積 | 47.52㎡ |
| 間取り | 1bedrooms(1LDK) |
| 管理費 | 月額15,060円 修繕積立金:月額11,210円 |
| 所在階 | 3階 |
| お問い合わせ・ご内見のご予約はこちらからお気軽にどうぞ | |
今回ご紹介するお部屋は3階、専有面積47.52㎡の1LDK。おひとり暮らしやDINKSの方にお勧めのお部屋です。オール電化です。
間取り図はコチラ ↓ ↓ ↓
※間取り図は別タブで開きますので、確認しながらご覧いただくことができます。
では早速行ってみましょう!
【玄関廊下:廊下にマルチウォークインクローゼット】
【洗面室:三面鏡付き洗面化粧台・洗濯機スペース】
【浴室:1216サイズ・追い焚き機能・浴室換気乾燥機付き】
【トイレ:洗浄機能一体型・吊り戸棚付き】
【LDK:約12.4帖・木目を多用した温かみのある雰囲気・家具付き】
【LDK:南東向き・省スペースのカウンターダイニング】
【LDK:在宅ワークなどに便利なDENスペース】
【キッチン:カウンタータイプ・IHコンロ・食器洗浄乾燥機付き】
【洋室:約5帖・ウォークインクローゼット付き】
【眺望:成子天神社参道を望む】
・
以上でアルテール新宿のご案内を終わります。
いかがでしたでしょうか??
西新宿駅から徒歩2分のマンションです。
リノベーション済みという事で室内はとてもキレイですよ (っ・ω・)っ
内見のご予約やご質問などございましたらお気軽にお問い合わせくださいませ。
ご連絡お待ちしております。
弊社、不動産Agent 六棒株式会社では、
□リノベーションマンションはほぼ全て仲介手数料無料!
□その他一般仲介物件は仲介手数料20%~30%OFF!
にてお取り扱いしております!※弊社の「Agent Fee=仲介手数料」についてはご案内、ご面談の際に営業担当者よりご説明いたします!
なるべく沢山のお部屋をホームページに掲載したいと思っておりますが、時間的成約もございますので、残念ながらご紹介できるお部屋の一部しか掲載できておりません。
このホームページに掲載中のお部屋、その他サイト等で気になるお部屋、街を歩いていて気になったマンション等々ございましたら是非、弊社営業部までご相談ください!
~不動産Agent 六棒株式会社の特徴~
・一般仲介物件の仲介手数料は20%~30%OFFにてご案内中です!
・リノベーションマンションについてはほぼ全て仲介手数料無料です!
・住宅ローンに自信あります!
・頭金10万円より購入できます。是非ご相談下さい!
・お部屋のご見学は車で2~3件まとめて案内します!
・物件数3000件以上、新築戸建、リノベ物件も多数ご用意しております!
過去に販売していたお部屋の概要 こちらのお部屋の販売は終了いたしました
| 価格 | -万円 |
| 面積 | 47.87㎡ |
| 間取り | 2bedrooms(2LDK) |
| 管理費 | 月額10,120円 修繕積立金:月額11,300円 |
| 所在階 | 2階 |
| お問い合わせ・ご内見のご予約はこちらからお気軽にどうぞ | |
ここで間取り図のご紹介です。
※間取り図は別タブで開きますので、図面を確認しながら記事を読んでいただく事が出来ます。
今回のお部屋は2階、間取りは2LDK、専有面積は47.87㎡。L字型の広いバルコニーが気になりますね。おひとり暮らし又はDINKSの方にお勧めです。では、早速行ってみましょう。
1階のエレベーターホールとは違って、2階のエレベーター部分は鮮やかな赤に塗られています。
ご紹介するお部屋の玄関前にきました。サブウェイタイル風のタイルが貼られた外壁に、淡いグリーンの扉が映えます。
このようなレトロな玄関扉でもインターホンはモニター付き。ダブルロックでない玄関扉であっても、モニター付きインターホンがあれば、見知らぬ来訪者は事前にシャットアウトできますね。
それではお部屋の中をご案内して行きましょう!玄関扉、オープン!
玄関から入ってすぐ先にはダイニングキッチンスペースが広がっています。
廊下やホールがない構造です。通路的な空間を極力少なくし、そのかわり居住空間を確保した間取りですね。
玄関扉側を振り返ってみてみましょう。玄関のタタキ部分はそれなりの広さで使い勝手は良さそうです。
下足入れの下は間接照明が仕組まれています。
下足入れはトール型。2人分の靴は楽々収納出来そうです。
玄関の照明は人感センサー付き。玄関の出入り時にスイッチを操作しなくてよいのはとても楽ですし、消し忘れも防止できるので、実は省エネです。
玄関から右手にに広がるダイニングキッチンです。約7.3畳の広さです。
キッチン奥のバルコニーへ出るドアからとても明るい日差しが届いています。
キッチン側からダイニングスペースをご覧いただきます。
ダイニングキッチンを中心に各居室と水廻りが配置されています。
木目調の落ち着いたキッチンです。壁面はパネルとなっているのでお掃除が楽々です。
ご覧の通りの引出し収納と吊戸棚!これだけあれば食器棚は必要ないかもしれませんね。
コンロは3口のIHです。グリルもちゃんとありますよ♬
レンジフードは薄型で、圧迫感なくキッチンに馴染んでいます。
食後の家事軽減の神器!食器洗浄乾燥機が設置されていました!!
キッチンの水栓は浄水機能付きシャワー水栓。ワンタッチで浄水に切り替え可能です。
ミネラルウォーターを購入する必要がないので、この水栓のおかげである意味省スペースになりますね![]()
キッチン奥にはバルコニーへの出入り口があります。その手前は冷蔵庫置場とパントリースペースとなっております。パントリースペースには可動棚が付いていました。食品のストックやゴミ箱を置いておけるこのようなスペースがあるのは嬉しい限りです。
キッチンの背面にある引き戸を開けると…
約6.9畳の洋室がありました。
こちらのお部屋は2面採光でとても明るいです。
先ほど入ってきた引き戸を閉めるとこんな感じです。一部アクセントクロスが貼られた壁面があります。
クローゼットの扉を開けるとL字型に棚板が設置されていました。
引き戸側には可動式の棚板収納があります。こちらは本棚として使えそうです。
引き戸は壁側に収納可能な構造になっています。吊り下げタイプなのでレールがなく、ダイニングキッチンと一体化してのご利用も可能です!
開け放つと約14畳の広さの空間になりますよ!
こちらの写真でお分かりになるかと思いますが、この日差し!日向ぼっこ&お昼寝したくなるほどですね![]()
次は引き戸の隣にある扉を開けてみます!
こちらは約5.2畳の洋室です。
このお部屋にもアクセントクロスが採用されています。この明るさ!写真を見ていると眠くなりそうです(笑)日差しが眠気を誘いますね![]()
出入り口の扉の隣にはウォークインクローゼットがありました。
ハンガーパイプと枕棚がL字型に設置されています。
ウォークインクローゼットは住まい手の工夫でアレンジできるので、あると嬉しいもののひとつですね。
さて、玄関側に戻りまして、そのすぐそばにある扉は…
トイレです。スッキリとして清潔感がありますね!
タオルハンガーやペーパーホルダーのデザインがシンプルで洗練されています。
温水暖房便座付。吊戸棚もあります。吊戸棚はトイレットペーパーなどのストックが十分に入る大きさです。
キッチンの右側にも扉がありましたね!
こちらは洗面室への扉になります。
洗面室に入ってすぐ左側には電気温水器がかくれんぼ。
そうです、今回ご案内しているお部屋はオール電化です!電気は災害時ダメージを受けてもインフラの中で一番回復が早いと言われています。
洗面化粧台と洗濯機置場が並んでいます。
洗濯機置場上部は吊戸棚付。これが付いているのといないのとでは、便利度が全然違いますよ!
洗面化粧台の鏡左側は収納となっております。
化粧台下部は観音開きの収納と引出し収納がありました。
観音開きの収納はデッドスペースが少なくて済みますね!
水栓は蛇口が引き出せるタイプです。シンクのお掃除に一役買ってくれます!
浴室は大理石調のパネルがアクセントになっています。
収納棚などがスッキリとした印象です。
シャワーはスライドバーに設置されており、お好みの高さに調節可能です。
浴槽は追い炊きできますよ!
シャープなデザインの浴槽。
浴室暖房換気乾燥機付です。梅雨時でもお洗濯に悩まされずに済みますね!
最後にバルコニーをご案内します。
バルコニーにはすべての居室から出入り可能です。窓にはインナーサッシが設置されていて、防音や省エネ、結露防止効果が期待できます。
キッチンのガラスドアからバルコニーに出てみましょう♬
南西向きのバルコニーは奥行きがやや狭めですが陽当りは最高!
コーナーを曲がって…
南東側に来ました。こちらは奥行きゆったりです。物干し金物が設置されていましたので、洗濯物はこちらで干しましょう!
南東向きの眺望です。成子天神社が見えます。正面には建物がありますが、距離があるので圧迫感はあまりありません。
南西向きの眺望です。道幅が広いので、高いビルがあっても意外と開放的ですよ!
以上でアルテール新宿のご案内を終わります。
いかがでしたでしょうか??
西新宿駅から徒歩2分のマンションです。
リノベーション済みという事で室内はとてもキレイですよ (っ・ω・)っ
内見のご予約やご質問などございましたらお気軽にお問い合わせくださいませ。
ご連絡お待ちしております。
□□□□□□□□□□□□□□□□□□□□□□□□□□□□□□□□□□□□□□□
★★★【アルテール新宿】周辺のハザードマップをCHECK!!★★★
お部屋のご購入前に…!周辺のハザードマップをチェックしておきませんか!
アルテール新宿のハザードマップは★こちらから…どうぞ★
□□□□□□□□□□□□□□□□□□□□□□□□□□□□□□□□□□□□□□□
弊社、不動産Agent 六棒株式会社では、
□リノベーションマンションはほぼ全て仲介手数料無料!
□その他一般仲介物件は仲介手数料20%~30%OFF!
にてお取り扱いしております!※弊社の「Agent Fee=仲介手数料」についてはご案内、ご面談の際に営業担当者よりご説明いたします!
なるべく沢山のお部屋をホームページに掲載したいと思っておりますが、時間的成約もございますので、残念ながらご紹介できるお部屋の一部しか掲載できておりません。
このホームページに掲載中のお部屋、その他サイト等で気になるお部屋、街を歩いていて気になったマンション等々ございましたら是非、弊社営業部までご相談ください!
~不動産Agent 六棒株式会社の特徴~
・一般仲介物件の仲介手数料は20%~30%OFFにてご案内中です!
・リノベーションマンションについてはほぼ全て仲介手数料無料です!
・住宅ローンに自信あります!
・頭金10万円より購入できます。是非ご相談下さい!
・お部屋のご見学は車で2~3件まとめて案内します!
・物件数3000件以上、新築戸建、リノベ物件も多数ご用意しております!
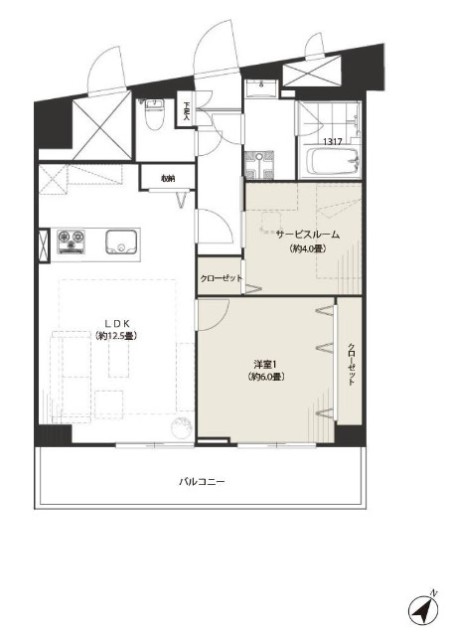
過去に販売していたお部屋の概要 このお部屋の販売は終了いたしました。
| 価格 | -万円 |
| 面積 | 57.34㎡ |
| 間取り | 1bedrooms(1SLDK) |
| 管理費 | 月額11,110円 修繕積立金:月額13,530円 |
| 所在階 | 8F |
| お問い合わせ・ご内見のご予約はこちらからお気軽にどうぞ | |
ここで間取り図のご紹介です。
※間取り図は別タブで開きますので、確認しながらご覧頂く事が出来ます。
□□□□□□□□□□□□□□□□□□□□□□□□□□□□□□□□□□□□□□□
★★★【アルテール新宿】周辺のハザードマップをCHECK!!★★★
お部屋の記事を読む前に…!周辺のハザードマップをチェックしておきませんか!
アルテール新宿のハザードマップは★こちらから…どうぞ★
□□□□□□□□□□□□□□□□□□□□□□□□□□□□□□□□□□□□□□□
今回のお部屋は8階、間取りは1SLDK、専有面積は57.34㎡。収納豊富でゆったりとした間取りのお部屋です。お一人暮らしやDINKSの方にオススメ。
エレベーターを8階で降りて、明るい外廊下を進むと…
玄関に到着です。ドア横にはテレビモニター付きインターホンが設置されていて、お部屋の中から訪問者を確認する事が出来ます。返事をする前にチェックすれば、嫌な思いをしてしつこいセールスを断らなくて済みますよ。
中は中間調のフローリングや木目の建具で落ち着いた雰囲気。リフォームしたてでとても綺麗です。
玄関ドアには二重ロック。防犯面でも安心ですね(^^)
人感センサーは中に入っただけで自動的にライト点けてくれます。暗い中手探りでスイッチを探す必要ももうありません。消し忘れも防げるので一石二鳥ですよ!
では、まずは突き当り右のドアから…
こちらは約12.5帖のリビング・ダイニング・キッチン。手前からキッチン、ダイニング、リビングの並びのオーソドックスなタイプのお部屋です。ただ、幅が広いので全体的にゆったりとした印象になっていますね。
家具は付いてはいませんが、置いてあると生活のイメージがし易くて助かります。大きさや色などの参考にさせてもらいましょう。
次はキッチンへ…
調理台後ろは冷蔵庫や家電ラック、食器棚などが置けるスペース。並びには収納棚も付いていて、食品ストックなどを入れておく事も出来ます。
お部屋の雰囲気に合わせた木目パネルの調理台。
調理台下には引き出しタイプの収納と食洗機。食洗機のいい所は楽なだけではありません。手では洗えない高温で洗う事で殺菌効果などもあるそうですよ。
水栓は浄水機能付きシャワー水栓。簡単に切替えられるので気軽に美味しい水を使えますね。
コンロは3口。IHでお掃除も楽々です。
油跳ね防止のガラスが換気扇とくっ付いています。あまり見ないタイプですがこれはいいですね。漏れなく煙を吸ってくれそうです(^^)グリルも付いていますが使用中は換気扇をお忘れなく!
この眺めがカウンターキッチンの一番のポイントです(*´▽`*)
次のお部屋へ…
こちらは約6帖の洋室。バルコニーに面した大きな窓のある明るいお部屋です。シンプルな色使いで色々な家具やカーテンなどを合わせられそうですね。
収納は間口が広くて使い易そうなクローゼット。お部屋の幅いっぱい使っていますので収納力抜群です。
次のお部屋へ…
こちらは約4帖のサービスルーム。窓の無いお部屋です。窓が無かったりするとサービスルームと表記されている事がありますが、ご心配なく。普通に洋室として使えますよ(^^)
引き戸使用でデッドスペースもありませんので、お部屋のスペースを無駄なく使う事が出来ます。
クローゼットは間口はそれ程ですが奥行きが深くなっています。手前にキャスター付きの収納を置いたり、色々工夫が出来そうです。
つぎはトイレへ…
少し段差がありますのでお気を付け下さい。
温水洗浄便座付き。TOTO製のウォシュレットです。
次は洗面室へ…
こちらには洗面台、浴室、洗濯機スペースがまとまっています。
洗面台下は収納になっていました。扉タイプの収納は奥の方が出し入れしづらくなりますので、収納グッズなどを上手く使いましょう。
水洗はハンドシャワータイプ。ヘッドが伸びて洗面ボウルを流したりに便利です。
洗濯機スペースには棚やハンガーポールが設置されていて、すぐ手の届く所に洗剤などの洗濯グッズを置いておけるのが嬉しいですね。
次は浴室へ…
追い焚き機能はスイッチ一つでお風呂を沸かしてくれますよ。お湯を冷めないようにしてくれたりもしますので、長風呂の方も安心です。
ゆったり浸かれる1317サイズの浴槽。
浴室乾燥機は浴室の換気に加え、洗濯物乾燥やヒートショック予防など様々な働きをしてくれます。どんどん使っていきましょう!2020
それでは、最後にバルコニーのご紹介。
洋室、LDKどちらの窓からでも出る事が出来ます。
広さは8.75㎡、二部屋にまたがる幅の広いバルコニーです。奥行きもたっぷりなのでお洗濯物も気持ち良くほ干せそうですね。
南方向にはちょっと大きめの建物が建っていますが…
東方向には見晴らしの良い眺めが広がっていましたよ。見下ろすのは申し訳ない気もしますが、下には成子天神社の鳥居も見えますね。
・
以上でアルテール新宿のご案内を終わります。
いかがでしたでしょうか??
西新宿駅から徒歩2分のマンションです。
リノベーション済みという事で室内はとてもキレイですよ (っ・ω・)っ
内見のご予約やご質問などございましたらお気軽にお問い合わせくださいませ。
ご連絡お待ちしております。
□□□□□□□□□□□□□□□□□□□□□□□□□□□□□□□□□□□□□□□
★★★【アルテール新宿】周辺のハザードマップをCHECK!!★★★
お部屋のご購入前に…!周辺のハザードマップをチェックしておきませんか!
アルテール新宿のハザードマップは★こちらから…どうぞ★
□□□□□□□□□□□□□□□□□□□□□□□□□□□□□□□□□□□□□□□
弊社、不動産Agent 六棒株式会社では、一般仲介物件は仲介手数料20%~30%OFF!にてお取り扱いしております!
なるべく沢山のお部屋をホームページに掲載したいと思っておりますが、時間的成約もございますので、残念ながらご紹介できるお部屋の一部しか掲載できておりません。
このホームページに掲載中のお部屋、その他サイト等で気になるお部屋、街を歩いていて気になったマンション等々ございましたら是非、弊社営業部までご相談ください!
~不動産Agent 六棒株式会社の特徴~
・一般仲介物件の仲介手数料は20%~30%OFFにてご案内中です!
・住宅ローンに自信あります!
・頭金10万円より購入できます。是非ご相談下さい!
・お部屋のご見学は車で2~3件まとめて案内します!
・物件数3000件以上、新築戸建、リノベ物件も多数ご用意しております!
過去に販売していたお部屋の概要 このお部屋の販売は終了いたしました。
| 価格 | -万円 |
| 面積 | 42.25㎡ |
| 間取り | 1bedrooms(1LDK) |
| 管理費 | 月額8,910円 修繕積立金:月額9,970円 |
| 所在階 | 9F |
| お問い合わせ・ご内見のご予約はこちらからお気軽にどうぞ | |
共用廊下は風通しのよい外廊下タイプ。壁は白いタイル貼りです。
1LDK、42.25㎡。リノベーション済みです!
クリックすると別タブで開くことも出来ます!
お部屋は9階。本日もエレベーターでグイグイ昇って参りました。
玄関扉は明るいグリーン。まわりの壁面は白いタイル貼りでさわやかな感じです。
インターホンはTVモニターがついているので、玄関扉を開ける前は来訪者の顏をチェックしましょう。オートロックがついていても油断は禁物です!
ではグリーンの玄関扉をあけておじゃまします。
室内はリノベーション済みでピカピカ♫
さらに玄関ホールは大理石貼りでぴかぴかつるつるです。
玄関照明には人感センサーがついており、人の動きを感知して自動で照明が消灯するようになっています。両手が荷物でふさがっていても大丈夫!すぐ明かりがつきますよ。
玄関横には背の高いシューズボックスがついています。
棚板が白いのでこまめにお掃除する習慣がつきそうです。収納力はもちろん◎!
シューズボックス向かい側の木目調の両開きの扉の中には電気温水器が入っています。こちらも新規交換されています。
玄関をあがると大理石貼り(!)の廊下になっています。
高級感がありますね!お掃除もしやすいそうですよ(*‘ω‘ *)
それでは廊下正面の扉をあけてリビングダイニングキッチンから見ていきましょう!
リビングダイニングキッチンは東向きに窓のついた縦長空間です。
こちらがリビングダイニングスペース。窓上の梁部分は木目調になっています。
家具が置いてあるので実際の生活イメージがつきやすいですね(´∀`)
窓にはブラインドがついており、閉めるとこんな感じ。
お部屋の雰囲気に合わせてベージュっぽい色合いです。
照明はダウンライト、ダクトレールにスポットライトと多彩です。
お部屋全体を優しく照らしてくれています。
間接照明も使われていますよ~。
窓側からもご覧ください。
キッチンは対面式ですので、リビングにいる家族やお友達と会話を楽しみながらお料理ができます♡
つづいてキッチンを見ていきましょう。
一番奥に冷蔵庫が置けるようになっています。
キッチンはフローリングに馴染む木目調。
収納は物の出し入れがしやすいスライドタイプです。
グリル、食洗機、浄水器一体型シャワー水栓と設備もバッチリ整っています。
水栓はホースが伸びるのでシンクのお掃除や大きなお鍋にお水を入れる時などに便利に使えますよ~。
ちなみにIHコンロです。お掃除がしやすいのが嬉しいですね゚+.゚(´▽`人)゚+.゚
キッチン向かい側はカウンターになっています。
イスを置けばダイニングテーブル代わりにもなりますね!ここで食事をするもよし、リビング側でテレビを見ながらのんびり食事をするもよし♫むふ。
洋室はリビングダイニング内から行けるようになっています。
ソファ横の白い扉を横にスライドさせると。。
こんな感じの洋室になっています。
シンプルな室内は置く家具も選ばなさそうですd(´∀`*)ネッ!
こちらのお部屋、クローゼットが2つもついているんです!!!
写ってないですが、奥行きがあるので収納力バッチリです。1つは掃除機や扇風機などの生活用品用、1つはお洋服用と使い分けてもいいですね。
今度はリビングダイニングキッチンを出て廊下側を見ていきましょう。
レッツゴー!!
廊下を出て右側の木目調の扉は収納です。
日用品のストックなどを仕舞っておくのによさそうですね。棚の高さは調節できます。
収納の向かい側は洗面室の扉があります。
扉を横にスライドさせまして。。洗面室です。
洗面化粧台、洗濯機置場、バスルーム、トイレがここにまとまっています。
洗面化粧台、洗濯機置場はお隣同士。白基調で清潔感がありますね♡
鏡の裏、吊戸棚など収納スペースも豊富です。
水栓はホースを伸ばすとシャワーとしても利用可能です。
寝ぐせを直す時はこのシャワーが活躍しますよ~。朝忙しくてお風呂に入っている余裕なんてない、なんて時にこの便利さ実感できるかと思います。
洗濯機置場の向かい側がトイレです。
トイレはTOTOのウォシュレット付きです。
ペーパーのストックを2、3コ&お掃除シートを入れて置くのによさそうな吊戸棚がついています。
バスルームは洗濯機置場横に扉があり、脱いだ衣類を洗濯機に入れやすいです。
浴室換気乾燥機がついており、雨の日や花粉の時期のお洗濯も安心。
バスルームはうすーい木目調の壁パネルが使われています。お部屋と統一感があっていいですね+.゚(*´∀`)b゚+.゚イィ
横長の鏡は空間に奥行きをもたらし、広く見せてくれる効果もあるそうです。
追い焚き機能もついているので、お好みの温度でしっかりあたたまって1日の疲れをとってくださいませ。
最後にリビングとお隣の洋室をつなぐバルコニーに出てみましょう。
どきどき。
バルコニーは約8.12㎡、東向き。手摺側は玄関扉と同じグリーン色です。
気になる眺望です。真正面には高い建物が建っていますが、左側の眺望は抜けています。マンションやビルが多いのが都会っぽい雰囲気です。さすが新宿。
右側はこんな感じ。やっぱりビルが多いですね!うーん、アーバン。
右下はエントランス前ぼ青梅街道が見えます。
大通りが近いですが、車の走行音はあまり気になりませんでした。音の感じ方は個人差がございますので、気になる方は現地でご確認をお願いいたします。
アルテール新宿、いかがでしたでしょうか?
内見のご予約やご質問などございましたらお気軽にお問い合わせくださいませ。
ご連絡お待ちしております。
弊社、不動産Agent 六棒株式会社では、
□リノベーションマンションはほぼ全て仲介手数料無料!
□その他一般仲介物件は仲介手数料20%~30%OFF!
にてお取り扱いしております!※弊社の「Agent Fee=仲介手数料」についてはご案内、ご面談の際に営業担当者よりご説明いたします!
なるべく沢山のお部屋をホームページに掲載したいと思っておりますが、時間的成約もございますので、残念ながらご紹介できるお部屋の一部しか掲載できておりません。
このホームページに掲載中のお部屋、その他サイト等で気になるお部屋、街を歩いていて気になったマンション等々ございましたら是非、弊社営業部までご相談ください!
~不動産Agent 六棒株式会社の特徴~
・センチュリー21加盟店です!
・一般仲介物件の仲介手数料は20%~30%OFFにてご案内中です!
・リノベーションマンションについてはほぼ全て仲介手数料無料です!
・住宅ローンに自信あります!
・頭金10万円より購入できます。是非ご相談下さい!
・お部屋のご見学は車で2~3件まとめて案内します!
・物件数3000件以上、新築戸建、リノベ物件も多数ご用意しております!
過去に販売していたお部屋の概要 このお部屋の販売は終了いたしました。
| 価格 | -万円 |
| 面積 | 47.52㎡ |
| 間取り | 2bedrooms(2LDK) |
| 管理費 | 月額10,100円 修繕積立金:月額11,210円 |
| 所在階 | 10階 |
| お問い合わせ・ご内見のご予約はこちらからお気軽にどうぞ | |
間取りのご紹介です。2DK、専有面積47.52㎡。
高層階につき陽当り・眺望ともに良好なお部屋です☀
室内はリノベーション済み。
【リノベーション内容】
■キッチン・・・システムキッチン(IH・洗浄機内蔵シャワー水栓)新規交換
■浴室・・・ユニットバス新規交換
■WC・・・トイレ(ウォシュレット付)新規交換
■洗面・・・洗面台・防水パン新規交換
■その他・・・クロス貼替、シーリングライト取付、フローリング張替、クリーニング等
玄関左側にトールタイプのシューズBOXがあります。
姿見鏡も設置されていますので、お出かけ前のチェックはこちらで。
玄関を上がり廊下には引き戸で仕切られたサニタリールーム。
トイレ・バスルームに洗面台とランドリースペースがあり水廻りがすべてまとめられています。
洗面台はコンパクトですが、ボウルが大きなシャンプードレッサータイプで使いやすそうです。
バスルームは追炊き・浴室乾燥機などの設備が整っています。
廊下の突き当りからダイニングキッチンへ。
約8.7帖のダイニングキッチン。
キッチンは壁付けタイプで収納豊富。
設備は3口IHキッチンに浄水器一体型水栓が付いています。
引き戸で仕切られた洋室へ。
南西向き約6.0帖の洋室。
ダイニングキッチンとつなげて約14.7帖のLDKとしてもお使いになれます。。
隣の洋室へ。
こちらも南西向きに面した約6.0帖の洋室。
奥行きがあり十分な容量のあるクローゼットも設置されています。
約6.75㎡のバルコニーは奥行きがあり広々。
正面に高い建物がなく景色は抜けています。
ご内見のご希望・ご質問などございましたら、お気軽にお問い合わせください。
過去に販売していたお部屋の概要 このお部屋の販売は終了いたしました。
| 価格 | -万円 |
| 面積 | 57.34㎡ |
| 間取り | 1bedroom(1SLDK) |
| 管理費 | 月額:11,110円 修繕積立金:月額13,530円 |
| 所在階 | 3階 |
| お問い合わせ・ご内見のご予約はこちらからお気軽にどうぞ | |
間取り図はこちら。
東向きの2LDK、57.34㎡。
住宅ローン減税・フラット35S適合!!
柱や針の出っ張りが少なく天井も高い開放感のあるお部屋です。
玄関を入ると右側にシューズBOXがあり、左側にはニッチがあります。オブジェのデスプレイなどにお使い頂けます。
シューズBOXは可動棚で高さ調節可能。
玄関を上がり左側にサニタリールームがあります。
洗面台はシャンプードレッサータイプでボウルが大きく三面鏡裏収納などもあります。
ランドリースペースは一段高くなっていて使いやすい高さになっています。
洗剤置き場に重宝しそうな棚も設置されています。
落ち着きある色合いのバスルーム。追焚き・浴室乾燥機付きです。
トイレはもちろん新規交換済みでウォシュレットタイプで吊戸棚もあります。
玄関正面のドアからLDKへ。
梁の出っ張りがなくオープンタイプのキッチンでお部屋が広く感じます。
キッチンスペースも広々していて冷蔵庫以外にも食器棚やキッチンカウンターなども置くことができます。
食品庫としてももちろん、日用品の収納にも重宝する可動棚の収納スペースもあります。
キッチン設備は3口IHコンロ、グリルに浄水器一体型水栓や食洗機も付いていて充実しています。
キッチン横にはちょっとしたカウンターもあり調味料などを置くことができます。
オープンキッチンで開放感がありダイニングと一体感があります。
LDKは1東向きで4.8帖の広さがあります。
リビングダイニングの壁にはアクセントとなるエコカラットが設置されていて、カウンターになっているのでちょっとしたオブジェなども置くことができます。
最初の洋室へ!
4.8帖の洋室。
柱の出っ張りがなく家具に配置がしやすそうですね。
窓のないお部屋ですが子供部屋としてももちろん、書斎などにもお使い頂けます。
奥行があり十分な大きさのクローゼット。
続いて隣の洋室へ。
6.0帖の洋室。
こちらのお部屋も東向きで明るい日差しが差し込みます。
真ん中で区切られているクローゼット。奥行も十分にあります。
LDKと洋室を繋ぐ東向きのバルコニーは8.75㎡と広々としています。
正面に建物がありますが、庇が高く日当たりは問題なさそうです。
新宿駅徒歩圏のリノベーションマンション『アルテール新宿』はいかがでしたでしょうか。
皆様のご内見、心よりお待ちしております!






































































































































































































































































弊社 公式HP
六棒総合研究所
掲載予定物件
価格変更と販売終了物件
ハザードマップ検索
適合証明書.jp
Instagram