□□□□□□□□□□□□□□□□□□□□□□□□□□□□□□□□□□□□□□□
いつも弊社ホームページをご覧頂き誠にありがとうございます。
ドルミ東中野はお陰様で販売を終了致しました。弊社問合せフォームにてご要望頂けましたら、当お部屋でキャンセル等が発生した場合、他のお部屋が販売になりました際にご紹介させて頂きます。
弊社では、仲介手数料無料orお値引(50%off、30%off、20%off)にて皆様のマイホーム探しのお手伝いをさせて頂きいております。ドルミ東中野の類似物件や、お探しのご条件等をお聞かせ頂けましたらご条件に合ったお部屋をご紹介させて頂きます。また、ご来社頂き一緒に探させて頂くことも可能ですので、是非弊社問合せフォームよりお気軽にお問合せください。
不動産Agent 六棒株式会社
TEL:03‐5413‐5336
□□□□□□□□□□□□□□□□□□□□□□□□□□□□□□□□□□□□□□□
JR中央・総武線「東中野」駅徒歩4分。リノベーションマンション『ドルミ東中野』のご紹介です!神田川が近く、うるおいと自然を身近に感じられる環境です。
アクセス
JR中央・総武線「東中野」駅徒歩4分
都営大江戸線「東中野」駅徒歩7分
東京メトロ東西線「落合」駅徒歩9分
ご紹介する東中野ハイムは2駅3路線利用可能。
最寄は東中野駅になり、JRの出口からだと 徒歩4分ほどの距離。複数路線が使えるので交通アクセスも良好です。
東中野駅周辺には商店街やアトレがありお買い物スポットは充実。このあたりをぐるりと回れば日常のお買い物は済ませられます。
ちなみにマンションから近くて便利なのはスーパーやドラッグストアが入ったユニゾンモール。徒歩3分ほどの距離です。
マンション方面の東口付近に形成された商店街はどこか懐かしい雰囲気。気になる飲食店もチラホラ♪(西口方面にも商店街があります。)
さらに東口近くには昭和ノスタルジックな雰囲気のムーンロードという飲食店街もあります。約40店舗ものお店が軒を連ね、生演奏のジャズやシャンソンを間近で聞けるお店やマニアックなバーなど他とは一味違った珍しいお店がたくさんある模様。
行きつけのお店や馴染みのママさんを見つけるのもここで暮らす楽しみのひとつになりそうです♪東中野、さりげなく散策しがいがあります。
西口と東口の間くらいには中野区唯一の映画館もあったりします。その名はポレポレ東中野。ドキュメンタリー作品や新人作家作品を中心に独自の上演スケジュールがなされているそう。一度行ってみたいところです。
マンション近くには神田川が流れ、うるおいと自然を身近に感じることができます。
川沿いは公園になっており、川に沿って植えられた桜並木の下を歩けるようになっています。春は桜の開花も楽しみですね✿
こちらがドルミ東中野。昭和56年築、7階建て、総世帯数15戸。
神田川から少し中に入った静かな住宅街の角地に建っています。
エントランス前の通り。陽当たりがいいですね。
エントランス。オートロックはありませんが、防犯カメラが設置されています。
管理方式は巡回管理。
15戸と比較的戸数が少ないのでエレベーターの待ち時間もあまり発生しないのではないでしょうか。
共用廊下は内廊下タイプ。玄関前で雨や風の影響を受ける心配もありません。
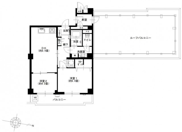
間取りのご紹介です。2DK、専有面積は46.40㎡。
なんとお部屋より広い49.98㎡のルーフバルコニーがついています♪
室内はリノベーション済み。 お部屋に合わせた家具もついています。
人感センサー付きの玄関ホール。人の気配に合わせて自動で照明が消灯します。消し忘れがなく経済的。インターホンは来訪者の顔が確認できるTVモニターが付いているので、扉を開ける前はこちらでご確認を。
玄関横に設置されたシューズBOXはたっぷり仕舞えるトールサイズ。可動棚なのでブーツや長靴なども仕舞っておけます。玄関はスッキリした状態をキープできそうですね♪
表扉の一部にはお出かけ前の身だしなみチェックに便利な縦長の鏡が設置されています。
シューズBOXの向かい側はニッチ。ちょっとした小物を飾るだけで印象的な空間に♪
玄関をあがると目の前にまっすぐ廊下がのびています。
手前の扉から順番に見ていきます。
廊下を進んですぐ右側の扉は可動棚付きの収納。ちょうどシューズBOXの隣になります。日用品のストックや万が一入りきらない靴などを入れておくのに重宝するはず。
物入れの斜め向かいは洗面室。洗面化粧台、バスルーム、トイレがまとまっています。入口に段差がないのでつまづく心配もありません。(段差があると足をぶつけるのは私だけでしょうか・・・)
洗面化粧台。横に小物の収納に便利なキャビネットが設置されています。
洗面ボウルとカウンターは一体型なので濡れた物を置いてもお掃除がしやすいですね。
トイレはウォシュレット付き。ペーパーのストックは上の棚に収納BOXなどを利用して置いておく感じでしょうか。
バスルームは追い焚き、浴室換気乾燥機能付きと設備充実。
乾燥機があれば雨の日や花粉の時期のお洗濯も安心です。
洗面室内にはタオルや着替えの置場に便利な可動棚付きの収納も設けられています♪
洗濯機置場は独立して洗面室の隣につくられていました。
使わない時は扉をしめておけば洗濯機も生活感も隠しておけます。
廊下をまっすぐ進んだ先の扉は約6.4帖の洋室。バルコニーに面した窓は東向きです。朝は気持ちよく目覚められそうな予感。
洋室内には幅広のクローゼットとピクチャーレールがついています。クローゼットはハンガーポールが前後に2本ついており、お洋服がたっぷりかけられる頼もしいつくりになっています。
洗面室の向かい側、採光部のある扉をあけてダイニングキッチンへ。
白と木目を基調とした明るいダイニングキッチンは約8.9帖。家具が置いてあるので実際の生活イメージもわきやすいのではないでしょうか?(家具もついています。)
リビングスペースの壁面の一部には、調湿・消臭効果のあるエコカラットが設置されています。ダイニングキッチン内に実は窓がないのですが、これで空気は快適に保てるはず!ダウンライトに照らされてお部屋のアクセントにもなっています。
キッチンは浄水機能付き水栓、3口ガスコンロ、食洗機とスペック◎。お料理の支度から後片付けまでスムーズにできそうです。
2部屋ある洋室のうち1部屋は廊下側にありましたが、もう1部屋はダイニングキッチンに隣接しています。
ダイニングキッチンに隣接した洋室は約4.0帖。こちらも窓は東向きのバルコニーに面しています。収納はありません。
可動扉をあけてダイニングキッチンと洋室をつなげて広々と使うことも可能です。生活スタイルにあわせてフレキシブルに利用できるのがいいですね♪
最後に洋室2部屋に面したバルコニーに出てみます。
7.71㎡、東向き。陽当たりも良好です。
バルコニーの正面はマンションが建っていますが、左右からは開放感のある眺めも楽しめます。
ルーフバルコニーの写真を実は撮り忘れたのですが・・・運よく(?)バルコニーからの眺望に少し写っていました、写真左側です。広さは49.98㎡とお部屋より少し広いくらい。ゼヒ実際に現地でご確認いただければと思います。
ドルミ東中野、いかがでしたでしょうか?
ご内見のご希望・ご質問などございましたら、お気軽にお問い合わせくださいませ♪






















































弊社 公式HP
六棒総合研究所
掲載予定物件
価格変更と販売終了物件
ハザードマップ検索
適合証明書.jp
Facebook
Twitter
Instagram