□□□□□□□□□□□□□□□□□□□□□□□□□□□□□□□□□□□□□□□
いつも弊社ホームページをご覧頂き誠にありがとうございます。
エコロジー落合レジデンスⅡはお陰様で販売を終了致しました。弊社問合せフォームにてご要望頂けましたら、当お部屋でキャンセル等が発生した場合、他のお部屋が販売になりました際にご紹介させて頂きます。
不動産Agent 六棒株式会社
TEL:03‐5413‐5336
□□□□□□□□□□□□□□□□□□□□□□□□□□□□□□□□□□□□□□□
都営大江戸線『中井』駅徒歩5分。都市生活の利便性とやすらぎを兼ね備えた
ファミリータイプレジデンス『エコロジー落合レジデンスⅡ』のご紹介です。
東京メトロ東西線『落合』駅徒歩8分、西武新宿線『下落合』駅徒歩5分も
利用可能です。

この日は「中井」駅からスタート。地上にでると目の前には中井商友町という
約300mほどの商店街がつづいています。
生鮮食品、八百屋、肉屋、魚屋、生活用品と一通り揃っており
お買物にも便利。暮らしやすい環境です。

エコロジー落合レジデンスⅡは平成7年築、5階建て、総世帯数23戸。
駅徒歩5分の距離ながら緑あふれる閑静な住宅街に立地しています。
(向かい側にはエコロジー落合レジデンスⅠも建っています。)
ゴミ置場は外からは全く見えず、綺麗です。
駐輪場はちゃんと屋根も付いているので、自転車に優しいですね。
エントランスから上を見上げると・・・これだけのモサモサ緑に包まれています。
敷地内にどんな樹木が植わっているのかがガイドされていました。
宅配ボックスも設置されています。今の時代では必需品になりつつありますね。

エントランスはオートロックあり。中へ入るとちょっとした中庭もあったりして、
中にも緑があります。和みます。
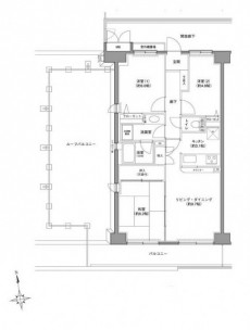
ここで間取り図をご紹介いたします。
間取り図は別タブで開きますので、ご覧になりながらがお勧めです。
今回のお部屋は1階、間取りは3LDK、専有面積は66.37㎡となります。
間取りはオーソドックスなタイプですが、この素晴らしい環境での1階バルコニーが気になりますね。
なんだか美術館に来たみたいな気がしてきました(^^)
中庭を眺めながら1階通路を進むと・・・
玄関に到着しました。
オートロックがあるとはいえ、カメラ付きインターホンが付いているとより安心ですね。
玄関内の様子です。
お出掛け前に服装チェックの出来る姿見が嬉しいですね。
右手には扉3枚分のシューズボックスがありました。
全てトールタイプですので収納力は十分です。
人感センサーが付いていますので、ライトの消し忘れの心配もありません。
なにより、帰って来た時にいつでも明るいのがいいですよね。
真っ直ぐに伸びた廊下にはドアが並んでいます。
まずは正面のドアを開けてみましょう。
こちらが約12.5帖のリビング・ダイニング・キッチンとなります。
自然の木目を生かしたフローリングに白のクロス、グレーのアクセントウォールと、すっきり明るいお部屋となっています。
間接照明やダウンライトが調光出来たりで、夜は落ち着いた雰囲気も出せるところもいいですね。
入口近くに収納が二つありました。
右側に見える3枚の引き戸、気になりますよね。
行ってみましょう。
こちらが約5.8帖の洋室となります。
こちらのお部屋もバルコニーに面していますので、明るいですね。
クローゼットと収納がついていました。
クローゼットは間口が広く中がひと目で見えて使いやすそうです。
入口の引き戸は壁の部分に収納出来ます。
フルオープンにするとこの様な感じ。合わせると20帖近くになるんですよ・・・やっぱり広いですね。
リビングの方から見ても、窓が二つ連なっていて綺麗です♪
ではキッチンを詳しく見ていきましょう。
コンロは三口、片面焼きグリルがついています。
グリルはお魚のイメージが強いですが、他のお料理もいろいろ作れるらしいので是非チャレンジしてみて下さい。
水栓は浄水機能付きシャワー水栓です。
ヘッドが伸びますのでシンクを流したりに便利ですよ。もちろん、美味しいお水もワンタッチで飲むことが出来ます。
食洗機が付いていました!
洗い物は食洗機にお任せして、食後はみんなでゆっくりしましょう♪
カウンターキッチンですので、お料理中は換気扇をお忘れなく。
お料理中に見える風景です。
いろいろ想像してワクワクしてしまいますね(^^)
ではいちど廊下に戻って…
最初のドアを開けて見ます。
トイレとなります。
上部には収納がありますね。
トイレットペーパーなどはトイレ内にストックしたいところですので助かります。
もちろんウォシュレットも完備されています。
今では珍しくもないウォシュレットですが、無い時代もあったんですよ^^;
TOTOさんありがとうございます♪
今度はトイレ向かいの引き戸です。
洗面室になります。
収納が洗面台下と、洗面台横と鏡裏にありました。
洗面周りは細かい物が多いので、鏡裏のような仕切りの多い収納が便利ですよね。
水栓はハンドシャワータイプですので、シャンプーも出来ますよ。
周りをびしょ濡れにしないようにだけ、お気をつけ下さい^^;
奥には洗濯機スペースがあり、上部には収納棚があります。
うちではいつもハンガーに掛けた洗濯物を一旦ドアノブに掛けているので、棚の下のハンガー掛け欲しいなと思いました。
では浴室を見てみましょう。
追い焚き機能がありますので、いつでも温かいお風呂に入れます。
たまには朝風呂なんかもいかもしれませんね♪
窓の無い浴室は換気が不十分になってカビの原因になったりしますので、浴室乾燥機能をフル活用しましょう。
では、次のお部屋へ…
玄関から見て右側のドアを開けてみます。
こちらが約5帖の洋室となります。
窓の外は外廊下のはずですが、緑が広がっていて全然そうは見えませんね。
入口近くにクローゼットがありました。
では最後のお部屋へ行きましょう。
今のお部屋のドアの向かいです。
こちらが約5.8帖の洋室となります。
面格子が設置された窓の外は、先ほどのお部屋と同じですね。
クローゼットは間口が広いタイプです。
それでは最後にバルコニーへ出てみましょう。
いい!としか言いようがありませんね。
バルコニーとしては、2019年私の選ぶBEST3に入ると思います(^^)
バルコニーからの眺めという点では樹木しか見えませんが、それが最高なんです♬
かなり広いので、お好きな方は鉢植えとかたくさん置いたり出来ますね。
バルコニーの半分だけ屋根があるんですね。
お洗濯物を干す所は屋根の無い部分なので、雨に注意です。
リビングに座って外を眺めてみました・・・
許されるものなら、あと1時間位こうしてぼーっとしていたいです♬
以上でエコロジー落合レジデンスⅡを終わります。
いかがでしたでしょうか??
中井駅から徒歩4分のマンションです。
リノベーション済みという事で室内はとてもキレイですよ (っ・ω・)っ
内見のご予約やご質問などございましたらお気軽にお問い合わせくださいませ。
ご連絡お待ちしております。
弊社、不動産Agent 六棒株式会社では、
□リノベーションマンションはほぼ全て仲介手数料無料!
□その他一般仲介物件は仲介手数料20%~30%OFF!
にてお取り扱いしております!※弊社の「Agent Fee=仲介手数料」についてはご案内、ご面談の際に営業担当者よりご説明いたします!
なるべく沢山のお部屋をホームページに掲載したいと思っておりますが、時間的成約もございますので、残念ながらご紹介できるお部屋の一部しか掲載できておりません。
このホームページに掲載中のお部屋、その他サイト等で気になるお部屋、街を歩いていて気になったマンション等々ございましたら是非、弊社営業部までご相談ください!
~不動産Agent 六棒株式会社の特徴~
・一般仲介物件の仲介手数料は20%~30%OFFにてご案内中です!
・リノベーションマンションについてはほぼ全て仲介手数料無料です!
・住宅ローンに自信あります!
・頭金10万円より購入できます。是非ご相談下さい!
・お部屋のご見学は車で2~3件まとめて案内します!
・物件数3000件以上、新築戸建、リノベ物件も多数ご用意しております!
過去に販売していたお部屋の概要 このお部屋の販売は終了いたしました。
| 価格 | -万円 |
| 面積 | 68.57㎡ |
| 間取り | 3bedrooms(3LDK) |
| 管理費 | 月額20,500円 修繕積立金:月額17,140円 |
| 所在階 | 2階 |
| お問い合わせ・ご内見のご予約はこちらからお気軽にどうぞ | |
間取りのご紹介です。3LDK、68.57㎡。
2階の東南角部屋、3面にバルコニーがついています。
陽当たりも良好です。
エレベーターでさっそくお部屋へ!
玄関を開けると電気を着けていなくても正面の扉から漏れてくる光で明るい室内でした☆
玄関右側にはシューズボックスがあります。可動式の棚なので、お持ちの靴に合わせてアレンジしてください☆
その隣には傘立てがあります。
上部はカウンターになっているので、観葉植物や写真、小物などを置いて、玄関をより一層明るくしてください(#^.^#)
廊下のすぐ右側にはサニタリールームがあります。
すぐ右側には洗濯機置場があり、上部には棚があるので、洗濯機周りは綺麗に収納できそうです(^v^)
また、洗濯機置場の隣にはリネン庫があります。奥行きがある棚になっていますので、色々と収納できそうです☆
洗面台はカウンターが広く作られています。棚の収納力も充実しているので、とっても使いやすそう(*^^)v
バスルームは130センチ×170センチサイズで、落ち着いた雰囲気です。
のんびりとバスタイムを楽しめそうです♪♪
サニタリールームの隣はトイレです。ウォシュレット付のトイレで、上部に吊り棚がついていますので、床に物を置かずに清潔にお使い頂けます☆
トイレの正面のドアは4.8帖の洋室です。
北側に窓とバルコニーが付いているので、とても明るく広く感じられるお部屋でした☆
バルコニーからは、敷地内の緑が見え、鳥のさえずりを聞くことができました☆
隣には6.0帖の洋室があります。
こちらのお部屋も東向きの窓が二つあり、室内を明るく照らしています☆
南側の壁にはクローゼットが付いています。天井までのトールサイズなので、大きい物や背の高い物をしまうことができます。
東側の窓からバルコニーに出ることができます。
こちらのバルコニーも目の前まで、敷地内の植物が顔を出してきていますので、とても気持ちのいい場所でした(*^^)v
廊下の突き当りのドアを開けると、南向きの窓から明るい陽射しの射し込む、11.1帖のリビングダイニングが広がっていました。
キッチン は3.3帖あって、とても広く感じられます。
作業台が広く取ってありますので、お料理をする時にはとても重宝しそうです♪
キッチンのリフォームをお考えの方も、スペースが広いので、色々とバリエーションが広がりそうです☆
下部にも上部にも棚があるので、収納力も◎!!
上手にお使い頂ければ、食器棚は必要ないかもしれません(*^。^*)
リビングダイニングは11.1帖。
電気が付いていないのに、これだけ明るければ日中は電気いらずで経済的です♪
リビングダイニングの隣に6帖の和室があります。
やっぱり和室は心が和みますね☆日本人に生まれて良かったと思う瞬間です笑
和室の一角には、床の間があります。
せっかくなので、お花を生けてみてはいかがですか??
押入は3段構成になっているので大容量です☆
来客用の布団や、大きな物を入れておくにはとても便利です(^v^)
東側の壁はハンガーで服をかけられる様になっています。
こういった造りは和室ならでは。なんだか心が和みますね☆
南側のバルコニーはリビングダイニング、和室どちらからも出ることができます。
陽の光と草木と風を感じられる、気持ちのいいバルコニーです。
いかがでしたか。南東の角部屋なので、バルコニーが3面あって、それぞれが少しずつ違う表情を見せてくれます。
ペット飼育もOK、空き室なので、すぐに大切なペットとご入居していただく事ができます(^_-)-☆
皆さまからのお問い合わせ、心よりお待ちしております。
過去に販売していたお部屋の概要 このお部屋の販売は終了いたしました。
| 価格 | -万円 |
| 面積 | 68.57㎡ |
| 間取り | 3bedrooms(3LDK) |
| 管理費 | 月額:20,500円 修繕積立金:月額10,200円 |
| 所在階 | 5階 |
| お問い合わせ・ご内見のご予約はこちらからお気軽にどうぞ | |
間取りのご紹介です。3LDK、68.57㎡。
お部屋は5階の最上階。玄関前からの眺め、開放感あります。
スガスガしい青空が広がっています。
玄関へ入ると右手には木目調の落ち着いたカラーのシューズBOXが
つくられています。
上のカウンター部分はちょうどよいディスプレイスペース。
植物やお気に入りのインテリアを置けばステキな玄関を演出できますよ。
廊下をまっすぐ進み、正面のガラスの入った扉の奥は・・・
約11.1畳のリビングダイニング。南向きで明るいスペースです。
既に家具が置いてありますが、こんな感じでダイニングテーブルとソファも
ゆとりを持って置いていただけます。
カラフルな色のものからシックな雰囲気の家具まで何を置いても馴染みそうです。
反対側からのショットもどうぞ。エアコンが1基ついています。
キッチンスペースは約3.3畳。壁に囲まれて独立したスペースになっていますが
リビングも見えるよう一部オープンになっているので、家族とおしゃべりを
楽しみながらお料理を楽しみたい方にはピッタリ。
リビング側からは作業スペースが丸見えにならないのも来客時にはいいですね。
3口コンロのシステムキッチンは上下に収納場所もたっぷり。
キッチン用品もスッキリ整理整頓できそうです。
リビングダイニングには和室が隣接しています。
約6.0畳の和室。収納力バツグンの押入れとその横には床の間もあります。
掛け軸とかかけておくとグッと和室の雰囲気がでそうです。
ちなみにリビングと仕切ってある引き戸は壁の向こうへスッキリしまいこめるので
開けっ放しでもジャマになることはなさそうです。
2部屋つなげるて広々とした1つの空間としてもご利用いただけます。
生活シーンに合わせてフレキシブルなレイアウトをお楽しみくたさい。
リビングダイニングと和室からはバルコニーにでられます。南向き。
外は静かな住宅街が続いており、陽当りも眺めもバッチグーです!
洗濯ものがよく乾きそうです。
お部屋はあと洋室が2部屋。
約6.0畳の広さの洋室。枕棚の付いたクローゼットがつくられています。
こちらのお部屋にもバルコニーがついています。
東向き。こちらも眺めは◎!
リビング側と同じく静かな住宅街が広がっています。
もう1部屋は約4.8畳と少しコンパクト。収納はありません・・・。
ですが!ミニバルコニーがついているので風通し&眺めは◎。
広い空がワーッと見渡せます。
どのお部屋からのバルコニーに出られるのでいつでも気持ちのいい景色が
楽しめますね。
最後に水廻りをまとめてご紹介します。
洗面室は入口入って右手に洗濯機置場とリネン庫、正面に洗面化粧台、左手に
バスルームの並びになっています。
洗面化粧台は右手にキャビネットがついています。
ハブラシや洗顔フォームなど洗面まわりの物もスッキリ収納いただけます。
さらに洗面ボウル一体型カウンターでお掃除がしやすいのも◎!
カウンターの上も広々していてちょっと物を置けたりと使い勝手がよさそうです。
洗濯機の上には洗剤類を置くのにちょうどいい棚が2枚ついています。
その横はリネン庫。タオルやシャンプーのストックを置いておくのに助かります。
お部屋までタオル取りに行ったり・・・なんて手間もなくなりますね。
淡い色合いの壁面パネルと白いバスタブでリラックスできそうな
雰囲気のバスルーム。バスタブもしっかりつかれるサイズです。
トイレは洗面室をでてすぐ隣に位置しています。
トイレットペーパーや掃除用具をしまうのに重宝する吊戸棚もついています。
エコロジー落合レジデンスⅡはペットもOKなマンションです!
(体長50センチ以下の犬・ネコ、2匹まで)
空室ですので是非一度、実際のお部屋をご覧いただければと思います。
みなさまのご内見、心よりお待ちしております!
過去に販売していたお部屋の概要 このお部屋の販売は終了いたしました。
| 価格 | -万円 |
| 面積 | 67.85㎡ |
| 間取り | 3bedrooms(3LDK) |
| 管理費 | 月額:20,100円 修繕積立金:月額10,100円 |
| 所在階 | 5F |
| お問い合わせ・ご内見のご予約はこちらからお気軽にどうぞ | |
お部屋は最上階の5階。
さっそく中へ入ってみると玄関あがって左横には落ち着いた色合いのシューズBOX
がつくられています。真ん中に傘も入れられるので玄関まわりをスッキリ保てて
いいですね。上はカウンターになっているので植物や写真など飾ってステキな
玄関を演出してみてはいかがでしょうか。
廊下をまっすぐ進み、正面のガラスの入った扉の奥は・・・
約9.7畳のリビングダイニング。
南向きで陽当たりもGOOD!家族の憩いの場にピッタリです。
反対側からのショットもどうぞ。
リビングダイニングには棚の付いた収納もつくられています。
掃除用具や家族で使うものを入れて置くのにちょうどいいですね。
そしてリビングダイニングには和室が隣接しています。
約6.2畳の広さ。収納力抜群の押入れもあります。
1部屋たたみのお部屋があるとなごみます。
引き戸を開けて2部屋つなげて広い空間としてもご利用いただけます。
生活シーンに合わせてフレキシブルなレイアウトをお楽しみください。
キッチンスペースは約3.1畳&カウンター付き。
一部オープンになっているので、お料理をしながらリビングにいる家族との会話を
楽しみながらお料理の支度ができますね。
リビング側からは作業スペースが丸見えにならないのも来客時などには
ありがたいですね。
システムキッチンは3口コンロ。収納場所も上下にたっぷりあるので大きな鍋や
フライパンもサクサクしまえそうです。タイルのお花柄もいい感じです。
つづいて洗面室です。
入口入って右手に洗面台、正面に洗濯機置場、左手にバスルームの並びに
なっています。
洗面化粧台は右手に洗面まわりの物を収納できるキャビネットがついています。
カウンターの上も広々としているのでハンドソープのボトルなども置けますね。
洗濯機置場には上に洗剤を置いておくのにちょうどいい棚がつくられています。
バスルームは窓付き。自然換気ができるのはポイント高いです。
壁面パネルは淡い色合い。リラックスしたバスタイムが過ごせそうです。
トイレは洗面室の向かい側に位置しています。
トイレットペーパーのストックを入れるのに便利な吊戸棚がついています。
お部屋は和室の他に洋室が2部屋。
こちらは約4.8畳の広さ。枕棚付きのクローゼットがついています。
こちらは約6.0畳の広さ。同じく枕棚付きのクローゼットがついています。
窓が2面にあり明るいです。
約6.0畳の洋室からはルーフバルコニーにでられます!
約39.18㎡と広々としたルーフバルコニー。 主に西向き。
お庭がなくてもルーフバルコニーがあればお花から家庭菜園まで
ガーデニングも楽しめますよ!
ちなみに和室からもでられます。
ルーフバルコニーはリビングダイニングに面したバルコニーにもつながっており
行き来ができるようになっています。
バルコニーは約8.54㎡。南向き。
外は静かな住宅街。落ち着いた毎日が送れそうです。
エコロジー落合レジデンスⅡはペットもOKなマンションです!
(体長50センチ以下の犬・ネコ、2匹まで)
空室ですので是非一度、実際のお部屋をご覧いただければと思います。
みなさまのご内見、心よりお待ちしております!





































































































































































































弊社 公式HP
六棒総合研究所
掲載予定物件
価格変更と販売終了物件
ハザードマップ検索
適合証明書.jp
Facebook
Twitter
Instagram