□□□□□□□□□□□□□□□□□□□□□□□□□□□□□□□□□□□□□□□
いつも弊社ホームページをご覧頂き誠にありがとうございます。
グランドメゾン目白はお陰様で販売を終了致しました。弊社問合せフォームにてご要望頂けましたら、当お部屋でキャンセル等が発生した場合、他のお部屋が販売になりました際にご紹介させて頂きます。
弊社では、仲介手数料無料orお値引(50%off、30%off、20%off)にて皆様のマイホーム探しのお手伝いをさせて頂きいております。グランドメゾン目白の類似物件や、お探しのご条件等をお聞かせ頂けましたらご条件に合ったお部屋をご紹介させて頂きます。また、ご来社頂き一緒に探させて頂くことも可能ですので、是非弊社問合せフォームよりお気軽にお問合せください。
不動産Agent 六棒株式会社
TEL:03‐5413‐5336
□□□□□□□□□□□□□□□□□□□□□□□□□□□□□□□□□□□□□□□
本日は、目白駅徒歩5分、リノベーションマンション『グランドメゾン目白』のご紹介です!
アクセス
JR山手線「目白」駅 徒歩5分
高級住宅街というイメージが強い、目白エリアからのご紹介♪♪古い歴史のある目白の邸宅街は、街を歩くと「徳川黎明館」や「徳川ヴィレッジ」が建つ尾張徳川家の屋敷跡など荘厳な建物を見ることができます。

街路樹の植栽が美しい目白通り沿いには、様々なショップが立ち並んでいます。さまざまなジャンルを楽しめるレストランにカフェ、和菓子店、洋菓子店、また日常生活には欠かせないスーパーマーケットもあります。
昨年の11月には駅前に商業施設『トラッド目白』がオープン♪♪スーパーマーケットやコンビニ、レストランのほか、バレエスクールや歯科、結婚式場などが入っています。
目白と言えば、やっぱり『学習院』のイメージも強いですよね♪♪街並みに気品を与える存在です☆
こちらは目白駅近くの、『豊島区立目白庭園』☆うれしい入場無料の庭園です。目白庭園は、池泉回遊式の庭園で、池の周囲をめぐることができます。庭園内には四季折々の様々な自然の表情を満喫できるよう草木が配植されています♪♪都会の喧騒の一角に造られた貴重な空間で癒されること間違いなしです(●´∀`)
マンションまでの道のりは、目白通りを一本道♪♪平坦な道のりで、通勤・通学も負担になりません。
周辺のお買い物環境はと言いますと、徒歩3分の所に『ピーコック』、マンションのお隣には『ファミリーマート』と心配いりません。
こちらが今回ご紹介させていただく『グランドメゾン目白』です♪
平成8年築、10階建て、総世帯数28戸。清水建設施工のマンションです。外観はスタイリッシュなタイル貼り。平成22年に大規模修繕工事実施済みです。
1Fには、ドラッグストアやクリーニング店などの店舗が入っています。

マンションのエントランスは、目白通りを一本入ったところから。

マンションのエントランスは、打ちっぱなしのコンクリートがスタイリッシュな雰囲気です♪♪オートロックが付いていますので、セキュリティも安心です(o´∀`ノ
エントランスホールは広々明るい空間です。右手には管理人室、通勤の管理人さんで管理体制は良好です♫
間取りのご紹介です。3LDK、専有面積は73.19㎡。
8階・3方角部屋。都心を一望できる眺望が魅力的なお部屋です。
室内はリノベーション済み。
【リノベーション内容】
■キッチン交換、食洗機、浄水器
■ユニットバス交換、洗面台交換、トイレ交換
■建具交換、クロス張替、スイッチ交換、フローリング張替
■全室エアコン設置可
■LED照明設置、ダウンライト新規施工
■給湯器交換
玄関ホールはL字に曲がっていてお部屋の中が見えずプライバシーを守ります。
L字に曲がり左側に可動棚で高さ調節可能なトールタイプのシューズBOXがあります。
玄関ホール左側の廊下から見ていきます。
突き当たりには収納スペースが設置されています。
ウォシュレットタイプのトイレ。
トイレットペーパーなどのストックに重宝する吊戸棚や手洗い水栓も設置されていいて機能的。
メインベットルームへ!
約6.3帖の北向きの洋室。
柱や梁の出っ張りがなく、家具の配置がしやすそうなお部屋です。
奥行があり十分な容量のウォークインクローゼットがあります。
独立したバルコニーがあり抜けた景色を望むことができます。
玄関ホール右側の広くなった廊下には洋室2部屋とサニタリールームがあります。
ドアなどの建具は鏡面仕上げで高級感がありますね!
ランドリースペースはこちらに設置されています。
廊下の突き当たりにサニタリールームがあります。
洗面台はシャンプードレッサータイプでボウルが大きく三面鏡裏収納もあり機能的で使いやすいです。
落ち着きあるシックな色合いのバスルームで浴槽は1416サイズで広々しています。
洋室を順に見ていきます。
こちらは約4.0帖の洋室。
ベッドルームとしてももちろんお使い頂けますが、書斎などとしても良さそうな広さのお部屋です。
クローゼットも設置されています。
こちらも北向きのお部屋で目白通りにめんしていますが、二重サッシになっていて窓を閉めれば騒音はあまり気になりません。
続いて隣の洋室へ。
約5.0帖の洋室。北東向き2面採光の明るお部屋です。
クローゼットもありこちらも二重サッシになっています。
LDKは玄関ホール右側のドアから。
約15.5帖の広々としたLDK。
LDKは南東向き2面採光で大変明るいお部屋です。
シックな色合いのお部屋に石貼りのアクセントウォールもマッチしてます!
広々としていて冷蔵庫以外にも食器棚なども置けそうなキッチンスペース。
設備は3口ガスコンロ、グリルに浄水器一体型水栓や食洗機も付いていて充実しています。
オープンタイプでlリビングダイニングを見渡すことができ、小さいお子様も目が届きます。
キッチン横から南側のバルコニーへ出ることができます。
視界を遮る建物がなく、明るい日差しが差込み新宿の高層ビル群の景色を望みます。
実際のお部屋もご覧いただけます。
ご内見のご希望・ご質問などございましたら、お気軽にお問い合わせくださいませ♪
過去に販売していたお部屋の概要 このお部屋の販売は終了いたしました。
| 価格 | -万円 |
| 面積 | 58.15㎡ |
| 間取り | 2bedrooms(2LDK) |
| 管理費 | 月額:16,800円 修繕積立金:8,400円 |
| 所在階 | 2階 |
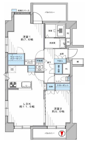
それでは間取りのご紹介です。2LDK+W、58.15㎡。
豊富な収納と開放的なオープンキッチンが魅力的☆
【リノベーション内容】
■キッチン・・・パナソニック製システムキッチン(食洗乾燥機)
■浴室・・・パナソニック製ユニットバス(浴室乾燥機)
■洗面・・・パナソニック製洗面台
■トイレ・・・LIXIL製シャワートイレ
■床・・DAIKEN製フローリング
■建具・・・パナソニック製内装ドア
■照明・・・LEDダウンライト/LEDシーリングライト
■その他・・・給湯器(追い焚き機能付き)全クロス張替え、エコカラット、ハウスクリーニング
■アフターサービス保証付
さっそくお部屋を見ていきましょう♪♪扉を開けると フルリノベーションを終え綺麗に生まれ変わった玄関がお出迎えです。玄関スペースには人感センサーがついているので、自動でパッと明かりもつきます。
玄関入って左手には、ホワイトの光沢のあるシューズボックスがあります♪♪
上下に分かれたセパレートタイプとトールタイプを組み合わせたシューズボックス♪♪棚が可動式になっていますので、ブーツの収納もOK。シューズBOXの上のカウンター部分はちょうどよいディスプレイスペースです。インテリアや植物などを置けば華やいだ雰囲気に変わりそう♪♪フロートタイプのシューズボックスは靴の出し入れもしやすく、空間をスッキリ感じさせてくれます。
廊下は左に伸びていますが、まずは左手の洗面室&バスルームを見ていきたいと思います。
洗面台は、真っ白で清潔感があります。ミラーとミラーの間に照明が設置されています。顔全体を両側から照らすのでメイクにも便利な機能とのこと♫
鏡の裏に収納スペースがありますので、歯ブラシから洗顔フォームまでゴチャゴチャ散らかりがちな洗面まわりの物もスッキリお仕舞いただけます♪♪シャワーヘッドも嬉しいですね♫シャワーヘッドは、シャンプーに便利ですが、お掃除にも便利ですよ
(●´∀`)

バスルームは、やさしい木調のパネル☆ゆっくり大きなバスタブにつかって疲れを癒せそうです♪♪追い焚き機能付きでいつでも暖かいお風呂に入れます。

シャンプーボトルなどは棚に並べれば見た目もスッキリ◎浴室乾燥機能が付いています。雨の日でも安心してお洗濯ができますよ(*´∀`*)モザイクパターンの床は、すばやく乾燥、楽々お手入れができます☆
廊下に戻って、玄関正面のお部屋。約7.6帖の洋室です。南向き&東向きの開口部のお部屋です。ベッドルームにぴったりです♪♪マンションが、建物に囲まれているので、南向き&東向きの開口部にしては陽当りはあまり良くないかもしれません。
こちらのお部屋にはカウンターデスクが設置されています。パソコンの作業台に良いですね♪♪背面にはデザインクロスが使われています。
北側に位置する収納は、ゆとりのあるウォークインタイプ。入口は小さいですが、中は広めです。バーも付いているので、ロングコート等の衣類の収納にも良いですね♪♪
こちらのお部屋から、南側のバルコニーに出ることができます。広さは充分♪♪
建物の囲まれているため、陽当りはあまりよくありません。
廊下に戻って、奥に進んで行きましょう♫廊下の両脇には、扉が沢山(o´∀`ノ
右手の扉は洗濯機置場☆扉付きですので、生活感を隠すことができて助かります☆扉が付いているのは、防音にも役立ちます。横には収納棚も設置されていて洗剤等の収納もバッチリです♫
左手の扉は、奥行きがしっかりしたクローゼットです(*´˘`*)♡
廊下の左手の並びには、トイレがあります。ウォシュレット付きです☆

上部には、扉付の収納棚があるので、ストック品の収納も完璧です♪♪
廊下の奥リビングダイニングキッチンを見ていきます。リビングダイニングキッチンは、約11.5帖。北向き&東向きの窓がついています(*´▽`)東側には建物があるので、陽当りを望めるのは、北向きの窓からです。落ち着いた木調がステキな空間です
(●´∀`)
リビングダイニングには、エコカラットで装飾が施されています。エコカラットは、見た目が洗練されているだけでなく、ホルムアルデヒトを吸着してくれたり生活臭を軽減したり、調湿機能があったりと、ものすごい実力を持っています。
お部屋と統一感をもたせたブラウンの木調のシステムキッチンです♪♪リビングにいる人とコミュニケーションがとれる対面式なので、お料理の時も寂しくありません☆

対面式ですので上部の収納はありませんが、シンク下の収納は、スライド式なのでキッチングッズの収納も楽々 (●´∀`)配管を気にせず収納できるので大容量。
3つ口コンロはお料理好きの方には嬉しいですね♪ワークトップ&シンクは大きめで使い勝手◎
食洗機付きで家事の時間も短縮 (●´∀`)家族と一緒に過ごす時間が増えそうですね。
キッチンにはパントリーも設置されています。食品のストックにも役立ちますね
(o´∀`ノ奥行きもしっかりです。
こちらは、リビングダイニングから出入りすることができる約5帖の洋室です。北向きの窓のお部屋です。
西側の壁にはグレーのクロスが使われステキな雰囲気です。
南側の壁は一面収納!!向かって左のクローゼットには、可動式の収納棚が設置され、小さい物を、右のクローゼットは、大きな物の収納を!奥行きもしっかりで収納力バツグン☆バーも付いているので、ロングコート等の衣類の収納にも良いですね♪♪収納が大きいと生活スペースが広く使えて◎
こちらのお部屋はリビングダイニングキッチンとは、スライド式ドアで隔てられているので、開けて使えば一つのお部屋の様に使うこともできます(*´▽`)
それでは最後に北側のバルコニーに出てみましょう♪♪3Fですが、すぐ下に屋根があるので、万が一の転落も心配ありません。
こちらの眺望は大丈夫です(´∀`●)青空を望むことができました♪♪
山手線の駅から徒歩5分という好立地♪♪アクセスの良い物件です。
内見のご希望、ご質問などございましたら、





























































































