・
□□□□□□□□□□□□□□□□□□□□□□□□□□□□□□□□□□□□□□□
いつも弊社ホームページをご覧頂き誠にありがとうございます。
ハイホーム本陣はお陰様で販売を終了致しました。弊社問合せフォームにてご要望頂けましたら、当お部屋でキャンセル等が発生した場合、他のお部屋が販売になりました際にご紹介させて頂きます。
不動産Agent 六棒株式会社
TEL:03‐5413‐5336
□□□□□□□□□□□□□□□□□□□□□□□□□□□□□□□□□□□□□□□
・
それでは!本日は東京メトロ丸ノ内線「新宿御苑前」駅 より徒歩8分のリノベーションマンション ハイホーム本陣 のお部屋をご案内致します!
本日は丸ノ内線に乗って新宿御苑前にやってきました。
総世帯数217戸のビッグコミュニティ「ハイホーム本陣」のご紹介です!
アクセス
東京メトロ丸ノ内線「新宿御苑前」駅徒歩8分
都営新宿線「曙橋」駅徒歩7分
「ハイホーム本陣」、新宿御苑前と四谷三丁目の間にあります。四谷三丁目駅
からは徒歩9分。なお、都営新宿線・曙橋駅からも徒歩7分と近いです。
御苑前駅の出口から靖国通りを目指します。穴場チック・おしゃれなカフェやバー
がたくさんあり、目移りします。卓球へと誘う看板がありました。
靖国通りを曙橋方向に進み、外苑西通りとの交差点に出るとマンションが見えて
きます。交差点には松屋、ローソン、ステーキハウスがあります。お肉が焼ける
いいにおいがします。
「ハイホーム本陣」、昭和55年3月築、総戸数217戸・14階建てのビッグコミュニティです。
エントランスは安心のオートロック。24時間常駐管理で管理体制も良好です♪
マンション1階には三菱東京UFJ銀行のATMが入っています。エントランスまわりにはサルビアの花が。花言葉は「恋情、尊敬」です。
エントランスの天井をふと見上げると!天使!天使がいる!!
エレベーターの扉もなんだかヨーロッパ風。
ここで間取り図のご紹介です。
※間取り図は別タブで開きますので、見比べながらご覧いただく事が出来ます。
今回ご紹介するお部屋は8階、間取りは2LDK、専有面積は52.80㎡。おひとり暮らしやDINKSの方にお勧めのお部屋です。では、さっそく行ってみましょう!

玄関からホールにかけては大理石が貼られ高級感のある雰囲気。入ってすぐが細長い廊下でなく、幅のある広いスペースになっていると解放感があってテンション上がりますね♬
順番にドアを開けていきましょう!

まずは左側…
洗面室には洗面化粧台の他に、浴室と洗濯機スペースがまとまっていて、脱衣所も兼ねています。洗面化粧台は寝ぐせチェックに便利な三面鏡付き。前面パネルが建具とお揃いになっているところとか統一感があっていいですね。洗濯機スペースには吊戸棚も付いているので、洗剤などはそちらへどうぞ。

浴室は柔らかい色合いのパネルを使った温かみのある雰囲気。寛ぎのバスタイムが過ごせそうです♪ 追い炊き機能や浴室換気乾燥機などの便利機能も完備!天気を気にせずお好きなタイミングでお洗濯が出来ますよ。

洗浄便座はTOTO製のウォシュレット。トイレットペーパーなどのストックに便利な吊戸棚も付いています。ちょっとした物が飾れるニッチカウンターも嬉しいですね。リラックスが大事な場所ですから、少しでも快適にしたいものです(^^)

こちらはキッチン横の洋室1。
窓の無いお部屋なので暗く静かで寝室に最適!デッドスペースを作らない引き戸を使っているので、ベッドなどの家具を置く際も目いっぱいお部屋のスペースを使えます。

こちらはリビング・ダイニング・キッチン。
南向きバルコニーに面した明るいお部屋です。キッチン、ダイニング、リビングと並ぶ、オーソドックスで使いやすいレイアウト。サイズ的にも余裕がありそうですね。ふかされた天井や壁には間接照明が設置され、立体感のある広がりを感じさせてくれています。

リビング部分には照明付きの飾り棚。小物や写真スタンド、観葉植物、コレクションなど、お気に入りの物を並べてインテリアを楽しみましょう!

ちょっとしたスペースにはデスクを造作。書き物をしたり、趣味のスペースとして使ったり、在宅ワークに使ったりも良さそうですね。

キッチンは人気のカウンタータイプ。見晴らしが良くお料理中でも会話がしやすいのが人気の理由です。食器洗浄乾燥機や浄水機能一体型水栓など便利機能も充実!!食後は洗い物を食洗機にお任せして、優雅にコーヒーを淹れたりとか出来ちゃうんですよね♬
・
以上でハイホーム本陣のご案内を終わります。
いかがでしたでしょうか??
新宿御苑前駅から徒歩8分のマンションです。
リノベーション済みという事で室内はとてもキレイですよ (っ・ω・)っ
内見のご予約やご質問などございましたらお気軽にお問い合わせくださいませ。
ご連絡お待ちしております。
弊社、不動産Agent 六棒株式会社では、
□リノベーションマンションはほぼ全て仲介手数料無料!
□その他一般仲介物件は仲介手数料20%~30%OFF!
にてお取り扱いしております!※弊社の「Agent Fee=仲介手数料」についてはご案内、ご面談の際に営業担当者よりご説明いたします!
なるべく沢山のお部屋をホームページに掲載したいと思っておりますが、時間的成約もございますので、残念ながらご紹介できるお部屋の一部しか掲載できておりません。
このホームページに掲載中のお部屋、その他サイト等で気になるお部屋、街を歩いていて気になったマンション等々ございましたら是非、弊社営業部までご相談ください!
~不動産Agent 六棒株式会社の特徴~
・一般仲介物件の仲介手数料は20%~30%OFFにてご案内中です!
・リノベーションマンションについてはほぼ全て仲介手数料無料です!
・住宅ローンに自信あります!
・頭金10万円より購入できます。是非ご相談下さい!
・お部屋のご見学は車で2~3件まとめて案内します!
・物件数3000件以上、新築戸建、リノベ物件も多数ご用意しております!
過去に販売していたお部屋の概要 このお部屋の販売は終了いたしました。
| 価格 | -万円 |
| 面積 | 29.56㎡ |
| 間取り | 1bedrooms(1DK) |
| 管理費 | 月額8,980円 修繕積立金:月額5,000円 組合費:月額200円 |
| 所在階 | 10階 |
| お問い合わせ・ご内見のご予約はこちらからお気軽にどうぞ | |
ここで間取り図とリノベーション内容のご紹介です。
間取り図は別タブで開きますので、確認しながらご覧頂く事が出来ます。
今回のお部屋は10階、間取りは1DK、専有面積は29.56㎡。お一人暮らしの方にお勧めです。
~リノベーション内容~
・パナソニック製システムキッチン交換
・TOTO製ユニットバス交換(追い焚き機能、浴室換気乾燥暖房機付)
・LIXIL製温水洗浄機能付きトイレ交換
・パナソニック製洗面化粧台交換
・フローリング張替え
・壁、天井クロス張替え
・フロアタイル張替え
・玄関収納、収納棚新設
・エアコン一基新規設置
・給湯器交換
・照明器具交換
・ハウスクリーニング・・・・・等
玄関にはロータイプのシューズボックスが設置されていて、上部はカウンターになっていました。何か飾るのも良し、鍵などを入れるトレイを置いて実用的に使うのもアリですね。廊下は短め。その分お部屋にスペースを使っています(^^)
こちらはダイニング・キッチン。バルコニーに面した大きな窓がある明るいお部屋です。北向きですが、直射日光が射さないだけで意外と明るいんですよ。太陽って凄い!エアコンが一基、初めから設置されています。すぐに快適な生活が送れるのは嬉しいですね。
キッチンは凹んだ部分に設置されていて、四角くダイニングが使えるのもGOOD!
キッチンはパナソニック製の壁付けタイプ。圧迫感が無いように壁に近い明るい色になっています。調理台下だけでなく吊戸棚も付いていて収納力もタップリ。
こちらはダイニングの隣の洋室。やはりバルコニーに面して窓があります。仕切りは引き戸なのでデッドスペースも無くお部屋全体を有効に使えますよ。クローゼットとカウンターが付いていて収納もOK!
廊下に戻って次は洗面室を…洗面室には洗面台、洗濯機スペース、浴室、トイレがまとまっています。
まずは洗面台。明るい色で清潔感がありますね。三面鏡にはライトも付いていますので、鏡を見る時に影になる事もありません。洗面台下の大きな引き出しと三面鏡裏のキャビネットで、いろいろな物を上手いこと収納出来そうです。
洗濯機スペースの吊戸棚には洗剤など洗濯関係の物を入れておく事が出来ます。すぐ手が届く所というのがミソですよね。
浴室は白を基調とした明るい雰囲気。追い焚き機能や浴室換気乾燥暖房機も付いて機能的にも充実しています。
トイレはLIXIIL製の温水洗浄便座付き。付いているのが当たり前・・・いい時代になりました(笑)
最後はバルコニーからの眺望をご紹介。周りには高いビルもありますが、遥か先まで見通せる開放的な眺めです。気もちのいい青空ですね(^^♪
・
以上でハイホーム本陣のご案内を終わります。
いかがでしたでしょうか??
新宿御苑前駅から徒歩8分のマンションです。
リノベーション済みという事で室内はとてもキレイですよ (っ・ω・)っ
内見のご予約やご質問などございましたらお気軽にお問い合わせくださいませ。
ご連絡お待ちしております。
弊社、不動産Agent 六棒株式会社では、一般仲介物件は仲介手数料20%~30%OFF!にてお取り扱いしております!
なるべく沢山のお部屋をホームページに掲載したいと思っておりますが、時間的成約もございますので、残念ながらご紹介できるお部屋の一部しか掲載できておりません。
このホームページに掲載中のお部屋、その他サイト等で気になるお部屋、街を歩いていて気になったマンション等々ございましたら是非、弊社営業部までご相談ください!
~不動産Agent 六棒株式会社の特徴~
・一般仲介物件の仲介手数料は20%~30%OFFにてご案内中です!
・住宅ローンに自信あります!
・頭金10万円より購入できます。是非ご相談下さい!
・お部屋のご見学は車で2~3件まとめて案内します!
・物件数3000件以上、新築戸建、リノベ物件も多数ご用意しております!
・
過去に販売していたお部屋の概要 このお部屋の販売は終了いたしました。
|
|||||||||||
| お問い合わせ・ご内見のご予約はこちらからお気軽にどうぞ | |||||||||||
今回ご紹介させて頂くお部屋の間取りです。
~リフォーム内容~
・システムキッチン交換
・ユニットバス交換
・洗浄機能付き一体型トイレ交換
・洗面台交換
・フローリング張替え
・壁、天井クロス張替え
・フロアタイル張替え
・照明器具交換 他
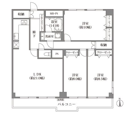
約21帖もの広々としたリビング・ダイニング・キッチン。
南向きの窓からは明るい光が射しこみます。
リフォーム済みの室内は全てがピカピカです。
収納の多さも特徴の一つである物件となっております。
3部屋にわたるバルコニーは洗濯物を干す為だけに使うのは勿体ないですね!
12階ともなると眺望も申し分ありません。
ご内見のご希望・ご質問などございましたら、お気軽にお問い合わせくださいませ♪
過去に販売していたお部屋の概要 このお部屋の販売は終了いたしました。
| 価格 | -万円 |
| 面積 | 51.30㎡ |
| 間取り | 2bedrooms(2LDK) |
| 管理費 | 月額15630円 修繕積立金:月額8670円 組合費:月額200円 |
| 所在階 | 8階 |
| お問い合わせ・ご内見のご予約はこちらからお気軽にどうぞ | |
今回ご案内するのはこちらのお部屋です。
さっそく入りましょう!!
まずは玄関です!
柔らかな光が優しい雰囲気を出していますね。右手にはニッチと呼ばれる飾り棚が備えられています。ここに何を置くかによってお部屋全体の第一印象が決まります。これはセンスが問われますね!!(`ω´)
玄関を入ってすぐ右手にはトイレがあります。
こちらのトイレはウォシュレット付きです。ウォシュレットはもうすっかり常識になっちゃいましたね!
背後には棚が設置されているので消耗品などの収納場所にも困りません(・ω・)b
玄関左手、次のドアはサニタリールームへの入口です。
左側に玄関のニッチが見えています。
大きなミラーキャビネットとシンク下の収納を活用すればここで必要なものはすべて収納できそうですね!!
四角いシンクは都会的なイメージがあります。両サイドのスペースも広くとられているのでハンドソープや基礎化粧品などはもちろん観葉植物だって置けちゃいます!!
お隣をみれば洗濯機置場が。
脱いだお洋服はすぐに洗濯機へ入れてしまえば散らかることもありません!!
棚が付いているので洗剤やタオルはここへしまっておくことになりそうです。
次にお風呂です。
追い焚き機能がついていますので、だんだんぬるくなっていくお風呂に我慢することもありません!!いつまでも熱い浴槽で疲れをいやすことができます。
浴室乾燥もございますので雨の日でも風の日でもお洗濯物には困りません。洗濯機がすぐそこにあるのも助かりますね。
玄関右手にはサービスルームというお部屋があります。
窓がないために自然光は入ってきませんが、その分明るい所では眠れないなんて人にとってはベッドルームとして最適です。
棚やラックなどを設置して納戸としてお使いいただいても良いかもしれませんね( ・∀・)
次はダイニングキッチンです。
浄水機能付きの水栓、グリル付きの3口ガスコンロ、食器洗浄機などの贅沢機能がギュッと凝縮されています。
壁には現代の土壁ともいわれるエコカラットという素材が使われているので、快適な湿度を保ちつつ、ニオイや 有害なホルムアルデヒドをも減少させてくれます。
家具付きの物件ですので写っているテーブルやイスも使ってくださいね!!
開き戸をあけると約4.6帖の洋室となっています。
ソファーでくつろぎながらテレビでもみましょうかヾ(*´∀`*)ノ
窓からの光も優しいですね。
天気のいい休日の午後にゴロンとお昼寝なんていうのもいいかもしれません。。
こちらは先程のお部屋の隣に位置している洋室です。ベッドルームとしてお使い頂くことになりそうですね。
クローゼットも大きなものがついていますのでお洋服はすべてこちらに掛けておきましょう!
最後にバルコニーです!
バルコニーはL字になっているのでけっこう広く感じます。
イスを置ければ良さそうですよね( ̄∀ ̄*)
8階にもなると視界を邪魔する建物もほとんどありませんね!
雲のない晴れた日だと本当に気持ちが良いです!!
以上でハイホーム本陣8階のご案内を終わります。
新宿に近いこともあって通勤通学には最適ですよ!近くにスーパーなどもありますのでお買い物もしやすいと思います!
内見のご予約やご質問などございましたらお気軽にお問い合わせください。
弊社、不動産Agent 六棒株式会社では、
□リノベーションマンションはほぼ全て仲介手数料無料!
□その他一般仲介物件は仲介手数料20%~30%OFF!
にてお取り扱いしております!※弊社の「Agent Fee=仲介手数料」についてはご案内、ご面談の際に営業担当者よりご説明いたします!
なるべく沢山のお部屋をホームページに掲載したいと思っておりますが、時間的成約もございますので、残念ながらご紹介できるお部屋の一部しか掲載できておりません。
このホームページに掲載中のお部屋、その他サイト等で気になるお部屋、街を歩いていて気になったマンション等々ございましたら是非、弊社営業部までご相談ください!
~不動産Agent 六棒株式会社の特徴~
・一般仲介物件の仲介手数料は20%~30%OFFにてご案内中です!
・リノベーションマンションについてはほぼ全て仲介手数料無料です!
・住宅ローンに自信あります!
・頭金10万円より購入できます。是非ご相談下さい!
・お部屋のご見学は車で2~3件まとめて案内します!
・物件数3000件以上、新築戸建、リノベ物件も多数ご用意しております!
過去に販売していたお部屋の概要 このお部屋の販売は終了いたしました。
| 価格 | -万円 |
| 面積 | 56.40㎡ |
| 間取り | 2bedrooms(2LDK) |
| 管理費 | 月額:17.190円 修繕積立金:月額9.520円 |
| 所在階 | 11階 |
| お問い合わせ・ご内見のご予約はこちらからお気軽にどうぞ | |
今回ご紹介するお部屋の間取りをご紹介です♪
2LDK、56.40㎡のお部屋です。
<リノベーション内容>
■システムキッチン(浄水器付)
■ユニットバス・給湯器・浴室乾燥機(追炊機能)
■トイレ・洗面化粧台交換
■フローリング交換
■建具・玄関収納交換
■ダウンライト・シーリングライト
■クロス全貼替
■フロアタイル張替
■ハウスクリーニング
等
それでは早速お部屋に行ってみましょう♪
優しい色合いで統一されたお部屋で、何だか落ち着きます。
玄関扉右側にはシューズボックスがありますよ!
リビングダイニングキッチンは約12.2帖と広々空間です!
南向きのバルコニーに面しているので陽の光がたくさん入ってきます(*´v`*)ノ
スライド扉を開けると、約6.4帖の洋室があります。
扉を開けておけばリビングダイニングが開放的な空間に早変わりです♪
こちらの洋室もバルコニーに面しており、とても陽当たりが良いです♪
大きなウォークインクローゼットがあります!L字型のバーがあり、たくさんのお洋服が収納可能です✿
天井には大きな照明を基盤に小さな照明がちりばめられています。
夜でもお部屋を明るくしてくれます(*´▽`)

キッチンは人気のカウンター式キッチンです!
お料理中でも会話が楽しめます♪

デザイン性のある新しい換気扇が使用されています。
流し台はステンレスではなく人造大理石が使用されおりお洒落です✿
コンロは3口あり、一度に複数のお料理を作ることができます♪
リビングダイニングキッチンには、お風呂のボタンやTVモニター付きインターフォンがありますよ!
玄関上がってすぐ右のお部屋は約5.7帖の洋室です。
こちらもシンプルなお部屋で居心地がいいです♪
エアコン工事が完了しているのでエアコンの設置が出来ます。是非ご検討下さい(*´˘`*)
奥行のある大きな収納があります。
バーや棚があるのでとても便利です♪ボックスを買って棚に置けばより綺麗に収納出来ますね♪
お隣の扉はトイレです!LIXIL製のウォシュレット機能がついたトイレがあります!
シルバーのトイレットペーパーホルダーはお部屋のアクセントになっています♪
吊戸棚には補充品やお掃除道具などが収納できます。扉付きなので生活感が隠せてお部屋を綺麗に保てます(*´˘`*)
洗面台の照明は三面鏡のつなぎめにあります。
お肌の細かい所まで照らしてくれるのでお化粧のむらに気が付くことができます♪
シンク周りのスペースには石鹸やアロマ等が置けますよ(♡˙︶˙♡)
洗濯機置場は洗面台の向かいにあります。
水廻りがまとめられ、お掃除がしやすく便利です✿
バスルームはコチラ!
ゆったりと浸かれる大きな浴槽があります♪棚が大きく造られているので風呂桶等も置けちゃいます✿
ワイドミラーが実際のお部屋の面積よりも大きくみせてくれますよ(*´˘`*)
バルコニーは陽当たり良好です!お洗濯物はこちらにどうぞ♪
11階からの眺めは絶景ですね。ビルが建ち並ぶ街並みを遠くまで見渡すことができます(◆*’v`*)
いかがでしたでしょうか?
ご質問等ございましたらお気軽にご連絡ください!
皆様のご連絡心よりお待ちしております♪
過去に販売していたお部屋の概要 このお部屋の販売は終了いたしました。
| 価格 | -万円 |
| 面積 | 29.64㎡ |
| 間取り | 1bedroom(1DK) |
| 管理費 | 月額8,980円 修繕積立金:月額5,000円 |
| 所在階 | 14階 |
| お問い合わせ・ご内見のご予約はこちらからお気軽にどうぞ | |
間取りのご紹介です。1DK、29.64㎡。
最上階につき眺望良好!新宿のビル群や東京スカイツリーが臨めるお部屋です。
室内は平成22年にフルリフォームを実施していますが、今回新たに以下のリフォームを実施して
います。
【リフォーム内容】
■浴室・・・シャワーヘッド、ホース、フック交換
■洗面所・・・洗面化粧台新設
■その他・・・居室新規引違戸、クロス全室貼替、ウッドタイル貼替、クッションフロア貼替、新規照明器具全室取付、エアコン内部洗浄、ハウスクリーニング
間口が広広々とした玄関ホール。
DKからの明るい日差しも差し込んできます。
カウンタータイプのシューズBOXでオブジェのディプレイや小物入れなどを置くことができます。
玄関左側のドアはサニタリールーム。
トイレ・洗面台・バスルーム・ランドリースペースが一緒になっていますが、その分スペースが広々しています。
コンパクトながら使いやすそうな洗面台。
ランドリースペースの上部には吊戸棚が設置されていて洗剤やシャンプーなどがストックできます。
バスルームはクリーニング済み。
玄関の正面のドアからダイニングキッチンへ。
DKへ入ると左側にTEL台がありTVモニター付インターホンも設置されています。
エアコンも設置済み。
北向きのお部屋ですが暗さは感じません。
キッチンは奥まった独立した位置にあります。
電子レンジなどをおくカウンターが置けそうなスペースがあり吊戸棚も設置されていて収納スペースが豊富にあります。
キッチン設備は2口ガスコンロ、グリルに浄水器一体型水栓も付いています。
こちらは洋室。エアコンも各部屋に設置されています。
奥行があり十分な容量のクローゼット。
隣にカウンターがあり、デスクとしてもお使い頂けます。
北向きのバルコニーは7.12㎡。
正面に高い建物がなく景色は抜けていてうっすらとスカイツリーを望むこともできます。
靖国通りに面していますので騒音のチェックは必要になるかと思います。
ご内見のご希望・ご質問などございましたら、お気軽にお問い合わせくださいませ♪
過去に販売していたお部屋の概要 このお部屋の販売は終了いたしました。
| 価格 | -万円 |
| 面積 | 51.30㎡ |
| 間取り | 1bedroom(1LDK) |
| 管理費 | 月額:15,630円 修繕積立金:月額8,670円 |
| 所在階 | 8階 |
ここで間取りのご紹介。51.30㎡、1LDK+Sです。8階部分の南向きにつき、
眺望・日当たり期待できそうです。
玄関を入ると、壁面のアクセントクロスがパッと目をひきつけます。しかもニッチ
部分は異なる模様を貼り分けてあるという芸の細かさ。
人感センサーが付いていましたので、どっぷり深夜に帰ってきても明かりが
出迎えてくれます。
日差しがまぶしいリビングダイニング。ここも複数のクロスが貼り分けられています。
エアコンが付いていますので、入居したその日から快適にお過ごしいただけますね。
バルコニーからの眺望。さすがに8階だけあってそこそこ抜けています。
隣のお寺が見下ろせます。中に池?がありますよ。
リビングダイニングから半ば独立するような形で設けられているキッチン。
画像にはあまり写っていませんが、背面のタイル模様のクロスが大変こじゃれて
おります。3口コンロに浄水器一体型水栓が装備され、機能的でお料理しやすそう
ですよ。
キッチンにあった扉を、パントリーかな?と思って開けたら洗濯機置き場でした。
家事動線がこりゃあ短くて助かりますのう。
洗面室の床タイルが素敵なんです。ホワイトがキラキラしてるんです。
化粧台のボウルも継ぎ目がなく、美しさと手入れのしやすさを兼ね備えています。
三面鏡裏はキャビネット収納。ドライヤーやシェーバーも楽にしまえそうな
幅&奥行きあります。
ダークブラウンの壁面パネルがアーバンなムードのバスルーム。照明は調光器
で明るさが調節できるので、お好みに合わせてゆったりリラックスできます。
浴室換気乾燥機が設置されておりますので、寒い日には入浴前に事前に
暖房、暑い時は涼風モードと、バスタイムをさらに快適にしてくれます。
梅雨時や台風のときにも洗濯物がバリッと乾きます。
ウォシュレット付のトイレ。洗面室と同じ床タイルが使用されているうえ、
壁面のクロスもモダーーンかつ大胆な色使いです。上部には吊戸棚が
設置されているので、掃除道具や日用品などはすっきりとお片付けして
おけます。
リビングダイニングとなり・約5.5帖の洋室。こちらのお部屋には、書道家が
遊び心を出して筆で点描してみました、といったニュアンスのクロスが使用されて
おります(どんなのかご覧になりたい方は、是非現地までどうぞ!)
収納スペースもクローゼットにちょっとした棚までついて、充実しています。
こちらは玄関側・約5.2帖のサービススペース。コンパクトな広さながらもしっかり
収納、エアコンまで付いています。
「ハイホーム本陣」、いかがでしたか?最寄りは新宿御苑前駅、曙橋駅ですが
その気になれば新宿エリアまでホイホイ歩けちゃいます。
皆様のご内見、心よりお待ちしております!

















































































































































弊社 公式HP
六棒総合研究所
掲載予定物件
価格変更と販売終了物件
ハザードマップ検索
適合証明書.jp
Facebook
Twitter
Instagram