・
□□□□□□□□□□□□□□□□□□□□□□□□□□□□□□□□□□□□□□□
仲介手数料無料でご好評頂いております不動産Agent 六棒株式会社です。
弊社ではリノベーションマンションはほぼ全て仲介手数料無料にてお取り扱いして
おります。気になるお部屋がございましたら是非お問い合わせください!
飯田橋第一パークファミリアは…
正規仲介手数料をお支払いの場合と比べ約210万円お得にご購入頂けます!
□□□□□□□□□□□□□□□□□□□□□□□□□□□□□□□□□□□□□□□
・
JR中央総武線、東京メトロ南北線・有楽町線・東西線、都営大江戸線
が乗り入れる「飯田橋」駅より徒歩11分。
『飯田橋第一パークファミリア』のご紹介です!
その前に…
□□□□□□□□□□□□□□□□□□□□□□□□□□□□□□□□□□□□□□□
★★★【飯田橋第一パークファミリア】周辺のハザードマップをCHECK!!★★★
お部屋の記事を読む前に…!周辺のハザードマップをチェックしておきませんか!
飯田橋第一パークファミリアのハザードマップは★こちらから…どうぞ★
□□□□□□□□□□□□□□□□□□□□□□□□□□□□□□□□□□□□□□□
ハザードマップもご確認いただきましたので、マンションへ向かいましょう!
東京メトロ有楽町線「江戸川橋」駅徒歩9分、東京メトロ東西線「神楽坂」徒歩12分
も利用可能と都心だけならず、各方面へアクセスは良好です。
出口は複数ありますが、マンションまではC1出口が一番近いです。
ちなみにB1地上出口のすぐ横にはブックオフが、さらにB1の改札前には
ユニクロがありました。また小石川後楽園も駅から徒歩500m以内。
近くで四季折々の景色も楽しめます。
駅周辺をちょっと散策。飲食店が目立ちます!
赤い外観の目立つ九十九ラーメン店では珍しいチーズラーメンが食べられる
そうです。900円です。
飲食店も多いですが、マンションへ向かう途中にはマルエツプチやコンビニ、
サブウェイもあり普段のお買いものから、ちょっとした食事もすぐ調達できる
環境です。
マンションまでは改札を出たら左方向へ。大久保通り沿いにまっすぐ歩き、
厚生年金病院が見えたら、右折して病院脇の道をまたまたまっすぐ歩くと
到着します。
ちなみに厚生年金病院の道路向かい側は津久戸小学校が建っています。
新小川町の交差点まで来たらあとちょっとです・・・!
この交差点の付近には新小川公園があったり、
キッシュとタルトのお店や居酒屋さんなんかもあります。
飯田橋第1パークファミリアは昭和54年築、12階建て、総世帯数180戸の
大規模マンション。三井不動産旧分譲です。
エントランスは道路に面しておらず、少し奥まったところにあります。
エントランスは自動ドアで出入りも楽々。
オートロックはありませんが、日勤で管理人さんがいるので安心。
所々に防犯カメラも設置されており、しっかり管理されている様子が伺えました。
エントランスホールもゆったりした広さ。これなら家族同士がすれ違ってもぶつかる心配はなさそうです。入ってすぐ横に管理人室があります。
エレベーターは2基設置されています。
混みあう時間帯もスムーズに移動ができそうですね!
敷地内には駐車場(月額30,000円)、駐輪場(年額2,400円)、バイク置場(年額18,000円)があります。空き状況は変動するのでご内見の際にご確認くださいませ。
その他、マンション専用のゴミ置き場もありますよ。
大規模マンションだとゴミ置き場もちょっとした小屋位の大きさがあります(*‘ω‘ *)
玄関前はこんな感じの外廊下になっています。
お隣の玄関扉とも程よく距離が離れています。
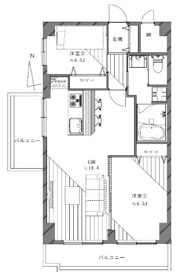
今回ご紹介するお部屋は3階、専有面積54.60㎡の2LDK。お一人暮らしからスモールファミリーの方まで幅広くお使いいただけるお部屋です。
間取り図はコチラ ↓ ↓ ↓
※間取り図は別タブで開きますので、確認しながらご覧いただくことができます。
□□□□□□□□□□□□□□□□□□□□□□□□□□□□□□□□□□□□□□□
★★★【飯田橋第一パークファミリア】周辺のハザードマップをCHECK!!★★★
お部屋の記事を読む前に…!周辺のハザードマップをチェックしておきませんか!
飯田橋第一パークファミリアのハザードマップは★こちらから…どうぞ★
□□□□□□□□□□□□□□□□□□□□□□□□□□□□□□□□□□□□□□□
ではお邪魔します!
【LDK:約12.5帖・西向きバルコニー】
【LDK:白に木目を合わせた温かみのある雰囲気】
【キッチン:カウンタータイプ・食器洗浄乾燥機・浄水機能一体型水栓】
【洋室1:約4.2帖・入口に引き戸使用・クローゼット付き】
【洗面室:三面鏡付き洗面化粧台・洗濯機スペース】
【浴室:追い焚き機能・浴室換気乾燥機付き】
【トイレ:洗浄機能一体型・吊り戸棚付き】
・
以上で飯田橋第一パークファミリアのご案内を終わります。
いかがでしたでしょうか??
飯田橋駅から徒歩11分のマンションです。
リノベーション済みという事で室内はとてもキレイですよ (っ・ω・)っ
内見のご予約やご質問などございましたらお気軽にお問い合わせくださいませ。
ご連絡お待ちしております。
弊社、不動産Agent 六棒株式会社では、
□リノベーションマンションはほぼ全て仲介手数料無料!
□その他一般仲介物件は仲介手数料20%~30%OFF!
にてお取り扱いしております!※弊社の「Agent Fee=仲介手数料」についてはご案内、ご面談の際に営業担当者よりご説明いたします!
なるべく沢山のお部屋をホームページに掲載したいと思っておりますが、時間的成約もございますので、残念ながらご紹介できるお部屋の一部しか掲載できておりません。
このホームページに掲載中のお部屋、その他サイト等で気になるお部屋、街を歩いていて気になったマンション等々ございましたら是非、弊社営業部までご相談ください!
~不動産Agent 六棒株式会社の特徴~
・一般仲介物件の仲介手数料は20%~30%OFFにてご案内中です!
・リノベーションマンションについてはほぼ全て仲介手数料無料です!
・住宅ローンに自信あります!
・頭金10万円より購入できます。是非ご相談下さい!
・お部屋のご見学は車で2~3件まとめて案内します!
・物件数3000件以上、新築戸建、リノベ物件も多数ご用意しております!
過去に販売していたお部屋の概要 こちらのお部屋の販売は終了いたしました
| 価格 | -万円 |
| 面積 | 54.60㎡ |
| 間取り | 2bedrooms(2LDK) |
| 管理費 | 月額10,300円 修繕積立金:月額12,200円 |
| 所在階 | 4階 |
| お問い合わせ・ご内見のご予約はこちらからお気軽にどうぞ | |
ここで間取り図のご紹介です。
※間取り図は別タブで開きますので、確認しながらご覧いただくことができます。
□□□□□□□□□□□□□□□□□□□□□□□□□□□□□□□□□□□□□□□
★★★【飯田橋第一パークファミリア】周辺のハザードマップをCHECK!!★★★
お部屋の記事を読む前に…!周辺のハザードマップをチェックしておきませんか!
飯田橋第一パークファミリアのハザードマップは★こちらから…どうぞ★
□□□□□□□□□□□□□□□□□□□□□□□□□□□□□□□□□□□□□□□
今回ご紹介するお部屋は4階、間取りは2LDK、専有面積は54.60㎡。ファミリーからお一人暮らしの方まで幅広くお使いいただけるお部屋です。では、さっそく行ってみましょう!
玄関から廊下にかけては白を基調にした明るい雰囲気。建具まで白にそろえられた中、黒の金具がいい感じのアクセントになっていますね。照明には人感センサーが付けられているので、いつでも明るい玄関が迎えてくれますよ。
最初のお部屋は約4.3帖の洋室1。
廊下から直接出入りができるプライベート感高めのお部屋です。ファミリーなら子供部屋、お一人暮らしやDINKSの方なら書斎や物入などにオススメ。
廊下反対側のトイレはINAX製洗浄機能一体型。
いろいろ飾れるニッチカウンターや掃除道具やトイレットペーパーストックを入れておける吊戸棚も付いています。
隣は洗面室。
洗面室には洗面化粧台の他に洗濯機スペースと浴室がまとまっていて脱衣所も兼ねています。洗面化粧台は身だしなみを整えるのに便利な三面鏡付き。裏はキャビネットになっているので、洗面周りに散らかりがちな細々としたものもスッキリ収まりますよ。
浴室は温かみのある色合いの木目パネルを使用。リラックスしてのんびりとバスタイムを過ごせそうですね。ユニットバスには追い焚き機能が付いていてお風呂の準備はワンタッチ!保温もしてくれるのでいつでも温かいお風呂に入ることができますよ。雨が続く季節に嬉しい浴室換気乾燥機付き。
こちらは約13.2帖のリビング・ダイニング・キッチン。
木目を生かしたフローリングと白をベースにしたナチュラルな雰囲気のお部屋です。リビング部分は濃いめのグレーのアクセントによってシックなテイストがプラスされているので、家具などのインテリアもそちらに寄せるといいかもしれませんね。
西向きバルコニーに面した窓に向かって、キッチン、ダイニング、リビングと並べるオーソドックスなタイプ。十分な広さもありレイアウトに悩むことはなさそうです。
キッチンは開放感が人気のカウンタータイプ。
お料理中でもリビングダイニングとのコミュニケーションがスムースで、一体感があるのが特徴です。コンロ前の油跳ねよけもガラス製にするなど解放感にはこだわりアリ!食器洗浄乾燥機や浄水機能一体型水栓など便利機能も完備しています。
こちらは約6帖の洋室2。
LDKと同じ西向きのバルコニーに面したお部屋です。収納はオープンのウォークインクローゼット!!!収納力抜群なのはもちろん、通気性がよく湿気や匂いがこもる心配もありません。メインのベッドルームにお勧めです。
それでは最後にバルコニーからの眺めをご紹介。
高いビルが建ち並ぶ印象のエリアですが正面にはそれほど高い建物もなく、まずまずの眺めになっていますね。これなら午後は陽射しも期待できそうです♬
・
以上で飯田橋第一パークファミリアのご案内を終わります。
いかがでしたでしょうか??
飯田橋駅から徒歩11分のマンションです。
リノベーション済みという事で室内はとてもキレイですよ (っ・ω・)っ
内見のご予約やご質問などございましたらお気軽にお問い合わせくださいませ。
ご連絡お待ちしております。
□□□□□□□□□□□□□□□□□□□□□□□□□□□□□□□□□□□□□□□
★★★【飯田橋第一パークファミリア】周辺のハザードマップをCHECK!!★★★
お部屋のご購入前に…!周辺のハザードマップをチェックしておきませんか!
飯田橋第一パークファミリアのハザードマップは★こちらから…どうぞ★
□□□□□□□□□□□□□□□□□□□□□□□□□□□□□□□□□□□□□□□
弊社、不動産Agent 六棒株式会社では、一般仲介物件は仲介手数料20%~30%OFF!
にてお取り扱いしております!
なるべく沢山のお部屋をホームページに掲載したいと思っておりますが、時間的成約もございますので、残念ながらご紹介できるお部屋の一部しか掲載できておりません。
このホームページに掲載中のお部屋、その他サイト等で気になるお部屋、街を歩いていて気になったマンション等々ございましたら是非、弊社営業部までご相談ください!
~不動産Agent 六棒株式会社の特徴~
・一般仲介物件の仲介手数料は20%~30%OFFにてご案内中です!
・住宅ローンに自信あります!
・頭金10万円より購入できます。是非ご相談下さい!
・お部屋のご見学は車で2~3件まとめて案内します!
・物件数3000件以上、新築戸建、リノベ物件も多数ご用意しております!
過去に販売していたお部屋の概要 こちらのお部屋の販売は終了いたしました
| 価格 | -万円 |
| 面積 | 54.60㎡ |
| 間取り | 2bedrooms(2LDK) |
| 管理費 | 月額10,300円 修繕積立金:月額12,200円 |
| 所在階 | 5階 |
| お問い合わせ・ご内見のご予約はこちらからお気軽にどうぞ | |
ここで間取り図のご紹介です。
※間取り図は別タブで開きますので、確認しながらご覧いただくことが出来ます。
□□□□□□□□□□□□□□□□□□□□□□□□□□□□□□□□□□□□□□□
★★★【飯田橋第一パークファミリア】周辺のハザードマップをCHECK!!★★★
お部屋の記事を読む前に…!周辺のハザードマップをチェックしておきませんか!
飯田橋第一パークファミリアのハザードマップは★こちらから…どうぞ★
□□□□□□□□□□□□□□□□□□□□□□□□□□□□□□□□□□□□□□□
今回ご紹介するお部屋は5階、専有面積54.60㎡の2LDK。ファミリーからおひとり暮らしの方まで幅広くお使いいただけるお部屋です。では、早速行ってみましょう!
5階でエレベーターを降りて外廊下をお部屋へと向かいます。
玄関のドア横にはモニター付きインターホンが設置され、室内から玄関前の様子を確認することが可能。わざわざ玄関まで来る必要もなく、料理中などちょっと手が離せない時にはとても助かります。
玄関からは真っすぐ伸びた廊下はナチュラルカラーでまとめられ落ち着いた雰囲気。シューズボックスを少し下げ玄関に横幅をもたせているので広々と感じますね。
玄関照明は人感センサー付き。人が近づいたのを感知して自動的に照明を点けてくれるので、暗い中手探りでスイッチを探すなんてこともありません。私も使っていますがとても便利ですよ。シューズボックスは収納力のあるトールタイプ。扉に付けられた姿見もお出かけ前のチェックに重宝しそうです。
ではお部屋の中へ…
こちらは約12.6帖のリビング・ダイニング・キッチン。
東向きバルコニーに面したお部屋です。木目を生かしたフローリングをベースにした温かみのあるところに、グレーのアクセントがモダンな雰囲気をプラスしていますね。モノトーンの家具との相性も良さそうですし、色を合わせるにしても幅広く選べそうです。
反対側から…
縦長のお部屋なので入口からキッチン、ダイニング、リビングと並べるオーソドックスなレイアウトになりそうです。変化を付けるとすると、ライフスタイルによってLDのスペース配分を変えることくらいでしょうか。
収納も豊富!
食品や生活用品のストックからリビングに散らかる様々なものまで、しまっておくことによって居心地の良い空間を保つのに役立ちます。棚の高さは変えられるので入れるものによってカスタマイズして使いましょう!
キッチンは人気のカウンタータイプ。
開放的でリビングとのコミュニケーションが取りやすいのでお料理中でもご家族やご友人との会話を楽しめますよ。おひとりの時なら気になるテレビを見ながらなんていかがですか?
ゆったり幅の調理台下にはスライドキャビネットがずらり。スライドキャビネットは上からなのでの出し入れでも楽々、ぎっしり詰めても中身の確認がしやすいのが特徴です。足りなければ後ろのスペースにカップボードなども置けますよ。
みんなの憧れ食器洗浄乾燥機!!!
食器洗いから解放されるので食後はみんな揃ってのんびり過ごせますね♬ 水栓は浄水機能一体型。切り替えるだけで気軽に美味しいお水が使えます。
コンロは3口、グリル付。グリルは魚イメージが強いですが、何でも美味しく仕上げてくれる優れもの。ネット上にレシピがたくさん上がっていますので、ご興味のある方は是非調べてみてください。調理中は換気扇をお忘れなく!少し早めに回し始めると効果的らしいですよ。
次のお部屋へ…
LDKの隣のお部屋です。
こちらは約5.3帖の洋室。
LDKと同じ東向きバルコニーに面しています。入口に引き戸を使用しているので扉の開け閉めによる無駄なスペースもなく、お部屋の広さを有効に使えますよ。
収納はウォークインクローゼット!!!
L字型にハンガーパイプが設置された大きな収納です。洋服がたくさん入るのはもちろん、スーツケースや季節家電などを入れておくのも良さそうですね。ちなみに、ファンヒーターや扇風機は100均の布団収納袋に入れておくと埃も付かずスッキリ収納出来ていいらしいですよ。洋室にはアクセントがないと思っていたら、さりげなく見えないところに使われていました♪
引き込み式の扉を全開にするとLDKとつなげて使うことも出来ます。合わせると約18帖の広いお部屋の出来上がり!ご家族構成や状況によってフレキシブルに使えるのは嬉しいですね。
つなげればバルコニーからの日差しも2倍!
廊下に戻って、次のお部屋へ…
こちらは約5帖の洋室。
西向きの窓が付いています。LDKを通らずに出入り出来るプライベート感高めのお部屋なのでベッドルームにお勧め。
窓の外は共有廊下ですが、防音性を高めるインナーサッシが設置されているので歩く音が気になったりする心配もありません。さらに遮熱や防犯面にも効果があります。
収納はクローゼットと収納棚。クローゼットは全面が大きく開くタイプで、収納力ではウォークインクローゼットに敵いませんが使い勝手なら負けていませんよ。
次はトイレへ…
段差があるのでお気を付けください。
お部屋のナチュラルな雰囲気とはガラリと変ってスタイリッシュな印象ですね。
いろいろ飾ってインテリアを楽しめるニッチカウンターや、トイレットペーパーや掃除道具を入れておくのに便利な吊戸棚が付いています。トイレはLIXIL製の浄水機能一体型。
次は洗面室へ…
洗面室には洗面化粧台の他に洗濯機スペースと浴室があり脱衣所も兼ねています。
洗面化粧台は身だしなみを整えるのに便利な三面鏡付。上部にライトも付いているので鏡を開いた時に影になったりもしませんよ。水栓がビルドインになっているのでお掃除も楽そうですね。
コンパクトな水栓ですが、ヘッドが引き出せるので洗面ボウルを流したりにも便利です。洗面化粧台には収納も豊富!洗面周り溢れる様々なものをバランスよく収納することが可能です。
浴室は白にストーン調のアクセントを合わせて高級感たっぷり!
追い焚き機能付きなのでお風呂の準備もスイッチひとつ!入っていてお湯が冷めてしまっても自動的に設定温度まで温め直してくれ、いつでも温かいお風呂に入れます。一度使ったら止められない機能ですよ。シャワーヘッドホルダーは好みの位置で使えるスライドタイプ。
浴槽には立ち上がる時に助けになるよう出っ張りが付いていたり、首が当たるところが滑らかになっていたりと快適なバスタイムが過ごせるような工夫がされています。
浴室換気乾燥機能付き。換気や浴室乾燥の他にも、ヒートショック予防に役立つ浴室暖房や、暑い時期に嬉しい涼風などいろいろな機能があるのでどんどん使っていきましょう。
最後はバルコニーのご紹介。
LDK、約5.3帖の洋室のどちらからでも出られます。
広さ6.27㎡、東向き。手すりが足元まで柵になった開放的なバルコニーです。ご覧の通りの陽当たりですからお洗濯物も気持ち良く乾きそうですね。天井には物干し金具も付いています。干すなら朝からがお勧めですよ。
高い建物が立ち並ぶエリアながら正面が抜けているので解放感があります。色付く木々などもちらほら見えて、季節感を感じられるのもいいですね♬
・
以上で飯田橋第一パークファミリアのご案内を終わります。
いかがでしたでしょうか??
飯田橋駅から徒歩11分のマンションです。
リノベーション済みという事で室内はとてもキレイですよ (っ・ω・)っ
内見のご予約やご質問などございましたらお気軽にお問い合わせくださいませ。
ご連絡お待ちしております。
□□□□□□□□□□□□□□□□□□□□□□□□□□□□□□□□□□□□□□□
★★★【飯田橋第一パークファミリア】周辺のハザードマップをCHECK!!★★★
お部屋のご購入前に…!周辺のハザードマップをチェックしておきませんか!
飯田橋第一パークファミリアのハザードマップは★こちらから…どうぞ★
□□□□□□□□□□□□□□□□□□□□□□□□□□□□□□□□□□□□□□□
弊社、不動産Agent 六棒株式会社では、
□リノベーションマンションはほぼ全て仲介手数料無料!
□その他一般仲介物件は仲介手数料20%~30%OFF!
にてお取り扱いしております!※弊社の「Agent Fee=仲介手数料」についてはご案内、ご面談の際に営業担当者よりご説明いたします!
なるべく沢山のお部屋をホームページに掲載したいと思っておりますが、時間的成約もございますので、残念ながらご紹介できるお部屋の一部しか掲載できておりません。
このホームページに掲載中のお部屋、その他サイト等で気になるお部屋、街を歩いていて気になったマンション等々ございましたら是非、弊社営業部までご相談ください!
~不動産Agent 六棒株式会社の特徴~
・一般仲介物件の仲介手数料は20%~30%OFFにてご案内中です!
・リノベーションマンションについてはほぼ全て仲介手数料無料です!
・住宅ローンに自信あります!
・頭金10万円より購入できます。是非ご相談下さい!
・お部屋のご見学は車で2~3件まとめて案内します!
・物件数3000件以上、新築戸建、リノベ物件も多数ご用意しております!
過去に販売していたお部屋の概要 こちらのお部屋の販売は終了いたしました
| 価格 | -万円 |
| 面積 | 63.10㎡ |
| 間取り | 2bedrooms(2SLDK) |
| 管理費 | 月額11,900円 修繕積立金:月額14,100円 |
| 所在階 | 4階 |
| お問い合わせ・ご内見のご予約はこちらからお気軽にどうぞ | |
ここで間取り図のご紹介です。
※間取り図は別タブで開きますので、確認しながらご覧いただくことが出来ます。
□□□□□□□□□□□□□□□□□□□□□□□□□□□□□□□□□□□□□□□
★★★【飯田橋第一パークファミリア】周辺のハザードマップをCHECK!!★★★
お部屋の記事を読む前に…!周辺のハザードマップをチェックしておきませんか!
飯田橋第一パークファミリアのハザードマップは★こちらから…どうぞ★
□□□□□□□□□□□□□□□□□□□□□□□□□□□□□□□□□□□□□□□
今回ご紹介するお部屋は4階、間取りは2SLDK、専有面積は63.10㎡。ファミリーやDINKSの方などにおススメのお部屋です。収納に関しては1Fに2.14㎡のトランクルーム(倉庫維持費300円/月)も付いているので心強いですね。では、早速行ってみましょう!
玄関から廊下にかけては豪華な大理石貼り!!!建具のナチュラルな色合いに合わせた暖色系の温かい雰囲気になっています。廊下は玄関から横向きに伸びているので戸口から室内が見えづらく、宅配便やフードデリバリーなどの利用機会が増えた現代にはぴったりの造りですよ。
こちらは玄関側の洋室。
ほぼ凸凹のない形なので無駄なくスペースを使えそうなお部屋です。ベッドも少し大きめをチョイスしてはいかがですか?入口が引き戸で、開け閉めによるデッドスペースの心配をしなくていいのもいいですね。
洗面室には洗面化粧台、洗濯機スペース、浴室がまとまっていて、脱衣所を兼ねています。洗面化粧台は身だしなみを整えるのに便利な三面鏡付。洗面ボウル下のスライドキャビネットや三面鏡裏のミラーキャビネットなど収納が豊富なのも嬉しいですね。洗濯機スペースには吊戸棚も付いているので、洗濯グッズはこちらへどうぞ。
浴室はナチュラルカラーの木目調パネルで温かみのある雰囲気。これなら一日の疲れもすっかり癒されそうですね。追い焚き機能&浴室換気乾燥機付。天気を気にせず洗濯機を回せるのは助かります。
トイレはTOTO製の温水洗浄機能付き。ちょっとした物を飾れるニッチカウンターや、トイレットペーパーストックや掃除道具をしまっておくのに便利な吊戸棚も付いています。
廊下の途中にはガラス張りのお部屋が…
こちらはサービスルーム。デスクやソファーベッドなどが造り付けになったお部屋です。ワークルーム?ホビールーム?子供部屋?と使い道を考えるのが楽しくなりそうですね。ただし、子供部屋にした場合は勉強をさぼっていればすぐ見つかってしまいますし、ワークルームの場合はソファーベッドの誘惑と闘わなければなりませんのでご注意を(笑)
こちらはリビング・ダイニング・キッチン。
南向きバルコニーに面した明るいお部屋です。壁天井には木目を生かしたパネルが付加され、包み込まれるような落ち着きを感じますね。間接照明やダウンライト、スポットライトなど様々な光が作り出す明暗がアクセントになっています。
入口からバルコニーへ向かってキッチン、ダイニング、リビングと並ぶオーソドックスなタイプ。残念ながら家具は付いて来ませんが、ディスプレイしてもらえると生活のイメージがしやすくて助かります。色やサイズ、素材感などの参考にさせてもらいましょう!キッチンは解放感のあるカウンタータイプ。食器洗浄乾燥機や浄水機能一体型水栓などの便利機能も充実しています。
LDKにはデスクが造り付けになったDENのようなスペースも。壁に設置された有孔ボードでは、気軽にインテリアを楽しんでいただくことが出来ますよ。賃貸でなくても壁に穴をあけるのって勇気がいりますよね(^-^;
・
以上で飯田橋第一パークファミリアのご案内を終わります。
いかがでしたでしょうか??
飯田橋駅から徒歩11分のマンションです。
リノベーション済みという事で室内はとてもキレイですよ (っ・ω・)っ
内見のご予約やご質問などございましたらお気軽にお問い合わせくださいませ。
ご連絡お待ちしております。
□□□□□□□□□□□□□□□□□□□□□□□□□□□□□□□□□□□□□□□
★★★【飯田橋第一パークファミリア】周辺のハザードマップをCHECK!!★★★
お部屋のご購入前に…!周辺のハザードマップをチェックしておきませんか!
飯田橋第一パークファミリアのハザードマップは★こちらから…どうぞ★
□□□□□□□□□□□□□□□□□□□□□□□□□□□□□□□□□□□□□□□
弊社、不動産Agent 六棒株式会社では、
□リノベーションマンションはほぼ全て仲介手数料無料!
□その他一般仲介物件は仲介手数料20%~30%OFF!
にてお取り扱いしております!※弊社の「Agent Fee=仲介手数料」についてはご案内、ご面談の際に営業担当者よりご説明いたします!
なるべく沢山のお部屋をホームページに掲載したいと思っておりますが、時間的成約もございますので、残念ながらご紹介できるお部屋の一部しか掲載できておりません。
このホームページに掲載中のお部屋、その他サイト等で気になるお部屋、街を歩いていて気になったマンション等々ございましたら是非、弊社営業部までご相談ください!
~不動産Agent 六棒株式会社の特徴~
・一般仲介物件の仲介手数料は20%~30%OFFにてご案内中です!
・リノベーションマンションについてはほぼ全て仲介手数料無料です!
・住宅ローンに自信あります!
・頭金10万円より購入できます。是非ご相談下さい!
・お部屋のご見学は車で2~3件まとめて案内します!
・物件数3000件以上、新築戸建、リノベ物件も多数ご用意しております!
過去に販売していたお部屋の概要 こちらのお部屋の販売は終了いたしました
| 価格 | -万円 |
| 面積 | 54.60㎡ |
| 間取り | 2bedrooms(2LDK+DEN) |
| 管理費 | 月額10,300円 修繕積立金:月額12,200円 |
| 所在階 | 6階 |
| お問い合わせ・ご内見のご予約はこちらからお気軽にどうぞ | |
ここで間取り図のご紹介です。
※間取り図は別タブで開きますので、確認しながらご覧いただく事が出来ます。
□□□□□□□□□□□□□□□□□□□□□□□□□□□□□□□□□□□□□□□
★★★【飯田橋第一パークファミリア】周辺のハザードマップをCHECK!!★★★
お部屋の記事を読む前に…!周辺のハザードマップをチェックしておきませんか!
飯田橋第一パークファミリアのハザードマップは★こちらから…どうぞ★
□□□□□□□□□□□□□□□□□□□□□□□□□□□□□□□□□□□□□□□
お部屋は6階、専有面積54.60㎡の2LDK。お一人暮らしやDINKSの方にお勧めのお部屋です。在宅ワークの増えている昨今、書斎に使えるDENが付いているのは嬉しいですね。
では、早速行ってみましょう!

玄関から廊下にかけては暖色系の大理石が貼られ、高級感のある落ち着いた雰囲気になっています。建具がナチュラルカラーなのもあって石素材特有の冷さが感じられないのもいいですよね。玄関照明は人感センサー付き。夜帰って来て、真っ暗な中スイッチを探す必要もありません。いつでも明るい玄関が迎えてくれるのは嬉しいものです♬

こちらは玄関横の洋室。
廊下に面した独立性の高いお部屋です。入口にデッドスペースを作らない引き戸を使っているので、お部屋全体を無駄なく使えますよ。ベッドの位置を決めようとした時などに、意外とポイントになるんですよね。収納は幅のあるクローゼット。

トイレはTOTO製の温水洗浄機能付き。いろいろ飾れるニッチカウンターや、トイレットペーパーや掃除道具を入れるのに便利な吊戸棚も付いています。吊戸棚が少し低く付けられているところに優しさを感じます。

洗面室には洗面化粧台と洗濯機スペース、浴室がまとまっていて、脱衣所も兼ねています。洗面化粧台の三面鏡裏はキャビネットになっていて収納もたっぷり!洗濯機スペース上部には吊戸棚も付いているので、洗剤などはこちらへどうぞ。

浴室は木目パネルの温かみのある雰囲気。リラックスしたバスタイムを過ごせそうです。浴室換気乾燥機が付いているので、天気を気にせずに洗濯機を回すことも出来ますよ。雨って一週間周期で降る気がしませんか?お休みの日の度に雨が降って、絶望的な気分になったことってありますよね(^-^;

こちらはリビング・ダイニング・キッチン。
東向きのバルコニーに面したお部屋です。手前からキッチン、ダイニング、リビングと並んだ縦長の形。オーソドックスなのでレイアウトもしやすそうですね。家具は付いてきませんが、大きさや雰囲気の参考にさせてもらいましょう。

リビング部分には木目のアクセントウォール。壁から少し凹ませてあり、周囲に埋め込まれた照明が更なる奥行を感じさせてくれます。一番長い時間を過ごすのに相応しい居心地の良さそうなお部屋ですね。

キッチンはカウンタータイプ。
調理中でもリビングダイニングとのコミュニケーションが取りやすく、会話が弾むキッチンです。夕食を作りながらご家族とその日にあったことを話したり、友人を招いてキッチンを中心にワイワイしたり・・・幸せそうな様子が目に浮かびますね♬ 食器洗浄乾燥機や浄水機能一体型水栓など家事サポート機能も充実!

こちらはバルコニー側の洋室。
大きな窓が明るいお部屋です。シンプルな色使いで家具も合わせやすそうですね。収納はウォークインクローゼット!!洋服だけでなく嵩張るスーツケースや季節もの家電などの収納にも活躍してくれます。

最後はDENをご紹介。
デスクや棚が造り付けられた書斎のようなスペースです。自然の木目を生かした落ち着ける空間でテレワークにもピッタリですね。DENって何かの略みたいですがれっきとした英語なんですよ。巣穴とか隠れ家とかそんな意味らしいです。ただ、こちらのお部屋はガラス張りなので隠れ家って感じではありませんけどね(笑)
・
以上で飯田橋第一パークファミリアのご案内を終わります。
いかがでしたでしょうか??
飯田橋駅から徒歩11分のマンションです。
リノベーション済みという事で室内はとてもキレイですよ (っ・ω・)っ
内見のご予約やご質問などございましたらお気軽にお問い合わせくださいませ。
ご連絡お待ちしております。
□□□□□□□□□□□□□□□□□□□□□□□□□□□□□□□□□□□□□□□
★★★【飯田橋第一パークファミリア】周辺のハザードマップをCHECK!!★★★
お部屋のご購入前に…!周辺のハザードマップをチェックしておきませんか!
飯田橋第一パークファミリアのハザードマップは★こちらから…どうぞ★
□□□□□□□□□□□□□□□□□□□□□□□□□□□□□□□□□□□□□□□
弊社、不動産Agent 六棒株式会社では、
□リノベーションマンションはほぼ全て仲介手数料無料!
□その他一般仲介物件は仲介手数料20%~30%OFF!
にてお取り扱いしております!※弊社の「Agent Fee=仲介手数料」についてはご案内、ご面談の際に営業担当者よりご説明いたします!
なるべく沢山のお部屋をホームページに掲載したいと思っておりますが、時間的成約もございますので、残念ながらご紹介できるお部屋の一部しか掲載できておりません。
このホームページに掲載中のお部屋、その他サイト等で気になるお部屋、街を歩いていて気になったマンション等々ございましたら是非、弊社営業部までご相談ください!
~不動産Agent 六棒株式会社の特徴~
・一般仲介物件の仲介手数料は20%~30%OFFにてご案内中です!
・リノベーションマンションについてはほぼ全て仲介手数料無料です!
・住宅ローンに自信あります!
・頭金10万円より購入できます。是非ご相談下さい!
・お部屋のご見学は車で2~3件まとめて案内します!
・物件数3000件以上、新築戸建、リノベ物件も多数ご用意しております!
過去に販売していたお部屋の概要 このお部屋の販売は終了いたしました。
| 価格 | -万円 |
| 面積 | 60.22㎡ |
| 間取り | 2bedrooms(2LDK) |
| 管理費 | 月額11,400円 修繕積立金:月額13,400円 |
| 所在階 | 6階 |
| お問い合わせ・ご内見のご予約はこちらからお気軽にどうぞ | |
ここで間取り図のご紹介です。
※間取り図は別タブで開きますので、見比べながらご覧いただく事が出来ます。
□□□□□□□□□□□□□□□□□□□□□□□□□□□□□□□□□□□□□□□
★★★【飯田橋第一パークファミリア】周辺のハザードマップをCHECK!!★★★
お部屋の記事を読む前に…!周辺のハザードマップをチェックしておきませんか!
飯田橋第一パークファミリアのハザードマップは★こちらから…どうぞ★
□□□□□□□□□□□□□□□□□□□□□□□□□□□□□□□□□□□□□□□
今回ご紹介するお部屋は6階、間取りは2LDK、専有面積は60.22㎡。お一人からファミリーまで幅広くお使い頂ける、二面にバルコニーのお部屋です。では、早速行ってみましょう!
エレベーターを7階で降りて、明るい外廊下をお部屋へ向かいます。大規模マンションだけあって廊下も長いですね!
ドア横にはモニター付きインターホンが設置されていて、お部屋の中から訪問者を確認する事が出来ます。わざわざ玄関まで来なくていいのは助かりますよね。
玄関は上り口が横向きになったタイプ。戸口からお部屋の中が見えづらいという利点があります。最近は、宅配便やフードデリバリーなど利用機会が増えていますからね。ドアにはダブルロックで、防犯面でも安心です。
日中は窓があって明るい玄関ですが夜になれば真っ暗に。そんな時でも人感センサーが自動的にライトを点けてくれるので、暗い中スイッチを探す必要もありません。消し忘れも防げて一石二鳥ですよ♬ ロータイプのシューズボックスの上はカウンターになっていて、小物や写真などインテリアを楽しむことも出来ます。
玄関から伸びる廊下は、中間調の木材を使用した落ち着いた雰囲気。新規リノベーションということでとても綺麗ですね。スリットガラスからはお部屋の光が洩れています。
では、お部屋の中へ…
こちらは約14.3帖のリビング・ダイニング・キッチン。北・西の二面にバルコニーに面した窓のあるお部屋です。明るいのは勿論のこと、風通しも良さそうですね。特徴としてはキッチンカウンターでしょうか。お部屋の真ん中で存在感抜群です。
ダイニング。リビング。
リビング側からキッチン方向を…
キッチンは壁付けタイプですが、造り付けのキッチンカウンターによってⅡ型のカウンターキッチンのようになっています。寛ぐリビングから、生活感のあるキッチン内があまり見えないのはいいですよね。
では、キッチンを詳しく見ていきましょう。
調理台はお部屋の雰囲気に合わせた木目パネル使用。
調理台下のスライドキャビネットは引き出し式で出し入れがしやすく、いっぱいに詰めても中が確認出来るのがポイントです。吊戸棚が付いて収納力をパワーアップ!
そして憧れの食洗機付!!!これからの季節、食器洗いから解放されるなんて夢のよう。のんびりしたり、時間をかけてコーヒーを淹れてみたりと食後の時間が充実しそうです(*´▽`*)水栓は浄水機能付きシャワー水栓。切替えるだけで気軽に美味しいお水を使う事が出来ます。ノズルが伸びてシンクを流したりにも便利ですよ。
コンロは3口、グリル付き。窓に頼らず調理中は換気扇を使いましょう!調理の臭いって後から気になりますからね。早めに回し始めると効果的(^^)
キッチンカウンター下には棚が設置されていて収納として利用可能。奥行きが深く、棚の手前にはゴミ箱など背の高い物も置けそうです。隣は冷蔵庫のスペースになっていました。窓を塞がないよう壁側が開いているのもニクイですね。
キッチン横の窓の外にはバルコニー。あまり広くはありませんが、そこからの眺めは抜群ですよ♬
では、次のお部屋へ…
こちらは約6帖の洋室。LDKと同じバルコニーに面したお部屋です。アクセントウォールでこんなに雰囲気が変わるんですね。こちらは落ち着いた大人の雰囲気です。
収納はクローゼット。奥行きが深くて収納力がありそうです。衣装ケースなどを置けば収納力をアップさせることも出来ますよ。
廊下へ戻って…
玄関脇には収納棚。棚の手前にはモップやスティッククリーナーなどの長物も入れられそです。
次のお部屋へ…
こちらは約6.5帖の洋室。北・東の二面採光で、明るいだけでなく風通しも良さそうなお部屋です。柱があるので家具のレイアウトには一工夫必要かもしれませんね。
二つある窓の外はどちらも開けた眺め。建物が密集してないのが大規模マンションのいい所です。
収納は先程の洋室と同タイプ。間口が広くてとても使いやすそうです。
次は洗面室へ…
こちらには洗面台の他に、トイレ、洗濯機スペース、浴室がまとまっていて、脱衣所も兼ねています。床には籐の様なパネルが貼られていて足触り最高!温泉気分を味わえますよ。
洗面台は三面鏡付き。鏡の間の照明のおかげで、鏡を見る時に影になる心配もありません。小さいお子様で鏡を使えるよう、三面鏡下にも鏡が付いています。
収納は三面鏡裏のキャビネットと洗面台下。細々した物が多くなりがちな洗面廻りには豊富な収納が有り難いですね。様々なタイプがあって、大きな物から細かい物までバランスよく収まりそうです。
水栓はヘッドが伸びて洗面ボウルを流したりに便利です。電動歯ブラシや電気シェイバーなど結構電気をつかうことも多い洗面所。充電場所が足らなくならないよう、キャビネットの中にもコンセントが二つあります。
次はトイレへ…
和の雰囲気から一変、オレンジと黒のビビットな色使い。スタイリッシュな印象のトイレです。
トイレットペーパーなどのストックに便利な吊戸棚も付いています。洗浄便座はTOTO製のウォシュレット。
次は浴室へ…
『切替』ボタンを押すと、照明の色を変える事が出来ます。シャキッとしたい時はクリアな照明、リラックスしたい時は温かみのある照明と、気分によって使い分けが出来るのは嬉しいですね。
リンナイ製の追い焚き機能付きユニットバス。「自動」ボタンひとつでお風呂を沸かすことが出来ます。ご家族でお風呂の時間がまちまちになっても、そのまま保温してくれるのでいつでも温かいお風呂に入れますよ。
浴室換気乾燥機は浴室の換気乾燥はもちろんのこと、暑い季節は涼風、寒い季節は浴室暖房、梅雨の季節は洗濯物乾燥など、一年を通して使えます。特にお洗濯物乾燥は雨天時だけでなく、花粉や黄砂、PM2.5対策などにも使えて大活躍!
それでは、最後は西側バルコニーへ出てみましょう。
西側の洋室、LDKのどちらからでも出る事が出来ます。
二部屋分の幅と広い奥行きを持つ、ゆったりとしたバルコニーです。これならお洗濯物も気持ち良く干せそうですね。西向きにつきお昼からがお勧め!
こちらのバルコニーもいい眺めですね。日射しを遮られることもなさそうです♬
・
以上で飯田橋第一パークファミリアのご案内を終わります。
いかがでしたでしょうか??
飯田橋駅から徒歩11分のマンションです。
リノベーション済みという事で室内はとてもキレイですよ (っ・ω・)っ
内見のご予約やご質問などございましたらお気軽にお問い合わせくださいませ。
ご連絡お待ちしております。
□□□□□□□□□□□□□□□□□□□□□□□□□□□□□□□□□□□□□□□
★★★【飯田橋第一パークファミリア】周辺のハザードマップをCHECK!!★★★
お部屋のご購入前に…!周辺のハザードマップをチェックしておきませんか!
飯田橋第一パークファミリアのハザードマップは★こちらから…どうぞ★
□□□□□□□□□□□□□□□□□□□□□□□□□□□□□□□□□□□□□□□
弊社、不動産Agent 六棒株式会社では、
□リノベーションマンションはほぼ全て仲介手数料無料!
□その他一般仲介物件は仲介手数料20%~30%OFF!
にてお取り扱いしております!※弊社の「Agent Fee=仲介手数料」についてはご案内、ご面談の際に営業担当者よりご説明いたします!
なるべく沢山のお部屋をホームページに掲載したいと思っておりますが、時間的成約もございますので、残念ながらご紹介できるお部屋の一部しか掲載できておりません。
このホームページに掲載中のお部屋、その他サイト等で気になるお部屋、街を歩いていて気になったマンション等々ございましたら是非、弊社営業部までご相談ください!
~不動産Agent 六棒株式会社の特徴~
・一般仲介物件の仲介手数料は20%~30%OFFにてご案内中です!
・リノベーションマンションについてはほぼ全て仲介手数料無料です!
・住宅ローンに自信あります!
・頭金10万円より購入できます。是非ご相談下さい!
・お部屋のご見学は車で2~3件まとめて案内します!
・物件数3000件以上、新築戸建、リノベ物件も多数ご用意しております!
過去に販売していたお部屋の概要 このお部屋の販売は終了いたしました。
| 価格 | -万円 |
| 面積 | 54.60㎡ |
| 間取り | 2bedrooms(2LDK) |
| 管理費 | 月額10,300円 修繕積立金:月額12,200円 |
| 所在階 | 10F |
| お問い合わせ・ご内見のご予約はこちらからお気軽にどうぞ | |
ここで間取り図のご紹介です。
※間取り図は別タブで開きますので、見比べながらご覧いただく事が出来ます。
□□□□□□□□□□□□□□□□□□□□□□□□□□□□□□□□□□□□□□□
★★★【飯田橋第一パークファミリア】周辺のハザードマップをCHECK!!★★★
お部屋の記事を読む前に…!周辺のハザードマップをチェックしておきませんか!
飯田橋第一パークファミリアのハザードマップは★こちらから…どうぞ★
□□□□□□□□□□□□□□□□□□□□□□□□□□□□□□□□□□□□□□□
今回ご紹介するお部屋は10階、間取りは2LDK、専有面積は54.60㎡。お二人かまだお子様が小さいご家族の方にお勧めのお部屋です。では、早速行ってみましょう!
エレベーターで10階まで上がり、明るい外廊下を進むとお部屋に到着です。
玄関ドア横にはモニター付きインターホンが設置されて、お部屋の中から訪問者を確認する事が出来ます。映像で確認してから応対するかを決められるのは便利ですね。ドアスコープもありますが、向こうからも見られている感じがしてなんか苦手です^^;)
玄関から続くホールは、木目を生かした濃いめのフローリングや建具を使用した落ち着いた雰囲気。正面扉のすりガラスから漏れる光に、明るいお部屋への期待が高まります♪
玄関ドアには安心のダブルロック!複数の鍵には、開けづらくする以前に狙われづらくする効果もあるらしいですよ。とはいえ、しっかり両方ロックしましょうね。
人感センサーが自動的にライトを点けてくれるので、荷物がいっぱいで両手が塞がっていても大丈夫。なにより、いつでも明るい玄関が迎えてくれるのは嬉しいものです(^^)シューズボックスはトールタイプ。収納力抜群、棚を調節すればブーツなどでもそのまま収納可能ですよ。
では、お部屋の中へ…
こちらは約14.1帖のリビング・ダイニング・キッチン。手前にキッチン、奥へダイニング、リビングと、縦長でレイアウトのしやすいお部屋です。バルコニーへ続く大きな窓からの光が明るいですね。
4人掛けのダイニングテーブルを置いても、リビングセットを置ける十分な広さがあります。
入口近くにはカウンターがあり、いろいろな物を置いてインテリアを楽しむ事が出来ます。天井に設置されたスポットライトを上手く使えば、更にアクセントを付けられますよ。
キッチンは人気のカウンタータイプ。コミュニケーションが取りやすく、調理中も会話が弾むキッチンです。キッチン内が目立たないという特徴もありますので、気兼ねなく腕を振るう事も出来ますね。
次は、キッチンを詳しく見ていきましょう。
調理台下には食器洗浄乾燥機とスライドキャビネット。食洗機憧れます~洗い物をお任せすれば、食後の時間をのんびり過ごす事が出来るんですものね♬ スライドキャビネットは出し入れがしやすく、ぎっしり詰めても中身が確認しやすい優れものです。
水栓は浄水機能付きシャワー水栓。切り替えるだけで気軽に美味しいお水を使えます。ヘッドが伸びてシンクや大きな鍋を洗うのにも便利ですよ。
カウンターキッチンと言えばこの眺めですよね(*´▽`*)
コンロは3口、グリルも付いて調理器具は充実。グリルって魚のイメージが強いですが、他の食材にもいろいろと使えるんですよ。グリルを使ったレシピもたくさんありますので、ご興味のある方は是非調べてみて下さい。
調理中は換気扇をお忘れなく!離れた位置の窓を開けて、調理を始める少し前から回しておくと効果的らしいですよ。換気扇で吸い込むというより、窓から換気扇への空気の流れを作るイメージだとか。コンロ後ろには冷蔵庫スペースも確保されています。
では、次のお部屋へ…
こちらは約5.8帖の洋室。LDKと同じ、バルコニーに面した窓のあるお部屋です。LDKと統一されたナチュラルで落ち着いた印象。ベッド二つくらいなら置ける広さがありますので、メインのベッドルームにピッタリですね。
収納はウォークインクローゼット!!L字型にハンガーポールが設置された広い収納です。洋服を掛けるだけでなく、キャリーバッグやスーツケースなどの嵩張る物も入れられますし、衣装ケースなどで収納力アップもアリかなと。
廊下に戻って、LDK入口脇には収納棚。棚は可変式です。
次のお部屋へ…
こちらは約5帖の洋室。東向きの窓のあるお部屋です。
クローゼットは間口が広くて使いやすそうなタイプ。中が見やすい収納を使うと、無駄な買い物を減らせるらしいですよ(^^)窓の外は先程歩いて来た明るい外廊下。面格子も設置されています。
では、次は洗面室へ…
洗面室には洗面台の他に、浴室、洗濯機スペース、トイレがまとまっていて、脱衣所も兼ねているようです。入浴中にお洗濯なんて効率的ですね。洗濯機スペースには棚が付いていますので、洗剤などを置いておく事も出来ますよ。
洗面台は身だしなみチェックに便利な三面鏡付き。上部に付けらた照明のおかげで鏡を見る時に影になったりする事もありません。
収納は洗面台下と三面鏡裏のキャビネット。細々した物が多くなりがちな洗面廻りには、豊富な収納が助かります。
水洗はハンドシャワータイプ。寝ぐせくらいなら直せそう。
トイレはINAX製のシャワートイレ付です。吊戸棚はありませんが、棚がありますのでトイレットペーパーのストックなどはこちらへどうぞ。
浴室はダークブラウンの鏡面仕上げパネルで高級感たっぷり。リッチな気分でバスタイムを過ごせそうですね(^^♪
追い焚き機能付きユニットバスはワンタッチでお風呂を沸かせます。そのまま保温もしてくれるのでいつでも温かいお風呂に入れますよ。
ゆったり浸かれる広々浴槽。
浴室換気乾燥は浴室乾燥の他に、寒い季節の浴室暖房、雨天や花粉の季節のお洗濯物乾燥など様々な使い方があります。「涼風」ボタンを使えば暑い季節にも活躍してくれそう。冷房ではありませんが、お風呂で濡れた体には充分涼しいと思いますよ。
それでは、最後はバルコニーのご紹介。
LDK、約5.8帖の洋室、どちらの窓からでも出る事が出来ます。
広さは6.27㎡、西向き。二部屋にまたがる幅もさることながら、奥行きがあって広々と感じるバルコニーです。物干し金具が天井と柵に二つも付いていますので、干す場所が足りなくなる心配もありませんね。
バルコニーからはご覧の通り、開放的な眺めが広がっています。実は、到着した時は青空が広がっていたんですが、お部屋の撮影中にとんでもない雨になりまして・・・^^;)本当は青空の綺麗な風景をご紹介したかったんですけど残念です。是非お天気の良い時にいらしてご覧になって下さい。
・
以上で飯田橋第一パークファミリアのご案内を終わります。
いかがでしたでしょうか??
飯田橋駅から徒歩11分のマンションです。
リノベーション済みという事で室内はとてもキレイですよ (っ・ω・)っ
内見のご予約やご質問などございましたらお気軽にお問い合わせくださいませ。
ご連絡お待ちしております。
□□□□□□□□□□□□□□□□□□□□□□□□□□□□□□□□□□□□□□□
★★★【飯田橋第一パークファミリア】周辺のハザードマップをCHECK!!★★★
お部屋のご購入前に…!周辺のハザードマップをチェックしておきませんか!
飯田橋第一パークファミリアのハザードマップは★こちらから…どうぞ★
□□□□□□□□□□□□□□□□□□□□□□□□□□□□□□□□□□□□□□□
弊社、不動産Agent 六棒株式会社では、
□リノベーションマンションはほぼ全て仲介手数料無料!
□その他一般仲介物件は仲介手数料20%~30%OFF!
にてお取り扱いしております!※弊社の「Agent Fee=仲介手数料」についてはご案内、ご面談の際に営業担当者よりご説明いたします!
なるべく沢山のお部屋をホームページに掲載したいと思っておりますが、時間的成約もございますので、残念ながらご紹介できるお部屋の一部しか掲載できておりません。
このホームページに掲載中のお部屋、その他サイト等で気になるお部屋、街を歩いていて気になったマンション等々ございましたら是非、弊社営業部までご相談ください!
~不動産Agent 六棒株式会社の特徴~
・一般仲介物件の仲介手数料は20%~30%OFFにてご案内中です!
・リノベーションマンションについてはほぼ全て仲介手数料無料です!
・住宅ローンに自信あります!
・頭金10万円より購入できます。是非ご相談下さい!
・お部屋のご見学は車で2~3件まとめて案内します!
・物件数3000件以上、新築戸建、リノベ物件も多数ご用意しております!
過去に販売していたお部屋の概要 このお部屋の販売は終了いたしました。
| 価格 | -万円 |
| 面積 | 60.22㎡ |
| 間取り | 3bedrooms(3LDK) |
| 管理費 | 月額11,400円 修繕積立金:月額13,400円 |
| 所在階 | 6F |
| お問い合わせ・ご内見のご予約はこちらからお気軽にどうぞ | |
ここで間取り図のご紹介です。
※間取り図は別タブで開きますので、見比べながらご覧いただく事が出来ます。
□□□□□□□□□□□□□□□□□□□□□□□□□□□□□□□□□□□□□□□
★★★【飯田橋第一パークファミリア】周辺のハザードマップをCHECK!!★★★
お部屋の記事を読む前に…!周辺のハザードマップをチェックしておきませんか!
飯田橋第一パークファミリアのハザードマップは★こちらから…どうぞ★
□□□□□□□□□□□□□□□□□□□□□□□□□□□□□□□□□□□□□□□
今回ご紹介するお部屋は6階、間取りは2LDK、専有面積は54.60㎡。ファミリータイプのお部屋です。北、東、西の3方向角部屋で窓がたくさんありますね♬
では、早速お部屋の方へ…
エレベーターで6階まで上がり…
明るい外廊下を進んでいくと、玄関に到着です。
玄関横にはテレビモニター付きインターホンが設置されていて、お部屋の中から訪問者を確認する事が出来ます。事前にチェックすれば、しつこいセールスに悩まされる事もなくなりそうですね。
窓のある明るい玄関。ドアには安心のダブルロックが設置されています。戸口正面は壁になっているので、宅配便の受け取りの時などにお部屋の中を見られてしまう事もありません。
今は明るい玄関ですが夜になれば真っ暗に。そんな時に活躍してくれるのが人感センサーです。自動的にライトを点けてくれますので、荷物がいっぱいで両手が塞がっていても大丈夫ですよ(^^)v
上り口からはゆったり幅の廊下が正面の扉まで伸びていました。木の自然な風合いを生かしたフローリングや建具で、ナチュラルな印象です。
では、まずは正面のドアから…
こちらは約7.8帖のダイニング・キッチン。アクセントウォールのパステルグリーンが爽やかですね。気分も上がります(*´▽`*)
大きな窓の外はバルコニー。あまり広くはありませんが出る事も出来ます。足元まで柵になっているので、ダイニングからの眺めも開放的ですよ♬
ちょうど目の前だけが抜けています。緑も見えていい感じですね。
では、次はキッチンを…
調理台下には食洗機と引き出しタイプの収納。食洗機といえば『楽』っていうイメージですが、それだけではありません。手洗いでは不可能な高温で洗浄する事によって、除菌の効果もあるんですよ。
上部には換気扇と吊戸棚。大きな窓があるとはいえオープンキッチンですので、調理中は換気扇をお忘れなく!
コンロは3口、片面焼きグリル付きと調理器具も充実(^^)
水栓は浄水機能付きシャワー水栓。気軽に美味しいお水を使えます。
では、次のお部屋へ…
こちらは約6帖の洋室。リビングの様になっていますがベッドルームでも良さそうです。アクセントウォールの色でこんなに雰囲気が変わるんですね。こちらは落ち着いた大人の雰囲気です。
このお部屋の窓の外もバルコニーになっていますが、そちらは後程。
収納はクローゼット。奥行きが深くて収納力抜群です。大きなスーツケースなども楽々入りそうですよ。
次は、隣のお部屋へ…
こちらは約5.5帖の洋室。洋室の中では一番小さいですが、それでも大きなサイズのベッドでも余裕で置ける広さがあります。
収納は間口が広くて使い易そうなクローゼット。中が確認しやすい収納は、無駄な買い物を減らしてくれるらしいですよ。
ではいちど廊下に戻って、次は洗面室へ…
こちらには洗面台、トイレ、洗濯機スペース、浴室がまとまっています。床には籐の様なタイルが貼られていて足触り抜群ですよ。温泉みたいでグッと和の雰囲気になりますね。
まずは三面鏡付きの洗面台。照明が鏡の間にライン状に付いていて、影が出来づらくなっています。
収納は洗面台下と三面鏡裏のキャビネット。細かい物が多くなりがちな洗面周りにはキャビネットがピッタリです。
水洗はハンドシャワータイプ。洗面ボウルを流したりに便利です。
次はトイレへ…
扉を開けるたびに違う雰囲気が現れますね。こちらはオレンジと黒。ビビットな色使いでスタイリッシュな印象です。
温水洗浄便座付き。TOTO製のウォシュレットです。
洗濯機スペースには吊戸棚が付いているので、すぐ手の届く所に洗濯グッズを置いておけますよ。
次は浴室へ…
『切替』ボタンを押すと、照明の色みを変える事が出来ます。シャキッとしたい時は白っぽい照明、リラックスしたい時は温かみのある照明と、気分によって使い分けが出来るのは嬉しいですね。
追い焚き機能はスイッチ一つでお風呂を沸かしてくれたり、設定温度にお湯を保ってくれたりと何かと便利な機能です。一度使ったら止められませんよ(笑)
浴室乾燥機能は浴室の換気の他、お洗濯物乾燥やヒートショック予防など様々な働きをしてくれます。特にお洗濯物乾燥は雨天時だけでなく、花粉や黄砂の時期など活躍の機会も増えてきていますから、ありがたいですね。
廊下に戻って…
廊下には収納棚がありました。奥行きが深く、棚の手前にモップやスティッククリーナーなどの長物も入れられそです。
では、次のお部屋へ…
こちらは約6.5帖の洋室。二面採光で、明るいだけでなく風通しも良さそうなお部屋です。洋室の中では一番広いお部屋ですよ。
クローゼットは広く開くタイプ。
二つある窓の外にはどちらも開けた空間が。建物が密集してないのが大規模マンションのいい所ですよね。
それでは最後に西側のバルコニーのご紹介。
西側の洋室のどちらからでも出る事が出来ます。
幅も奥行きも十分な広いバルコニーです。これだけゆったりしていれば、お洗濯物も気持ち良く干せそうですね。西向きなので午後からがお勧めですよ。
外には開けた眺めが広がっていて、日射しを遮る物もなさそうです(^^)
・
以上で飯田橋第一パークファミリアのご案内を終わります。
いかがでしたでしょうか??
飯田橋駅から徒歩11分のマンションです。
リノベーション済みという事で室内はとてもキレイですよ (っ・ω・)っ
内見のご予約やご質問などございましたらお気軽にお問い合わせくださいませ。
ご連絡お待ちしております。
□□□□□□□□□□□□□□□□□□□□□□□□□□□□□□□□□□□□□□□
★★★【飯田橋第一パークファミリア】周辺のハザードマップをCHECK!!★★★
お部屋のご購入前に…!周辺のハザードマップをチェックしておきませんか!
飯田橋第一パークファミリアのハザードマップは★こちらから…どうぞ★
□□□□□□□□□□□□□□□□□□□□□□□□□□□□□□□□□□□□□□□
弊社、不動産Agent 六棒株式会社では、
□リノベーションマンションはほぼ全て仲介手数料無料!
□その他一般仲介物件は仲介手数料20%~30%OFF!
にてお取り扱いしております!※弊社の「Agent Fee=仲介手数料」についてはご案内、ご面談の際に営業担当者よりご説明いたします!
なるべく沢山のお部屋をホームページに掲載したいと思っておりますが、時間的成約もございますので、残念ながらご紹介できるお部屋の一部しか掲載できておりません。
このホームページに掲載中のお部屋、その他サイト等で気になるお部屋、街を歩いていて気になったマンション等々ございましたら是非、弊社営業部までご相談ください!
~不動産Agent 六棒株式会社の特徴~
・一般仲介物件の仲介手数料は20%~30%OFFにてご案内中です!
・リノベーションマンションについてはほぼ全て仲介手数料無料です!
・住宅ローンに自信あります!
・頭金10万円より購入できます。是非ご相談下さい!
・お部屋のご見学は車で2~3件まとめて案内します!
・物件数3000件以上、新築戸建、リノベ物件も多数ご用意しております!
過去に販売していたお部屋の概要 このお部屋の販売は終了いたしました。
| 価格 | -万円 |
| 面積 | 54.60㎡ |
| 間取り | 2bedrooms(2LDK) |
| 管理費 | 月額10,300円 修繕積立金:月額12,200円 |
| 所在階 | 2階 |
| お問い合わせ・ご内見のご予約はこちらからお気軽にどうぞ | |
ここで間取り図のご紹介です。
※間取り図は別タブで開きますので、確認しながらご覧いただく事が出来ます。
今回のお部屋は、2LDK、54.60㎡、2階。
角部屋で二面バルコニー、いいですね♬
では、早速行ってみましょう!
□□□□□□□□□□□□□□□□□□□□□□□□□□□□□□□□□□□□□□□
★★★【飯田橋第一パークファミリア】周辺のハザードマップをCHECK!!★★★
お部屋の記事を読む前に…!周辺のハザードマップをチェックしておきませんか!
飯田橋第一パークファミリアのハザードマップは★こちらから…どうぞ★
□□□□□□□□□□□□□□□□□□□□□□□□□□□□□□□□□□□□□□□
今回のお部屋は2階ですので、たまには階段を使うのも良いかもしれませんね。
ドア横にはカメラ付きインターホンが設置されていて、お部屋の中から訪問者を確認する事が出来ます。応対する前にチェック出来るのがいいですよね。
廊下は短め。その分、お部屋にスペースを使っていると思うとなんか得した気分です(笑)
玄関の様子です。
ドアは安心のダブルロック。面倒でも両方ロックしましょうね。
中に入った時にライトを点けてくれたのは、人感センサー。いつでも明るい玄関が迎えてくれるのは嬉しいですよね(^^)
シューズボックスはトールタイプ。高さもさることながら、縦長の玄関いっぱいの幅があるので、収納力は抜群です。
まずは、突き当りのドアから開けてみましょう。
こちらは約14.4帖のリビング・ダイニング・キッチン。
二面に大きな窓があり、採光、通風、共に良さそうなお部屋です。
スタッコ塗り風のクロスが間接照明の柔らかい光を受けて、その模様を浮かび上がらせています。
次はキッチンへ…
キッチンには広いカウンターが。この大きさならダイニングテーブルとしても十分使えそうですね。近くにはバルコニーに通じる大きな窓があり、換気の心配も無さそうです。
フローリングの色に合わせた調理台。リビング側から目立たない事によって、お部屋を広く見せています。
奥にカップボード、調理台下に引き出しタイプの収納があります。これだけあれば食器棚や家電ラックも不要ですね。
水栓は浄水機能付きシャワー水栓。
切り替えるだけで美味しいお水が出てくるなんて、いい時代になりました(^^)ヘッドが伸びるのでシンクのお掃除などにも便利です。
コンロは3口。グリルも付いています。三つのコンロでお料理の効率もグッと上がりそうですね。
お料理中は換気扇をお忘れなく!
では、次のお部屋へ…
約6.3帖の洋室です。
収納はクローゼット。大きく開いて使いやすそうですね。パッと中が見える収納だと、無駄な買い物が減るらしいですよ(笑)
南向きのバルコニーに面した大きな窓があるので、とても明るいお部屋になっていますね。
仕切りの扉を開いていくと壁部分に収納されて…
20帖超のお部屋の出来上がり!
洋室をリビングの一部として使う事も出来ます。ベッドを置いたりしていなければ、大勢の来客時にはこんな感じの使い方もいいですね♬
では、廊下に戻ります。リビングは廊下より一段低くなっていますので、足元にお気を付け下さい。次は隣のお部屋へ行ってみます。
約4帖の洋室です。
入口が引き戸でデッドスペースも作りませんので、ベッドひとつは余裕で置けますよ。
収納は、先程の洋室と同じタイプのクローゼット。奥行きもあるので衣装ケースなどを置いて収納力をアップさせるのもアリですね。
では、次は洗面室へ…
こちらには、洗面台、トイレ、洗濯機スペース、浴室があります。
三面鏡付きの洗面台。後ろの寝ぐせもしっかりチェック出来ますよ(笑)
収納は洗面台下と鏡の裏のキャビネット。細かい物が多くなりがちな洗面周りには、キャビネットが重宝します。
水洗はハンドシャワータイプです。
次は浴室へ…
明るい色使いの浴室ですね。落ち着いたダークな雰囲気の浴室もいいですが、私は明るい方が好みです(*‘ω‘ *)
追い焚き機能が付いていますので、長風呂しても最後まで温かいお風呂に入れますよ。寒くて上がれないなんて事ももうありません。
浴室乾燥機をただの換気扇だと思ったら大間違い。洗濯物の乾燥や、浴室を温めてヒートショック予防をしたり、涼風を送ってのぼせないようにしてくれたりと、とっても働き者なんですよ。
次はトイレです。
もちろん温水洗浄便座も完備!INAX製のシャワートイレです。
それでは、最後にバルコニーへ出てみましょう!
まずはキッチン後ろの窓から出る、西側のバルコニーから…
幅はありませんが、奥行きがあるからか広く感じます。
前には目隠しの木がびっしり!眺望などはありませんが、緑に包まれている感じで居心地のいいバルコニーです♬
次は、リビング、洋室両方の窓から出られる南側のバルコニーです。
こちらは奥行きに加えて幅もあって、文句なしに広いですね(^^)
今日はお天気が悪いですが、近くにはそれ程高い建物もありませんので、晴れていれば陽射しも期待出来ます。2020
敷地のおかげで前の建物と距離がありますので、まずまずの開放感ですね。暖かくなれば緑ももっと鮮やかで綺麗になりますよ。
・
・
以上で飯田橋第一パークファミリアのご案内を終わります。
いかがでしたでしょうか??
飯田橋駅から徒歩11分のマンションです。
リノベーション済みという事で室内はとてもキレイですよ (っ・ω・)っ
内見のご予約やご質問などございましたらお気軽にお問い合わせくださいませ。
ご連絡お待ちしております。
□□□□□□□□□□□□□□□□□□□□□□□□□□□□□□□□□□□□□□□
★★★【飯田橋第一パークファミリア】周辺のハザードマップをCHECK!!★★★
お部屋のご購入前に…!周辺のハザードマップをチェックしておきませんか!
飯田橋第一パークファミリアのハザードマップは★こちらから…どうぞ★
□□□□□□□□□□□□□□□□□□□□□□□□□□□□□□□□□□□□□□□
弊社、不動産Agent 六棒株式会社では、
□リノベーションマンションはほぼ全て仲介手数料無料!
□その他一般仲介物件は仲介手数料20%~30%OFF!
にてお取り扱いしております!※弊社の「Agent Fee=仲介手数料」についてはご案内、ご面談の際に営業担当者よりご説明いたします!
なるべく沢山のお部屋をホームページに掲載したいと思っておりますが、時間的成約もございますので、残念ながらご紹介できるお部屋の一部しか掲載できておりません。
このホームページに掲載中のお部屋、その他サイト等で気になるお部屋、街を歩いていて気になったマンション等々ございましたら是非、弊社営業部までご相談ください!
~不動産Agent 六棒株式会社の特徴~
・一般仲介物件の仲介手数料は20%~30%OFFにてご案内中です!
・リノベーションマンションについてはほぼ全て仲介手数料無料です!
・住宅ローンに自信あります!
・頭金10万円より購入できます。是非ご相談下さい!
・お部屋のご見学は車で2~3件まとめて案内します!
・物件数3000件以上、新築戸建、リノベ物件も多数ご用意しております!
過去に販売していたお部屋の概要 このお部屋の販売は終了いたしました。
| 価格 | -万円 |
| 面積 | 54.60㎡ |
| 間取り | 2bedrooms(2LDK) |
| 管理費 | 月額10,300円 修繕積立金:月額12,200円 |
| 所在階 | 5F |
| お問い合わせ・ご内見のご予約はこちらからお気軽にどうぞ | |
ここで間取り図のご紹介です。
※間取り図は別タブで開きますので、見比べながらご覧いただく事が出来ます。
□□□□□□□□□□□□□□□□□□□□□□□□□□□□□□□□□□□□□□□
★★★【飯田橋第一パークファミリア】周辺のハザードマップをCHECK!!★★★
お部屋のご購入前に…!周辺のハザードマップをチェックしておきませんか!
飯田橋第一パークファミリアのハザードマップは★こちらから…どうぞ★
□□□□□□□□□□□□□□□□□□□□□□□□□□□□□□□□□□□□□□□
今回ご紹介するお部屋は5階、間取りは2LDK、専有面積は54.60㎡。
無償で3LDKに間取り変更も出来るそうですよ!
では、早速行ってみましょう!
エレベーターで5階まで上がって…
風通しのいい外廊下を進みます。
玄関にはテレビモニター付きインターホンが付いていて、お部屋の中から訪問者を確認する事が出来ます。もう、ドア越しに息をひそめてドアスコープを覗く必要はありませんね(笑)
それではお邪魔します。
廊下はフローリングではなく、大理石でしょうか?高級感がありますね。
振り返って玄関の様子です。
玄関ドアにはダブルロック。複数の鍵は防犯上効果があるので、中にはダミーの鍵を付けている方もいらっしゃるとか。
シューズボックスはトールタイプ。よく見ると下が抜けています!どうしても匂いなどが籠りやすいので、通気性がいいのは嬉しいですよね。人感センサーも付いていますので、自動的に照明を点けてくれますよ。
廊下を進むと左側には可動棚がありました。奥行きがあまりありませんので、収納力より見やすさで勝負ですね(^^)ストックした物の減り具合がひと目で分かったりするので便利ですよ。余裕があれば、何か飾るのも良いかもしれませんね。
ではお部屋の方へ…
こちらは約15帖のリビング・ダイニング・キッチン。二つの大きな窓がある、明るいお部屋です。
今は2LDKのこのお部屋、3LDKにする場合は右奥のダイニングテーブルが置いてある所を仕切って洋室にします。この感じを見てしまうと仕切るのが勿体ない気がしてしまいますね^^;)
木肌を生かした明るめのフローリング。足触りも気持ちいいですよ(^^)
アクセントウォール以外はほぼ白のお部屋。カーテンや家具によっていろいろな雰囲気にする事が出来そうです。自分好みにしていくのは楽しいですよね♬
リビングには造り付けの棚が設置されています。壁にはコンセントやアンテナ端子もありましたので、テレビボードとしてもよさそうですね。下は全て収納になっていました。
今度は、キッチンを見てみましょう。
独立型のキッチンですね。調理台の後ろには冷蔵庫や家電ラック、食器棚などのスペースがたっぷりとられています。
調理台下には、引き出しタイプの収納と食洗器。食洗器があれば、もう食器洗い当番を決めなくていいんですね。みんなでのんびり出来ますよ♬
上部には吊戸棚と換気扇。吊戸棚はどうしても出し入れがしづらくなります。使用頻度の低い物を入れたり、収納グッズの助けを借りたりするといいですね。
調理器具は片面焼きグリルと三口コンロ。電子レンジなども加えれば何でも作れそうですね。最近はレシピもネット上にあふれていますので、いろいろチャレンジしてみたいところです。
水栓は浄水機能付きシャワー水栓。ノズルが伸びて大きな鍋やシンクのお掃除などにも便利ですよ。
では次のお部屋へ…
こちらは約3.4帖の洋室。窓のないお部屋です。3.4帖と少し小さいですが、入口が引き戸になっていてデッドスペースがありませんので、十分寝室などとしても使えますよ。
収納は扉の無いウォークインクローゼット。扉が無いと綺麗にしておかなければなりませんが、通気が良くていいですね。
では、廊下に戻って…
次は洗面室です。廊下からは少し段差がありますのでお気を付け下さい。
こちらには洗面台、洗濯機スペース、浴室がまとまっています。
三面鏡は付いていませんがとても幅が広い洗面台です。これなら2~3人並んで歯を磨いたりも出来そうですね。朝のラッシュ時に助かります♪♪
洗面台下は全て収納に。洗面ボウル横には広いスペースがあって、歯ブラシなどの細々した物を置いておけます。
水洗はハンドシャワータイプ。洗面ボウルは継ぎ目がなくお掃除も楽々ですよ。
洗濯機スペースには吊戸棚が付いているので、お洗濯関係の物はここにまとめておきましょう。
次は浴室を…
追い焚き機能が付いていますので、ご自分のタイミングでお風呂に入れますよ。「冷めちゃうから早く入っちゃいなさい!」なんて言われる事ももうありません(^^)
ゆったり浸かれる1317サイズの浴槽です。
浴室乾燥機は浴室の乾燥だけでなく、お洗濯物乾燥やヒートショック予防など様々な働きをしてくれます。使わないのは勿体ないですよ。
次はトイレです。ここにも段差あり。お気を付け下さい。
温水洗浄便座付き。TOTO製のウォシュレットです。吊戸棚も嬉しいですね。トイレットペーパーだけはトイレ内にストックしておきたいですから(笑)
では、次のお部屋へ…
こちらは約4.4帖の洋室。
間接照明が設置されていて、柔らかな光で照らしています。寝る前に強い光を見ると眠りの質が悪くなるらしいですから、寝室にはピッタリですね。窓の外は外廊下。面格子も設置されています。
こちらのお部屋にもウォークインクローゼット!L字型にハンガーポールが付いたタイプです。大きなスーツケースなども余裕で入りますよ。
それでは、最後はバルコニーのご紹介。LDKの窓どちらからでも出られます。
6.27㎡のバルコニー。まだ室外機などが無いからでしょうか、とても広く感じます。足元まで柵っていうのも開放的でいいですよね。
大きな建物がありますが、ちょうど目の前だけが開けていますね。なんてラッキー♬ 両側マンションの敷地なので、何かが建つ事も当分はなさそうですよ(^^)
・
・
以上で飯田橋第一パークファミリアのご案内を終わります。
いかがでしたでしょうか??
飯田橋駅から徒歩11分のマンションです。
リノベーション済みという事で室内はとてもキレイですよ (っ・ω・)っ
内見のご予約やご質問などございましたらお気軽にお問い合わせくださいませ。
ご連絡お待ちしております。
□□□□□□□□□□□□□□□□□□□□□□□□□□□□□□□□□□□□□□□
★★★【飯田橋第一パークファミリア】周辺のハザードマップをCHECK!!★★★
お部屋のご購入前に…!周辺のハザードマップをチェックしておきませんか!
飯田橋第一パークファミリアのハザードマップは★こちらから…どうぞ★
□□□□□□□□□□□□□□□□□□□□□□□□□□□□□□□□□□□□□□□
弊社、不動産Agent 六棒株式会社では、
□その他一般仲介物件は仲介手数料20%~30%OFF!にてお取り扱いしております!
なるべく沢山のお部屋をホームページに掲載したいと思っておりますが、時間的成約もございますので、残念ながらご紹介できるお部屋の一部しか掲載できておりません。
このホームページに掲載中のお部屋、その他サイト等で気になるお部屋、街を歩いていて気になったマンション等々ございましたら是非、弊社営業部までご相談ください!
~不動産Agent 六棒株式会社の特徴~
・一般仲介物件の仲介手数料は20%~30%OFFにてご案内中です!
・住宅ローンに自信あります!
・頭金10万円より購入できます。是非ご相談下さい!
・お部屋のご見学は車で2~3件まとめて案内します!
・物件数3000件以上、新築戸建、リノベ物件も多数ご用意しております!
過去に販売していたお部屋の概要 このお部屋の販売は終了いたしました。
| 価格 | -万円 |
| 面積 | 54.60㎡ |
| 間取り | 2bedrooms(2LDK) |
| 管理費 | 月額10,300円 修繕積立金:月額12,200円 |
| 所在階 | 9階 |
| お問い合わせ・ご内見のご予約はこちらからお気軽にどうぞ | |
ここで、間取り図をご紹介いたします。
間取り図は別タブで開きますので、ご覧になりながらがお勧めですよ。
今回のお部屋は9階、間取りは2LDK、専有面積は54.60㎡となります。
6帖の洋室はリビングとつなげて使う事が出来そうですね。20帖超LDKの誕生です。
エレベーターを降りて風通しのいい外廊下を進むと…
玄関に到着です。
玄関は、カメラ付きインターホンとダブルロックがしっかり守ってくれています。
それではお邪魔します・・・
玄関を入ってまず目に入るのは、渋めのダークブラウンの扉が並ぶピカピカの床の廊下です。スタイリッシュな印象ですね。床はお掃除がしやすそうです。
振り返って、玄関内の様子です。
人感センサーがついてますので、もう真っ暗な中スイッチを手探りで探さなくても大丈夫ですよ(^^)
片面の壁がグレーのアクセントウォールになっているんですね。お洒落な感じです。
シューズボックスがありました。棚板の高さ調整が可能ですのでブーツや長靴なども収納可能です。
廊下には4枚の扉がありますが…
まずは正面のガラスが入った扉から開けていきましょう。
こちらが約14.7帖のリビング・ダイニング・キッチンとなります。
左奥の方にお部屋が広がっていますね。
入ってすぐのこの部分はダイニングを想定しているんですかね。キッチンからのカウンターは幅があって朝食などはこちらで食べられそうです。
お部屋の壁や梁のコーナーが危なくないように丸められていました。これは優しい(^^)
フローリングは木目がくっきりしていて、光の当たり方でいろいろな表情をみせます。
ダウンライトは調光が可能ですので、明るさを落として落ち着いた雰囲気もいいですね。
こちらがリビング部分ですか・・・黒の天井が印象的です。
では、となりのお部屋へ行ってみましょう。
こちらが約6帖の洋室となります。
バルコニーに面した明るいお部屋です。天井は白ですね。
ウォークインクローゼットがついていました。中はL字型に棚とパイプが設置されています。考えた事なかったですが、棚って100キロも載せられるそうですよ^^;
天井から下がっているのは室内用の洗濯物干しです。これで雨の時でも安心ですね。もちろん取り外し出来ますよ(^^)
お部屋の境の引き違い戸は、完全に壁部分に収納する事が出来ます。
ちなみにフルオープンにしてみると…
20帖超のリビングの出来上がりです♬
リビング側からみるとこんな感じです。やっぱり広いですね!
窓の連なりがより広く感じさせるのかもしれませんね。扉が閉まっている時とはまるで雰囲気が違います。いつもはつなげた感じが好みなんですが、今回は閉めた感じも捨てがたいです。
次はキッチンを見ていきましょう。
シャープなイメージのキッチンですね。
収納はシンクとコンロの下にあります。最近はシンクの下もスッキリしていますね。
コンロは3口、片面焼きグリルがついていました。
グリルってお魚イメージが強いですが他の使い方も沢山あるようですよ。興味のある方は是非調べてみて下さい。個人的にはヘルシー唐揚げがささりました(笑)
水栓は浄水機能付きシャワー水栓です。ヘッドが伸びるのでシンクを流したり、大きい鍋を洗ったりに便利ですよね。
食後の洗い物は、食洗機にお任せしてのんびり過ごしましょう♬
オープンキッチンですので、お料理中は換気扇をお忘れなく。
キッチン奥には冷蔵庫スペースがありました。
では一度廊下に戻って…
廊下に出てすぐの所に収納がありました。
中は調整可能な棚板で仕切られています。収納する物によって調整出来て便利ですね。
では次へ…
廊下の引き戸です。
洗面室となります。
収納は洗面台の下と鏡裏にありました。最近知ったんですが鏡裏の収納はミラーキャビネットというんですよ。細かく仕切られていて便利ですよね。
水栓はハンドシャワータイプです。寝ぐせ直しはこちらでどうぞ。
余裕のある洗濯機スペースがあり、上部には棚もついています。これ無いと不便ですよね。うちは付いて無かったので自分で付けたんですよ^^;
では浴室を見てみます。
大人な雰囲気の浴室です。壁は光沢があっていろんなものが映り込んでますね。ミラー仕上げといって汚れが付きづらいそうですよ。
追い焚き機能がありますので、好きな時間にお風呂に入れますね♪
浴槽だけではなく壁にも手摺が付いています。ここも優しいポイントですね。
浴室換気乾燥機は浴室のカビ予防だけではなく、寒い季節のヒートショック予防などにも役立ちます。積極的に使っていきましょう。
こんどは、洗面室内の引き戸を開けてみます。
トイレとなります。ブルーの壁が爽やかですね。
もちろんウォシュレットも完備されていますよ。正確に言うとシャワートイレですね…ウォシュレットは別の会社さんの商品名なんですよ。
では次へ…
玄関脇のドアです。
こちらが約4.1帖の洋室となります。
片側に窓、もう一方にクローゼットがありました。
窓の外は外廊下になっていますので面格子が設置されています。
それでは最後にバルコニーへ出てみましょう。
ゆったりとしたバルコニーです。
お洗濯物を干せるようになってます。南向きで陽当り良好ですからお洗濯物も気持ち良く乾きますよ♪
正面の眺望です。さすが9階という眺めですね。
右も…
左も…
遥か遠くまで見通せます。奥のビルが霞んで見えるのが凄いですね(^^)
以上で飯田橋第一パークファミリアのご案内を終わります。
いかがでしたでしょうか??
飯田橋駅から徒歩10分のマンションです。
リノベーション済みという事で室内はとてもキレイですよ (っ・ω・)っ
内見のご予約やご質問などございましたらお気軽にお問い合わせくださいませ。
ご連絡お待ちしております。
弊社、不動産Agent 六棒株式会社では、
□リノベーションマンションはほぼ全て仲介手数料無料!
□その他一般仲介物件は仲介手数料20%~30%OFF!
にてお取り扱いしております!※弊社の「Agent Fee=仲介手数料」についてはご案内、ご面談の際に営業担当者よりご説明いたします!
なるべく沢山のお部屋をホームページに掲載したいと思っておりますが、時間的成約もございますので、残念ながらご紹介できるお部屋の一部しか掲載できておりません。
このホームページに掲載中のお部屋、その他サイト等で気になるお部屋、街を歩いていて気になったマンション等々ございましたら是非、弊社営業部までご相談ください!
~不動産Agent 六棒株式会社の特徴~
・一般仲介物件の仲介手数料は20%~30%OFFにてご案内中です!
・リノベーションマンションについてはほぼ全て仲介手数料無料です!
・住宅ローンに自信あります!
・頭金10万円より購入できます。是非ご相談下さい!
・お部屋のご見学は車で2~3件まとめて案内します!
・物件数3000件以上、新築戸建、リノベ物件も多数ご用意しております!
過去に販売していたお部屋の概要 このお部屋の販売は終了いたしました。
| 価格 | ‐万円 |
| 面積 | 54.60㎡ |
| 間取り | 2bedrooms(2LDK) |
| 管理費 | 月額:10,300円 修繕積立金:12,200円 |
| 所在階 | 2階 |
| お問い合わせ・ご内見のご予約はこちらからお気軽にどうぞ | |
間取り図をご紹介いたします。
間取り図は別タブで開きますので、ご覧頂きながらがお勧めです。
今回のお部屋は2階、間取りは2LDK、専有面積は54.60㎡となります。
角部屋で二方向にバルコニーがあるんですね。
それでは行ってみましょう。
エレベーターを降りて、明るい外廊下を進むと…
玄関に到着です。
カメラ付きインターホンとダブルロックが玄関をしっかり守ってくれています。
それではお邪魔します…
白に近いフローリングの廊下には、ダークブラウンの扉が並んでいます。シャープな印象ですね。
玄関内の様子です。
人感センサーがありますので、荷物がいっぱいでも自動的にライトが点いてくれますよ。消し忘れの心配もありませんしね。
シューズボックスはトールタイプでたくさん収納出来ますので、玄関内を綺麗にしておけますね。棚も調節出来るのでブーツなどでもOKです。
では、まずは突き当りのドアから開けてみましょう。
こちらが約14.4帖のリビング・ダイニング・キッチンとなります。
真っ白なお部屋ですね。一般的なLDKとは違って真ん中がくびれたようになっていて、入ってすぐのここがダイニングをイメージしているようです。右側にキッチンにつづく窓が見えます。
キッチンとダイニングの位置関係はこんな感じです。
こちらがリビング部分になるんですかね・・・窓の外はバルコニーとなります。大きな引き戸が存在感大ですね(^^)
では、開けてみましょう。
こちらが約6.3帖の洋室となります。
バルコニーに面していて明るいお部屋です。
クローゼットがありました。間口が広くて使いやすそうです。
お部屋の境の引き戸は完全に壁部分に収納可能ですので、リビングとつなげて一部屋として使う事が出来ます。
洋室側から…
リビング側から…
広いですね!合わせると20帖超のリビングになるんですよ。引き戸扉のダークブラウンが枠だけになってお部屋が軽くスッキリした気がします。個人的にはこちらに一票です(^^)
ではキッチンを見ていきましょう。
キッチンもフローリングに合わせた色合いになっています。
コンロは3口、片面焼きグリルがついています。コンロが三つもあると、手の込んだお料理にも挑戦したくなりますね。
食洗機はありませんがその分収納が充実しています。
上部にもありますよ。
シンクは排水溝が見えないようになっています。スポンジなどから垂れる水が直接排水溝に落ちるようになっているんですよ。すっきりしてていいですよね♪
冷蔵庫スペースはキッチン入口にありました。ここならお料理の邪魔をされる事もありませんね。
こちらのキッチンには窓がありますが、それでもお料理中は換気扇をお忘れなく。
では、キッチン後ろの窓から西側のバルコニーに出てみましょう。
広くはありませんが、樹木に囲まれた気持ちのいいバルコニーです。
ぐるりと植えられた樹木が南側だけ空いていて、陽が当たっているのが嬉しいですね。
では、一度廊下に戻って…
玄関から見て左側の引き戸をあけてみます。
洗面室となります。
キッチンやフローリングに合わせたテイストとなっていますね。
収納は鏡裏と洗面台下にありました。細かい物が多くなりがちな洗面まわりには、鏡裏にあるようなキャビネットが便利ですよね。
水栓はハンドシャワータイプですので、朝の忙しい時間のシャンプーなどはこちらで出来そうですね。洗面ボウルも大き目なので水はねも安心です。
洗濯機スペースもこちらにありました。
では、浴室を見てみましょう。
浴室もグレーです。テーマカラーなんですね。白樺林を連想してしまいました(笑)
追い焚き機能がありますのでいつでも温かいお風呂に入れますよ。お休みの日には朝風呂とかいかがですか(^^)
浴室換気乾燥機は浴室のカビ予防の強い味方です。どんどん使っていきましょう!
次は、洗面室内の引き戸を開けてみます。
トイレとなります。
INAXさんのシャワートイレが完備されていますね。ちなみにウォシュレットは他社さんの商品名なんですよ。ご存知でしたか?
では、玄関から見て右の引き戸を開けてみます。
(すみません、ミスで間取り図には書かれていない扉です)
こちらが約4帖の洋室となります。
このお部屋にも窓があって明るいですね♪
入って左にはクローゼットがあります。
西側の窓の外には、西側のバルコニーと同じ景色がありました。
それでは最後にバルコニーへ出てみましょう。
ゆったり余裕のあるバルコニーですね。2階ということで緑を近く感じます♪
お洗濯物を干す場所が上と下の二か所にありました。南向きで陽当りもいいので気持ち良く乾きそうですね。
前の空間は建物との距離をとってくれていて、抜けのある眺めに役立っていますね。芝生ではなさそうですがいい感じに草が生えていて癒されます(^^)
西方向には建物がありますが距離もあって気にはなりませんでした。ヤシのような木のせいか飯田橋にいることを忘れそうです(^^)
気持ちのいい空ですね♬
以上で飯田橋第一パークファミリアのご案内を終わります。
いかがでしたでしょうか??
飯田橋駅から徒歩10分のマンションです。
リノベーション済みという事で室内はとてもキレイですよ (っ・ω・)っ
内見のご予約やご質問などございましたらお気軽にお問い合わせくださいませ。
ご連絡お待ちしております。
弊社、不動産Agent 六棒株式会社では、
□リノベーションマンションはほぼ全て仲介手数料無料!
□その他一般仲介物件は仲介手数料20%~30%OFF!
にてお取り扱いしております!※弊社の「Agent Fee=仲介手数料」についてはご案内、ご面談の際に営業担当者よりご説明いたします!
なるべく沢山のお部屋をホームページに掲載したいと思っておりますが、時間的成約もございますので、残念ながらご紹介できるお部屋の一部しか掲載できておりません。
このホームページに掲載中のお部屋、その他サイト等で気になるお部屋、街を歩いていて気になったマンション等々ございましたら是非、弊社営業部までご相談ください!
~不動産Agent 六棒株式会社の特徴~
・一般仲介物件の仲介手数料は20%~30%OFFにてご案内中です!
・リノベーションマンションについてはほぼ全て仲介手数料無料です!
・住宅ローンに自信あります!
・頭金10万円より購入できます。是非ご相談下さい!
・お部屋のご見学は車で2~3件まとめて案内します!
・物件数3000件以上、新築戸建、リノベ物件も多数ご用意しております!
過去に販売していたお部屋の概要 このお部屋の販売は終了いたしました。
| 価格 | -万円 |
| 面積 | 54.60㎡ |
| 間取り | 3bedrooms(3LDK) |
| 管理費 | 月額10,300円 修繕積立金:月額12,200円 |
| 所在階 | 6階 |
| お問い合わせ・ご内見のご予約はこちらからお気軽にどうぞ | |
間取りのご紹介です。3LDK、54.60㎡。
南向きで陽当り・眺望ともに恵まれたお部屋です。
玄関前の共用廊下。マンションにオートロックはありませんが、お部屋にはTVモニター付きインターホンが設置されています。来訪者の顏も事前に確認できるので安心です。
では中へ。玄関ホールはゆとりがあって靴の脱ぎ履きがしやすそうです。
そして人感センサーがついているので、人を感知して自動で照明が消灯します。
夜遅くの帰宅時もパッと電気がついていいですね。消し忘れがなく節電効果もあります。
玄関右横には扉が2つ。片方はトールサイズのシューズBOXで収納力◎。小さい扉の方も可動棚が設置されていました。子供の靴を入れたり、シューズケアグッズを入れたりと色々活用できそうです。
シューズBOX向かいには縦長の鏡が設置されています。
お出かけ前の身だしなみチェックもバッチリできますよ(*´▽`*)
玄関をあがると廊下がまっすぐ伸びています。
フローリングも建具もナチュラルな木目調です。
では廊下側から順番に見ていきましょう。
廊下を進んですぐ左側の扉は約4.0帖の洋室。
窓の外は玄関前の共用廊下です。
こちらのお部屋にはクローゼットが設置されています。
ダンボールが飛び出ているのは気にしないでください・・・。
洋室の向かい側は洗面室。
洗面化粧台、トイレ、洗濯機置場、バスルームと水廻りの設備はこの中にまとまっています。お掃除もまとめてこなしやすそうですね。
洗面化粧台は鏡の裏や引き出しなど収納スペースが豊富。
蛇口はシャワーになるので洗面ボウルのお掃除もラクラク(´∀`)
トイレはウォシュレットとトイレットペーパーのストックを仕舞っておくのに便利な吊戸棚がついています。後ろ側のアクセントクロスもステキです。
洗濯機置場の上には洗剤を置いておくのに便利な棚も設置されています。
手の届くところに洗剤類、置いておけるといいですよね。
バスルームは追い焚き、浴室換気乾燥機能付きと設備充実。
家族の帰宅時間がバラバラでもいつでも暖かいお湯に浸かれるのがうれしいですね!
廊下をまっすぐ進んだ先、採光部のある扉の奥は・・・
約10.2帖のLDK。エアコンが設置済みで引っ越したその日から快適に生活できます。
壁面の一部にはダウンライトに照らされて、ニッチスペースがつくられています。
小物や写真などを飾ってお好みの空間つくりを楽しめますよ♡
反対側からもご覧ください。
キッチンは壁面に馴染むホワイト。
向かって左側に冷蔵庫やキッチン家電が置けるようにコンセントの差口が設置されています。
水栓は浄水機内蔵タイプのハンドシャワー水栓です。
ノズルを引き出してシンクの隅々までお手入れが可能です。
スライド式の収納も物がたっぷり入りそうでグー。
3部屋ある洋室のうち1部屋は廊下側にありましたが、残りの2部屋はLDKを介していけるようになっています。
1枚扉側の洋室は約6.0帖。洋室の中で一番広いので主寝室になるイメージでしょうか(・ω・)南向きで明るいお部屋です。
こちらのお部屋にはウォークインクローゼットがついています。
写真だとわかりにくいですが、横に奥行きがあるので収納力ありますよ!
3枚の可動扉側の洋室は約4.5帖。同じく南向き。
こちらのお部屋に収納はありません。
可動扉をあけてLDKとつなげるとこんな感じの縦長空間になります。
奥の洋室はリビングとして広々使ってみるのもいいかも(*‘ω‘ *)
最後に洋室2部屋に面しているバルコニーに出てみます。
6.27㎡、南向き。
この日は曇天でしたが、晴れた日は陽ざしが期待できますよ☀
眺望です。周囲は住宅街。高いマンションもありますが、多少距離があるので気になりません。開放感もあっていい感じです。
内見のご予約やご質問などございましたらお気軽にお問い合わせくださいませ。
ご連絡お待ちしております。
弊社、不動産Agent 六棒株式会社では、
□リノベーションマンションはほぼ全て仲介手数料無料!
□その他一般仲介物件は仲介手数料20%~30%OFF!
にてお取り扱いしております!※弊社の「Agent Fee=仲介手数料」についてはご案内、ご面談の際に営業担当者よりご説明いたします!
なるべく沢山のお部屋をホームページに掲載したいと思っておりますが、時間的成約もございますので、残念ながらご紹介できるお部屋の一部しか掲載できておりません。
このホームページに掲載中のお部屋、その他サイト等で気になるお部屋、街を歩いていて気になったマンション等々ございましたら是非、弊社営業部までご相談ください!
~不動産Agent 六棒株式会社の特徴~
・一般仲介物件の仲介手数料は20%~30%OFFにてご案内中です!
・リノベーションマンションについてはほぼ全て仲介手数料無料です!
・住宅ローンに自信あります!
・頭金10万円より購入できます。是非ご相談下さい!
・お部屋のご見学は車で2~3件まとめて案内します!
・物件数3000件以上、新築戸建、リノベ物件も多数ご用意しております!
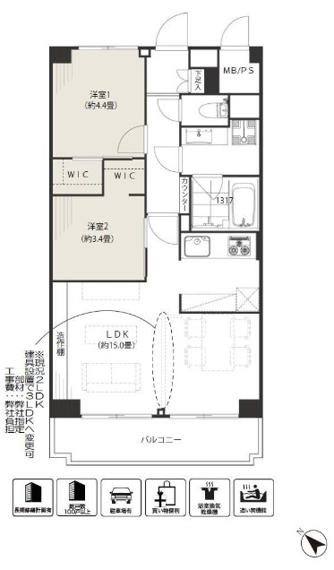
過去に販売していたお部屋の概要 このお部屋の販売は終了いたしました。
| 価格 | -万円 |
| 面積 | 54.60㎡ |
| 間取り | 3bedrooms(3LDK) |
| 管理費 | 月額:10,300円 修繕積立金:月額12,200円 |
| 所在階 | 12階 |
| お問い合わせ・ご内見のご予約はこちらからお気軽にどうぞ | |
今回ご紹介するお部屋はこちらです。
さっそく入りましょう!!
玄関に入ると木目調の内装が迎えてくれます。
右手には高さの調整できるシューズボックス、左手にはニッチと呼ばれる飾り棚があります。
シューズボックスは大きさ的に20足くらいは入りそうです。ブーツ等を入れるとなるともう少し減りそうですね。( ・`ω・´)
次は玄関左手の洋室をご案内します。
こちらは約4.0帖のお部屋となっています。
廊下には面していますが、窓にはサッシが付いているので防犯面でも安心できますね!
ハンガーポール付きのクローゼットも付いているのでお洋服もかけておくことができますよ!(っ´∀`c)
ご家族との団欒を楽しむ場所とは少し離れる空間になりますので、寝室や書斎等の落ち着いたお部屋としてお使いいただけそうですね!!
廊下を挟んで反対側はサニタリールームになっています。
四角いシンクはスタイリッシュな印象を受けますね!
ミラーキャビネットやシンク下の収納もたっぷりとございますので、ほとんどの備品はこちらに収納しておくことができます!!
洗面台のお隣はトイレとなります。ウォシュレットが付いていますねヾ(*≧∀≦)ノ゙
無駄のないシンプルなトイレは落ち着きます。
上部には棚が付いていますので予備のトイレットペーパーはそちらに置いておきましょう!!
洗面台の背後には洗濯機置場があります。
同じ空間に洗濯機があることで効率よく洗濯が出来ると思います。
こちらも上部に棚が付いていますので、そちらも上手にお使い頂ければスマートですね!
こちらはお風呂です。
ベージュと白の壁が優しい雰囲気をだしていますね。
浴室乾燥機能が付いていますので天候にかかわらずお洗濯物を乾かすことができますよ!
洗濯機からの距離が短いのが楽でいいですよね( ̄∀ ̄*)
疲れを癒すにはもってこいの浴室だと思います!!
玄関を抜けるとリビングダイニングキッチンです。
お先にキッチン部のご案内をいたしましょう!
キッチンは、グリル付きの3口コンロ、食器洗浄機、浄水機能付きの水栓等の設備がついています。
調理スペースも広めにとられているのでお料理も捗りますね。
吊戸棚もございますので、収納スペースも申し分ないですよ!!( ´∀`)b
ひろびろしているので家族の団欒が楽しくなりそうです。
奥に進みましょう!
リビングダイニングの奥は約4.5帖の洋室となっています。
ドアは引き戸になっていますのでご覧のように広く開けておくことで、ダイニングまで明るい空間としてお使い頂けます。もちろん引き戸を閉めて一つの独立したお部屋としてもお使い頂けますよ!!
バルコニーはもう少しお待ちくださいね( ・`ω・´)
先に隣のお部屋をご紹介します。
こちらの洋室は約6.0帖です。バルコニーからの光が眩しいですね!(☆Д☆)
ウォークインクローゼットが付いているので夏の間使わない冬物のコートなんかはこちらに掛けておくことができます!!
衣替えで、お洋服を出して、しまって、、、なんていう煩わしさからも解放されそうですよ。(*^艸^)
最後にバルコニーです。
バルコニーへの窓は全て二重サッシとなっているので防音対策もバッチリですよ!!
西向きのバルコニーからは新宿のビル群がみえます。
近くにはあまり大きな建物がないので見晴らしがいいですね。
お天気が良いともっと青空と都会の街並みがキレイなのですけど、そちらは実際に見に来てくださいね( ̄∀ ̄*)
以上で飯田橋第一パークファミリア12階のご案内を終わります。
12階建てマンションの最上階という事もあって地上の喧騒とは無縁な落ち着いたマンションライフが送れるのではないでしょうか?
コンビニや、小規模スーパーも近くにあるので日常のお買い物に困ることもないと思います!
内見のご予約やご質問等ございましたらお気軽にお問い合わせ下さい!!
弊社、不動産Agent 六棒株式会社では、
□リノベーションマンションはほぼ全て仲介手数料無料!
□その他一般仲介物件は仲介手数料20%~30%OFF!
にてお取り扱いしております!※弊社の「Agent Fee=仲介手数料」についてはご案内、ご面談の際に営業担当者よりご説明いたします!
なるべく沢山のお部屋をホームページに掲載したいと思っておりますが、時間的成約もございますので、残念ながらご紹介できるお部屋の一部しか掲載できておりません。
このホームページに掲載中のお部屋、その他サイト等で気になるお部屋、街を歩いていて気になったマンション等々ございましたら是非、弊社営業部までご相談ください!
~不動産Agent 六棒株式会社の特徴~
・一般仲介物件の仲介手数料は20%~30%OFFにてご案内中です!
・リノベーションマンションについてはほぼ全て仲介手数料無料です!
・住宅ローンに自信あります!
・頭金10万円より購入できます。是非ご相談下さい!
・お部屋のご見学は車で2~3件まとめて案内します!
・物件数3000件以上、新築戸建、リノベ物件も多数ご用意しております!
過去に販売していたお部屋の概要 このお部屋の販売は終了いたしました。
| 価格 | -万円 |
| 面積 | 54.60㎡ |
| 間取り | 3bedrooms(3LDK) |
| 管理費 | 月額:10.300円 修繕積立金:月額12200円 |
| 所在階 | 3階 |
| お問い合わせ・ご内見のご予約はこちらからお気軽にどうぞ | |
ここで間取りのご紹介です。3LDK、54.60㎡。
室内はフルリノベーション済み。
玄関を入ると左側には棚の高さが変えられるシューズBOXがつくられています。
奥行があるので手前に傘立ても入れておけそうです。
玄関をあがり、目の前の廊下をまっすぐ進んだ扉の先は・・・。
約10.0畳のリビングダイニングキッチン。
家具が置かれていますが、4人がけのダイニングテーブルとソファセット
もゆったり置いていただけます。
キッチンスペース。
リビングの様子を見ながらお料理できるカウンタータイプです。
お部屋に馴染む木目柄のシステムキッチン。
ワークトップは汚れてが落としやすい人造大理石が使われています。
大割りの引き出しも鍋やキッチングッズの出し入れがしやすそうでいいですね!
コンロの後ろ側には洗濯機置場がつくられていました。
お料理をしながら、お洗濯、と家事もスイスイこなせそうな配置です。
リビングの入口横には棚の付いた収納もつくられてます。
つづいて洗面室です。入口入って右側にバスルーム、正面にトイレ、
左側に洗面化粧台の並びになっています。
入口に少し段差があるので注意です・・・。
洗面化粧台は4面に鏡がついています。小さなお子様でも背伸びをせずに
鏡を見ることができますよ。
また鏡の裏 は収納になっているので、ハブラシ類などをしまえばカウンター
スペースを有効に使えます。
ラウンド型の洗面ボウルも柔らかさと上品さがありステキです。
うすいベージュの木目柄の壁面パネルが使われた明るいバスルーム。
追い焚き機能と浴室換気乾燥機がついており、快適なバスライフが
送れますよ。
トイレはウォシュレット付き。
上には吊戸棚がついています。
ここから洋室を3部屋ご紹介します。
1部屋目は約5.3畳の広さ。玄関から一番近いお部屋です。
枕棚のついた幅広のクローゼットがつくられています。
2部屋目は約4.0畳の広さ。リビングの入口入ってすぐ手前に扉があります。
窓はありませんが・・・クローゼットはあります!
3部屋目はリビングと3枚の可動式の扉で仕切られています。
扉は開けると壁の向こうへキレイにしまい込めるので開けたままでも見た目は
スッキリしています。
約5.0畳の広さ。収納にクローゼットがつくられています。
可動式の扉をあけて2部屋つなげると広々とした空間になりました!
生活シーンに合わせてフレキシブルなレイアウトがお楽しみいただけます。
最後にバルコニーにでてみます。リビングと約5.0畳の洋室、どちらからも
でられます。約6.27㎡、西向き。
ちょうど眼下が駐車場になっているのであたりの建物とは距離があり、
ゆったりとした感じの眺めです。空も広く見えますよ!
みなさまのご内見、こころよりお待ちしております。







































































































































































































































































































































































































































































































































































































































































































弊社 公式HP
六棒総合研究所
掲載予定物件
価格変更と販売終了物件
ハザードマップ検索
適合証明書.jp
Facebook
Twitter
Instagram