□□□□□□□□□□□□□□□□□□□□□□□□□□□□□□□□□□□□□□□
いつも弊社ホームページをご覧頂き誠にありがとうございます。
大久保マンションはお陰様で販売を終了致しました。弊社問合せフォームにてご要望頂けましたら、当お部屋でキャンセル等が発生した場合、他のお部屋が販売になりました際にご紹介させて頂きます。
弊社では、仲介手数料無料orお値引(50%off、30%off、20%off)にて皆様のマイホーム探しのお手伝いをさせて頂きいております。大久保マンションの類似物件や、お探しのご条件等をお聞かせ頂けましたらご条件に合ったお部屋をご紹介させて頂きます。また、ご来社頂き一緒に探させて頂くことも可能ですので、是非弊社問合せフォームよりお気軽にお問合せください。
不動産Agent 六棒株式会社
TEL:03‐5413‐5336
□□□□□□□□□□□□□□□□□□□□□□□□□□□□□□□□□□□□□□□
本日は新宿~大久保エリアから、リノベーションマンションのご紹介!
「大久保マンション」、JR中央・総武線「大久保」駅徒歩7分、JR山手線「新大久保」
駅徒歩9分、東京メトロ丸ノ内線「西新宿」駅徒歩10分。3路線3駅利用可能な
うえ、新宿駅も頑張れば徒歩圏というナイスロケーションです。
西新宿の駅から地上に出ると、行き交うビジネスマンや飲食店でにぎやかな
青梅街道。しかし、街道から細い道を入っていくと、どこか懐かしいような感じの
静かな住宅街が広がっています。
途中、一度大きい通りがあります。スーパー丸正やドラッグストアがあり、
日常生活の強い味方になってくれそうです。
新宿税務署の横から、またもや細道に入り、住宅街の中に「大久保マンション」は
あります。となりは公園です。
「大久保マンション」昭和39年5月築、総戸数28戸、4階建て。
施工は大林組です!
築年数結構ありますが、グレーの外観はあまり古さを感じさせません。
自転車置き場入り口の柵に小鳥が。ちゅんちゅん。
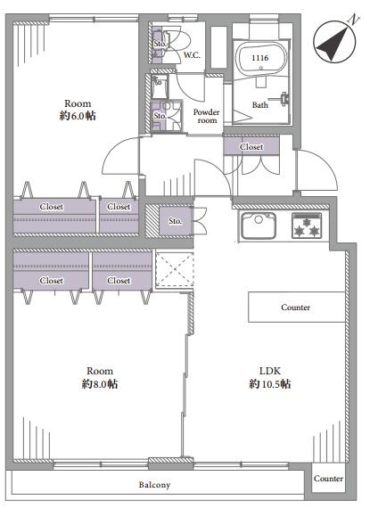
間取りのご紹介です。2LDK、専有面積は58.89㎡。
室内は只今以下のリノベーション工事中です。
【リノベーション内容】
■キッチン・・・システムキッチン(パナソニック)
■浴室・・・ユニットバス(TOTO)、追い焚き機能付き、浴室換気乾燥暖房機付き
■洗面所・・・洗面化粧台 、洗濯水栓、防水パン
■トイレ・・・LIXIL、ウォシュレット付き
■その他・・・フローリング貼替、建具・玄関収納交換、壁・天井クロス貼替、フロアタイル貼替、給湯器交換、エアコン(1基)、カラーTVモニター付きインターフォン、新規照明器具取付、収納棚新設、スイッチ・コンセント交換、ハウスクリーニング
■アフターサービス保証付き
【内装工事終了予定:2016年5月中旬】
工事中のご紹介も可能です。
ご内見のご希望・ご質問などございましたら、お気軽にお問い合わせくださいませ♪
過去に販売していたお部屋の概要 このお部屋の販売は終了いたしました。
| 価格 | -万円 |
| 面積 | 58.87㎡ |
| 間取り | 2bedrooms(2LDK) |
| 管理費 | 月額:3,000円 修繕積立金:月額7,000円 |
| 所在階 | 1階 |
ここで間取りのご紹介。58.87㎡、2LDK。南東向きなので日当たり良さそうです。
玄関入って左には大容量のシューズボックス。ご家族の靴をまるっと収納したうえ、
さらにちょっとしたお出かけグッズも入りそうです。ニッチ部分には季節の花々や
お気に入りの雑貨などを、ババーンと飾りたいところです。
約10.5帖のリビングダイニング。一部壁面にあしらわれた木目調のナチュラルな
アクセントクロスが、癒し空間を演出しています。
リビングダイニングからバルコニーに出られます。目の前が駐輪場ですし、周辺に
高い建物がないので、太陽の光が贅沢に降り注いでいます。
キッチンには作業スペースとして大活躍しそうなカウンター付。内部の棚板は
可動式ですので、キッチン家電や料理グッズが効率よく収納できそうです。
キッチン横手にも、パントリーにうってつけの奥行きたっぷり収納(しかも電気まで
ついてます)があり、お部屋をすっきりと保てそうですよ。
洗面化粧台は、長方形なデザインがオシャレ感たっぷりです。下部は収納
となっています。
バスルームには大き目の窓があり、自然光たっぷりの明るい空間です。
浴室換気乾燥機が設置されていますので、窓からの換気と合わせて使えば
しつこいカビも防げそうです。
トイレにも窓。壁面の木目アクセントクロスと自然の光が、落ち着く空間を作り上げて
います。
リビングダイニングと引き戸で仕切られた、約8.0帖の洋室。こちらのお部屋からも
バルコニーに出られます。なんと収納の中にそれぞれ照明があります。
これは便利そう。
玄関側・約6.0帖の洋室。クローゼットに加えて、物入れも設けられています。
このサイズですと、パソコンデスクにカスタムも可能かも…夢が膨らみます。
窓からは、マンション隣の公園の、のどかな風景と緑がご覧いただけます。
宜しければ動画もぜひぜひご覧ください!
YouTubeはこちら↓
https://www.youtube.com/watch?v=pN5N2q8ByUs
Dailymotionはこちら↓
http://www.dailymotion.com/video/x1k78nv
「大久保マンション」、いかがでしたか?なおこちらのマンション、ペットの
飼育も可能(ただし近隣に迷惑がかからない程度)となっております。
小学校・中学校も10分以内、オリンピックやまいばすけっとも近所ですよ!
追加情報:駐輪場は年2,000円、原付の駐車も可能です。
皆様のご内見、心よりお待ちしております!
















































弊社 公式HP
六棒総合研究所
掲載予定物件
価格変更と販売終了物件
ハザードマップ検索
適合証明書.jp
Instagram