□□□□□□□□□□□□□□□□□□□□□□□□□□□□□□□□□□□□□□□
いつも弊社ホームページをご覧頂き誠にありがとうございます。
ソアールタワー市ヶ谷の丘はお陰様で販売を終了致しました。弊社問合せフォームにてご要望頂けましたら、当お部屋でキャンセル等が発生した場合、他のお部屋が販売になりました際にご紹介させて頂きます。
弊社では、仲介手数料無料orお値引(50%off、30%off、20%off)にて皆様のマイホーム探しのお手伝いをさせて頂きいております。ソアールタワー市ヶ谷の丘の類似物件や、お探しのご条件等をお聞かせ頂けましたらご条件に合ったお部屋をご紹介させて頂きます。また、ご来社頂き一緒に探させて頂くことも可能ですので、是非弊社問合せフォームよりお気軽にお問合せください。
不動産Agent 六棒株式会社
TEL:03‐5413‐5336
□□□□□□□□□□□□□□□□□□□□□□□□□□□□□□□□□□□□□□□
新宿区・タワーマンション「ソアールタワー市ヶ谷の丘」のご紹介です!
都営大江戸線「牛込柳町」駅徒歩2分。他にも東京メトロ東西線「神楽坂」駅
徒歩12分や都営新宿線「曙橋」駅徒歩13分もご利用いただけます。
牛込柳町駅からマンションに向かう間には、徒歩2分という短い距離ながら
深夜0時まで営業しているスーパーや、病院がありました。
マンション外観は空に向かってまっすぐ伸びる、洗練されたデザインが格好いいです!
平成15年築、19階建て、総戸数157戸、旧東急不動産分譲です。
平成27年5月~12月終了予定で大規模修繕工事が実施されています。
エントランスや遊歩道も、いかにもハイグレードマンションといった堂々たる
佇まいです。ソファの大胆な赤が効いていますね。
フロントサービスやゲストルームにマルチルーム、24時間有人警備と共用設備
が充実しているのもタワーマンションならではです。
エレベーターは2基設置されていますので、忙しい朝でもスムーズに乗り降りできます。
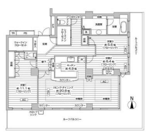
間取りのご紹介です。3LDK、専有面積は128.08㎡。
18階、東南角部屋につき陽当り・陽当たり・眺望・通風良好です!
リビングからは東京タワー・東京スカイツリーが望めます。
室内は以下のリフォーム済み。
【リフォーム内容】
■LD・・・エアコン(2機:天井埋込)
■洗面・・・防水パン
■キッチン・・・食洗機、浄水器内装シングルレバー水栓、3口ガスコンロ
■洋室1・・・エアコン(天井埋込)
■洋室2・・・エアコン
■洋室3・・・エアコン、クローゼット
■浴室・・・サーモ付シャワー水栓
■トイレ・・・TOTOトイレ(ウォシュレット付き)
■共通・・・壁・天井クロス、室内クリーニングなど
ご内見のご希望・ご質問などございましたら、お気軽にお問い合わせくださいませ♪
過去に販売していたお部屋の概要 このお部屋の販売は終了いたしました。
| 価格 | -万円 |
| 面積 | 101.43㎡ |
| 間取り | 2bedrooms(2LDK) |
| 管理費 | 月額:26,400円 修繕積立金:月額8,820円 インターネット使用料:月額1,996円 |
| 所在階 | 19階 |
ここで間取りのご紹介。101.43㎡、2LDK東南角部屋です。
玄関にはトールタイプの下足入れのほか、超大容量のシューズインクローク
があります。ちょっとした部屋くらいの広さがあります。
リビングダイニングに入ると、このような眺望が出迎えてくれます!絶景です!
これは夜景もバッチリ期待できそうです。
キッチンのカウンターや壁面に木の質感が取り入れられ、ナチュラルな雰囲気に
癒されます。
バルコニーからの眺望はこちら。どこまでもどこまでも見渡せます。
リビング入り口にスクリーン制御パネル発見しました。ボタン一つでカーテンや
ブラインドの開け閉めが可能です。
なお、天井カセットタイプのエアコンが設置されています。
広々としたキッチン。眺望を眺めながらお料理できます。ビルトインタイプの
食器洗浄機が設置されているほか、背面の棚には炊飯器やトースターなど置ける
スペースも設けられ、キッチンをすっきり保てそうです。
ウッドパネルがあしらわれた洗面化粧台…と思いきや、これ、全部収納なんです。
まとめ買いも大人買いもすっぽり受け止めてくれそうです。
バスルームのドアはガラス製。ホテルのような雰囲気です。シャワーヘッドは
グローエ社製でした。浴室換気乾燥機+物干し竿2本あります。
おや、この木製の扉はなんでしょう… サ ウ ナ だ ! ! !
扉を開けるだけで、木の快い香りが鼻をくすぐりました。
廊下にある扉を開けると、そこは洗濯機置き場でした。広いので、棚も置けそうです。
上部に吊戸棚も設置されています。
トイレも広いです。なんだか良いアイディアがひらめきそうです。
手洗い場上部に、おしゃれなウッドパネルがある、と思ったら収納でした。
リビングダイニング隣の洋室。こちらにも天井カセットエアコンが設置されており、
カーテン・ブラインド自動制御パネルがあります。こちら側(東)の窓からは
スカイツリーが見えます!
さらにその隣の洋室。こちらはカーテン手動です。収納が2箇所に設置されて
いますので、洋服も雑貨もすっきりです。ハンガーポールが縦についています。
絶景を誇るこちらのタワーマンション、みなさまのご内見を心よりお待ちしております!
























































弊社 公式HP
六棒総合研究所
掲載予定物件
価格変更と販売終了物件
ハザードマップ検索
適合証明書.jp
Instagram