・
□□□□□□□□□□□□□□□□□□□□□□□□□□□□□□□□□□□□□□□
いつも弊社ホームページをご覧頂き誠にありがとうございます。
ディアライフ大塚はお陰様で販売を終了致しました。弊社問合せフォームにてご要望頂けましたら、当お部屋でキャンセル等が発生した場合、他のお部屋が販売になりました際にご紹介させて頂きます。
不動産Agent 六棒株式会社
TEL:03‐5413‐5336
□□□□□□□□□□□□□□□□□□□□□□□□□□□□□□□□□□□□□□□
・
山手線「大塚」駅より徒歩3分。リノベーションマンション
ディアライフ大塚をご案内致します!
大塚駅は池袋まで一駅、新宿まで5駅なので、どこに行くにもアクセス便利です。
大塚駅の改札を出たら、ジューススタンドが眼に飛び込んできました。「白桃」
「タカミメロン」という文字にそそられます。
大塚駅にはアトレヴィがあり、成城石井や旭屋書店、ユニクロ、神戸屋キッチン
などが入っております。
駅を出たらスターバックス、24時間営業!の本屋(しかも結構大きい)などがあり
ます。大塚駅北口の交差点を過ぎてまっすぐ進みます。
1階にはスーパーやダイソー、ゴールドジムも入っています。
薬局の品揃えもなかなかGOODでした。
さすが駅徒歩3分、あっという間にマンション到着です。
昭和57年2月築、総戸数18戸、7階建て。
マンション1階には中華料理店が入っています。メニュー豊富で美味しそう。
エントランス一番奥のエレベーターからお部屋のあるフロアへ。
ここで間取り図のご紹介です。
※間取り図は別タブで開きますので、確認しながらご覧頂くことが出来ます。
今回ご紹介するお部屋は2階、専有面積46.99㎡の1LDK。おひとり暮らしの方にお勧めの、ルーフバルコニー付きのお部屋です。では、早速行ってみましょう。
【玄関廊下・トイレ】
【浴室・洗面室】
【洋室】
【LDK】
【LDK】
【キッチン】
・
以上でディアライフ大塚のご案内を終わります。
いかがでしたでしょうか??
大塚駅から徒歩3分のマンションです。
リノベーション済みという事で室内はとてもキレイですよ (っ・ω・)っ
内見のご予約やご質問などございましたらお気軽にお問い合わせくださいませ。
ご連絡お待ちしております。
弊社、不動産Agent 六棒株式会社では、一般仲介物件は仲介手数料20%~30%OFF!
にてお取り扱いしております!
なるべく沢山のお部屋をホームページに掲載したいと思っておりますが、時間的成約もございますので、残念ながらご紹介できるお部屋の一部しか掲載できておりません。
このホームページに掲載中のお部屋、その他サイト等で気になるお部屋、街を歩いていて気になったマンション等々ございましたら是非、弊社営業部までご相談ください!
~不動産Agent 六棒株式会社の特徴~
・一般仲介物件の仲介手数料は20%~30%OFFにてご案内中です!
・住宅ローンに自信あります!
・頭金10万円より購入できます。是非ご相談下さい!
・お部屋のご見学は車で2~3件まとめて案内します!
・物件数3000件以上、新築戸建、リノベ物件も多数ご用意しております!
過去に販売していたお部屋の概要 こちらのお部屋の販売は終了いたしました
| 価格 | -万円 |
| 面積 | 31.87㎡ |
| 間取り | 1bedroom(1DK) |
| 管理費 | 月額12,800円 修繕積立金:月額3,200円 |
| 所在階 | 4階 |
| お問い合わせ・ご内見のご予約はこちらからお気軽にどうぞ | |
ここで間取り図のご紹介です。
※間取り図は別タブで開きますので、確認しながらご覧頂くことが出来ます。
今回ご紹介するお部屋は4階、間取りは1DK、専有面積は31.87㎡。おひとり暮らしの方にお勧めのお部屋です。では、早速行ってみましょう。
エレベーターを4階で降りて、内廊下をお部屋へ向かいます。
玄関ドア横に設置されたモニター付きインターホンのおかげで、お部屋の中から訪問者を確認する事が出来ます。返事をする前にチェック出来るのは便利ですよね。
廊下は、白を基調に濃い色のドアがアクセントになったシャープな印象。明るい色のフローリングだと広く感じます。
廊下に上がった所にあるシューズボックスはロータイプ。上部はカウンターになっていて、いろいろ飾ってインテリアを楽しむことも可能です。玄関は家の顏、センスの見せ所ですよ(^^)
では、お部屋の中へ…
こちらはダイニング・キッチン+洋室。仕切り戸を開けて二部屋をつなげた様子です。おひとり暮らしなら、こんな感じのワンルーム使いが多くなりそうですね。二面採光で風通しも良さそう♪♪
収納された、引込式の仕切り戸を引き出せば…
本来の洋室に戻ります。ブルーのアクセントウォールが鮮やかですね。引き戸はデッドスペースも出来ないので、家具を自由に置くことが出来ます。
出窓の外は隣の建物が近く、眺望や陽射しなどは期待出来そうにありません。ただ、風通しに関しては、窓ひとつとは段違い。一説によると10倍近く違うとか。
閉めた時のダイニング・キッチン。仕切り戸に明りとりのガラスが入っているので、閉めてもバルコニーから光が入って来るんですね。キッチンは壁付けタイプ。省スペースでお部屋を広く使えます。ただ、どうしてもキッチン内が目立つので、普段からなるべくキレイにしておきましょう。
お部屋に合わせた白の調理台。お部屋を広く見せる効果もあります。
収納は調理台下と後方に吊戸棚。吊戸棚の下には家電ラックやカップボードなどを置けば、角に頭をぶつける心配もありませんよ。
コンロは2口、グリルも付いています。グリルは魚イメージが強いと思いますが、どんなお料理にも使える優れもの。たまには野菜や肉も焼いてみて下さいね(^^)窓はありますが、調理中は換気扇をお忘れなく!少し前から回し始めると効果的です。
水栓は、部品を取り換えるだけで簡単に浄水機能付きに変更可能。調理台横には冷蔵庫スペースも確保されていました。
廊下に戻ってすぐの所にクローゼット。間口が広くて使いやすそうですね。
次は洗面室へ…
洗面室には洗面台の他に、洗濯機スペース、浴室、トイレがまとまっていて、脱衣所も兼ねています。
洗面台は身だしなみチェックに便利な三面鏡付き。上部付いた照明のおかげで、鏡を見る時に影になる心配もありません。
水栓はハンドシャワータイプ。ノズルが伸びて洗面ボウルを流したりに便利です。洗面ボウルも深く、寝ぐせくらいは直せると思いますよ^^;)収納は三面鏡裏のキャビネットと洗面台下。細々した物が多くなりがちな洗面廻りには、豊富な収納は有り難いですね。大きな物から細かい物までバランスよく収まりそうです。
次はトイレへ…
真っ白で清潔感のあるトイレ。トイレットペーパーなどのストックに便利な棚が付いています。洗浄便座はパナソニック製のビューティトワレ。
次はシャワールームへ…
「やっぱり浴槽欲しいよな~」とか思いましたが、よく考えてみると自分も1年で2~3ヶ月しか浴槽使ってないんですよね(;^ω^)休みの日とかに銭湯行くのも楽しそうです(^^)
それでは最後はバルコニーへ…
奥の洋室から出ます。
広さ4.06㎡、北西向き。奥行きもあり、ゆったりとしたバルコニーです。天井には物干し金具も設置されて、お洗濯物も干せるようになっていますよ。
目の前には高い建物が並んでいますが、隙間があるのでそれ程圧迫感は感じませんでした。駅近にしてはまずまずの眺めだと思いませんか?
・
以上でディアライフ大塚のご案内を終わります。
いかがでしたでしょうか??
大塚駅から徒歩3分のマンションです。
リノベーション済みという事で室内はとてもキレイですよ (っ・ω・)っ
内見のご予約やご質問などございましたらお気軽にお問い合わせくださいませ。
ご連絡お待ちしております。
弊社、不動産Agent 六棒株式会社では、
□リノベーションマンションはほぼ全て仲介手数料無料!
□その他一般仲介物件は仲介手数料20%~30%OFF!
にてお取り扱いしております!※弊社の「Agent Fee=仲介手数料」についてはご案内、ご面談の際に営業担当者よりご説明いたします!
なるべく沢山のお部屋をホームページに掲載したいと思っておりますが、時間的成約もございますので、残念ながらご紹介できるお部屋の一部しか掲載できておりません。
このホームページに掲載中のお部屋、その他サイト等で気になるお部屋、街を歩いていて気になったマンション等々ございましたら是非、弊社営業部までご相談ください!
~不動産Agent 六棒株式会社の特徴~
・一般仲介物件の仲介手数料は20%~30%OFFにてご案内中です!
・リノベーションマンションについてはほぼ全て仲介手数料無料です!
・住宅ローンに自信あります!
・頭金10万円より購入できます。是非ご相談下さい!
・お部屋のご見学は車で2~3件まとめて案内します!
・物件数3000件以上、新築戸建、リノベ物件も多数ご用意しております!
過去に販売していたお部屋の概要 こちらのお部屋の販売は終了いたしました
| 価格 | -万円 |
| 面積 | 46.99㎡ |
| 間取り | 1bedroom(1LDK) |
| 管理費 | 月額18,880円 修繕積立金:月額4,720円 |
| 所在階 | 2F |
| お問い合わせ・ご内見のご予約はこちらからお気軽にどうぞ | |
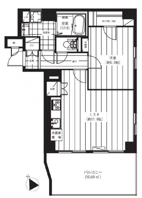
間取り図はこちら
クリックすると別タブで開くことも出来ます!
1LDK、46.99㎡
充実のリノベーション内容をご紹介いたします。
・シューズクローク、建具新規設置
・ウォークインクローゼット
・システムキッチン新規交換
・ユニットバス(追い焚き機能付き)新規交換
・浴室乾燥暖房機
・洗面化粧台
・トイレ新規交換
・壁、天井クロス張替え
・間接照明設置
・ハウスクリーニング 他
エレベーターを降りるとお部屋までは内廊下です。
雨や風といった天候の影響を受けないこと、外の音が入ってこないので静かな雰囲気であることなどからやはり内廊下は人気があります。
お部屋の前までやってきました。
玄関前にはモニター付きのインターフォンが付いています。
オートロックの付いていないマンションではありますが、お部屋の中から廊下の様子を確認することが出来るので防犯的にも安心できますね。
360度の写真だと画質荒いので細部は写真でご覧ください!!
玄関ドアを開けるとリノベーション済みの室内が現れます。
まるで新築のように生まれ変わっているので、見ていても気持ちが良いですね!
玄関の左手にはシューズボックスが付いています。中の棚板は高さを調節することが出来るので、ブーツの様な背の高い履き物でも問題なく収納することが出来そうです。
照明は人感センサー付きです。
ドアを開ければ室内がパッと明るくなるので、両手に荷物を抱えてのご帰宅でも問題ないですね!オンオフも自動なので切り忘れる事も無くなりますよ!!
それでは廊下を奥まで進んで行きましょう!
廊下の突き当たり右側に何やら光の漏れているドアを発見しました!
こちらはリビング・ダイニング・キッチンです。
広さは約11.8帖。
南向きの窓が付いています。
シンプルな形で家具の配置もしやすそうですね!
エアコンが最初から付いているのも嬉しい点です(エアコンは新規交換ではないので保証対象外になります)
角部屋なので東側にも窓が付いているのですが、窓の外はこんな感じです。
まぁ、都会のマンションでしたらこんなもんですよね。。。
キッチンを見ていきましょう!!
水栓は浄水器内蔵型です。シャワーヘッドになっているのでシンクの隅々まで水を流すことが出来ます。洗い物に際には大活躍してくれることと思います。
コンロは3口のグリル付きガスコンロです。お肉もお魚もこんがりふっくら焼いてくれるグリルは強力かつ小型のオーブンだと思えば、いろいろな使い方も見えてくるかもしれませんね!
収納スペースも盛りだくさんです。
カウンター下の収納は引き出しタイプなので、重いモノでも上から出し入れすることができます。見た目もスッキリですしかなり好評ですよ!
サイドには収納があるので、食材や調理器具などで良く使うものはこちらに収納しても良いかもしれません。扉が付いているので、来客時にも人目につきませんよ!
それでは廊下に戻って・・・
すぐ右手に見えるドアを開けてみましょう!
こちらは約6.0帖の洋室です。
稼働棚の付いたお部屋です。
窓の外はリビングで見たものと同じ壁です。採光は期待できないですが、換気性が高いと思えば悪くはないですよ!
大容量のウォークインクローゼット付です。
かなりの量のお洋服を収納することが出来そうなので、時間のかかる衣替えなどもあっという間に収納することが出来そうですね!
それでは廊下に戻って・・・
次はトイレです。
TOTOのウォシュレット機能付きのトイレです。
リモコンタイプなので操作性も良さそうですね!TOTO製のトイレなので機能面では折り紙つきですよ!!
吊戸棚もあるのでトイレットペーパー等の消耗品や掃除グッズなどはこちらに収納してください。
次はこちら
こちらは洗面室です。
大きなミラーの付いた洗面化粧台は三面鏡タイプです。内部はキャビネットになっているので歯ブラシなどはこちらにしまって下さい。
水栓はシャワーヘッドになっているので、簡単な洗髪程度ならわざわざお風呂まで行く必要もなさそうです。
お隣には洗濯機置場もありますね。
洗面室は脱衣所も兼ねているので、脱いだお洋服はすぐに洗濯することが出来ます。
換気用の窓が付いているのも高ポイントです。
次はお風呂です。
お風呂には浴室換気乾燥機能が付いています。
入浴後の湿気はカビの原因になってしまうので、入浴後はなるべく湿気を取り除いておきましょう!!
冬場は浴室を入浴前に暖めておけば一番風呂でも寒くありませんよ!
木目調のパネルが優しい雰囲気を出していますね。
追い焚き機能が付いているので、1日中熱いお風呂に入ることが出来ますよ!
お風呂好きな方は何回でもお風呂を楽しむことができそうです。
最後にバルコニーへ出てみましょう!!
バルコニーは10.69㎡もの広さがあります。
お布団も洗濯物も余裕を持もって干すことができそうですよ!
バルコニーは南向きですが。
構造上、少し凹んだ配置になっているので陽当たりはイマイチかもしれません。
正面に背の高いマンションも建っていますし。。。
では、以上でディアライフ大塚のご案内を終わります。
いかがでしたでしょうか??
大塚駅から徒歩3分のマンションです。
リノベーション済みという事で室内はとてもキレイですよ (っ・ω・)っ
内見のご予約やご質問などございましたらお気軽にお問い合わせくださいませ。
ご連絡お待ちしております。
弊社、不動産Agent 六棒株式会社では、
□リノベーションマンションはほぼ全て仲介手数料無料!
□その他一般仲介物件は仲介手数料20%~30%OFF!
にてお取り扱いしております!※弊社の「Agent Fee=仲介手数料」についてはご案内、ご面談の際に営業担当者よりご説明いたします!
なるべく沢山のお部屋をホームページに掲載したいと思っておりますが、時間的成約もございますので、残念ながらご紹介できるお部屋の一部しか掲載できておりません。
このホームページに掲載中のお部屋、その他サイト等で気になるお部屋、街を歩いていて気になったマンション等々ございましたら是非、弊社営業部までご相談ください!
~不動産Agent 六棒株式会社の特徴~
・一般仲介物件の仲介手数料は20%~30%OFFにてご案内中です!
・リノベーションマンションについてはほぼ全て仲介手数料無料です!
・住宅ローンに自信あります!
・頭金10万円より購入できます。是非ご相談下さい!
・お部屋のご見学は車で2~3件まとめて案内します!
・物件数3000件以上、新築戸建、リノベ物件も多数ご用意しております!
過去に販売していたお部屋の概要 このお部屋の販売は終了いたしました。
| 面積 | 46.99㎡ |
| 間取り | 1bedroom(1LDK) |
| 管理費 | 月額18,880円 修繕積立金:月額4,720円 |
| 所在階 | 3階 |
| お問い合わせ・ご内見のご予約はこちらからお気軽にどうぞ | |
間取図はこちら。
角部屋の1LDK 46.99㎡ 家具家電付きのお部屋です。
玄関を入ると左側にトールタイプのシューズBOX。
扉には背の高い鏡が付いているので、お出かけ前のチェックはこちらで。
ゆったりとした玄関ホールからお部屋へ。
玄関を入りすぐ左側にサニタリールームがあります。
ドラム式洗濯乾燥機も付いています!
窓があり換気もばっちりですね!
大きな洗面ボウルが使いやすい洗面台。
シャンプードレッサータイプで蛇口が伸びます。
バスルームはアクセントパネルでまた違った印象です。
追焚きと浴室乾燥機ももちろん付いています。
サニタリールームのとなりはトイレ。独立しています。
突き当たりの独立したベッドルームへ。
窓もありますが、隣の建物が近いため換気程度でしょうか。。
柱の出っ張りがなく家具の配置がしやすそう。
クローゼットは横幅があり容量豊富です。
収納スペースがもう一つ。
本棚にしてみるのもいいかもしれません。
そしてこちらがLDK。
広々とした2面採光のお部屋で明るく、真っ白な色合いがさらに明るく広く感じます。
形も使いやすく、空間を邪魔するものがないので、お好きな家具の配置が楽しめそうです。
キッチンも壁付けタイプで広々とした空間を邪魔しません。
シンクの水栓は浄水器一体型&コンロは3口で、家事の効率が上がりそう。
冷蔵庫付いてきます。
横のスペースはレンジやオーブン、炊飯器などを置くスペースに重宝しそうですね。
バルコニーはLDKの1面にあり、眺望は望めませんが、目線はあまり気にならなそうです。
北西向きのリビングですが、真っ白な室内色と大きな開口部で暗さはあまり感じませんでした。
山手線『大塚』が徒歩3分の抜群の立地にあります、家具家電付き新規内装リノベーション住戸『ディアライフ大塚』いかがでしたでしょうか。
皆様のご内見、心よりお待ちしております!
過去に販売していたお部屋の概要 このお部屋の販売は終了いたしました。
| 価格 | -万円 |
| 面積 | 46.99㎡ |
| 間取り | 1bedroom(1LDK) |
| 管理費 | 月額18,880円 修繕積立金:月額4,720円 |
| 所在階 | 7階 |
| お問い合わせ・ご内見のご予約はこちらからお気軽にどうぞ | |
お部屋は7階。最上階ですよ!
ここで間取りのご紹介。46.99㎡、1LDK。
間取りは1LDKですが、玄関はファミリーサイズのお部屋並みにゆったりとして
います。シューズボックスも大容量。靴だけでなく、いろいろしまっておけそうです。
シューズボックスの扉は一部がミラーになっていますので、お出かけ前に靴まで
含めたトータルコーディネートがパッとチェックできます。結構靴がポイントだったり
しますもんね。お洋服って。
玄関の照明は人感センサー付。深夜のご帰宅でも、照明が自動でパッと点灯して
出迎えてくれます。荷物が多くて両手がふさがっているときなどにも便利便利。
約11.3帖のリビングダイニングキッチン。フローリングも建具もほぼホワイトで統一
され、明るい!おしゃれ!な空間です。家具家電つきでの販売ですよ!
フローリングを至近距離で撮ってみました。
エアコンが新規で一台取付されています。この時期、引越し当日から快適な
生活ができるって、かーなーりーありがたいですよね。
リビングにもクローゼットがあるので、コートや帽子、ワンマイルウェアなど収納できる
ほか、掃除機なども入れておけますね。
リビングからバルコニーに出られます。眺望は抜けている…というわけではないです
が、青空はたっぷりご覧いただけます♪
キッチンにはすでに冷蔵庫が!三菱電機製でした。キッチンもホワイトなので、
お野菜のビタミンカラーがよく映えそうです。シンクの水栓は浄水器一体型&コンロ
は3口で、家事の効率が上がりそう。
システムキッチンの上部には吊戸棚が設置されていました。耐震ラッチ付ですので
お気に入りの食器を安心してしまっておけます。
つづきましてサニタリーエリア。床はやはりホワイト基調・大理石模様のタイルが
爽やか、かつ清潔な印象です。
継ぎ目のない洗面ボウルがお手入れしやすそうな洗面化粧台。水栓は節水効果が
あるエコハンドルが採用されています。三面鏡裏はキャビネット収納になっており、
洗面台まわりに散らばりがちな小物類をすっきりと収納しておけます。ドライヤーも
すっぽりしまえるように設計されているのがうれしいところ。
ドラム式洗濯機どーーん!!パナソニックです。「ECONAVI」と書いてあります。
バスルームは一転、ブラックの壁面パネルがアーバンな雰囲気です。浴室換気
乾燥機が設置されていますので、その名の通り浴室の換気・乾燥はもちろんのこと、
梅雨の時期などに洗濯物を乾かしたり、入浴前にお部屋を暖めたりと、一年を通じて
活用していただけます。
トイレはもちろんウォシュレット付。上部には戸棚が設置されているので、生活感
がにじみ出がちな掃除用品・トイレットペーパーストックなどはこちらにすっきり
しまっておけます。
洋室もクールな佇まい。約5.6帖ありますが、ホワイト効果のためかもっと広く
見えます。クローゼットに加えて物入れも設置されていますので、お部屋をすっきり
と保てますね。
宜しければ動画もぜひぜひご覧ください!
YouTubeはこちら↓
https://www.youtube.com/watch?v=BSnxt8eVzXk
Dailymotionはこちら↓
http://www.dailymotion.com/video/x22klxz
「ディアライフ大塚」、いかがでしょうか?
皆様のご内見、心よりお待ちしております!


















































































































































































弊社 公式HP
六棒総合研究所
掲載予定物件
価格変更と販売終了物件
ハザードマップ検索
適合証明書.jp
Instagram