・
□□□□□□□□□□□□□□□□□□□□□□□□□□□□□□□□□□□□□□□
いつも弊社ホームページをご覧頂き誠にありがとうございます。
池袋シティハイツはお陰様で販売を終了致しました。弊社問合せフォームにてご要望頂けましたら、当お部屋でキャンセル等が発生した場合、他のお部屋が販売になりました際にご紹介させて頂きます。
不動産Agent 六棒株式会社
TEL:03‐5413‐5336
□□□□□□□□□□□□□□□□□□□□□□□□□□□□□□□□□□□□□□□
・
新宿・渋谷とならぶ山の手3大副都心の一つ、池袋エリアよりリノベーションマンション『池袋シティハイツ』のご紹介です。
☆アクセス
JR埼京線・山手線・湘南新宿ライン、西武池袋線、東武東上線、東京メトロ丸ノ内線・有楽町線・副都心線「池袋」駅徒歩9分
東京メトロ有楽町線「東池袋」駅徒歩5分
☆ライフインフォメーション
サンクス・・・約180m
豊島区役所・・・約260m
南池袋郵便局・・・約350m
肉のハナマサ・・・約450m
西武池袋本店・・・約600m
東急ハンズ・・・約650m
サンシャインシティ・・・約700m
TSUTAYA東池袋店・・・約700m
ご紹介する池袋シティハイツは8路線が乗り入れる池袋駅、有楽町線の東池袋駅の2駅が利用可能。どこへ行くにもアクセスはもちろん良好。
□□□□□□□□□□□□□□□□□□□□□□□□□□□□□□□□□□□□□□□
★★★【池袋シティハイツ】周辺のハザードマップをCHECK!!★★★
お部屋の記事を読む前に…!周辺のハザードマップをチェックしておきませんか!
池袋シティハイツのハザードマップは★こちらから…どうぞ★
□□□□□□□□□□□□□□□□□□□□□□□□□□□□□□□□□□□□□□□
ハザードマップもご確認いただきましたので、早速街をご紹介していきましょう!
駅周辺の西武、東武百貨店をはじめ、パルコ、ルミネ、丸井、サンシャインシティに映画館など池袋は商業施設が盛りだくさん。徒歩圏でショッピングが思う存分楽しめます。遠出しなくても地元で充実した時間が過ごせますね♪
池袋で一番活気があるといえばこちらのサンシャイン60通りではないでしょうか!?飲食店、ユニクロ、ゲームセンターなどなどが立ち並び昼夜問わずにぎわっています。
池袋シティハイツは平成1年築、地下1階付き地上10階建て、総世帯数39戸。
8路線が乗り入れる池袋駅が利用可と交通アクセスに恵まれた立地にあります。また徒歩圏でデパートやサンシャインシティなどの商業施設へ出かけられるのも魅力です♪
事務所の利用も可能となっています。
一階には内科、小児科のクリニックが入っています。
鍵のかかるゴミ置場、駐輪場には屋根が付いていました。
宅配BOXも完備されていますので留守が多い方でも安心です。
オートロックに加えて、日中は管理人さんがしっかり入口を守っています。
ここで間取り図のご紹介です。
※間取り図は別タブで開きますので、間取り図と記事や写真を照らし合わせながらご覧いただくことができます。
□□□□□□□□□□□□□□□□□□□□□□□□□□□□□□□□□□□□□□□
★★★【池袋シティハイツ】周辺のハザードマップをCHECK!!★★★
お部屋の記事を読む前に…!周辺のハザードマップをチェックしておきませんか!
池袋シティハイツのハザードマップは★こちらから…どうぞ★
□□□□□□□□□□□□□□□□□□□□□□□□□□□□□□□□□□□□□□□
お部屋は6階、間取りは1SLDK、専有面積は54.53㎡。1ベッドルームといっても、サービスルームも居室として十分使えるので実質2LDKになります。南西の角部屋なので日当たりも良好ですよ♪
早速行ってみましょう!
エレベーターホールにある扉を開けて、廊下へ進んで行きます。扉のデザインが素敵ですね![]()
共用廊下を中心にして、左右にアルコーブ付きで各住戸が配置されています。壁面の色と床の色のコントラストが良い感じです。玄関前だけ床材に大理石が採用されています。玄関扉にもデザインが施されており、雰囲気のある内廊下です。
それではお部屋の中をご案内して行きましょう!お邪魔します♪♪
ウォールナット調のフローリングと建具がクロスの白さを引き立てるインテリアです。
玄関を入って右手にはトール型のシューズボックスがあります。扉の片面が姿見となっており、お出かけの直前の身だしなみチェックができます!玄関に鏡があるのはとても便利です。シューズボックスは床から天井まであるので、2人分の靴でしたらすっかり収まりそうです。
玄関の照明は人感センサー付き。人の動きを感知して照明が点灯するので、夜など暗闇の中でスイッチを探す手間が省けます。消し忘れ防止にもなるので省エネにつながります。
玄関のタタキと廊下の間にはご覧の通り段差がありますが、靴を履くために腰掛けるにはちょうど良い高さです。
廊下をまっすぐ進み、突き当たりの扉を開けていきます!!
扉を開けるとそこは約11.5帖のリビングダイニングキッチンでした。角部屋なので2面採光でお部屋はとても明るいです。バルコニーは南向き、妻側の窓は西向きです。
キッチンが独立しているので、リビングダイニング空間はスッキリとして見えます。
天井にはあらかじめダウンライトが設置されており、天井もスッキリとしています。
6階なので、妻側の窓からの眺望は開けています。お隣の建物の屋上が見えますね!
リビングダイニングにはマルチクロークルームがあります。この空間、デスクを置いて書斎にしても良さそうだし、納戸として使えばかなりの量のものをしまっておくことができそうです。工夫次第で使い方が広がる場所ですね!
マルチクロークルーム側からリビングダイニングキッチンを眺めてみました。バルコニーの窓から木々の緑が見えます。
お次はキッチンをご案内します。
こちらがキッチンです。明るめの木目で統一されています。
コンロは3口魚焼きグリル付き。センサー付で自動で温度管理をしてくれます。揚げ物は揚げるものを油に入れる度に温度が変化してしまうので、コンロに温度管理を委ねられるのはとても楽です!
レンジフードは圧迫感を感じさせない配慮か、吊戸棚上部の梁型と同じに見えるような工夫がなされています。遠くから眺めてみるとその配慮が伝わってきますね!
キッチンキャビネット下部は全て引出し収納となっております。そして上部は独立型キッチンならではの吊戸棚も!!これだけの収納量があれば、キッチン雑貨から食器まで全て収納できてしまいそうです。
もちろん、楽家事の必須アイテム「食器洗浄乾燥機」も完備!
そして、キッチンの水栓は浄水器一体型。ワンタッチで浄水に切り替え可能なのでお料理にも活用できますよ![]()
さて、リビングダイニングに戻り、隣り合うお部屋の中をご案内します!
ドア、オープン!!!
こちらは約5.1帖の洋室です。コーナーサッシは開放感が違いますね!!
外の木々が借景となり、気持ちの良い眺めです。
お部屋の奥から出入り口を眺めるとこのような感じです。
コーナーサッシは一部開けることができます。通風・換気もバッチリです!
おや、あの引き戸の中は何があるのでしょうか??開けてみますよーー!!
なんと、かなりの広さのウォークインクローゼットでした!!枕棚とハンガーパイプ付きの内部に、お手持ちの収納家具等をお使いいただくことで、更に収納量アップできそうです!これは嬉しい広さです。
さて、廊下に戻りました。リビングダイニング側の最初にある扉の中は…
トイレでした。床と壁が柔らかいベージュの色調で統一されていることから、トイレの白が際立ち、とても清潔感があります。
トイレの便座はもちろん温水洗浄暖房便座。日本発のなくてはならない設備です![]()
上部には吊戸棚がありますので、こちらにトイレットペーパーのストックを収納していただくなど、便利にお使いいただけます。
続きまして、トイレの隣にある扉を開けてみましょう♪
こちらは洗面室です。コンパクトにまとまった洗面室は機能的にも優れものです。
洗面化粧台は三面鏡付き、鏡部分に照明が仕組まれていることで手元が暗くなりがちな洗面室でも、お化粧時の照度が確保可能です。
三面鏡の裏は全て収納となっております。
洗面化粧台のキャビネット下は引出し収納です。上段にはタオル掛けが設置されており、便利にお使いいただけます。
水栓は蛇口が引き出せるタイプです。シャワーに切り替え可能なので、真夏はこちらで朝からシャンプーもできちゃいますね![]()
洗面ボウルはシームレスでお掃除楽々です。
洗面化粧台の向かいには洗濯機置場があります。洗濯機置場上部には吊戸棚も!これがあるだけで洗濯用洗剤やハンガーもスッキリと収納できる、なんとも優れものなのです。
浴室は大理石調のパネルが採用されており、スッキリかつ高級感があります。
残念ながら追い炊き機能はありませんので、お風呂を溜める時はご自身でタイマーをかけることをお忘れなく!!
シャワーはスライドバーに設置されているため、高さの調整が可能です。座っていても立っていても、ちょうど良い位置に調整できます♪
シンプルなユニットバスには手摺りも設置済みです。
追い焚き機能はありませんが、浴室暖房換気乾燥機は設置されています。
梅雨時や冬の洗濯物が乾きにくい季節も、こちらを使えばすっかり乾燥できてしまいますね!
もう一つ、ご案内していないお部屋がありましたね!廊下にある引き戸のお部屋です。
こちらは約5.1帖のサービスルームです。窓がないので居室扱いになりませんが、スペース的には立派な居室ですね!
あらかじめダウンライトが設置されているので、外の光はないものの、明るさ的には申し分ありません。寝室としてお使いいただければ太陽光に睡眠を邪魔されることもなく、グッスリと眠れそうです。収納もたっぷりありますよ!!
再びリビングダイニングに戻ってきました。最後にバルコニーをご案内します。
こちらが約3.85㎡のバルコニーです。床にはモザイクタイルが貼られており、オシャレ感満載です。どことなくインダストリアルな雰囲気もありますね!
南東方向には建物がありますが、目線からは外れています。空と緑が臨めるなかなか良い眺めのバルコニーです。
西方向も目線の高さを遮る建物がないのが良いです!
以上で池袋シティハイツのご案内を終わります。
いかがでしたでしょうか??
池袋駅から徒歩9分のマンションです。
リノベーション済みという事で室内はとてもキレイですよ (っ・ω・)っ
内見のご予約やご質問などございましたらお気軽にお問い合わせくださいませ。
ご連絡お待ちしております。
□□□□□□□□□□□□□□□□□□□□□□□□□□□□□□□□□□□□□□□
★★★【池袋シティハイツ】周辺のハザードマップをCHECK!!★★★
お部屋のご購入前に…!周辺のハザードマップをチェックしておきませんか!
池袋シティハイツのハザードマップは★こちらから…どうぞ★
□□□□□□□□□□□□□□□□□□□□□□□□□□□□□□□□□□□□□□□
弊社、不動産Agent 六棒株式会社では、一般仲介物件は仲介手数料20%~30%OFF!
にてお取り扱いしております!
なるべく沢山のお部屋をホームページに掲載したいと思っておりますが、時間的成約もございますので、残念ながらご紹介できるお部屋の一部しか掲載できておりません。
このホームページに掲載中のお部屋、その他サイト等で気になるお部屋、街を歩いていて気になったマンション等々ございましたら是非、弊社営業部までご相談ください!
~不動産Agent 六棒株式会社の特徴~
・一般仲介物件の仲介手数料は20%~30%OFFにてご案内中です!
・住宅ローンに自信あります!
・頭金10万円より購入できます。是非ご相談下さい!
・お部屋のご見学は車で2~3件まとめて案内します!
・物件数3000件以上、新築戸建、リノベ物件も多数ご用意しております!
過去に販売していたお部屋の概要 このお部屋の販売は終了いたしました。
| 価格 | -万円 |
| 面積 | 54.53㎡ |
| 間取り | 1bedrooms(1SLDK) |
| 管理費 | 月額18,900円 修繕積立金:月額10,480円 その他:月額1,150円 |
| 所在階 | 5階 |
| お問い合わせ・ご内見のご予約はこちらからお気軽にどうぞ | |
ここで間取り図のご紹介です。
※間取り図は別タブで開きますので、間取り図と記事や写真を照らし合わせながらご覧いただくことができます。
□□□□□□□□□□□□□□□□□□□□□□□□□□□□□□□□□□□□□□□
★★★【池袋シティハイツ】周辺のハザードマップをCHECK!!★★★
お部屋の記事を読む前に…!周辺のハザードマップをチェックしておきませんか!
池袋シティハイツのハザードマップは★こちらから…どうぞ★
□□□□□□□□□□□□□□□□□□□□□□□□□□□□□□□□□□□□□□□
お部屋は5階、間取りは1SLDK、専有面積は54.53㎡。サービスルームも居室として十分使えますので実質2LDKですね。シングルの方から、お子様が小さければファミリーでもお使いいただけるお部屋です。
では早速行ってみましょう!
エレベーターホールにある扉を開けて、廊下へ進んで行きます。扉のデザインが素敵ですね![]()
共用廊下を中心にして、左右にアルコーブ付きで各住戸が配置されています。オレンジ系の壁面の色が、他のマンションにはなかなかない個性的な雰囲気を醸し出していますね!アルコーブ部分の床材にだけ大理石が採用されています。玄関扉にもデザインが施されており、雰囲気のある内廊下です。
では早速お部屋の中をご案内して行きましょう!お邪魔します♪♪
立派な上がり框がインパクトある玄関です![]()
玄関の照明は人感センサー付き。人の動きを感知して照明が点灯してくれるので、暗くなってからの帰宅時には暗闇の中スイッチを探す手間が省けて大変便利です。
写真をご覧いただくとお分かりになるかと思いますが、シューズボックスの扉には姿見も設置されていますよ!
シューズボックスはトール型。床かから天井まで全てシューズボックスで、収納量もかなりあります。棚板は可動式なので、ブーツやサンダルなど入れるものの高さに合わせて組み替えることが可能です。
それでは、廊下を進んで突き当たりのお部屋からご案内いたします!
ガラスのスリット入りの扉の先はリビングダイニングキッチンです。
窓の緑が印象的ですね!
天井にはあらかじめダウンライトが設置されています。照明がダウンライトだと、空間自体がスッキリとして見えますね。こちらのリビングダイニングキッチン、広さは約11.5帖です。
このお部屋、南西の角部屋なので2面採光となっております。
出窓からは隣接する建物が見えますが、それほど高い建物ではないので圧迫感はありません。
こちらのリビングダイニングにはマルチクロークと言う名のスペースがあります。奥行きのある空間にはデスクを置いてリモートワーク用のスペースにしたり、本棚を置いてファミリーライブラリーにしたり、納戸としても十分活躍できますし、入居後にどのようなスペースとして使おうか、考えるのも楽しみの一つになりそうです。
リビングダイニングの出入り口奥には独立したキッチンがあります。
こちらがそのキッチンです。明るい色の木目がキッチンを実際よりも広く見せてくれます。
キッチンのキャビネットは全て引出し収納となっております。
家事の時短に一役買ってくれる食器洗浄乾燥機も完備!
キッチン上部には吊戸棚もあり、引出し収納と合わせるとかなりの収納力がありますよ!レンジフードはキッチンに馴染むようにフード部分だけステンレス調、あとはキッチン上部の梁型と馴染むように配慮され、設置されています。
コンロは3口魚焼きグリル付き。コンロは温度調整可能なので、炊飯から揚げ物までなんでもお任せできてしまいます。
キッチンの水栓は浄水器一体型。ノズルも伸びてシンクのお掃除や大きなお野菜を洗う際には重宝します。
冷蔵庫はキッチンのシンクの隣に設置する設定のようです。
お次はリビングダイニングに隣あう居室の中をご案内していきますね!
こちらは約5.1帖の洋室です。コーナーサッシがあることで空間に広がりが生まれています。借景の緑も美しいですね!
こちらのコーナーサッシは一部開けることができるようになっています。通風に役立ってくれること間違いなしです。
お部屋の中に引き戸の空間があるようです。こちらの中は一体何なのでしょうか?!
おおっ!!大型のウォークインクローゼットでした。これだけの広さがあれば無敵です!!断捨離もあとまわしにして良さそうですね笑
再び廊下に戻ってきました。玄関を上がってすぐ左手にあるお部屋を見てみましょう!
引き戸の中は約5.1帖のサービスルームです。こちらは窓がなく採光が確保できないためサービスルーム表示となっておりますが、居室として使える十分な広さがあります。
寝室としてお使いいただくのがオススメですね!
お部屋にはクローゼットもあります。天井までしっかり高さのあるクローゼットは収納家具等を用いると収納量もかなりのものになるはず!
リビングダイニングに向かって右手にある扉の奥には…
トイレがあります。ベージュで統一された空間はとても落ち着いた雰囲気です。
トイレの便座は温水洗浄暖房便座が採用されています。そして上部には吊戸棚も。こちら2点はもはやトイレになくては困るアイテムかもしれません。
廊下に戻り、トイレの隣にある扉を開けてみましょう!こちらは洗面室でした。
コンパクトながら機能性十分な洗面化粧台の隣にはオープンなリネン庫があります。
これだけのリネン庫があれば、タオルや着替え等も置けてしまいますね!
洗面化粧台の水栓は蛇口が引き出せるタイプです。シャワーにも切り替え可能で便利にお使いいただけること間違いなしです。
三面鏡裏は全て収納となっているので、洗面周りの小物類はこちらに全て収納して空間をスッキリと保てそうです。
こちらが洗濯機置場です。上部には吊戸棚があり、洗濯洗剤やハンガーを収納するのに重宝します。

洗面室の奥は浴室となっております。大理石調のパネルを用いた高級感があるシンプルな浴室です。
ただ、ちょっと残念なご報告が…こちらの浴槽には追い焚き機能がありません…なのでシャワー派のあなたに激しくオススメします!追い焚きはできませんが湯船に浸かることはもちろん可能ですよ!
シャワーヘッドはスライドバーに設置されており、高さ調整が可能です。
一人でスッポリと浸かるのにちょうど良さそうな浴槽。シンプルなデザインでお掃除も楽々です。
追い焚き機能はありませんが、浴室暖房歓喜乾燥機が設置されています。寒い冬の浴室も暖房機能を使えば浴室内を温めてから入浴可能です。
最後にバルコニーをご案内します!
こちらが約3.85㎡のバルコニーです。床にモザイクタイルが貼ってあるバルコニーはとても珍しいかもしれません。
バルコニーの正面には大きな木があります。バルコニーから緑が見えるだけで、マイナスイオンを感じられる気がします。
木の左右は建物がありますが、目線以下なので抜けています。晴れた日には青い空を眺めることができますよ![]()
以上で池袋シティハイツのご案内を終わります。
いかがでしたでしょうか??
池袋駅から徒歩9分のマンションです。
リノベーション済みという事で室内はとてもキレイですよ (っ・ω・)っ
内見のご予約やご質問などございましたらお気軽にお問い合わせくださいませ。
ご連絡お待ちしております。
□□□□□□□□□□□□□□□□□□□□□□□□□□□□□□□□□□□□□□□
★★★【池袋シティハイツ】周辺のハザードマップをCHECK!!★★★
お部屋のご購入前に…!周辺のハザードマップをチェックしておきませんか!
池袋シティハイツのハザードマップは★こちらから…どうぞ★
□□□□□□□□□□□□□□□□□□□□□□□□□□□□□□□□□□□□□□□
弊社、不動産Agent 六棒株式会社では、一般仲介物件は仲介手数料20%~30%OFF!
にてお取り扱いしております!
なるべく沢山のお部屋をホームページに掲載したいと思っておりますが、時間的成約もございますので、残念ながらご紹介できるお部屋の一部しか掲載できておりません。
このホームページに掲載中のお部屋、その他サイト等で気になるお部屋、街を歩いていて気になったマンション等々ございましたら是非、弊社営業部までご相談ください!
~不動産Agent 六棒株式会社の特徴~
・一般仲介物件の仲介手数料は20%~30%OFFにてご案内中です!
・住宅ローンに自信あります!
・頭金10万円より購入できます。是非ご相談下さい!
・お部屋のご見学は車で2~3件まとめて案内します!
・物件数3000件以上、新築戸建、リノベ物件も多数ご用意しております!
過去に販売していたお部屋の概要 このお部屋の販売は終了いたしました。
| 価格 | -万円 |
| 面積 | 134.27㎡ |
| 間取り | 4bedroom(4SLDK) |
| 管理費 | 月額46,800円 修繕積立金:月額25,910円 |
| 所在階 | 8階 |
| お問い合わせ・ご内見のご予約はこちらからお気軽にどうぞ | |
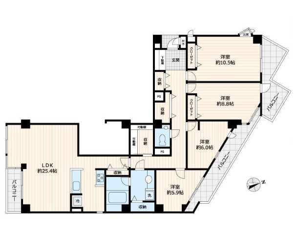
間取り図をご紹介いたします。
間取り図は別タブで開きますので、ご覧になりながらがお勧めです。
今回のお部屋は8階、間取りは4SLDK、専有面積は134.27㎡となっております。
広いお部屋ですね、迷子にならないように気を付けます(笑)
□□□□□□□□□□□□□□□□□□□□□□□□□□□□□□□□□□□□□□□
★★★【池袋シティハイツ】周辺のハザードマップをCHECK!!★★★
お部屋の記事を読む前に…!周辺のハザードマップをチェックしておきませんか!
池袋シティハイツのハザードマップは★こちらから…どうぞ★
□□□□□□□□□□□□□□□□□□□□□□□□□□□□□□□□□□□□□□□
それでは行ってみましょう。
エレベーターを降りると外廊下というよりホールのようになっていました。この階には2部屋だけのようです。
玄関はアルコーブの奥にありました。
ダブルロックとカメラ付きインターホンが、玄関をしっかり守ってくれています。
では、お邪魔します…
落ち着いていて上品な雰囲気ですね。ゆったりとしていて廊下だけでもお部屋の広さが伝わってきます。
振り返って玄関内の様子です。
アクセントウォールが雰囲気によく合っていますね。
人感センサーがありますのでいつも明るい玄関が迎えてくれます。
トールタイプのシューズボックスが二つ、隣には収納がありました。いつもですと収納力が…とか言う所ですが、これだけ広いお部屋ですとそればっかりになってしまいそうなので、今回は止めておきます(笑)
廊下の途中には大きな収納が…フリーのスペースですので大きな物を置いても、収納棚などを置いて使ってもいいですね。
廊下は突き当りからさらに右に伸びていました。(写真では右が玄関です)
右に曲がって廊下を進み、右側の引き戸を開けると収納庫となっていました。4帖くらいありますかね。中の棚板は調整可能となっていました。
では、突き当りの光が漏れているドアを開けてみましょう。
こちらが約25.4帖のリビング・ダイニング・キッチンとなります。
お部屋の幅いっぱいの窓からは明るい光が差し込んでいますね。お部屋自体はナチュラル系かと思いますが、家具の影響かシャープな雰囲気になっています。ちなみに家具は全て付いてくるそうですよ。
4人掛けのダイニングテーブルが小さく見えますね(^^)
こちらから見るとアクセントウォールがかなり主張しています。シャープでモダンな印象はこちらの影響もあるんですね。
窓際には物干し竿が設置出来るようになっていました。取り外す事が出来ますので使わない時は外しておきましょう。
ではキッチンを見ていきましょう。
調理台はコンロ部分と水周りの二つに分かれています。
シンク横の作業台が広いとお料理の効率が全然違いますよね。思いきり広げられる贅沢、味わってみたいものです(笑)
収納もこの通り。
コンロは三口、片面焼きグリルがついています。
コンロが3つもあればさらに効率アップですね。
食洗機も完備されていますので、食後の洗い物はお任せしてみんなでゆっくりしちゃいましょう。
水栓は浄水機能付きシャワー水栓となっています。
ヘッドが伸びてシンクを流したりに便利ですよ。
キッチンの奥には小さな窓も付いていました。小さくても換気に一役買ってくれると思いますよ。換気扇と併せて利用しましょう。
キッチンからの眺めです。
ここからの眺めって好きなんですよね(^^)なんか幸せな気分になりません?
では、一度廊下に戻ってみましょう。
その前に…リビング入口に収納がありました。
キッチンも近いので食料のストックなどが良さそうですね。
では改めて廊下に…
出てすぐ右のドアを開けてみます。
洗面室となります。
白を基調とした清潔感のある洗面台ですね。
水栓はハンドシャワータイプですので朝のシャンプーなどはこちらでどうぞ。洗面ボウルが大きいので水跳ねも心配ありません。
ランドリーボックスなども初めから備わっているのは嬉しいですね。隣が洗濯機スペースですのでここから直に洗濯機に入れられますよ。
では浴室を見ていきます。
追い焚き機能がありますのでいつでも温かいお風呂に入れます。お風呂はご自分のタイミングで入りたいですよね。
浴室内モニターがありました。ついつい長風呂になってしまいそうですね。のぼせないように気を付けましょう。
浴室換気乾燥機は浴室のカビ予防だけでなく、お洗濯物乾燥やヒートショック予防などに利用できます。涼風というボタンがありますが、残念ながら冷房ではなく扇風機みたいなものらしいですよ^^;
では次へ…
トイレとなります。
もちろんウォシュレットが完備されています。
今の時代、無しでは困ると言う方も多いと思います。TOTOさんありがとうございます。
トイレ内に洗面台があります。ワンランク上のおトイレって感じがしますね。
では次のお部屋へ…
玄関から見て廊下の突き当りのドアになります。
こちらが約5.9帖の洋室となります。
台形のお部屋になりますが、バルコニーに面した大きな窓で明るいお部屋となっています。奥にはオープンクローゼットがありました。
バルコニーに出てみました。
奥行きもありとても幅の広いバルコニーになってます。間取り図によると3部屋にまたがってますのでこの幅も納得です。一番奥が3部屋目になると思いますが、操縦席の様な不思議な窓があって気になりました。後で中から見てみましょう、楽しみです。
広方角的には北東にあたります。8階ということで眺望は良好ですね。
ではお隣のお部屋へ…
こちらが約6帖の洋室となります。
こちらも台形のお部屋で斜めの部分に窓が並んでいました。大きい方からバルコニーに出られるようです。
収納はオープンのシステム収納になっていました。
では次のお部屋へ行ってみましょう。
こちらが約8.8帖の洋室となります。
これが先程の窓ですね!中から見るといっそう操縦席感が強くなります(笑)右側の窓が斜め上を向いているからだと思うのですが、そのおかげでとても明るいですよ。
バルコニーもついていますが、高所恐怖症の私には厳しいバルコニーでした^^;
このお部屋の収納はクローゼットでした。間口が広くて使いやすそうです。
では次のお部屋へ…
こちらが約10.5帖の洋室となります。
洋室としては一番広い、唯一真四角のお部屋ですね。二方向に窓があって大きい窓からはバルコニーに出る事が出来ます。
三角形のバルコニーになります。避難はしごはここにありますので緊急時にはこのお部屋に向かいましょう。
収納はクローゼット、前のお部屋と同じく間口の広いタイプです。
小さい方の窓は出窓になっていて、押して開けるタイプの窓でした。ちなみに、こういった開き方の窓を「たてすべり出し窓」と言うらしいですよ。押し開いた窓が風を受けてくれて風が入りやすくなるそうです。
それでは、最後にリビングに面したバルコニーへ出てみましょう。
幅は普通ですが、奥行きがあってゆったりとしたバルコニーとなっています。この日はお天気が悪く確認出来ませんでしたが、方角的には南向きですので陽当りも良好だと思いますよ。
正面の眺望、素晴らしいですね♬
緑も多くて先程までいた池袋の雑踏が嘘のようです。
いかがでしたでしょうか??
池袋駅から徒歩9分のマンションです。
リノベーション済みという事で室内はとてもキレイですよ (っ・ω・)っ
内見のご予約やご質問などございましたらお気軽にお問い合わせくださいませ。
ご連絡お待ちしております。
□□□□□□□□□□□□□□□□□□□□□□□□□□□□□□□□□□□□□□□
★★★【池袋シティハイツ】周辺のハザードマップをCHECK!!★★★
お部屋のご購入前に…!周辺のハザードマップをチェックしておきませんか!
池袋シティハイツのハザードマップは★こちらから…どうぞ★
□□□□□□□□□□□□□□□□□□□□□□□□□□□□□□□□□□□□□□□
弊社、不動産Agent 六棒株式会社では、
□リノベーションマンションはほぼ全て仲介手数料無料!
□その他一般仲介物件は仲介手数料20%~30%OFF!
にてお取り扱いしております!※弊社の「Agent Fee=仲介手数料」についてはご案内、ご面談の際に営業担当者よりご説明いたします!
なるべく沢山のお部屋をホームページに掲載したいと思っておりますが、時間的成約もございますので、残念ながらご紹介できるお部屋の一部しか掲載できておりません。
このホームページに掲載中のお部屋、その他サイト等で気になるお部屋、街を歩いていて気になったマンション等々ございましたら是非、弊社営業部までご相談ください!
~不動産Agent 六棒株式会社の特徴~
・一般仲介物件の仲介手数料は20%~30%OFFにてご案内中です!
・リノベーションマンションについてはほぼ全て仲介手数料無料です!
・住宅ローンに自信あります!
・頭金10万円より購入できます。是非ご相談下さい!
・お部屋のご見学は車で2~3件まとめて案内します!
・物件数3000件以上、新築戸建、リノベ物件も多数ご用意しております!
過去に販売していたお部屋の概要 このお部屋の販売は終了いたしました。
| 価格 | -万円 |
| 面積 | 53.63㎡ |
| 間取り | 1bedrooms(1LDK) |
| 管理費 | 月額18,600円 修繕積立金:月額10,310円 |
| 所在階 | 4階 |
| お問い合わせ・ご内見のご予約はこちらからお気軽にどうぞ | |
間取りのご紹介です。1LDK、専有面積は53.63㎡。
4階、南向きにつき陽当り良好なお部屋です。
室内は只今リノベーション工事中!
一足先に充実のリノベーション内容と完成イメージパースをご紹介いたします。
【リノベーション内容】
■キッチン・・・LIXIL製システムキッチン(食洗機付)
■浴室・・・パナソニック製ユニットバス(浴室乾燥機)
■洗面・・・・パナソニック製洗面台
■トイレ・・・LIXIL製シャワートイレ
■床・・・パナソニック製フローリング
■建具・・・パナソニック製内装ドア
■照明・・・LEDダウンライト/LEDシーリングライト
■その他・・・追焚管新規(専有部)、給湯器(追い焚き機能付き)、全クロス張替え、、アクセントクロス、エコカラット、ハウスクリーニング
■アフターサービス保証付
【内装工事終了予定:2016年1月下旬】
完成イメージです。
キッチンにはダイニングテーブル代わりに使えるカウンターが設置されており、その分リビングスペースを有効的にご利用いただけます。
室内は食洗器、追焚機能、浴室乾燥機など快適な生活をサポートしてくれる設備が充実。収納スペースも豊富です。
工事中のご紹介も可能です。
ご内見のご希望・ご質問などございましたら、お気軽にお問い合わせくださいませ♪










































































































































































































































