□□□□□□□□□□□□□□□□□□□□□□□□□□□□□□□□□□□□□□□
いつも弊社ホームページをご覧頂き誠にありがとうございます。
ラルジュ南大塚はお陰様で販売を終了致しました。弊社問合せフォームにてご要望頂けましたら、当お部屋でキャンセル等が発生した場合、他のお部屋が販売になりました際にご紹介させて頂きます。
弊社では、仲介手数料無料orお値引(50%off、30%off、20%off)にて皆様のマイホーム探しのお手伝いをさせて頂きいております。ラルジュ南大塚の類似物件や、お探しのご条件等をお聞かせ頂けましたらご条件に合ったお部屋をご紹介させて頂きます。また、ご来社頂き一緒に探させて頂くことも可能ですので、是非弊社問合せフォームよりお気軽にお問合せください。
不動産Agent 六棒株式会社
TEL:03‐5413‐5336
□□□□□□□□□□□□□□□□□□□□□□□□□□□□□□□□□□□□□□□
大塚駅徒歩3分、『ラルジュ南大塚』のご紹介です!
☆アクセス
JR山手線「大塚」駅徒歩3分
都電荒川線「大塚駅前」駅徒歩3分
東京メトロ丸ノ内線「新大塚」駅徒歩8分
JR山手線・都営三田線「巣鴨」駅徒歩10分
☆ライフインフォメーション
ファミリーマート・・・徒歩2分
サンクス・・・徒歩2分
タサキ薬局・・・徒歩5分
豊島南大塚郵便局・・・徒歩2分
豊島区立巣鴨図書館・・・徒歩9分
ラルジュ南大塚は昭和56年築、5階建て、総世帯数15戸と比較的小規模なマンションです。JR大塚駅が徒歩3分の他、地下鉄の駅も徒歩10分圏内で利用可能。
通勤に便利です。
エントランスは安心のオートロック。
平成123年に外装改修工事実施済みとなっています。
細則がありますがペットの飼育も可能です。
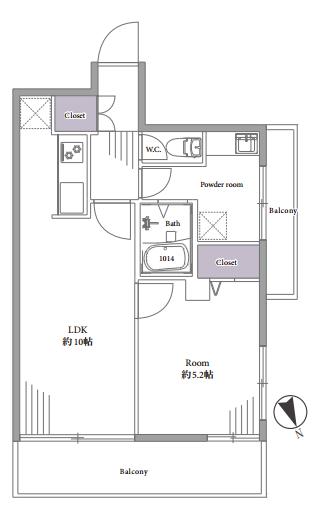
間取りのご紹介です。1LDK、専有面積は40.99㎡。
バルコニーは2面についています。
室内は平成24年にフルリフォームをおこなっていますが、今回新たに以下のリフォームをおこなっています。
【リフォーム内容】
■キッチン・・・浄水器付水栓金具交換、ガスコンロ部品交換
■浴室・・・浴室水栓器具交換
■その他・・・壁・天井クロス貼替、フロアタイル貼替、蛍光灯交換、エアコン内部洗浄、ハウスクリーニング
【内装工事終了予定:2015年12月下旬】
ご内見のご希望・ご質問などございましたら、お気軽にお問い合わせくださいませ♪









弊社 公式HP
六棒総合研究所
掲載予定物件
価格変更と販売終了物件
ハザードマップ検索
適合証明書.jp
Instagram