□□□□□□□□□□□□□□□□□□□□□□□□□□□□□□□□□□□□□□□
いつも弊社ホームページをご覧頂き誠にありがとうございます。
目白ハイツはお陰様で販売を終了致しました。弊社問合せフォームにてご要望頂けましたら、当お部屋でキャンセル等が発生した場合、他のお部屋が販売になりました際にご紹介させて頂きます。
弊社では、仲介手数料無料orお値引(50%off、30%off、20%off)にて皆様のマイホーム探しのお手伝いをさせて頂きいております。目白ハイツの類似物件や、お探しのご条件等をお聞かせ頂けましたらご条件に合ったお部屋をご紹介させて頂きます。また、ご来社頂き一緒に探させて頂くことも可能ですので、是非弊社問合せフォームよりお気軽にお問合せください。
不動産Agent 六棒株式会社
TEL:03‐5413‐5336
□□□□□□□□□□□□□□□□□□□□□□□□□□□□□□□□□□□□□□□
JR山手線・東京メトロ東西線・西武新宿線『高田馬場』徒歩6分のハイグレード家具付き住戸、『目白ハイツ』のご紹介です。
JR山手線『目白』駅も徒歩8分で利用可能。
『高田馬場』駅からマンションへ向かいます。
駅周辺には、複合商業施設「BIGBOX」。
飲食店をはじめ雑貨屋・スポーツクラブ・ゴルフレンジ、ボーリング場など多数のお店があります。
他にもドン・キホーテなどもありました。
飲食店や居酒屋さんが多く、ぎやかな街並みが目立ちますが、マンションから徒歩5分圏内にはスーパーも数店舗、コンビニ、郵便局もあり、生活も便利です。
早稲田通りを渡り新目白通りまでまっすぐ進みます。
スーパー・コンビニなどは多くあります。マンション近くのY’sマートは24hで大変便利。
新目白通りを渡ればあと少し。
到着です。
『目白ハイツ』
昭和48年築、総戸数58戸、10階建て。
エントランスは改修済みでキレイになっています。
自動ドアなので出入りもスムーズ。夜間はオートロックで安心です。
広々としたエントランスホールもキレイに管理されています。
右側にメールBOX、左側に管理室があり、その奥にエレベーターホールがあります。
リニューアル済みのエレベーターでお部屋へ向かいます。
間取りのご紹介です。2LDK、専有面積は58.11㎡。
北西角部屋、陽当たり・眺望ともに良好なお部屋です。
広々とした玄関ホール。
左に曲がり廊下になっているためお部屋の中が見えづらくプライバシーが守られます。
玄関右側の壁にはトールタイプのシューズBOXがあり可動棚で高さ調整可能です。
長い廊下が続き、ランドリースペースが廊下の左側に設置されています。
隣はトイレ。もちろんウォシュレットタイプです。
吊戸棚も設置させています。
その隣はサニタリールームです。
バスと洗面台のみのシンプルな造りですがしっかりスペースは確保されています。
洗面台はボウルが大きく使いやすく、シャンプードレッサーと鏡裏の収納スペースなど機能的です。
ホワイト基調で清潔感のあるTOTO製のバスルーム。
追炊き・浴室乾燥機ももちろん付いています。
最初の独立した洋室へ!
5.2帖の洋室。
北向きですが窓があり明るい室内色で暗さは感じません。
柱のでっぱりがなく家具の配置がしやすそうです。
こちらのお部屋には容量十分なウォークインクローゼットが設置されています。
廊下の突き当りのドアはLDKです。
入ってすぐ右側、独立した位置にキッチンがあります。
3.3帖と広々しており冷蔵庫以外にも食器棚なども置けそうなスペースがあります。
人口大理石トップのキッチンは3口ガスコンロ、グリル、浄水器一体型水栓など付いていて収納棚も豊富にあります。
窓があり明るく、空気が籠りがちな独立キッチンですが換気もバッチリ!
そしてリビングダイニング。西向きのお部屋です。
9.0帖のリビングダイニングですが形がよく、キッチンが独立しているので広く感じます。
こちらは隣の間仕切りで仕切られた5.5帖の洋室。
こちらも西向きのお部屋です。
間口が大きく、引き戸を開けて約14.5帖の広々としたお部屋としてもお使いになれます。
採光も遮られず明るいですね!
こちらのお部屋は全室に二重サッシになっています。
西向きのバルコニーは4.92㎡。
バルコニーからの眺望は正面に高い建物がなく抜けています。
JRの線路が近いですが、全室二重サッシになっているため窓を閉めれば騒音はあまり気になりません。
山手線の内側、駅も近く利便性の高い『目白ハイツ』はいかがでしたでしょうか。
ご内見のご希望・ご質問などございましたら、お気軽にお問い合わせくださいませ♪
過去に販売していたお部屋の概要 このお部屋の販売は終了いたしました。
| 価格 | -万円 |
| 面積 | 52.87㎡ |
| 間取り | 2bedrooms(2SDK) |
| 管理費 | 月額:9,920円 修繕積立金:8,060円 |
| 所在階 | 3階 |
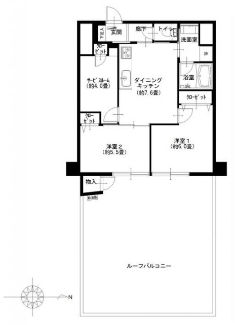
間取りのご紹介です。2SDK、52.87㎡。
47.04㎡の広々としたルーフバルコニー付きのお部屋です。
インターホンは来訪者の顔が確認できるTVモニター付き。安心安全な暮らしをサポートしてくれます。
玄関扉をあけると目の前はニッチ。扉をあけてもお部屋の中が丸見えにならずプライバシーが気になる方も安心です。
玄関に設置されたシューズBOXはトールサイズで収納力◎。
表扉の半分には縦長のミラーがついているのでお出かけ前の身だしなみチェックもサッと済ませられます。
玄関をあがるとコンパクトな廊下があり、トイレとダイニングキッチンの扉が並んでいます。
トイレはウォシュレット付き。ペーパーや掃除用具は上の棚へ入れておけば足元もスッキリ。
採光部のある扉をあけてダイニングキッチンへ。
ダイニングキッチンは約7.6帖。ちょうどお部屋の中心にあり、ダイニングキッチンから洋室、サービスルーム、洗面室へ行けるようになっています。ご飯時は家族も集まりやすいですね!室内に設置された家具もついてきます。
ダイニングキッチン壁面には調湿、消臭効果のあるエコカラットがつかわれています。
生活臭もこれで軽減するハズ・・・。
キッチンは浄水機能付き水栓、3口コンロ、食洗機、収納たっぷりと機能的。食洗機があれば食後ゆっくり家族と過ごす時間も増えるかも。
ダイニングキッチン内から洗面室へ。脱衣スペースを囲むように洗面化粧台、洗濯機置場、バスルームが並んでいます。
鏡の裏、引き出しと収納たっぷりな洗面化粧台。蛇口は引っぱるとシャワーになるので花瓶の水入れや洗面ボウルのお掃除もラクに行えます。
バスルームは追い焚き、浴室換気乾燥機能付き。
雨の日や花粉の気になる季節も乾燥機があればお洗濯物も安心です。
つづいてダイニングキッチン内からサービスルームと洋室へ。
サービスルームは約4.0帖。窓はありませんがエアコンが設置できるよう配管が通してあります。
サービスルームはクローゼットと棚付きの収納スペースと収納も豊富です。
洋室約6.0帖。 ダブルベッドを置いてもゆとりがあります。
こちらの洋室にはワイドクローゼットとピクチャーレールが設置されています。
飾る絵や写真でお部屋の雰囲気も手軽に変えられそうです。
2枚の引き戸の奥は約5.5帖の洋室。
ダイニングキッチンとつなげてリビングスペースとして利用してもよさそうです。
収納もついています。
洋室の扉を開けるとダイニングキッチン内も一段と明るくなりました。
最後に洋室2部屋に面した広々ルーフバルコニーに出てみます。
47.04㎡、東向き。陽当たりもご覧のとおり良好です。
お天気がいい日はお洗濯からお布団干しまで、まとめてこなせます。
眺望です。まわりはマンションで囲まれていますが、上を見上げれば空も広く見えて快適です。
広いルーフバルコニー付きのお部屋、いかがでしたでしょうか?
ご内見のご希望・ご質問などございましたら、お気軽にお問い合わせくださいませ♪
過去に販売していたお部屋の概要 このお部屋の販売は終了いたしました。
| 価格 | -万円 |
| 面積 | 52.87㎡ |
| 間取り | 2bedrooms(2SDK) |
| 管理費 | 月額:9,920円 修繕積立金:月額8,060円 |
| 所在階 | 8階 |
間取り図はこちら。
東向きの2SDK 52.87㎡
ハイグレードな家具付きのお部屋です。
玄関を入ると左側へ廊下が伸びていて、お部屋の中が丸見えにならずプライバシーが守られます。
玄関右側にトールタイプのシューズBOX、可動棚で高さ調節可能です。
正面にはニッチ。オブジェのディスプレイなどにお使い下さい。
玄関廊下の突き当たりはトイレ。
吊戸棚も設置されていますので、備品のストックなどに重宝します。
ダイニングキッチンへ!
7.2帖のダイニングキッチン。
ダイニングキッチンに入りすぐ右側に壁付けタイプのキッチンがあります。
設備は3口ガスコンロ、グリルと浄水器一体型水栓、食洗機も付いていて大変便利!
隣の洋室との開口部が広く、明るい日差しが差し込みます。
こちらの壁にもエコカラットは貼られていて、空気環境が快適に保たれます。
サニタリールームはダイニングキッチンから入る配置になっています。
洗面台はボウルも大きく、使いやすいシャンプードレッサータイプ。
ホワイト基調の清潔感のあるバスルーム。
追焚き・浴室乾燥機はもちろん付いていて、シャワーフックはスライドタイプでお好きな位置で使用できます!
キッチン横からサービスルームへ!
こちらは4.0帖のサービスルーム。
採光のないお部屋ですが、柱の出っ張りがなく家具の配置がしやすいお部屋です。
可動棚の収納スペースもあります。
子供部屋としても、書斎などとしてもお使いできそうです。
ダイニングキッチンと引き戸で仕切られたお部屋。
東向きで日当たり良好な5.5帖のお部屋です。
リビングとしてもお使いになれます。
こちらのお部屋には奥行きのあるクローゼットがあります。
続いて6.3帖のベッドルームへ!
2面採光のベッドルームで大変明るい部屋です。
クローゼットは入ってすぐ、左側の使いやすい位置にあります。
奥行もあり十分な容量があります。
明るい日差しが差し込む東向きのバルコニーは6.24㎡。
2つのベッドルームから出入りが可能です。
正面に高い建物がなく開放感のある眺望です!
とにかく便利なところで生活したい方&忙しい方、室内設備充実・高田馬場徒歩圏のこちらのお部屋オススメです。
お問い合わせはお気軽にどうぞ!
過去に販売していたお部屋の概要 このお部屋の販売は終了いたしました。
| 価格 | -万円 |
| 面積 | 52.87㎡ |
| 間取り | 2bedrooms(2SDK) |
| 管理費 | 月額:9,920円 修繕積立金:月額8,060円 |
| 所在階 | 8階 |
間取図はこちら。
南東向き角部屋、2SDK、52.87㎡。
全室エアコン設置済みの家具付き住戸です!
玄関を入ると左側にトールタイプのシューズBOX、右側にはエコカラットは設置されています。
最初の扉はサニタリールーム。
バス・トイレ・洗面台とすべてまとまって配置さてれいますが、空間は広々しています。
洗面台は使いやすいシャンプードレッサータイプ。
可動棚の収納もあり、タオルや日用品の収納に重宝しそうです。
清潔感のあるホワイト基調のバスルーム。
追焚き。浴室乾燥機ももちろん付いています。
最初のお部屋へ!
こちらは4.0帖のサービスルームですが、十分お部屋として使えます。
クローゼットももちろんあります。
窓はありませんが、子供部屋や書斎などにも良いかもしれません。
廊下の突き当たりはダイニングキッチンです。
7.3帖のダイニングキッチン。
隣の洋室との開口部が広く、明るい日差しが差し込みます。
こちらにも可動棚の収納があり、容量もたっぷりです。高さ調節可能で背の高い物の収納にも困りません。
こちらの壁にもエコカラットは貼られていて、空気環境が快適に保たれます。
キッチンは壁付けタイプでダイニングが広く使えます。
設備は3口ガスコンロ、浄水器一体型水栓、食洗機も付いていて充実しています。
ダイニングの隣は4.5帖の洋室。
南東向きで2面採光の大変明るいお部屋です。
間仕切りを開けてLDKとしてもお使いになれます。
続いて隣の洋室へ。
こちらのお部屋は6.1帖で東向きのお部屋です。
容量十分なウォークインクローゼットがあります。
バルコニーはL字で12.54㎡と広々としています。
こちらは東側に面したバルコニーで洋室2部屋から出れます。
東側のバルコニーからの眺望です。高い建物が少なく抜けています!
L字に曲がり南側のバルコニー。
南側も高い建物がなく遠くまで見渡せます!
とにかく便利なところで生活したい方&忙しい方、室内設備充実・高田馬場徒歩圏のこちらのお部屋オススメです。



































































































































