□□□□□□□□□□□□□□□□□□□□□□□□□□□□□□□□□□□□□□□
いつも弊社ホームページをご覧頂き誠にありがとうございます。
サンサーラ池袋はお陰様で販売を終了致しました。弊社問合せフォームにてご要望頂けましたら、当お部屋でキャンセル等が発生した場合、他のお部屋が販売になりました際にご紹介させて頂きます。
弊社では、仲介手数料無料orお値引(50%off、30%off、20%off)にて皆様のマイホーム探しのお手伝いをさせて頂きいております。サンサーラ池袋の類似物件や、お探しのご条件等をお聞かせ頂けましたらご条件に合ったお部屋をご紹介させて頂きます。また、ご来社頂き一緒に探させて頂くことも可能ですので、是非弊社問合せフォームよりお気軽にお問合せください。
不動産Agent 六棒株式会社
TEL:03‐5413‐5336
□□□□□□□□□□□□□□□□□□□□□□□□□□□□□□□□□□□□□□□
新宿・渋谷とならぶ山の手3大副都心の一つ、池袋エリアよりリノベーションマンション『サンサーラ池袋』のご紹介です!駅から少し離れている分、静かな環境です。
アクセス
JR山手線・埼京線・湘南新宿ライン・西武池袋線・東武東上線・東京メトロ丸ノ内線・有楽町線・副都心線「池袋」駅徒歩12分
東武東上線「北池袋」駅徒歩7分
新宿につぐ利用者数がある池袋駅。(ウィキペディア調べ)なんと8路線も乗り入れています。どこへ行くにもアクセスはもちろん良好。
駅周辺には多くのデパートや百貨店が立ち並んでいます。
西武、パルコ、東武にルミネなどなど!ビッグカメラやヤマダ電機もあり、お買い物場所に困ることはありません。デパートが徒歩で来れる環境ってなかなか貴重です。
こちらはサンシャイン60通り。池袋周辺で一番活気のあるスポットではないでしょうか!?飲食店、ユニクロ、ゲームセンターなどなどが立ち並び昼夜問わずにぎわっています。
ショッピングやグルメはもちろん、水族館、展望台、劇場、ナンジャタウン、プラネタリウムも入っているサンシャインシティも徒歩圏。家族で一緒に遊びにくるのにいいですね!1日楽しめます。
サンサーラ池袋は昭和56年築、4階建て、総世帯数14戸。
外観はタイル貼り。
階段を数段降りた先にエントランス。
池袋駅から少し離れているので周囲は静かな住宅街です。
マンションを囲む植栽もよく手入れが行き届いています。
オートロックを解除して中へ。
エレベーターはありません。階段でお部屋へ!
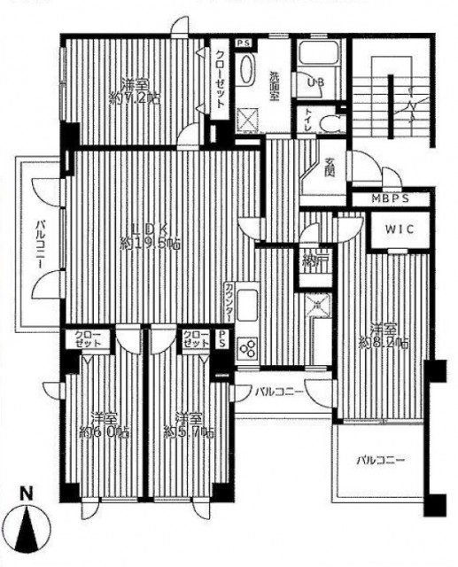
こちらが今回ご紹介させて頂くお部屋の間取りです。
4LDK、99.76㎡。2階。です!
当物件のリノベーション内容をご紹介いたします!
・システムキッチン(食洗器付) ・トイレ
・洗面台 ・給湯器 ・ユニットバス(浴室乾燥機付)
・建具 ・クローゼット ・下駄箱
・フローリング ・天井クロス新規張替
・照明器具 ・給水、給湯管新規交換
・クリーニング 他
さっそく中へ入っていきましょう!
おじゃましまーーーす!!
突然ですが、玄関にある段差なんていう名前か知っていますか?
たぶん知らないと思うので答えを言うと「上り框(かまち)」っていうんですよ!!
少しだけ物知りになりましたね!!
という事で、さっそく物件のご紹介を始めたいと思います。
先ずは玄関からですね。広々とした玄関の照明には人感センサーが付いています。切り忘れることがないので経済的、深夜のトイレでも真っ暗なところを歩くことも無くなります。
今回の物件は広いのでサクサク進んでいきますよ!!
こちらはリビング・ダイニング・キッチンです。
約19.8帖という、とてつもない広さです。
ボーリングが出来ちゃいそうな印象です(出来ないんですけどね)
カーリングならギリギリできるかもしれません(出来ないんですけどね)
セーリングならあるいは(出来ないんですけどね)
シーリングライトも2つ、大きな窓も付いているのでとても明るいお部屋ですよ
リビングに関しては特に説明不要ですね。
雑な言い方をすれば、「写真の通り!!以上!!」
そのままキッチンへ
コンロはグリル付きの3口と十分すぎる設備が揃っています。グリルは表面をこんがり香ばしく焼き上げながら包み込むように加熱するので、旨みをぎゅっと閉じ込めながらすばやく火を通し、お肉料理も柔らかく仕上げることができます。
浄水機能付きの水栓はシャワーヘッドです。
シンクの隅々まで水を流すことが出来るのでお掃除もラクラク。背の高い容器に水を注ぐ時にも、容器を傾ける必要もないので意外と便利ですよ。
他には食器洗浄乾燥機も!!
食後はボタン一つで洗い物が終わるので後は寝るだけです(笑)
足もとの収納は引き出しタイプです。奥まで無駄なく使うことが出来るので、デッドスペースが生まれにくくなっています。主婦層からの支持が厚いのも納得ですね。
ここで一度玄関へと戻りましょう。
右側のドアを開けるとトイレになっていました。
LIXILのウォシュレット付きのトイレですね。
有名メーカーだけあって、その信頼性、機能性は折り紙つきです。CMもバンバンやっていますし、ここで説明する必要もなさそうですね。
棚が付いているので、トイレットペーパー等の消耗品や掃除用品はこちらに収納することが出来ますよ
右側がトイレという事は、左は・・・・
はい、予想通り洗面室でした!!
三面鏡タイプの洗面化粧台はミラーを開けると中は収納スペースになっています。
歯ブラシや基礎化粧品などの小物はこちらに入れてしまいましょう!
水栓はシャワーヘッドになっているので、こちらで簡単な洗髪をする事が出来ますよ
次はお風呂です。
お風呂には浴室換気乾燥機能が付いています。
なかなか洗濯物の乾かない梅雨の時期や、夕立の多い晩夏などには大活躍してくれるはずです。洗濯物を干さないにしても、乾燥機能はカビの発生を抑えてくれるので、なるべく日常的に使っていきたいですね。
追い焚き機能も付いています。
帰宅も家族が寝静まったくらいの深夜になると、お湯もぬるくなってしまってますよね?
追い焚き機能があれば24時間お湯はアツアツ!常に自宅でキラウエア火山が噴火してるようなものですよ!!
鏡面仕上げ、濃いブラウンの壁は大人っぽくてカッコイイですよね!!

次はこちらに進んでいきましょう!
右側の扉を開けると納戸になっています。
奥行もあるので、大抵の物は収納できそうですね。棚は高さを調節することも可能です!
奥のドアを開けるとこちらは約8.2帖の洋室です。
ウォークインクローゼット付きのこちらの洋室はご夫婦の寝室となるのでしょうか?
これだけの広さがあればダブルベッドもラクラク置けちゃいますよ!!
南側はバルコニーになっています。
ガラガラ~~
南側に位置しているバルコニーなので陽当たりもバツグンです。
これは毎日お布団を干したくなってきますね!!
実はバルコニーは2つ付いています。
ダブルバルコニーってやつです。(初めて聞きましたダブルバルコニー)
少し奥まったところにあるので、人目には付きにくいかもしれませんね!
なんだか守備力が高そうな雰囲気です。
次はリビングに戻って
こちらは北側の洋室です。
広さは約7.2帖。大きなクローゼットが付いているので、大量のお洋服を掛けることができそうですね。お部屋の中にハンガーポール等を設置しなくてもよさそうです!
リビングの南側には2つの洋室があります。
先ずは左から。
こちらは約6.0帖の広さ。
クローゼット付なのも嬉しいですね!!
そして、こちらは反対側のお部屋。
先ほどのお部屋とほぼ対称になっています。
2つの洋室はどちらも角にあるお部屋なので、2面採光でとても明るくなっていますよ!!
それでは最後にリビングからバルコニーへ出てみましょう!
・・・・ガチャリ
陽当たりはなかなか良さそうです。
西側に位置しているバルコニーなので、午後からは特に暖かくなりそうな予感です。
では、以上でサンサーラ池袋のご案内を終わります。
いかがでしたでしょうか??
北池袋駅徒歩7分、閑静な住宅街です。
リノベーション済みという事で内装もピカピカですよ。
内見のご予約やご質問などございましたらお気軽にお問い合わせくださいませ。
ご連絡お待ちしております。
弊社、不動産Agent 六棒株式会社では、
□リノベーションマンションはほぼ全て仲介手数料無料!
□その他一般仲介物件は仲介手数料20%~30%OFF!
にてお取り扱いしております!※弊社の「Agent Fee=仲介手数料」についてはご案内、ご面談の際に営業担当者よりご説明いたします!
なるべく沢山のお部屋をホームページに掲載したいと思っておりますが、時間的成約もございますので、残念ながらご紹介できるお部屋の一部しか掲載できておりません。
このホームページに掲載中のお部屋、その他サイト等で気になるお部屋、街を歩いていて気になったマンション等々ございましたら是非、弊社営業部までご相談ください!
~不動産Agent 六棒株式会社の特徴~
・一般仲介物件の仲介手数料は20%~30%OFFにてご案内中です!
・リノベーションマンションについてはほぼ全て仲介手数料無料です!
・住宅ローンに自信あります!
・頭金10万円より購入できます。是非ご相談下さい!
・お部屋のご見学は車で2~3件まとめて案内します!
・物件数3000件以上、新築戸建、リノベ物件も多数ご用意しております!
過去に販売していたお部屋の概要 このお部屋の販売は終了いたしました。
| 価格 | -万円 |
| 面積 | 71.73㎡ |
| 間取り | 3bedrooms(3LDK) |
| 管理費 | 月額10,340円 修繕積立金:月額22,950円 |
| 所在階 | 2階 |
| お問い合わせ・ご内見のご予約はこちらからお気軽にどうぞ | |
間取りのご紹介です。3LDK、71.73㎡。
南向きで陽当たり良好!ファミリーにおすすめです。
お部屋は2階。階段移動でも大変ではない階数ではないでしょうか。
白基調の明るい玄関ホール。
トールサイズのシューズBOXは収納力も◎!棚の高さを変えればブーツなど背の高い履物もお仕舞いいただけます。
玄関をあがると洋室の扉が2つあり、さらに右側に廊下が伸びています。
順番にご紹介いたします。
玄関をあがってすぐ左側の洋室、約4.3帖。
壁一面につくられたクローゼットは容量たっぷり。
玄関をあがって正面の洋室は約5.4帖。
クローゼットも設置されています。
廊下を右方向へ。トイレ、洗面室、LDKの扉があります。
トイレはウォシュレット付き。上に設置された棚にペーパーのストックや掃除用具を入れれば足元もスッキリ。
トイレのお隣は洗面室。洗面化粧台、洗濯機置場、バスルームがまとまっています。
まあるい洗面ボウルが特徴的な洗面化粧台。鏡の裏は洗面ボウル下、横の棚と収納スペースも豊富です。お隣は洗濯機置場。
バスルームは追い焚き、浴室換気乾燥機能付きでスペック◎。
高級感のある雰囲気もステキです。
いよいよLDKへ。
LDKは約15.9帖と広々。南向きの窓から陽ざしがサンサンと入る明るい空間です。
窓の近くにソファを置けばお気に入りのくつろぎスポットになるハズ!
キッチンは開放感のある対面式。キッチンスペース上にはダウンライトが設置されています。
キッチンはL字型。作業スペースが広くお料理もしやすそうです。
収納場所も上下にあります。
お料理している姿が目に入ればご家族も自然と手伝ってくれるかも・・・。
3部屋ある洋室のうち1部屋はLDKに隣接しています。
LDKに隣接した洋室は約5.4帖。
リビングと同じく南向き。陽当たり良好です。
クローゼットも大きめ。収納が大きいと生活スペースを広く使えるのがうれしいですね!
最後にLDKと約5.4帖の洋室に面したバルコニーに出てみます。
南向き、約5.36㎡。
外は静かな住宅街が続いています。
サンサーラ池袋、いかがでしたでしょうか?
少しでも気になったら、お早目のご内見をおすすめいたします。
お問合せは今すぐお電話03-5413-5336もしくはページ一番下の↓「内覧・資金相談会予約」からお気軽にどうぞ!






















































































































弊社 公式HP
六棒総合研究所
掲載予定物件
価格変更と販売終了物件
ハザードマップ検索
適合証明書.jp
Facebook
Twitter
Instagram