□□□□□□□□□□□□□□□□□□□□□□□□□□□□□□□□□□□□□□□
いつも弊社ホームページをご覧頂き誠にありがとうございます。
サンクタス池袋ベルマージュはお陰様で販売を終了致しました。弊社問合せフォームにてご要望頂けましたら、当お部屋でキャンセル等が発生した場合、他のお部屋が販売になりました際にご紹介させて頂きます。
不動産Agent 六棒株式会社
TEL:03‐5413‐5336
□□□□□□□□□□□□□□□□□□□□□□□□□□□□□□□□□□□□□□□
東京のビッグターミナル・池袋にやってまいりました。平成10年度築の
リフォームマンション「サンクタス池袋ベルマージュ」のご紹介です♪
池袋駅徒歩12分、東武東上線「北池袋」駅からは徒歩9分です。
池袋駅の東口からスタート。
ビックカメラ店頭はアナと雪の女王、LABI店頭は妖怪ウォッチ推し。各店の特色
がほの見えるようで実に興味深い…んなワケないか。ないな。
豊島区役所を過ぎて、明治通りをひたすらまっすぐです。
六つ又交差点を過ぎると、街並みものんびりした雰囲気になり個性的なお店も
チラホラ。この喫茶店、超気になります。
お買い物にはピアゴをご利用いただけます。なんと24時間営業!マンションそばには100円ローソンを発見しました。
公園で一休み。灼熱の太陽のもと、公園を独占。
あ、ムクゲの花。
「サンクタス池袋ベルマージュ」 平成10年10月築、総戸数23戸、13階建て。
タイル貼りのアーバンな雰囲気の外観です。
エントランスの設えも洗練されています。内部はこじんまりとしつつも、綺麗に掃除が行き届いた気持ちの良い空間です。
宅配ボックスありました!帰宅が深夜になる方や、ネットショッピングを良く利用される方にはありがたい存在ですね。
玄関前の廊下からは、池袋の街並みが一望できます!スカッと爽快な眺めです。
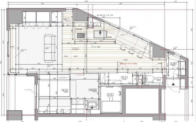
ここで間取り図のご紹介です。
※間取り図は別タブで開きますので、確認しながらご覧頂くことが出来ます。
今回ご紹介するお部屋は5階の南東角部屋、専有面積52.72㎡、間取りは2LDK。お一人暮らしの方からファミリーまで幅広くお使いいただけるお部屋です。では、早速行ってみましょう!
アルコーブ付きの玄関を入ると、中は正方形に近い比較的ゆったりとした空間になっています。シューズボックスは収納力のあるトールタイプ。扉に姿見が付いているのでお出かけ前の身だしなみのチェックにも便利ですよ。
こちらは約13帖のリビング・ダイニング・キッチン。
南東・北東に窓がある二面採光のお部屋です。明るいのはもちろん風通しも良さそうですね。木目と白のシンプルな色使いなのでカーテンや家具なども幅広くチョイス可能。ナチュラルな雰囲気でとても居心地の良いお部屋になりそうです。
ちょっとのスペースも無駄なく収納に!
キッチンはフルオープンではなく程良い個室感のあるセミオープンタイプ。
料理による汚れや人目を気にしなくていい使いやすさと、解放感のバランスの取れたキッチンです。窓も付いているので気になる臭いもしっかり換気出来そう。換気扇はお料理を始める少し前から回しておくと効果的らしいですよ。みんなの憧れ食器洗浄乾燥機付き♪
こちらは約6帖の洋室。
南東向きバルコニーに面したお部屋です。クローゼットが付いているので収納家具の必要もナシ!デスクやドレッサーなどベッド以外の家具を置いたり、ベッドを少し大きめのサイズにするのもいいですね。
こちらは約4帖の洋室。
LDKを通ることなく出入り出来る独立性の高いお部屋です。ベッドルームに限らず、ご家族構成によっては書斎にしたり物置にしたりと自由に使うことが出来そうです。
洗面室には洗面化粧台の他に洗濯機スペースと浴室がまとまっていて脱衣所を兼ねています。洗面化粧台は三面鏡付き。裏がキャビネットになっているので洗面周りの細々としたものもスッキリと収まりますよ。
浴室は白を基調にモノトーンでコーディネイトされた明るい雰囲気。キャンドルが似合うようなダークトーンの浴室もいいですが、やっぱりお風呂は白ですよね。追い焚き機能付きの給湯器はお風呂の準備もボタンひとつ。そのまま保温もしてくれるのでいつでも温かいお風呂に入れますよ。雨の日に嬉しい浴室換気乾燥機付き!
・
以上でサンクタス池袋ベルマージュのご案内を終わります。
いかがでしたでしょうか??
池袋駅から徒歩12分のマンションです。
リノベーション済みという事で室内はとてもキレイですよ (っ・ω・)っ
内見のご予約やご質問などございましたらお気軽にお問い合わせくださいませ。
ご連絡お待ちしております。
弊社、不動産Agent 六棒株式会社では、一般仲介物件は仲介手数料20%~30%OFF!
にてお取り扱いしております!
なるべく沢山のお部屋をホームページに掲載したいと思っておりますが、時間的成約もございますので、残念ながらご紹介できるお部屋の一部しか掲載できておりません。
このホームページに掲載中のお部屋、その他サイト等で気になるお部屋、街を歩いていて気になったマンション等々ございましたら是非、弊社営業部までご相談ください!
~不動産Agent 六棒株式会社の特徴~
・一般仲介物件の仲介手数料は20%~30%OFFにてご案内中です!
・住宅ローンに自信あります!
・頭金10万円より購入できます。是非ご相談下さい!
・お部屋のご見学は車で2~3件まとめて案内します!
・物件数3000件以上、新築戸建、リノベ物件も多数ご用意しております!
過去に販売していたお部屋の概要 こちらのお部屋の販売は終了いたしました
| 価格 | -万円 |
| 面積 | 53.09㎡ |
| 間取り | 1bedroom(1LDK) |
| 管理費 | 月額17,000円 修繕積立金:月額10,620円 |
| 所在階 | 7階 |
| お問い合わせ・ご内見のご予約はこちらからお気軽にどうぞ | |
間取りのご紹介です。1LDK、専有面積は53.09㎡。
LDKは約20帖と広々としたつくりになっています。
お部屋から見える池袋の夜景もキレイですよ★
室内はリノベーション済み。
ご内見のご希望、ご質問などございましたら、お気軽にお問い合わせください♪
過去に販売していたお部屋の概要 このお部屋の販売は終了いたしました。
| 価格 | -万円 |
| 面積 | 52.72㎡ |
| 間取り | 2bedrooms(2LDK) |
| 管理費 | 月額:16,900円 修繕積立金:月額10,540円 |
| 所在階 | 7階 |
| お問い合わせ・ご内見のご予約はこちらからお気軽にどうぞ | |
ここで間取りのご紹介。52.72㎡、2LDK。南東・北東角部屋につき、日当たり&
眺望GOOOD!とのこと、楽しみです。
7階には2戸のみなので、プライバシーの面でも安心ですね。
玄関右手には天井までの高さのシューズボックス!傘などもしまえるように設計
されています。廊下部分にはニッチスペース、上下が収納になっています。
ここに季節のお花やお気に入りのインテリアグッズなどどーんと置くと映えそう
です。
約10.1帖のリビングダイニング。南東向きの窓には、ちょっと腰掛けてお茶でも
したり本を読んだりするのに良さそうなカウンタースペースが設けてあります。
コーナー部分の収納も、見せる部分・隠す部分に分かれていて使い勝手良さそう。
バルコニーからは明治通り。7階ですので、音もさほど気になりません(とは
言っても個人差がある部分ですので、ぜひご自身でお確かめくださいませ)
続いてはキッチン。人気の対面式&こちらにもカウンターがあります。
キッチンは水栓が浄水器一体型に好感されているほか、コンロも新しくなって
います。ピッカピカです![]()
上部には耐震ラッチ付の吊戸棚が設置されておりますので、お気に入りの食器を
安心してお片づけしておけますね。
ホワイトカラーが清潔な印象を与えてくれる洗面化粧台。継ぎ目のない洗面
ボウルはウェットエリアとドライエリアが区切られていますので、濡らしたくないもの
と濡れてもいいものをきっちり分けて置いておけます。
三面鏡(くもりシャットミラーです)裏側はキャビネット収納となっており、洗面台
まわりにちらばりがちな日用品をすっきり収納OK。ドライヤーもしまえるように
設計されています。
ナチュラルな風合いででまとめられたバスルーム。一日の疲れが自然と
解きほぐされていきそうです。シャワーを浴びる時はスライドバーでお好みの位置に
シャワーヘッドを固定・さらに角度も変えられます。
浴室換気乾燥機が設置されていますので、その名の通り浴室の換気・乾燥の
ほか、入浴前に暖房・涼風モードで室温を快適にととのえたり、雨が続いた時
には洗濯物をバリッと乾かしたりできます。ランドリーパイプも2本!
ついてきますよ。
トイレはもちろんウォシュレット付。写真ではわかりにくいですが、2種類の異なる
クロスが貼り分けられ、オシャレ感漂っております。
扉がある収納にはトイレットペーパーなどを収納して、カウンター部分にはお好み
の小物を並べて癒し空間にするのもアリです。
リビングとなり・約6.0帖の洋室。リビングや廊下はフローリングでしたが、こちらは
カーペット敷き。フッカフカです(カーペットも新しくなってますよ!)。システム収納
にはお洋服や雑貨を効率よくしまっておけそうです。
コロナ製のエアコンが設置されていました。
玄関横・約4.0帖の洋室。こちらもカーペット敷きです。収納もバッチリです。
宜しければ動画もぜひぜひご覧ください!
YouTubeはこちら↓
https://www.youtube.com/watch?v=OzBHOpcXg38
Dailymotionはこちら↓
http://www.dailymotion.com/video/x21tc68
「サンクタス池袋ベルマージュ」、いかがでしたか?
皆様のご内見、心よりお待ちしております!

































































