・
□□□□□□□□□□□□□□□□□□□□□□□□□□□□□□□□□□□□□□□
いつも弊社ホームページをご覧頂き誠にありがとうございます。
藤和南大塚コープはお陰様で販売を終了致しました。弊社問合せフォームにてご要望頂けましたら、当お部屋でキャンセル等が発生した場合、他のお部屋が販売になりました際にご紹介させて頂きます。
不動産Agent 六棒株式会社
TEL:03‐5413‐5336
□□□□□□□□□□□□□□□□□□□□□□□□□□□□□□□□□□□□□□□
・
山手線・大塚駅から徒歩3分!藤和南大塚コープのご紹介です。
家具・エアコンが付いており、新生活をスムーズにスタートできるお部屋です。ゼヒご覧ください。
アクセス
JR山手線「大塚」駅徒歩3分
東京メトロ丸ノ内線「新大塚」駅徒歩8分
都電荒川線「大塚駅前」駅徒歩3分
ご紹介する藤和南大塚コープは最寄のJR大塚駅をはじめ、都電荒川線、東京メトロ丸ノ内線と複数路線が利用可能。ひとつお隣はターミナル駅の池袋ということもあり、交通アクセスは良好です。
駅周辺には駅ビルのアトレヴィ や手軽に入れる飲食店、商店街、銀行などがあり暮らしやすい雰囲気。徒歩5、6分圏内で利用できるスーパーがいくつかあるので日常のお買い物も安心です。
マンションは南口方面。こんな感じの大通り沿いに建っています。ちなみに、大塚バッティングセンターの隣の隣の建物です。バッティングセンターの建物が目立つのでお友達が遊びに来る時はこれを目印に来てもらうと迷わないのではないでしょうか。
藤和南大塚コープは昭和54年築、10階建て、総世帯数45戸。
お隣のマンションの1階にはブックオフが入っています。
駐車場・駐輪場・バイク置場がありますが、空き状況はその都度確認が必要です。
エントランスは歩道から少し奥まったところにあります。
オートロックではありませんが、日中は管理人さんがいるので何かと安心。
防犯カメラもついています。
白基調の明るいエントランスホール。広さもちょうど管理人さんの目の行き届く広さです。
エレベーターの中の階数表示画面の下に「おいしいパイナップルの選び方」というアナウンスが流れていました。濃い緑色の葉をしていて、実の下の方がふっくらしているものを選ぶとよいそうです。なるほど、勉強になりました。
共用廊下は内廊下タイプ。玄関前で雨や風の影響をうける心配はありません。
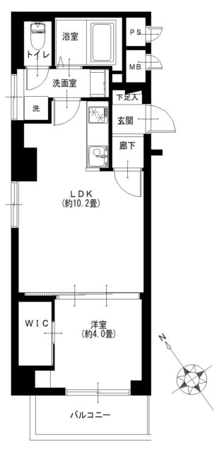
今回ご紹介するお部屋は6階、専有面積36.54㎡の1LDK。おひとり暮らしの方にお勧めのお部屋です。
間取り図はコチラ ↓ ↓ ↓
※間取り図は別タブで開きますので、確認しながらご覧いただくことができます。
只今写真準備中!
しばらくお待ちください
・
以上で藤和南大塚コープのご案内を終わります。
いかがでしたでしょうか??
大塚コープ駅から徒歩3分のマンションです。
リノベーション済みという事で室内はとてもキレイですよ (っ・ω・)っ
内見のご予約やご質問などございましたらお気軽にお問い合わせくださいませ。
ご連絡お待ちしております。
弊社、不動産Agent 六棒株式会社では、
□リノベーションマンションはほぼ全て仲介手数料無料!
□その他一般仲介物件は仲介手数料20%~30%OFF!
にてお取り扱いしております!※弊社の「Agent Fee=仲介手数料」についてはご案内、ご面談の際に営業担当者よりご説明いたします!
なるべく沢山のお部屋をホームページに掲載したいと思っておりますが、時間的成約もございますので、残念ながらご紹介できるお部屋の一部しか掲載できておりません。
このホームページに掲載中のお部屋、その他サイト等で気になるお部屋、街を歩いていて気になったマンション等々ございましたら是非、弊社営業部までご相談ください!
~不動産Agent 六棒株式会社の特徴~
・一般仲介物件の仲介手数料は20%~30%OFFにてご案内中です!
・リノベーションマンションについてはほぼ全て仲介手数料無料です!
・住宅ローンに自信あります!
・頭金10万円より購入できます。是非ご相談下さい!
・お部屋のご見学は車で2~3件まとめて案内します!
・物件数3000件以上、新築戸建、リノベ物件も多数ご用意しております!
過去に販売していたお部屋の概要 こちらのお部屋の販売は終了いたしました
| 価格 | -万円 |
| 面積 | 53.95㎡ |
| 間取り | 2bedrooms(2LDK) |
| 管理費 | 月額16,520円 修繕積立金:月額11,475円 |
| 所在階 | 6階 |
| お問い合わせ・ご内見のご予約はこちらからお気軽にどうぞ | |
間取りのご紹介です。2LDK、53.95㎡。
南東角部屋につき陽当り・眺望・通風良好!
室内はリノベーション済み。お部屋に合わせた家具もついています。
白と木目を基調とした明るい室内。玄関には人感センサーがついており、人の気配にあわせて自動で照明が消灯します。消し忘れがなく経済的です。またインターホンにはTVモニターがついているので玄関を開ける前に来訪者の顔もバッチリ確認できます。
玄関横に設置されたシューズBOXはトールサイズで収納力◎!
表扉の一部には縦長の鏡がついているのでお出かけ前の身だしなみチェックも忘れずにサッと済ませてから外出できます。
シューズBOXの向かい側にも棚付の収納スペースがつくられていました。お客様用のスリッパ、日用品のストックなど色々仕舞っておけそうです。収納が多いと片付けもスムーズにすすめられそうです。
玄関をあがると廊下が右方向へのびています。
宅急便など急に玄関で対応する時でも、お部屋の中が見られることがないのがいいですね!正面の壁には調湿・消臭効果のあるエコカラット、左側にはピクチャーレールがついています。お気に入りの絵や写真を飾ってお好みの雰囲気にしてみてはいかがでしょう?
廊下を奥へ。洗面室とLDKの扉が向かい合っています。
洗面室はバスルーム、トイレ、洗面化粧台、洗濯機置場と水廻りの設備が1か所にまとまっています。お掃除もまとめてこなしやすそうです。
洗面化粧台と洗濯機置場はお隣同士。洗面化粧台の鏡の裏、引き出し、洗濯機置場の上など各所に小物を収納できるスペースが設けられています。
トイレはウォシュレット付き。
ペーパーのストックや掃除用具の保管に便利な収納棚も設置されています。
バスルームは追い焚き、浴室換気乾燥機能付き。
乾燥機があれば雨の日や夜のお洗濯も安心。
カビの発生もグンと減ってお掃除も簡単に♪
洗面室の向かい側、採光部のある扉の奥へ。
扉の奥は約10.5帖のLDK。家具が置いてあるので実際の生活イメージもわきやすいのではないでしょうか?(家具もついてきます。)エアコンも設置されているので引っ越したその日から快適な生活が送れます。
リビングの壁面にも玄関と同じく調湿・消臭効果のあるエコカラットが使われています。生活臭もこれで軽減するハズ!
キッチンは浄水機能付き水栓、お料理がはかどる3口ガスコンロ、食洗機付きとお料理好きな奥様や忙しい奥様にうれしい設備が充実♪横に食材やキッチングッズを置ける棚付の収納スペースもつくられています。
バルコニーは2箇所あり、1つはLDKから出られるようになっています。
広さは少しコンパクトな印象。向きは北東向き。
ほどよく抜けていて開放感のある眺めです。
洋室2部屋はLDKを介して行けるようになってます。
2枚の可動式扉側の洋室は約4.8帖。窓は南東向き。
クローゼットがついています。
扉を開放してLDKと隣接する洋室をつなげるとより広々とした空間になりました。つなげて使ったり、独立させて使ったりと生活スタイルに合わせてフレキシブルにご利用いただけます。
もう1部屋の洋室は約6.5帖。窓は同じく南東向きです。
こちらのお部屋には大きな荷物も仕舞いやすいウォークインクローゼットがついています。収納が大きいと生活スペースを有効的に利用できるのがうれしいですね♪
最後に洋室2部屋に面したバルコニーに出てみます。南東向き。
この日は少し曇っていましたが晴れた日はサンサンと降りそそぐ陽ざしも期待できます☀
右方向は高い建物が近くにあり眺望はのぞめませんが、 左方向はほどよく抜けた開放感のある眺めが楽しめます。
遠くの方にはなんとスカイツリーも!夜になるともっとハッキリわかるはず・・・。夜のライトアップが楽しみですね。
藤和南大塚コープ、いかがでしたでしょうか?
駅徒歩3分&複数路線利用OK。交通利便性重視の方におすすめです。
ご内見のご希望・ご質問などございましたら、お気軽にお問い合わせくださいませ♪


























































弊社 公式HP
六棒総合研究所
掲載予定物件
価格変更と販売終了物件
ハザードマップ検索
適合証明書.jp
Instagram