・
□□□□□□□□□□□□□□□□□□□□□□□□□□□□□□□□□□□□□□□
いつも弊社ホームページをご覧頂き誠にありがとうございます。
松濤ハウスはお陰様で販売を終了致しました。弊社問合せフォームにてご要望頂けましたら、当お部屋でキャンセル等が発生した場合、他のお部屋が販売になりました際にご紹介させて頂きます。
不動産Agent 六棒株式会社
TEL:03‐5413‐5336
□□□□□□□□□□□□□□□□□□□□□□□□□□□□□□□□□□□□□□□
・
JR山手線他「渋谷」駅から徒歩15分、リノベーションマンション
『松濤ハウス』のご紹介です!
渋谷から1駅の京王井の頭線「神泉」駅徒歩8分もご利用いただけます。
□□□□□□□□□□□□□□□□□□□□□□□□□□□□□□□□□□□□□□□
★★★【松濤ハウス】周辺のハザードマップをCHECK!!★★★
お部屋の記事を読む前に…!周辺のハザードマップをチェックしておきませんか!
松濤ハウスのハザードマップは★こちらから…どうぞ★
□□□□□□□□□□□□□□□□□□□□□□□□□□□□□□□□□□□□□□□
ハザードマップもご確認いただきましたので、次は街の紹介です!
この日は渋谷駅のハチ公口から向かってみます。
マンションまでは渋谷のにぎやかな街並みを通りぬけていきます。
渋谷のスクランブル交差点。
西武百貨店や丸井、ルミネ、ヒカリエに東急百貨店とデパートのオンパレードで
渋谷は何でも揃いお買い物も移動もベンリです。
東急百貨店本店とドンキホーテの間の道を進み松濤方面へ向かいましたが、この先
だんだんと渋谷の都会的なにぎやかさから静かで落ち着いた雰囲気に変わって
いきます。クリスマス時期なのでドンキホーテにサンタ衣装が大量に売っていました。
バリエも豊富です。
松濤にはガレットの専門店やオシャレなお食事どころがチラホラ。
お休みの日に巡ってみるのも楽しそうです。
マンションは山手通り沿い。マンションまであと少しです。
松濤ハウスは昭和53年築、8階建て、総世帯数68戸。
クリーム色のタイル貼りの明るい外観です。
駐車場、駐輪場がありました。空き状況は最新情報をご確認ください。
エントランスは夜間オートロック付きで防犯面も安心です。
日中は管理人さんがいらっしゃいますよ。
マンション内には乾燥機室がありました。珍しいですが便利ですね♬
エントランスホールも広々としており、キレイに清掃されています。
ここで間取り図のご紹介です。
※間取り図は別タブで開きますので、確認しながらご覧いただく事が出来ます。
□□□□□□□□□□□□□□□□□□□□□□□□□□□□□□□□□□□□□□□
★★★【松濤ハウス】周辺のハザードマップをCHECK!!★★★
お部屋の記事を読む前に…!周辺のハザードマップをチェックしておきませんか!
松濤ハウスのハザードマップは★こちらから…どうぞ★
□□□□□□□□□□□□□□□□□□□□□□□□□□□□□□□□□□□□□□□
今回のお部屋は2階、間取りは1DK、専有面積は35.02㎡となります。おひとり暮らしの方にお勧めのコンパクトなお部屋です。では、早速行ってみましょう。
エレベーターホールも綺麗に維持されています。エレベーターの扉が明るくて良いアクセントになっています。
内廊下を進みます。てくてくてく。外廊下になりました。そろそろお部屋に着きます。
カラーTVモニター付きインターフォンと玄関です。
玄関扉は旧式感がありますが、玄関扉は共用部なので個人で勝手に変更することができないのです。ドアの内側はお好きに変更できますよ♪
では、早速!
ガチャリ。
とドアを開けると、洋風のホワイティな雰囲気です。
正面ドアのガラス部分が大きく、圧迫感がありません。
玄関全体が真っ白過ぎないナチュラルな風合いで仕上がっています。
1DKのお部屋の広さから考えると、広めの玄関です。ゴルフバッグなどが置けるスペースもあります。シューズボックスの扉の1枚は鏡になっていますよ!
人感センサー付きライトが必要な時は自動で点灯してくれますし、必要ない時は自動で切れます。節電対策もバッチリ☆
シューズボックスも扉3枚分と大容量。
それでは、メインのダイニングキッチンと洋室へ!
キッチンが手前の壁付けになっているので、お部屋が広々としています。洋室を区切っているスライドドアのレールが床に無いので、フラットな広いスペースに感じさせます。
逆サイドから確認。遠くから見るとキッチンの木目がブロックみたいな雰囲気で可愛いですね。
洋室には壁面クローゼットが設置されています。
ダイニングとの仕切り扉は壁の中に綺麗に納まります。ワンルームとしての利用も十分に可能な造りになっています。
北東向きのお部屋ですが、窓からは日差しが入ってきています。
動きが滑らかでスムーズに開く扉なので、開け閉めが楽です。こういったちょっとした所でストレスを感じなくて済むのは助かります。バー付きのクローゼットと可動棚タイプのクローゼットになっています。
扉を閉めてしまえば、完全な個室感ですね。ドアの色も壁の色に近いので違和感がありません。
リノベーションマンションの定番!システムキッチンです。薄茶色のパネルがお部屋に違和感なく馴染んでいます。
上部の吊戸棚とシステムキッチンの下部が収納になっています。
スライド式のキャビネット収納は奥のものも取り出しやすいので、何かと慌ただしいキッチンでモノをサッと出せるので便利です。
蛇口一体型の浄水器です。シンク周りがひろびろと使えます。
浄水器ごとノズルが引き出せるので、掃除もシンクの隅々までラクラクです。
ちなみに、浄水カートリッジ入れ忘れ防止機能搭載してます。
ガラストップの三ツ口ガスコンロ!ガラストップはお掃除しやすく丈夫で、見た目もイイ♪一人暮らしでしたら、十分すぎる設備ですね。
パネルのメニューも使いこなせば、更に時短やラクができます。
スリムでスッキリしたデザインのフラットスリムレンジフードです。
フラットな内面形状なので、お手入れが簡単♪
照明は省エネ性の高いLED照明を搭載してマス☆
それでは、水回りの方へ行きましょう。玄関側に戻ります。
三面鏡の洗面化粧台です。鏡は扉になっていて後ろは収納になっています。
ちなみに、洗面ボウル下の引き出しは、閉まる直前でショックを吸収し、和らげるソフトクローズ機能付きの引き出しとなっております。
洗面ボウルは継ぎ目やスキマがないカウンターなので汚れてもささっとふくだけでOK。
ノズルが伸びるので、全体を流したりするお掃除も楽々です。
そもそも、スキマのない設計なので、汚れがたまりにくいのですけどね。
次は、トイレ。
こちらのトイレは蓋を開けると、TOTOのフチなし形状トイレとなっております。
奥までぐるーっと汚れがたまるフチ裏が無いので、これまた、お掃除ラクラクです。
外側も一筆書きのような滑らかな形状でお掃除しやすいタイプです。
上部には扉付きの吊戸棚がありますので、ちょっとしたトイレ用品を仕舞っておくことができます。トイレに設置された様々な機能は壁付けのパネルで操作します。
こちらは、浴室です。
照明の切り替えスイッチがあります。
お風呂でサッパリしたいのか、ゆっくり寛ぎたいのかで照明を選ぶことができるのです!
ちょっと、切り替えてみましょう。パチ☆
お、白っぽくなりましたね。温度調整や追い炊きなどは、浴室の壁パネルで操作可能です。
こちらの浴槽は、浴槽とフタに発砲ポリスチレン断熱材を使用し、高い保温効果を発揮する浴槽を使用しています。
追い焚き回数が減り、光熱費が節約☆デキる。
最後に、バルコニーに出てみましょう。
結構、ゆとりのあるバルコニーです。
10.59㎡あります。幅が広いです。
高めの手すりと摺りガラスでプライバシーも保護されます。
景色は、2階にも関わらず眺望も抜けていて開放的ですね。
それに山手通りとは反対側でとっても静かです。目の前には木々も見えて癒されますね~。
・
以上で松濤ハウスのご案内を終わります。
いかがでしたでしょうか??
神泉駅から徒歩8分のマンションです。
リノベーション済みという事で室内はとてもキレイですよ (っ・ω・)っ
内見のご予約やご質問などございましたらお気軽にお問い合わせくださいませ。
ご連絡お待ちしております。
□□□□□□□□□□□□□□□□□□□□□□□□□□□□□□□□□□□□□□□
★★★【松濤ハウス】周辺のハザードマップをCHECK!!★★★
お問い合わせの前に…!周辺のハザードマップをチェックしておきませんか!
松濤ハウスのハザードマップは★こちらから…どうぞ★
□□□□□□□□□□□□□□□□□□□□□□□□□□□□□□□□□□□□□□□
弊社、不動産Agent 六棒株式会社では、
一般仲介物件は仲介手数料20%~30%OFF!にてお取り扱いしております!
なるべく沢山のお部屋をホームページに掲載したいと思っておりますが、時間的成約もございますので、残念ながらご紹介できるお部屋の一部しか掲載できておりません。
このホームページに掲載中のお部屋、その他サイト等で気になるお部屋、街を歩いていて気になったマンション等々ございましたら是非、弊社営業部までご相談ください!
~不動産Agent 六棒株式会社の特徴~
・一般仲介物件の仲介手数料は20%~30%OFFにてご案内中です!
・住宅ローンに自信あります!
・頭金10万円より購入できます。是非ご相談下さい!
・お部屋のご見学は車で2~3件まとめて案内します!
・物件数3000件以上、新築戸建、リノベ物件も多数ご用意しております!
過去に販売していたお部屋の概要 このお部屋の販売は終了いたしました。
| 価格 | -万円 |
| 面積 | 51.67㎡ |
| 間取り | 1bedrooms(1SLDK) |
| 管理費 | 月15,600円 特別積立金:月額9,800円 営繕積立金:月額3,750円 |
| 所在階 | 7F |
| お問い合わせ・ご内見のご予約はこちらからお気軽にどうぞ | |
ここで間取り図のご紹介です。
※間取り図は別タブで開きますので、確認しながらご覧いただく事が出来ます。
今回のお部屋は7階、間取りは1SDK、専有面積は51.67㎡となります。
では、早速行ってみましょう。
□□□□□□□□□□□□□□□□□□□□□□□□□□□□□□□□□□□□□□□
★★★【松濤ハウス】周辺のハザードマップをCHECK!!★★★
お部屋の記事を読む前に…!周辺のハザードマップをチェックしておきませんか!
松濤ハウスのハザードマップは★こちらから…どうぞ★
□□□□□□□□□□□□□□□□□□□□□□□□□□□□□□□□□□□□□□□
エレベーターを9階で降りて、内廊下を進むと…
玄関に到着です。
カメラ付きインターホンが設置されていて、お部屋の中から訪問者を確認する事が出来ます。玄関まで来る必要がないのがいいですよね。
それではお邪魔します。
玄関ドアを開けると、正面には扉が…
玄関内に進んで右を向くと、白のクロスに中間調のフローリングの落ち着いた雰囲気の廊下が伸びていました。途中から細くなっていますが、手前の広い部分が広々とした印象を与えてくれています。
振り返って玄関内の様子です。
正面の扉はトールタイプのシューズボックス。棚板の高さが変えられるのでブーツなどでも収納可能です。
玄関に入った時にライトを点けてくれたのは人感センサーです。いつでも明るい玄関が迎えてくれるのは嬉しいですよね♬
まずは正面のドアから開けてみましょう。
こちらが約13帖のリビング・ダイニング・キッチンとなります。
二面採光で陽当り、通風共に良さそうなお部屋です。
南東側の窓の外には、すりガラスの目隠しが設置されていました。お隣の建物が少し近いようですね。ただし、明るさと風通しはしっかり確保していますからね(^^)
南西側の窓の外は、後でバルコニーから見てみましょう。
では、次のお部屋へ…
リビングの引き違い戸を開けてみます。
こちらが約4.5帖の洋室となります。
正面の壁が、石を積んだようなテクスチャのアクセントウォールになっていました。お部屋の印象が全然変わりますね。
奥の隅には、オープンな収納棚がありました。コンパクトですが、棚板は調整可能ですので工夫次第でいろいろと使い道がありそうです。
バルコニーに面した大きな窓からの光で明るいですね。ここからバルコニーへ出る事が出来ますが、後のお楽しみにしましょう(^^)
このお部屋の引き戸は、開けていくと壁部分に収納する事が出来ます。全開にすると…
リビングとつなげる事が出来ます。約17.5帖のお部屋の出来上がりです♬
窓が並ぶと実際より広く感じますね。
今度はキッチンを見ていきましょう。
白でまとめた清潔感のあるキッチンです。
収納は調理台の下と、上部吊戸棚になります。吊戸棚はどうしても出し入れがしづらくなりますので、あまり使わない鍋などの定位置になりそうですね。
コンロは3口。片面焼きグリルが付いています。
コンロ三つで、お料理の効率もググッと上がりますよ。
食洗機が設置されています。
せっかくなので、洗い物はお任せして食後はのんびりしちゃいましょう♪♪
水栓は浄水機能付きシャワー水栓。
切り替えひとつで水道水が美味しいお水になって出てきます。ヘッドが伸びるのでシンクのお掃除などにも便利ですよ。
お料理中は換気扇をお忘れなく。
調理台後ろには冷蔵庫スペースがありました。出っ張らないように窪みに入れるタイプなので、サイズには気を付けましょう。
それでは、いちど廊下に戻って…
出てすぐの扉は収納棚でした。間口が広くて奥行きの無いタイプ。中がひと目で確認出来るので、いろいろなストックなどに最適です。
今度は、その向かいのドアを開けてみます。
洗面室となります。
収納はミラーキャビネットと洗面台下にありました。細かい物から大きな物まで上手く収まりそうです。
水洗はハンドシャワータイプです。洗面ボウルが広いので、寝ぐせ直しくらいなら出来ますよ。
洗面台の手前には洗濯機スペースが。上部に棚も付いているので、洗濯関係の物はここにまとめて置けますね。
次は浴室へ…
追い焚き機能が付いていますので、いつでも温かいお風呂に入れます。お風呂は自分のタイミングで入りたいですよね(^^)
ゆったり浸かれる1216の浴槽。
浴室乾燥機能は浴室のカビ予防だけでなく、雨天のお洗濯物乾燥やヒートショック予防など様々な働きを担ってくれます。
では次へ…
玄関に一番近いドアです。
トイレとなります。
もちろんウォシュレットも完備していますよ。
アクセントウォールは、エコカラットといって機能性素材となっています。匂いを吸着したり、湿度を調節したり、日本家屋の砂壁のような働きをしてくれます。
では、次のお部屋へ…
収納の隣のドアを開けてみます。
こちらが約5.1帖のサービスルームとなります。
サービスルームとは、建築基準法上で居室と認められないお部屋の事です。法律上の分類なので、実情と合わない事もあり普通にお部屋として使う事が出来ますよ。
収納は、間口が広く使いやすそうなクローゼットが付いていました。奥行きもあるので収納力も抜群ですよ。
窓の外はリビングと同じすりガラスの目隠しが設置されていましたが、隙間からは少しだけ見事な眺望も望めましたよ。
それでは、最後にバルコニーへ出てみましょう。
バルコニーへは洋室から…
3.24㎡ですので広いとは言えませんが、奥行きがあって数字より広々と感じます。午後になればもっと陽当りも良くなりますので、お洗濯物も気持ち良く乾きそうです♬
正面の様子です。
少し目を右に向けると…
見事な眺望が広がっていますね。緑も多く、開放感があって癒されます(^^)
・
・
以上で松濤ハウスのご案内を終わります。
いかがでしたでしょうか??
神泉駅から徒歩8分のマンションです。
リノベーション済みという事で室内はとてもキレイですよ (っ・ω・)っ
内見のご予約やご質問などございましたらお気軽にお問い合わせくださいませ。
ご連絡お待ちしております。
□□□□□□□□□□□□□□□□□□□□□□□□□□□□□□□□□□□□□□□
★★★【松濤ハウス】周辺のハザードマップをCHECK!!★★★
お問い合わせの前に…!周辺のハザードマップをチェックしておきませんか!
松濤ハウスのハザードマップは★こちらから…どうぞ★
□□□□□□□□□□□□□□□□□□□□□□□□□□□□□□□□□□□□□□□
弊社、不動産Agent 六棒株式会社では、
一般仲介物件は仲介手数料20%~30%OFF!にてお取り扱いしております!
なるべく沢山のお部屋をホームページに掲載したいと思っておりますが、時間的成約もございますので、残念ながらご紹介できるお部屋の一部しか掲載できておりません。
このホームページに掲載中のお部屋、その他サイト等で気になるお部屋、街を歩いていて気になったマンション等々ございましたら是非、弊社営業部までご相談ください!
~不動産Agent 六棒株式会社の特徴~
・一般仲介物件の仲介手数料は20%~30%OFFにてご案内中です!
・住宅ローンに自信あります!
・頭金10万円より購入できます。是非ご相談下さい!
・お部屋のご見学は車で2~3件まとめて案内します!
・物件数3000件以上、新築戸建、リノベ物件も多数ご用意しております!
過去に販売していたお部屋の概要 このお部屋の販売は終了いたしました。
| 価格 | -万円 |
| 面積 | 47.27㎡ |
| 間取り | 1bedrooms(1LDK) |
| 管理費 | 月14,200円 修繕積立金:月額12,320円 |
| 所在階 | 4階 |
| お問い合わせ・ご内見のご予約はこちらからお気軽にどうぞ | |
・
ここで間取り図をご紹介いたします。
間取り図は別タブで開きますので、ご覧になりながらがお勧めです。
今回のお部屋は4階、間取りは1LDK、専有面積は47.27㎡となっています。
それでは、行ってみましょう。
エレベーターを降りて広々とした内廊下を進みます。内廊下って静かでいいですよね(^^)
玄関に到着です。
玄関にはカメラ付きインターホンとダブルロックが設置されていました。昼間は管理人さん、夜はオートロックに加えてですから、これは心強いです(^^)
では、お邪魔します…
玄関ドアの重厚な感じとがらっと変わって、可愛らしい雰囲気の廊下が真っ直ぐに伸びています。突き当りのドアの色がいい感じですね♪
振り返って玄関内の様子です。玄関扉の内側は内装に合わせて綺麗にペイントされていました。人感センサーがありますのでドアを開ければ自動的にライトが点きます。荷物がいっぱいで手がふさがっていても大丈夫。
右側にあるドアを開けると・・・なんとシューズインクローゼットになっていました!棚は高さ調整可能ですのでブーツなどでも棚に収納可能です。INって憧れますね(笑)
まずは、廊下右奥のドアから開けてみましょう。
こちらが約12.8帖のリビング・ダイニング・キッチンとなります。
北欧風の可愛らしいお部屋で、雑誌の1ページに出てきそうですね。家具もピッタリ合っていて、家具付きでないのが残念です(^^)
建具だけでなく、間接照明やダウンライトなど照明にもこだわっています。
リビング部分です。
ソファーやラグのチョイスで落ち着いた感じにもなるんですね・・・参考になります(^^)
ではキッチンを見ていきましょう。
L字型のカウンターキッチンです。L字型だとあまり動かなくてもいろんな所に手が届き、効率良くお料理が出来ます。
調理台の下は全て収納になっていました。一瞬開けづらいかなって思ってしまいましたが、こんなに全部同時に開ける事などないから大丈夫ですね(笑)
扉は普通より大きく開いて使いやすくなっています。細かい所にも気遣いを感じます。
片面焼きグリルと3口のコンロが付いています。
グリルはお魚イメージが強いですが、他のお料理にもいろいろと使えるらしいですよ。ご興味のある方は調べてみて下さい。私は「グリルでヘルシートンカツ」っていうのが気になりました(^^)
水栓は浄水機能付きシャワー水栓となっています。
ヘッドが伸びてシンクを流したり、背の高い鍋を洗ったりに便利ですよ。
お料理中は換気扇をお忘れなく。オープンキッチンですからね。
コンロとなりは冷蔵庫スペースです。
キッチンからの眺めです。
この風景大好きなんですよね~(^^)なんか幸せ感じませんか?
では次のお部屋へ…
いちど廊下に戻って右側のドアです。
玄関を開けてまず目に入った突き当りのドアですね。
こちらが約6.1帖の洋室となります。
バルコニーに面した明るいお部屋ですね。テイストはリビング・ダイニングに揃えてあります。
ウォークインクローゼットは、両側に洋服をかけられるタイプになっています。大きなスーツケースなどでも楽々収納出来る広さがありますよ。
では次へ…
出てすぐ右のドアです。
もちろんシャワートイレが完備されています。最近は当たり前になっているので無いと困りますよね^^; ちなみにウォシュレットは他社さんの商品名なんですよ。ご存知でした?
次は、玄関横のドアを開けてみます。
洗面室となります。
洗面台も素敵ですね。ここにもこだわりを感じます(^^)
洗面台横には洗濯機スペースと収納棚がありました。洗濯機スペースの上部には収納も付いていましたので、お洗濯関係の物はこちらにストック出来ますね。
では浴室へ…
追い焚き機能が付いていますので、いつでも温かいお風呂に入れますね。お休みの日はのんびり朝風呂なんかいかがですか(^^)
浴室乾燥機能は雨の日のお洗濯物乾燥だけでなく、寒い日のヒートショック予防などにも使えますよ。もちろん浴室のカビ予防も大事な役目です。
それでは最後にバルコニーへ出てみましょう。
バルコニーに出る窓はダブルサッシになっていました。
幅も広くゆったりとしたバルコニーです。
お洗濯物も干せるようになっていました。この日はお天気が悪くて確認出来ませんでしたが、南南西向きですので陽当りもいいと思いますよ。
正面
左側
右側
高い建物もポツポツとありますが、全体的に開放感のある眺望となっています。前を通る山手通りに幅があるのもそう感じる原因ですかね(^^)右の奥の方にあるのは東大駒場キャンパスです。緑のある風景ってイイですよね♬
以上で松濤ハウスのご案内を終わります。
いかがでしたでしょうか??
神泉駅から徒歩8分のマンションです。
リノベーション済みという事で室内はとてもキレイですよ (っ・ω・)っ
内見のご予約やご質問などございましたらお気軽にお問い合わせくださいませ。
ご連絡お待ちしております。
弊社、不動産Agent 六棒株式会社では、
□リノベーションマンションはほぼ全て仲介手数料無料!
□その他一般仲介物件は仲介手数料20%~30%OFF!
にてお取り扱いしております!※弊社の「Agent Fee=仲介手数料」についてはご案内、ご面談の際に営業担当者よりご説明いたします!
なるべく沢山のお部屋をホームページに掲載したいと思っておりますが、時間的成約もございますので、残念ながらご紹介できるお部屋の一部しか掲載できておりません。
このホームページに掲載中のお部屋、その他サイト等で気になるお部屋、街を歩いていて気になったマンション等々ございましたら是非、弊社営業部までご相談ください!
~不動産Agent 六棒株式会社の特徴~
・一般仲介物件の仲介手数料は20%~30%OFFにてご案内中です!
・リノベーションマンションについてはほぼ全て仲介手数料無料です!
・住宅ローンに自信あります!
・頭金10万円より購入できます。是非ご相談下さい!
・お部屋のご見学は車で2~3件まとめて案内します!
・物件数3000件以上、新築戸建、リノベ物件も多数ご用意しております!
過去に販売していたお部屋の概要 このお部屋の販売は終了いたしました。
| 価格 | -万円 |
| 面積 | 51.67㎡ |
| 間取り | 2bedrooms(2LDK) |
| 管理費 | 月額15,600円 修繕積立金:月額13,550円 |
| 所在階 | 7階 |
| お問い合わせ・ご内見のご予約はこちらからお気軽にどうぞ | |
間取図はこちら。
南西向き角部屋、51.67㎡ 2LDK
エレベーターでお部屋へ向かいます。
玄関を入ると正面にシューズBOXがあります。
廊下は右側に曲がっていて、玄関からお部屋が見えずプライバシーが守られます。
廊下の突き当たり、リビングのドアの隣に収納スペースもあります。
玄関から最初のドアはトイレ。
かうんたーがありますので、オブジェのディスプレイや消臭剤を置くスペースとしてお使いになれます。
まずは独立したベッドルームから見ていきます。
こちらのベッドルームは5.0帖。
南東向きに窓があり、明るいお部屋です。
クローゼットも大きめで奥行もあり容量十分。
続いてサニタリールームへ。
入って左側にランドリースペース、正面に洗面台があり右側にバスルームの配置です。
洗面台まわりに収納スペースが多くあります。
お部屋と同系色のブラウンパネルがバスルーム。
浴室乾燥機付きです。
廊下の突き当たりはLDK。
LDKに入りすぐ右側の独立したスペースにキッチンがあります。
キッチン横にはL字の高さ調節可能な可動棚があり背の高い物も収納できます。
設備は浄水器一体型水栓、2口ガスコンロ、食洗機も付いています。
13.0帖のLDKは南西向き角部屋で明るいお部屋です。
壁際には造作棚が設置されていて、オブジェのディスプレイやテレビ台としてもお使いになれそうです。
隣のベッドルームの扉を開放して、17.5帖の広々としたお部屋としてもお使いできます。
LDKの隣のベッドルームは4.5帖。
エコカラットも設置されています。
収納スペースあります。
ハンガーポールや棚などは設置されていないので、お好きにアレンジしてお使いください。
バルコニー3.24㎡で南西向きです。
山手通りに面したお部屋ですが、正面が駒場東大があり眺望は抜けています。
緑の多い景色もいいですね!
渋谷駅も徒歩圏の『松濤ハウス』はいかがでしたでしょうか。
みなさまのご内見、こころよりお待ちしております!
過去に販売していたお部屋の概要 このお部屋の販売は終了いたしました。
| 価格 | -万円 |
| 面積 | 46.49㎡ |
| 間取り | 2bedrooms(2DK) |
| 管理費 | 月額14,100円 修繕積立金:月額12,190円 |
| 所在階 | 3階 |
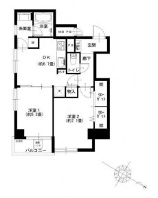
間取りのご紹介です。2DK、46.49㎡。
コンパクトながら2部屋しっかりつくられています。
玄関を入ると右手に扉の半分に鏡のついたシューズBOXがつくられています。
お出かけ前の身だしなみチェックもサッとできて便利です。
収納量も◎!
廊下の壁面にはエコカラットがあしらわれています。ステキですね。
幅は細めですが、奥行のある収納もつくられています。
スリッパや掃除用具を入れておくのに重宝しそうです。
廊下をまっすぐ進み、つきあたり右手にある扉の奥は・・・。
約6.7畳のダイニングキッチン。家具付きで販売しているのでお部屋に設置されている
家具はいただけます♪
ダイニングキッチンの入口スペースにはカウンターと冷蔵庫置場があります。
カウンターのところにはインターフォンのモニターがついています。
来訪者の顔も確認できるので安心です。
真っ白のシステムキッチンは食器洗浄機付き。手荒れが気になるこの時期には
活躍しそうです。収納場所も上下にありますよ。
3口コンロにシンクもワイドでお料理の支度もはかどりそうです!
つづいて洗面室。
ダイニングキッチン内に入口があります。
写真には写ってないのですが、左側に窓があるので自然換気もできます。
これはポイント高いです。
洗面化粧台は3面鏡の裏が一面収納になっています。
散乱しがちなハブラシや洗面まわりのグッズもスッキリ収納いただけます。
鏡をしめれば生活感もバッチリ隠せます。
蛇口はグーッと伸ばせるシャワータイプ。お掃除がしやすいところもうれしいです。
バスルームは追い炊きと浴室乾燥機能付き。
快適なバスタイムがおくれます。
ここから洋室を2部屋ご紹介します。
1部屋目は約7.1畳の広さ。ダブルベッドも置けます。
ピクチャーレールが設置されているのでお好きな絵や写真などを手軽に飾ることが
できますよ。
さらに大型のクローゼットがつくられています。
ハンガーポールが2本、横には高さが変えられる棚もつくられているゴージャスさ。
お部屋がアッという間に片付きそうです。
2部屋目は ダイニングキッチンに隣接した約5.2畳の洋室。
収納はありませんが、2面に窓がついた風通しのいいお部屋です。
壁面にエコカラットもついて雰囲気ステキです。
ダイニングキッチンと洋室をつなげると奥行のある広々とした空間になりました。
洋室はリビングとして利用するのもいいですね。
生活シーンにあわせて独立させて利用したり、つなげて使ったりとフレキシブルに
ご利用いただけます。
最後にバルコニーに出てみます。約2.76㎡、ほぼ西向き。
正面には建物が建っているのですが、右方向を見上げればこんな青空も
見えますよ♪
気になる方は、ゼヒ現地を一度ご見学されてみてはいかがでしょうか。
とにかく便利なところで生活したい方&忙しい方、室内設備充実・渋谷徒歩圏
のこちらのお部屋オススメです。
みなさまのご内見、こころよりお待ちしております!


































































































































































































































































弊社 公式HP
六棒総合研究所
掲載予定物件
価格変更と販売終了物件
ハザードマップ検索
適合証明書.jp
Facebook
Twitter
Instagram