・
□□□□□□□□□□□□□□□□□□□□□□□□□□□□□□□□□□□□□□□
不動産Agent 六棒株式会社です。
弊社ホームページをご覧頂き誠にありがとうございます。
気になるお部屋がございましたら是非お問い合わせください!
・
□□□□□□□□□□□□□□□□□□□□□□□□□□□□□□□□□□□□□□□
・
新宿・渋谷とならぶ山の手3大副都心の一つ、池袋エリアより28階建てのタワーマンション『ライオンズタワー池袋』のご紹介です!
アクセス
JR山手線「大塚」駅徒歩10分
JR山手線・埼京線・湘南新宿ライン・西武池袋線・東武東上線・東京メトロ丸ノ内線・有楽町線・副都心線「池袋」駅徒歩11分
東京メトロ有楽町線「東池袋」駅徒歩9分
ライオンズタワー池袋は3駅複数路線利用可能と交通アクセスに恵まれた立地にあります。その中でも一番便利なのは8路線が乗り入れる池袋駅ではないでしょうか?新宿につぐ利用者数があるそうです。(ウィキペディア調べ)
池袋駅周辺には多くのデパートや百貨店が立ち並んでいます。
西武、パルコ、東武にルミネなどなど!ビッグカメラやヤマダ電機もあり、お買い物場所に困ることはありません。デパートが徒歩で来れる環境ってなかなか貴重です。
ちなみにご存じの方も多いと思いますが、東側に西武、西側に東武があります。
こちらはサンシャイン60通り。池袋周辺の中で非常に活気のあるスポットです。飲食店、ユニクロ、ゲームセンターなどなどが立ち並び昼夜問わずにぎわっています。マンションはこの中を通って行くこともできます♪
サンシャイン60通りを抜けた先にあるのは高くそびえるサンシャインシティ!マンションから徒歩4分の距離です。 ショッピングやグルメはもちろん、水族館、展望台、劇場、ナンジャタウン、プラネタリウムも入っており1日この中で遊べそう。ここで暮らしたら退屈することないですね!
商業施設はたくさんあるけど日常のお買い物はどうなの?気になるところですが、徒歩3分圏内にマルエツプチとまいばすけっと(スーパー)、コンビニ、郵便局、サンシャインシティの中に西友や成城石井があります。以外と暮らしやすい環境です。
最寄駅は池袋のひとつ隣の大塚駅で徒歩10分。都電荒川線の駅も隣接しています。駅ビルのアトレや手軽に入れる飲食店などがありこちらもにぎやかです♪
ライオンズタワー池袋は地下1階付き地上28階建てのタワーマンション。
総世帯数は238戸です。コンシェルジュサービスやゲストルーム、ビューラウンジなど共用施設も充実。24時間管理員常駐・ダブルオートロックでセキュリティ面も安心です。
平成13年の竣工後、平成17年に鉄部塗装工事、平成26年に大規模修繕工事が実施されています。細則はありますが、ペットも一緒に暮らせます。
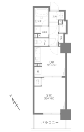
今回ご紹介するお部屋は19階、専有面積57.07㎡の1SLDK。お一人暮らしからスモールファミリーの方まで幅広くお使いいただけるお部屋です。
間取り図(仮)はコチラ ↓ ↓ ↓
(内装プラン作成中のため変更になる可能性があります)
※間取り図は別タブで開きますので、確認しながらご覧いただくことができます。
内装プラン作成中
もうしばらくお待ちください
お先に19階からの眺望だけご紹介!
・
以上でライオンズタワー池袋のご案内を終わります。
いかがでしたでしょうか??
池袋駅から徒歩11分のマンションです。
リノベーション済みという事で室内はとてもキレイですよ (っ・ω・)っ
内見のご予約やご質問などございましたらお気軽にお問い合わせくださいませ。
ご連絡お待ちしております。
弊社、不動産Agent 六棒株式会社では、一般仲介物件は仲介手数料20%~30%OFF!
にてお取り扱いしております!
なるべく沢山のお部屋をホームページに掲載したいと思っておりますが、時間的成約もございますので、残念ながらご紹介できるお部屋の一部しか掲載できておりません。
このホームページに掲載中のお部屋、その他サイト等で気になるお部屋、街を歩いていて気になったマンション等々ございましたら是非、弊社営業部までご相談ください!
~不動産Agent 六棒株式会社の特徴~
・一般仲介物件の仲介手数料は20%~30%OFFにてご案内中です!
・住宅ローンに自信あります!
・頭金10万円より購入できます。是非ご相談下さい!
・お部屋のご見学は車で2~3件まとめて案内します!
・物件数3000件以上、新築戸建、リノベ物件も多数ご用意しております!
過去に販売していたお部屋の概要 こちらのお部屋の販売は終了いたしました
| 価格 | -万円 |
| 面積 | 72.27㎡ |
| 間取り | 2bedroom(2SLDK) |
| 管理費 | 月額19,900円 修繕積立金:月額9,900円 |
| 所在階 | 20階 |
| お問い合わせ・ご内見のご予約はこちらからお気軽にどうぞ | |
今回ご紹介するお部屋は5階、専有面積72.27㎡の2SLDK。23.61㎡のL字バルコニーが付いたファミリータイプのお部屋です。
間取り図はコチラ ↓ ↓ ↓
※間取り図は別タブで開きますので、確認しながらご覧いただくことができます。
只今写真準備中!
もうしばらくお待ちください
・
以上でライオンズタワー池袋のご案内を終わります。
いかがでしたでしょうか??
池袋駅から徒歩11分のマンションです。
リノベーション済みという事で室内はとてもキレイですよ (っ・ω・)っ
内見のご予約やご質問などございましたらお気軽にお問い合わせくださいませ。
ご連絡お待ちしております。
弊社、不動産Agent 六棒株式会社では、
□リノベーションマンションはほぼ全て仲介手数料無料!
□その他一般仲介物件は仲介手数料20%~30%OFF!
にてお取り扱いしております!※弊社の「Agent Fee=仲介手数料」についてはご案内、ご面談の際に営業担当者よりご説明いたします!
なるべく沢山のお部屋をホームページに掲載したいと思っておりますが、時間的成約もございますので、残念ながらご紹介できるお部屋の一部しか掲載できておりません。
このホームページに掲載中のお部屋、その他サイト等で気になるお部屋、街を歩いていて気になったマンション等々ございましたら是非、弊社営業部までご相談ください!
~不動産Agent 六棒株式会社の特徴~
・一般仲介物件の仲介手数料は20%~30%OFFにてご案内中です!
・リノベーションマンションについてはほぼ全て仲介手数料無料です!
・住宅ローンに自信あります!
・頭金10万円より購入できます。是非ご相談下さい!
・お部屋のご見学は車で2~3件まとめて案内します!
・物件数3000件以上、新築戸建、リノベ物件も多数ご用意しております!
過去に販売していたお部屋の概要 こちらのお部屋の販売は終了いたしました
| 価格 | -万円 |
| 面積 | 28.69㎡ |
| 間取り | 1bedroom(1K) |
| 管理費 | 月額8,900円 修繕積立金:月額3,040円 |
| 所在階 | 3階 |
| お問い合わせ・ご内見のご予約はこちらからお気軽にどうぞ | |
間取りのご紹介です。1K、28.69㎡。
シングルの方におすすめです。
室内は只今以下のリフォーム中!
■キッチン・・・新規レンジフード取付、グリル部品交換
■その他・・・新規フローリング(洋室のみ)、クッションフロア貼替、壁・天井クロス貼替、スイッチ・コンセント交換、新規照明器具取付、エアコン内部洗浄、ハウスクリーニング
【内装工事終了予定:2015年9月下旬】
ご内見のご希望・ご質問などございましたら、お気軽にお問い合わせくださいませ♪




















