・
□□□□□□□□□□□□□□□□□□□□□□□□□□□□□□□□□□□□□□□
いつも弊社ホームページをご覧頂き誠にありがとうございます。
NK五反田コータースはお陰様で販売を終了致しました。弊社問合せフォームにてご要望頂けましたら、当お部屋でキャンセル等が発生した場合、他のお部屋が販売になりました際にご紹介させて頂きます。
不動産Agent 六棒株式会社
TEL:03‐5413‐5336
□□□□□□□□□□□□□□□□□□□□□□□□□□□□□□□□□□□□□□□
・
それでは!本日はJR山手線、埼京線、湘南新宿ライン、りんかい線「大崎」駅より
徒歩5分。リノベーションマンションNK五反田コータースをご案内致します!
その前に早速!
□□□□□□□□□□□□□□□□□□□□□□□□□□□□□□□□□□□□□□□
★★★【NK五反田コータース】周辺のハザードマップをCHECK!!★★★
お部屋の記事を読む前に…!周辺のハザードマップをチェックしておきませんか!
NK五反田コータースのハザードマップは★こちらから…どうぞ★
□□□□□□□□□□□□□□□□□□□□□□□□□□□□□□□□□□□□□□□
ハザードマップもご確認いただきましたので、マンションまでご案内していきましょう!
ご紹介するNK五反田コータースは3駅6路線利用可能と交通アクセスに恵まれた立地にあります。最寄は東急池上線の大崎広小路駅ですが、通勤やお出かけを考えると複数路線が使える大崎や五反田駅の利用が多くなりそうです。
大崎駅方面だと駅に隣接する大崎ゲートシティや大崎ニューシティ内にスーパーやドラッグストア、飲食店、各種クリニック、郵便局などが入っているので日常のお買い物や用事はこの中でまとめて済ませられそう♪
五反田駅方面にはスーパーが入った駅ビルのレミィやアトレなどがあり、日常のお買い物から雑貨やお洋服などちょっとしたショッピングも楽しめます。駅直結なので雨の日でも気軽にお買い物できますね♪
ビジネス街なだけあり五反田駅まわりには手軽に入れる飲食店や居酒屋がたくさん。グルメも充実しています。そして五反田なら夜遅くまで飲んでしまっても終電の心配はいりません。なんて便利なんでしょうか・・・!
飲食店が目立ちますが、ツタヤやブックオフ、ユニクロやユザワヤ、催し物会場が入ったTOCなどもマンションから徒歩10分圏内にあります。他にはどんなお店があるのか・・・休日にぐるぐる散策するのも面白そうです。
マンションのすぐお隣は大崎警察署。なんだか安心して暮らせそうな雰囲気です。
NK五反田コータースは昭和46年築、総世帯数164戸の大規模マンション。
外観はブラウンの外壁に白い縁取りや白いバルコニーで統一されており、洋館の雰囲気です♪
山手通りから少し中に入ったところにあるので周囲は静かな住宅街。
このエントランス前は少し坂道になっており、峰原坂という名前がついています。
エントランス前には駐車場と駐輪場があります。空き状況はご確認下さい。
管理人さんも常駐しておりますので、安心ですね。
エレベーターも2基あるので朝夕の混みあう時間帯もスムーズに移動できそうです。
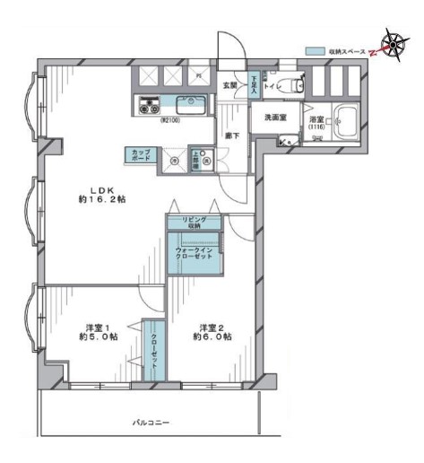
今回ご紹介するお部屋は6階、専有面積47.31㎡の1LDK。おひとり暮らしやDINKSの方にお勧めのお部屋です。
間取り図はコチラ ↓ ↓ ↓
※間取り図は別タブで開きますので、確認しながらご覧いただくことができます。
《リノベーション》
システムキッチン新規交換・洗面化粧台新規交換・トイレ新規交換・ユニットバス新規交換・フローリング新規張替・クロス新規張替・フロアタイル新規張替・照明器具新規交換・建具新規交換・ハウスクリーニング等
では早速行ってみましょう!
【玄関廊下:人感センサー付き照明・姿見付きシューズボックス】
【LDK:約12.9帖・西向き・カウンターキッチン】
【洋室:約6.4帖・西向き・クローゼット付】
【洗面室:三面鏡付き洗面化粧台・洗濯機スペース】
【浴室:追い焚き機能・浴室換気乾燥機付】
・
以上でNK五反田コータースのご案内を終わります。
いかがでしたでしょうか??
大崎駅から徒歩5分のマンションです。
リノベーション済みという事で室内はとてもキレイですよ (っ・ω・)っ
内見のご予約やご質問などございましたらお気軽にお問い合わせくださいませ。
ご連絡お待ちしております。
弊社、不動産Agent 六棒株式会社では、
□リノベーションマンションはほぼ全て仲介手数料無料!
□その他一般仲介物件は仲介手数料20%~30%OFF!
にてお取り扱いしております!※弊社の「Agent Fee=仲介手数料」についてはご案内、ご面談の際に営業担当者よりご説明いたします!
なるべく沢山のお部屋をホームページに掲載したいと思っておりますが、時間的成約もございますので、残念ながらご紹介できるお部屋の一部しか掲載できておりません。
このホームページに掲載中のお部屋、その他サイト等で気になるお部屋、街を歩いていて気になったマンション等々ございましたら是非、弊社営業部までご相談ください!
~不動産Agent 六棒株式会社の特徴~
・一般仲介物件の仲介手数料は20%~30%OFFにてご案内中です!
・リノベーションマンションについてはほぼ全て仲介手数料無料です!
・住宅ローンに自信あります!
・頭金10万円より購入できます。是非ご相談下さい!
・お部屋のご見学は車で2~3件まとめて案内します!
・物件数3000件以上、新築戸建、リノベ物件も多数ご用意しております!
過去に販売していたお部屋の概要 こちらのお部屋の販売は終了いたしました
| 価格 | -万円 |
| 面積 | 35.17㎡ |
| 間取り | 1bedrooms(1LDK) |
| 管理費 | 月額8,580円 修繕積立金:月額8,580円 |
| 所在階 | 4階 |
| お問い合わせ・ご内見のご予約はこちらからお気軽にどうぞ | |
ここで間取り図のご紹介です。
※間取り図は別タブで開きますので、確認しながらご覧いただく事が出来ます。
今回のお部屋は4階、専有面積35.17㎡の1LDK。お一人暮らしやDINKSの方にお勧めのお部屋です。では、さっそく行ってみましょう!
□□□□□□□□□□□□□□□□□□□□□□□□□□□□□□□□□□□□□□□
★★★【NK五反田コータース】周辺のハザードマップをCHECK!!★★★
お部屋の記事を読む前に…!周辺のハザードマップをチェックしておきませんか!
NK五反田コータースのハザードマップは★こちらから…どうぞ★
□□□□□□□□□□□□□□□□□□□□□□□□□□□□□□□□□□□□□□□
エレベーターで4階まで上がると広いエレベーターホールへ出ます。そこからは広い内廊下を通ってお部屋へ。内廊下は天候の影響も受けず、防犯面にも優れているのがいいところです。
玄関ドア横にはモニター付きインターホンが設置されていて、室内から玄関前の様子を確認する事が出来るようになっています。手が離せない時などにわざわざ玄関まで来なくてすむので助かります。
玄関から廊下にかけては明るい色合いでまとめられています。正面の扉は照明のせいでベージュのように見えますが実際は明るいグレーなんですよね。写真難しいです(^-^;
コンパクトながら出っ張りのないすっきりとした玄関です。人感センサーが自動的に照明を点けてくれるので、暗い中手探りでスイッチを探す必要もありません。いつでも明るい玄関が迎えてくれるのは嬉しいですよね♬
シューズボックスはトールタイプ。薄型なのでブーツなどの背の高い靴は入りませんが、陳列棚のように中が見やすいのは靴を選ぶ際に便利ですよ。
では、お部屋の中へ…
こちらは約10.8帖のリビング・ダイニング・キッチン。
玄関ホールとはうってかわった黒に近いフローリングを使用。壁天井が白なので色彩効果による広がりも感じられます。
リビング収納の棚は移動可能。入れる物によってカスタマイズすればより使いやすくなりそうです。奥行きがあって収納力もありそうですね。
キッチンの奥には洗濯機スペース!!洗面室にあるイメージが強いですが、最近では廊下やキッチンにあるのをよく見かけるようになりました。ロールカーテンが付けられているので使わない時は隠しておくことが出来ますよ。
キッチンは壁付けタイプ。場所をとらずにお部屋を広く使えるというメリットがある一方、リビング方向からキッチン内が丸見えというデメリットも持っています。その点こちらは、横向きかつ奥まったところに設置することによってあまり目立たないよう工夫されていますね。綺麗なブルーのタイルが貼られ、LDKの中でのアクセントにもなっています。
収納は調理台下のスライドキャビネットと吊戸棚。スライドキャビネットは出し入れがしやすく奥の方に入れるのも簡単です。ぎっしり詰めても中身が確認しやすいのもいいですね。
浄水機能一体型水栓は切り替えるだけで美味しいお水が蛇口から!お茶やお料理はもちろんのことお米を研いだりにも使いましょう。
コンロは二口、グリル付き。最近は電子レンジやトースターを併用するレシピもたくさんあり、コンロは二つあれば十分じゃないかな~とか思っています。ただし、コンロにかけていた鍋などを置いておくところが欲しいので、鍋敷きなどを用意しておくとよさそうです。
こちらは約10.8帖のリビング・ダイニング・キッチンと、約5.4帖の洋室をつなげた様子。合わせて約16.2帖のワンルームのお部屋のような状態です。お一人暮らしならこんな感じもありかもしれませんね。
とはいえ、扉は素通しガラスなので開けても閉めても見た目はそれほど変わりません。閉めても窓のないLDKに外光が入るのは有難いですね。ベッドルームに料理の匂いなどが付くのが嫌な方は閉めておきましょう。
こちらは約5.4帖の洋室。
LDKと同じフローリングながら、自然の木目を生かしたアクセントウォールによって全然違った雰囲気のお部屋になっています。入口が引き戸なのでお部屋のスペースを無駄なく使えますよ。
木目はプリントではなくパネルが貼られています。最近のプリントはよく出来ているとはいえ、やっぱり違いますよね!洋室の収納はハンガーパイプの付いたクローゼット。
廊下へ戻って洗面室へ…
洗面室には洗面化粧台とトイレ、浴室がまとまっていて脱衣所も兼ねています。
様々な機能と工夫が満載の洗面化粧台もいいですが、シンプルなデザインもいいものですね。髪の毛とかが散らばりやすいところなのでお掃除がしやすいのも高ポイント!二面鏡で後ろが見られないのはちょっと残念です。
鏡の裏はキャビネットになっているので、洗面周りに溢れる細々としたものをスッキリ収納しておくことが出来ますよ。洗面ボウルは遠目に見た時は木製?と思ったのですがもちろん違います(笑)アクリル系人工大理石という素材で出来ているそうです。小物置きのプレートは置いてあるだけなので移動や撤去も自由。使いやすいように使っていただけます。
次はトイレへ…

個性的な床ですね!!!トイレはLIXIL製の洗浄機能一体型。トイレットペーパーや掃除道具を入れるのに便利な吊戸棚も付いています。窓も付いていますが外は内廊下なので開けておくのはお勧めしません(^-^;
まるで海の底にいるような気分になる、トパーズブルーのパネルが際立つ1216サイズの浴室です。暑い時期には涼しそうでいいですね。
追い焚き機能付きユニットバスは「ふろ自動」ボタンを押せばお風呂の準備は完了!追い焚き機能で保温もしてくれるので、動画に夢中で入るのが遅くなっても冷めてしまうこともありません。
滑らかな曲線が心地良さそうな浴槽。
浴室換気乾燥は浴室の換気だけでなく、浴室暖房や雨の日のお洗濯物乾燥など様々な使い方があります。使ったことがない方も多いと思いますが、「涼風」ボタンは暑い季節に大活躍。お風呂で火照った顔に涼しい風が心地良く、ゆっくり浴槽に浸かれば夏バテも吹き飛びますよ♬
それでは最後はバルコニーのご紹介。
奥の洋室の窓から出られます。
広さ4.50㎡、南東向きのバルコニー。
幅はあまりありませんが奥行きがあるので数字よりゆったりと感じます。下まで柵になっているので手すり壁の影になることもなくとても明るいですよ。
前の建物とは距離があり解放感のある眺めが広がっています。間のスペースには綺麗に整えられた緑が植えられていて目にも優しいですね。
・
以上でNK五反田コータースのご案内を終わります。
いかがでしたでしょうか??
大崎駅から徒歩5分のマンションです。
リノベーション済みという事で室内はとてもキレイですよ (っ・ω・)っ
内見のご予約やご質問などございましたらお気軽にお問い合わせくださいませ。
ご連絡お待ちしております。
□□□□□□□□□□□□□□□□□□□□□□□□□□□□□□□□□□□□□□□
★★★【NK五反田コータース】周辺のハザードマップをCHECK!!★★★
お部屋のお問い合わせ前に…!周辺のハザードマップをチェックしておきませんか!
NK五反田コータースのハザードマップは★こちらから…どうぞ★
□□□□□□□□□□□□□□□□□□□□□□□□□□□□□□□□□□□□□□□
弊社、不動産Agent 六棒株式会社では、
□リノベーションマンションはほぼ全て仲介手数料無料!
□その他一般仲介物件は仲介手数料20%~30%OFF!
にてお取り扱いしております!※弊社の「Agent Fee=仲介手数料」についてはご案内、ご面談の際に営業担当者よりご説明いたします!
なるべく沢山のお部屋をホームページに掲載したいと思っておりますが、時間的成約もございますので、残念ながらご紹介できるお部屋の一部しか掲載できておりません。
このホームページに掲載中のお部屋、その他サイト等で気になるお部屋、街を歩いていて気になったマンション等々ございましたら是非、弊社営業部までご相談ください!
~不動産Agent 六棒株式会社の特徴~
・一般仲介物件の仲介手数料は20%~30%OFFにてご案内中です!
・リノベーションマンションについてはほぼ全て仲介手数料無料です!
・住宅ローンに自信あります!
・頭金10万円より購入できます。是非ご相談下さい!
・お部屋のご見学は車で2~3件まとめて案内します!
・物件数3000件以上、新築戸建、リノベ物件も多数ご用意しております!
過去に販売していたお部屋の概要 こちらのお部屋の販売は終了いたしました
| 価格 | -万円 |
| 面積 | 46.72㎡ |
| 間取り | 1bedrooms(1LDK) |
| 管理費 | 月額11,390円 修繕積立金:月額11,390円 |
| 所在階 | 1階 |
| お問い合わせ・ご内見のご予約はこちらからお気軽にどうぞ | |
ここで間取り図のご紹介です。
※間取り図は別タブで開きますので、確認しながらご覧いただく事が出来ます。
□□□□□□□□□□□□□□□□□□□□□□□□□□□□□□□□□□□□□□□
★★★【NK五反田コータース】周辺のハザードマップをCHECK!!★★★
お部屋の記事を読む前に…!周辺のハザードマップをチェックしておきませんか!
NK五反田コータースのハザードマップは★こちらから…どうぞ★
□□□□□□□□□□□□□□□□□□□□□□□□□□□□□□□□□□□□□□□
今回のお部屋は1階、間取りは1LDK、専有面積は46.72㎡。お一人暮らしの方にお勧めのお部屋です。では、早速行ってみましょう!
お部屋は1階なので、エントランスを入ったらそのまま内廊下を進むとお部屋に到着です。
玄関ドア横にはモニター付きインターホンが設置されて、お部屋の中から訪問者を確認する事が出来ます。映像で確認してから応対するかを決められるので、しつこいセールスなどにつかまる事もありませんね。
廊下が横に伸びている玄関口からお部屋の中が見えないタイプ。最近は宅配便やフードデリバリーの利用機会も増えていますのでこれは有り難いですね。正面のニッチカウンターが正に「家の顏」になりそう。センス良く飾りたいものです^^;)
玄関ドアには安心のダブルロック。開けづらさと共に狙われづらくなる効果もあるそうですよ。シューズボックスはトールタイプ。収納力は抜群で、可動式の棚を調節すればブーツなどでもそのまま収納可能です。
廊下左にはオープンタイプのクローゼット。コートなどのアウターをここで脱げば、花粉やウィルスなどの余計な物を居室内に持ち込まなくて済みますね(^^)右側には収納棚。ここも棚は可動式なので、入れる物によって調節しましょう。
ではお部屋の中へ…
ドアを開けて左へ進みます。
こちらは約12.8帖のリビング・ダイニング・キッチン。縦長で手前からキッチン、ダイニング、リビングと使える、家具のレイアウトがしやすいお部屋です。明るいフローリングでナチュラルな雰囲気のお部屋は、いろいろな家具を合わせることが出来そうですね。
西向きのバルコニーに面した窓際のリビング。サイズ感もこじんまりとしたちょうどいい感じです。ダイニング横の棚は奥行きがなく、収納というより飾り棚に近いイメージ。本棚にはピッタリかもしれませんね。
キッチンは人気のカウンタータイプ。開放的でコミュニケーションが取りやすく、調理中でもご家族との会話が途切れません。
調理台下は食器洗浄乾燥機とスライドキャビネットになっています。食洗機は洗い物による手荒れに悩む方の救世主!なにより、みんなで食後をのんびり過ごせるのが最高ですよね♬ スライドキャビネットは開口部が大きく、大きな鍋なども楽に出し入れ可能ですよ。ぎっしり詰めても中身が確認しやすいのも助かります。
水栓は浄水機能付きシャワー水栓。お料理にお茶にと気軽に美味しいお水を使えますね。ヘッド部分が伸びるので、シンクを流したりにも便利ですよ。
コンロは3口、グリルも付いています。グリルってお魚グリルと呼ばれるほど魚イメージが強いですが、何を焼いても美味しく仕上がる優れものなんですよ。我が家でもスペアリブや焼き鳥を焼いたりしています。肉食家族なもので(笑)
換気扇は調理を始める少し前から回し始めると効果的。煙を吸うというより、外から換気扇への空気の流れを作って油などの粒子を外に出さないイメージだそうです。調理台後ろには冷蔵庫や家電ラックのスペースも確保されていました。
では、次のお部屋へ…
こちらは約5.7帖の洋室。LDKと同じバルコニーに面したお部屋です。大きめのベッドを置いてもまだ余裕がありますね。
収納は間口が広くて使いやすそうなクローゼット。奥行きもあってキャリーバッグやスーツケースなどの大きな物も入ります。衣装ケースなどで収納力アップもアリですね。
次はトイレへ…
洗浄便座付き。INAX製のシャワートイレです。国産で最初に洗浄便座を発売したのはINAXさんの前身の伊奈陶器なんですよ。トイレットペーパーなどのストックに便利な吊戸棚も付いています。
次は洗面室へ…
洗面室には洗面台の他に洗濯機スペース、浴室、リネン棚がまとまっていて、脱衣所も兼ねています。入浴中にお洗濯が出来れば効率的ですね。
洗面台は三面鏡付き。上部の照明のおかげで、鏡を見る時に影になったりする事もありません。
収納は洗面台下と三面鏡裏のキャビネット。いろいろなタイプの収納があって、大きな物から細かい物までバランスよく収納出来そうです。
水栓はハンドシャワータイプ。広い洗面ボウルを隅々まで流せます。
浴室は木目のアクセントパネルを使った落ち着いた雰囲気。リラックスしたバスタイムを過ごせそう♬
追い焚き機能付きで「ふろ自動」ボタン一つでお風呂を沸かす事が出来ます。そのまま保温もしてくれるので、いつでも温かいお風呂に入れますよ。ご家族でお風呂の時間が合わないとかあるあるですよね^^;)
浴室換気乾燥機は浴室の換気の他に、寒い季節の浴室暖房や雨天や花粉の季節のお洗濯物乾燥など様々な使い方があります。暑い季節は「涼風」ボタンで快適なバスタイムを!残念ながら冷房ではありませんが、火照った顏を風が心地良く冷やしてくれますよ♬
それでは、最後はバルコニーのご紹介。
LDK、洋室どちらの窓からでも出られます。
広さは9.00㎡、西向き。二部屋分の幅と、広い奥行きを持つ広々としたバルコニーです。手すりも下まで柵になって開放的ですね。物干し金具は付いていませんので、干す場合は物干しスタンドなどを用意する必要がありそうです。
バルコニーの外はこんな感じ。見晴らしがいいという訳ではありませんが、緑も多くお庭が付いているような雰囲気じゃありませんか?個人的には心地よい眺めです(^^♪
・
以上でNK五反田コータースのご案内を終わります。
いかがでしたでしょうか??
大崎駅から徒歩5分のマンションです。
リノベーション済みという事で室内はとてもキレイですよ (っ・ω・)っ
内見のご予約やご質問などございましたらお気軽にお問い合わせくださいませ。
ご連絡お待ちしております。
□□□□□□□□□□□□□□□□□□□□□□□□□□□□□□□□□□□□□□□
★★★【NK五反田コータース】周辺のハザードマップをCHECK!!★★★
お部屋のお問い合わせ前に…!周辺のハザードマップをチェックしておきませんか!
NK五反田コータースのハザードマップは★こちらから…どうぞ★
□□□□□□□□□□□□□□□□□□□□□□□□□□□□□□□□□□□□□□□
弊社、不動産Agent 六棒株式会社では、
□リノベーションマンションはほぼ全て仲介手数料無料!
□その他一般仲介物件は仲介手数料20%~30%OFF!
にてお取り扱いしております!※弊社の「Agent Fee=仲介手数料」についてはご案内、ご面談の際に営業担当者よりご説明いたします!
なるべく沢山のお部屋をホームページに掲載したいと思っておりますが、時間的成約もございますので、残念ながらご紹介できるお部屋の一部しか掲載できておりません。
このホームページに掲載中のお部屋、その他サイト等で気になるお部屋、街を歩いていて気になったマンション等々ございましたら是非、弊社営業部までご相談ください!
~不動産Agent 六棒株式会社の特徴~
・一般仲介物件の仲介手数料は20%~30%OFFにてご案内中です!
・リノベーションマンションについてはほぼ全て仲介手数料無料です!
・住宅ローンに自信あります!
・頭金10万円より購入できます。是非ご相談下さい!
・お部屋のご見学は車で2~3件まとめて案内します!
・物件数3000件以上、新築戸建、リノベ物件も多数ご用意しております!
過去に販売していたお部屋の概要 このお部屋の販売は終了いたしました。
| 価格 | -万円 |
| 面積 | 63.57㎡ |
| 間取り | 2bedrooms(2LDK) |
| 管理費 | 月額15,490円 修繕積立金:月額15,490円 |
| 所在階 | 11F |
| お問い合わせ・ご内見のご予約はこちらからお気軽にどうぞ | |
ここで間取り図のご紹介です。
※間取り図は別タブで開きますので、確認しながらご覧頂くことが出来ます。
□□□□□□□□□□□□□□□□□□□□□□□□□□□□□□□□□□□□□□□
★★★【NK五反田コータース】周辺のハザードマップをCHECK!!★★★
お部屋の記事を読む前に…!周辺のハザードマップをチェックしておきませんか!
NK五反田コータースのハザードマップは★こちらから…どうぞ★
□□□□□□□□□□□□□□□□□□□□□□□□□□□□□□□□□□□□□□□
今回ご紹介するお部屋は11階、間取りは2LDK、専有面積は63.57㎡。最上階角部屋、全居室に窓のあるお部屋です。収納も豊富ですね♬ では、早速行ってみましょう!
エレベーターで11階まで上がり内廊下を進むと、玄関に到着です。
玄関ドア横にはモニター付きインターホンが設置されていて、お部屋の中から訪問者を確認する事が出来ます。映像を見てから応対するかを決められるので安心ですよ。
玄関ホールは、木目を生かしたフローリングや建具で高級感のある落ち着いた雰囲気。広さもあってゆとりも感じます。
玄関には人感センサー設置。自動的にライトを点けてくれるので、もう暗い中スイッチを探す必要もありません。なにより、いつでも明るい玄関が迎えてくれるのが嬉しいですよね(^^)シューズボックスはトールタイプ。下にはフットライトも付いて足元を明るく照らしてくれています。
では、先へ進みます…
ドアを開けてすぐには収納が設置されていました。幅が広く棚も可動式なので、大きな物から細かい物まで収納しやすくなっています。下を大きく開ければ掃除機なども入りそう。
こちらは約16.2帖のリビング・ダイニング・キッチン。窓が二つ並んだワイドスパンのお部屋です。ブラウン系でまとめられたナチュラルテイストのお部屋には、幅広い家具を合わせる事が出来そうです。
窓の外はルーフバルコニーの様になっています。出る事は出来ませんが、遮る物がない空間があるのは開放的ですよ。
縦長のお部屋でレイアウトもしやすそう。キッチン横の窓際がダイニング、それ以外がリビングになると思います。梁もいい感じにゾーンニングに一役買っていますね。
キッチンは壁付けタイプですが、カップボードなどで仕切られカウンターキッチンの様になっています。どうしても生活感の出るキッチン内がリビングから見えづらいのはいいですよね。では、キッチンを詳しく見ていきましょう。
調理台はお部屋の雰囲気に合わせたブラウンパネル使用。
調理台下にはスライドキャビネットと食器洗浄乾燥機。引き出しタイプは出し入れがしやすく、大きな鍋なども簡単に収納可能です。憧れの食洗機! 洗い物はお任せして、食後の時間をみんなでのんびり過ごしましょう♬
上部には換気扇と吊戸棚。換気扇は調理を始める少し前から回していると効果的らしいですよ。
コンロは3口、グリルも付いて調理器具は充実。グリルって魚のイメージが強いですが、何を焼いても美味しくできる優れものなんですよ。レシピもたくさんありますので、ご興味のある方は是非調べてみて下さい。
幅もあって作業スペースも十分。水栓は浄水機能付きシャワー水栓。切り替えるだけで気軽に美味しいお水を使えます。ヘッドが伸びるので、シンクを流したりにも便利ですよ。
調理台後方には冷蔵庫スペースとカップボード。カップボードの上は作業スペースとして使えますし、下のスペースにはゴミ箱などを置く事も出来そうです。
パントリーかな?と思って開けた引き戸の向こうは、廊下でした。買い物をして帰って来たら直接キッチンに入れるんですね!冷蔵庫も近くてこれは便利♬
次は、リビング奥のドアを…
こちらは約5帖の洋室。北西二面採光の明るく風通しの良いお部屋です。北向きって暗いイメージがあるかもしれませんが、直射日光が入らないだけで意外と明るいんですよ。条件によっては、反射した光で一日中安定した明るさをもたらしてくれる事もあります。
北側の窓の外はLDKと同じルーフバルコニーです。収納は間口が広くて使いやすそうなクローゼット。奥行きもあるので衣装ケースなどで収納力アップも出来ますよ。
では、次のお部屋へ…
廊下から入って目の前のドアです。
こちらは約6帖の洋室。西向きバルコニーに面したお部屋です。ベッド二つは入る広さなのでメインのベッドルームに如何でしょう。
収納はウォークインクローゼット!!L字型にハンガーポールが設置された大きな収納です。キャリーバッグやスーツケースなどの嵩張る物も楽々入りますよ。
廊下に戻ってすぐの扉は洗濯機スペース。扉を閉めればここに洗濯機が隠れているなんて絶対分かりませんよね^^;)右隣の引き戸はキッチンに繋がっていますので、家事動線的にもアリな位置だと思います。
次は洗面室へ…
洗面室には洗面台の他に浴室とトイレがまとまっていて、脱衣所も兼ねています。
洗面台の収納はミラー横のキャビネットと洗面台下。細々した物が多くなりがちな洗面廻りには、キャビネットがあると助かります。
コーナーに付いた水栓で洗面ボウルを広く使う事が出来ます。ボウルは一体型なのでお掃除も楽々ですよ。
トイレにはお洒落なタイルのアクセントが付いています。これだけで全然印象が違ってきますよね(^^)
トイレットペーパーなどの収納に便利な収納棚は、縦型で取り出しやすいのが嬉しいです。もちろん洗浄便座付き。INAX製のシャワートイレをセレクト。
浴室は木目の鏡面仕上げパネルを使用。映り込んだライトが綺麗ですね。リラックスしたいバスタイムにピッタリです。
追い焚き機能付きユニットバスは「自動」ボタンひとつでお風呂を沸かせます。追い焚き機能による保温もしてくれるので、ご家族でお風呂の時間がバラバラになっても大丈夫、いつでも温かいお風呂に入れますよ。
1116サイズの浴槽。
浴室換気乾燥機は浴室換気の他にも、寒い季節の浴室暖房、雨天や花粉の季節のお洗濯物乾燥など様々な使い方が出来ます。そんな中、暑い季節に活躍してくれそうなのが「涼風」ボタン。冷房ではありませんが濡れた頭を冷やしてくれ、熱中症予防になりそうです。
それでは、最後はバルコニーのご紹介。
二つの洋室のどちらからでも出る事が出来ます。
広さは9.00㎡、北西向き。二部屋にまたがる広々としたバルコニーです。屋根がないので陽当りも抜群ですね。ただし、お洗濯物を干す時には注意が必要ですよ^^;)
バルコニーからの眺望です。さすが最上階、開放的な眺めが広がっていますね。ちなみに左に見えるのは立正大学。キャンパスって活気があっていいですよね。元気をもらえそうな気がします(^^)
・
以上でNK五反田コータースのご案内を終わります。
いかがでしたでしょうか??
大崎駅から徒歩5分のマンションです。
リノベーション済みという事で室内はとてもキレイですよ (っ・ω・)っ
内見のご予約やご質問などございましたらお気軽にお問い合わせくださいませ。
ご連絡お待ちしております。
□□□□□□□□□□□□□□□□□□□□□□□□□□□□□□□□□□□□□□□
★★★【NK五反田コータース】周辺のハザードマップをCHECK!!★★★
お部屋のお問い合わせ前に…!周辺のハザードマップをチェックしておきませんか!
NK五反田コータースのハザードマップは★こちらから…どうぞ★
□□□□□□□□□□□□□□□□□□□□□□□□□□□□□□□□□□□□□□□
弊社、不動産Agent 六棒株式会社では、一般仲介物件は仲介手数料20%~30%OFF!
にてお取り扱いしております!
なるべく沢山のお部屋をホームページに掲載したいと思っておりますが、時間的成約もございますので、残念ながらご紹介できるお部屋の一部しか掲載できておりません。
このホームページに掲載中のお部屋、その他サイト等で気になるお部屋、街を歩いていて気になったマンション等々ございましたら是非、弊社営業部までご相談ください!
~不動産Agent 六棒株式会社の特徴~
・一般仲介物件の仲介手数料は20%~30%OFFにてご案内中です!
・住宅ローンに自信あります!
・頭金10万円より購入できます。是非ご相談下さい!
・お部屋のご見学は車で2~3件まとめて案内します!
・物件数3000件以上、新築戸建、リノベ物件も多数ご用意しております!
過去に販売していたお部屋の概要 このお部屋の販売は終了いたしました。
| 価格 | -万円 |
| 面積 | 47.31㎡ |
| 間取り | 1bedrooms(1LDK) |
| 管理費 | 月額11,540円 修繕積立金:月額11,540円 |
| 所在階 | 1F |
| お問い合わせ・ご内見のご予約はこちらからお気軽にどうぞ | |
ここで間取り図のご紹介です。
※間取り図は別タブで開きますので、確認しながらご覧いただく事が出来ます。
□□□□□□□□□□□□□□□□□□□□□□□□□□□□□□□□□□□□□□□
★★★【NK五反田コータース】周辺のハザードマップをCHECK!!★★★
お部屋の記事を読む前に…!周辺のハザードマップをチェックしておきませんか!
NK五反田コータースのハザードマップは★こちらから…どうぞ★
□□□□□□□□□□□□□□□□□□□□□□□□□□□□□□□□□□□□□□□
今回のお部屋は1階、間取りは1LDK、専有面積は47.31㎡となります。
では、早速行ってみましょう!
1階ということで、そのまま内廊下を進みます。
玄関に到着です。
カメラ付きインターホンが設置されていて、お部屋の中から訪問者を確認する事が出来ます。いちいち玄関まで来る必要がないのがいいですね。
それではお邪魔します。
ドアを開けると、縦に長い玄関が!その向こうには短い廊下とドアが見えます。
振り返って玄関内の様子です。
こうして見ると玄関たたきの長さがわかり易いと思います。
中に入った時に照明を点けてくれたのは、人感センサーです。いつでも明るい玄関が迎えてくれるのは嬉しいですよね♬
たたきの途中にはシューズインクローゼットがありました。扉などが無いので、風通し抜群です。棚の高さ調整も可能ですが、ブーツなどは床に置いても良さそうですね。
では、正面のドアを開けてみましょう。
こちらは約12帖のリビング・ダイニング・キッチン+約5.5帖の洋室となります。
右奥の方が洋室部分です。二つの大きな窓がある明るいお部屋になっていますね。
このモニターに玄関前の様子が映ります。思ったより綺麗に映って、こういう物もどんどん進歩しているんだなと感心したりしました。お部屋の真ん中辺りなので、どこからでもすぐ駆けつけられますよ。
合わせて約17.5帖。さすが広いです♪♪
洋室には扉の無い、オープンになったウォークインクローゼットが…奥にはハンガーポール、左側には可動棚が設置されています。アクセントのクロスが個性的ですね(^^)
リビングもフローリングやクロスはオーソドックスですが、天井がかなり主張強めです。個人的にはこの感じ好きですが、皆様は如何ですか?
リビングと洋室の仕切り戸は壁部分に収納されていて、引き出すと…
独立した洋室として使う事が出来ます。扉はガラスばりなので丸見えですが、冷暖房効率や臭いの事を考えると状況に応じて使い分けしたいところですね。
リビング側から…
落ち着いた感じになってこれはこれでgoodです(^^)
今度は、キッチンを見ていきましょう。
黒っぽいタイルがアクセントになったキッチンです。
収納は吊戸棚と調理台下になります。吊戸棚はどうしても出し入れがしづらいので、あまり使わない物を入れるか、収納グッズなどの助けを借りましょう。
水栓は浄水機能付きシャワー水栓です。
切り替えるだけで水道水が美味しいお水に早変わり。ノズルが伸びてシンクのお掃除などにも便利ですよ。
コンロは3口、片面焼きグリルが付いています。
グリルってお魚イメージが強いですが、色々なお料理に使えるらしいですよ。ご興味のある方は是非調べてみて下さい。私のお気に入りは、ピーマンやトマトなどの野菜にオリーブオイルを塗って焼いた物です。美味しいですよ♬
お料理中は換気扇をお忘れなく。
奥には冷蔵庫スペース、調理台後方には食器棚や家電ラックのスペースがありました。
では、次のドアを開けてみましょう。
キッチン近くのドアです。
洗面室となります。
造り付けの洗面台です。
収納は洗面台の下とミラーキャビネットです。細かい物が多くなりがちな洗面周りには、ミラーキャビネットの様な収納が嬉しいですよね。
水洗はハンドシャワータイプ。洗面ボウルが広めなので、寝ぐせ直しくらいなら出来ますよ。
洗濯機スぺ―スには吊戸棚が付いていて、洗剤や柔軟剤などの洗濯関係の物をまとめて置いておく事が出来ます。
次は、浴室を…
ブラウンのパネルを使用した落ち着いた雰囲気で、いいリラックスタイムを過ごせそうですね♬
追い焚き機能が付いていますので、いつでも温かいお風呂に入れます。
浴室乾燥機能は浴室のカビ予防だけでなく、雨天のお洗濯物乾燥やヒートショック予防など様々な働きをしてくれます。どんどん使っていきましょう。
次はトイレです。
もちろん温水洗浄便座も完備していますよ。ちなみに、ウォシュレットは商品名だってご存知でしたか?これはINAXさんの製品なので『シャワートイレ』が正解です。
それでは、最後にバルコニーへ出てみましょう。
リビング、洋室どちらの窓からも出る事が出来ます。
9.00㎡のバルコニーになります。
幅も奥行きもあってとても広々としていますね。物干し金具も設置されていてお洗濯物も干せるようです。
バルコニーからの眺めです。
1階なので開放的という訳にはいきませんが、緑豊富で公園の中にいるような気分ですよ(^^)
・
以上でNK五反田コータースのご案内を終わります。
いかがでしたでしょうか??
大崎駅から徒歩5分のマンションです。
リノベーション済みという事で室内はとてもキレイですよ (っ・ω・)っ
内見のご予約やご質問などございましたらお気軽にお問い合わせくださいませ。
ご連絡お待ちしております。
□□□□□□□□□□□□□□□□□□□□□□□□□□□□□□□□□□□□□□□
★★★【NK五反田コータース】周辺のハザードマップをCHECK!!★★★
お部屋のお問い合わせ前に…!周辺のハザードマップをチェックしておきませんか!
NK五反田コータースのハザードマップは★こちらから…どうぞ★
□□□□□□□□□□□□□□□□□□□□□□□□□□□□□□□□□□□□□□□
弊社、不動産Agent 六棒株式会社では、
□リノベーションマンションはほぼ全て仲介手数料無料!
□その他一般仲介物件は仲介手数料20%~30%OFF!
にてお取り扱いしております!※弊社の「Agent Fee=仲介手数料」についてはご案内、ご面談の際に営業担当者よりご説明いたします!
なるべく沢山のお部屋をホームページに掲載したいと思っておりますが、時間的成約もございますので、残念ながらご紹介できるお部屋の一部しか掲載できておりません。
このホームページに掲載中のお部屋、その他サイト等で気になるお部屋、街を歩いていて気になったマンション等々ございましたら是非、弊社営業部までご相談ください!
~不動産Agent 六棒株式会社の特徴~
・一般仲介物件の仲介手数料は20%~30%OFFにてご案内中です!
・リノベーションマンションについてはほぼ全て仲介手数料無料です!
・住宅ローンに自信あります!
・頭金10万円より購入できます。是非ご相談下さい!
・お部屋のご見学は車で2~3件まとめて案内します!
・物件数3000件以上、新築戸建、リノベ物件も多数ご用意しております!
過去に販売していたお部屋の概要 このお部屋の販売は終了いたしました。
| 価格 | -万円 |
| 面積 | 58.21㎡ |
| 間取り | 2bedrooms(2LDK) |
| 管理費 | 月額13,840円 修繕積立金:月額13,840円 |
| 所在階 | 2階 |
| お問い合わせ・ご内見のご予約はこちらからお気軽にどうぞ | |
エレベーターに乗っている間に、間取り図の紹介です。
※間取り図をクリックすると別画面で表示されるので、以降確認しながら見る事が出来ます!
今回のお部屋は2階、間取りは2LDK、専有面積は58.21㎡となります。
2階でエレベーターを降ります。
エレベーター前にはモニターがあってエレベーター内の様子が映し出されていました。個室内に人の目があるのは安心ですね。
ちなみに、2階のエレベーターホールから左手に進むと…なんと2階にも駐輪場があります!こちらは自由にとめるスタイルのようですね。
では、室内へご案内します。
中間調のフローリングにダークブラウンの建具の、落ち着いた雰囲気のお部屋です。玄関の床の感じも渋くて素敵ですね。正面のドアが少し右にずれていて室内が見えづらくなっているところも、プライバシーに配慮されていてgoodです。
玄関脇にはシューズボックスが…
トールタイプで収納力があり、棚の高さが変えられるのでブーツなどでも収納可能です。玄関をスッキリさせておけそうですね。
シューズボックス横のこのスペースも、傘立てを置いたり出来て助かります(^^)
シューズボックスの隣にはウォークインクローゼットがありました。
クローゼットといってもハンガーパイプは無く、棚が天井まで設置されています。大きな収納という感じですね。棚の高さ調整が可能ですので、何でも自由に入れられそうです。
では次へ…
廊下の反対側のドアです。
洗面室となります。
鏡は左右を開けば三面鏡となります。更に開くと収納が隠れていました。『ミラーキャビネット』っていうらしいですよ。
広めの洗面ボウルはつなぎ目がなく、お掃除も楽々です。
洗面台下には扉の収納と…
引き出しが二つ付いていました。引き出しは出し入れがしやすいので、よく使う物を入れておきたいですね。
洗面台横には洗濯機スペースがあります。
上部には吊戸棚があり、洗剤や洗濯ネットなどの洗濯関係の物をまとめておけるようになっています。扉が棚の高さより少し大きくしてあって、そこに指を引っかけて開けるんですね。手が濡れてたりしても開けやすく、よく考えられてるなと感心します(^^)
では浴室を見てみましょう。
正面の壁がブラウンで大人の雰囲気ですね(^^) 床は乾きやすくて冷たくないサーモフロア。踏み心地最高です♬
追い焚き機能がありますので、いつでも温かいお風呂に入れますよ。私は子供時代に大家族だったもので、『冷めるから早く入っちゃいなさいよ!』って言われ続けてたんですよ…追い焚き機能、夢のようです(笑)
浴室乾燥機は、浴室のカビ予防や雨天のお洗濯物乾燥、ヒートショック予防などいろいろな役に立ってくれますよ。いちど説明書を読む事をおススメします!
では次のドアを…
トイレになります。
もちろんウォシュレットも完備しています。今の時代必要ですよね(^^)
では次は…
突き当り、お洒落なガラスの入ったドアを開けてみましょう。
こちらが約14.7帖のリビング・ダイニング・キッチンとなります。
バルコニーに面した明るいお部屋ながら、全体的には落ち着いた、男性的な雰囲気のあるお部屋ですね。夜の方が似合う気がしますが・・・どう思われますか?
このアクセントウォールがいいですね。アクセントといいながら、このお部屋のイメージをほぼ決めてしまうほど存在感があります。
照明は左右に間接照明、真ん中にスポットライトが設置されています。照明にもこだわりを感じます。
リビングからキッチン方向を…
次はキッチンを詳しく見ていきましょう。
調理台後方、右側の窪みに冷蔵庫、左側には食器棚や家電ラックという感じでしょうか。
ダークブラウンの鏡面仕上げでお部屋のイメージにピッタリですね。
食洗機も完備されていますよ!洗い物はお任せして、食後はのんびり過ごしましょう♬
食洗機の中ってじっくり見たことありませんでしたが…なんか凄いですね。閉めた後に中で何が起こっているのか気になります^^;)
様々な大きさの引き出し収納が付いています。整理グッズなどを使うと使いやすそうですね。100均へGO!(笑)
コンロは三口、片面焼きグリルも付いています。
三つもあればコンロ待ちの心配もありませんね。
カウンターキッチンですので、お料理中は換気扇をお忘れなく。
ここからの景色、なんかいいんですよね。ホッコリします(*´ω`)
では、次のお部屋へ…
キッチンそばの引き戸です。
約4.5帖の洋室です。
こちらのお部屋は窓が無いんですね。
クローゼットと収納棚、二つの収納がありました。
収納棚は棚が可動式なので、入れる物によって調整出来ますよ。
では次のお部屋へ行ってみます。
バルコニー側の引き戸です。
こちらが約5帖の洋室です。
南と東の二面に窓がある明るいお部屋です。東側の窓からはバルコニーへ出る事も出来ますよ。
クローゼットは、先程のお部屋の物より少し大きいような気がします。使いやすい大きさですよね。
それでは、最後にバルコニーへ出てみましょう!
リビングと洋室の二部屋にまたがる、幅も奥行きもある広々としたバルコニーです。
外の眺めはこんな感じです。
2階ですので素晴らしい眺めという訳にはいきませんが、樹木の緑が近くて個人的には悪くないと思いますよ♬
・
・
以上でNK五反田コータースのご案内を終わります。
いかがでしたでしょうか??
大崎駅から徒歩5分のマンションです。
リノベーション済みという事で室内はとてもキレイですよ (っ・ω・)っ
内見のご予約やご質問などございましたらお気軽にお問い合わせくださいませ。
ご連絡お待ちしております。
弊社、不動産Agent 六棒株式会社では、
□リノベーションマンションはほぼ全て仲介手数料無料!
□その他一般仲介物件は仲介手数料20%~30%OFF!
にてお取り扱いしております!※弊社の「Agent Fee=仲介手数料」についてはご案内、ご面談の際に営業担当者よりご説明いたします!
なるべく沢山のお部屋をホームページに掲載したいと思っておりますが、時間的成約もございますので、残念ながらご紹介できるお部屋の一部しか掲載できておりません。
このホームページに掲載中のお部屋、その他サイト等で気になるお部屋、街を歩いていて気になったマンション等々ございましたら是非、弊社営業部までご相談ください!
~不動産Agent 六棒株式会社の特徴~
・一般仲介物件の仲介手数料は20%~30%OFFにてご案内中です!
・リノベーションマンションについてはほぼ全て仲介手数料無料です!
・住宅ローンに自信あります!
・頭金10万円より購入できます。是非ご相談下さい!
・お部屋のご見学は車で2~3件まとめて案内します!
・物件数3000件以上、新築戸建、リノベ物件も多数ご用意しております!
以下はメイキングです。
∧,_,∧
(`・ω・)つ━☆・*。
⊂ ノ ・゜+.
し’´J *・ °”
今回は工事中のお部屋にお邪魔してみました。
お部屋は、エレベーターを降りてすぐ右になります。
シートが一面に敷いてありますね。
では、入ってみたいと思います。
壁などが何もない状態見ると、とても広いです!
陽当り良好物件なだけに、窓側にいくととても明るいですね。
ベランダに工事用具が置いてありましたが、このくらいの荷物を置いていも
まだ余裕があります。バルコニーは広めなので、洗濯物をたくさん干せそうです。
目の前は駐車場になります。
近所には大学があるので学生さんがたくさんいましたよ。
過去に販売していたお部屋の概要 このお部屋の販売は終了いたしました。
| 価格 | -万円 |
| 面積 | 56.7㎡ |
| 間取り | 2bedrooms(2LDK) |
| 管理費 | 月額13,840円 修繕積立金:月額13,840円 |
| 所在階 | 6階 |
| お問い合わせ・ご内見のご予約はこちらからお気軽にどうぞ | |
それではここで間取り図をご紹介しておきますね。
間取り図は別タブで開きますので、間取り図を見ながらご覧頂ければと思います(^^)
お部屋は6階、間取りは2LDK、専有面積は56.7㎡となってます。
北・西・東の3方向の角部屋ですよ。
エレベーターを降りて、内廊下を進むと…
玄関に到着しました。
カメラ付きインターフォンがついてますので、ちゃんと確認してから開けましょう!
玄関内はこんな感じ。
左側にはシューズボックスがあります。
トールタイプなので収納力は問題なしですね(^^)
人感センサーです。
これでライトの点けっぱなしも防げますし、帰って来て真っ暗は寂しいですからね(笑)
短めの廊下にはドアがふたつ。
まずは左側のドアを開けてみましょう。
こちらが約14.4帖のリビング・ダイニング・キッチンになります。
まず目に入るのはキッチンですね。
奥からは光が差し込んでいます。
次はダイニングです。
リビングとダイニングが半分仕切られてるんですね。
珍しい間取りですが、落ち着けていいかもしれません(*^^*)
こちらがリビング部分です。
初めからエアコンがついていて助かります。
時期によっては、設置工事に何週間もかかったりすることがありますからね^^;
リビング側から見た感じ・・・やっぱりイイかも♬
キッチンの近くに収納があります。
棚は高さ調整可能ですので、いろいろ工夫してみましょう。
上には何か飾るのも良し、実用的に使うのも良しです。
ひと昔前なら絶対電話を置く場所ですよね(笑)
キッチンを詳しく見てみましょう。
カウンターキッチンなので開放感があって広く感じます。
シンク前からはバルコニーまで見通せるんですね。
コンロは3口、グリルがついています。
グリルってお魚イメージ強いと思いますが、他にも使い道があるんですよ。
たとえば、お肉やお野菜も焼けますし、トーストだったり、揚げ物の温め直しなんかにも使えます。それどころか、ヘルシーとんかつなるものも作れるとか(;^ω^)気になる方はググってみて下さい。
収納はコンロとシンクの下にあります。
コンロ脇の小さな引き出しって撮影の時によく開け忘れたりするんですけど、実際には結構使えますよね。ごめんなさい(笑)
食洗機がついてます!
憧れなんですよね食洗機^^;
あまりに楽で使いだしたらやめられないとか、よく聞くので…
水栓は浄水機能付きのハンドシャワータイプです。
買わなくても美味しいお水が飲めるんですね♬
オープンキッチンでなので換気扇をお忘れなく!
それでは次のお部屋を見てみましょう。
リビング側にあるドアを開けると…
こちらが5.2帖の洋室となります。
2方向に窓があってとても明るいお部屋ですね。
入口すぐにクローゼットがありました。
間口が広くて使いやすそうですね。
北側の窓からは近くに建物が見えます。
私は高所恐怖症なので、この窓を全開はちょっと無理かもしれません^^;
採光と風通しで役立てたいと思います(笑)
もうひとつはバルコニーに面していて、ここから出られます。
では、いちどリビングに戻ってとなりのドアを開けてみます。
洗面室となります。
よくある感じじゃなくて、オシャレですね♬
横に物を置けるところがあるって便利です。
収納は洗面台の下だけとなっておりますが、鏡の横に小物入れがついてます。
水栓はシンプルなタイプですね。
洗面台の横には洗濯機スペースが設けられてます。
では浴室へ…
窓があります!
窓がある浴室も憧れなんですよね~(*´▽`*)
朝風呂に入りたくなりそうです(笑)
追い焚き機能もついているので、いつでも温かいお風呂に入れますよ。
浴室換気乾燥は、浴室のカビ予防、洗濯物乾燥、ヒートショック予防などいろいろ役立ちますので、どんどん使っていきましょうね。
やっぱり窓…イイですね(^^)
洗面室のドアを開けると…
トイレです。
上部に収納がありますね。
もちろんウォシュレットも付いています。
今では珍しくないウォシュレットですが、無かった時代もあったんですよね・・・
TOTOさんありがとうございます(笑)
では、次のお部屋へ行きましょう。
いちど廊下へ出て、もう一つのドアを開けると…
こちら約4帖の洋室となります。
東側に窓がありますね。
クローゼットがついてます。
間口が狭いですが、奥行きがありますね。
お部屋の隅に不規則な窪みがあるのでどう使うか・・・ゆっくり考えたいですね(笑)
窓の外はこんな感じです。
ビルの隙間からの空が、大都会って感じですね(;^ω^)
最後にバルコニーに出てみましょう。
バルコニーは広々していて、お洗濯物もゆったり干せそうですね。
右側は建物が建っていますが、正面と、特に左側は開けていて見晴らしがいいですよ♬
先程の大都会と打って変わって、緑がいっぱいですね♬
ちなみに、奥に見えるのは立正大学のキャンパスです。
緑のある景色っていいですよね(*‘ω‘ *)♪
では、以上でNK五反田コータースのご案内を終わります。
いかがでしたでしょうか??
大崎駅から徒歩5分のマンションです。
リノベーション済みという事で室内はとてもキレイですよ (っ・ω・)っ
内見のご予約やご質問などございましたらお気軽にお問い合わせくださいませ。
ご連絡お待ちしております。
過去に販売していたお部屋の概要 このお部屋の販売は終了いたしました。
| 価格 | -万円 |
| 面積 | 47.31㎡ |
| 間取り | 1bedrooms(1LDK) |
| 管理費 | 月額:11,540円 |
| 所在階 | 3階 |
| お問い合わせ・ご内見のご予約はこちらからお気軽にどうぞ | |
こちらが今回ご紹介させて頂いたお部屋の間取りです。
クリックして頂ければ別タブで開きますので、間取り図と見比べながら進んでいきましょう!
エレベーターでお部屋のあるフロアまでやってきました。
雨や風の影響をうけない内廊下タイプです。
ホテルの様な静かな雰囲気が人気です。
玄関の前にはカメラ付きのインターフォンが付いています。
お部屋の中から廊下の様子を確認することが出来るので、防犯的にも安心できますね。
オートロックは付いていないマンションなので、チャイムが鳴ったらまずは訪問者の顔を確認しましょうね!
ドアを開ければリノベーション済みの室内が出迎えてくれます。
玄関が綺麗だとここから先も期待できますね!
それでは中に入っていきましょう!!
玄関の照明には人感センサーがついています。
ドアを開ければパッと電気が付くので、深夜のお帰りでも安心です。
シューズボックスは大型です。中の棚板は高さの調節ができるので、ブーツ等の背の高い履物でも収納することができますよ!
それでは先へ進んでみましょう!!
こちらは・・・・
リビング・ダイニング・キッチンです。
広さは約12.0帖。窓から自然の光が入ってきています。
シンプルな造りのリビングなので、家具等の設置もしやすそうですね。
ダウンライトは向きや角度の調節をすることが出来るので、自分だけの明かりづくりをすることが出来ますよ!
次はキッチンを見ていきましょう!!
浄水機能付きの水栓はシャワーヘッドになっています。
蛇口をひねれば綺麗な水が出てくるので、お料理にもどんどん使っていきたいです。
コンロは3口のグリル付きガスコンロです。グリルで焼けばお肉もお魚も美味しく焼くことが出来ますよね!!サンマの季節は是非フル稼働して頂きたいです。
シンク下の収納は開き戸タイプです。
細かな仕切りなどは無いので、カゴや箱等を使って上手に使っていきましょう。
背後のスペースは食器棚、冷蔵庫を置いても余裕がありそうですよ。
キッチンのお隣には・・・
洗面室です!!
こちらの洗面室は脱衣所も兼ねた場所になりますので、脱いだお洋服はすぐに洗濯することが出来ますよ。
洗面化粧台には3面鏡が付いています。
鏡を開けると中は収納棚になっており、歯ブラシや化粧品などの小物類を収納することができます。
3面鏡はほぼ同時に顔の両側が見られるので左右のバランスが分かりやすく、メイクがしやすいですよ!
洗面台の正面には・・・
トイレがあります。
LIXILのウォシュレット機能付きのトイレです。
LIXILのトイレは、他のメーカーと比べるとコストパフォーマンスが良い点が挙げられ、また、トイレそのものが小さめな設計のため、トイレスペースを有効に使えるといった事もリクシルを選ぶメリットになります。
次はお風呂を見てみましょう!
浴室には換気乾燥機能が付いているので、入浴後の湿気はすぐに取り除くことが出来ます。カビが発生してしまうと、どうしても建材の寿命を縮めてしまうので換気は24時間つけておきたいですね!
床には水はけが良くカビが生えにくい素材が使用されています。
科学的な仕組みがあるそうですが、長くなるのでここでは省略させていただきます!
追い焚き機能も付いていますよ。
冷めたお湯の温度をすぐに温め直せるのはうれしいです。
気楽に何時でも温かいお風呂に入れる、というのはとてもありがたく感じますよね。
特に冬場など、お湯の温度が冷めるのが早い季節にはかなりありがたい設備です。
リビングに戻ってきてこちらのドアを開けてみましょう!
こちらは約6.2帖の洋室です。
バルコニーに面した窓が付いているので、明るいお部屋になっていますよ!!
クローゼットが2つ付いているのでお部屋の中に余計な家具を置く必要もなさそうですね!
空間を広く使う事ができるのはとても助かります。
最後にバルコニーへ出てみましょう!!
リビングと洋室、2部屋にまたがるバルコニーです。
洗濯物を干してもまだ余裕がありそうですよ!!
バルコニーは西向きです。
陽当りは期待できませんが、すぐ近くに緑が多いのは魅力的ですね!
マンションの駐車場を挟んでいるので圧迫感もありませんよ!
では、以上でNK五反田コータースのご案内を終わります。
いかがでしたでしょうか??
大崎駅から徒歩6分のマンションです。
リノベーション済みという事で室内はとてもキレイですよ (っ・ω・)っ
内見のご予約やご質問などございましたらお気軽にお問い合わせくださいませ。
ご連絡お待ちしております。
過去に販売していたお部屋の概要 このお部屋の販売は終了いたしました。
| 価格 | -万円 |
| 面積 | 47.31㎡ |
| 間取り | 1bedrooms(1LDK) |
| 管理費 | 月額:11,540円 修繕積立金:月額11,540円 |
| 所在階 | 4階 |
| お問い合わせ・ご内見のご予約はこちらからお気軽にどうぞ | |
クリックすると別タブで開くことも可能です。
ぜひ間取り図とお部屋比較しながら見ていただければと思います!
~~~~~~~~~~~~~~~~~~~~~~~~~~~~~~~~~~~~~~~~~~~~
フルリノベーション済みのお部屋です。
・システムキッチン交換 ・シャワー水栓取付け
・3口コンロ新規交換 ・食器洗浄乾燥機交換
・ユニットバス交換 ・浴室換気乾燥暖房機取付
・トイレ交換 ・洗面化粧台交換
・防水パン交換 ・フローリング張替
・フロアタイル張替 ・クロス張替
・建具交換 ・網戸張替
・インターフォン交換 ・分電盤交換
・ハウスクリーニング 他
~~~~~~~~~~~~~~~~~~~~~~~~~~~~~~~~~~~~~~~~~~~~
47.31㎡の1LDKのお部屋は
とってもおしゃれにリノベーションされているので、ぜひ現地をご覧いただきたいです。
今回ご紹介させて頂くお部屋の玄関前まで来ました。
カメラ付きのインターフォンが付いているので、お部屋の中から廊下の様子を確認することが出来ますよ。
オートロックは付いていないマンションなので、防犯意識はしっかりと持ちましょうね!
それでは中に入っていきましょう!
玄関の照明は、人感センサー付きです。
真っ暗な中帰宅した時や荷物が多い時でも、自動で照明がついてくれるのはありがたいです 。
うっかり消し忘れなどもなくなるので、電気代の節電にもつながりますよ。
玄関上がってすぐの右手側には・・・
シューズクローゼットになっています。
棚の高さも自由に変えられるので、ブーツ等の背の高い履物でも問題なく収納することが出来ます。
奥行のある空間なので、無駄の出ないように使っていきたいですね。
それでは廊下を奥まで進んで行きましょう。
突当りのドアを開けると、
・・・おお!!?
おぉぉぉ!! これはシャレオツ!!
約10.6帖のリビング・ダイニングです。
実は私イチオシのリノベーション業者さんが手掛けている物件なのですよ!!
こういうお部屋に住んでる人って仕事もできそうですよね!!
天井や壁の濃淡の具合、計算された照明の位置・数。
やはり素晴らしい!!
天井の間接照明やレール上を自由に動かすことのできる照明。
陽が落ちるとムーディーな大人の雰囲気が漂うお部屋になりそうです。
続いてはキッチンです。
約3.2帖もの広さのあるキッチンです。
大きなシンクを備えた水栓。シャワーヘッドになっているので、シンクの隅々まで水を流すことが出来ます。お掃除や洗い物に大活躍してくれることでしょう。
コンロは3口のグリル付きガスコンロ。3口もあればどんなお料理もパパッとつくることが出来そうです。
せっかくお洒落なお部屋に住むのでしたら食べるものにも拘りたい所ですね!
収納スペースもたくさんあります。
足もとの収納スペースは引き出しタイプです。奥まで無駄なく使うことが出来るので、見た目以上の収納力がありますよ!
背後には作業スペースもあるので、複数人で協力しながらのお料理も可能ですよ!
次はキッチンの前にあるこちらのドアを開けてみましょう。
中は洗面室になっています。
洗面化粧台は3面鏡タイプです。
顔を左右から映すことが出来るので、お化粧なども捗りそうです。
ミラーの内部はキャビネットになっています。
歯ブラシや基礎化粧品などはこちらに収納することができますね。
水廻りはどうしても乱雑になりがちではありますが、なるべくスッキリとした状態を維持していきたいです。
お隣には洗濯機置場もありました。
洗面室は脱衣所も兼ねているので、こちらで脱いだお洋服はすぐに洗濯機で洗うことが出来ますよ!
お風呂の前に洗濯機置場正面のドアを開けましょう。
写真右手の木のドアですよ!
中はトイレになっていました。
LIXILのウォシュレット付きのトイレはもはや説明不要かと思います。
リモコンタイプなので、操作も簡単そうです。
上には棚が設置されているので、トイレットペーパー等のストックはこちらに収納しておけそうです
トイレの照明もまたセンスがいいです!!
続きましてお風呂です。
木目調の壁が落ち着いた雰囲気を出しています。
浴室には換気乾燥機能が付いているので、入浴後には湿気を取り除いておきましょう。カビの防止は水廻りの寿命を延ばすことにもなりますよ。
暖房機能もあるので、冬場は入浴前に浴室を温めておくこともできますよ。
追炊き機能が付いているので、いつでも暖かいお風呂に浸かって身体を休められますね。
それではリビングへと戻り、洋室を見てみましょう。
洋室のお部屋とリビングの間に仕切り壁は一部がガラスになっています。
開放感があるので、リビング・洋室ともに広さを感じることができます。
もし気になるようでしたらカーテンなどを付けてみてもいいのではないでしょうか??
広さは約5.0帖です。
角の部分にはウォークインクローゼットが付いています。
かなりの容量があります。
使わない物はどんどんこちらに収納して綺麗なお部屋を保ちましょう!!
照明の使い方が素敵ですね!
レールに取り付けるタイプの照明は色々な種類のものが売っていますので、自分流にカスタマイズしてみるのも良いかもしれませんね。
それでは最後にバルコニーへ出てみましょう。
ガラガラ~~
お隣の洋室からも出られるようになっているバルコニーです。
2部屋にまたがるワイドバルコニーなので、ゆとりがありますよ。
マイナスイオンが満ちてそうな眺望です。
都会のエキチカでこれだけ緑が多い物件も珍しいのではないでしょうか??
目の前は駐車場になっているので、一日を通してとても静かです。
さて、【NK五反田コータース 4階】のお部屋はいかがでしたでしょうか?
他にも詳細が知りたい!!実際に見学をしたい!!などありましたら
仲介手数料最大無料の当社
不動産Agent 六棒株式会社までお気軽にお電話ください(^-^*)/
TEL 03-5413-5336
スタッフ一同お待ちしております。
過去に販売していたお部屋の概要 このお部屋は販売終了いたしました。
| 価格 | -万円 |
| 面積 | 56.70㎡ |
| 間取り | 2bedrooms(2LDK) |
| 管理費 | 月額:13,210円 修繕積立金:月額13,210 |
| 所在階 | 1階 |
| お問い合わせ・ご内見のご予約はこちらからお気軽にどうぞ | |
今回のお部屋は1階になります。
間取り図はこちら↓
クリックすると別タブで開くことも可能です。
間取り図とお部屋比較しながら一緒にお部屋みましょう(((((((((((っ・ω・)っ
こちら今回のお部屋玄関前になります|ω・`)ちら
TVモニタ付きインターフォンがついてセキュリティも安心♡
さっそく、中に入ってみましょう!
ぴーんぽーん!おじゃましまーす-=≡ヘ(*・ω・)ノ
玄関入ってすぐ左手には、上から照明で照らされたカウンターがございます(^^)!
ここに季節のお花や小物なんかを飾って…素敵な玄関を演出できそう(*´ω`*)♡
玄関のフロアは石のタイル調、ですね♬
玄関上がったところには、シューズボックスがっ!
扉は片面鏡になっているので、お出かけ前にトータルコーディネートを
チェックできますね(*’ω’*)
また、玄関の照明は、人感センサー付きなんです♬
真っ暗な中帰宅した時や荷物が多い時でも、自動で照明がついてくれるのは
ありがたいです (○´ω`○)
うっかり消し忘れなどもなくなるので、電気代の節電にもつながりますよ♪
では、突き当りのドア、リビングからお部屋にいってみまーす(((((((((っ・ω・)っ
ドアをあけると、キッチン・リビング・ダイニングが広がります(*^^*)
天井埋込型の照明で天井も高く、スッキリした印象です♬
広さは14.6帖!
団欒スペースとして、ソファーもダイニングテーブルも
両方置いてもゆとりのありそうなリビングですね♡
アクセントクロスの壁がオシャレな雰囲気を醸しだしています( *´艸`)!!
なんだかんだモノを置いてしまいたくなりがちなリビング
収納スペースがあることによって、
お部屋を常にすっきりたもてそうですね(‘ω’)ノ
バルコニーにつながる大きな窓は東向きで、この通り採光もばっちり♡
お部屋の窓には、縦型のブラインドカーテンが設置されています!
シュッと簡単な操作でお部屋の調光が可能な優れもの(*’ω’*)!!
昼間は開放的で明るいリビングを…夜は光を遮りプライバシーを
しっかり守ってくれる頼れる味方です!!
つづいて、キッチンを詳しくみていきまーす(/・ω・)/
使い勝手の良さそうなしっかり広さのあるシンクですね~
大きなお鍋なども楽々洗えそうですよ(゚▽゚*)!
びよーんとのびるシャワーヘッドでお掃除も楽々です(/・ω・)/
そして…グリル付きの3口ガスコンロです (´∀`*)~
同時並行でいろいろなお料理をつくることができそうですね( ゚ω^ )♪
コンロに注目してみると…
温度設定やタイマー設定などができるようになっていました!
なんて便利なんだ-!!
そしてー…ビルドイン型の食洗器もついています!!
後片付けまでが料理、とは言いますが…
お料理は好きだけど洗い物が面倒で…なーんて私みたいな方!いますよね!?←
これで家事が一つ楽になっちゃいます(*’▽’)!!
収納スペースもこの通り、ばっちりー!!
奥までがばっとひらく引き出しは、大きいお鍋や重たいフライパンを
出し入れするのにも楽々、ですねヽ(゚▽゚*)
くるりと後ろを振り返ると…左手は冷蔵庫置場、その横のドアは…?
洗濯機置場~(/・ω・)/
家事の動線ばっちりで、これもまた、家事が楽になりそうで嬉しいところ♡!!
ではでは…廊下に戻っていきます(‘ω’)ノ
洗面室はこちらー♬
大きな鏡と明るい照明で、毎朝の身支度もはかどりそうな洗面台!
水栓は、びよーんとのびる、シャワーヘッドタイプ!!
簡単な洗髪もできますし、洗面台のお掃除も楽々です(*‘∀‘)
三面鏡の後ろは収納スペースになっています!
モノが多く、ごちゃごちゃしがちな洗面周りですが、
隠れる場所にさっと収納しちゃいましょーう ( ゚ω^ )ゝ
続いて、こちらのドアっっ(/・ω・)/
シンプルで無駄がなく、清潔感があります(*‘∀‘)
LIXIL製の洗浄便座付トイレ!LIXILのトイレは形がまるっこくてかわいいので、
個人的に好きな形です~!
新規交換済みとなっております♬
上には吊り棚が設置されているので、トイレットペーパーのストックなどを収納しておけそうですね(*’▽’)
つづきまして~
お風呂行ってみまーす(*・ω・)ノ
ブラウンで木目調の壁がおしゃれで、ゆっくり落ち着けそうなお風呂です(^-^)
お風呂は、嬉しい乾燥機&暖房&涼風機能付き!!
洗濯物の外干しは難しい季節でも、これなら、
お部屋の中がいつもジメジメで室内干しの匂いに…
なーんてことも回避できそうです~( (*^艸^)!
浴槽は、追炊き機能が付いているので、いつでも暖かいお風呂につかって
身体を休められますね(*´ω`)♡
さて、つづいて洋室のお部屋ご紹介していきますっ(/・ω・)/
2部屋ありますよ~
1部屋めの洋室はキッチンのそばのこちら!
お部屋のドアは引込式になっているので、、
このようにあけはなっておくのもありかもしれませんね(*´ω`)
お部屋の広さは4.2帖ほど。
柱の飛び出し部分などもなく、使い勝手の良さそうなお部屋☆
このお部屋のポイントは、収納力の高さ…でしょうか?
オープンラックタイプの収納棚と…
反対側のここに…
クローゼットも♬
お部屋の広さに対して収納力高い!ですよね!!
2つめの洋室は…こちら!
6.0帖の広さがあるお部屋は広々!
大きなベッドも置けそうなので、主寝室はこちらでしょうか…(*´ω`)?
こちらのお部屋も窓にたて型ブラインドが設置されています(*‘ω‘ *)!
ここもバルコニーにつながる東向きの窓なので、
ブラインドをあけると明るい光が差し込みます♡
お部屋には大きめのクローゼットも設置されているので、
お洋服などモノはこちらにしっかり収納し、お部屋は広々使えそうです(^_-)-☆
リビングに戻ってきて…最後にっ!バルコニーのご紹介をいたします(^^)/
がちゃりーっと (((((((((っ・ω・)っ
お隣の洋室からも出られるようになっているバルコニー!床はグリーンですね(*’▽’)
2部屋分の広さがあり、また幅もけっこうあるので…とってものびのび感じます!
目の前はマンション敷地内の駐輪場&駐車場。
低層階ですが、道路からは離れるので、すぐ前をいつも車がびゅんびゅん…
なーんてことはなさそうですね(/・ω・)/
さて、【NK五反田コータース】はいかがでしたでしょうか?
他にも詳細が知りたい!!実際に見学をしたい!!などありましたら
仲介手数料最大無料の当社
お電話ください(^-^*)/
TEL 03-5413-5336
お気軽にお問い合わせください。
スタッフ一同お待ちしております。
過去に販売していたお部屋の概要 このお部屋の販売は終了いたしました。
| 価格 | -万円 |
| 面積 | 56.70㎡ |
| 間取り | 2bedrooms(2DK) |
| 管理費 | 月額13,840円 修繕積立金:月額13,840円 |
| 所在階 | 4
階 |
| お問い合わせ・ご内見のご予約はこちらからお気軽にどうぞ | |
■2LDK+DEN+WIC ■ 専有面積:56.70㎡
■角部屋
■現状:空部屋 ■引渡し日:即日可
■管理形態:全部委託(日勤)
■管理費:月額13,840円 ■修繕積立金:月額13,840
■固都税:42,818円
■敷地内駐車場:30,000円 ■バイク置き場:15,000/年
■駐輪場:6,000/年
■ネット:NTT・KDDI ■CATV:ケーブルTV品川
■ペット飼育不可
■家具付き■エアコン付き!!
■アフターサービス保証付き
TVモニター付きインター ホンなので来客の顔が確認でき安心。
玄関は広々していて、構造上お部屋の奥が見えない造りになっています。
玄関・廊下部分の 電気は、人感センサーとなっているので電気の消し忘れの心配もなし。
ニッチカウンター設置なので、観葉植物・お好きなインテリアをお飾りいただけます。
可動式の棚の大きなシューズクローゼット。奥行きもあり沢山収納可能。
廊下突き当りに洋室。左手にリビングダイニングキッチンがあります。
片開きタイプのクローゼット。 たっぷり収納できます。
リビングダイニング横の6.0帖の洋室。2面採光でとても明るいお部屋となっております。
こちらのお部屋は、1.5帖の広々ウォークインクローゼットあり。
大きな収納スペースは嬉しいですよね♪
カウンターキッチンとなっているので、お料理をしながらリビングの様子も伺えます。
蛇口部分も延びるので、シンクの隅々まで楽々お掃除♪
浄水機能付き。
ヒルトイン食洗機付きなので、後片づけ時間も短縮でき、食後ガくつろぎの時間に。
お料理好きには嬉しいグリル付き3口コンロ。
コンロ横には、調味料などが置ける棚があるのも嬉しい♪
キッチン下に収納スペースあり♪
見た目もオシャレなキッチンカウンター♪
奥に、棚もあるのでお好きな絵や観葉植物等を飾り更にオシャレな空間に
お子様がいらっしゃれば、お子様の勉強スペースとしてもお使いいただけます。
キッチンからも目が届くので、お料理をしながら、お子様の様子を見ることが出来ます。
横には可動式の棚もあるので使いやすい高さに調節でき資料などの収納に。
正面の棚は本棚にするも良し、好きなインテリアを飾るも良し◎
リビングダイニングには、エアコン設置。
TVモニター付きインターホンなので来客の顔が確認ができるので安心。
家具付き物件。(2人掛けソファー・テーブル)
引違い建具をしようなので、外して広々使う事も出来ます。
朝食の用意をしながら洗濯や身支度。
洗濯機からバルコニーまでの距離も長くないので
家事がしやすい間取りになっています。
ウォシュレット機能付き。節水型トイレ使用なので、環境に優しく年間12,000円もお得。
トイレットペーパーのストックやトイレ掃除用品などの収納に。
可動式棚なので使いやすく調節を。
ボウル部分も深さがあるので、つけ置き洗いなどにも便利。
雨の日も安心な浴室乾燥機付き。
追焚き機能付きなので、遅く帰って来てもポカポカの湯舟に浸かる事が出来ます。
浴槽も肘置きがあるのでバスタイムもゆったりお過ごしいただけます。
シャワー掛ける部分横にもあります。
4.0帖・6.0帖の洋室の窓。板を敷けば、ガーデニングなんかも出来ちゃいます。
西向き 9.00㎡のバルコニー。
リビングダイニング・洋室の二か所から出入り可能。
バルコニーからの眺望。
3駅6路線利用可能でアクセスに恵まれた立地にある
NK五反田コータースのご内見のご予約・ご質問などございましたら
お気軽に、お問い合わせください。
過去に販売していたお部屋の概要 このお部屋の販売は終了いたしました。
| 価格 | -万円 |
| 面積 | 35.17㎡ |
| 間取り | 1bedroom(1LDK) |
| 管理費 | 月額:8,580円 修繕積立金:8,580円/月 |
| 所在階 | 5階 |
5階のお部屋になります(^^♪
専有面積:33.95㎡ バルコニー面積:4.50㎡
管理方式:大和ライフネクスト(株)全部委託契約 日勤管理
ペット:飼育可設備:エレベーター、BS、CS、CATV、インターネット対応
旧施工会社:NKプレハブ(株)佐藤工業(株)
山手線・埼京線「大崎」駅徒歩5分、池上線「大崎広小路」駅3分、五反田駅徒歩8分の1LDKで都心のシングルライフを満喫して下さい!

リフォーム内容
壁・天井クロス張替、フローリング張替、フロアタイル張替、建具入替交換、
システムキッチン新規入替交換、追炊き機能付きユニットバス新規入替交換、
浴室乾燥機設置、照明器具新規交換、洗面化粧台新規交換、ウォシュレットタイプ付きトイレ設備新規交換、TVモニーター付きインターフォン新規交換入替、給湯器新規交換入替。(その他詳細につきましては担当者にお尋ね下さい。)
それでは、早速入ってみましょう!

NKコータースは内廊下タイプのマンションです!
プライバシーが守られていますよね!!!
玄関をはいると、靴を脱ぐ石のカラーがお洒落なので、踏むのがもったいないと感じてしまいました(笑)!

玄関は木目調の白のフローリングと扉(建具)で彩られていました!
木の色は落ち着きますよね!ニッポンって感じですよね(笑)

ダイニング側から見ると、こんな感じですよね!
玄関の横の壁は白に近い濃いクリーム系のアクセントクロスが貼られています!
お客様を迎え入れる色に、ピッタリですよね(*^。^*)

玄関横には大き目な天井から下までピッシリのシューズクローク収納があります!
女性のブーツのような大きいものも大丈夫ですよね!
それでは水回りを見てみましょう!

洗面所は、新規交換済みです☆彡
白を基調とした、清潔感たっぷりのカラーとなっています!
蛇口が長めのカーブがかかったタイプです!
お洒落な雰囲気がたっぷりですよね🎶🎶

洗面所をアップで撮影しました!
不動産のネット広告の写真って遠目から撮っているから、かっこよく見えて実は近くからみるとイマイチってことないですか?(笑)
ご心配なく!近くでも撮影しました!

防水パンも新規交換済みです!
洗面台とのに間に少し余裕がありますよね!
正確なことは言えませんが、少し大き目のドラム式洗濯機も入るかもしれません!
でも、絶対とは言えませんので、見学した際は図ってみて下さい。(笑)
ユニットバスも新規交換済みです!
新しいお風呂って、何かウキウキしませんか?(笑)

トイレです!トイレも新規交換済みです!もちろんウォシュレットタイプのが導入されています!
トイレに窓があるなんて、、、、嬉しいですよね!
窓はリフォームで付けられませんので、あってよかったです、と思うものですね☆彡

次はキッチンを見に来ました!
パッションレッド?なんという赤なのかは、次回まで調べておきます!
色は珍しいですけど、システムキッチンとしては、新規導入ですので、嬉しいですよね!

キッチン上部吊戸棚収納も同色であわされています!
収納力は変わらないです!(笑)レンジフードもピカピカの新品です!
料理が楽しくなりそうですよね!
趣味は料理、特技は料理…言ってみたいなぁ(笑)

キッチンシンクにある水切り板、無いとなんとも思わないですけど、あると嬉しいものですよね!

こんなキッチンですが、自分は使いやすいとおもいました!
何色かは、次回までの宿題でお願いしますね(笑)

ダイニングキッチンです!
広くて明るいですよね!こんな素敵なダイニングには、どんなテーブルが似合うのだろう?それとも大き目なソファーセットだけ入れた方がいいのかなぁ?と、いろいろ考えながら撮影しました☆彡

壁にはアクセントクロスが貼ってあります!
優しい色使いが、部屋のグレードを上げ、居住性を高めてくれています!
逆光がひどく暗く見えますが、メチャクチャ明るいんですよ!

家具を置いたら、もっと素敵なお部屋になりそうですよね!
逆光がひどく暗く見えますが、メチャクチャ明るいんですよ!信じて下さいね(笑)

洋室の入口から見たダイニングですよ(^^♪

洋室から見ると、こんな感じのダイニングキッチンです!明るいですよね☆彡

メインのベットルームです!もちろんエアコンは新品です!

明るい日差しが気持ちよく入ってきて、嬉しい暖かい空間になっています!

洋室の扉を閉めると、こんな雰囲気になります!
木目調の扉建具が高級感を漂わせています!!☆

大型のクローゼットも開けた雰囲気と閉めた雰囲です(^^♪
たくさん収納できそうですよね☆

バルコニーからマンションの下を撮影してみました!
空地と駐車場になりますので、接近し建物は建たない可能性が高いですよね(^^♪

こちらの部屋は立正大学側の眺望になりますので、緑が鮮やかです!
自分は、癒されるカラーは緑が一番とおもいますが、皆さんは何色ですか?
これだけの仕様のマンション、最初に自分で住んで将来賃貸に出してもいいかとおもう東京で投資目線のできるお部屋です!
内見のご希望、ご質問などございましたら、
過去に販売していたお部屋の概要 このお部屋の販売は終了いたしました。
| 価格 | ―万円 |
| 面積 | 33,95㎡ |
| 間取り | 1bedroom(1LDK) |
| 管理費 | 月額:8,290円 修繕積立金:8,290円 |
| 所在階 | 6階 |
| お問い合わせ・ご内見のご予約はこちらからお気軽にどうぞ | |
6階のお部屋になります(^^♪
専有面積:33.95㎡ バルコニー面積:4.50㎡
管理方式:大和ライフネクスト(株)全部委託契約 日勤管理
ペット:飼育可
設備:エレベーター、BS、CS、CATV、インターネット対応
旧施工会社:NKプレハブ(株)佐藤工業(株)

リフォーム内容
壁・天井クロス張替、フローリング張替(リクシルLL-45)、フロアタイル張替、建具入替交換(Panasonic)、エアコン1台新規設置システムキッチン新規入替交換(クリナップW1800)、追炊き機能付きユニットバス新規入替交換(TOTO1216)、浴室乾燥機設置、照明器具新規交換、洗面化粧台新規交換(リクシルW750)、ウォシュレットタイプ付きトイレ設備新規交換、TVモニーター付きインターフォン新規交換入替、給湯器2013年交換入替。給排水管2013年交換。(その他詳細につきましては担当者にお尋ね下さい。)
山手線「大崎」駅徒歩5分、池上線「大崎広小路」駅3分、五反田駅徒歩8分の1LDKで都心のシングルライフを満喫して下さい!

玄関を開けると短いながらの廊下があります!
木目調のフローリングの廊下がお出迎えしてくれます!

シューズクロークは天井から下までの大型のBOXになっています!
棚をちょうせいすることによって、女性のブーツも綺麗に収納できるとおもいますよ!
それでは水回りをチェックしていきたいとおもいます!


トイレは白を基調にまとめた空間になっています。手を拭く手ぬぐいかけとティッシュホルダーをアクセントに黒で刺し色を入れてあります!
こちらのトイレはリクシルのシャワートイレです!
もちろんリモコンで水を流せるBOXも設置済みですよ!

次は浴室になります!
浴室はTOTO製の追炊き機能付き・浴室乾燥機付きのタイプです!
カラーはプラナスグレーウッドといいます!
落ち着いたカラーで長湯してしまいそうですね(^^♪

洗面所も白基調とした落ち着いたカラーになっています!
リクシル製のホワイトカラーの洗面台になりますW750(ワイド)の広めのタイプになります!

洗面台の横にある収納も多く、たくさんのバスタオルやフェイスタオルを置けたりして、収納上手になりそうですよね!(笑)

洗濯機を置く防水パンも大きいドラム式洗濯機は厳しいかもしれませんが、マンション用のコンパクトのドラム式洗濯機はOKですよね(笑)
次はキッチンです(^。^)y-.。o○

キッチンはホワイトを基調とした優しいキッチンになっています!

クリナップさんのキッチンでワイドが1800のタイプになります!
1LDKのコンパクトタイプの中では十分に横にあるタイプかとおもいます!

クリナップさんは日本で初めてシステムキッチンに道筋をつけてくれた会社さんです!
ステンレスには評判の会社です!

新しいレンジフードは気持ちいですよね!
キッチンがワイドタイプですと料理を作る同線もよくなり、腕前がドンドン上がりそうですよね☆彡

リビングダイニングキッチンは約8帖になります!

素敵なダイニングテーブルを置けそうですよ(^^♪
ダイニングテーブルを置けるのが1LDKの間取りの魅力ですよね♡

今回は、LDKと洋室の壁面にエコカラットを貼ってあり間接照明を設置しています!

フローリングは。リクシルのLL-45等級の素材を仕様しています!
この部屋は下の階に住んでいる方に迷惑を軽減できるような気配りをした仕様になっていますよ(*’▽’)

こちらはベットルームになります!
フローリングやクロスはLDKとほぼ同仕様になっています!!

ベットルームの収納です!
このクローゼットは写真ではわかりにくいですが、少し奥が深いタイプなんですよね~!

建具は、Panasonic製です。カラーはしっくいホワイトですので、優しく落ち着くホワイトで造られています!
癒されますよねぇ(^^♪🎶

LDKとは、間仕切り扉ではなく、あえて造作の壁を設置し広い1R感覚で使えるようにされています!
また壁にはLDKと同じくエコカラット&間接照明で彩っています🎶


今回のこちらのお部屋は、新規でエアコンを1台設置しています!
また灯りの強さを調節できるスイッチパネル、キッチンからお風呂を調節できる追い炊きパネルリモコン、玄関には人感センサー付きスイッチ、TVモニター付きインターフォン等…細かいところに手が届く設備が入っています!

バルコニーと眺望を撮影しました!
眺望は緑だけになってしましましたので、引きでも撮影しました!

こちらは立正大学が見える眺望になります!

緑が多く鮮やかですよね!
緑は癒されるカラーですよね☆彡
これだけの仕様のマンション、最初に自分で住んで将来賃貸に出してもいいかとおもう東京で投資目線のできるお部屋です!
内見のご希望、ご質問などございましたら、
過去に販売していたお部屋の概要 このお部屋の販売は終了いたしました。
間取りのご紹介です。2DK、46.72㎡。室内はリノベーション済み。お部屋に合わせた家具もついてきます♪
【リノベーション内容】■給湯器交換■システムキッチン交換、ユニットバス交換、洗面台交換、トイレ交換■全クロス張替、全フローリング張替、全建具交換、フロアタイル張替■下足入れ交換■洗濯水栓器具交換、防水パン交換■スイッチパネル設置、ダウンライト設置、照明器具設置■インターフォン交換、エコカラット設置、玄関人感センサー設置、ハウスクリーニング■アフターサービス保証付き
白と木目を基調とした明るい室内。玄関ホールには人感センサーがついており、人の気配にあわせて自動で照明が消灯します。消し忘れがなく経済的です。インターホンはTVモニター付き。来訪者の顔も扉を開ける前にチェックできます。
玄関横に設置されたシューズBOXはたっぷり収納できるトールサイズ。表扉の半分には縦長の鏡がついており、お出かけ前の身だしなみチェックもサッとおこなえて便利です。
そしてシューズBOXの向かい側の壁面にはちょっとしたインテリアが飾れるニッチがつくられています。お好みの物を飾ってステキな玄関に仕上げてみてください♪
玄関をあがると廊下がまっすぐのびており、左側に収納、正面にダイニングキッチンの扉がついています。宅急便など玄関先での来訪があってもこれなら居住スペースが見える心配はありません。
廊下収納は高さが調節できる棚付き。日用品のストックなどはこの中でまとめて管理できそうです。
つづいてダイニングキッチンへ。
ダイニングキッチンは約8.7帖。キッチンとダイニングスペースを分けて使いやすいお部屋の形になっています。家具が置いてあるので実際の生活イメージもつきやすいのではないでしょうか?
ダイニングキッチンの壁面には調湿・消臭効果のあるエコカラットがついており、ダウンライトで照らされています。ダイニングキッチン内には窓がないのですが、空気も快適に保てそうです。
キッチンスペース。
キッチンは浄水機能付き水栓、お料理がはかどる3口コンロ、食洗機、上下に収納たっぷりとスペック◎!後片付けが楽になれば食後ゆっくり過ごす時間も増えるはず・・・!
洗面室の扉はキッチンのすぐ近くにあります。お料理に洗濯、お風呂掃除と家事もまとめてこなしやしそうです。
洗面室。洗濯機置場、先見化粧台、バスルーム、トイレと水廻りの設備が1か所にまとまっています。

洗面化粧台の横には小物の収納に便利なキャビネットが設置されています。すぐ隣が洗濯機置場なので洗面ボウル下のスペースに洗剤を入れておくと使い勝手がよさそうです。
トイレはウォシュレット付き。ペーパーのストックや掃除用具は上の棚へどうぞ。
バスルームは追い焚き、浴室換気乾燥機能付き。乾燥機があれば雨の日や夜のお洗濯も安心。忙しくて朝なかなかお洗濯する時間がとれない方に便利です。
洋室2部屋はダイニングキッチンを介して行けるようになってます。
3枚の可動式扉側の洋室は約5.3帖。窓は西向き。
ダイニングキッチンとつなげてリビングスペースとして利用するのもいいですね!
もう1部屋の洋室は約6.5帖。
洋室内にある大型のクローゼットにはお洋服をかけるポールが前後で2本ついています。たたみたくないスーツやコートもこれならたっぷり仕舞えます。ピクチャーレールもついているので場所をとらずに手軽に思い出の写真やお気に入りの絵も飾っておけます。
最後に洋室2部屋に面したバルコニーに出てみます。約9.00㎡。西向き。この日は曇天でしたが晴れた日は陽当たりも期待できます。
バルコニーの外はお隣の立正大学。緑がたっぷり目に入って快適です。
NK五反田コータース、いかがでしたでしょうか?住込管理&お隣警察署で安心した毎日が送れそうです。ご内見のご希望・ご質問などございましたら、お気軽にお問い合わせくださいませ♪
過去に販売していたお部屋の概要 このお部屋の販売は終了いたしました。

間取り図です。
64.79㎡の3LDKです。
こちらが玄関です。シューズボックス下の間接照明がステキです!
シューズボックスは天井までないので、玄関先はすっきりしています。
上のカウンタースペースにはお気に入りの写真やインテリアを楽しんでください。
廊下に沿って収納があります。
収納棚というよりオシャレなカウンターのようです。
同じタイプの収納が3つ並んでいます。
約17.3畳のリビングダイニング・キッチンです。
ダイニングテーブルとソファを置いても広々としていますね!エアコンも新規で1台設置されています。
さらにお部屋に置かれたオシャレな家具はプレゼント♪
すぐにイメージどおりの部屋で新しい生活がスタートできます!
リビングダイニング入ってすぐ左手に収納もあります。
生活感のあるものはこちらに隠してしまいましょう♪


システムキッチンの右側が仕切り壁のような小さなカウンターになっているのでリビングから作業スペースはあまり見えません。水栓はノズルが伸びるのでお掃除も楽ですね!スポットライトで手元を明るく照らせばお料理もしやすいでしょう。収納は残念ながらキッチン下にしかありません。それでも十分大きい収納です。
キッチンスペースも広いので、キッチン用の棚も置けそうです。
こちらが洗面室です。
洗面台は木のぬくもりを感じさせてくれるカウンタータイプです。
洗面室全体がオシャレな雰囲気になります。
オシャレを重視した洗面台なので、収納はこちらしかありません。
とても貴重です!
白とグレーでとてもシンプルなバスルーム。
浴室換気乾燥機・追い炊き機能付きです。
洗面台とバスルームの間に洗濯機置き場があります。
ウォシュレット付トイレです。
窓があるので自然換気できていいですね!棚もあります。
ベランダに面した洋室です。南東向きなので、こちらは朝陽が入るでしょう。
広さは約5.2畳。広くはありませんが、クローゼットもちゃんとついています。
もうひとつの洋室は横長なお部屋です。広さ約8.5帖。
こちらのお部屋も陽射しが入り、明るいですね!収納も見た目はさきほどご紹介したクローゼットと同じサイズに見えますが、間口が狭いだけで、右側にもっとスペースがあります。
広告が隠れているので分かりやすいでしょうか。。。
バルコニーは横にも長く、広々としています。南東向き。日当たりもいいのでうれしいですね。
幹線道路にも面しておらず、眺望はとてもいいです!
毎日最上階の優越感に浸ってください♪
こちらのお部屋は駐車場専用使用権付き。なんと月額2500円で利用できます!山手線内でこの金額は・・・お得ですッ!みなさまのご内見、心よりお待ちしております!


























































































































































































































































































































































































































































































































































































































弊社 公式HP
六棒総合研究所
掲載予定物件
価格変更と販売終了物件
ハザードマップ検索
適合証明書.jp
Facebook
Twitter
Instagram