・
□□□□□□□□□□□□□□□□□□□□□□□□□□□□□□□□□□□□□□□
不動産Agent 六棒株式会社です。
弊社ホームページをご覧頂き誠にありがとうございます。
気になるお部屋がございましたら是非お問い合わせください!
・
□□□□□□□□□□□□□□□□□□□□□□□□□□□□□□□□□□□□□□□
・
本日は、JR総武線・中央線「飯田橋駅」より徒歩12分
リノベーションマンション ハイネス小石川 のご紹介です。
■アクセス■
JR総武線、東京メトロ東西線・有楽町線・南北線、都営大江戸線
「飯田橋」駅徒歩12分
東京メトロ丸ノ内線・南北線「後楽園」駅徒歩11分
都営大江戸線・三田線「春日」駅徒歩12分
JR、東京メトロ、都営地下鉄のターミナル駅「飯田橋」
どこから来るにもどこへ行くにもアクセス良好です。
都心だと電車で15分以内に渋谷・新宿・池袋・秋葉原・東京駅へ移動できます。
この辺りオフィスも多いので駅周辺には多くのの飲食店や居酒屋が軒を連ねています。
こちらは、駅直結の商業施設『RAMLA』
飲食店、フードショップ、衣料品店、100円ショップと充実のラインナップ♪♪
飯田橋駅の周辺は飲食店中心ですが、
少し足を伸ばせば東京ドームシティアトラクションズや小石川後楽園、東京ドームも!
休日は緑の中でのびのび過ごしたり、遊園地でアクティブに過ごしたり。
充実した生活が送れそうですd(´∀`)
人気の神楽坂も徒歩圏内の立地です♫
素敵な夕食を神楽坂で頂いて、お散歩しながら帰るなんていうのも(*´˘`*)♡
飯田橋駅の近くには、『JCHO東京新宿メディカルセンター』がありました。
大きな病院が近くにあるって心強いです♪♪
文京区役所の入っている『文京シビックホール』にも歩いて行けます
区役所が近くにあるのは何かと便利です(o´∀`ノ
マンション近くには『印刷博物館』&『トッパンホール』♪♪
トッパンホールは、音響を追及したクラシック中心の音楽ホールです。
ご近所でクラシック観賞なんて素敵です。
こちらの物件のお買い物環境はと言いますと、徒歩5分ほどの所に『マルエツプチ』
徒歩2分のところに『ミニストップ』
そしてなんとマンションの1Fが『まいばすけっと』です🍎
こちらが今回ご紹介するマンション『ハイネス小石川』
昭和55年6月築、鉄筋コンクリート造地上6階建て、総世帯数83戸になります。
前面道路はコミュニティバスも走っていて、近くにバス停があります。
お出かけの際に使ってみるのも良いですね(*´ω`)
ハイネス小石川はペットの飼育や事務所使用も相談可能です。
気になる方は詳細お問い合わせ下さい( `ー´)ノ☎03-5413-5336
スーパーの右手を進んでいったところがエントランスアプローチになります。
レンガタイル貼りで可愛いですねo(^o^)o ワクワク
自転車置場利用料は年間3600円
バイク置場は年間7200円となっています(空き要確認)
エントランスにオートロックはありませんが防犯カメラが設置されていますよ
アプローチからエントランスまで段差はなく老若男女に優しい造り☆
右手には宅配ボックスと管理人室があります。
管理会社:株式会社東急コミュニティー(日勤)
宅配ボックスがあると受け取る人も、宅配の人にも有り難いですね!
配送業者の方々いつも有り難うございます!!!(。-人-。)
管理人室の奥は内廊下になっており、1階の居住者さんスペースに
内廊下に内階段。雨の日でも濡れない設計は有り難いですね(^^♪
そしてエントランス突き当りにエレベーターがあります。
こちらのエレベーターでお部屋へ向かいます。
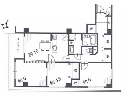
今回ご紹介するお部屋は4階。専有面積36.90㎡の1LDK。お一人暮らしやDINKSの方にお勧めのお部屋です。
間取り図はコチラ ↓ ↓ ↓

※間取り図は別タブで開きますので、確認しながらご覧いただく事ができます。
只今リノベーション工事中
4月中旬完成予定ですのでお楽しみに!
・
以上でハイネス小石川のご案内を終わります。
いかがでしたでしょうか??
飯田橋駅から徒歩12分のマンションです。
内見のご予約やご質問などございましたらお気軽にお問い合わせくださいませ。
ご連絡お待ちしております。
弊社、不動産Agent 六棒株式会社では、一般仲介物件は仲介手数料20%~30%OFF!
にてお取り扱いしております!
なるべく沢山のお部屋をホームページに掲載したいと思っておりますが、時間的成約もございますので、残念ながらご紹介できるお部屋の一部しか掲載できておりません。
このホームページに掲載中のお部屋、その他サイト等で気になるお部屋、街を歩いていて気になったマンション等々ございましたら是非、弊社営業部までご相談ください!
~不動産Agent 六棒株式会社の特徴~
・一般仲介物件の仲介手数料は20%~30%OFFにてご案内中です!
・住宅ローンに自信あります!
・頭金10万円より購入できます。是非ご相談下さい!
・お部屋のご見学は車で2~3件まとめて案内します!
・物件数3000件以上、新築戸建、リノベ物件も多数ご用意しております!
過去に販売していたお部屋の概要 こちらのお部屋の販売は終了いたしました
| 価格 | -万円 |
| 面積 | 36.11㎡ |
| 間取り | 1bedroom(1DK) |
| 管理費 | 月額5,340円 修繕積立金:月額5,470円 |
| 所在階 | 6階 |
| お問い合わせ・ご内見のご予約はこちらからお気軽にどうぞ | |
ここで間取り図のご紹介です。
※間取り図は別タブで開きますので、確認しながらご覧いただくことが出来ます。
今回ご紹介するお部屋は6階、専有面積36.11㎡の1DK。お一人暮らしの方におススメのお部屋です。広いルーフバルコニー楽しみですね♬
では、早速行ってみましょう!
共用廊下は内廊下。雨風の影響もなくプライバシーや防犯面でも優れています。個人的にはこのシ~ンとした感じが好きなんですよね。
玄関ドア横にはモニター付きインターホンが設置されていて、お部屋の中から訪問者を確認することが出来ます。「ハイ」と返事をする前に映像でチェックをすればしつこいセールスにつかまることも無くなりますよ。
玄関を入るとコンパクトな玄関ホールになっていて、左右にお部屋へのドアがあります。
窓からの光が入って明るい雰囲気の空間になっていますね。
玄関の照明には人感センサーが付けられ自動的に照明を点けてくれます。両手が塞がっていても大丈夫ですし、暗い中手探りでスイッチを探すなんて必要もありません。いつでも明るい玄関が迎えてくれるのは嬉しいですよね。
正面の窓下は物入になっていました。上のカウンターにはいろいろ飾れるのでインテリアを楽しむのもいいですね。シューズボックスは収納力のあるトールタイプ。棚が移動可能なのでヒールやブーツなど背の高い靴もきれいに収納可能です。
では、まずは左のドアを…
こちらは約6.9帖の洋室。
北西向きルーフバルコニーに面したお部屋です。このサイズのお部屋でこの広さの洋室は珍しいですね。ベッドの他にもデスクや小さめのソファーなども置くことが出来そうです。シンプルな色使いなのでカーテンや家具が合わせやすく幅広く選ぶことが出来ますよ。
収納は壁一面を使った大きなクローゼット。全開になるので中が一目で確認出来てとても使いやすそうですね。
では、今度は右側のドアを…
こちらは約6.9帖のダイニング・キッチン。
先程と同じバルコニーに面しています。洋室とはちょうど同じ大きさながら、キッチンがある分狭く感じますね。とはいえダイニングだけなら余裕ですよ。
最近はカウンターキッチンが人気ですが、省スペースという点では断然優れているのがこの壁付けキッチン。キッチン内が丸見えという欠点がありますが、キレイにしておけば何の問題もありません。調理台はお部屋に馴染むようフローリングに合わせた木目パネルを使用。調理台の横には冷蔵庫やカップボードが並ぶ感じになると思います。
収納は吊戸棚と調理台下のスライドキャビネット。スライドキャビネットは出し入れしやすく奥の方まで確認しやすいのが特徴です。吊戸棚は梁の関係で上の段があまり役に立ちませんが、元々活躍するのは下の段。ラップや即席スープ、ティーバッグなどを入れる、個人的には使用頻度の高い場所です。
コンロは2口、グリル付き。グリルは魚イメージが強いと思いますが、他にも様々なお料理に使えるらしいですよ。ご興味がある方は是非調べてみて下さい。水栓は浄水機能一体型。切り替えるだけで美味しいお水を気軽に使うことが出来ますよ。
次は洗面室へ…(入口には少々段差があるのでお気を付けください。)
洗面室には洗面化粧台の他にトイレ、洗濯機スペース、浴室がまとまっていて脱衣場も兼ねています。
洗面化粧台は身だしなみチェックに便利な三面鏡付き。上部に照明が付いて鏡を開いた時に影になることもありません。水栓が上に付いていてお掃除がしやすいのもいいですね。
水栓はヘッドが引き出せるので洗面ボウルを流したりに便利。簡単な寝ぐせ直しくらいなら何とかなりそうです。収納は三面鏡裏のキャビネットと洗面台下にスライドキャビネット。ミラーキャビネットは奥行はありませんが細々としたものを入れておくのにはちょうどいいサイズ感ですよ。
トイレは扉などがないタイプ。慣れるまで落ち着かないかもしれませんが、一人暮らしならトイレのドアなんか閉めないという方も多いと聞きますからきっと大丈夫ですよ(笑)掃除道具の収納やトイレットペーパーのストックに便利な吊戸棚も付いています。INAX製の洗浄機能付き。洗濯機スペースにも棚が付いているので洗剤などのランドリー用品はこちらへどうぞ。
浴室は大きな窓付き!!!
私窓付きの浴室憧れなんですよね~。ここに住んだらきっと休みの日は毎日朝風呂に入ってしまうと思います。これからの寒い季節に、窓を少し開けて目をつぶれば露天風呂気分を味わえますよ♬
そんな時に活躍するのが追い焚き機能!
冷めたお湯を温め直してくれるので風邪ひいたりする心配もありません。お風呂の準備がワンタッチなのも嬉しいですよね。
窓にはフィルムが貼られて閉めていれば外からは見えないようになっています。外はこの部屋のルーフバルコニーとはいえ窓を開ける時は十分注意しましょう!換気用の小窓を利用するのもいいと思います。
浴室乾燥機能は浴室の換気の他に、お洗濯物乾燥やヒートショック予防など様々な使い道があります。最近は急な雨も多いので、お天気を気にせず洗濯が出来るのは助かりますよね。
それでは最後はルーフバルコニーのご紹介。
ルーフバルコニーへは洋室、DKどちらの窓からでも出られます。こちらも少し段差があるのでお気を付けください。
広さは28.98㎡、北西向き。お部屋とそれほど変わらない広さがあるルーフバルコニーです。屋根がないってほんと開放感がありますよね。今は午前中なので日陰になっていますが午後になれば陽当たりも期待出来そうですよ。
広~い空は望めるのですが・・・
目の前のマンションのバルコニーがずらっとこちらを向いています。ルーフバルコニーといえば、デッキチェアーを持ち出して日光浴をしながらビールといきたいところですが、ちょっと人目が気になるかもしれませんね。
・
以上でハイネス小石川のご案内を終わります。
いかがでしたでしょうか??
飯田橋駅から徒歩12分のマンションです。
リノベーション済みという事で室内はとてもキレイですよ (っ・ω・)っ
内見のご予約やご質問などございましたらお気軽にお問い合わせくださいませ。
ご連絡お待ちしております。
弊社、不動産Agent 六棒株式会社では、
□リノベーションマンションはほぼ全て仲介手数料無料!
□その他一般仲介物件は仲介手数料20%~30%OFF!
にてお取り扱いしております!※弊社の「Agent Fee=仲介手数料」についてはご案内、ご面談の際に営業担当者よりご説明いたします!
なるべく沢山のお部屋をホームページに掲載したいと思っておりますが、時間的成約もございますので、残念ながらご紹介できるお部屋の一部しか掲載できておりません。
このホームページに掲載中のお部屋、その他サイト等で気になるお部屋、街を歩いていて気になったマンション等々ございましたら是非、弊社営業部までご相談ください!
~不動産Agent 六棒株式会社の特徴~
・一般仲介物件の仲介手数料は20%~30%OFFにてご案内中です!
・リノベーションマンションについてはほぼ全て仲介手数料無料です!
・住宅ローンに自信あります!
・頭金10万円より購入できます。是非ご相談下さい!
・お部屋のご見学は車で2~3件まとめて案内します!
・物件数3000件以上、新築戸建、リノベ物件も多数ご用意しております!
過去に販売していたお部屋の概要 こちらのお部屋の販売は終了いたしました
| 価格 | -万円 |
| 面積 | 66.50㎡ |
| 間取り | 3bedroom(3LDK) |
| 管理費 | 月額13,200円 修繕積立金:月額13,480円 |
| 所在階 | 1階 |
| お問い合わせ・ご内見のご予約はこちらからお気軽にどうぞ | |
さて今回のお部屋は1階になります。
間取り図はこちら↓ (図面と現況が異なる場合は現況を優先します。)
クリックすると別タブで開くことも可能です。
間取り図とお部屋比較すると見やすいですよ
では、営業部小倉が【ハイネス小石川 1階】
お部屋一緒にご案内させて頂きます(o*。_。)oペコッ
1階のどんつきにあるのが今回のお部屋です。
ダブルロック、TVモニタ付きインターホン完備でセキュリティも充実
来訪者の顔も見れて安心ですね╭( ・ㅂ・)و ̑̑ グッ !
玄関あけてビックリ!デザイナーズマンションでしたo(^o^)o ワクワク
と同時に写真の腕前が問われます(;゚д゚)ゴクリ…
なるべくそのままの質感をお見せ出来ればと頑張りました。。
天井は打ちっ放しコンクリートで味わいが出ています!
そしてここで普通のシューズボックス来たらガクッて感じですよね
安心して下さい。オシャレな風通しの良いオープン収納です(^^♪
可動式で高さ調節も出来る優れもの!
玄関廊下には収納スペースがたくさんあります。
全部で右手に1つ、左手シューズボックスの奥に2つあります!
それでは奥に進んでいきましょう ε=(。ノ・ω・)ノ
まず右手に1つ、コンクリートに囲まれているので
棚を作りたい時などはディアウォールを使うと簡単ですよ(^^♪
ご存知ない方は是非ネット検索してみて下さい☆
また、シューズボックスのオープン収納だと見られるの恥ずかしい!
という方はここに棚を作ってシューズボックスにするのもありかな(*-ω-)ウンウン♪
2つ目は左手にあるクローゼットです。
こちらはハンガーパイプがついているのでコートなどもかけられます。
後ろを振り返って見てもカッコイイですね(〃▽〃)ポッ
最後3つ目の収納はこちらです。
緊張で手が震えてしまいました
ただの手振れです。。。(。-人-。) ゴメンネ
L字の玄関廊下を曲がると水回りに行けますが、
先に気になるリビングからご案内していきます(”◇”)ゞ
ネイビーの扉が可愛いですね!
部屋のコンセプトと凄いあっています。
天井も壁もインダストリアル的なカッコイイ仕上がり
どのマンション見てもしっくり来なかったそこの貴方👉
見学してみたいなとソワソワしていませんか?
また、ハイネス小石川は事務所の使用も可能なんですよ(*´ω`)
リビングは約10帖、隣の洋室は約6帖になります。
リビングと洋室は引き戸で仕切られています。
開け放してリビングとの行き来スペースにしてもいいですね(^^♪
開口部南西向きで陽当りも◎
このお部屋も打ちっ放しのデザインです☆
梁の部分もそのままだしています。
ちょっとしたサンルームみたいですね!
隣の部屋の採光をとるため、こんなところに窓がありました
ではお隣も見ていきましょうか ε=(。ノ・ω・)ノ
引き戸の洋室のお隣です!
こちらは開き戸なのでプライベート感があります
お邪魔しまーす
約4.5帖帖のお部屋は収納がありました。
開口部は南東向きになります☀
奥行のあるクローゼットでしたよ!
そしてこのお部屋は白基調のお部屋です(*´ω`)
よ~く見ると壁が玄関と同じ塗装(そのままペンキ塗ったオシャレな感じ)と
クローゼット付近は従来の壁紙になっています。
一部屋こういった普通の白い壁紙があった方が日本人は落ち着くかな(*´ω`)
南東のベランダからは外に出れます。
どこに繋がっているかは後ほど(^^)/~~~
リビングに戻り、キッチンへ
ε=(。ノ・ω・)ノ
カウンターは白いタイルでウィメンズな感じ☆
キッチンも白基調でオシャレですね!
お部屋の雰囲気にも負けていません。
機能面はというと、シャワーヘッドの水栓と
3口ガスコンログリル付きのシステムキッチン
シンクも調理スペースも広くてお料理がしやすそうですね(^^♪
収納は引き戸でたくさんありました!
引き戸は奥まで見やすいので整理整頓がとってもしやすいですよ☆
続いて他の水回りに行けます!
玄関廊下に戻りますよ ε=(。ノ・ω・)ノ
手前から・・
洗面化粧台!
鏡部分が小さいけどその分お手入れもしやすい╭( ・ㅂ・)و ̑̑ グッ
また、鏡の脇と下に収納もあり使い勝手も良さそう!
開き戸なのでラックなどを上手く使いデッドスペースを上手く活用してください☆
室内洗濯機置き場の横にはリネン類も置けるクローゼットもありました。
こちらも可動式なのでなんでも収納出来ますね(/・ω・)/
浴室乾燥機付きのお風呂はこちら!
シンプルな浴室ですね(*´ω`)
ユニットバスは新規交換してピカピカです✨
玄関廊下に戻り2つ目の扉は・・・
ε=(ノ゚Д゚)ノ ∥WC∥
ウォシュレット機能付きトイレでした。
収納もあるのでトイレ周りがスッキリしますね(^^♪
トイレの対面の扉は・・
3つ目の洋室でした!!
こちらは約6帖、二面採光になります。
北東向きの小窓を覗くと普通に洗濯物が干してありました(^-^;
人目が気になるけど、窓開けたいよーという方は
ブラインドをつけるのもありかもφ(..)メモメモ
どんな照明をつけるかによってお部屋の雰囲気が
ガラッと変わりそうなお部屋でした(*´ω`)
こちらも収納がありますよ(/・ω・)/
幅は小さめですが奥行バッチリ
上の枕棚も結構入りそう╭( ・ㅂ・)و ̑̑ グッ !
玄関廊下にあれだけ収納があればお部屋の収納小さくても
なんとかなりそうですよね (*^艸^)
さて、ハイネス小石川のお部屋いかがでしたか?
最後に!南西向きのバルコニーご紹介していきます( `ー´)ノ☆
バルコニーの壁もレンガ貼りでオシャレですね♡
1階なので眺望が売りではないですからね!
それでも日当たりは悪くないと思います(*´ω`)
というのも下にこんなのがあるので建物が結構離れていて
圧迫感もないですし、日陰も出来ていないせいかと思います。
青空も十分望めます☀
さて、【ハイネス小石川 1階】はいかがでしたでしょうか?
六棒株式会社ならハイネス小石川 1階が
仲介手数料無料でご案内可能!!
▼新規内装リノベーション済み
”よくある”マンションではなく、貴方だけのお部屋です!
▼南西・南東角住戸
▼収納は豊富
▼事務所使用可
▼ペット飼育可能
▼スーパーが1階にあります。
【学区】
区立金富小学校・・240m
区立第三中学校・・440m
他にも詳細が知りたい!!実際に見学をしたい!!などありましたら
仲介手数料最大無料の当社
お電話ください(^-^*)/
TEL 03-5413-5336
お気軽にお問い合わせください。
スタッフ一同お待ちしております。
弊社、不動産Agent 六棒株式会社では、
□リノベーションマンションはほぼ全て仲介手数料無料!
□その他一般仲介物件は仲介手数料20%~30%OFF!
にてお取り扱いしております!※弊社の「Agent Fee=仲介手数料」についてはご案内、ご面談の際に営業担当者よりご説明いたします!
なるべく沢山のお部屋をホームページに掲載したいと思っておりますが、時間的成約もございますので、残念ながらご紹介できるお部屋の一部しか掲載できておりません。
このホームページに掲載中のお部屋、その他サイト等で気になるお部屋、街を歩いていて気になったマンション等々ございましたら是非、弊社営業部までご相談ください!
~不動産Agent 六棒株式会社の特徴~
・一般仲介物件の仲介手数料は20%~30%OFFにてご案内中です!
・リノベーションマンションについてはほぼ全て仲介手数料無料です!
・住宅ローンに自信あります!
・頭金10万円より購入できます。是非ご相談下さい!
・お部屋のご見学は車で2~3件まとめて案内します!
・物件数3000件以上、新築戸建、リノベ物件も多数ご用意しております!
過去に販売していたお部屋の概要 このお部屋の販売は終了いたしました。
| 価格 | -万円 |
| 面積 | 38.26㎡ |
| 間取り | 1bedroom(1LDK) |
| 管理費 | 月額7,560円 修繕積立金:月額7,760円 |
| 所在階 | 4階 |
| お問い合わせ・ご内見のご予約はこちらからお気軽にどうぞ | |
間取りのご紹介です。1LDK、専有面積は38.26㎡。
2DKにも変更可能です♪
室内はリノベーション済み。
ホワイト基調の明るい玄関ホールの右側に可動棚で高さ調節可能なトールタイプのシューズBOXが設置されています。
廊下の左側にサニタリールームがあります。
洗面台はコンパクトながらシャンプードレッサータイプで使いやすく、歯ブラシなどをおける収納棚もあります。
トイレはサニタリールーム一番奥のドアから。
TOTO製のウォシュレットタイプで吊戸棚も設置されています。
バスルームももちろん新規交換済み。
浴槽サイズは1216サイズで追焚き・浴室乾燥機付きです。
廊下右側の引き戸は洋室。
アクセントクロスの貼られた4.2帖の洋室。
2wayタイプの洋室で廊下とLDKから出入り可能。右側にLDKがあります。
柱の出っ張りがないお部屋で家具のレイアウトなどはしやすそうですね。
奥行きのある大きなクローゼットが設置されています。
廊下からLDKへ入ります。
アクセントクロスの貼られたLDKは10.5帖。エアコンも1台設置済みです。
北西向きのLDKですが採光が多く、お部屋の色合いもあり大変明るく感じます。
梁のあたりから仕切り2DKに変更も可能です。(オプション)
キッチンまわりは広く、キッチンカウンターやダイニングテーブルなども置けそうです。
クリナップ製のシステムキッチン。
北西向きに面したバルコニーは6.30㎡。
幅があり広々としていています。
建物に囲まれているので景色は望めませんがお部屋の暗さはあまり感じません。
ご内見のご希望・ご質問などございましたら、お気軽にお問い合わせくださいませ♪
過去に販売していたお部屋の概要 このお部屋の販売は終了いたしました。
| 価格 | -万円 |
| 面積 | 41.56㎡ |
| 間取り | 2bedrooms(2DK) |
| 管理費 | 月額8,220円 修繕積立金:月額8,430円 |
| 所在階 | 3階 |
| お問い合わせ・ご内見のご予約はこちらからお気軽にどうぞ | |

今回ご紹介するお部屋の間取りのご紹介です♪
2DK、41.56㎡のお部屋です。
<リフォーム内容>
■玄関・・・玄関収納
■キッチン・・・システムキッチン(浄水器内蔵水栓)
■洋室・・・クローゼット、洋室2に先行配管及び新規エアコン設置
■洋室・・・洋室1の壁にエコカラット使用
■浴室・・・ユニットバス、浴室乾燥機付
■洗面・・・洗面化粧台、洗濯パン、洗濯水栓、換気扇
■トイレ・・・トイレ本体(ウォシュレット付き)、換気扇
■給湯・・・電気温水器交換(追い焚き付き)
■照明・・・シーリングライト(DK、洋室1・2)、LEDダウンライト設置
■共通・・・給水管・排水管・給湯管、壁天井クロス、建具、スイッチ、コンセント、TVモニター付きインターフォン、床(フロアスタイル、フローリング)クリーニング、カーテンレール、網戸張替、レースカーテン
等
それでは早速お部屋へ入って行きましょう✿

エレベーターから近くのお部屋です!
カメラ付きインターフォンが付いているのでご来客の方の顔確認が出来ますよ!


中へ入っていくとリフォームされたキレイなお部屋がお出迎えです♪
白と木目調で統一されたお部屋はシンプルで清潔感がありますね(*´˘`*)♡


シューズボックスは縦に大きく大容量収納です♪
可動式収納になっているので高さのある靴でもラクラク収納できますよ(*´▽`)
全身鏡付きの扉の中にも収納できるので置場には困りません✿

人感センサーが付いているので、いつでも明るい玄関がお出迎えしてくれます(♡˙︶˙♡)

廊下左の扉を開けて行くと・・・

サニタリールームがあります!
白を基調とした清潔感のある空間になっています♪


洗濯機置場と洗面台が横並びになっています!
三面鏡は鏡の裏にも収納が出来るので便利ですよねヽ(^o^)丿
照明が明るいのでお肌の状態もしっかりチェック出来ちゃいます♪
蛇口はシャワー機能も付いていますよ(●´∀`●)

サニタリールームからスライド扉を開けていくと、


トイレがあります!
もちろんウォシュレット機能付きです♪
吊戸棚にはトイレットペーパーなどの補充品をどうぞ (●´∀`)
広すぎず、狭すぎず落ち着きのある空間になっています☆ミ

こちらの扉を開けていくと!

バスルームがあります!
黒色を使った浴槽の側面がアクセントになっていてお洒落ですね(●’艸`*)


浴槽は体に優しい丸みのあるつくりです♪
シャンプーなどが置ける棚や物干し竿置など用意されていますよ(*’ω’*)♪

入浴時間が異なっても追い焚き機能付きなので安心です!
雨の日で洗濯物が乾かせなくても浴室乾燥機で乾かすことが出来ますよ((((●・ω・)ノ♡

玄関正面の扉を開けていきましょう♪


こちらにはリビングダイニングキッチンがあります!
シンプルで居心地の良いお部屋になっています(/・ω・)/


キッチンはとても大きいです!
収納スペースが上下にあるので食器や調理器具の収納場所に困ることはありません(*^-^*)

コンロは三口!
一度にたくさんのお料理ができて時間短縮ができますね(*´˘`*)♡
キッチン横にお風呂のボタンがあるので調理中でもボタン一つで準備完了です♪

リビングダイニングから二つのスライド扉を開けていきたいと思います!
まずは右から行きますよ♪



こちらは5.3帖の洋室です!
シンプルなお部屋はどんな家具でも映えそうです✿
エアコン設置済みなのですぐに快適な空間で過ごすことが出来ちゃいます((´I `*))

写真ではうまく広さが伝えられませんが、奥行きのある大きなクローゼットになっています!
左右にバーが付いていてたくさんのお洋服が掛けてしまえますよ((´I `*))

お隣のお部屋に入って行きましょう♪


こちらのお部屋は大きな窓付きです!
自然の光が入ってきて気持ちがいいですよ☆ミ

窓すぐ横には収納が用意されています♪
棚があるのでたくさん物がしまえますよ(´∀`●)

照明は大きく、お部屋を明るくしてくれますよ♪
こちらのお部屋の壁はエコカラットが使用されています(●’ω’●)
消臭や有害物フリーなどの効果があり、空気のいいお部屋で過ごすことが出来ますね(♡˙︶˙♡)

窓は二重サッシになっていて外の音が気になりませんよヾ(。・ω・)ノ
窓が大きいのでしっかりと手すりが用意されています!

バルコニーは3.45㎡です!
ペット飼育可能なのでワンちゃんや猫ちゃんと一緒に住む事もできますよ(●´∀`)
5路線、3駅利用可能の好立地で新生活を送ってみませんか?
いかがでしたでしょうか?
ご質問等ございましたらお気軽にご連絡ください!
皆様のご連絡心よりお待ちしております♪
過去に販売していたお部屋の概要 このお部屋の販売は終了いたしました。
| 価格 | -万円 |
| 面積 | 92.05㎡ |
| 間取り | 3bedrooms(3LDK) |
| 管理費 | 月額:18,240円 修繕積立金:月額18,660円 |
| 所在階 | 6階 |
それでは、間取りのご紹介です。3LDK+納戸、92.05㎡。ファミリーにおススメな物件です(●´∀`●)
さっそくお部屋を見ていきましょう♪♪落ち着いたブラウンとホワイトのシックな印象の玄関です (●´∀`)
玄関照明は人感センサーになっているので節電はもちろん夜間のお帰りの際も便利です。
玄関右手にシューズインクローゼットがあります。ご覧の通りの大容量で、傘やシューケア用品などなどもバッチリ収納できます。可動式の棚なので、靴のサイズに合わせて調節ができブーツの収納も大丈夫。
廊下左手がサニタリールームになっています。段差も無く、移動もスムーズです。左手手前が、洗濯機置場、左手奥が洗面台。右手の奥がバスルームになっています。
洗濯機置場です☆収納はありませんので、洗剤等はお隣の洗面台下にしまいます。
シックな木調パネルの大きめサイズの洗面台です。
鏡の裏に収納スペースがありますので、歯ブラシから洗顔フォームまでゴチャゴチャ散らかりがちな洗面まわりの物もスッキリお仕舞いただけます♪♪シャワーヘッドは、シャンプーに便利ですが、お掃除にも便利ですよ(●´∀`)
バスルームは、高級感のある落ち着いた木調のパネル☆ゆっくり大きなバスタブにつかって疲れを癒せそうです♪♪
ミラー上部にシャンプーなどのボトルもキレイに並べて置ける棚があり、清潔感のある空間を保つことができます♪♪モザイクパターンの床は、すばやく乾燥、楽々お手入れです。
浴室乾燥機能が付いています。雨の日でも安心してお洗濯ができますよ(*´∀`*)

バスルームの扉の横には可動式棚の収納があります。リネンの収納にもってこいですね (●´∀`)
こちらは、玄関の正面に位置します約6.3帖の洋室です。南東の壁一面が開口部になっていて明るいお部屋。
収納豊富なウォークインクローゼットがつくられています。棚も設置されていて使い勝手が良さそうです。
バルコニーも設置されています♫なんとこちらの物件にはバルコニーが3つ!!こちらのバルコニーが一番大きいバルコニーです。
こちらは廊下右手の納戸です。収納が多いと生活スペースが大きくなるので本当にうれしいです。
廊下右手に、ウォシュレット付きのトイレです♫新規交換済みでピッカピカ (●´∀`)

上に棚が付いているのでトイレ用品の収納にお使いいただけます。
廊下左手にカウンターが設置されています。お気に入りのインテリアや、お花や観葉植物で自分らしい空間を演出できそうですよ♪
廊下突き当りのお部屋は、約4.2帖の洋室。南東・北東の二面採光で陽当りバッチリ♫
奥行きもしっかりで収納力バツグン☆バーも付いているので、ロングコート等の衣類の収納にも良いですね♪♪

リビングダイニングキッチン入ってすぐのところにクローゼットが設置されています。普段使いの物などはこちらにすべて収納できそうです♪♪急なお客様の時でも生活感を隠せてgood☆インターフォンはTVモニター付きで、セキュリティもバッチリ♫

リビングダイニングキッチンは、約19帖と大きなお部屋。
落ち着いた木調がステキな空間です (●´∀`)窓は南東向きが2つ、南西向きが1つで、陽当りも良好。家族が集うのにぴったりなお部屋です♪♪
キッチンは、リビングダイニングキッチン入ってすぐの右手。シックな印象です♫

キッチンは上下に収納があり調理道具がたくさん入れられそうです♪シンク下の収納は、スライド式なのでキッチングッズの収納も楽々 (●´∀`)配管を気にせず収納できるので大容量。

3つ口コンロはお料理好きの方には嬉しいですね♪シンクは大きめで使い勝手◎
食器洗浄機付きなので、家事の負担も軽減♫
こちらはリビングダイニングキッチンから出入りする2つめのバルコニーです。
リビングダイニングキッチンお隣の約7.5帖の洋室です。こちらのお部屋の窓も南西向き。
クローゼットもあり収納もOK♪奥行きもしっかりです♪♪
いかがでしたでしょうか。
東京の真ん中の閑静な住宅街、利便性と住環境を兼ね備えたお部屋でした♪♪窓が沢山ある物件で、陽当り、通風に恵まれています(*´˘`*)♡
内見のご希望、ご質問などございましたら、![]()
過去に販売していたお部屋の概要 このお部屋の販売は終了いたしました。
| 価格 | -万円 |
| 面積 | 41.56㎡ |
| 間取り | 2bedrooms(2DK) |
| 管理費 | 月額:8,220円 修繕積立金:月額8,430円 |
| 所在階 | 2階 |
間取りのご紹介です。41.56㎡、2DK.
室内リノベーション済み!お部屋に合わせた家具もついています。
室内写真も近日掲載予定です。
ご内見のご希望・ご質問などございましたら、お気軽にお問い合わせくださいませ♪































































































































































































弊社 公式HP
六棒総合研究所
掲載予定物件
価格変更と販売終了物件
ハザードマップ検索
適合証明書.jp
Facebook
Twitter
Instagram