・
□□□□□□□□□□□□□□□□□□□□□□□□□□□□□□□□□□□□□□□
いつも弊社ホームページをご覧頂き誠にありがとうございます。
コーポ麹町はお陰様で販売を終了致しました。弊社問合せフォームにてご要望頂けましたら、当お部屋でキャンセル等が発生した場合、他のお部屋が販売になりました際にご紹介させて頂きます。
不動産Agent 六棒株式会社
TEL:03‐5413‐5336
□□□□□□□□□□□□□□□□□□□□□□□□□□□□□□□□□□□□□□□
・
◆◇アクセス◇◆
東京メトロ半蔵門線「半蔵門」駅徒歩8分
JR総務・中央線・都営新宿線・東京メトロ有楽町線・南北線「市ヶ谷」駅徒歩8分
マンションは半蔵門・市ヶ谷ともに徒歩8分の距離。
合わせれば6路線利用可能と通勤・お出かけに便利なナイスロケーションです。
交通の便はいいのですが、駅周辺はビジネスマンや学生向けの飲食店が多く日常のお買い物ができるスーパーなどは少なめ。ミニスーパーやドラッグストアが点々とあるものの、お買い物は少し不自由さを感じるかもしれません・・・。
その分、この辺りは皇居が近いこともあり都心ながらも緑ゆたか。千鳥ヶ淵公園までは徒歩9分。
もう少し足をのばせば北の丸公園や靖国神社も徒歩圏。お散歩スポットは豊富です。
桜の季節は千鳥ヶ淵でお花見も♪
四季を身近に感じながら、のびのびした生活が送れそうです。
コーポ麹町は昭和45年築、8階建て、総世帯数73戸。
隣は大妻女子大学図書館です。
エントランスはオートロック。
セコムも導入しているのでセキュリティが気になる方も安心です。
宅配ボックスもあるので留守の時も安心してお荷物受け取れますね(((uдu*)ゥンゥン
ではエレベーターでお部屋までいってみましょう♪
廊下は内廊下風でした◎
雨風が防げてお部屋まで行けますね。
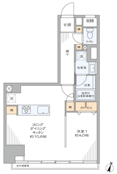
さて今回のお部屋は7階になります。
間取り図はこちら↓
クリックすると別タブで開くことも可能です。
間取りは1DK、専有面積は29.16㎡。
では、早速行ってみましょう!
7階です。

内廊下風の廊下を進んで突き当り手前のお部屋になります。こちらですね。
モニター付きインターフォンがありますね。ダブルロックの軽い力でも開けることのできるドアです。それではドアを開けて内見スタートしましょう。
明るい玄関ですね。昼間は日の光だけで充分明るい玄関ですが、夜も人感センサー付きライトが自動点灯しますので、暗くはないですよ。
早速気になるのは、右側のクローゼット。窓もある、珍しい感じの収納です。
狭き入口なので、奥の方は普段あまり使わないものを収納した方がよさそうです。
左側はトールシューズボックス。棚が可動しますので、こちらもいろいろと収納できそうです。
正面のダイニングキッチンに入る手前に左側に扉がありますね。こちらは、洗濯機置場です。
それでは、ドアを開けて進んで行きましょう。ワクワク。
ダイニングキッチンと奥にベッドルームがあります。
ベッドルームへのドアが開いてますね。。。すみません。先回りして開けたのは私です。
閉めときます(^▽^;)
キッチンはシステムキッチンでコンパクトにまとまっています。
もちろん、収納はバッチリ完備されています。
水洗は浄水機能が付いてますし、3口ガスコンロです。
右側の壁についているのは、ユニットバスの設定パネルとモニター付きインターフォンです。追い炊き機能・浴室換気暖房乾燥機能等が付いていますよ。
それでは、さっきチラ見えしてしまいましたが、改めてベッドルームを開けて見てみましょう。
エアコンの下が出窓っぽくなっています。あのラインでパーテーション等を置いて区切れば、空間を上手に仕切ることもできそうです。
このお部屋の収納は右奥にあります。大きめのクローゼットですね。
段ボールが置かれているのは、ご愛嬌。モデルルームの備品たちです。
壁にはピクチャーレールが設置されています。癒しのスペースですね。せっかくなのでお気に入りの絵や写真を飾りましょう。ジグソーパズルを作って飾るものアリです。
次は、洗面室・トイレ・浴室を見に行きましょう。
洗面台はシンプルな洗面ボウルと鏡(収納有り)の造りです。洗面台の右奥が浴室となっています。
木目調の壁でリラックスできる雰囲気の浴室ですね。大きな鏡が側面にあり、浴室が広く感じます。
では、水回りの最後、トイレを見ておきましょう。ガラリ。
ペーパーホルダーとウォシュレット機能が壁にまとまっています。そして、猫の足跡?
トイレはコンクリート打ちっ放し風の無機質デザインと思わせつつ、猫の足跡があります。担当デザイナーのちょっとした茶目っ気ですね。
それでは、最後にバルコニーからの景色を確認して内見終了しましょう。
右方面、左方面、正面下方面の写真です。目の前の眺望がひらけているわけではありませんが、隣の建物とスペースがありますので、息苦しい感じはしないです。
洗濯物は人目を気にせず干せますね。というか、7階は結構高い。。。
以上でコーポ麹町のご案内を終わります。
いかがでしたでしょうか??
市ヶ谷駅から徒歩7分のマンションです。
リノベーション済みという事で室内はとてもキレイですよ (っ・ω・)っ
内見のご予約やご質問などございましたらお気軽にお問い合わせくださいませ。
ご連絡お待ちしております。
弊社、不動産Agent 六棒株式会社では、
□リノベーションマンションはほぼ全て仲介手数料無料!
□その他一般仲介物件は仲介手数料20%~30%OFF!
にてお取り扱いしております!※弊社の「Agent Fee=仲介手数料」についてはご案内、ご面談の際に営業担当者よりご説明いたします!
なるべく沢山のお部屋をホームページに掲載したいと思っておりますが、時間的成約もございますので、残念ながらご紹介できるお部屋の一部しか掲載できておりません。
このホームページに掲載中のお部屋、その他サイト等で気になるお部屋、街を歩いていて気になったマンション等々ございましたら是非、弊社営業部までご相談ください!
~不動産Agent 六棒株式会社の特徴~
・一般仲介物件の仲介手数料は20%~30%OFFにてご案内中です!
・リノベーションマンションについてはほぼ全て仲介手数料無料です!
・住宅ローンに自信あります!
・頭金10万円より購入できます。是非ご相談下さい!
・お部屋のご見学は車で2~3件まとめて案内します!
・物件数3000件以上、新築戸建、リノベ物件も多数ご用意しております!
過去に販売していたお部屋の概要 こちらのお部屋の販売は終了いたしました
| 価格 | -万円 |
| 面積 | 38.82㎡ |
| 間取り | bedrooms(1LDK) |
| 管理費 | 月額9,000円 修繕積立金:月額13,700円 |
| 所在階 | 2階 |
| お問い合わせ・ご内見のご予約はこちらからお気軽にどうぞ | |
さて今回のお部屋は2階になります。
間取り図はこちら↓
クリックすると別タブで開くことも可能です。
間取り図とお部屋比較しながら一緒にお部屋みましょう(((((((((((っ・ω・)っ
こちら今回のお部屋玄関前になります|ω・`)ちら
玄関扉綺麗になり、ダブルロック付きで
カラーTVモニタ付きインターフォンが今回新たに設置されました!
これで来訪者もばっちり確認
セキュリティ面も安心ですねー
では♡早速お部屋いってみましょう
お邪魔しまーす┏○ペコ
白いクロスに窓枠が黒いのが個人的に大好きで(///▽///)
木の温もりを感じさせつつスタイリッシュな空間に◎
靴箱今回新たに設置されています!
高さ調節も出来るのでレインブーツを入れたり
ロングブーツ入れたり出来るので嬉しいですね(((uдu*)ゥンゥン
では♡リビングいってみましょう♪
お邪魔しまーす┏○ペコ
リビング開けるとすぐ目の前に開き戸タイプの棚があります。
日常品のストック入れたり、小物入れたり、、
扉があり目隠し出来るのが嬉しいですね( *• ̀ω•́ )b グッ☆
モデルルームになっていたので生活の想像ができやすいですね!
北欧風のインテリアがとても素敵でした(〃▽〃)ポッ
お隣りは寝室になる洋室になります。
扉はありません!自由に行き来が可能ですo(^O^*=*^O^)o ワクワク
どうぞご覧ください(っ・ω・)っ
収納も広々としていましたね(((uдu*)ゥンゥン
寝室からリビングが覗ける使用になっていて驚きました!
お洒落カフェみたいですね~★
ではキッチンにスポットライトあててみましょう!
お料理が出来る人気のカウンターキッチン♪
3口ガスコンログリル付き
なんと!!浄水器もついています( *• ̀ω•́ )b グッ☆
毎日美味しいお水が簡単に飲めます!
お子様にも安心ですね。
では♡続いて他の水回りいってみましょう♪
ε=(ノ゚Д゚)ノ ∥WC∥
棚に囲まれた扉を発見|ω・`)ちら
トイレに繋がっています
LIXIL製ウォシュレット付きトイレに新規交換✨
内装はシンプルis the BEST!癒し空間でした◎
続いてどんどん行きましょう
洗面とお風呂へ(((((((((((っ・ω・)っ
こちらも素敵な独立洗面台でした(〃▽〃)ポッ
女性の好きなものがいっぱい詰まっております。。
洗濯機置場の上には収納棚がありました!
タオル類を入れたり洗剤など入れたり、、
開き戸タイプなので目隠しが出来スッキリ収納が可◎
続いてお風呂です!!
浴室乾燥機付き!!!
雨が続いてもこれから冬にかけてどんどんお洗濯しづらくなります。
ですがこれがれば気にせずお洗濯まわせます( *• ̀ω•́ )b グッ☆
またこれからの時期に多いヒートショック防止に暖房もつけられます♡
お子様なども湯舟でじっとしてること滅多にないですよね(^▽^;)
そんな時にとっても便利です☆色々試しに使ってみてください!!
さてコーポ麴町、リノベーションマンションのお部屋いかがでしたか?
最後に!南向き日当たり良好◎
バルコニーいってみましょう(((((((((((っ・ω・)っ
目の前はちょうど家が建っていました。
高台に建っているので人と目があうようなことはなさそうです。
南向きなのと少し離れて経っている為陽は入ってきました。
気になる方は一緒に現地で確認しましょう(((uдu*)ゥンゥン
さて、【コーポ麴町】はいかがでしたでしょうか?
他にも詳細が知りたい!!実際に見学をしたい!!などありましたら
仲介手数料最大無料の当社
お電話ください(^-^*)/
TEL 03-5413-5336
お気軽にお問い合わせください。
スタッフ一同お待ちしております。
弊社、不動産Agent 六棒株式会社では、
□リノベーションマンションはほぼ全て仲介手数料無料!
□その他一般仲介物件は仲介手数料20%~30%OFF!
にてお取り扱いしております!※弊社の「Agent Fee=仲介手数料」についてはご案内、ご面談の際に営業担当者よりご説明いたします!
なるべく沢山のお部屋をホームページに掲載したいと思っておりますが、時間的成約もございますので、残念ながらご紹介できるお部屋の一部しか掲載できておりません。
このホームページに掲載中のお部屋、その他サイト等で気になるお部屋、街を歩いていて気になったマンション等々ございましたら是非、弊社営業部までご相談ください!
~不動産Agent 六棒株式会社の特徴~
・一般仲介物件の仲介手数料は20%~30%OFFにてご案内中です!
・リノベーションマンションについてはほぼ全て仲介手数料無料です!
・住宅ローンに自信あります!
・頭金10万円より購入できます。是非ご相談下さい!
・お部屋のご見学は車で2~3件まとめて案内します!
・物件数3000件以上、新築戸建、リノベ物件も多数ご用意しております!
過去に販売していたお部屋の概要 このお部屋の販売は終了いたしました。
| 価格 | -万円 |
| 面積 | 64.26㎡ |
| 間取り | 2bedrooms(2LDK) |
| 管理費 | 月額: |
| 所在階 | 8階 |
| お問い合わせ・ご内見のご予約はこちらからお気軽にどうぞ | |
間取りのご紹介です。2LDK、64.26㎡。
8階部分の角部屋になります。
室内はリフォーム済み。
ご内見のご希望・ご質問などございましたら、お気軽にお問い合わせくださいませ♪













































































































弊社 公式HP
六棒総合研究所
掲載予定物件
価格変更と販売終了物件
ハザードマップ検索
適合証明書.jp
Facebook
Twitter
Instagram