・
□□□□□□□□□□□□□□□□□□□□□□□□□□□□□□□□□□□□□□□
いつも弊社ホームページをご覧頂き誠にありがとうございます。
ヴェラハイツ日本橋箱崎はお陰様で販売を終了致しました。弊社問合せフォームにてご要望頂けましたら、当お部屋でキャンセル等が発生した場合、他のお部屋が販売になりました際にご紹介させて頂きます。
不動産Agent 六棒株式会社
TEL:03‐5413‐5336
□□□□□□□□□□□□□□□□□□□□□□□□□□□□□□□□□□□□□□□
・
東京メトロ日比谷線「茅場町」駅より徒歩10分にあります、新規内装リノベーションマンションのご紹介です。
東京メトロ半蔵門線「水天宮前」駅より徒歩3分からの利用も可能です。
本日は、「茅場町」駅からのご案内です。
改札を出て7番出口から地上に上がりました。
水天宮・人形町・八丁堀といった東京名所に囲まれている茅場町は、オフィスも多く、
東西線と日比谷線が交差しているためアクセスも便利です。乗換えで利用する人も多いです。
周囲には飲食店やカフェも多く、お手ごろ価格の牛丼店もあり、少し路地を入るとイタリアンもありました。
では、さっそく歩きはじめたいと思います。地上に上がりクルッと振り向き永代通り沿いを進みます。
マンションまで向かうまでに本日は2つの橋を渡ります。一つ目の橋です。
霊岸橋といいます。地下鉄東西線茅場町駅のすぐそばにある永大通りが通る橋。
霊岸橋の由来は、この一帯が霊岸島と呼ばれていた事から命名されたそうです。
渡ってすぐに少し休憩したくなる小さな公園がありました。川と橋と公園、忙しいビジネスマンたちも癒されそうですね。
なんと200円おそばを発見!嬉しい価格ですね!コンビニも多くドトールにスタバとコーヒータイムもできますね♪喫煙の方はドトールに喫煙ルームありです。
2つ目の橋、奏橋です。江戸湊の出入口にあったところから、湊橋と名付けられたようです。
橋と川は歴史を感じさせてくれますね。
こちらはマンション近くにあるお弁当屋とコンビニ。忙しい日や体調が悪いときなどにあると助かるお弁当屋さん。お部屋から近くにあるので温かいお弁当が頂けますね。
茶色のレンガのタイル、存在感ある外観です。
地上12階建て 昭和57年 総戸数/52戸
平成20年1月~4月大規模修繕工事実施済です。(外壁等修繕塗装工事)
入口手前の右下に可愛らしい緑が植えてあります。今の季節クリスマスのイメージにピッタリ☆スロープを進みますとオートロックになっています。防犯になり安心ですね。
オートロック解除し中へ入ると、レトロなタイルが落ち着いた雰囲気を感じます。左に集合ポスト、右には管理室・エレベーターとあります。管理室の明かりがみえるとホッとしますね。
管理体制良好です!
エレベーターでお部屋へ!
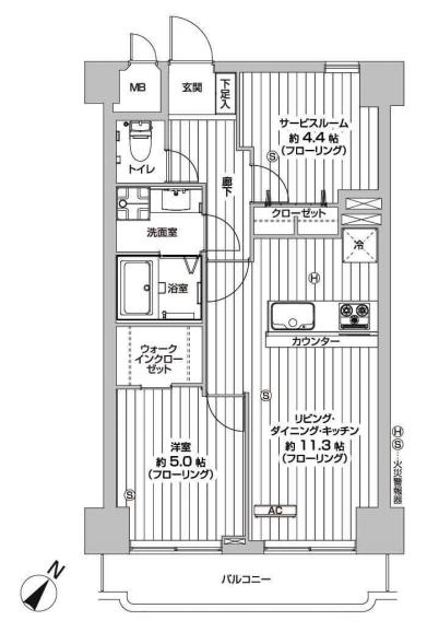
ここで間取り図のご紹介です。
※間取り図は別タブで開きますので、図面を確認しながら写真等ご覧頂く事が出来ます。
今回ご紹介するお部屋は8階、間取りは1LDK、専有面積は44.11㎡。おひとり暮らし又はDINKSの方にお勧めのお部屋です。1LDKなのに大きなウォークインクローゼットがふたつ!!収納が豊富なのっていいですよね♬
では、早速行ってみましょう!
ゆとりのある、エレベーターホールです。きちんと手入れされているので綺麗です。
マンションは共用部の管理もちゃんとされていると安心です。
玄関にはモニター付きインターフォン。
それでは、内見をスタートしましょう。
LDKへの扉のスリット状のガラスデザインが光を採り入れてくれています。
昼間は電気をつけていた玄関なら、電気代の節約にもつながりますね。
ダブルロックにチェーン。最近あまり見かけないチェーンは、ドアをちょっと開けて覗いたりする時にありがたいアイテムです。
トールシューズボックスに人感センサー付きライト。
シューズボックスの扉の片側は鏡張りになっています。玄関に鏡があると便利です♪
それでは、LDKへ行ってみましょう。
LDKが広がっています。木目ラインがストライプ調なのでスッキリとした印象です。
廊下から入ってすぐの右壁側にはウォークインクローゼットがあります。
ここは、かなり広めです。洋服以外にもリビングで使用する掃除機等を仕舞っておけますね。
棚も設置されているし、アイデア次第でいろいろと収納・ストックしておけそうな場所です。
LDKと洋室を仕切っている扉を解放してみました。扉は壁に収納されるので白い壁に囲まれた一つのお部屋になります。
別の角度から見てみると、このようになっています。
引き込み式の扉を引き出してきて閉めれば、もちろん立派な個室になります!
個室感。
ありますよね?
L字型にバーが配置された大型ウォークインクローゼットもあります。
奥行きがあるので洋服以外もタップリ収納可能です。
それでは、キッチンの詳細をチェックしていきましょう。
真っ白ではない、キッチンパネルが優しさを感じさせるキッチンスペースです。
システムキッチンなので、ビルトイン食洗器が付いています。
それ以外の場所はスライドキャビネット式の収納です。スライド式は引き出して、上からパッとお目当てのものを取り出しやすいです。
浄水機能付きシャワー水栓にスタイリッシュなフラットの換気扇。お手入れもしやすいタイプです。
グリル付ガスコンロは機能付き!
コンロでのフライパンや鍋、グリルでのココットやグリルプレートをフル活用でき、
献立に困らない美味しい食生活が実現します。
カウンターキッチンからの眺めです。ドアを引き込んでおけば、左のお部屋まで目が届きます。
それでは、浴室、洗面室を見に行きましょう。
洗面台と洗濯機が仲良く収まっています。洗濯機置場の上に、吊戸棚が設置されているので洗剤や柔軟剤を保管しておくことができます。洗濯機回りをスッキリと片づけておけますね。
洗面台のシャワー水洗はノズルが伸びます。
洗面台の裏側は収納になっていて、下部はスライドキャビネットになっています。
コンパクトフォルムのシンプルなトイレ本体は、曲線を活かしたデザインでお掃除がしやすくなっています。
吊戸棚にトイレットペーパーやお掃除用品を収納可能です。
トイレ本体はスッキリと。機能は壁のパネルで操作します。
浴室の全景です。キッチンと同じ風味のパネルですね。家全体で統一感があります。
スライドバーのシャワーは好きな位置で高さ設定できます。老若男女問わず利用でき便利ですね。
浴槽は角が無いまあるいタイプ。
浴室の入口には乾燥暖房換気システム用スイッチパネル。雨の日も花粉の気になる季節もお風呂場で干せるので助かります。
それでは、最後にバルコニーへ。
インナーサッシの2枚のガラスの間にブラインドが入っています。
ガラスとガラスの間にブラインドを挟み込み遮熱性をプラス。ブラインドの角度調節をすることにより、光や視線をコントロールしながら断熱効果をさらにアップさせることができます。
レンガ色に塗られているバルコニー床面。天井から物干しが設置されています。
レンガ造りの外観が雰囲気あります。
首都高速9号深川線が見えます。
奥の方に見える川は隅田川です。
以上でヴェラハイツ日本橋箱崎のご案内を終わります。
いかがでしたでしょうか??
水天宮前駅から徒歩3分のマンションです。
リノベーション済みという事で室内はとてもキレイですよ (っ・ω・)っ
内見のご予約やご質問などございましたらお気軽にお問い合わせくださいませ。
ご連絡お待ちしております。
弊社、不動産Agent 六棒株式会社では、一般仲介物件は仲介手数料20%~30%OFF!
にてお取り扱いしております!
なるべく沢山のお部屋をホームページに掲載したいと思っておりますが、時間的成約もございますので、残念ながらご紹介できるお部屋の一部しか掲載できておりません。
このホームページに掲載中のお部屋、その他サイト等で気になるお部屋、街を歩いていて気になったマンション等々ございましたら是非、弊社営業部までご相談ください!
~不動産Agent 六棒株式会社の特徴~
・一般仲介物件の仲介手数料は20%~30%OFFにてご案内中です!
・住宅ローンに自信あります!
・頭金10万円より購入できます。是非ご相談下さい!
・お部屋のご見学は車で2~3件まとめて案内します!
・物件数3000件以上、新築戸建、リノベ物件も多数ご用意しております!
過去に販売していたお部屋の概要 このお部屋の販売は終了いたしました。
| 価格 | -万円 |
| 面積 | 48.79㎡ |
| 間取り | 1bedroom(1SLDK) |
| 管理費 | 月額12,870円 修繕積立金:月額6,350円 |
| 所在階 | 7F |
| お問い合わせ・ご内見のご予約はこちらからお気軽にどうぞ | |
間取りのご紹介です。1SLDK、48.79㎡。
室内はリノベーション済みです。
【リノベーション内容】
■玄関・・・玄関収納、人感センサー
■LD・・・エアコン
■キッチン・・・クリナップシステムキッチン(人造大理石トップ、浄水器内蔵シングルレバー水栓)
■洋室・・・ウォークインクローゼット
■サービスルーム・・・エアコン先行配管、クローゼット
■浴室・・・TOTOユニットバス(サーモ付シャワー水栓、換気乾燥暖房機)
■洗面・・・LIXIL洗面台、防水パン
■トイレ・・・TOTOトイレ(ウォシュレット付き)
■共通・・・壁・天井クロス、照明器具、建具、給湯器(台所リモコン付き)、フロアタイル(玄関・洗面・トイレ)、フローリング(廊下・洋室・LDK・サービスルーム)、インターホン(カラーTVモニター付き)、給水、給湯、配管、ガス管(専有部分)、住宅用火災警報器、室内クリーニングなど
ご内見のご希望・ご質問などございましたら、お気軽にお問い合わせくださいませ♪
過去に販売していたお部屋の概要 このお部屋の販売は終了いたしました。
| 価格 | -万円 |
| 面積 | 58.27㎡ |
| 間取り | 3bedrooms(3LDK) |
| 管理費 | 月額:15,370円 修繕積立金:月額7,580円 |
| 所在階 | 11階 |
ここで間取りのご紹介です。(3LDK 58.27㎡)
お部屋の階は11階!開放感ある眺望が望めそうですね♪
ドアをあけますと右側にウッドの暖かさを感じる、トールサイズの玄関収納があります。
高さのあるシューズもペッタンコなシューズも収納できそうです♪
玄関収納の並びにもう一つ高さのある収納があります。これは嬉しいですね。
生活に必要なストック物などが納まりそうです。調整すれば掃除機なども置けちゃいそうです。
玄関入り左にある廊下です。正面へはリビング・ダイニング・キッチン+洋室2部屋へ。
左側にはサニタリールーム、右側には洋室1部屋並びにトイレです。
では、サニタリールームから見てみたいと思います。
サニタリールームです。正面に洗面化粧台 左に浴室 右に洗濯機置き場となっています。
清潔感ある洗面化粧台です。見やすい三面鏡では朝のお化粧もヘアースタイルもバッチリセットできそうです。三面鏡の扉を開けば収納に、細々したものはここで整理整頓できますね。
少し浅めの洗面ボウルはスクエア型でスタイリッシュ!洗面ボウル右側にはタオルハンガーもついています。ここなら小さなお子さまも一人で手を洗いタオルで拭きやすいですね!
追炊き・浴室乾燥機付きのバスルームは、薄いベージュのパネルがリラックスモードにさせてくれそうです。浴室乾燥は今の季節乾きにくい洗濯物を干したり、カビ防止にもなりそうです。
露の季節は特に嬉しい機能ですね。
浴室向かいにある洗濯機置き場です。上部には、あると助かる棚があります。
目隠しがないので、隠したい場合は好みのカフェカーテンなどで目隠しなんていかがですか~
廊下右側にある6.0帖の洋室です。バルコニー付きと嬉しいお部屋♪
外の空気をすったり、空をみて目を休めたりと気分転換できますね。
6.0帖洋室の並びにあるウォシュレット付トイレです。吊戸棚があります。こちらにはトイレットペーパーなどのストックができますね。
廊下正面の扉を開けますと10帖のリビング・ダイニング・キッチンです。その奥には2つの洋室があります。右側にある洋室の仕切りをあけますと開放感ある空間に、このような使い方も良いですね。家族の憩いの場になること間違いなしですね。
白を基調としたゆとりあるキッチン!シンク、コンロの壁面も真っ白~調理スペースもしっかりとあり使い勝手が良さそうです。下部にあるスライド式収納は深さもあり奥まで収納できそう♪
幅や深さのあるお鍋もスッポリと仕舞えそうです♪調理スペース下の引き出しは仕切りのある引き出しになっています。
お箸やスプーンなど細かいものを仕舞うのに丁度良いですね。
右側にあるバルコニーに面している5.6帖の洋室は2面採光の明るいお部屋です。
左側にあるこちらのお部屋もバルコニーに面しているクローゼット付き、4.5帖の洋室です。
少々小さなお部屋ですがクローゼット付きなのでその分お部屋を有効に使えそうです!
南東向きのバルコニーです。(8.03㎡)洗濯物も十分に干せます。
11階からの眺望です。左方面は高速道路があります。少々気になるかもしれませんが、右方面はこの通り開放感あふれる眺望が望めます!本日は曇り空でしたが、青々したお天気の日は清々しい気持ちなんでしょうね~
正面には高い建物がありますが、間スペースはありました。
個人差で感じ方も違うかと思いますので、是非現地をご覧下さい。
近くには公園もありました。オフィスが多いイメージもありますが、こちらの公園では保育園児が鬼ごっこをしている姿があったり、犬の散歩をしている方もいらっしゃいました。
日々の食品のお買い物には、まいばすけっと徒歩5分・大丸ピーコック・ルナーレ日本橋浜町店徒歩10分にございます。
皆様のご内見、心よりお待ちしております!
























































































































弊社 公式HP
六棒総合研究所
掲載予定物件
価格変更と販売終了物件
ハザードマップ検索
適合証明書.jp
Instagram