・
□□□□□□□□□□□□□□□□□□□□□□□□□□□□□□□□□□□□□□□
いつも弊社ホームページをご覧頂き誠にありがとうございます。
朝日シティパリオ中目黒はお陰様で販売を終了致しました。弊社問合せフォームにてご要望頂けましたら、当お部屋でキャンセル等が発生した場合、他のお部屋が販売になりました際にご紹介させて頂きます。
不動産Agent 六棒株式会社
TEL:03‐5413‐5336
□□□□□□□□□□□□□□□□□□□□□□□□□□□□□□□□□□□□□□□
・
突然ですが!!
中目黒と言えば何を思い浮かべますか??
川沿いの桜が一般的でしょうか??
レモンサワーで有名な某エグザイルの本拠地があることでも有名かもしれませんね!?
そんな中目黒の魅力を軽く紹介してからマンションに向かいましょう (・ω・)b
□□□□□□□□□□□□□□□□□□□□□□□□□□□□□□□□□□□□□□□
★★★【朝日シティパリオ中目黒】周辺のハザードマップをCHECK!!★★★
お部屋の記事を読む前に…!周辺のハザードマップをチェックしておきませんか!
朝日シティパリオ中目黒のハザードマップは★こちらから…どうぞ★
□□□□□□□□□□□□□□□□□□□□□□□□□□□□□□□□□□□□□□□
ハザードマップもご確認いただきましたので、次は街の紹介です!
中目黒駅は目黒区の一番東に位置している駅です。
2013年に東横線から副都心線への直通運転が開始されたことによって、北は渋谷・新宿三丁目・池袋、東は恵比寿・六本木・銀座・上野・北千住、西は横浜・元町中華街まで対応しています。
バスに乗れば南の大井町も一本でカバーしています。
アクセスの良さは都内でもトップクラスだと、個人的には思っています。
2016年に開業した中目黒の高架下。
祐天寺方向へと続いています。焼肉屋さん、おでん屋さん、
カフェなどお洒落なお店ばかりですよ( ー`дー´)
ますます中目黒が発展していきそうな予感がします・・・
地元の人に昔から愛されている商店街も駅のすぐそばにあります。
昔ながらのお店が半分、新しいお店が半分といった印象。
入れ替りの激しい中目黒でも、古き良き感じの蕎麦屋さんがあったりすると何だか安心しますよ(`・ω・´)
創業数十年のお店がだんだん減っていくのはなんだか寂しくもありますけどね!!
駅周辺にはスーパーが3軒あります。
価格帯の印象でいけばプレッセ≧東急ストア>ライフでしょうか。
店舗ごとに強みが違うので、使い分けるのがいいかと思います c (っ・ω・)っ
3軒とも終電前には閉まるので、少し不便に感じるかもしれませんが、
そこが中目黒の治安がいい理由なのかもしれません。

駅から10分程歩けば激安の殿堂ことドンキホーテがあります。
マンションとは反対側ですが、一応徒歩圏内と言えるでしょう!!
魚以外でしたら、肉や野菜から洋服、布団、家具、自転車まで新生活に必要な物は何でも揃います。
24時間営業なので、深夜に急に家で焼肉がしたくなっても対応可能です(U^ω^)
ドンキホーテの横には、日本初、世界でも4番目のスターバックスの旗艦店スターバックス リザーブ ロースタリーがあります!!
ローストしたてのコーヒーや、有名なシェフが監修したフードも充実していますよ!!
中目黒がますますお洒落な街になりますね!!
休日は混んでいるみたいですが並ぶ価値アリなお店ですよ!!
川沿いで一番のおすすめはこちらのヨハンです。
1978年創業のチーズケーキの専門店です。
平均年齢70歳のおじいちゃんパティシエによる手作りということで無着色、無香料、保存料無添加!!
ほんとに美味しいので一度食べてみることをお勧めします。
個人的には3食ヨハンのチーズケーキでも良いと思っています ( ̄∀ ̄*)
飲食店も充実しています。
中でも駅徒歩1分のばんはお隣、祐天寺でもおなじみのお店です。
レモンサワーともつ焼きが有名で、高く積み上げられたビンケースが繁盛ぶりをアピールしています。( ゚ω^ )ゝ
また、目黒川沿いにはシャレ乙なお店が点在しています。
繁華街のように密集していないのも気持に余裕のある雰囲気で好印象です。
そろそろマンションへと向かいましょう!!
駅を背にして南へ下っていきます。
中目黒のニトリ!!
マンションからも近いので、引越しの直後はお世話になりそうな予感がしますね。
目黒川舟入場と言えばポケモンGOの聖地のひとつ。
目黒川沿いのミニリュウと言えばここでしょう!!!
川の流れを見渡すことができ、いくつかベンチもあるので目黒川近辺散策の休憩に最適です!!
お仕事帰りに一息つく場所として周辺住民からの支持も得ています
もう少し進むとファミリーマートの前に歩道橋が見えますね!!
チョット登ってみましょう!!
これが天下の山手通りです!!
上の写真が中目黒方面、下が目黒・五反田方面ですね
朝夕は結構込み合うので、クルマに乗られる際には少し迂回した方がいいかもしれません
外壁はブラウンのタイル貼り、こちらが「朝日シティパリオ中目黒」です。
マンションから徒歩8秒くらいのところにバス停があります。
大井町や五反田、目黒へはバスを使うのもありかもしれませんね!
エントランス入口は山手通りに面している場所にあります。
宅配ボックス完備です。
何も気にすることなくAmazonでのお買い物を楽しめますね!!
安心のオートロック付きです。右側の窓は管理人室です。明りが見えると何だか安心しますね。
駐車場、駐輪場、ゴミ捨てーションなどはマンションの裏手にありました。
綺麗に手入れされていて、管理体制の良さがうかがえます。
エレベーターは1基です。
朝は時間次第で少し込み合うかもしれません。
それではこちらでお部屋のあるフロアへと向かいましょう!!
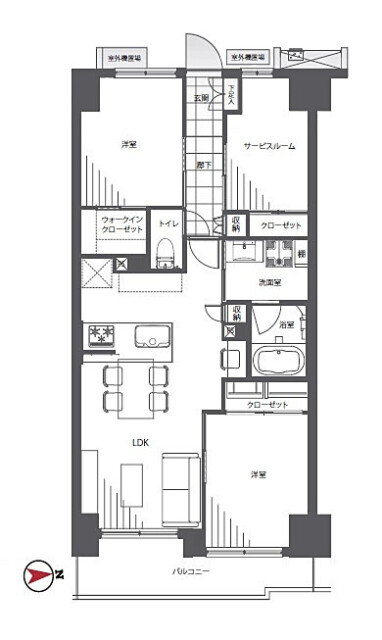
ここで間取り図のご紹介です。
※間取り図は別タブで開きますので、確認しながらご覧いただくことが出来ます。
□□□□□□□□□□□□□□□□□□□□□□□□□□□□□□□□□□□□□□□
★★★【朝日シティパリオ中目黒】周辺のハザードマップをCHECK!!★★★
お部屋の記事を読む前に…!周辺のハザードマップをチェックしておきませんか!
朝日シティパリオ中目黒のハザードマップは★こちらから…どうぞ★
□□□□□□□□□□□□□□□□□□□□□□□□□□□□□□□□□□□□□□□
今回ご紹介するお部屋は2階、専有面積63.23㎡の2SLDK。DINKSやファミリーの方にお勧めのお部屋です。収納も豊富な印象ですね。では、早速行ってみましょう!
玄関から廊下にかけては豪華な大理石貼り!!!建具のナチュラルな色合いに合わせたアイボリー系で温かい雰囲気になっています。フルリノベーション済みということでとても綺麗ですね。シューズボックスは収納力のあるトールタイプ。玄関に散らかりがちな靴をすっきり収納してくれますよ。
こちらはサービスルーム。
サービスルームとは建築基準法上居室と認められないお部屋のこと。あくまでも法律上なので、リノベ物件の場合はデイスプレイされているように普通の洋室として使えることがほとんどです。引き戸のクローゼット付き。
洗面室には洗面化粧台、洗濯機スペース、浴室がまとまっていて、脱衣所を兼ねています。洗面化粧台は身だしなみを整えるのに便利な三面鏡付。裏がキャビネットになっていて収納にも困りません。洗濯機スペースには吊戸棚や収納棚が付いているので、リネン類やランドリー用品などはそちらへどうぞ。
浴室はベージュの木目調パネルを使用。ほっとするような温かみのある雰囲気です。追い焚き機能や浴室換気乾燥機などの機能も完備!最近は急な雨も多いので、天気を気にせずに洗濯できるのは嬉しいですよね。
トイレはTOTO製の温水洗浄機能一体型。掃除道具の収納やトイレットペーパーのストックなどに便利な吊戸棚も付いています。
こちらはリビング・ダイニング・キッチン。
東向きバルコニーに面したお部屋です。縦長のお部屋にカウンターキッチン、ダイニング、リビングと並んだオーソドックスなタイプ。サイズ的にも余裕があるので家具のレイアウトに悩んだりすることもなさそうです。
フローリングや建具には温かみのある木目をふんだんに使用。シンプルな色使いなので家具も合わせやすく、自分好みのお部屋を実現できそうですね。ディスプレイでは木目やライトグレーの家具を使った柔らかく明るい雰囲気になっていますが、アイアン素材などの黒を増やせばモダンでスタイリッシュな雰囲気にもなりそうです。(ちなみに置いてある家具はディスプレイなので付いてきません)
キッチンは人気のカウンタータイプ。食器洗浄乾燥機や浄水機能一体型水栓も付いています。
壁天井の付加された部分には間接照明が付けられ、お部屋に奥行きのある立体感を与えてくれています。照明によってお部屋の雰囲気ってガラッと変わりますからね♪
ダイニング脇にはデスクと棚を造作。ちょっとした書き物から在宅ワークまでなにかと便利なスペースです。
・
以上で朝日シティパリオ中目黒のご案内を終わります。
いかがでしたでしょうか??
中目黒」駅から徒歩14分のマンションです。
リノベーション済みという事で室内はとてもキレイですよ (っ・ω・)っ
内見のご予約やご質問などございましたらお気軽にお問い合わせくださいませ。
ご連絡お待ちしております。
□□□□□□□□□□□□□□□□□□□□□□□□□□□□□□□□□□□□□□□
★★★【朝日シティパリオ中目黒】周辺のハザードマップをCHECK!!★★★
お部屋のご購入前に…!周辺のハザードマップをチェックしておきませんか!
朝日シティパリオ中目黒のハザードマップは★こちらから…どうぞ★
□□□□□□□□□□□□□□□□□□□□□□□□□□□□□□□□□□□□□□□
弊社、不動産Agent 六棒株式会社では、
□リノベーションマンションはほぼ全て仲介手数料無料!
□その他一般仲介物件は仲介手数料20%~30%OFF!
にてお取り扱いしております!※弊社の「Agent Fee=仲介手数料」についてはご案内、ご面談の際に営業担当者よりご説明いたします!
なるべく沢山のお部屋をホームページに掲載したいと思っておりますが、時間的成約もございますので、残念ながらご紹介できるお部屋の一部しか掲載できておりません。
このホームページに掲載中のお部屋、その他サイト等で気になるお部屋、街を歩いていて気になったマンション等々ございましたら是非、弊社営業部までご相談ください!
~不動産Agent 六棒株式会社の特徴~
・一般仲介物件の仲介手数料は20%~30%OFFにてご案内中です!
・リノベーションマンションについてはほぼ全て仲介手数料無料です!
・住宅ローンに自信あります!
・頭金10万円より購入できます。是非ご相談下さい!
・お部屋のご見学は車で2~3件まとめて案内します!
・物件数3000件以上、新築戸建、リノベ物件も多数ご用意しております!
過去に販売していたお部屋の概要 こちらのお部屋の販売は終了いたしました
| 価格 | -万円 |
| 面積 | 63.23㎡ |
| 間取り | 2bedrooms(2SLDK) |
| 管理費 | 月額13,910円 修繕積立金:月額10,430円 地代:月額6,320円(2044年6月5日まで) |
| 所在階 | 7階 |
| お問い合わせ・ご内見のご予約はこちらからお気軽にどうぞ | |
こちらが今回ご紹介させていただくお部屋の間取りです。
専有面積63.23㎡の2LDK!
バルコニーは山手通りと反対側に位置しています。
□□□□□□□□□□□□□□□□□□□□□□□□□□□□□□□□□□□□□□□
★★★【朝日シティパリオ中目黒】周辺のハザードマップをCHECK!!★★★
お部屋の記事を読む前に…!周辺のハザードマップをチェックしておきませんか!
朝日シティパリオ中目黒のハザードマップは★こちらから…どうぞ★
□□□□□□□□□□□□□□□□□□□□□□□□□□□□□□□□□□□□□□□
それでは早速見に行きましょう!!
エレベーターを降りるとお部屋までは外廊下です。
天気次第では雨が吹き込んできたりもしますが、空気の入れ替わりがあるので、臭いや湿気が籠らないというメリットもあります。
静かな内廊下も魅力的ではありますが、個人的には外廊下の方がオススメですかね!
玄関前にはモニター付きのインターフォンが付いています。
お部屋の中から廊下の様子を確認できるので、防犯的にも安心ですね。
オートロックが付いているとはいえ、その気になれば何とでもなるのが現実なので、完全に安心するのはやめた方がいいですよ!
それでは中へ入って行きましょう!!
リノベーション済みの物件なので玄関に入った瞬間からピカピカです!
物件の顔ともいえる玄関が綺麗だと、この先も気持ちよく進むことが出来そうですね!!
中に入るとすぐ右手にシューズボックスがあります。
大型のシューズボックスなのでご家族全員分の靴を入れても余裕がありそうです。
棚板は高さの調節が出来るのでブーツのような背の高い履物でも問題ないですよ!
照明は人感センサー付きなので、玄関ドアを開けると室内がすぐに明るくなります。
それでは廊下を突当りまで進んで行きましょう。
こちらのスリットの入ったドアを開けると・・・・
こちらはリビング・ダイニング・キッチンです。
広さは約13.2帖。東向きの窓から明るい光が入ってきています。
見本とはいえ、家具が置いてあると実際の生活のイメージが付きやすいですね。
本当に住むことになったとしても、このくらい片付いた室内をキープしたいものです。
リビングのお隣には洋室が繋がっています。
こちらの洋室は約6.0帖の広さ。
リビングと同じくバルコニーに面した窓があるので明るいです。
リビングとはスライド式のドアで仕切られているので、開けていればリビングの一部として、閉じれば一つのお部屋としても使うことが出来ます。
状況に応じて使い分けていきましょう!
クローゼットも付いているので収納に困ることもなさそうです。
次はキッチンです。
キッチンはL字のオープンキッチンです。
広いスペースで効率的に料理をすることができるため、料理好きな方や夫婦や家族で一緒に料理をする方はこのL型キッチンを選ばれる方が多いです。
水栓は浄水機能付き。シャワーヘッドになっているのでシンクの隅々まで水を流すことが出来ます。洗い物を流す際には活躍してくれそうな予感です。
コンロはスタンダードな3口のグリル付きガスコンロ! 浅めの鉄鍋があればグリルで煮物だってできちゃうので、特に不便に感じることは無いかと思います。
L字のカウンターは角の部分がデッドスペースになりがちなのですが、これだけの収納力があれば特に問題は無さそうです。
上から出し入れできるので、小さな調理器具も一目瞭然。フライパンなどは重ねるのではなく、ブックスタンドなどを使って立てて置くことで取り出しも簡単になります。
お料理中はどうしても孤立しがちではありますが、オープンキッチンなのでお料理中でもご家族とのコミュニケーションをとることが出来ます。
家族の団欒ってやつですね!!
キッチンの隣のドアを開けると・・・
こちらは洗面室です。
大きな三面鏡の付いた洗面化粧台です。
三面鏡は顔を左右から写すことができ、全体を見比べながらメイクが出来るので、かなりの時短に繋がります。(ご存知だとは思いますけどね!!)
ミラーの内部はキャビネットになっています。
歯ブラシや基礎化粧品などの小物はコチラに収納することが出来ますよ。
水栓はシャワーヘッドに名ているので軽くシャンプーをするくらいなら、お風呂まで行く必要もありません。
洗面化粧台の正面には洗濯機置場もありました。
洗面室は脱衣所も兼ねているので、脱いだお洋服はすぐに洗濯することが出来ますね!
次はお風呂です。
お風呂には浴室換気乾燥機能が付いています。
入浴後の湿気はすぐに取り除くことが出来るので、カビの発生を抑制し、浴室を綺麗に保つことが可能です。
暖房機能などもあるので、意外とありがたい機能でもあります。
雨の日は浴室で洗濯物を干すこともできますしね!!
木目調の光沢パネルが使われているからか、高級感すら漂っています。
光沢パネルに写らないように写真を撮るのはけっこう苦労しました。。。
それでは廊下へ戻って順番にドアを開けていきましょう!!
まずは一つ目のこちら。
中はトイレでした。
TOTOのウォシュレット機能付きのトイレです。リモコンタイプなので操作性も良さそうですね!
NO.1 メーカーのTOTO製なので、特に説明は不要かと思います。簡単に言うなら「最近のトイレはすっごい」です。
廊下の途中には収納スペースもありました。
収納がたくさんある物件はそれだけでもありがたみがありますね!(個人の感想です)
棚板も高さを調節できるので、いろいろな物を収納することが出来そうです!
こちらは約6.0帖の洋室です。
エアコンが既に取り付けてあります。
奥に可動棚のついたクローゼットもあるので、収納に困るようなことは無さそうですね!
反対側のお部屋です。
間取り図では【サービスルーム】という表記になっています。
他のお部屋と何が違うのかというと、「少し狭いので洋室って書くのも気が引けるな・・・」ってくらいで特に違いはありません。
気にせず子供部屋なり、書斎なりにしてください。
因みに広さは約40帖です。
クローゼットも付いているので、寝室として使っても問題ありません。
ベッドのサイズだけ測ってからにしてくださいね。
最後にバルコニーへ出てみましょう。
サッシもキレイですね。
バルコニーは東向きです。
撮影は午後だったので、もう日影になっちゃってますが、午前中はとても明るいバルコニーだと思いますよ!!
快晴!!ってやつですね!!
近くに大きな建物も無いので眺望を妨げられることもありません。
山手通り沿いのマンションではありますが、車の音は全然気になりませんでしたよ!!
どうしても気になるかも。。。という人はぜひ内見で耳を澄ませてみてくださいね!!
では、以上で朝日シティパリオ中目黒のご案内を終わります。
いかがでしたでしょうか??
中目黒駅から徒歩13分のマンションです。
リノベーション済みという事で室内はとてもキレイですよ (っ・ω・)っ
内見のご予約やご質問などございましたらお気軽にお問い合わせくださいませ。
ご連絡お待ちしております。
□□□□□□□□□□□□□□□□□□□□□□□□□□□□□□□□□□□□□□□
★★★【朝日シティパリオ中目黒】周辺のハザードマップをCHECK!!★★★
お部屋のご購入前に…!周辺のハザードマップをチェックしておきませんか!
朝日シティパリオ中目黒のハザードマップは★こちらから…どうぞ★
□□□□□□□□□□□□□□□□□□□□□□□□□□□□□□□□□□□□□□□
弊社、不動産Agent 六棒株式会社では、
□リノベーションマンションはほぼ全て仲介手数料無料!
□その他一般仲介物件は仲介手数料20%~30%OFF!
にてお取り扱いしております!※弊社の「Agent Fee=仲介手数料」についてはご案内、ご面談の際に営業担当者よりご説明いたします!
なるべく沢山のお部屋をホームページに掲載したいと思っておりますが、時間的成約もございますので、残念ながらご紹介できるお部屋の一部しか掲載できておりません。
このホームページに掲載中のお部屋、その他サイト等で気になるお部屋、街を歩いていて気になったマンション等々ございましたら是非、弊社営業部までご相談ください!
~不動産Agent 六棒株式会社の特徴~
・一般仲介物件の仲介手数料は20%~30%OFFにてご案内中です!
・リノベーションマンションについてはほぼ全て仲介手数料無料です!
・住宅ローンに自信あります!
・頭金10万円より購入できます。是非ご相談下さい!
・お部屋のご見学は車で2~3件まとめて案内します!
・物件数3000件以上、新築戸建、リノベ物件も多数ご用意して
過去に販売していたお部屋の概要 このお部屋の販売は終了いたしました。
| 価格 | -万円 |
| 面積 | 63.23㎡ |
| 間取り | 2bedrooms(2SLDK) |
| 管理費 | 月額13,300円 修繕積立金:月額6,955円 地代:月額5,700円 |
| 所在階 | 7階 |
| お問い合わせ・ご内見のご予約はこちらからお気軽にどうぞ | |
ここで間取りのご紹介です。(2SLDK+W 63.23㎡)
収納豊富なウォークインクローゼット付きのお部屋です。
山手通りと反対側の静かな部屋位置です。
エレベーターです。本日のお部屋は7階になります。眺望も楽しみですね♪
共用部廊下壁面のレンガ調タイルがステキです。こちらが玄関になります。
ドアを開けますと高級感漂う大理石調の玄関の床。足元みやすい広々とした空間を感じられるフットライトがあります。玄関収納左サイドにあるスペースには傘立てが置けそうですね。
玄関左側にあるワイドなトールサイズの収納です。棚の調整も可能なので様々なシューズが仕舞えそうです。
玄関入り左側にあるサービスルーム4.5帖です。クローゼット+収納棚(調整可能)が設置されており、4.5帖の広さをめいいっぱい活用できそうです!
窓には安心な2重サッシ!
玄関入り右側にあります洋室5.8帖です。こちらにもクローゼットが設置されています。
窓はこちらも2重サッシと安心です。
LIXIL製トイレです。(ウォシュレット付)高いところに吊戸棚が設置されているせいか、窮屈間を感じさせないスペースです。トイレットペーパーも沢山ストックできそうです。
廊下正面にある扉を開けますと~LDKへ
左側にシステムキッチン~通路の先はリビング・ダイニングになります。
パナソニック製システムキッチンです。人造大理石トップは高級感あり、お手入れもしやすく、ハンドシャワー水栓はシンクまわりを洗うときに便利ですね。
上下にある収納は充実◎シンク下の部分のスライド式収納内には仕切りもあり整理整頓がしやすいでしょうね。清潔感あるホワイトたっぷりなキッチンです。
キッチンお向かいにあるサニタリールームです。
左から洗濯機置き場、浴室、洗面化粧台となっています。床のタイルがピカピカしています~☆
洗濯機置き場です。吊戸棚が設置されています。洗剤や柔軟材、ストックも含めしっかり置けそうです。
浴室換気乾燥機付きバスルームです。ベージュ系の浴室パネルはリラックスムードを感じます。浴室換気乾燥機は、梅雨の季節に大活躍してくれそうです。カビ防止に安心ですね。
冬場の入浴は体温変化も気になります。そんな時は浴室内を少し暖かく設定して置くと体にも優しいですね。
パナソニック製シャワー付き洗面台です。サイドキャビネットもあり収納豊富な洗面台です。
スクエア型でスタイルッシュな洗面ボウル左側にはコップやハンドウォッシュが置けそうですね。
アクセントクロスがお部屋をスタイリッシュに演出!カウンターからは家族の様子もみることができ、キッチンからでもおしゃべりがとまらないでしょうね。
バルコニーに面している明るいリビング・ダイニング・キッチン13.2帖です。
バルコニー側からのLDK~
お隣にある洋室の3枚の仕切りを全開にあけるとより明るく開放的な空間になります。
LDお隣にある洋室5.7帖です。ウォークインクローゼットが設置されています。
両サイドにポールハンガーがあり分けられていて整理整頓がしやすいですね。
バルコニーに面している明るいお部屋です。
東向きバルコニーです。(7.66㎡)山手通りとは反対側に面しているので大変静かです。
洋室側のバルコニー面は奥行きも広く洗濯物もしっかり干せそうです。
7階からの眺望です。開放感たっぷりの気持ちの良い青空を感じられます。
水廻りも一新!新築のようなお部屋に生まれ変ったお部屋「朝日シティパリオ中目黒」
いかがでしたか~恵比寿ガーデンプレイスまでも約1100m。
是非一度現地をご覧いただければと思います
フラット35S適合物件です。
みなさまのご内見、心よりお待ちしております!





























































































































































弊社 公式HP
六棒総合研究所
掲載予定物件
価格変更と販売終了物件
ハザードマップ検索
適合証明書.jp
Instagram