・
□□□□□□□□□□□□□□□□□□□□□□□□□□□□□□□□□□□□□□□
いつも弊社ホームページをご覧頂き誠にありがとうございます。
ドルフ目黒はお陰様で販売を終了致しました。弊社問合せフォームにてご要望頂けましたら、当お部屋でキャンセル等が発生した場合、他のお部屋が販売になりました際にご紹介させて頂きます。
不動産Agent 六棒株式会社
TEL:03‐5413‐5336
□□□□□□□□□□□□□□□□□□□□□□□□□□□□□□□□□□□□□□□
・
パルムアーケードで有名な武蔵小山より、リノベーションマンション『ドルフ目黒』のご紹介です!
アクセス
東急目黒線「武蔵小山」駅徒歩7分。
複数路線が乗り入れる目黒駅まで2駅、また急行も停まるので各所へのアクセスもスムーズ。
駅をでるとすぐ見えるのが全長約800mあまりあるアーケード「武蔵小山商店街パルム」。約250軒ものお店が並び、お買い物客でいつもにぎわっています。
サンバカーニバルや納涼祭り、漂流祭りなど年間イベントも多彩に行われており活気があります。 アーケードだと雨の日も快適にお買い物ができるのがいいですね。
マンションまでは西口を出て 駅前のロータリーを通り過ぎ・・・
都道沿いにをまっすぐ歩いていくと到着します。住宅街の中を通っても行けますよ。
途中に朝7時から深夜12時まで営業しているミニスーパーがあります。
武蔵小山といえば林試の森公園も至近。マンションからは約300mほどの距離です。約1週すると約45分で回れるようです。ジョギングやお散歩、幼稚園の遠足と多くの人でにぎわっています。
ちなみに以前は林業試験場として使われていたため、その当時の珍しい樹木も残されているそうです。チェックしてみるのも面白いですね。
ドルフ目黒は昭和46年築、14階建て、総世帯数127戸の大規模マンション。
エントランスは都道に面しておらず、中へ奥まっています。
植栽も豊かでよく手入れがされています。
管理は日勤管理。エントランス脇に管理人室があります。
今回ご紹介するお部屋は8階、専有面積63.25㎡の3LDK。南向き、陽当たり良好なファミリータイプのお部屋です。
間取り図(仮)はコチラ ↓ ↓ ↓
(内装プラン作成中のため変更になる可能性があります)
※間取り図は別タブで開きますので、確認しながらご覧いただくことができます。
内装プラン作成中
もうしばらくお待ちください
一足早く眺望だけご紹介しておきます!
・
以上でドルフ目黒のご案内を終わります。
いかがでしたでしょうか??
武蔵小山駅から徒歩7分のマンションです。
内見のご予約やご質問などございましたらお気軽にお問い合わせくださいませ。
ご連絡お待ちしております。
弊社、不動産Agent 六棒株式会社では、一般仲介物件は仲介手数料20%~30%OFF!
にてお取り扱いしております!
なるべく沢山のお部屋をホームページに掲載したいと思っておりますが、時間的成約もございますので、残念ながらご紹介できるお部屋の一部しか掲載できておりません。
このホームページに掲載中のお部屋、その他サイト等で気になるお部屋、街を歩いていて気になったマンション等々ございましたら是非、弊社営業部までご相談ください!
~不動産Agent 六棒株式会社の特徴~
・一般仲介物件の仲介手数料は20%~30%OFFにてご案内中です!
・住宅ローンに自信あります!
・頭金10万円より購入できます。是非ご相談下さい!
・お部屋のご見学は車で2~3件まとめて案内します!
・物件数3000件以上、新築戸建、リノベ物件も多数ご用意しております!
過去に販売していたお部屋の概要 こちらのお部屋の販売は終了いたしました
| 価格 | -万円 |
| 面積 | 72.45㎡ |
| 間取り | 3bedrooms(3LDK) |
| 管理費 | 月額13,060円 修繕積立金:月額14,010円(駐車場代:月額4,100円 |
| 所在階 | 9階 |
| お問い合わせ・ご内見のご予約はこちらからお気軽にどうぞ | |
ここで間取り図のご紹介です。
※間取り図は別タブで開きますので、確認しながらご覧いただくことが出来ます。
今回ご紹介するお部屋は9階、専有面積72.45㎡の3LDK。オーソドックスで使いやすいレイアウトのファミリータイプのお部屋です。陽当たり眺望共に良好とのこと♬ 収納も豊富なのも嬉しいですね。専用駐車場付きで、料金はなんと月額4,100円!
では、さっそく行ってみましょう!
玄関から伸びる廊下にはたくさんの扉が並んでいます。
左側一番手前はトイレ。少し段差があるので入る時には足元にお気を付けください。掃除道具やトイレットペーパーストックの収納に便利な吊戸棚や、いろいろ飾れるニッチカウンターが付いています。もちろん温水洗浄機能付き!
そのお隣は洗面室。
洗面化粧台の他に洗濯機スペース、リネン庫、浴室がまとまり脱衣スペースを兼ねています。洗面化粧台は小さいお子様でも使いやすいミドルミラー付き。歯磨きの習慣付けなどに役立つそうですよ。
右奥の扉は約5.1帖の洋室。
廊下から直接出入りができるプライベート感高めのお部屋です。窓は北向き。北向って暗いイメージがありましたが意外と明るいんですね。大きなウォークインクローゼットが付いているので収納家具を置く必要もありません。ベッドルームや子供部屋にお勧めです。
突き当りのドアは約14.5帖のリビング・ダイニング・キッチン。
南向きバルコニーに面した明るいお部屋です。木目と白のシンプルな色使いでカーテンや家具なども合わせやすそうですね。
縦長のお部屋にキッチン、ダイニング、リビングと並べて使うオーソドックスなタイプ。レイアウトに悩むことはなさそうです。中に立てば開放感を感じるカウンターキッチンですが、逆にこちら側からはあまり目立ちません。どうしても生活感が出やすい場所なのでこれは有難いですね。人目を気にせず思いっきりお料理できますよ。
キッチンは人気のカウンタータイプ。
調理台にはお部屋の雰囲気に合わせた木目パネルが使用されています。何より嬉しいのは食器洗浄乾燥機!!!やりたくない家事の常連の食器洗い、代わってくれるなんて夢のようですよね。食後はみんなでのんびりしちゃいましょう♬
こちらは約4帖の洋室。
中央に位置する窓のないお部屋です。窓がないことをマイナスと捉える方も多いかもしれませんが、暗く静かで眠るには最適だと思いませんか?仕切りの扉は引き込み式なので全開にすればLDKとつなげて使うこともできますよ。
こちらは約5.8帖の洋室。
LDKと同じ南向きバルコニーに面したお部屋です。柱などの出っ張りがなく無駄なくスペースを使えますよ。収納はウォークインクローゼット。約5.1帖の洋室のウォークインクローゼットに比べると少し小さめですが、L字型にハンガーパイプが設置された収納です。衣類だけでなくシーズンオフの家電などかさばるものを入れておくにも便利!
・
以上でドルフ目黒のご案内を終わります。
いかがでしたでしょうか??
武蔵小山駅から徒歩7分のマンションです。
リノベーション済みという事で室内はとてもキレイですよ (っ・ω・)っ
内見のご予約やご質問などございましたらお気軽にお問い合わせくださいませ。
ご連絡お待ちしております。
弊社、不動産Agent 六棒株式会社では、一般仲介物件は仲介手数料20%~30%OFF!
にてお取り扱いしております!
なるべく沢山のお部屋をホームページに掲載したいと思っておりますが、時間的成約もございますので、残念ながらご紹介できるお部屋の一部しか掲載できておりません。
このホームページに掲載中のお部屋、その他サイト等で気になるお部屋、街を歩いていて気になったマンション等々ございましたら是非、弊社営業部までご相談ください!
~不動産Agent 六棒株式会社の特徴~
・一般仲介物件の仲介手数料は20%~30%OFFにてご案内中です!
・住宅ローンに自信あります!
・頭金10万円より購入できます。是非ご相談下さい!
・お部屋のご見学は車で2~3件まとめて案内します!
・物件数3000件以上、新築戸建、リノベ物件も多数ご用意しております!
過去に販売していたお部屋の概要 こちらのお部屋の販売は終了いたしました
| 価格 | -万円 |
| 面積 | 63.25㎡ |
| 間取り | 3bedrooms(3LDK) |
| 管理費 | 月額11,400円 修繕積立金:月額12,230円(専用駐車場代:月額4,100円) |
| 所在階 | 8階 |
| お問い合わせ・ご内見のご予約はこちらからお気軽にどうぞ | |
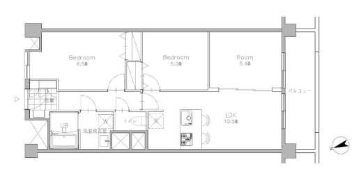
ここで間取り図のご紹介です。
※間取り図は別タブで開きますので、確認しながらご覧いただく事が出来ます。
今回のお部屋は8階、間取りは3LDK、専有面積は63.25㎡となります。
こちらのお部屋には、平置き駐車場の専用使用権が付いているそうですよ。(月額4,100円)
では、早速行ってみましょう!
エレベーターは2基。朝のラッシュ時もイライラしなくてすみますね。
8階で降りて、眺めの良い外廊下を進みます。
徒歩5分の『林試の森公園』、季節の移り変わりを感じられますよ♬
玄関に到着です。
カメラ付きインターホンが設置されていて、お部屋の中から玄関の様子を確認する事が出来ます。玄関まで来る必要がないのがいいですね。
それではお邪魔します。
ドアを開けると、落ち着いた雰囲気の廊下が真っ直ぐ伸びていました。
振り返って玄関の様子です。
姿見が付いていて、お出かけ前の身だしなみチェックに重宝しそうです。ドアは安心のダブルロック。面倒でも両方ともしっかりロックしましょうね。
中に入った時に照明を点けてくれたのは、天井の照明器具に付いた人感センサーです。いつでも明るい玄関が迎えてくれるのは嬉しいですよね(^^)
入って右にはオープンの収納棚。棚板の高さ調整が出来るので、いろいろな物を収納可能ですよ。
シューズボックスはロータイプとトールタイプが一つづつ。収納力は十分です。
では、まずは正面のドアから開けてみましょう。
こちらが約10.5帖のリビング・ダイニング・キッチン+約5.4帖の洋室となります。
左奥が洋室部分になります。南向きの窓から差し込む光でどちらも明るいお部屋になっていますね。
キッチン辺りはスタイリッシュな印象ですが、お部屋自体はシンプルな色使いなので幅広いテイストの家具を合わせる事が出来そうです。
洋室から…
LDKと洋室の仕切りの扉はガラスなので、閉めても見た感じはあまり変わりませんね。匂いや冷暖房効率は変わってくるとは思いますが…
今度は、キッチンを見ていきましょう。
ダークブラウンのパネルを使用した調理台。グレーのレンガ様の壁などと合わせて、スタイリッシュな印象です。
水栓は浄水機能付きシャワー水栓です。
切り替えるだけで水道水が美味しい水に早変わり。ヘッドが伸びるのでシンクのお掃除などにも便利です。
お部屋全体が見渡せるカウンターキッチン。
調理台の下は全て収納になっています。調理台後方には冷蔵庫や家電ラック、食器棚などのスペースが確保されていました。
コンロは3口。天井までのガラスが油跳ねなどを防いでくれます。
お料理中は換気扇をお忘れなく。グリル使用時は絶対ですよ^^;)
では、次のお部屋へ…
キッチン横のドアです。
こちらが約5帖の洋室となります。
窓の無いシンプルなお部屋です。陽も入らず静かなので、ゆっくり寝たい方は寝室に良いかもしれませんね。
収納は、間口が広くて使いやすそうなクローゼットが付いていました。
それでは、いちど廊下に戻って…
廊下のドアを左から開けていきます。
トイレです。
もちろんウォシュレットも完備していますよ。今や無いと困ります(笑)
お隣は…
洗面室です。洗面台、洗濯機スペース、浴室があります。
三面鏡の付いた洗面台です。
収納は洗面台下とミラーキャビネットになります。細かい物が多くなりがちな洗面周りには、ミラーキャビネットのような収納があると助かりますよね。
水洗はハンドシャワータイプです。洗面ボウルを流したり、寝ぐせを直したり…
洗面台の横に洗濯機スペース。上部にはブレイカーボックスがあります。普段はあまり意識する事はありませんが、もしもの時の為に覚えておきましょう。
次は、浴室を…
追い焚き機能が付いていますので、いつでも温かいお風呂に入れます。お風呂って自分のタイミングで入りたくないですか?
足を伸ばしてゆったり浸かれる広々とした浴槽です。
浴室乾燥機能は浴室のカビ予防だけでなく、雨天のお洗濯物乾燥やヒートショック予防など様々な働きをしてくれます。操作はリモコンを使用するので失くさないように気を付けましょうね^^;)
次のお部屋へ…
こちらが約6.5帖の洋室となります。
シングルベッドなら2つは余裕で置ける広さですので、メインの寝室にピッタリですね。
窓の外は外廊下になっています。、窓からでもいい眺めですよ(^^)
収納は、先程の洋室と同じタイプのクローゼットになっていました。
それでは、最後にバルコニーへ出てみましょう!
リビング、洋室どちらの窓からでも出る事が出来ます。
奥行きのあるバルコニーは、8.25㎡という数字以上に広く感じます。
ご覧の通りの陽当りですから、お洗濯物も気持ち良く乾きそうですね。ほぼ真南向きなので一日中大丈夫ですよ♬
バルコニーからは開放的で素晴らしい眺望が望めます。住宅街という事で静かですし、環境は言う事無しですね(^^)
・
・
以上でドルフ目黒のご案内を終わります。
いかがでしたでしょうか??
武蔵小山駅から徒歩7分のマンションです。
リノベーション済みという事で室内はとてもキレイですよ (っ・ω・)っ
内見のご予約やご質問などございましたらお気軽にお問い合わせくださいませ。
ご連絡お待ちしております。
弊社、不動産Agent 六棒株式会社では、
□リノベーションマンションはほぼ全て仲介手数料無料!
□その他一般仲介物件は仲介手数料20%~30%OFF!
にてお取り扱いしております!※弊社の「Agent Fee=仲介手数料」についてはご案内、ご面談の際に営業担当者よりご説明いたします!
なるべく沢山のお部屋をホームページに掲載したいと思っておりますが、時間的成約もございますので、残念ながらご紹介できるお部屋の一部しか掲載できておりません。
このホームページに掲載中のお部屋、その他サイト等で気になるお部屋、街を歩いていて気になったマンション等々ございましたら是非、弊社営業部までご相談ください!
~不動産Agent 六棒株式会社の特徴~
・一般仲介物件の仲介手数料は20%~30%OFFにてご案内中です!
・リノベーションマンションについてはほぼ全て仲介手数料無料です!
・住宅ローンに自信あります!
・頭金10万円より購入できます。是非ご相談下さい!
・お部屋のご見学は車で2~3件まとめて案内します!
・物件数3000件以上、新築戸建、リノベ物件も多数ご用意しております!
過去に販売していたお部屋の概要 このお部屋の販売は終了いたしました。
| 価格 | -万円 |
| 面積 | 72.20㎡ |
| 間取り | 3bedrooms(3LDK) |
| 管理費 | 月額13,020円 修繕積立金:月額13,960円 |
| 所在階 | 12階 |
| お問い合わせ・ご内見のご予約はこちらからお気軽にどうぞ | |
間取りのご紹介です。3LDK、72.20㎡。
12階部分、明るい南西角部屋。
約22.83㎡の大型ルーフバルコニーからは東京タワーも望めるパノラマビューが楽しめます。
平置き駐車場専用使用権も付いているので車をお持ちの方にはうれしいですね!(月額4100円)
室内は只今リノベーション工事中!
一足先に充実のリノベーション内容をご紹介いたします。
■玄関・・・玄関収納、人感センサー
■キッチン・・・パナソニック製システムキッチン
■浴室・・・パナソニック製ユニットバス(浴室換気乾燥機)
■洗面・・・パナソニック製シャワー付洗面台
■トイレ・・・LIXIL製シャワートイレ
■床・・・パナソニック製フローリング(廊下、洋室、DK)フロアタイル(玄関、洗面、トイレ)
■建具・・・パナソニック製内装ドア
■共通・・・給湯器(追焚機能付)、分電盤、LEDダウンライト、シーリングライト、スイッチパネル、TVモニターインターホン、全クロス張替え、ハウスクリーニング、etc・・・
【内装工事終了予定:2014年7月下旬】
ピカピカのお部屋楽しみですね!
工事終了前のご紹介も可能ですので、ご質問などはお気軽にお問合せくださいませ![]()







































































































弊社 公式HP
六棒総合研究所
掲載予定物件
価格変更と販売終了物件
ハザードマップ検索
適合証明書.jp
Instagram