・
□□□□□□□□□□□□□□□□□□□□□□□□□□□□□□□□□□□□□□□
いつも弊社ホームページをご覧頂き誠にありがとうございます。
マンション御殿山はお陰様で販売を終了致しました。弊社問合せフォームにてご要望頂けましたら、当お部屋でキャンセル等が発生した場合、他のお部屋が販売になりました際にご紹介させて頂きます。
不動産Agent 六棒株式会社
TEL:03‐5413‐5336
□□□□□□□□□□□□□□□□□□□□□□□□□□□□□□□□□□□□□□□
・
人気の再開発エリア・大崎エリアよりマンション御殿山のご紹介です!
目黒川沿いで緑豊かな環境です。
アクセス
JR山手線・埼京線・湘南新宿ライン・りんかい線「大崎」駅徒歩5分
最寄の大崎駅はJR山手線をはじめ、埼京線・湘南新宿ライン・りんかい線の4路線が乗り入れています。渋谷まで6分、東京・新宿へ11分ほどと高い交通利便性を誇り、通勤・通学もとても便利。マンションは大崎ニューシティ、ゲートシティ大崎など商業施設が集まる東口方面。駅から歩いて5分ほどのところにあります。
3階建ての大崎ニューシティはマンションから徒歩3分。様々な飲食店、ショップが軒を連ねて、ホテルまで入っている大きな商業施設です。ライフやドラッグストアなど生活に欠かせないお店も入っていてお買い物に便利。
またゲートシティ大崎もマンションから徒歩2分と近距離。 上はオフィスフロア、B1から3階までは飲食店や物販、サービス店舗が入った商業施設・ゲートシティプラザになっていて中には郵便局や各種クリニックなど生活に必要なお店も入っています。日常のお買い物や用事は大崎ニューシティとゲートシティ大崎内で済ませられそうですね。
2つの大きな商業施設の間を通ってマンションへ。緑が多く気持ちのいい道のりです。
目黒川へ出たらあと少し。目黒川沿いに建っているので春のお花見もご近所でたっぷり楽しめそうです。
マンション御殿山は昭和54年築、11階建て、総世帯数91戸。
目黒川沿いに建つ白い外観のマンションです。
管理は安心の常駐管理。周囲は手入れの行き届いた植栽に囲まれています。
エントランスは目黒川に面しておらず、道を1本入ったところにあります。
エントランスはタイル敷きのアプローチを進んだ先。
アプローチの横はブランコや鉄棒がある公園になっています。
小さなお子様の遊び場にちょうどいいですね!マンション内での知り合いも増えるかも・・・。
エレベーターは1基。91戸あるので朝夕のラッシュ時は少し待ち時間が発生するかもしれません。共用廊下は外廊下タイプです。
ここで間取り図のご紹介です。
※間取り図は別タブで開きますので、確認しながらご覧いただくことが出来ます。
今回ご紹介するお部屋は5階、専有面積46.16㎡の1LDK。お一人暮らしやDINKSの方にお勧めのお部屋です。では、早速行ってみましょう!
玄関はお部屋のサイズからするとゆったりめ。棚やハンガーパイプを取り付けることによって、シューズボックスやクローゼットとして使えるオープン収納が設置されています。必要に応じてアレンジできるのは便利ですよね。照明は人感センサー付きなのでいつでも明るい玄関が迎えてくれますよ。三角屋根の垂れ壁、あそび心があってお気に入りです♬
三角屋根をくぐって左側にはトイレ。
INAX製の洗浄機能付き!掃除道具やトイレットペーパーストックの収納に便利な吊戸棚が付いています。
右側には洗面室。
洗面室には洗面化粧台の他に洗濯機スペースと浴室があって脱衣所を兼ねています。洗面化粧台は身だしなみチェックに便利な三面鏡付。裏がキャビネットになっているので、洗面周りの細々としたものもスッキリと収納可能です。
浴室は温かみのある雰囲気でリラックスしたバスタイムを過ごせそうですね。新規交換のユニットバスは追い焚き機能付きなのでお風呂の準備もワンタッチ!保温機能でいつでも温かいお風呂へ入れますよ。雨が続く季節に嬉しい浴室換気乾燥機付き。
正面のドアは約11.7帖のリビング・ダイニング・キッチン。
南東向きの窓がついたお部屋です。カウンターキッチンの奥にダイニング、リビングと並べるオーソドックスなタイプ。家具のレイアウトに悩むことはなさそうです。
カウンターキッチンはコミュニケーションが取りやすくリビングダイニングとの一体感が特徴。といってもフルオープンではなく、コンロ前の壁や腰板を設置するなど解放感の中にも使い勝手を考慮したセミオープンタイプです。これなら人目を気にせず思う存分鍋を振るえますね。
写真右端の引き戸は約5帖の洋室とバルコニーへ続いています。
足元までの大きな窓は、向こう側にバルコニーがないのでとても開放的。タワーマンションなどでよく見かけますが慣れるまでは少し緊張するかもしれませんね。
キッチン横にはデスクカウンターと物入を設置。棚が付いたデスクカウンターはDENスペースとして在宅ワークなどに重宝しますよ。
アクセントにはインテリアの邪魔にならないグレーを使用。木目を生かしたフローリングをベースにしたナチュラルな雰囲気でとても居心地がよさそうですね♬
・
以上でマンション御殿山のご案内を終わります。
いかがでしたでしょうか??
大崎駅から徒歩5分のマンションです。
リノベーション済みという事で室内はとてもキレイですよ (っ・ω・)っ
内見のご予約やご質問などございましたらお気軽にお問い合わせくださいませ。
ご連絡お待ちしております。
弊社、不動産Agent 六棒株式会社では、
□リノベーションマンションはほぼ全て仲介手数料無料!
□その他一般仲介物件は仲介手数料20%~30%OFF!
にてお取り扱いしております!※弊社の「Agent Fee=仲介手数料」についてはご案内、ご面談の際に営業担当者よりご説明いたします!
なるべく沢山のお部屋をホームページに掲載したいと思っておりますが、時間的成約もございますので、残念ながらご紹介できるお部屋の一部しか掲載できておりません。
このホームページに掲載中のお部屋、その他サイト等で気になるお部屋、街を歩いていて気になったマンション等々ございましたら是非、弊社営業部までご相談ください!
~不動産Agent 六棒株式会社の特徴~
・一般仲介物件の仲介手数料は20%~30%OFFにてご案内中です!
・リノベーションマンションについてはほぼ全て仲介手数料無料です!
・住宅ローンに自信あります!
・頭金10万円より購入できます。是非ご相談下さい!
・お部屋のご見学は車で2~3件まとめて案内します!
・物件数3000件以上、新築戸建、リノベ物件も多数ご用意しております!
過去に販売していたお部屋の概要 こちらのお部屋の販売は終了いたしました
| 価格 | -万円 |
| 面積 | 50.68㎡ |
| 間取り | 2bedrooms(2LDK) |
| 管理費 | 月額10,900円 修繕積立金:月額11,710円 |
| 所在階 | 2階 |
| お問い合わせ・ご内見のご予約はこちらからお気軽にどうぞ | |
ここで間取り図のご紹介です。
※間取り図は別タブで開きますので、確認しながらご覧いただく事が出来ます。
今回ご紹介するお部屋は2階、専有面積50.68㎡の2LDK。お一人暮らしやファミリーまで幅広くお使いいただけるお部屋です。では、さっそく行ってみましょう。
玄関から廊下にかけては高級感のある大理石貼り。冷たい感じになりがちな素材ですが、建具とともに暖色系でまとめることで温かみのある雰囲気に仕上がっています。玄関には収納力に優れたトールタイプのシューズボックスが設置され、スッキリとした玄関を保てそうですね。
こちらはリビング・ダイニング・キッチン。
南東向きの窓に面した明るいお部屋です。玄関廊下と同じくベージュを基調としたナチュラルな雰囲気でとても居心地がよさそうですね。シンプルな色使いながら、天井や壁に設置された間接照明やスポットライトなどがいいアクセントになっています。
リビングダイニングに造り付けられた飾り棚ではインテリアを楽しんだりが可能。綺麗に見える工夫をして収納として使うのもよさそうですね。
キッチンはリビングダイニングとの一体感が人気のカウンタータイプ。コンロ前だけ壁になっているものもありますが、こちらは全面開いたフルオープンタイプなので解放感も抜群です。食器洗浄乾燥機や浄水機能一体型水栓などの便利機能も充実!!!食後はのんびりしちゃいましょう♬
こちらは南東側の洋室。
南東向きバルコニーに面したお部屋です。シンプルな内装で家具やカーテンも合わせやすく、自分好みのコーディネイトを楽しめそうですね。入口にデッドスペースを作らない引き戸を使用したり、ゆったりサイズのクローゼットを設置したりとお部屋を最大限使えるような工夫がされています。
廊下へ戻って…
トイレはTOTO製の温水洗浄機能付き。ちょっとした物を飾れるニッチカウンターや、トイレットペーパーや掃除道具をしまっておくのに便利な吊戸棚も付いています。
洗面室には洗面化粧台、洗濯機スペース、浴室がまとまり脱衣所も兼ねています。洗面化粧台は三面鏡付。裏がキャビネットになっているので、洗面周りの細々としたものを片付けるのに便利ですよ。洗濯機スペースの上部には吊戸棚が付いているので、ランドリー用品はこちらへどうぞ。
浴室は室内と統一感をもたせた木目パネルを使用。温かみのある雰囲気で癒しの空間にピッタリですね。新規交換された追い焚き機能付き給湯器はボタンひとつでお風呂の準備ができますし、そのまま保温もしてくれるのでいつでも温かいお風呂に入ることができますよ。花粉や雨が多い季節に嬉しい浴室換気乾燥機能付き!
最後に眺望のご紹介!
目の前に広がる駐車場のおかげで開放的な眺めになっています。敷地内の緑が近く感じられるのは2階ならではですね。
・
以上でマンション御殿山のご案内を終わります。
いかがでしたでしょうか??
大崎駅から徒歩5分のマンションです。
リノベーション済みという事で室内はとてもキレイですよ (っ・ω・)っ
内見のご予約やご質問などございましたらお気軽にお問い合わせくださいませ。
ご連絡お待ちしております。
弊社、不動産Agent 六棒株式会社では、
□リノベーションマンションはほぼ全て仲介手数料無料!
□その他一般仲介物件は仲介手数料20%~30%OFF!
にてお取り扱いしております!※弊社の「Agent Fee=仲介手数料」についてはご案内、ご面談の際に営業担当者よりご説明いたします!
なるべく沢山のお部屋をホームページに掲載したいと思っておりますが、時間的成約もございますので、残念ながらご紹介できるお部屋の一部しか掲載できておりません。
このホームページに掲載中のお部屋、その他サイト等で気になるお部屋、街を歩いていて気になったマンション等々ございましたら是非、弊社営業部までご相談ください!
~不動産Agent 六棒株式会社の特徴~
・一般仲介物件の仲介手数料は20%~30%OFFにてご案内中です!
・リノベーションマンションについてはほぼ全て仲介手数料無料です!
・住宅ローンに自信あります!
・頭金10万円より購入できます。是非ご相談下さい!
・お部屋のご見学は車で2~3件まとめて案内します!
・物件数3000件以上、新築戸建、リノベ物件も多数ご用意しております!
過去に販売していたお部屋の概要 このお部屋の販売は終了いたしました。
| 価格 | -万円 |
| 面積 | 50.68㎡ |
| 間取り | 2bedrooms(2LDK) |
| 管理費 | 月額10,900円 修繕積立金:月額9,000円 |
| 所在階 | 9階 |
| お問い合わせ・ご内見のご予約はこちらからお気軽にどうぞ | |
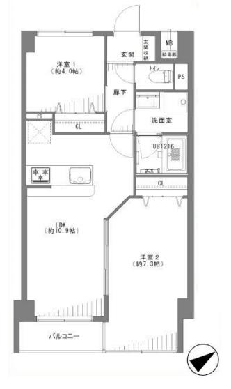
間取りのご紹介です。2LDK、50.68㎡。
室内はリノベーション済み。
少人数ファミリーやDINKSにおすすめです。
白と木目を基調とした明るい室内。
玄関ホールには人感センサーがついており、人の気配にあわせて自動で照明が消灯します。消し忘れがなく経済的です。インターホンはTVモニター付き。来訪者の顔も扉を開ける前にチェックできます。
玄関横に設置されたシューズBOXはたっぷり収納できるトールサイズ。棚の高さを調節すればブーツや長靴など背の高い履物もお仕舞いただけます。
玄関をあがると廊下がまっすぐのびており、左側にトイレ、洗面室、正面にLDK、右側に洋室の扉がついています。宅急便など玄関先での来訪があってもこれなら居住スペースが見える心配はありません。
廊下を進んで右側にある洋室は約4.0帖。ファミリーで暮らすなら子供部屋になるイメージでしょうか。
収納に幅の広いクローゼットもついています。
洋室の向かい側はトイレ。ウォシュレットとペーパーのストックや小物の置場に便利な収納棚がついています。
トイレのお隣は洗面室。脱衣スペースを挟むように洗面化粧台、洗濯機置場、バスルームが配置されています。
洗面化粧台は鏡の裏、引き出しと収納スペース豊富。小物類もスッキリ片付けおけるようになっています。洗剤は洗面ボウル下の収納スペースに入れておいてもよさそうです。
バスルームは追い焚き、浴室乾燥機能付き。
雨の日や夜のお洗濯も乾燥機があれば安心。カビの発生も防げてお掃除もラクになるはず!
廊下をまっすぐ進んだ先、採光部のある扉をあけて・・・
約10.9帖のLDKへ!
リビングダイニングスペース。南東向きの明るいお部屋は家族の憩いの場にぴったり!縦長で家具の配置もしやすそうです。
窓側からもご覧ください。キッチンはリビングにいる家族と会話を楽しみながらお料理ができる対面式。
浄水器内蔵水栓、3口ガスコンロ、食洗機付きとキッチンはスペック◎!
食事の支度や後片付けがスムーズにできると時間にも気持ちにも余裕がでそうですね。
2部屋ある洋室のうち1部屋は廊下側にありましたが、もう1部屋はLDKを介して行けるようになっています。
リビングに隣接した洋室は約7.3帖。エアコンが設置されているので引っ越したその日から快適にお過ごしいただけます。
こちらの洋室にも幅の広いクローゼットがつくられています。
LDKと洋室をつなげると広々と一体感のある空間になりました。
つなげて使ったり、独立させて使ったりと家族構成や生活スタイルに合わせてフレキシブルにご利用いただけます。
最後にリビングからバルコニーに出てみます。
約2.95㎡、南東向き。広さはややコンパクトですが、お洗濯物が干しきれない時でも浴室に乾燥機があるので安心です。
真正面は高い建物が建っていますが、横方向は少し開放的な眺めもご覧いただけます。空も広く見えてけっこういいかも・・・。
右下方向には目黒川もチラリと見えます。春はバルコニーから桜の咲き具合がチェックできそうです。


































































