・
□□□□□□□□□□□□□□□□□□□□□□□□□□□□□□□□□□□□□□□
いつも弊社ホームページをご覧頂き誠にありがとうございます。
マンション都立大はお陰様で販売を終了致しました。弊社問合せフォームにてご要望頂けましたら、当お部屋でキャンセル等が発生した場合、他のお部屋が販売になりました際にご紹介させて頂きます。
不動産Agent 六棒株式会社
TEL:03‐5413‐5336
□□□□□□□□□□□□□□□□□□□□□□□□□□□□□□□□□□□□□□□
・
こんにちは~!本日は東急東横線「都立大学」駅より徒歩8分
リノベーションマンション マンション都立大のご紹介です!
最寄り駅からお部屋まで、私小倉がご案内させて頂きま~す(”◇”)ゞ
東急東横線『都立大学』駅より徒歩8分。
『都立大学』駅は急行は止まりませんが、自由が丘まで1駅、中目黒まで3駅、
渋谷まで電車で10分程度と各所へのアクセスもしやすいところにあります。
改札を出ると目の前は東急ストアがあります。
深夜1時まで営業しているので帰りが遅い方にはとっても助かりますね!
改札を出たら右手に歩きます。
みずほ銀行が目印ですねφ(`д´)メモメモ…
右手の道をずっと真っすぐ歩いているともうすぐマンションです!
と、マンションへ行く前に周辺のご紹介です。
グーグルマップを見ても分かりますが、マンション都立大の横には
とーーーっても大きな公園がありますo(^O^*=*^O^)o ワクワク
バス停の後ろからも上がれます。ここがマンションから一番近い入り口ですよ
階段を上り切ると長い滑り台がありました。
子供がとっても喜びそうですねヾ(*´∀`*)ノ
この中根公園は滑り台の他に複合遊具やジャブジャブ池という浅い池もあるそうです。
時間的に小さいお子さんがいっぱい遊んでたので写真は控えました!
気になった方は是非!お立ち寄りください♡ペコリ(o_ _)o))
こんな目の前だとお子さんの通学も安心ですね(((uдu*)ゥンゥン
校門のほぼ目の前の道を入るとマンションに到着です!
マンション都立大は昭和49年1月築、SRC構造10階建て
総世帯数は26戸になっています。

駐車車は平置きとなっています。
屋根付きで大切な車も汚れにくいですね!!
また、マンションは道路の1本奥に入ったところにあるのですが、
エントランスは更に中まで歩いていく造りになります。
マンションに用事がない人しか出入りしないのでセキュリティ面でも安心かな?
また、その先には駐輪場と専用ゴミ置き場となっていました。
中に入るとメールボックスとエレベーターがあります。
自主管理ですが、管理が行き届いていますねキョロ ((o(・x・ )o( ・x・)o)) キョロ
エレベーターには防犯カメラが設置してあり、中の様子もわかります!
中の様子が見えていいですね(`・ω・´)b
またエレベーター内には大規模修繕工事の内容が貼られていました。
クリックすると拡大されますよ(^_-)
今までにも、平成18年にはエレベーター改修工事・雑排水管更新工事実施
平成23年には玄関ドア交換工事実施
平成24年に大規模修繕工事など管理もしっかりされています。
エレベーターの背面には共有階段があります。
内階段なので雨にも濡れませんねφ(`д´)メモメモ…
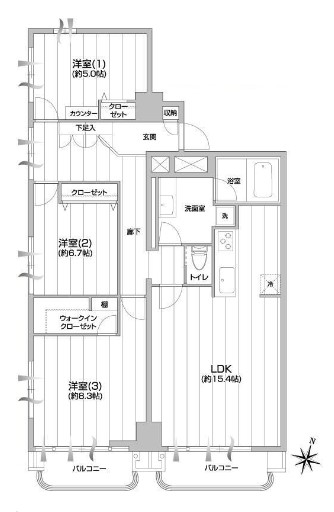
ここで間取り図のご紹介です。
※間取り図は別タブで開きますので、間取り図と記事や写真を照らし合わせながらご覧いただくことができます。
今回ご紹介するお部屋は3階、専有面積49.19㎡の2LDK。お一人暮らしやDINKSの方にお勧めのお部屋です。では、早速行ってみましょう!
【玄関廊下】
廊下は玄関から横に伸びているので宅配便やフードデリバリーなどの配達時にお部屋の中が見えてしまうこともありません。
【洋室1】
こちらは約4.5帖の洋室1。玄関に面した独立性の高いお部屋でメインの寝室にお勧めです。方角は北東と北西向きですが二面に窓があり採光、通風に優れています。収納はオープンタイプのウォークインクローゼット!!ウォークインクローゼットでオープンって珍しいですよね。風通し良好!
【洗面室・トイレ】
洗面室には洗面化粧台の他に洗濯機スペース、リネン庫、トイレ、浴室がまとまっていて脱衣室も兼ねています。洗面化粧台は身だしなみを整えるのに便利な三面鏡付き。鏡の間に照明が仕込まれているので影になることもありません。
窓付きのトイレは温水洗浄機能一体型。収納に便利な吊り戸棚も付いています。
【浴室】
浴室はモノトーンでまとめられたスタイリッシュな空間。照明の色が変えられるのでリラックスしたい時は温かみのある雰囲気でバスタイムを過ごしましょう!追い焚き機能や浴室換気乾燥機などの便利機能も充実しています。
【LDK】
廊下の突き当りは約11帖のリビング・ダイニング・キッチン。全体がL字型のお部屋でこちらは南西向きバルコニーに面したリビング・ダイニング部分です。ナチュラルな木目と白いクロスの温かい雰囲気で居心地が良さそうですね。
【LDK】
キッチンは曲がり角の向こうなのでリビングからはほとんど見えません。一体感のあるカウンターキッチンもいいですが、生活感が出てしまうキッチンを独立させるのもアリですね。ダイニングとの動線がいいのもGOODです。
【キッチン】
キッチンはシンク部分とコンロ部分が分かれたⅡ型。広い作業スペースと動線の短さが特徴のキッチンです。調理台と揃いのカップボードが設置されているので収納も豊富ですよ。食洗器が付いているのも嬉しいですね♬
【洋室2】
こちらは約4.2帖の洋室2。南西、北西の二面採光のお部屋です。LDKとの仕切り戸が引き込み式なので開放すればLDKの一部として使うこともできますよ。収納は間口が広いクローゼット。収納力も使い勝手もウォークインクローゼットに負けていませんよ。
・
以上でマンション都立大のご案内を終わります。
いかがでしたでしょうか??
都立大学駅から徒歩8分のマンションです。
リノベーション済みという事で室内はとてもキレイですよ (っ・ω・)っ
内見のご予約やご質問などございましたらお気軽にお問い合わせくださいませ。
ご連絡お待ちしております。
弊社、不動産Agent 六棒株式会社では、一般仲介物件は仲介手数料20%~30%OFF!
にてお取り扱いしております!
なるべく沢山のお部屋をホームページに掲載したいと思っておりますが、時間的成約もございますので、残念ながらご紹介できるお部屋の一部しか掲載できておりません。
このホームページに掲載中のお部屋、その他サイト等で気になるお部屋、街を歩いていて気になったマンション等々ございましたら是非、弊社営業部までご相談ください!
~不動産Agent 六棒株式会社の特徴~
・一般仲介物件の仲介手数料は20%~30%OFFにてご案内中です!
・住宅ローンに自信あります!
・頭金10万円より購入できます。是非ご相談下さい!
・お部屋のご見学は車で2~3件まとめて案内します!
・物件数3000件以上、新築戸建、リノベ物件も多数ご用意しております!
過去に販売していたお部屋の概要 こちらのお部屋の販売は終了いたしました
| 価格 | -万円 |
| 面積 | 84.57㎡ |
| 間取り | 3bedroom(3LDK) |
| 管理費 | 月額37,430円 修繕積立金(管理費に含む) |
| 所在階 | 5階 |
| お問い合わせ・ご内見のご予約はこちらからお気軽にどうぞ | |
ここで間取り図のご紹介です。
※間取り図は別タブで開きますので、確認しながらご覧頂く事が出来ます。
今回ご紹介のお部屋は5階、間取りは3LDK、専有面積は84.57㎡。ゆったりサイズのファミリータイプのお部屋ですね。南西角部屋で全てのお部屋に窓があります。
では、早速行ってみましょう!
エレベーターで5階まで上がり…
エレベーターホールから明るい外廊下を通って玄関へ向かいます。
ドア横にはテレビモニター付きインターホンが設置されていて、お部屋の中から訪問者を確認する事が出来ます。返事をする前にチェックすれば、セールスなどにつかまる事もなくなりますね。
広い玄関ですね!戸口からはお部屋のドアは見えず、これなら宅配便の受け取りの時などにお部屋の中を見られてしまう心配もありません。
玄関を奥へ進んで上り口まで来るとこんな感じ。広い玄関ホールからは左側に廊下が伸びています。この余裕のあるスペースの使い方に高級感を感じます(^^)
白で統一されたきれいな玄関。広い上り口は小さいお子様を連れた時や、荷物が多い時などにとても助かるんですよね。ドアにはダブルロックで防犯面でも安心です。
入ってすぐの扉は収納棚。シューズボックスは別にありますが、箱に入った靴などを置く事も出来ますよ。人感センサーは中に入っただけで自動的に照明を点けてくれます。もう、暗い中手探りでスイッチを探す事もありませんね。なにより、いつでも明るい玄関が迎えてくれるのは嬉しいものです。
シューズボックスはトールタイプ。玄関からホールにかけて二つ設置されていました。棚板の高さは変えられるので、ブーツなどでも収納可能ですよ。
ホールの大きな窓は開ける事も出来、換気などにも活躍しそうです。実は、窓のそばにもう一つ人感センサーが付いていました。ホールが広くて一つではカバーしきれなかったんですね。
では、お部屋の方へ…
突き当りはこんな感じ。突き当りに1つ、左に入った所に3つドアがありました。迷子になりそうです^^;)
まずは、ガラスの入ったドアから…
こちらは約15.4帖のリビング・ダイニング・キッチン。バルコニーに面した大きな窓が明るいお部屋です。シンプルな色使いでカーテンや家具を幅広い中から選べそうです。お部屋を好みの雰囲気にしていくのは楽しいですよね♪♪
キッチンが横向きなので中の様子がこちらからでもよく見えます。ある程度綺麗にしておかなければならないのは、料理する側からすると少しプレッシャーですね(笑)
では、キッチンへ…
木目を生かしたナチュラルな印象の調理台。周りに貼られたタイルもお洒落ですね。梁がうまい具合にコンロからの煙をブロックしてくれそうです。
調理台下は引き出しタイプの収納と食洗機。引き出しタイプは奥の方まで出し入れがし易くて助かります。フライパンや鍋蓋などは立てて収納するといいらしいですよ。洗い物は食洗機にお任せして、食後はみんなでのんびりしちゃいましょう♬
水栓は浄水機能付きシャワー水栓。簡単に切替えられるので気軽に美味しいお水を使えます。
幅が広く作業スペースも十分です。
コンロは三口。タイマーや温度設定なども可能な高機能タイプです。ガスコンロっていつの間にこんな事が出来るようになったんですかね^^;)
調理中は換気扇をお忘れなく!グリルで忘れたらちょっとした事件ですよ(笑)グリルって日本ではよく見かけますが海外では珍しいらしく、欲しがる方が多いそうです。ガスの直火で焼けば何でも美味しく焼き上がりますからね。
調味料や良く使う調理道具、食器などを置いておける棚も付いています。後方は冷蔵庫や家電ラック、食器棚などのスペースになっていました。
では、いちど廊下に戻ってトイレへ…
吊戸棚と温水洗浄便座付き。TOTO製のウォシュレットです。
次は洗面室へ…
こちらには、洗面台、浴室、洗濯機スペースがまとまっています。
まずは洗面台から…
収納は洗面台下と鏡裏のキャビネット。キャビネットは細かい物が多くなりがちな洗面周りにはピッタリの収納です。
水洗はハンドシャワータイプ。ヘッドが伸びて洗面ボウルを流したりに便利ですよ。
洗面ボウルに続く広いスペースには、歯ブラシや基礎化粧品など毎日使う物を並べておく事が出来ます。小さな花瓶にお花を飾ったりもいいですね。お花が一輪あるだけで心に余裕が生まれますよ。下にはランドリーボックスやスツールが置けます。髪が長いと立ってドライヤーをかけるのも一苦労ですものね。
洗濯機スペースの上には吊戸棚が付いていて、洗剤などをすぐ手が届く所に置いておく事が出来ます。濡れた手でも開けやすい扉に優しさを感じますね。
次は浴室へ…
ブラウンのパネル使用で落ち着いた雰囲気の浴室。リラックス出来て疲れも解けていきそうです(*´▽`*)
追い焚き機能はスイッチ一つでお風呂を沸かしてくれますよ。沸いた後もお好みの温度にお湯を保ってくれるので、長風呂派も安心です。
足を伸ばしてゆったり浸かれる1418サイズの浴槽。腰掛部分もあって半身浴もお任せ下さい。
浴室乾燥機能は浴室の換気やお洗濯物乾燥、浴室暖房などいろいろな働きをしてくれます。特に最近お洗濯物乾燥に関しては、雨だけでなく花粉や黄砂、PM2.5など様々な要因で活躍の機会が増えているようです。
次のお部屋へ…
廊下の突き当りのドアです。
こちらは約8.3帖の洋室。南西の角部屋で二面採光、明るく風通しも良さそうなお部屋です。窓が二方向にあると全然風の抜け方が違いますからね。8帖超えていますので大きめのベッド二つも楽々置ける広さ。メインのベッドルームにぴったりです。
南向きの窓の外はバルコニー。西向きの窓の外も開けた景色になっていて、陽当りや風通しの障害になる様な物はありません。
ドアによるデッドスペースも、収納の奥行きを上手く使って無駄にならないようにしています。
収納はウォークインクローゼット!奥にはL字型にハンガーポールが設置されていて、手前は収納棚になっていました。とても広く、嵩張る物も余裕で置けますね。
では、次のお部屋へ…
玄関ホール左側のドアです。
こちらは約6.7帖の洋室。梁が少し目立つお部屋です。ただ、ベッドルームになるとあまり気にならないんですけどね。
窓の外はこんな感じ。午後の陽当りは良さそうです。
収納は間口が広くて使い易そうなクローゼット。奥行きもあるので衣装ケースなどで収納力アップもいいですね。中の見やすい収納は、無駄な買い物を減らしてくれるらしいですよ(^^)
では、次のお部屋へ…
こちらは約5帖の洋室。このお部屋も二面採光ですね。さすが角部屋です♪♪
ただし、窓の外は今までのお部屋に比べるとやや建物が目立つかもしれませんね。もちろん陽当りや風通しには全然問題ないですよ。
入口近くには造り付けのデスクがあり色々な使い道がありそうです。収納はクローゼット。コンパクトに見えますが、今までのお部屋の物が大きかっただけですから。
それでは最後にバルコニーのご紹介。LDKの窓から出ます。
奥行きが広くゆったりとしたバルコニー。ほぼ南向きで陽当り良好です。お洗濯物も気持ち良く乾きそうですね。
間取り図を見た時はLDKのバルコニーと洋室のバルコニーはそれぞれ独立しているのかと思ったんですが、ご覧の通り繋がっていました。とはいえ、かなり狭いのであまり通らない方が良さそうです^^;)なので、一度中へ戻って洋室の窓へ…
こちらが洋室のバルコニー。少し狭いような気もしますが、そっくりで見分けが付きませんね(笑)
バルコニーからのの眺めです。
遠くまで見通せる開放的な眺めが広がっていますね。住宅街という事もあってとても静かな環境ですよ(^^)
・
以上でマンション都立大のご案内を終わります。
いかがでしたでしょうか??
都立大学駅から徒歩8分のマンションです。
リノベーション済みという事で室内はとてもキレイですよ (っ・ω・)っ
内見のご予約やご質問などございましたらお気軽にお問い合わせくださいませ。
ご連絡お待ちしております。
弊社、不動産Agent 六棒株式会社では、
一般仲介物件は仲介手数料20%~30%OFF!にてお取り扱いしております!
なるべく沢山のお部屋をホームページに掲載したいと思っておりますが、時間的成約もございますので、残念ながらご紹介できるお部屋の一部しか掲載できておりません。
このホームページに掲載中のお部屋、その他サイト等で気になるお部屋、街を歩いていて気になったマンション等々ございましたら是非、弊社営業部までご相談ください!
~不動産Agent 六棒株式会社の特徴~
・センチュリー21加盟店です!
・一般仲介物件の仲介手数料は20%~30%OFFにてご案内中です!
・住宅ローンに自信あります!
・頭金10万円より購入できます。是非ご相談下さい!
・お部屋のご見学は車で2~3件まとめて案内します!
・物件数3000件以上、新築戸建、リノベ物件も多数ご用意しております!
過去に販売していたお部屋の概要 このお部屋の販売は終了いたしました。
| 価格 | -万円 |
| 面積 | 81.33㎡ |
| 間取り | 2bedroom(2LDK) |
| 管理費 | 月額38,790円 修繕積立金(管理費に含む) |
| 所在階 | 2F |
| お問い合わせ・ご内見のご予約はこちらからお気軽にどうぞ | |
さて今回のお部屋は2階になります。
間取り図はこちら↓ (図面と現況が異なる場合は現況を優先します。)
クリックすると別タブで開くことも可能です。
間取り図とお部屋比較すると見やすいですよ
では、営業部小倉が【 マンション都立大 2階】
お部屋一緒にご案内させて頂きます(o*。_。)oペコッ
さて今回のお部屋は2階になります。
間取り図はこちら↓
クリックすると別タブで開くことも可能です。
間取り図とお部屋比較しながら一緒にお部屋みましょう(((((((((((っ・ω・)っ
* … * … * … * …* … * … * … * …*
室内はリノベーション済み!【2017年10月】
充実のリノベーション内容をご紹介いたします。
■キッチン・・・LIXIL AS ARISE オリジナル(w2435)
■浴室・・・・・LIXIL ソレオ(1317)
■洗面・・・・・LIXIL 洗面化粧台XV(w900/D600)
■トイレ・・・・LIXIL アメージュ ZR2
■床・・・・・・DAIKEN マイフロアー
■建具・・・・・DAIKEN マイセレクション
■その他・・・・アクセントクロス・給湯管新規交換・給湯機器(追焚き機能付き)
ハウスクリーニング・全室クロス張替 等。
* … * … * … * …* … * … * … * …*
実際見た方が早いですね( ´艸`)
(っ・ω・)っ どうぞご覧ください
こちら今回のお部屋玄関前になります|ω・`)ちら
ゴールドのアクセントが可愛い扉ですね♡
TVモニタ付きインターフォンで来訪者もばっちり確認!!
セキュリティ面も安心ですね(((uдu*)ゥンゥン
では♡早速お部屋いってみましょう
お邪魔しまーす┏○ペコ
左手にはトールタイプのシューズボックスが。
ちょっと細長くて頼りなくない?と思ったあなた!!!!
どうぞ安心してください♡
こちらの物件シューズインクロークが完備されています( ´艸`)
靴だけではなく非常用の備蓄など置いても良いですよね。
可動棚なので高さ調整もでき、使い勝手も良いですね(((uдu*)ゥンゥン
ゴルフバックやベビーカーなど置いても◎
ではリビングへ(((((((((((っ・ω・)っ
南からの陽射しとダウンライトで明るいリビングになっています。
淡い木目が織りなす優美な都会スタイル。
やりすぎないアクセントクロスが高級感を出しています。
リビングは約18.5帖
家具も合わせやすく自分らしく生活が出来ます。
キッチンへスポットライトあてていきましょう(((((((((((っ・ω・)っ
浄水器機能一体型の3口ガスコンログリル付きのシステムキッチン!
シンクも広くとられていて、大人が二人経ってもスペースありそうでしたよ
人気のカウンターキッチン♡
油跳ね防止もバッチリです( ´∀`)bグッ!
仕切りがないのでとても開放感があります◎
グリルも食洗機も付いていて機能◎
今まで食後にお皿洗いにとっていた時間を
家族団らんの時間にすることが出来ますね(*´・ω・)(・ω・`*)ネー
下部収納はスライド式です
何が良いって色々入れても奥が見やすい事ですね!
私よく奥に入れ過ぎて存在忘れます。。
重いものなんかも出し入れがしやすく( ´∀`)bグッ!
吊るすところもあるので収納上手になれますね(((uдu*)ゥンゥン
玄関廊下に出て、他の水回り見ていきましょう。
(((((((((((っ・ω・)っ
と、その前に左手奥の扉…
なんと収納になっていますΣ(゚Д゚)
可動式の棚になっているのでしまうものを選びません\(´°v°)/んぴッ
収納隣の扉が洗面所になります。
お邪魔します(o*。_。)oペコッ
独立洗面台の横はリネン類などを置く収納がありますφ(`д´)メモメモ…
ホテルのように白いタオルに白いバスローブが似合う
高級感ある独立洗面台ですね (*^艸^)
シャワーヘッドになっています。
隅々までお掃除することができるので毎日のおお手入れが楽になりますよ
鏡の後ろにあった説明書きです|ω・`)ちら
毎日のお化粧が楽じゃないですか!
フェイスフルライト・・・自宅にも欲しいです(;´Д`)
独立洗面台の下部収納もスライド式になっています。
奥も見やすく整理整頓しやすいですね(((uдu*)ゥンゥン
独立洗面台の後ろは洗濯機置場と棚になります。
開き戸もついている為プライバシーも守れます◎
洗面台横を抜けると浴室へ繋がります。
浴室乾燥機能を完備!
湿気知らず、悪天候知らず~♪な主婦の味方\( ´・ω・`)┐
暖房機能を使えば冬のヒートショック防止にもなりますよ
木目調ですが光沢感があり、とても素敵な浴室でした((ノェ`*)っ))タシタシ
浴槽は滑り止めもつき、お子さんやお年寄りの転倒を防ぎます。
(絶対転ばないという物ではありません)
小物置きもステンレスでお手入れがしやすそう
鏡も横長タイプなので背の低い方でもお手入れがしやすいです( ´∀`)bグッ!
ってさっきからお手入れのしやすさばかりお伝えしてますね(◎_◎;)
それだけじゃないんですよ!魅力は((ノェ`*)っ))タシタシ
お風呂の隣りはトイレになります
ε=(ノ゚Д゚)ノ ∥WC∥
あの!便利な!ウォシュレット機能付きトイレ
ε=(ノ゚Д゚)ノ ∥WC∥
後ろの壁のアクセントクロスがスタイリッシュで格好良いですね(((uдu*)ゥンゥン
上部に棚もちゃんとありますよ!!
見た目だけじゃなく、機能性も◎
最後に廊下戻り、洋室約6.1帖へ(((((((((((っ・ω・)っ
面白いですねー
天井部分がアクセントクロスになっています(/・ω・)/
凹凸があり、アクセントクロスが映え
メリハリのあるお部屋に(〃▽〃)ポッ
ここの窓は東向きになりますl
残念ながら前の建物が少し近くなっています|ω・`)ちら
眺望はこちら
(っ・ω・)っ どうぞご覧ください
その為窓ガラスはスリガラスで目隠しになっています。
収納はウォークインクローゼットになっています。
スライド式なので可動域を取らず邪魔になりません\(´°v°)/んぴッ
洋室6.1帖を出て左は同じく洋室になります。
その前の廊下にはピクチャーレールがあります。
ピクチャーレール活用法とネットで検索すると色々出てきますよ!
ご自宅の参考にしてくださいね(n*´ω`*n)♡
では2部屋目の洋室にいざ!!!
ε=ε=ε=ε=ε=┏(*´∀`)┛
こちらリビングのバルコニーと繋がっています|д゚)
南向きの採光がとれお部屋あかるいですね!
洋室約6.6帖+ウォークインクローゼット付きですφ(`д´)メモメモ…
さてお部屋いかがでしたか?
最後に!南向き日当たり良好、
リビングからバルコニーへいってみましょう♪(((((((((((っ・ω・)っ
他にも詳細が知りたい!!実際に見学をしたい!!などありましたら
仲介手数料最大無料の当社
六棒株式会社まで
お電話ください(^-^*)/
TEL 03-5413-5336
お気軽にお問い合わせください。
スタッフ一同お待ちしております。
弊社、不動産Agent 六棒株式会社では、
□リノベーションマンションはほぼ全て仲介手数料無料!
□その他一般仲介物件は仲介手数料20%~30%OFF!
にてお取り扱いしております!※弊社の「Agent Fee=仲介手数料」についてはご案内、ご面談の際に営業担当者よりご説明いたします!
なるべく沢山のお部屋をホームページに掲載したいと思っておりますが、時間的成約もございますので、残念ながらご紹介できるお部屋の一部しか掲載できておりません。
このホームページに掲載中のお部屋、その他サイト等で気になるお部屋、街を歩いていて気になったマンション等々ございましたら是非、弊社営業部までご相談ください!
~不動産Agent 六棒株式会社の特徴~
・センチュリー21加盟店です!
・一般仲介物件の仲介手数料は20%~30%OFFにてご案内中です!
・リノベーションマンションについてはほぼ全て仲介手数料無料です!
・住宅ローンに自信あります!
・頭金10万円より購入できます。是非ご相談下さい!
・お部屋のご見学は車で2~3件まとめて案内します!
・物件数3000件以上、新築戸建、リノベ物件も多数ご用意しております!
過去に販売していたお部屋の概要 このお部屋の販売は終了いたしました。
| 価格 | -万円 |
| 面積 | 84.57㎡ |
| 間取り | 3bedrooms(3LDK) |
| 管理費 | 月額:37,487円 |
| 所在階 | 6階 |
| お問い合わせ・ご内見のご予約はこちらからお気軽にどうぞ | |
今回ご紹介させて頂くお部屋はこちらです!!
つき当たりのお部屋、角部屋ですよo(^O^*=*^O^)o ワクワク
間取り図はこちら↓ (図面と現況が異なる場合は現況を優先します。)
クリックすると別タブで開くことも可能です。
間取り図とお部屋比較すると見やすいですよ
では、営業部小倉が引き続き【マンション都立大 6階】
お部屋一緒にご案内させて頂きます(o*。_。)oペコッ
玄関はダブルロック、TVモニタ付きインターホンでセキュリティ充実!
エントランスにオートロックがない分こちらで来訪者の確認を(”◇”)ゞ
では・・・お邪魔しまーすo(^o^)o ワクワク
目の前には大きなトールタイプのシューズボックスが2列も!!
下が光ってカッコイイ(*ノωノ)♡
また、靴を脱ぐスペースはストーン調で高級感が溢れています!!
玄関入って右手にも収納棚があります。
こちらは扉はなく、オープン収納ですよ!!
高さ調節が可能な棚板なのでなんでも入れられ重宝しそう◎
あえて全て外して、ベビーカー置きということも出来そうφ(`д´)メモメモ…

玄関を抜けると長い廊下があります。
光が射し、陽当りの良さが伝わってきます(*´・ω・)(・ω・`*)ネー
つき当たりを左にいくとリビングです!
右の扉は洋室に繋がっていますが、リビングの後にご紹介しますね
では、お邪魔しまーす(o_ _)o)ペコリ
開口部南向きの明るいリビング\(^o^)/
あ!電気つけ忘れてました(;^_^A アセアセ・・・
電気をつけていなかったので、陽当りがどれくらいいいかわかりますね!
約15.5帖の広いリビング
ダウンライトが空間を更に広く演出していますね!
カウンターキッチンからは食卓が見えるので、
家事をしていても家族とのコミュニケーションがとりやすく人気があります♡
キッチン上の照明もこだわりました(`・ω・´)!
もちろん好みの照明に変えても◎
光沢のあるシステムキッチンは落ち着いた木目調に
見るからに広くて調理がしやすそうですね!!
キッチントップは人工大理石。
ステンレスのシルバーが自分の中のイメージにあるので、
ホワイトカラーなだけでお洒落に見えてしまう(つд⊂)ゴシゴシゴシ
でも今じゃ人工大理石トップはパステルカラーが何色か展開しているんですよ
ご案内の時に拝見しましたが、固定観念が覆されました!
好みが別れそうですがこちらは割と万人受けの良さそうな白です(≧▽≦)
シンクの中も人工大理石なのでお手入れがしやすそうですねφ(`д´)メモメモ…
またシャワーヘッドタイプなので奥まで届いてお掃除もらくですよ!
コンロは3口でガスになります。
グリルや食洗機が完備されて至りつくせり♡
最近の換気扇もずいぶんスタイリッシュですね(;゚д゚)ゴクリ…
お手入れもの時も手がヌタヌタになりませんよ!
リビングから見てキッチンの一体感が出るように上部に収納はありません
下にはスライドタイプの収納があります|ω・`)ちら
奥入れたものも見やすくていいですね(`・ω・´)b
収納が苦手な方もスライドだと整理しやすいですよ!
キッチンにはちょうど梁がありました。
そこにアクセントクロスをはって梁を活かしてますね(((uдu*)ゥンゥン
キッチンの背面には洗面所へ繋がる扉があります。
行ってみましょう(((((((((((っ・ω・)っ
縦型ライトが近未来的°˖✧◝(⁰▿⁰)◜✧˖°
この照明はデザインだけではなく、顔色を見やすくしてくれます!
女性なんかはファンデーションがぐっと塗りやすくなりますよφ(`д´)メモメモ…
開けると収納がありました
散らばってしまいがちな基礎化粧品周りも全て収納出来そうです(*´・ω・)(・ω・`*)ネー
下はスライド式の収納があります。
小物など入れたいときはラックなどでわけるといいですね(((uдu*)ゥンゥン
洗面所の隣にも扉があります
|ω・`)ちら
ε=(ノ゚Д゚)ノ ∥WC∥
ウォシュレット機能付きのトイレ、見やすいパネル式で操作もラクラク(^^♪
シンプルですがアクセントクロスがポイントになっています。
アクセントクロスよーーく見るとかすかにダマスク柄になっています。
写真だと結構難しいですね。。。

また、上には収納棚を設置致しました。
扉がついているのでプライバシーが守れます◎
洗面所へ戻り
ε=┏(・ω・)┛
トイレを出て正面は室内洗濯機置場になっていますね(((uдu*)ゥンゥン
洗濯機置場の上にも洗剤などを入れられる収納棚を作りました。
次は浴室行ってみましょう!!
の、前にこちら浴室乾燥機能付き\(^o^)/
雨が急に降ってきても浴室乾燥機なら安心ですね♡
|ω・`)ちら
全面光沢のあるブラウンの木目調♡
キラキラ反射してとても綺麗です。
帰宅がバラバラでも遅くなってしまっても、もう安心!
追い焚き機能付きでいつでも暖かい湯舟につかれますよヾ(*´∀`*)ノ
ゆーっくり足を伸ばしてあったまってください♡
1日の疲れも吹っ飛んじゃいますね(`・ω・´)b
鏡はワイドミラーで横長タイプを採用
奥行を出し、浴室内を広く演出してくれていますφ(`д´)メモメモ…
洗い場も広く、お子さんと一緒でも洗いやすそうですね♡
シャワーには握りバーもついています。
さて、水回りのご紹介も終わったので次は洋室3部屋をご紹介致します!
リビングから玄関廊下に戻りますよ
1番玄関側に戻ってつき当たりの部屋からご紹介していきます。
|ω・`)ちら

約5.5帖のカドベヤ2面採光です\(^o^)/
お部屋には窓がふたつあります!
大きい窓の眺望はこちらから
開口部西向きになりますヾ(*´∀`*)ノ
もうひとつは小さい小窓です。
少し換気したい時とかいいですね(`・ω・´)b
大きな窓で右手に見えてたマンションのちょうど裏手が見えます👀
バルコニー側になりますが、小窓なので目が合うこともないと思います(((uдu*)ゥンゥン
また、大きな収納があるので洋室まるっと使えますよ。
奥行も広く、枕棚もたくさん入りますね!!
お荷物の多い方でも安心\(^o^)/
続いて2つ目の洋室見ていきましょう
ε=┏(・ω・)┛
ちょうど廊下の真ん中あたりに位置します。
お邪魔しまーす(*- -)(*_ _)ペコリ
開口部西向きの洋室6帖( `ー´)ノ
陽当りの良いお部屋ですねー
こちらの眺望もかなり開けています。
陽射し遮る建物がありませんね^^
こちらのクローゼットもさっきの洋室と同じくらいの収納力💪
クローゼットの奥行がちゃんとあると安心しますね(((uдu*)ゥンゥン
また、こちらのお部屋には新規エアコンが設置してあります。
これで暑い夏も寒い冬も乗り越えられますね ヾ(*´∀`*)ノ
では、最後にリビングの反対側の扉、、、、
行ってみましょう(((((((((((っ・ω・)っ
こちらも格段に明るいお部屋ですね♡
リビングと繋がっている南向きバルコニーと、西向きの窓になります。
カドベヤ2面採光で風通しもいいですねφ(`д´)メモメモ…
お部屋の広さは約8帖あります。
洋室の中で1番広く、一番リビングに近いですね
もちろん!クローゼットも完備しております。
先ほどのより少し幅が小さいですが、奥行たっぷり収納(`・ω・´)b
こちらは西向きの窓です。
眺望は先程のお部屋と変わらないですね(((uдu*)ゥンゥン
さてお部屋いかがでしたか?
最後に!南向き日当たり良好のバルコニーへいってみましょう♡
(((((((((((っ・ω・)っ
こちらは洋室側のバルコニーですが、
リビング側を見てみると( ^ω^)・・・
なんか管がありますねΣ(゚Д゚;≡;゚д゚)
えいっ
私は150cmと小柄な方なの通れましたが男性の方は難しいかもしれません。。
そんな方は横着せずリビングからまわってお洗濯など干してください🙇
また、正面には中根小学校が見えます。
陽当りも抜群\(^o^)/
さて、【マンション都立大 6階】はいかがでしたでしょうか?
◆新規内装リフォーム済み
◆カドベヤで全室窓付き
L通風・日当たり良好
◆徒歩1分に中根小学校、大きな公園があります。
L子育て環境◎
他にも詳細が知りたい!!実際に見学をしたい!!などありましたら
仲介手数料最大無料の当社
六棒株式会社まで
お電話ください(^-^*)/
TEL 03-5413-5336
過去に販売していたお部屋の概要 このお部屋の販売は終了いたしました。
| 価格 | -万円 |
| 面積 | 36.90㎡ |
| 間取り | 1bedroom(1LDK) |
| 管理費 | 月額18,070円(修繕積立金含む) |
| 所在階 | 4階 |
| お問い合わせ・ご内見のご予約はこちらからお気軽にどうぞ | |
間取りのご紹介です。1LDK、専有面積は36.90㎡。
4階・南向きにつき陽当り・通風ともに良好☀
室内は以下のリノベーションをおこなっています。
【リノベーション内容】
■フローリング、天井・壁、クロス
■洗面所、トイレ、CF
■システムキッチン(浄水機能付き)
■ユニットバス、洗面化粧台、ウォシュレット
■給湯器
■建具、下足入れ、網戸
■コスモスイッチ、照明器具、クリーニング、他
さっそく中へ。玄関は人感センサーがついており、人の出入りを察知して自動で照明が点灯・消灯します。消し忘れがなく経済的な上、スイッチを探す手間も省けて便利。
インターホンは来訪者の顔が確認できるTVモニターがついています。玄関扉を開ける前はこちらでご確認を!
玄関横には約0.7帖のマルチウォークインクローゼットがつくられています。靴はもちろん、傘や掃除機、などなど色々仕舞えそうで頼もしいですね。
玄関先は廊下になっており、こちら側にトイレと洗濯機置場があります。
洗濯機置場は扉付き。使わない時は閉めておけば生活感も隠せて見た目もスッキリ。
トイレはウォシュレットとペーパーのストックの保管に便利な吊戸棚がついています。
玄関をあがった正面にある採光部のある扉をあけてLDKへ。
LDKは約10.4帖。白と木目を基調とした明るい空間になっています。お部屋に設置された家具もついてくるので新生活もスムーズに開始できそうですね!
LDK内にはカウンターや壁面の一部に調湿・消臭効果のあるエコカラットが設置されています。窓がないのですが、これで室内の空気も快適に保てるハズ。
キッチンは清潔感のある白。水栓は浄水機能付き、コンロは2口ガスコンロです。
トイレと洗濯機置場は廊下側にありましたが、洗面化粧台とバスルームがまとまった洗面室はLDK内から行けるようになっています。
洗面室。入口に段差がないので出入りもスムーズ。
洗面室内は白基調で清潔感たっぷり。
バスルームには追い焚き、浴室換気乾燥機能がついて設備も充実しています。
洋室はLDKに隣接しており、LDKとは3枚の可動扉で仕切れるようになっています。
洋室は約4.5帖。南向きで陽ざしがさしこむ明るいお部屋です。
約1.2帖のウォークインクローゼットがついており、生活スペースは有効的に利用できそうです。
可動扉をあけてLDKと洋室をつなげて利用することもできます。扉をあけるとLDK内も一層明るくなりました♪
最後に洋室からバルコニーに出てみます。
広さは3.50㎡、南向き。
陽ざしがサンサンとふりそそぎ、お洗濯物が気持ちよく乾かせます。
左方向は建物に囲まれている感じがありますが、右方向はこんな感じで高い建物はありません。太陽がよく見えます。
ご内見のご希望・ご質問などございましたら、お気軽にお問い合わせくださいませ♪
過去に販売していたお部屋の概要 このお部屋の販売は終了いたしました。
| 価格 | -万円 |
| 面積 | 77.15㎡ |
| 間取り | 2bedrooms(2LDK) |
| 管理費 | 月額:40,210円(修繕積立金含む) |
| 所在階 | 2階 |
間取りのご紹介です。2LDK、77.15㎡、南西角部屋。
フローリングは約22.0帖の広々空間。天然無垢材が使用された、木のヌクモリを感じられるお部屋です。
リノベーション内容をご紹介いたします。
■新規交換・・・システムキッチン(蛇口一体型浄水器・食器洗い乾燥機新設)
ユニットバス(追い焚き、浴室乾燥機付き)/洗面化粧台/トイレ(ウォシュレット付き)
コンセント・スイッチパネル/給湯設備
■新規貼替・・・全室フローリング/壁・天井クロス/フロアタイル/玄関タイル
■新規設置・・・クローゼット/ダウンライト/玄関人感センサー/TVモニター付きインターフォン
■ハウスクリーニング
玄関ホールです。右手には2段に分かれているスリムな玄関収納が設置されています。
おしゃれなタイルがアクセントになっています。
スリムな玄関収納です。こちらにはよく履くシューズなどをしまっておくと出し入れしやすいですね。もう少し収納が・・・と思われたのでは?大丈夫です!次にご紹介するところをみれば安心ですよ!
玄関正面にあるシューズインクローゼットです。奥深くまである広さと自然換気に嬉しい窓もあります、光も感じられる空間です。ゴルフバックだってスッポリおさまりそうです。
シューズインクローゼット右隣にはサニタリールームがあります。左から洗面化粧台、正面の扉を開きますと、洗濯機置き場・リネン庫、右手はバスルームになります。
洗面化粧台です。一枚の大きなミラーはとてもみやすく朝のセットもバッチリできそうです。ミラー下のタイル使いとスタイリッシュな洗面ボウルはまるでホテルの洗面台のようです。下部があいているので、イスを置いてじっくりメイクも!収納スペースとしても活用できそうです。右手には収納棚もありますので、細々したものがまとめられそうですね。
洗濯機置き場です。上部には窓があるので湿気対策で自然換気も安心ですね。
左手にはリネン庫があります。かさばるタオルや洗剤、シャンプーなどのストックも収納できそうです。扉をしめてしまえば見た目もスッキリ☆
追炊き機能・浴室換気乾燥機付きバスルームです。ゆったりとした広さ~浴槽内も足を伸ばして気持ちよく入れそうです。こちらにも開放感を感じられる嬉しい窓付きです。
玄関入り右手にあるウォシュレット付トイレです。またまた嬉しい窓があります。
上部には吊戸棚が設置されていますので、トイレットペーパーはこちらに~
窮屈さを感じない空間でした!
玄関入り左手にあるなが~い廊下です。天然無垢材フローリングはあたたか味ある色♪なんだかホッとします~さっそく進んでみたいと思います~
廊下右手にある洋室6.1帖です。廊下と同じフローリング♪落ち着いたプライベート空間になりそうです。ウォークインクロゼットが設置されています。扉は引き戸なのでお部屋作りもしやすいですね。
廊下突き当たりにある洋室8帖のお部屋です。8帖という広さと2面採光の明るく開放感ある空間です。フカフカのベッドをドーンと置きたくなります~こちらにもウォークインクローゼット設置されています。
廊下左手にある扉です。扉の先には。。。
リビングダイニングキッチンなんと!22帖の広さです。開放感と木の温もりを感じるお部屋です。
バルコニーからのキッチンの景色です。家族みんなでゴロゴロできるゆとりある広さです。
家族の憩いの場だったり、お友達とワイワイも楽しめそうですね。
LDKサイドにある照明です。まるでカフェのような感覚に♪♪♪
落ち着いたブラウンのオープンなシステムキッチンです。おしゃれなキッチンは自慢の一つになりそうです。
食器洗浄機付き、忙しい朝の片付け、夕飯後の後片付けと大活躍してくれること間違いなし!嬉しい機能ですね。コンロは3口、お料理のスピードが上がりそうです。広々としたシンクは使い勝手も良いでしょうね。
足元まであるスライド式収納は奥までみやすく出し入れもスイスイできそうです。
ゆとりある調理スペース、コンロ前にはガラス板があり油はねも心配なさそうですね。
おしゃれなキッチンに立つだけでワクワクしちゃいそうです。お料理の腕もワンランクUP!
コンロ側背面にトールサイズのパントリーがあります。食器からストックものまで仕舞えたりと大変役立ちそうです。棚は収納しやすい可動棚になっています。
LDKから洋室8帖に続いているバルコニーです。中央が細くなっていますが通り抜けることも可能です。洗濯物も気持ちよく干せそうです♪
2階からの眺望です。周囲には住宅があり正面の道を抜けると小学校があります。お子様のいってきまーす!という姿をずっと眺めてしまいそうです~見渡す景色とは厳しい階数ですが、見上げれば遮られるものなく青空も!
天然無垢材フローリング使用、デザインと機能性が融合・調和した温もりあふれる住まい。
「マンション都立大」いかがでしたか~是非一度現地をご覧いただければと思います。
みなさまのご内見、心よりお待ちしております。
過去に販売していたお部屋の概要 このお部屋の販売は終了いたしました。
| 価格 | -万円 |
| 面積 | 81.33㎡ |
| 間取り | 3bedrooms(3LDK) |
| 管理費 | 月額36,541円(修繕積立金含む) |
| 所在階 | 4階 |
ここで間取りのご紹介です。大型3LDK、81.33㎡あります。
玄関はホワイト基調で窓がなくても明るい空間になっています。
カウンター付きのシューズBOXは容量はありませんが、もう1か所玄関収納
(一番右写真)があるので安心です。
カウンターの上に植物や写真を飾ってステキな玄関を演出できますね。
廊下は壁を挟んで左右に分かれています。
正面の真ん中にガラスが入っているトビラの奥はリビングダイニング・キッチン
につづいています。
壁をはさんで・・・ぐるっとまわります。
洋室3部屋の入口がある廊下です。
洋室は後ほど、ご紹介するので先にリビングをご紹介します。
約15.9畳の広々LDK。エアコンが新規で1台ついています。
キッチンはカウンタータイプなのでリビングにいる家族と会話を楽しみながら
お料理ができます。
冷蔵庫はシステムキッチン向かって右側に置くスペースが確保されています。
3口コンロにワイドシンクと使い勝手も◎。
引き出しも大きいのでザルや手持ちのキッチングッズもサクサク入りそうです。
洗面室は入口入って左手に洗濯機置場と洗面台、正面にトイレ、右手にバスルームと
収納と水廻りは1か所にまとまっているので、使いやすいですね。
パナソニック製の洗面化粧台は3面鏡の裏に小物が収納できるようになっています。
ゴチャゴチャしがちな洗面台まわりもスッキリ保てそう。
洗面カウンターも幅が大体100センチくらいあり、ゆったりしているのでオシャレな
ハンドソープのボトルなどを置いたりして楽しめます。
洗面台の左となりは洗濯機置場。
追い焚き機能と浴室換気乾燥機のついたバスルーム。(TOTOの製品です。)
やわらかい色合いでリラックスしたバスタイムが過ごせそうです。
ウォシュレット付きのトイレも同じくTOTO製。
上側にはトイレットペーパーのストックを入れて置くのに重宝しそうな吊戸棚が
ついています。
洗面室内には棚の高さが変えられる収納もつくられています。
洗剤やタオルを入れておくのにいいですね!
ここから洋室を3部屋ご紹介します。
1部屋目は約7.0畳の広さ。

壁の中央部分、少し柱が出ているのが気になるかもしれません・・・。
こちらのお部屋には枕棚付きのウォークインクローゼットがつくられているので、
お部屋に余計な収納家具を置かなくてもお部屋をスッキリ保てそうです!
2部屋目は約5.0畳の広さ。
幅と奥行きが大体60センチくらいのクローゼットがつくられています。
3部屋目は洋室の中で一番広い約8.9畳。
こちらのお部屋からはバルコニーにでられるようになっています。
(リビングからも出られます。)
奥行は約60センチくらいですが、幅が230センチちょっとある大型の
クローゼットもつくられています。
最後にバルコニーにでてみます。
こちらは約8.9畳の洋室側バルコニー。
※間取りで見るとバルコニーつながっていますが、真ん中に室外機があるので
洋室側とLDK側にわけてみます。面積は全体で約8.0㎡。
この日は雨が降っているので暗いですが、南向きなので晴れた日は陽当りも◎です!
目の前は建物が建っていますが、右手はすこーし抜けた眺めが楽しめます。
LDK側のバルコニー。
こちらの方が眺めがいいかも・・・。まわりは閑静な住宅街で静かです。
眼下は駐車場になっています。
みなさまのご内見、心よりお待ちしております!
過去に販売していたお部屋の概要 このお部屋の販売は終了いたしました。
| 価格 | -万円 |
| 面積 | 47.79㎡ |
| 間取り | 2bedrooms(2LDK) |
| 管理費 | 月額:12,516円 修繕積立金:月額7,636円 |
| 所在階 | 2F |
ドアを開けますと、カウンター収納が右にあります。クロスは真っ白!
真っ白なクロスとブラウンの扉やフローリングが落ち着きある雰囲気です♪
玄関にあるカウンター収納です。少々収納力は足りない方もいらっしゃるかも知れませんが、カウンター下部のスペースがあいているのでこちらも活用したいですね。
インテリアを楽しめるカウンターには、季節を感じる小物を並べてはいかがですか~
もうすぐクリスマスです!
玄関入り右側にある4.3帖・洋室です。窓があり空気の入れ替えもしっかりできます。
お子様のお部屋・書斎などにいかがですか~
廊下正面突き当りにはLIXIL製ウォシュレット付トイレです。
吊戸棚にはトイレットペーパーなどのストックに良いですね。クロスがタイルのような模様でおしゃれです。
玄関左側にはサニタリールームがあります。
左側に浴室 正面に洗面化粧台 右側に洗濯機置き場+収納棚です。
サーモ付きシャワー水栓・換気乾燥暖房機浴室です。リラックスな雰囲気をだしているアクセントパネル、バスタブには手すりもあります。足腰などいためているときなどはもちろんですが、普段でも支えがあるととても助かりますよね。
ゆとりある洗面化粧台は大きなミラーもみやすく、朝のお化粧やヘアースタイルも落ち着いて準備できそうです。左にある縦長のミラー裏をあけるとこちらも収納。小物などの整理整頓に良いですね。洗面ボウル下には、シャンプーや洗剤などのストックもできそうです。
洗濯置き場です。左側には収納棚があります。洗濯洗剤はもちろん置くのにバッチリですが、浴室と向かい合っているので、沢山置けるようタオルをクルクル巻いて置くのも使い勝手良さそうです。
光が射し込む陽当りのよい11.7帖のリビング・ダイニング・キッチンです。
目黒通り騒音も気にならなく、家族団らんがゆったりできる空間です。
窓のあるシステムキッチンはいつでも自然換気ができ、人造大理石トップ・浄水器内臓シャワー水栓でお手入れもしやすく真っ白なキッチンはいつもピッカピカでいたいですね。
3つのコンロはお料理の時短もでき、茹でてる横では炒め物とスムーズにできそうです♪
カウンター部分には、出来上がった料理を置いたり、緑を置いたりと便利なスペースですね。
LDKのお隣にあるこちらも陽当りの良い明るい6.0帖。洋室です。プライバシーも守られ寝室としても良いですね。嬉しいウォークインクローゼット付、ポールハンガーには衣類が沢山かけられそうです☆
南向きのバルコニーです。(6.48㎡)
本日はお天気も良く心地よい風、きっと洗濯物もすぐに乾きそうです~
2階からの眺望です。目の前に建物があり眺望というには望めませんが、個人差はあるかと思いますが、駐車場と道路があっての建物なので圧迫感を感じる距離でありませんでした。
アフターサービス保証付き(設備・部位別に最長5年)のお部屋、「マンション都立大」いかがでしたか~目黒通り騒音も気にならず静かな住環境です。
みなさまのご内見、こころよりお待ちしております!

















































































































































































































































































































































































































































弊社 公式HP
六棒総合研究所
掲載予定物件
価格変更と販売終了物件
ハザードマップ検索
適合証明書.jp
Facebook
Twitter
Instagram