・
□□□□□□□□□□□□□□□□□□□□□□□□□□□□□□□□□□□□□□□
いつも弊社ホームページをご覧頂き誠にありがとうございます。
目黒グリーンコープはお陰様で販売を終了致しました。弊社問合せフォームにてご要望頂けましたら、当お部屋でキャンセル等が発生した場合、他のお部屋が販売になりました際にご紹介させて頂きます。
不動産Agent 六棒株式会社
TEL:03‐5413‐5336
□□□□□□□□□□□□□□□□□□□□□□□□□□□□□□□□□□□□□□□
・

人気の目黒エリアよりリノベーションマンション『目黒グリーンコープ』
のご紹介です!
JR山手線・東急目黒線・東京メトロ南北線・都営三田線「目黒」駅徒歩8分
東急目黒線「不動前」駅徒歩10分
東急東横線「中目黒」駅徒歩16分
□□□□□□□□□□□□□□□□□□□□□□□□□□□□□□□□□□□□□□□
★★★【目黒グリーンコープ】周辺のハザードマップをCHECK!!★★★
お部屋の記事を読む前に…!周辺のハザードマップをチェックしておきませんか!
目黒グリーンコープのハザードマップは★こちらから…どうぞ★
□□□□□□□□□□□□□□□□□□□□□□□□□□□□□□□□□□□□□□□
ハザードマップもご確認いただきましたので、次は街の紹介です!
ご紹介する目黒グリーンコープは3駅複数路線が利用可能。
最寄の目黒駅はJRの他、東急、地下鉄も利用可能。都内各方面へアクセス良好です。
マンションはここから徒歩8分ほどの距離。
目黒駅周辺には駅ビルのアトレをはじめ、
飲食店や 銀行などが集まっており暮らしも便利。
駅の周辺は手ごろなカフェや飲食店、居酒屋が多い印象ですが、少し離れると・・・
ちょっと昭和な雰囲気漂う商店街もあります。
こちらは目黒駅の西口から大鳥神社に向けてある権之助坂商店街
沿道には約256店ものお店が3kmにもわたって連なっているそうですよ
ラインナップも豊富でかなり散策のしがいがありますね!
マンションは駅から目黒通りをまっすぐ歩いていき、
大鳥神社の交差点を曲がって少し歩いたところにあります。
大通り沿いを通って来れるので暗い時間の帰宅も安心ではないでしょうかφ(.. )
マンションの斜め向かいには目黒区最古の神社といわれる「大鳥神社」
11月の酉の市では縁起物の熊手を買い求める人でにぎわうそうです。
そして大鳥神社の近く、マンションからだと徒歩3分くらいでしょうか・・・。
珍しい寄生虫の博物館、「目黒寄生虫館」もあります。(無料で入れます。)
青白く光るガラス瓶には数々の寄生虫が展示されています。
珍しいもの好きな方はゼヒ一度足を運んでみるのをおすすめします。
一番近いスーパーはマンションと同じ通り沿い、徒歩1分にも満たない距離にあるスーパーマルエツです。小中学校も徒歩10分圏内とファミリーにもおすすめの環境です。
目黒川もほど近く。
たまには川沿いを歩いて、中目黒方面まで散策がてらに行ってみるのも◎。
目黒グリーンコープは昭和46年築、13階建て、総世帯数80戸。
山手通り沿いに建つ白い外観のマンションです。
規約がありますが、ペットの飼育も可能です。(犬・猫飼育可)
エントランス前は山手通り。交通量は多いです。
ちなみにマンションのお隣では14階建ての建物が建設中。ちょっと気になりますね。。。
エントランス。(オートロックはありませんが防犯カメラが設置されています。)
横には飲食店が入っています。
パスタにカレーにカツ重、私の好物ばかりです。
敷地内には駐車場、駐輪場、バイク置場もあります。
駐車場横にゴミ置場もありました。
では中へ入ってみましょう。
階段がエントランスの中にある、特徴的でデザイン性あふれる形状です。
管理人室はエントランスの奥にあり、部屋の様になっています。
(管理は管理会社へ全部委託されています。)
エレベーターは1基。
大規模修繕で床のシートが張り替えられていて、とてもキレイです。
ここで間取り図のご紹介です。
※間取り図は別タブで開きますので、確認しながらご覧いただく事が出来ます。
□□□□□□□□□□□□□□□□□□□□□□□□□□□□□□□□□□□□□□□
★★★【目黒グリーンコープ】周辺のハザードマップをCHECK!!★★★
お部屋の記事を読む前に…!周辺のハザードマップをチェックしておきませんか!
目黒グリーンコープのハザードマップは★こちらから…どうぞ★
□□□□□□□□□□□□□□□□□□□□□□□□□□□□□□□□□□□□□□□
今回ご紹介するお部屋は9階、間取りは2LDK、専有面積は48.73㎡。おひとり暮らしやDINKSの方にお勧めのお部屋です。では、お部屋へ!

エレベーターで9階へ。エレベーターホールに数部屋、あとは外廊下に玄関が並んでいました。それぞれ一長一短あり、ホール内のお部屋は多少暗い感じですが天候の影響がありません。一方外廊下に並ぶお部屋は明るく風通しがいい代わりに雨風が強い時などには苦労しそうです。

玄関ドア横にはモニター付きインターホンが設置されていて、お部屋の中から訪問者を確認する事が可能。手が離せない時などにはとても助かります。廊下が玄関から横向きに伸びていて戸口から室内の様子が見えません。最近は宅配便やフードデリバリーなど、知らない人が訪ねて来る機会も多いですからね。

上り口の上に梁が通っているので背の高い方は気を付けましょう。180cmくらいでしょうか、173cmの私は全然大丈夫でした。人感センサーが自動的にライトを点けてくれるので、暗い中ぶつけてしまうなんて心配はありませんよ。

シューズボックスはトールタイプ。収納力抜群!玄関内に散らかりがちな靴をどんどん収納していけます。ただし、カビを防ぐためにも濡れた靴は乾いてからしまいましょう!

左に伸びる廊下は木目を生かしたナチュラルな雰囲気。正面ドアにはスリットガラスが入っていてお部屋からの光が漏れています。

では、正面ドアから…

こちらは約11.5帖のリビング・ダイニング・キッチン。
南東向きバルコニーに面した明るいお部屋です。オーソドックスな形で家具のレイアウトもしやすそうですね。エアコンも設置されているので、快適に新生活を始められますよ。

南西側にも小さな窓が付いていますが残念ながら開かないようです。というか、あの位置で開いたら怖いですよね(笑)

キッチンは人気のカウンタータイプ。お料理をしながらでも、ご家族やご友人と会話を楽しめるキッチンです。明るい木目パネルでお部屋の雰囲気にもピッタリ!

調理台下には食器洗浄乾燥機とスライドキャビネット。食器洗浄乾燥機って憧れますよね。洗い物をお任せすれば食後の時間をのんびり過せますよ♬ スライドキャビネットは出し入れがしやすく、ぎっしり詰めても中が確認しやすい優れもの。

水栓は浄水機能付きシャワー水栓。切り替えるだけで気軽に美味しいお水を使えます。お米を研ぐのにも使うと良いらしいですよ。ノズルが伸びるので、シンクや大きな鍋を洗うのにも便利です。

コンロは3口、グリル付。タイマーや温度設定が使える高機能タイプです。グリルって「魚焼きグリル」と呼ばれるくらい魚イメージが強いですが、肉や野菜も美味しく焼けるんですよ。「グリルを使って…」とか検索すればたくさん出てきますので、ご興味のある方は是非調べてみてください。

調理中は換気扇をお忘れなく!少し前から回しておくと効果的らしいですよ。奥は冷蔵庫ではなく、家電ラックやカップボードなどを置くスペースになっていました。

冷蔵庫はこちら。冷蔵庫は調理以外で使うことも多いので、ここの方が断然使いやすくていいですね。その左隣には収納棚。食料品、日用品のストックから掃除機まで、幅広く使える収納です。

では、隣のお部屋へ…

こちらは約4.5帖の洋室。
LDKとバルコニーに隣接したお部屋です。シンプルな色使いで家具やカーテンなども合わせやすそうですね。

収納はウォークインクローゼット!L字型にハンガーポールが設置された大きな収納です。
キャリーバッグやスーツケースなどの嵩張るものを置くも良し、衣装ケースなどで収納力アップも良し♬

引き戸で仕切られているので、開放してLDKとつなげて使うことも可能。ご家族構成やライフスタイルによってフレキシブルに使えるのは有難いですね。


廊下へ戻って、次のお部屋へ…

こちらは約4.1帖の洋室。
南西向きの大きな窓があるお部屋です。多少コンパクトサイズですが、入口に引き戸使用でデッドスペースが出来ない分無駄なくお部屋を使えますよ。

オープンの収納棚は棚板の移動が可能。吊るして収納したければ板を全部取り払ってポールを付けたり、上半分は棚を残し下半分にだけ吊るしたり、工夫次第でいろいろ使えそうです。
窓の外には見事な眺め。ただし、かなり低い位置まで窓になっているので、柵があるとはいえペットを飼われる方は注意が必要です!

次は洗面室へ…
洗面室には洗面化粧台、洗濯機スペース、浴室、トイレがまとまっていて、脱衣所を兼ねています。少しですが段差があるので小指などぶつけないようお気を付けください。
洗濯機スペースは吊戸棚付きで、洗剤などを入れておけるので便利です。

洗面化粧台は360°チェック出来る三面鏡付き。鏡の間に付けられた照明のおかげで鏡を見る時に影になることもありません。LED様様ですね。

水栓はヘッドが引き出せ、洗面ボウルを流したりがしやすくなっています。スライドキャビネットやミラーキャビネットなど収納も豊富。細々した物が多くなりがちな洗面廻りには有り難いですね。様々なタイプがあって大きな物から細かい物までスッキリ収まりそうです。

次はトイレへ…
トイレと浴室への扉も多少低めです。玄関の梁より余裕がないので175cmくらいでしょうか。


トイレはINAX製のシャワートイレ付。トイレットペーパーなどの収納に便利な吊戸棚も付いています。

浴室はモノトーンでまとめられた明るい雰囲気。

追い焚き機能付きユニットバスは「自動」ボタンひとつでお風呂を沸かすことが出来ます。追い焚き機能でいつでもお風呂は温かいまま。長風呂派の方の強い味方です♬


浴室換気乾燥機は浴室の換気乾燥はもちろんのこと、暑い季節は涼風、寒い季節は浴室暖房、雨の日には洗濯物乾燥といろいろな使い方が可能。天気を気にせず洗濯機を回せるのはホント助かりますよね。雨が続いて洗濯カゴが一杯になると、ストレスも溢れそうになります(^-^;

それでは、最後はバルコニーのご紹介。
LDK、洋室のどちらからでも出られます。

広さ8.03㎡の南東向き。幅も奥行きもたっぷりのバルコニーです。東側には建物があり朝のうちは陽が入りませんが、昼前(現在AM11:00)からはご覧の通り陽当たり良好!お洗濯物も気持ちよく乾きそうですね。天井には物干し金具も付いていますよ。

隣の建物と比べて少しこちらが前に出ているので、バルコニーの右半分からは抜けた眺めが望めます。

南方向は大鳥神社のおかげでさらに開放的!ちょっとでも緑が入ると気分が違いますよね♬
・
以上で目黒グリーンコープのご案内を終わります。
いかがでしたでしょうか??
目黒駅から徒歩3分のマンションです。
リノベーション済みという事で室内はとてもキレイですよ (っ・ω・)っ
内見のご予約やご質問などございましたらお気軽にお問い合わせくださいませ。
ご連絡お待ちしております。
□□□□□□□□□□□□□□□□□□□□□□□□□□□□□□□□□□□□□□□
★★★【目黒グリーンコープ】周辺のハザードマップをCHECK!!★★★
お部屋のご購入前に…!周辺のハザードマップをチェックしておきませんか!
目黒グリーンコープのハザードマップは★こちらから…どうぞ★
□□□□□□□□□□□□□□□□□□□□□□□□□□□□□□□□□□□□□□□
弊社、不動産Agent 六棒株式会社では、一般仲介物件は仲介手数料20%~30%OFF!
にてお取り扱いしております!
なるべく沢山のお部屋をホームページに掲載したいと思っておりますが、時間的成約もございますので、残念ながらご紹介できるお部屋の一部しか掲載できておりません。
このホームページに掲載中のお部屋、その他サイト等で気になるお部屋、街を歩いていて気になったマンション等々ございましたら是非、弊社営業部までご相談ください!
~不動産Agent 六棒株式会社の特徴~
・一般仲介物件の仲介手数料は20%~30%OFFにてご案内中です!
・住宅ローンに自信あります!
・頭金10万円より購入できます。是非ご相談下さい!
・お部屋のご見学は車で2~3件まとめて案内します!
・物件数3000件以上、新築戸建、リノベ物件も多数ご用意しております!
過去に販売していたお部屋の概要 こちらのお部屋の販売は終了いたしました
| 価格 | -万円 |
| 面積 | 56.77㎡ |
| 間取り | 2bedrooms(2LDK) |
| 管理費 | 月額13,400円 修繕積立金:月額19,300円 町会費:150円 |
| 所在階 | 3階 |
| お問い合わせ・ご内見のご予約はこちらからお気軽にどうぞ | |
共用廊下は風通しのよい外廊下タイプ。お隣の玄関扉ともほどよく距離がとられています。
ここで、間取り図の紹介です。
※クリックすると別画面で表示されますので、以降、間取り図を見ながら進むことが出来ます!
こちら2LDK、56.77㎡。
バルコニーは、リビングダイニングと洋室の2つに面しているので、とても広々としています。
□□□□□□□□□□□□□□□□□□□□□□□□□□□□□□□□□□□□□□□
★★★【目黒グリーンコープ】周辺のハザードマップをCHECK!!★★★
お部屋の記事を読む前に…!周辺のハザードマップをチェックしておきませんか!
目黒グリーンコープのハザードマップは★こちらから…どうぞ★
□□□□□□□□□□□□□□□□□□□□□□□□□□□□□□□□□□□□□□□
玄関に到着です。
玄関にはカメラ付きインターホンが設置されています。玄関を開ける前に確認する事が出来てとても安心ですね。
では、中に入ってみましょう。お邪魔しまーす。
玄関を開けると、個性的な柄の光沢のある廊下が伸びています。ダークブラウンの扉がアクセントになっていますね。
左を向くと、姿見があります。
凹凸のテクスチャが、床のデザインと合っていますね。
人感センサーが設置されているので、自動的にライトが付きますよ。両手にいっぱいの荷物でも大丈夫(^^)v
右を向くと、シューズボックスかな?開けてみましょう。
やっぱりそうでした、斜めに立て掛けるタイプですね。収納力は落ちますが、薄型に出来るので玄関を広く使う事が出来ます。
では、廊下を進んで、リビングダイニングへ入ってみたいと思います。
ガチャ。
扉をあけて右側には、リビングダイニングがあります。
明るいフローリングと白のクロスで、爽やかな印象のお部屋になっていますね。
左側はキッチンです。
まずは、リビングダイニングの方へ進んでみましょう。
お部屋を細かく分けずに大きく使っているので、家族のコミュニケーションが増えそうです。
リビング部分のブラウンのアクセントウォール、存在感がありますね。
こちらに置いてある家具などは見本という事で販売価格には含まれていませんが、生活のイメージがし易くて助かります。家具の大きさや色などの参考にもなりますよ。
ラグマットなら気軽に変えられるので、季節や気分によって変えてみるとまた違った印象のお部屋を作る事が出来ますね。
間口が広く使いやすそうなクローゼットです。
奥行きはそれほどないので、床面にはあまり大きな物を置く事が出来ないかもしれませんね。
では、次にキッチンを見てましょう。
右側には、カウンターがあります。出来上がったお料理を置いたり、下げ物を置いたり出来ますね。
カウンターの下は棚になっているので、キッチン側には食器などを置くことも出来ます。一方、ダイニング側は目立つので見せる収納を意識しないといけませんね(^^)
両サイドに作業できるスペースがあるので、みんなでの作業も大丈夫(^^)vご家族やご夫婦でお料理したりする楽しい空間になりそうです。
では、キッチンの収納を見ていきましょう。
シンクの下の収納は、上下引き出しタイプの収納です。
かなり収納力があるので、お鍋やフライパンに限らず缶詰や乾物などもストック出来そうおですね。
上部にも収納がありますよ。
ちょっと高い場所に設置されているので、あまり使わない物をしまっておきましょう。
3口コンロと片面焼きグリルも付いています。
コンロの周りにスペースがあるので、調味料を置いたり調理道具を置くことも出来ます。
水栓は伸びるタイプなので、シンクを流したりに便利ですよ。
では、バルコニー側の洋室を見てみましょう。
こちらが約4.5帖の洋室です。
白で統一されているので、どんなカーテンや家具でも合わせやすいですね。いろいろな雰囲気のお部屋を作れそうです。
こちらも間口が広いクローゼットです。
リビングのクローゼットより奥行きがありそうです。スースケースとかも入りそうですね。
今度は、キッチン横の洋室に入ってみたいと思います。
お邪魔しまーす。
こちらが約6帖の洋室となります。
小さめの窓がありますが、外は外廊下になっていました。
お部屋を入ってすぐ右にはコンパクトなクローゼットがあります。
では、いちど廊下に戻ります。
リビングダイニングから廊下を出て、すぐ左側にドアがあります。
開けて見ると、洗濯機スペースでした。
個室になっていて、ライトが付いていますので明るい状態で作業する事が出来ますよ。
では、こちらのドアを開けて見たいと思います。
玄関近くのドアですね。
洗面室となります。
洗面台、イイですね~。お洒落なお店みたいです(^^)
洗面台、左側のドアを開けると…
トイレがあります。
ちょっとしたヘリがあるので、観葉植物などを飾る事も可能です。
トレイを出て、真向かいにはバスルームがあります。
浴槽は足を伸ばせるゆったりサイズです。
追い焚き機能がついているので、いつでも温かいお風呂に入れますよ。
では、最後にバルコニーへ行ってみたいと思います。
バルコニーへは、リビングダイニングと洋室どちらからでも出られます。
2部屋に面していて幅は広いんですが、奥行きもあるのでより広く感じます。
バルコニー真向いにマンションがあるので眺めがいいとはいえませんが、暗いという事はありませんよ。
青空が見えてきました。風が吹いてきて気持ち良いです。
広々としたリビングダイニングとバルコニー、一家族団らんの時間をリラックスして過ごせそうなこちらの物件、一度現地にてご覧下さい!
では、以上で目黒グリーンコープのご案内を終わります。
いかがでしたでしょうか??
目黒駅から徒歩8分のマンションです。
リノベーション済みという事で室内はとてもキレイですよ (っ・ω・)っ
内見のご予約やご質問などございましたらお気軽にお問い合わせくださいませ。
ご連絡お待ちしております。
□□□□□□□□□□□□□□□□□□□□□□□□□□□□□□□□□□□□□□□
★★★【目黒グリーンコープ】周辺のハザードマップをCHECK!!★★★
お部屋のご購入前に…!周辺のハザードマップをチェックしておきませんか!
目黒グリーンコープのハザードマップは★こちらから…どうぞ★
□□□□□□□□□□□□□□□□□□□□□□□□□□□□□□□□□□□□□□□
弊社、不動産Agent 六棒株式会社では、
□リノベーションマンションはほぼ全て仲介手数料無料!
□その他一般仲介物件は仲介手数料20%~30%OFF!
にてお取り扱いしております!※弊社の「Agent Fee=仲介手数料」についてはご案内、ご面談の際に営業担当者よりご説明いたします!
なるべく沢山のお部屋をホームページに掲載したいと思っておりますが、時間的成約もございますので、残念ながらご紹介できるお部屋の一部しか掲載できておりません。
このホームページに掲載中のお部屋、その他サイト等で気になるお部屋、街を歩いていて気になったマンション等々ございましたら是非、弊社営業部までご相談ください!
~不動産Agent 六棒株式会社の特徴~
・一般仲介物件の仲介手数料は20%~30%OFFにてご案内中です!
・リノベーションマンションについてはほぼ全て仲介手数料無料です!
・住宅ローンに自信あります!
・頭金10万円より購入できます。是非ご相談下さい!
・お部屋のご見学は車で2~3件まとめて案内します!
・物件数3000件以上、新築戸建、リノベ物件も多数ご用意しております!
過去に販売していたお部屋の概要 このお部屋の販売は終了いたしました。
| 価格 | -万円 |
| 面積 | 36.51㎡ |
| 間取り | 1bedrooms(1SDK) |
| 管理費 | 月額8,800円 修繕積立金:月額12,700円 |
| 所在階 | 9階 |
| お問い合わせ・ご内見のご予約はこちらからお気軽にどうぞ | |
間取りは1SDK、36.51㎡。シングルの方におすすめです。
間取りはクリックすると別タブで開くのでゼヒ写真と見比べながらご覧ください♪
室内はリフォーム済みです。(クロス張替、トイレ交換)
お部屋は9階。高層階なだけあり、共用廊下からの眺めがいいですね!
これはバルコニーからの眺めも期待できます。
玄関扉は落ち着いたブラウン。インターホンはTVモニターがついており、来訪者の顏が確認できるので防犯面も安心です。ダブルロックキーでピッキング対策もバッチリ。
では玄関扉をあけてお部屋の中へおじゃまします。
玄関ホールは白基調で明るい空間になっています゚(*´∀`)b゚+.゚イィ
玄関横には白いシューズBOXがあります。収納力もあるので一人暮らしの手持ちの靴ならまとめてここで管理できそうですね。カウンター部分にお気に入りのインテリアなどを置いてお好みの空間を演出してみてくださいね。
玄関をあがると廊下がまっすぐのびています。
真正面の扉をあけて、最初にダイニングキッチンから見ていきましょう。
please come in(●´∀`)ノ
ダイニングキッチンは約5.7帖。南向きの明るい空間です。
エアコンが設置されているので引っ越したその日から快適な生活が送れます。
ダウンライトがお部屋全体を明るく照らしています。
お天気がいい日は電気なしでも快適に過ごせそうな雰囲気です。
キッチンは壁面に馴染む白。壁付けされています。
冷蔵庫は向かって左側のスペースに置けるようになっています。
吊戸棚に引きだし、シンク下のスペースと収納スペースは豊富で多彩です。
窓が近いので換気がスムーズにできるのもうれしいところです。
浄水器一体型シャワー水栓、グリル付きと設備も◎!
シャワーにすればシンクのお掃除も隅々まで簡単に済ませられます。
ダイニングキッチンに隣接してあるのは洋室です。
2部屋は3枚の可動扉で仕切れるようになっています。
ガラガラ~と扉を横にスライドさせまして。。。
ダイニングキッチン横の洋室は約5.6帖です。家具が置いてあるので実際の生活イメージがつきやすいのではないでしょうか(*’ω’*)
幅の広いクローゼットがついています。収納もバッチリ。
洋室とダイニングキッチンをつなげると一体感のある横長の空間になりました。お隣の洋室はリビングとして使うのもいいですね!
扉は壁の向こうへ引き込めるので開けたままでも見た目がスッキリ♪
今度はダイニングキッチンを出て廊下側を見ていきましょう。
廊下を出てすぐ右側の白い扉は洗濯機置場です。
扉は観音開き。上に棚があるので、洗剤はこちらへどうぞ♪
使わない時は扉を閉めて生活感も隠しておけます。
洗濯機置場となりの白い扉は納戸です。
納戸は約3.3帖。ちなみに納戸とは建築基準法により「居室」と認められない部屋です。居室と認められるためには、採光や換気など、さまざまな基準を満たす必要があるのですが、それが満たされないと納戸とかサービスルームといった表記になります。というわけで用途は自由。ベッドルームにしてもOK牧場です。
納戸の向かい側の扉は洗面室です。
玄関から近いので手洗い・うがいがスムーズにできますよ。
ガラガラ~と扉を横にスライドさせまして。。。洗面室です。
脱衣スペースに余裕があるのも◎!
洗面化粧台は鏡の裏、洗面ボウル下と収納スペースがしっかりあります。
鏡の間にはライトがついているので、メイクもしやすいですよ!
水栓はホースを引き出してシャワーとしても利用可能です。
寝ぐせがひどい時はこれでザーッと濡らしてバーッと出かけましょう!
花瓶にお水を入れる時もホースを引き出すと便利ですよ!
洗面化粧台横の白い扉はトイレです。
TOTOの温水洗浄便座です。窓があるので自然換気ができるのもいいですね。掃除道具やペーパーのストックは上の棚へ入れておけば足元がスッキリ。お掃除もしやすいです。
おしりだって洗ってほしい!んです。
トイレの向かい側がバスルームです。
扉にはタオル掛け、横の壁面には浴室換気乾燥機の操作パネルがついています。花粉の時期や雨の日は乾燥機は重宝しますね!
木目調のツルリとした壁パネルで高級感のあるバスルーム♪
縦長の鏡で全身が見れるので、朝出かける前はここで身だしなみチェックしてもいいかも。と今思いつきました。
それにしてもゆったりとしたバスタブっていいですね!
追い焚きがついているので心ゆくまで温まってください。
最後にダイニングキッチンと洋室をつなぐバルコニーに出てみましょう。
ドキドキ。
バルコニーは約6.54㎡。南向きで陽当りはご覧の通りバッチグー。
お洗濯物を干しておけばお日様のいい香りがしそうです(*´ 艸`)
正面の眺望です。少し高い建物がありますが、ほどよく抜けた開放感のある眺めが楽しめます。空が広く見えて気持ちいいーーー。
左右はこんな感じ。左側は他のお部屋の窓ですが、右側は開けていますね。
ひとつ気になるのが眼下で建設中の14階建てのマンションです。これが日差しや眺望にどの程度影響がでるか。。。気になる方は是非現地をご確認いただければ幸いです。
目黒グリーンコープ、いかがでしたでしょうか?
内見のご予約やご質問などございましたらお気軽にお問い合わせくださいませ。
ご連絡お待ちしております。
弊社、不動産Agent 六棒株式会社では、
□リノベーションマンションはほぼ全て仲介手数料無料!
□その他一般仲介物件は仲介手数料20%~30%OFF!
にてお取り扱いしております!※弊社の「Agent Fee=仲介手数料」についてはご案内、ご面談の際に営業担当者よりご説明いたします!
なるべく沢山のお部屋をホームページに掲載したいと思っておりますが、時間的成約もございますので、残念ながらご紹介できるお部屋の一部しか掲載できておりません。
このホームページに掲載中のお部屋、その他サイト等で気になるお部屋、街を歩いていて気になったマンション等々ございましたら是非、弊社営業部までご相談ください!
~不動産Agent 六棒株式会社の特徴~
・一般仲介物件の仲介手数料は20%~30%OFFにてご案内中です!
・リノベーションマンションについてはほぼ全て仲介手数料無料です!
・住宅ローンに自信あります!
・頭金10万円より購入できます。是非ご相談下さい!
・お部屋のご見学は車で2~3件まとめて案内します!
・物件数3000件以上、新築戸建、リノベ物件も多数ご用意しております!
過去に販売していたお部屋の概要 このお部屋の販売は終了いたしました。
| 価格 | -万円 |
| 面積 | 36.51㎡ |
| 間取り | 1bedrooms(1R) |
| 管理費 | 月額8,800円 修繕積立金:月額12,700円 |
| 所在階 | 5階 |
| お問い合わせ・ご内見のご予約はこちらからお気軽にどうぞ | |
さて今回のお部屋は5階になります。
間取り図はこちら↓ (図面と現況が異なる場合は現況を優先します。)
今回ご紹介するお部屋は自分でワンルームか1LDKか選ぶことが出来ます!!
なんと無償で自分のライフスタイルにあわせられます♡
クリックすると別タブで大きく開くことも可能です。
間取り図とお部屋比較すると見やすいですよ
では、営業部小倉が【目黒グリーンコープ 5階】
お部屋一緒にご案内させて頂きます(o*。_。)oペコッ
玄関を入ると腰掛けベンチを発見♡
折りたたみ式なので邪魔にもなりませんφ(`д´)メモメモ…
玄関入って左手はシューズインクローゼットがΣ(・ω・ノ)ノ!
傘たてまで木であわせてあります♡
細部までこだわりが光りますねo(^o^)o ワクワク
可動式の棚でヒールの高い靴や、ブーツ
その他靴以外のものも収納出来そうですね(((uдu*)ゥンゥン
玄関正面には玄関収納が!!
これまた高さ調節が可能で、掃除用品や消耗品のストック庫にいかが?
右手にはトイレがあります。
リビングと離れていてプライバシーが護れますね (*^艸^)
では、気になるリビング行ってみましょう
(((((((((((っ・ω・)っ
開口部南向きの陽当り良好なリビングは約12.8帖あります
キョロ ((o(・x・ )o( ・x・)o)) キョロ
こちらが今回セレクト出来るスペースです!
開き戸の洋室を作ることが出来ますよ!!
(」゚ロ゚)」 <<仕様変更の相談、追加工事も可能です
収納もついていますよ♡
ウォークインクローゼット(WIC)お荷物が多い方も安心の大容量\(^o^)/
キッチン側にも収納があります (*^艸^)
洗濯機置場もあるので家事がいっぺんにはかどりそう♡
こちらも高さ調節が可能な棚です!
食品のストックや食器を置いてもいいかも(・・?
キッチンは2口コンログリル付き!
コンパクトな作りながら、使い勝手は◎
浄水機能一体型で毎日美味しいお水は飲めます((ノェ`*)っ))タシタシ
玄関廊下にもどり
ε=┏(・ω・)┛
洗面所へ
リネン類が入れられる棚を設置!
掃除用の洗剤など入れても(`・ω・´)b
ホテルライクな可愛い洗面ボールは天然無垢材と相性バッチリ♡
浴室は悪天候でも大丈夫!!
浴室乾燥機完備φ(`д´)メモメモ…
追い炊き機能もついているので節水、節電にも?!
ワイドミラーを採用し、浴室を広く演出♡
物干しさおも新規で2つついていますね♡
さてお部屋いかがでしたか?
最後に!南向き日当たり良好、バルコニーへいってみましょう♪
(((((((((((っ・ω・)っ
バルコニーのウッドバネルも建具やフローリングと同じ木材、
天然無垢材を使用していますよ!
使えば使うほど味が出てきますo(^O^*=*^O^)o ワクワク
眺望はこちら♡
南向きで陽当り良好\(^o^)/

さて、【目黒グリーンコープ 5階】はいかがでしたでしょうか?
◆スケルトンから!新規内装リノベーション済み
Lアフターサービス保証付き
◆平成29年1月末大規模修繕工事実施済み
L玄関扉改修工事済み
◆大好きな家族と住めるペット飼育可マンション
L細則あり
◆林試の森公園まで徒歩11分
L住環境も良好◎
他にも詳細が知りたい!!実際に見学をしたい!!などありましたら
仲介手数料最大無料の当社
お電話ください(^-^*)/
TEL 03-5413-5336
お気軽にお問い合わせください。
スタッフ一同お待ちしております。
弊社、不動産Agent 六棒株式会社では、
□リノベーションマンションはほぼ全て仲介手数料無料!
□その他一般仲介物件は仲介手数料20%~30%OFF!
にてお取り扱いしております!※弊社の「Agent Fee=仲介手数料」についてはご案内、ご面談の際に営業担当者よりご説明いたします!
なるべく沢山のお部屋をホームページに掲載したいと思っておりますが、時間的成約もございますので、残念ながらご紹介できるお部屋の一部しか掲載できておりません。
このホームページに掲載中のお部屋、その他サイト等で気になるお部屋、街を歩いていて気になったマンション等々ございましたら是非、弊社営業部までご相談ください!
~不動産Agent 六棒株式会社の特徴~
・一般仲介物件の仲介手数料は20%~30%OFFにてご案内中です!
・リノベーションマンションについてはほぼ全て仲介手数料無料です!
・住宅ローンに自信あります!
・頭金10万円より購入できます。是非ご相談下さい!
・お部屋のご見学は車で2~3件まとめて案内します!
・物件数3000件以上、新築戸建、リノベ物件も多数ご用意しております!
過去に販売していたお部屋の概要 このお部屋の販売は終了いたしました。
| 価格 | -万円 |
| 面積 | 58.04㎡ |
| 間取り | 2bedrooms(2LDK) |
| 管理費 | 月額:14,000円 修繕積立金:月額20,200円 |
| 所在階 | 10階 |
| お問い合わせ・ご内見のご予約はこちらからお気軽にどうぞ | |
奥まで進んだ角が今回ご紹介するお部屋です。
間取りのご紹介です。2LDK、専有面積は58.04㎡。
10階、南・東角部屋。陽当たり・通風・眺望ともに良好です
室内はリノベーション済み。
【リノベーション内容】
■給湯器交換
■システムキッチン交換、ユニットバス交換
■洗面台交換、トイレ交換
■全室クロス張替、全フローリング張替、全建具交換、フロアタイル張替
■下足入れ交換
■洗濯水栓器具交換、防水パン交換
■ダウンライト設置、照明器具設置
■インターフォン交換、エコカラット設置、玄関人感センサー設置、ハウスクリーニング
■アフターサービス保証付き
ダークブラウンの建具で落ち着いた雰囲気の玄関です(^◇^)
廊下が短い分お部屋に広さが取れています♪
左手には、大きなトールサイズのシューズボックスがあります。
棚は可変式で高さを調整できる上、取り外して洗うこともできてとっても清潔です。
扉の前には姿見が付いていますので、お出かけ前の最終checkもこれでOK
トイレ、洗面台、浴室、洗濯機置き場がまとまった使い勝手が良さそうな水廻りです。
洗面台は三面鏡の裏も収納になっており、ご覧の通りの大容量です(^◇^)
しかも、蛇口はホースになっていますので、忙しい朝はココで髪を洗うこともできますよ(^_-)
タンク一体式ですっきりとした印象のトイレです。
もちろんウォシュレット付です(*^。^*)
背面には収納スペースを設けていますので、ボックスに入れてトイレットペーパーや洗剤を収納してみてはいかがでしょうか。
オートバス、浴室乾燥機付の浴室です。
これから来る花粉の季節には、浴室乾燥機で洗濯物を乾かすととっても良いですよ(*^。^*)
お待たせしました!
リビングダイニングのご紹介です。
窓から光が差し込んでいて気持ちが良いですね(*^。^*)
カウンターキッチンからダイニングを見渡せて楽しい食卓になりそうです☆
システムキッチンは収納たっぷりで、しかも食洗機付です!
食洗機は最近我が家でも設置しましたが一度使うと手放せません(^_^;)
こちらがダイニングです。
2面の出窓がとても素敵な雰囲気です(*^。^*)
ダイニングの奥にはソファーを置くスペースがあります、
食後はテレビを見ながらソファーでゆっくり(^_-)-☆
リビングとダイニングスペースがしっかり分かれていて◎
リビングの奥の部屋は南の光が差し込む6帖のお部屋です。
東南の角地で陽当りもバッチリ!寝室として使えば朝日を浴びて気持ちの良い朝を迎えられそうですね(*^。^*)
ワイドなクローゼットも付いていますので、収納に困ることはもうありません!
こちらは隣の洋室で広さは5.8帖、同じく南向きです。
南西向きのため、お昼から午後にかけて温かいお部屋です。
勿論クローゼット付です(*^。^*)
上部にも物を置けるスペースがありますので、使わない物と使う物で分けても良いかも(*^。^*)
南の光が差し込むバルコニーです。
これだけ陽当りが良ければ洗濯物もバッチリですね(^_-)-☆
最後に共用部の駐車場のご案内、都内では珍しい平置きの自走式です(*^。^*)
目黒駅前を見渡す抜群の眺望です。
「目黒グリーンコープ」いかがでしたでしょうか。
ご内見のご希望・ご質問などございましたら、お気軽にお問い合わせくださいませ♪
過去に販売していたお部屋の概要 このお部屋の販売は終了いたしました。
| 価格 | -万円 |
| 面積 | 57.20㎡ |
| 間取り | 2bedrooms(2LDK) |
| 管理費 | 月額:14,000円 修繕積立金:月額20,300円 |
| 所在階 | 3階 |
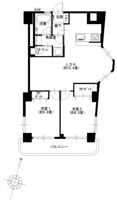
間取りのご紹介です。2LDK、専有面積は57.20㎡。
角部屋につき陽当たり良好
お部屋に合わせた家具もついてきます。
白基調の明るい玄関ホール。人感センサーがついているので人の気配に合わせて自動で照明が消灯します。消し忘れもなく経済的。暗い時間の帰宅時もスイッチを探す手間が省けます。インターホンは事前に来訪者の顔が確認できるTVモニターがついています。
玄関横に設置されたシューズBOXはたっぷり仕舞えるトールサイズ。棚の高さは変えられるので長靴やブーツなど背の高い履物もお仕舞いただけます。
玄関をあがると廊下。右側の壁面には縦長の鏡が設置されています。お出かけ前の身だしなみチェックもサッとできて便利ですね♪鏡のまわりには調湿・消臭効果のあるエコカラットが使われています。
廊下の正面と左側は洗面室とLDKの扉が並んでいます。
洗面室。洗濯機置場、トイレ、洗面化粧台、バスルームとと水回りの設備が1カ所にまとまっています。お掃除もまとめてこなしやすそうです♪
洗面室を入ってすぐ正面は洗濯機置場。
洗面化粧台は鏡の裏、引き出しと収納スペースが豊富。蛇口はひっぱるとシャワーになるので、お掃除や花瓶の水入れもラクにおこなえます。
トイレはウォシュレット付き。壁面には可動棚のついた収納スペースがつくられています。
バスルームは追い焚き、浴室換気乾燥機能付き。
窓があるので自然換気ができるのもうれしいですね。
いつもカラリと乾いた状態にしておけばカビの発生もグンと減るはず・・・!
つづいてLDKへ。
LDKは約15.8帖の明るい横長空間。窓は東向きです。
家具が置いてあるので実際の生活イメージもわきやすいのではないでしょうか?
エアコン設置済みなので引っ越したその日から快適にお過ごしいただけます。
リビング内には縦長の収納スペースも設けられています。フローリングワイパーを入れておくのによさそうな感じです。
リビングの窓からの眺望。開放感がありますが、眼下が工事中なのが気になるところです・・・。
こちらはリビングスペース。壁面には玄関と同じく空気を快適に保つ効果のあるエコカラットが使われています。
キッチンはリビングにいる家族と会話を楽しみながらお料理ができる対面式。上には明かりの方向を調節できるスポットライトが設置されてます。
キッチンスペース。床はフローリングではなく、ツルリとしたタイルになっているので汚れも落としやすそうです。
水栓は浄水機能付き、コンロはお料理のはかどる3口ガスコンロです。
2部屋ある洋室へはLDK内から行けるようになっており、2部屋の扉は並んでいます。
こちらの洋室は約4.6帖。南・東の2面に窓のある明るいお部屋です。
幅広のクローゼットも設置されています。
もう1部屋の洋室は約6.0帖。こちらは南・西の2面に窓があります。
クローゼットにくわえ、壁面にはピクチャーレールが設置されています。
思い出の写真やお子様が書いた絵なども手軽に飾っておけますね♪
最後に洋室2部屋に面しているバルコニーに出てみます。
南向き、広さは約7.26㎡。
サンサンと降りそそぐ陽ざしでお洗濯物も気持よく乾かせます。
眺望。周囲にマンションや住宅が立ち並ぶ風景です。
目黒グリーンコープ、いかがでしたでしょうか?
ご内見のご希望・ご質問などございましたら、お気軽にお問い合わせくださいませ♪







































































































































































































































弊社 公式HP
六棒総合研究所
掲載予定物件
価格変更と販売終了物件
ハザードマップ検索
適合証明書.jp
Facebook
Twitter
Instagram