・
□□□□□□□□□□□□□□□□□□□□□□□□□□□□□□□□□□□□□□□
いつも弊社ホームページをご覧頂き誠にありがとうございます。
目黒が丘マンションはお陰様で販売を終了致しました。弊社問合せフォームにてご要望頂けましたら、当お部屋でキャンセル等が発生した場合、他のお部屋が販売になりました際にご紹介させて頂きます。
不動産Agent 六棒株式会社
TEL:03‐5413‐5336
□□□□□□□□□□□□□□□□□□□□□□□□□□□□□□□□□□□□□□□
・
本日ご紹介のマンション【目黒が丘マンション】は
交通の便が非常によく、人気の「目黒」駅から徒歩8分!
それではマンションご案内していきたいと思いますっ♬
興味を持って頂けたり、実際に見てみたい…と思って頂いた場合にはぜひぜひ
お気軽に、お電話またはこちらのフォーマットよりお問合せくださいませ!!
●アクセス●
JR山手線・東急目黒線・都営三田線・東京メトロ南北線「目黒」駅 徒歩5分
目黒駅にはアトレが2棟あり、大抵のお買い物はここで済んでしまいそう!
スーパーも2種類入っています
雨の日でも全く傘を差さずにお買い物ができるって本当に便利!
駅だけでも十分満足できてしまいそうなのですがせっかくなので、目黒駅周辺を歩いてみましょう!
駅周辺には流行の最先端のオシャレなお店から、昭和を感じるどこか温かい気持ちになれそうなお店、そして多国籍?グローバルな雰囲気なお店と、様々な飲食店やショップが集まっています。
お買い物やご飯を食べる場所の選択肢が多すぎて悩んじいそうですね!?
ぜひぜひ散策して、お気に入りのお店をみつけたいところです。
そして目黒と言えば、皆さんご存知、雅叙園!
説明するまでもないですね!!
きらびやか&厳かな雰囲気が漂います!
近所にあったら日常使いするかというと、しなそうですが!
たまには贅沢して雅叙園でランチ!なーんてオシャレもいいですね( ´∀`)b
そして他にもっ目黒と言えば目黒川!!
川沿いはお散歩やジョギングコースにもぴったり!
休日や帰宅後も充実しそうです♪
そして川沿いには目黒区民センターも!!
ここには、プールやジム、テニスコート、図書館などがありますよ~!
お隣には美術館も!!
撮影日はなかなか暑い日だったのでプールを横目に、いいなぁと!!
プール開きはまだみたいでしたけどね!
屋内プール、屋外プール、子供用プールとあってお値段はなんと400円!!破格です!!
お休みの日はぜひぜひ活用したい施設ですね!!
目黒界隈は緑や公園もとっても多い!
お子様がいらっしゃるご家庭にもおすすめできる、
子育てもしやすいエリアではないでしょうかっ♬
さて、目黒駅周辺をぶらっぶらしてみましたがっ
そろそろマンションのご紹介をいたしますね!!
…到着です!!
こちらが、本日ご紹介のマンション【目黒が丘マンション】です。
昭和44年9月築、総戸数32戸のマンション!おしゃれな外観が目をひきます☆
(ちなみに…お隣にちらりと写る青い屋根の秀和目黒レジデンスも別記事にて
ご紹介しておりますのでよろしければご覧くださいね~)
入口がおしゃれ!!
塗り替えなども定期的に行われているのか、真っ白で綺麗なエントランスアーチです!
階段だけでなく、横にはスロープもあるので、ベビーカーや車いす、キャリーバックなどをお持ちの方にも優しい設計です♬
入口左手にあるこれは!!?最近では少し珍しくなってきた公衆電話Σ(・□・;)!
私自身が小学生だったころにはスマホ・携帯という概念がなく、出先から頑張って公衆電話をさがして自宅に電話をかけた記憶が!
さて!エントランスに入っていってみましょう♬
エントランス前もとってもおしゃれー!!
照明がついた時もまた見てみたいですね!!
ドアを開けると、明るいエントランスが広がります。
こちら、夜間(21時-4時)はオートロックがかかるとのことなので、防犯面も安心できますね!!
管理形態は自主管理。
清掃については一部委託管理をしているとのこと。
では、こちらのエレベーターでお部屋のフロアまでのぼっていきましょう~♪
今回ご紹介するのは4階、専有面積50.82㎡の2LDK。おひとり暮らしからスモールファミリーの方まで幅広くお使いいただけるお部屋です。
間取り図はコチラ ↓ ↓ ↓
※間取り図は別タブで開きますので、確認しながらご覧いただくことができます。
それでは早速行ってみましょう!
【玄関廊下】
ドア横にはモニター付きインターホン。お部屋から玄関前の様子を映像で確認することができるので、わざわざ玄関まで来る必要がなく、ちょっと手が離せない時などにはとても重宝します。
【玄関廊下】
玄関から続く廊下はナチュラルな木目と白を使った落ち着いた印象。途中で折れ曲がっているため戸口から室内の様子が見えづらくなっています。昨今は宅配便やフードデリバリーなどを使う機会が増えているので、このような造りは有難いですよね。
【玄関廊下】
シューズボックスには、お出かけ前の身だしなみチェックに便利な姿見や足元を明るく照らすフットライトが付いています。玄関の照明は人感センサー付きなので、帰ってきて暗い中手探りでスイッチを探すなんてこともありません。いつでも明るい玄関が迎えてくれるのは嬉しいものです。
【玄関廊下】
二つ並んだ扉はシューズボックスと収納棚。入れるものによって棚の高さが変えられるので、効率的に収納ができそうです。
最初は廊下の突き当りのお部屋へ・・・
【LDK】
こちらは約12.8帖のリビング・ダイニング・キッチン。南東向きのバルコニーに面したお部屋です。天井や梁部分にまで木目を使用したナチュラルなベースながら、黒のキッチンがアクセントになってグッとシックでモダンな印象になっています。
【LDK】
建具に入った型ガラスがいい味出してますね♬
【LDK】
縦長の形に入口からバルコニーに向かってキッチン、ダイニング、リビングと並べるオーソドックスなタイプ。家具のレイアウトに悩むことはなさそうです。
【LDK】
☑大容量リビング収納付き
【キッチン】
キッチンは開放的なカウンタータイプ。お料理中でもスムースなコミュニケーションが可能です。夕食の準備をしながらお子様の話しに耳を傾けたり、友人をおもてなししながら会話に加わったり・・・そんな楽しそうな風景が目に浮かぶキッチンです。
【キッチン】
収納は出し入れのしやすいスライドキャビネット。ぎっしり詰めても中身のチェックがしやすいのも嬉しいですよね。食器洗浄乾燥機が付いているので、洗い物はお任せして食後はのんびり過ごしましょう! コンロは3口、グリル付き。
【キッチン】
調理台と揃いのカップボード付き。作業スペースに、調理家電置場に、収納にと活躍してくれそうです。
洋室1へ・・・
【洋室1】
こちらは約3.8帖の洋室1。キッチン横にあるお部屋です。多少コンパクトですが、柱などの出っ張りが無かったり、入口に扉の開け閉めに場所を取らない引き戸を使用するなど、広く使える工夫がされています。
【洋室1】
窓はありませんが、扉にガラスが入っていてLDKからの光が入ってくるようになっています。外からの光も音も入ってこないので、暗く静かな所で眠りたい方ならベッドルームにいいですね。大きな姿見付クローゼットも付いています。
【洋室1】
寝室として使わないなら引き込み式の扉を開放して使うのもアリかと、、、
洋室2へ・・・
【洋室2】
こちらは約4.5帖の洋室2。LDKと同じバルコニーに面したお部屋です。大きな窓があって
明るいのですが、壁の一面をダークグレーにすることでかなりシックな印象になっていますね。
【洋室2】
隣の洋室と同じ全身鏡付きクローゼット◎
廊下に戻って、洗面室へ・・・
洗面室には洗面化粧台の他に洗濯機スペース、浴室、リネン棚がまとまっていて脱衣室も兼ねています。
【洗面室】
洗面化粧台は身だしなみを整えるのに便利な三面鏡付き。鏡裏がキャビネットになっているので、洗面周りに散らかりがちな細々したものもスッキリと片付けることができますよ。
【洗面室】
洗濯機スペースには吊り戸棚が付いているので、洗濯洗剤などのランドリー用品はこちらへどうぞ。使うところに置いておけるって本当に便利ですよね。
【浴室】
ダークブラウンのアクセントパネルを使用した高級感のある雰囲気。リッチな気分のバスタイムで一日の疲れも洗い流せそうです♬
【浴室】
追い焚き機能が付いているのでお風呂の準備もボタンひとつ!浴室換気乾燥機は浴室の換気だけでなく、お洗濯物乾燥や浴室暖房など様々な使い方が出来ます。「涼風」なんてボタンもありますので暑い季節にも活躍してくれそうですね。残念ながら冷房機能はありませんが火照った顔を程よくクールダウンしてくれますよ。
トイレへ・・・
【トイレ】
手洗いカウンターが付いたゆったりとしたトイレです。
【トイレ】
トイレはINAX製洗浄機能一体型タンクレス。小さいですが、手洗いの下は収納になっています。
【バルコニー】
広さ5.35㎡、南東向き。ご覧の通り陽当たりの良いバルコニーです。
住宅街と青空が広がるのびやかな眺望が楽しめます♬
・
以上で目黒が丘マンションのご案内を終わります。
いかがでしたでしょうか??
目黒駅から徒歩8分のマンションです。
リノベーション済みという事で室内はとてもキレイですよ (っ・ω・)っ
内見のご予約やご質問などございましたらお気軽にお問い合わせくださいませ。
ご連絡お待ちしております。
弊社、不動産Agent 六棒株式会社では、
□リノベーションマンションはほぼ全て仲介手数料無料!
□その他一般仲介物件は仲介手数料20%~30%OFF!
にてお取り扱いしております!※弊社の「Agent Fee=仲介手数料」についてはご案内、ご面談の際に営業担当者よりご説明いたします!
なるべく沢山のお部屋をホームページに掲載したいと思っておりますが、時間的成約もございますので、残念ながらご紹介できるお部屋の一部しか掲載できておりません。
このホームページに掲載中のお部屋、その他サイト等で気になるお部屋、街を歩いていて気になったマンション等々ございましたら是非、弊社営業部までご相談ください!
~不動産Agent 六棒株式会社の特徴~
・一般仲介物件の仲介手数料は20%~30%OFFにてご案内中です!
・リノベーションマンションについてはほぼ全て仲介手数料無料です!
・住宅ローンに自信あります!
・頭金10万円より購入できます。是非ご相談下さい!
・お部屋のご見学は車で2~3件まとめて案内します!
・物件数3000件以上、新築戸建、リノベ物件も多数ご用意しております!
過去に販売していたお部屋の概要 こちらのお部屋の販売は終了いたしました
| 価格 | -万円 |
| 面積 | 58.85㎡ |
| 間取り | 2bedrooms(2LDK) |
| 管理費 | 月額14,020円 修繕積立金:月額19,630円 |
| 所在階 | 1階 |
| お問い合わせ・ご内見のご予約はこちらからお気軽にどうぞ | |
ここで間取り図のご紹介です。
※間取り図は別タブで開きますので、間取り図と記事や写真を照らし合わせながらご覧いただくことができます。
お部屋は1階、専有面積58.85㎡、間取りは2LDK。シングルからファミリーまで幅広くお使いいただけるお部屋です。
では、早速行ってみましょう!
扉を開けると白を基調とした明るい玄関がお出迎えしてくれます。
玄関が広いと来訪者の応対にも余裕がありますね!

トールタイプのシューズボックスはフットライト付き。
天井ギリギリまでありますね!たくさん靴がはいりそうです。
振り返ると真っ直ぐ伸びた玄関廊下
いまどきな幅広のフローリングは今回のリノベーションで新規張替をしています。
フローリングを変えるだけでお部屋の雰囲気がガラリと変わりますよね~!
写真を見て左手の手前が水周り、奥の開き戸が洋室になります。
また、洋室の目の前にはクローゼットがふたつ備え付けられています。
広いので、ライフスタイルに合わせて使うことができます♪

ではでは~!廊下突き当りのリビングへ!!
廊下からこぼれる光で陽当りの良さがうかがえます。
南西向きの大きな窓がある暖かなリビングは約12.8帖あります。

リビングダイニングは、洋室約4.2帖隣接しています。
仕切りは吊り下げタイプなので床にレールもないため、開放するとフラットに広く室内を使うことが出来てとってもおすすめです☆
エアコンも一基新規設置しています。

レースカーテンを開けるとお部屋の雰囲気がまらがらっと変わります!
1階でこの陽当りは満足ですね~

また、リビングの隣の洋室は引きとを閉じて個室としても使うことができます。
角部屋のため、二面採光になっていますよ。
クローゼットも棚とハンガーラックで分かれていて収納しやすそうですね。

ではリビングに戻りキッチンを見ていきましょう♪
LIXIL製システムキッチンです。
トップは人造大理石のため拭き掃除が簡単ですね。
食洗器付きで家事も時短できちゃいます!
今回リノベーション工事で併せて給湯器も新規交換しております。

リビングを後にして玄関廊下へ戻ります・・
主寝室になる洋室を見ていきましょう!
約5.5帖の洋室です。開口部は南西向き。
こちらのお部屋にもクローゼットがありますね。

続いて玄関側のトイレへいってみましょう。
吊戸棚のあるTOTO製洗浄便座付きトイレ。棚があるので床に物を置かずスッキリ使えます♪

身だしなみを整えるのに便利な三面鏡付きのPanasonic製洗面化粧台。
鏡裏も下部にも収納があるので洗面まわりも物が溢れる心配がないですね!

浴室は落ち着いたブラウンの木目調パネルが一面に浴室乾燥機や追い炊き機能が完備されています。こちらもTOTO製で今回のリノベーションで新規交換しています。新品ピカピカ一番風呂が楽しみですね~☆彡

最後にテラスのご紹介です。
リビングから出れますよー!ウッドデッキになっています
南西向きでお日様が適度に気持ちいいです☀

眺望ですが、垣根でプライバシーが守れています◎
また、高台の1階のため歩行者の目線も気になりません
以上で目黒が丘マンションのご案内を終わります。
いかがでしたでしょうか??
目黒駅から徒歩7分のマンションです。
リノベーション済みという事で室内はとてもキレイですよ (っ・ω・)っ
┏━━令和3年3月 室内新規リノベーション完了━━━━━━┓
■フローリング新規張替
■給水管・給湯管新規交換(専有部)
■建具・玄関収納新規交換
■壁・天井クロス新規張替
■給湯器新規交換
■照明器具新規設置
■エアコン一基新規設置
■Panasonic製洗面化粧台新規交換
■TOTO製洗浄便座付きトイレ新規交換
■TOTO製追焚機能付ユニットバス新規交換(浴室乾燥機付)
■LIXIL製システムキッチン新規交換(人造大理石トップ)
■TVモニタ付インターホン新規交換
┗━━━━━━━━━━━━━━━━━━━━━━━━━━━━━━━━━━━━━━━━━━━┛
内見のご予約やご質問などございましたらお気軽にお問い合わせくださいませ。
ご連絡お待ちしております。
弊社、不動産Agent 六棒株式会社では、
□リノベーションマンションはほぼ全て仲介手数料無料!
□その他一般仲介物件は仲介手数料20%~30%OFF!
にてお取り扱いしております!※弊社の「Agent Fee=仲介手数料」についてはご案内、ご面談の際に営業担当者よりご説明いたします!
なるべく沢山のお部屋をホームページに掲載したいと思っておりますが、時間的成約もございますので、残念ながらご紹介できるお部屋の一部しか掲載できておりません。
このホームページに掲載中のお部屋、その他サイト等で気になるお部屋、街を歩いていて気になったマンション等々ございましたら是非、弊社営業部までご相談ください!
~不動産Agent 六棒株式会社の特徴~
・一般仲介物件の仲介手数料は20%~30%OFFにてご案内中です!
・リノベーションマンションについてはほぼ全て仲介手数料無料です!
・住宅ローンに自信あります!
・頭金10万円より購入できます。是非ご相談下さい!
・お部屋のご見学は車で2~3件まとめて案内します!
・物件数3000件以上、新築戸建、リノベ物件も多数ご用意しております!
過去に販売していたお部屋の概要 このお部屋の販売は終了いたしました。
| 価格 | -万円 |
| 面積 | 90.41㎡ |
| 間取り | 3bedrooms(3LDK) |
| 管理費 | 月額17,680円 修繕積立金:月額35,360円 |
| 所在階 | 4階 |
| お問い合わせ・ご内見のご予約はこちらからお気軽にどうぞ | |
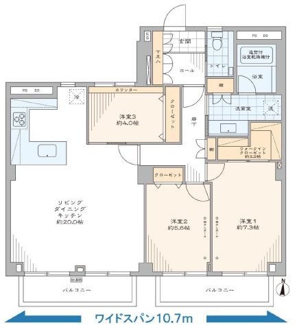
ここで、今回ご紹介させて頂くお部屋の間取りのご紹介をっっ
3LDK、90.41㎡の4階。
陽当りの良さと、ご家族の団欒の場にぴったりな広々リビングが魅力的!!
ファミリーにもぜひぜひおススメできる物件です♬
↓ ↓
クリックすると別タブで開くことも可能です。
ぜひ間取り図とお部屋比較しながら見ていただければと思います!
エレベーターを降りるとお部屋までは外廊下が続いています。
風の強い日は少しあおられるかもれませんが、臭いや湿気が籠らないので、個人的にはオススメです。
ホテルのような内廊下も魅力的ではあるのですが、やっぱり自然の空気が入ってくるのが一番ですよ!!
では、お部屋の前まで進みましょう!!
玄関前にはモニター付きのインターフォンが付いています。
お部屋の中から廊下の様子を確認することができるので、防犯的にも安心できます。
チャイムが鳴ったらすぐにドアを開けるのではなく、まずは廊下の様子を確認しましょうね!!
おじゃましまーす!!!
玄関右手にはかなり大きなシューズボックスが付いています。
中の棚は高さの調節をすることが出来るので、ブーツ等の背の高い履物でも収納することが出来ますよ!!
中央には傘縦もあるので、散らかりがちな傘もスッキリ収納できます。
それでは先に進んで行きましょう!
玄関ホールと廊下の間にはガラスがはめ込まれた扉が付いています。
先ずは一番奥まで進んでみましょう!!
こちらは!?
リビング・ダイニング・キッチンです!!
広さは約20.0帖!!バルコニーに面した南向きの窓からは明るい光が差し込んできます!
約20帖もあると、置くことのできる家具の幅も広がりますね!!
せっかくきれいにリノベーションがされているので、ソファー等もこだわりの逸品を置きたいところです!!
照明は埋め込み式のダウンライトが使用されています。
余計な凹凸が無いので、なんだか全体がスッキリして見えますね!!
つづいてキッチンのご紹介です。
コの字型のオープンキッチンは最小限の動線でお料理を作る事が出来ます。
オープンキッチンなので、お料理中でもリビングにいいるご家族とコミュニケーションをとることが出来ます。
強いてデメリットを上げるとすれば、来客時などにキッチンがリビングから丸見えになってしまうという事ですが・・・ 綺麗に使っていれば心配ないので、常に整頓されたキッチンを保っておきましょう!!
浄水機能付きの水栓はシャワーヘッドになっています。
大きなシンクの隅々まで水を流すことが出来るので、洗い物やお掃除も捗りますよ!!
グースネックと呼ばれるU字の水栓は、キッチンにもオシャレを取り入れたい!という方には人気のタイプです。
根元に水が滴り落ちにくいのでお手入れも楽ちんです。
食器洗浄機もついています。
お食事後はお皿を水でサッと流して、後は綺麗に並べてスイッチオン!!
寝ている間に乾燥まで終わっているので、翌朝は食器洗浄機のお皿をすぐにつかうことが出来ますよ!!
コの字型のキッチンなので、作業・収納スペースが盛りだくさん!!
わざわざ説明するまでもないでしょう!!
一般的なキッチンの2倍近い容量があるので、わざわざ食器棚を置く必要も無いかもしれませんね!
では、一度廊下に戻り・・・
廊下の途中に棚を発見しました!!
全てのお部屋の中央に位置しているので、掃除用具などを入れておく事に適していそうです。
棚の高さは自由に調整することが出来るので、掃除機等の背の高いグッズも入れておく事ができますよ!
このまま玄関までもどってしまいましょう!!
玄関ホールにある扉を開けると・・・
こちらはトイレでした!!
タンクレスタイプのウォシュレット付きトイレです。
タンクが無いので限られたスペースでも広々とした空間に感じますね!!サイドには棚が付いています。個人的にはこの棚を漫画と雑誌で埋め尽くしたいところですが・・・・
場所の使い方は人それぞれですので、是非工夫を凝らした使い方をしていただきたいですね!!
玄関から2つ目のドアを開けると・・・
洗面室でーーす!!
大きなミラーの三面鏡が付いた洗面化粧台が付いていました。
お化粧時には顔を左右からも見ることが出来るので、毎朝のお化粧も時間短縮ですね!!
ミラー内部はキャビネットになっているので、基礎化粧品や歯ブラシなどのサニタリー用品などはこちらに収納しておきましょう!
洗面台の正面にはリネン庫として使うことが出来そうな棚もありました。
洗面室は脱衣所も兼ねているので、こちらにはタオルや着替えなどのストックを入れておきたいです。
つづいて、お風呂です!
浴室には換気乾燥機能が付いています。
入浴後の湿気を取り除いておく事で、カビの派生を抑えることが出来ます。
暖房機能もあるので、冬場は入浴前に浴室を温めておけばヒートショックも防ぐ効果がありますよ!!。
落ち着いた木目調の壁に囲まれていると何だかリラックスできますね!!
横に長いミラーには空間を広く見せてくれる効果があるので、実際のサイズ以上に浴室に余裕を感じることが出来ます。
追い焚き機能があれば、24時間熱いお風呂に入ることができます。
お風呂好きな方なら、休日は朝昼晩とお風呂を楽しむことが出来そうです。
タップリのお湯に肩まで浸かれば一日の疲れも洗い流せそうですね!!
お風呂をあとにして、次に進みましょう!!
お次のドアは・・・
玄関の突当りに位置しているドアです。
2つドアがあるので、左側から見ていきましょう!!
大きな窓から光が差し込んでくるこちらの洋室は約7.3帖の広さ。
今回の物件は3つの洋室があるのですが、こちらが一番大きなお部屋になっています。
ご夫婦の主寝室で良さそうですね!!
それ以外の使い道は・・・・ ミニ四駆を走らせる位しか思いつきません!!
窓際には「ホスクリーン」という商品名で業界ではお馴染みの「物干し竿掛け」が付いていました!!
邪魔に感じるようであればワンタッチで外すこともできるので、ご安心ください!
コチラのお部屋には約2.2帖ものウォークインクローゼットが付いていました!!
下手したらここに住めちゃいそうな広さです。
そういえば最近テレビで2帖の賃貸物件の特集をしていましたね・・・・
つまり何とか住めます!!
続いてのお部屋はすぐお隣です。
がちゃりんこ!!
先ほどのお部屋と同じく、南側からの光で明るいお部屋です。
広さは約5.6帖。
ダウンライトはレール上を自由に動かすことが出来るので、お好きな明かりづくりをすることもできますよ!!
もちろんクローゼットもございます!
ハンガーパイプが付いているので、大量のお洋服を掛けておく事ができますよ!!
室内に余計な家具を置く必要もなくなるので、空間を広く使うことができますね!!
窓に近づいてみましょう!!
なんと!!
バルコニーへ出ることができまぁす!!
2部屋にまたがるワイドなバルコニーです。
真南向きなので陽当たりもバッチリですね!!
マンション前の道路は車の通りが少ないので、静かな雰囲気が漂っています。
目の前がひらけ、眺望も素晴らしいです!!
南向きのバルコニーは2つある物件なので続きは後ほどご覧いただきましょう!!
では、
一度リビングの方に戻って・・・
キッチンの横のドアを開けてみましょう!!
こちらは4.0帖の広さの洋室。
3つある洋室の中で一番小さなお部屋です。
寝室や書斎、子供部屋、倉庫、などなど、かなり使い勝手のいいお部屋なのでは無いでしょうか??
窓は共用廊下に面していますが、金属製の格子が付いているので、防犯面での心配は無用そうです。
コチラのお部屋も照明はレール上を動かすことが出来ますよ!!
レールに取り付ける照明はいろんなタイプのモノが売っていますので、照明にこだわってみるのも面白いかもしれません。
もちろんクローゼット付です。
お部屋の規模の割には大容量のクローゼットですね!
寝室にしないのであれば、使用しない季節もののコート等、衣替え専用のクローゼットにしてしまっても良いかもしれません。
では、最後に最後のバルコニーをご紹介させていただきます!
リビングから出るのですよ!!
おおお!!
先ほどのお部屋のバルコニーと同じですが、真南向きのバルコニー!!
陽当たりももちろん最高です。
洗濯物もあっという間に乾いてくれそうですね!!
眺望も文句なしです!!
もはや、写真を見て頂ければすべてが伝わるかと思います!!
では以上で【目黒が丘マンション】の紹介を終わります。
いかがでしたでしょうか?
他にも詳細が知りたい!!実際に見学をしたい!!などありましたら
仲介手数料最大無料の当社
お電話ください(^-^*)/
TEL 03-5413-5336
お気軽にお問い合わせください。
スタッフ一同お待ちしております。
弊社、不動産Agent 六棒株式会社では、
□リノベーションマンションはほぼ全て仲介手数料無料!
□その他一般仲介物件は仲介手数料20%~30%OFF!
にてお取り扱いしております!※弊社の「Agent Fee=仲介手数料」についてはご案内、ご面談の際に営業担当者よりご説明いたします!
なるべく沢山のお部屋をホームページに掲載したいと思っておりますが、時間的成約もございますので、残念ながらご紹介できるお部屋の一部しか掲載できておりません。
このホームページに掲載中のお部屋、その他サイト等で気になるお部屋、街を歩いていて気になったマンション等々ございましたら是非、弊社営業部までご相談ください!
~不動産Agent 六棒株式会社の特徴~
・一般仲介物件の仲介手数料は20%~30%OFFにてご案内中です!
・リノベーションマンションについてはほぼ全て仲介手数料無料です!
・住宅ローンに自信あります!
・頭金10万円より購入できます。是非ご相談下さい!
・お部屋のご見学は車で2~3件まとめて案内します!
・物件数3000件以上、新築戸建、リノベ物件も多数ご用意しております!













































































































































弊社 公式HP
六棒総合研究所
掲載予定物件
価格変更と販売終了物件
ハザードマップ検索
適合証明書.jp
Facebook
Twitter
Instagram