・
□□□□□□□□□□□□□□□□□□□□□□□□□□□□□□□□□□□□□□□
いつも弊社ホームページをご覧頂き誠にありがとうございます。
チサンマンション三軒茶屋第2はお陰様で販売を終了致しました。弊社問合せフォームにてご要望頂けましたら、当お部屋でキャンセル等が発生した場合、他のお部屋が販売になりました際にご紹介させて頂きます。
不動産Agent 六棒株式会社
TEL:03‐5413‐5336
□□□□□□□□□□□□□□□□□□□□□□□□□□□□□□□□□□□□□□□
・

人気の三軒茶屋エリアより『チサンマンション三軒茶屋第2』をご紹介します!
東急世田谷線・田園都市線【三軒茶屋】駅徒歩7分
東急世田谷線【四太子堂】駅徒歩10分
ご紹介するチサンマンション三軒茶屋第2は三軒茶屋駅より徒歩7分。
世田谷線の西太子堂駅が徒歩10分と交通便利なマンションです!
田園都市線は半蔵門線と直通運転を行っているため、永田町・九段下・大手町など都心の主要オフィス街へも1本で行けたりします♪
商店街にアーケード、飲み屋に飲食店が密集した細い路地など、三軒茶屋駅周辺はゴチャゴチャしていますが、どこかのんびりとした空気も漂っています。お買い物スポットはもちろん、グルメも充実。


路地をお散歩してみても楽しいですよ♪
色々なジャンルの飲食店があるのでお気に入りのお店を探し出しちゃいましょう!

マンション近くには幼稚園や公園があり駅近くのゴチャゴチャした街並みとは少し変わって閑静です。

玉川通り沿いに面したこちらのマンションが【チサンマンション三軒茶屋第2】です。
昭和60年築、12階建て、総世帯数85戸。

オートロックは付いていませんが管理人さんが見張りをしてくれています!
エントランスは広々としています。掲示版がエレベーター前にあるので習慣的にチェックできます!

それではエレベーターからお部屋へ向かって行きましょう♪
今回ご紹介するお部屋は3階、専有面積36.60㎡の1LDK。おひとり暮らしの方にお勧めのお部屋です。
間取り図はコチラ ↓ ↓ ↓
※間取り図は別タブで開きますので、確認しながらご覧いただくことができます。
【玄関廊下】
玄関ドア横にはモニター付きインターホン。室内から玄関前の様子を確認することができるのでわざわざ玄関まで来る必要がありません。ドア一枚挟んで話すのってチョット怖いですよね。それでは、お邪魔しま~す♪
玄関は幅が広くゆったりとした印象。正面にはLDKとの仕切りにガラスドアが使用されていて抜け感がありおしゃれな雰囲気です。帰ってくるのが楽しみになりそうですね♬
【玄関廊下】
扉に姿見の付いたシューズボックスは収納力のあるトールタイプ☆彡 棚の高さを変えられるのでブーツやヒールなどの高さのある靴でも綺麗に収めることができますよ。
【玄関廊下】
玄関の照明は人感センサー付き。自動でライトのON・OFFをしてくれるので両手が塞がっていても大丈夫、暗い中手探りでスイッチを探す必要もありません。いつでも明るい玄関が迎えてくれるのって嬉しいですよね。
それではお部屋へ・・・
素通しだとちょっとワクワク感がありませんね^^;
【LDK】
こちらはリビング・ダイニング・キッチン。奥行きを感じる縦長の間取りで、住まいに広がりをもたらしてくれます。
【LDK】
天井にも木目を使用していますが、アクセントや家具の影響で全体としてはモダンな印象です。ちなみに置かれた家具はディスプレイ用なので付いては来ませんが、色やサイズ、質感などの参考にさせてもらいましょう!
【LDK】
食事をする場所とくつろぐ場所が分かれているってやっぱり落ち着きますよね。寝室との仕切りになっている壁には、リビング側にテレビを置けるスペースが確保されていて空間を無駄なく使えるのが嬉しいポイント♬
【LDK】
たっぷり収納できるウォークインクローゼット付き。洋服以外にも、スーツケースやシーズンオフの家電などの、かさばるものを入れておくのにも良さそうですね。
【LDK】
電気の調光機能があるのでくつろぎたいときや映画を見るときなどに便利です✨
キッチンは壁付けタイプ。場所をとらずにお部屋を広く使えるのが特徴です。ただし、玄関からも丸見えになるのでなるべくキレイにしておきましょう。
【キッチン】
収納は出し入れのしやすいスライドキャビネット。ぎっしり詰めても中身のチェックがしやすいのも嬉しいですね。上には吊戸棚も付いています。
【キッチン】
コンロは3口、グリルも付いています。グリルって魚イメージが強いと思いますが、他の料理にもいろいろと使えるらしいですよ。ご興味のある方は是非調べてみて下さい。水栓は浄水機能一体型。
次はいよいよ寝室へ・・・
【寝室】
寝室はまるで隠れ家のような雰囲気で落ち着いて過ごせそうです。なんだか特別感があっていいですよね☆彡
【寝室】
☑2か所に棚あり
【寝室】
寝室に電気調節機能◎ リラックス効果UP!で睡眠の質も上がりそうです。
洗面室へ・・・
【洗面室】
洗面室には洗面化粧台の他に洗濯機スペースと浴室がまとまっていて脱衣室も兼ねています。洗面化粧台は無駄のないミニマルスタイル。simple is the bestですね。
【洗面室】
洗面化粧台には身だしなみを整えるのに便利な三面鏡が付いています。裏がキャビネットになっているので、洗面周りに散らかりがちな細々したものもスッキリと片付けることができますよ。ランドリー用品は洗濯機スペース上の吊り棚へどうぞ。
【浴室】
浴室はグレーのストーン調パネルでスタイリッシュな印象。明日への活力が湧いてきそうです。追い焚き機能が付いているのでお風呂の準備もボタンひとつ!保温もしてくれるので長風呂派の方でも安心です。
【浴室】
浴室換気乾燥機は浴室の換気だけでなく、お洗濯物乾燥や浴室暖房など様々な使い方が出来ます。「涼風」なんてボタンもありますので暑い季節にも活躍してくれそうですね。残念ながら冷房機能はありませんが火照った顔を程よくクールダウンしてくれますよ。
次はトイレへ・・・
段差があるので足元にお気を付けください!
【トイレ】
【トイレ】
トイレはTOTO製の温水洗浄機能一体型。トイレットペーパーなどの収納に便利な吊り戸棚も付いています。
バルコニーへ・・・
出入りする扉は二重扉になっているので防音性や遮熱性も高めです♪
【バルコニー】
広さ4.02㎡、南東向き。奥行きがまあまああるので、数字よりは広く感じるバルコニーです。
【バルコニー】
車の行き交う様子が見える眺めは、街の活気やにぎわいを感じさせてくれます。3階で街路樹が近いのもいいですね(^▽^)/
・
以上でチサンマンション三軒茶屋第2のご案内を終わります。
いかがでしたでしょうか??
三軒茶屋駅から徒歩7分のマンションです。
リノベーション済みという事で室内はとてもキレイですよ (っ・ω・)っ
内見のご予約やご質問などございましたらお気軽にお問い合わせくださいませ。
ご連絡お待ちしております。
弊社、不動産Agent 六棒株式会社では、
□リノベーションマンションはほぼ全て仲介手数料無料!
□その他一般仲介物件は仲介手数料20%~30%OFF!
にてお取り扱いしております!※弊社の「Agent Fee=仲介手数料」についてはご案内、ご面談の際に営業担当者よりご説明いたします!
なるべく沢山のお部屋をホームページに掲載したいと思っておりますが、時間的成約もございますので、残念ながらご紹介できるお部屋の一部しか掲載できておりません。
このホームページに掲載中のお部屋、その他サイト等で気になるお部屋、街を歩いていて気になったマンション等々ございましたら是非、弊社営業部までご相談ください!
~不動産Agent 六棒株式会社の特徴~
・一般仲介物件の仲介手数料は20%~30%OFFにてご案内中です!
・リノベーションマンションについてはほぼ全て仲介手数料無料です!
・住宅ローンに自信あります!
・頭金10万円より購入できます。是非ご相談下さい!
・お部屋のご見学は車で2~3件まとめて案内します!
・物件数3000件以上、新築戸建、リノベ物件も多数ご用意しております!
過去に販売していたお部屋の概要 こちらのお部屋の販売は終了いたしました
| 価格 | -万円 |
| 面積 | 56.32㎡ |
| 間取り | 2bedroom(2LDK) |
| 管理費 | 月額13,200円 修繕積立金:月額9,210円 |
| 所在階 | 4階 |
| お問い合わせ・ご内見のご予約はこちらからお気軽にどうぞ | |
ここで間取り図をご紹介いたします。
※間取り図は別タブで開きますので、確認しながらご覧頂くことが出来ます。
今回ご紹介するお部屋は4階、間取りは2LDK、専有面積は56.32㎡。南西角部屋のファミリータイプのお部屋です。では、早速行ってみましょう!
エレベーターで4階まで上がり、内廊下部分を進むとお部屋に到着です。今日のように雨風の強い日でも全然影響がないのがいいですね。
玄関ドア横にはモニター付きインターホンが設置されて、お部屋の中から訪問者を確認する事が出来ます。映像で確認してから応対するかを決められるので、しつこいセールスなどにつかまる事もありません。
ドアを開けると正面は壁になっていて、宅配便やフードデリバリーの受け取り時にお部屋の中が見えづらくなっています。最近は利用する機会も増えましたから、これは有難いですね。廊下は上り口から右方向に伸びています。
ドアには安心のダブルロック。複数の鍵には、こじ開けづらくするのと同時に、狙われづらくする効果もあるらしいですよ。ダミーの鍵を付けているお家もあるくらいです。
シューズボックスはトールタイプ。収納力は抜群!可動式の棚を調節すればブーツなどでもそのまま収納可能です。人感センサーが自動的にライトを点けてくれるので、もう暗い中手探りでスイッチを探す必要はありません。なにより、いつでも明るい玄関が迎えてくれるのが嬉しいですよね。
木目を生かしたフローリングや建具で、ナチュラルな雰囲気。すりガラス入りのドアがリビングダイニングに通じています。
では、中へ…
こちらは約11.6帖のリビング・ダイニング。南西の二面採光で明るく、風通しの良いお部屋です。真四角の形でレイアウトの自由度も高そう。ダイニングを広めにしたり、リビング部分を充実させたりと、ライフスタイルによって変えられて便利ですね。
大きい窓はバルコニーに通じていますので後程ご紹介します。北西向きの小さい方の窓の外は、建物越しに遠くまで見晴らせる開放的な眺め。プライバシーの為に目隠しも付いています。窓にはペアガラスが使われていますので、防音もバッチリですよ♬
入口付近には収納棚。奥行きがあって棚の手前には背の高い物も入るようになっていますので、クリーナーなんかも入れておけますね。窓際の壁にはピクチャーレールが設置されていて、お気に入りの絵や写真などを簡単に飾る事も出来ます。賃貸でなくても壁に穴を開けるのは、躊躇しちゃいますよね^^;)
キッチンは独立タイプ。人目を気にせずお料理に集中出来て、料理好きには人気のキッチンです。オーブンキッチンに比べると匂いなども気にならなそうですね。では、詳しく見ていきましょう。
明るい色のパネル使用でキッチンを広く見せています。
収納は吊戸棚と調理台下のスライドキャビネット。引き出しタイプのスライドキャビネットは開口部が大きく、大きな物でも楽に出し入れ可能です。ぎっしり詰めてしまっても、中身の確認がしやすいのもいいですよね。その点少し使いづらい吊り扉には、あまり使わない物を入れる事になりそうです。
水栓は浄水機能付きシャワー水栓。お料理にお茶にと気軽に美味しいお水を使えますね。ヘッド部分が伸びるので、シンクを流したりにも便利ですよ。
幅があって作業スペースも十分。休日にご家族でお料理なんて楽しそうですね♬
コンロは3口、グリルも付いています。グリルってお魚グリルと呼ばれるほど魚イメージが強いですが、野菜でも肉でも何を焼いても美味しく仕上がる優れものなんですよ。我家でもアスパラやピーマンをオリーブオイルをかけて焼いたり、焼き鳥を焼いたりしています。
換気扇は調理を始める少し前から回し始めると効果的。煙を吸うというより、外から換気扇への空気の流れを作って油などの粒子を外に出さないイメージだそうです。なので、リビングの窓を少し開けておくとよりベター!
では、隣のお部屋へ…
こちらは約4.8帖の洋室。南向きの出窓があるお部屋です。
窓の外は建物が近く眺めは期待出来ませんが、出窓にする事によって角度を付けた左右の窓からは光を取り込む事が出来ています。更に、建物の側面を通る風を効率的に取り込む効果もあり♪ 真ん中の大きな窓はFIX窓になっていて開きません。
収納は間口が広くて使いやすそうなクローゼット。幅も奥行きも広く収納力があります。キャリーバッグやスーツケースなどの嵩張る物も置いておけますし、衣装ケースなどを使えば更に収納力を上げる事も可能ですよ。
廊下へ戻って、次のお部屋へ…
こちらは約5.1帖の洋室。北西向きの窓のあるお部屋です。北西向きといってもほぼ西向きなので十分明るいですよ。
リビングの窓から見た風景ですね。目隠しも付いていますし、窓にはペアガラスが使われていますので、寝室にしても安心です。クローゼットは先程の洋室と同タイプ。
次はトイレへ…
玄関の左側です。
洗浄便座付き。INAX製のシャワートイレです。INAXさん(当時は伊奈陶器)は50年以上前に国産第一号を作った歴史あるメーカーなんですよ!トイレットペーパーなどのストックに便利な吊戸棚も付いています。
次は洗面室へ…
洗面室には洗面台の他に洗濯機スペース、浴室がまとまっていて、脱衣所も兼ねています。入浴中にお洗濯をすれば効率的ですね。洗濯機スペースには棚も付いているので、洗剤などはこちらへどうぞ。
洗面台は三面鏡付き。上部の照明のおかげで鏡を使う時に影になったりする事もありません。幅が広く、譲り合えば二人くらいは同時に使えそうですよ。朝のラッシュ時には助かります(^^)
収納は三面鏡裏のキャビネットと洗面台下。大小様々なタイプの収納で、大きな物から細かい物までバランスよく収納する事が出来そうです。
水栓はハンドシャワータイプ。広い洗面ボウルを隅々まで流せます。
浴室はブラウンの鏡面仕上げの落ち着いた雰囲気。ライトが反射して綺麗ですね。
追い焚き機能付きで「ふろ自動」ボタン一つでお風呂を沸かす事が出来ます。そのまま保温もしてくれるので、いつでも温かいお風呂に入れますよ。ご家族でお風呂の時間がバラバラになっても大丈夫(^^v
ゆったり浸かれる広々浴槽。
浴室換気乾燥機は浴室の換気の他に、寒い季節の浴室暖房や雨天や花粉の季節のお洗濯物乾燥など様々な使い方があります。「涼風」ボタンを使えば暑い夏も快適に!残念ながら冷房ではありませんが、濡れた頭を風が心地良く冷やしてくれますよ♬
それでは、最後はバルコニーへ出てみましょう。
リビングダイニングのバルコニーへの窓は二重サッシ。防音、遮熱、防犯など様々な効果があります。
広さは4.89㎡、南西向き。幅はそこそこですが、奥行きがあって広々と感じるバルコニーです。手すりには物干し金具も設置され、竿だけ用意すればお洗濯物を干す事も可能。東側には建物が建っていますので、干すならお昼からがお勧めです。
左(東)には建物が建っていますが、右方向には抜けた眺めが広がっています。こちらは玉川通りとは反対側なので、比較的静かですよ。
・
以上でチサンマンション三軒茶屋第2のご案内を終わります。
いかがでしたでしょうか??
三軒茶屋駅から徒歩7分のマンションです。
リノベーション済みという事で室内はとてもキレイですよ (っ・ω・)っ
内見のご予約やご質問などございましたらお気軽にお問い合わせくださいませ。
ご連絡お待ちしております。
弊社、不動産Agent 六棒株式会社では、
□リノベーションマンションはほぼ全て仲介手数料無料!
□その他一般仲介物件は仲介手数料20%~30%OFF!
にてお取り扱いしております!※弊社の「Agent Fee=仲介手数料」についてはご案内、ご面談の際に営業担当者よりご説明いたします!
なるべく沢山のお部屋をホームページに掲載したいと思っておりますが、時間的成約もございますので、残念ながらご紹介できるお部屋の一部しか掲載できておりません。
このホームページに掲載中のお部屋、その他サイト等で気になるお部屋、街を歩いていて気になったマンション等々ございましたら是非、弊社営業部までご相談ください!
~不動産Agent 六棒株式会社の特徴~
・一般仲介物件の仲介手数料は20%~30%OFFにてご案内中です!
・リノベーションマンションについてはほぼ全て仲介手数料無料です!
・住宅ローンに自信あります!
・頭金10万円より購入できます。是非ご相談下さい!
・お部屋のご見学は車で2~3件まとめて案内します!
・物件数3000件以上、新築戸建、リノベ物件も多数ご用意しております!
過去に販売していたのお部屋の概要 このお部屋の販売は終了いたしました。
| 価格 | -万円 |
| 面積 | 36.60㎡ |
| 間取り | 1bedroom(1LDK) |
| 管理費 | 月額8,600円 修繕積立金:月額8,090円 特別修繕積立金:月額6,000円 |
| 所在階 | 8F |
| お問い合わせ・ご内見のご予約はこちらからお気軽にどうぞ | |
早速ですが、今回のお部屋のレポートに突入です!(”◇”)ゞ

今回のリフォーム内容です☆彡
*:;:*:;:*:;:*:;:*:;:*:;:*:;:*:;:*:;:*:;:*:;:*:;:*:;:*:;:*:;:*:;:*:;:*:;:*:;:*:;:*
全室クロス張替え
フローリング新規張替え
フロアタイル新規張替え
玄関タイル新規張替え
建具新規交換済み
下足入れ新規交換済み
システムキッチン新規交換済
ユニットバス新規交換済み
ウォシュレット一体型トイレ新規交換済み
洗面化粧台新規交換済み
給湯器新規交換済み(追い炊き機能付き)
洗濯水洗・防水パン交換済み
スイッチパネル新規交換済み
照明器具新規交換済
ルームクリーニング
その他詳細は担当者迄ご連絡下さい!
*:;:*:;:*:;:*:;:*:;:*:;:*:;:*:;:*:;:*:;:*:;:*:;:*:;:*:;:*:;:*:;:*:;:*:;:*:;:*:;:*
それでは、玄関から突入したいとおもいます!
古いマンションですと、玄関扉が古くて昔の「金型」タイプの玄関ドアが多いです!
玄関扉を交換している古いマンションは、管理組合様・管理会社様の意識が高いマンションと教わりました!
古いマンションは「管理を買え!」と言われています。
こんなにも、しっかりしたマンションに住みたいと思わせる第1歩が気持ちよかったです!

そして、玄関扉を開けると暖かい空間が出迎えてくれます!
早く靴を脱いで下さいと言っているようです(^^♪(笑)

ちょっとした「ホール」を感じとれます!

玄関を入るとすぐに、シューズボックスが造作設置されています。
窓付きの玄関収納は明るい空間です!
出かける時に暗い空間よりは、電気もつけずに明るい空間の方が、元気が出そうですよね
(=^・・^=)

個人的には…もう少し「収納力」が欲しいかなぁとおもいます(≧◇≦)
それでは、水廻り→キッチンのレポートに行ってきます(*^▽^*)
ユニットバスも、もちろん新規交換済みです!
追炊き機能付き・浴室乾燥機機能付きは、嬉しい設備です!

新規交換の浴室では、ブラウンの濃い色の壁面が最近の流行です!
白の浴槽とのコントラストが最高だとおもいませんか(笑)

洗面所のレポートです!
新しい洗面所は、気持ちいい朝を迎えられます♪
白!白!白!白!シロで~す!清潔感しか感じ取れません(*´▽`*)

トイレも新規交換済みです(^-^)
ウォシュレット&リモコンパネル&上部吊戸棚付きです(^○^)
トイレの「三種の神器」付です(笑)

防水パンは、ドラム式洗濯機を置くとカッコいいですよね(^-^)
次はキッチンです!
さっき「玄関」のご紹介の際に、チラッと見えましたね(*^^*)

ちょっと暗めの撮影で夜の雰囲気を醸しだしてみました(*ノω ノ)

新しい三口コンロと新しいレンジフード!お魚も焼けちゃいます(^^)v
これは、料理のレパートリーが増えますよぉ~

綺麗なキッチンシンクは料理がはかどりそうです(^O^)/

上部吊戸棚タイプですので、収納力もバッチリですよね!
背の低めな可愛い奥様は、踏み台のご用意をおススメします(/・ω・)/
背の高めな素敵な奥様は、エレガントに手を伸ばして下さいね(笑)
今回は、1DKの間取りですので、リビング兼ベットルームをご紹介したいとおもいます!

リビング兼ベットルームは、約11帖になります!
大き目のソファーとダイニングテーブルが似合いそうな予感がします!

落ち着いた雰囲気のカラーフローリングは、幅広タイプですので、
奥行きを感じ「ゆったり感」を感じます(^_-)-☆

濃い目の建具(扉)と明るめのフローリングは、部屋を「ビシッ!」と締まって感じさせます!
明るい色だけですと部屋がぼんやりと感じませんか?

収納力はいかがでしょうか?
私の感想ですと、もう少し欲しいな~です(笑)
なんと、この横にも収納がありました(驚)

収納はいくらあっても嬉しいですよね!
部屋の邪魔にならない設計は、コーディネーターさんの腕を感じますね(笑)

壁には出しゃばり過ぎないアクセントクロスが貼ってあります!
ここの前に大きなテレビボードとテレビ&音響システムを置いたら、休みの日には外に出たくなくなりますね!(笑)

先程、キッチンのレポートで「TVモニター付きインターフォン」のレポートを忘れました(笑)申し訳ございません!
二重サッシと併せてご紹介です(*^_^*)

バルコニーにある給湯器です!もちろん交換済でした(*^^)v

最後に眺望を確認したいとおもいます!8階の眺望は壮観です( `ー´)ノ
以上「チサンマンション三軒茶屋第2」のレポートを終了します!(”◇”)ゞ
弊社、不動産Agent 六棒株式会社では、
□リノベーションマンションはほぼ全て仲介手数料無料!
□その他一般仲介物件は仲介手数料20%~30%OFF!
にてお取り扱いしております!※弊社の「Agent Fee=仲介手数料」についてはご案内、ご面談の際に営業担当者よりご説明いたします!
なるべく沢山のお部屋をホームページに掲載したいと思っておりますが、時間的成約もございますので、残念ながらご紹介できるお部屋の一部しか掲載できておりません。
このホームページに掲載中のお部屋、その他サイト等で気になるお部屋、街を歩いていて気になったマンション等々ございましたら是非、弊社営業部までご相談ください!
~不動産Agent 六棒株式会社の特徴~
・一般仲介物件の仲介手数料は20%~30%OFFにてご案内中です!
・リノベーションマンションについてはほぼ全て仲介手数料無料です!
・住宅ローンに自信あります!
・頭金10万円より購入できます。是非ご相談下さい!
・お部屋のご見学は車で2~3件まとめて案内します!
・物件数3000件以上、新築戸建、リノベ物件も多数ご用意しております!
過去に販売していたお部屋の概要 このお部屋の販売は終了いたしました。
| 価格 | -万円 |
| 面積 | 36.60㎡ |
| 間取り | 1bedroom(1LDK) |
| 管理費 | 月額8,600円 修繕積立金:月額8,090円 |
| 所在階 | 6階 |
| お問い合わせ・ご内見のご予約はこちらからお気軽にどうぞ | |

今回のリフォーム内容です☆彡
*:;:*:;:*:;:*:;:*:;:*:;:*:;:*:;:*:;:*:;:*:;:*:;:*:;:*:;:*:;:*:;:*:;:*:;:*:;:*:;:*
Panasonic リビングステーションV(1950 / 食洗機)
浴室 TOTO WTユニットバスルーム(1116 / 浴乾機)
洗面 Panasonic CLine(750)
トイレ LIXIL ベーシアシャワートイレ
床 Panasonic ジョイハードフロアA
建具 Panasonic ベリティス
照明 大光電機 LEDシリーズ
給水交換
給湯交換
追焚管新規(専有部)
給湯器(追焚機能)
全クロス張替え
アクセントクロス
ハウスクリーニング
*:;:*:;:*:;:*:;:*:;:*:;:*:;:*:;:*:;:*:;:*:;:*:;:*:;:*:;:*:;:*:;:*:;:*:;:*:;:*:;:*
★*信頼品質リノベマンション『ARISE』*★
安心充実のアフターサービス【ARISEベストサポート】
1、あんしん保証10(全物件の給排水管・ガス管に、業界初!の10年保証を実現)
2、あんしんプラスR1(リノベーション住宅協議会が定める統一基準もクリア!)
3、あんしん検査報告書(業界トップクラスの検査状況を分かりやすくお伝えします)
4、カスタマー相談室(水まわりの緊急トラブルは24時間365日対応だから安心!)
★*設備・概要*★
・浴室乾燥機&追焚機能&食洗乾燥機付
・収納豊富(シューズインクローク、ウォークインクローゼット、リビング収納、可動棚、吊戸棚など)
・用途地域:第一種中高層住居専用・商業
・管理良好
(平成22年11月玄関扉交換済/平成20年11月エントランス改修工事〉
それでは、お部屋はこちらです(^^♪

早速、玄関を開けてみたいとおもいますねぇ

落ち着いた雰囲気の玄関が、出迎えてくれます!
フローリングの色!建具の色!安心感のある色ですよね(#^^#)
ちょっと逆光で撮影してしまいました。
申訳ございませんm(__)m

玄関横には、窓付きの大型シューズクロークがあります!
中に入れるぐらい広いのが本当のクロークと呼びたいです!(笑)
それでは、リビングに入る前に水回りのチェックをスタートします(”◇”)ゞ

トイレも新規交換済みです(^-^)
ウォシュレット&リモコンパネル&上部吊戸棚付きです(^○^)
トイレの「三種の神器」付です(笑)

洗面所のレポートです!
新しい洗面所は、気持ちいい朝を迎えられます♪
白!白!白!白!シロで~す!清潔感しか感じ取れません(笑)

忙しい朝でも、快適な空間を感じさせてくれますよ!

新しい防水パンは、ドラム式洗濯機を置くとカッコいいですよね(^-^)
嬉しい収納もあります(^^♪
バスルームも新規交換済みで気持ちいいですよね(^-^)
もちろん追い炊き機能付き&浴室乾燥機付き&リモコンパネル付きです!
浴室の「三種の神器」付です(笑)

新規交換の浴室では、ブラウンの濃い色の壁面が多い浴室ですが、
今回の浴室は明るいカラーの仕上がりとなっていますので、
ずっとくつろげそうですね(*^-^*)
リビングのレポート前に、キッチンを見学したいとおもいます(^-^)

独立型のキッチンです!
奥ゆかしさを感じませんか?(笑)

食洗器と浄水器の機能が付いた、
セパレートタイプのパナソニックのシステムキッチンです!
料理が上達しそうです(笑)
ワイド1950です!

上部吊戸棚タイプですので、収納力もバッチリですよね!
背の低めな奥様は、踏み台のご用意をおススメします(/・ω・)/

三口コンロ!お魚も焼けちゃいます(^^)v
3口コンロ・全体のカラーに合わせています、もちろん新品です(^_-)-☆

素敵なキッチンシンクと食洗器!
食洗器は無ければ無くてもいいですが、あると嬉しい設備ですよね(*´▽`*)

キッチン横には、TVモニター付きインターフォンと追い炊き機能付きのパネルが設置されています!
動線がよくなりそうです!
おまたせしました!リビングダイニングのレポート写真です!
それでは、どど~んとご紹介させて頂きます~

リビングとメインベットルームを繋がっていますので、広いLDKとしても利用できますよ(*^▽^*)
ソファーが似合うLDKですよね☆彡
ソファーは3人掛けより大きいのを置けるリビングは、お客様をいつでも呼び入れられるお部屋だとおもいます!

LDKは10帖もあります!
1LDKで10状のLDKは、図面だと狭く見えますが、実際見ると広いですよ!

キッチンとの動線もいいですよね~
新しいキッチンは、料理を作るのが楽しくなりますよね(*^^*)
キッチンが新しいと料理を作るのが趣味となり、そして特技になりそうです!
美味しい料理は、会話も笑顔も5割増しです(笑)

壁には出しゃばり過ぎないアクセントクロスが貼ってあります!
ここの前に大きなテレビボードとテレビ&音響システムを置いたら、休みの日には外に出たくなくなりますね!(笑)
埋込型のダウンライト!カッコいいですね~

リビングには、エアコンと飾り棚が設置されています!
エアコンは自分で買うと考えちゃいますが、ついてると「とっても」嬉しくないですか?(笑)

この1LDKのタイプですと収納を作るのが難しいのですが、さうが売主様です、見事に造作しています!こころの奥まで気持ちの届くインテリアコーディネーター様です(笑)
ベットルームをご紹介したいです!

バルコニー側のベットルームになりますので、
明るいお部屋になりますので、気持ちいい空間を享受できそうですね(*^▽^*)

収納が2か所もあります!
壁一面の収納です!可動棚まで設置されています!
収納は多ければ多いほど良いですよね(*´▽`*)

こちらが、洋室横にある、大き目のクローゼットです!
たくさんの洋服が収納できそうですよ(≧◇≦)

ウォークインクローゼットは、女性にとって大切な言葉とおもいます!
男性にとっては…おもいつきません(笑)
最期に眺望を確認したいとおもいます!

今回のお部屋は、国道246号線+高速道路側になります!
いいところは南向きで明るいです!
わるいところは「音」です!
メリット・デメリットを考えてご検討下さい!
二重サッシになっていますので、防音対策をしていますので、ご参考下さい!

眺望も取れています!
2階~4階ですと、高速道路の下になり暗くなってしまいます。
チサンマンション三軒茶屋第2のレポートを終了します!(”◇”)ゞ
お問い合わせ・ご内見のご予約はこちらからお気軽にどうぞ
弊社、不動産Agent 六棒株式会社では、
□リノベーションマンションはほぼ全て仲介手数料無料!
□その他一般仲介物件は仲介手数料20%~30%OFF!
にてお取り扱いしております!※弊社の「Agent Fee=仲介手数料」についてはご案内、ご面談の際に営業担当者よりご説明いたします!
なるべく沢山のお部屋をホームページに掲載したいと思っておりますが、時間的成約もございますので、残念ながらご紹介できるお部屋の一部しか掲載できておりません。
このホームページに掲載中のお部屋、その他サイト等で気になるお部屋、街を歩いていて気になったマンション等々ございましたら是非、弊社営業部までご相談ください!
~不動産Agent 六棒株式会社の特徴~
・一般仲介物件の仲介手数料は20%~30%OFFにてご案内中です!
・リノベーションマンションについてはほぼ全て仲介手数料無料です!
・住宅ローンに自信あります!
・頭金10万円より購入できます。是非ご相談下さい!
・お部屋のご見学は車で2~3件まとめて案内します!
・物件数3000件以上、新築戸建、リノベ物件も多数ご用意しております!
過去に販売していたお部屋の概要 このお部屋の販売は終了いたしました。
| 価格 | -万円 |
| 面積 | 36.60㎡ |
| 間取り | 1bedroom(1DK) |
| 管理費 | 月8,600円 修繕積立金:月7,090円 |
| 所在階 | 8階 |

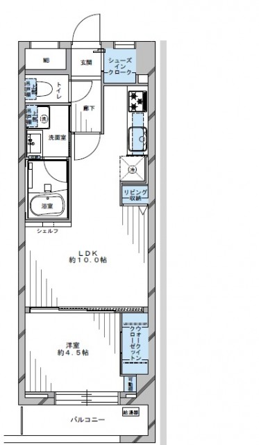
今回ご紹介するお部屋の間取りのご紹介です♪
1K、36.60㎡のお部屋です。
<リフォーム内容>
■全室クロス張替
■フローリング張替
■水廻り床フロアタイル張替え
■木製建具交換
■下足入れ交換
■キッチン交換
■ユニットバス交換
■洗面台交換
■給湯器交換
■シャワー付き便座交換
■洗濯パン・水栓交換
■自火報設置
■居室照明設置
■ハウスクリーニング
等
早速お部屋へ入って行きましょう!

エレベーターを降りてすぐ左にあるこちらのお部屋です!
外廊下なので玄関をでれば雨が降っているのがすぐ分かるので傘を忘れることはありません!

防犯面に嬉しいカメラ付インターフォンが設置されています!ご来客の顔確認ができますよ(o´∀`ノ


お部屋へ入っていくとメリハリのあるシンプルなお部屋がお出迎えです!
人感センサーが付いているのでいつでも明るい玄関がお出迎えしてくれます♪
玄関の床はタイルが張られたようなオシャレな模様になっています(*´˘`*)
シューズボックスは可動式♪大きさに関係無く収納出来ます!
シューズボックス上には装飾やアロマ、写真など飾ることができますよ(*´ω`*)

お隣には洗濯機置場があります!
サニタリールームとは離れた場所にあるので少し気を遣いますが、靴下などの帰宅してすぐ洗濯機に持って行きたい物を入れるのには便利ですね(´ー`* )

玄関右のスライド扉は

サニタリールームです。

洗面台は便利な三面鏡です!
収納スペースがたくさんあるのでお部屋をきれいに保てます(*´∀`*)

三面鏡左のこちらの扉の奥には・・・

バスルームがあります!
便利な追い焚き機能付き、室内換気乾燥器付きのバスルームです♪
雨の日でお洗濯物が乾かせなくてもこちらで乾かせますよ(*´˘`*)♡


浴槽は身体に優しい丸みをおびた形になっています!
シャンプーやリンスなどがおける棚がしっかり用意されていますよ(ゝc_,・。)
浴槽横にはボタンがあるので入浴の際にぬるくなってしまってもボタン一つでパパッと解決です✿

サニタリールーム右のスライド扉は・・・


トイレがあります!
白でまとめられた個室は清潔感があります(●´∀`)
もちろんウォシュレット機能付きのトイレです♪


キッチンは約4.0帖と広々としています!
調理スペースが大きくとられているのでお料理がしやすいですね((´I `*))


コンロは三口あるので一度に複数のお料理を作ることが可能です♪
収納スペースは上下にあるのでたくさんしまえます!

お風呂の準備はキッチン目の前についているこちらのボタンで出来ちゃいます☆ミ

TVモニター付きインターフォンは玄関正面の扉横についています!


こちらは約10.5帖の洋室です♪
南東向きの大きな窓から自然の光を取り込んで、明るいお部屋になっていますよ(●´∀`)
シンプルなお部屋なので家具が映えそうです!

嬉しい収納スペースは二つ!
バー付き収納があるのでお洋服はしわにならず綺麗にしまっておけます(●´∀`)
大きな収納なのでお部屋に物があふれることなく綺麗に保てますよ✿


玉川通りに面しているので音漏れが気になるかと思いますが二重サッシが軽減してくれます!
お洗濯物はコチラに干せますよ♪
いかがでしたでしょうか?
ご質問等ございましたらお気軽にご連絡ください!
皆様のご連絡心よりお待ちしております♪




















































































































弊社 公式HP
六棒総合研究所
掲載予定物件
価格変更と販売終了物件
ハザードマップ検索
適合証明書.jp
Facebook
Twitter
Instagram