・
□□□□□□□□□□□□□□□□□□□□□□□□□□□□□□□□□□□□□□□
不動産Agent 六棒株式会社です。
弊社ホームページをご覧頂き誠にありがとうございます。
気になるお部屋がございましたら是非お問い合わせください!
・
□□□□□□□□□□□□□□□□□□□□□□□□□□□□□□□□□□□□□□□
・
港区高輪より『朝日シティパリオ高輪台A館』のご紹介です!
アクセス
都営浅草線「高輪台」駅徒歩6分
東京メトロ南北線・都営三田線「白金台」駅徒歩11分
都営浅草線「泉岳寺」駅徒歩11分
JR京浜東北線・横須賀線・東海道線・山手線・常磐線・京急本線・京急空港線「品川」駅徒歩13分
都営三田線・東京メトロ南北線「白金高輪」駅徒歩12分
最寄は都営浅草線の高輪台駅。ご紹介する朝日シティパリオ高輪台A館はここから徒歩6分。その他、白金台、泉岳寺、品川、白金高輪駅の5駅がなんと徒歩圏!
さらにマンション前のバス停からは西麻布、青山一丁目駅前、目黒駅前行きなどのバスが利用可能と交通アクセスに恵まれた立地にあります。
お買い物はというと、八百屋や店頭に野菜が並ぶコンビニ(?)、ドラッグストアなどが駅のまわりに、徒歩6分ほどのところにスーパーのリンコスがありますが、食品が買える場所はすこし少なめな印象。自炊派の方は少し不自由を感じるかもしれません。白金高輪方面へ行くとピーコックなど大きめのスーパーがあるので休日に足をのばしてまとめ買いに行くのもよいかもしれません。
マンションまでは駅前の桜田通り沿いを歩いていっても、1本大通りから道を入って住宅街の中を通っても行けます。
マンションから徒歩1分のところには高輪警察署と高輪消防署があり、安心して暮らせそうな雰囲気を漂わせています。
マンションの目の前は高野山東京別院、お隣にはおしゃれなパティスリーがありました。このあたり、ぐるぐる散策すると気になるお店や面白い発見がありそうです♪
朝日シティパリオ高輪台A館は平成9年築、11階建て、総世帯数30戸。
平成20年に大規模修繕工事実施済み。
前面道路はこんな感じ。車の通りもそこそこある、といった印象です。
エントランスは道路から奥まったところにあります。
エントランスを入ると、シティパリオの名前が入った足ふきマットが敷かれていました。
エントランスは安心のオートロック。日中は管理人さんもいるのでさらに安心です。
留守がちな方に便利な宅配BOXもあります。
エレベーターでお部屋へ。
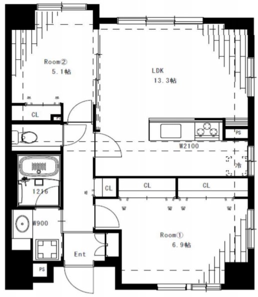
今回ご紹介するお部屋は2階、専有面積58.85㎡の2LDK。三方角部屋の、お一人暮らしからスモールファミリーの方まで幅広くお使いいただけるお部屋です。
間取り図はコチラ ↓ ↓ ↓
※間取り図は別タブで開きますので、確認しながらご覧いただくことができます。
では、お邪魔します!
【LDK:約13.3帖・南西×南東二面採光】
【LDK:木目を活かした内装・床暖房付き】
【キッチン:カウンタータイプ・浄水機能一体型水栓・窓付き】
【洋室2:約5.1帖・廊下とLDKどちらからもアクセス可能】
【洗面室:洗面台・洗濯機スペース】
【浴室:1216サイズ・追い焚き機能・浴室換気乾燥機付き】
【トイレ:洗浄機能一体型タンクレス・手洗いカウンター】
・
以上で朝日シティパリオ高輪台A館のご案内を終わります。
いかがでしたでしょうか??
高輪台駅から徒歩6分のマンションです。
内見のご予約やご質問などございましたらお気軽にお問い合わせくださいませ。
ご連絡お待ちしております。
弊社、不動産Agent 六棒株式会社では、一般仲介物件は仲介手数料20%~30%OFF!
にてお取り扱いしております!
なるべく沢山のお部屋をホームページに掲載したいと思っておりますが、時間的成約もございますので、残念ながらご紹介できるお部屋の一部しか掲載できておりません。
このホームページに掲載中のお部屋、その他サイト等で気になるお部屋、街を歩いていて気になったマンション等々ございましたら是非、弊社営業部までご相談ください!
~不動産Agent 六棒株式会社の特徴~
・一般仲介物件の仲介手数料は20%~30%OFFにてご案内中です!
・住宅ローンに自信あります!
・頭金10万円より購入できます。是非ご相談下さい!
・お部屋のご見学は車で2~3件まとめて案内します!
・物件数3000件以上、新築戸建、リノベ物件も多数ご用意しております!
過去に販売していたお部屋の概要 こちらのお部屋の販売は終了いたしました
| 価格 | -万円 |
| 面積 | 30.35㎡ |
| 間取り | 1bedrooms(1LDK) |
| 管理費 | 月額7,890円 修繕積立金:月額6,980円 |
| 所在階 | 10階 |
| お問い合わせ・ご内見のご予約はこちらからお気軽にどうぞ | |
今回ご紹介するお部屋は10階、専有面積30.35㎡の1LDK。お一人暮らしの方にオススメのお部屋です。
間取り図はコチラ ↓ ↓ ↓
※間取り図は別タブで開きますので、確認しながらご覧いただくことができます。
只今リノベーション工事中
2026年2月中旬完成予定ですのでお楽しみに!
・
以上で朝日シティパリオ高輪台A館のご案内を終わります。
いかがでしたでしょうか??
高輪台駅から徒歩6分のマンションです。
内見のご予約やご質問などございましたらお気軽にお問い合わせくださいませ。
ご連絡お待ちしております。
弊社、不動産Agent 六棒株式会社では、一般仲介物件は仲介手数料20%~30%OFF!
にてお取り扱いしております!
なるべく沢山のお部屋をホームページに掲載したいと思っておりますが、時間的成約もございますので、残念ながらご紹介できるお部屋の一部しか掲載できておりません。
このホームページに掲載中のお部屋、その他サイト等で気になるお部屋、街を歩いていて気になったマンション等々ございましたら是非、弊社営業部までご相談ください!
~不動産Agent 六棒株式会社の特徴~
・一般仲介物件の仲介手数料は20%~30%OFFにてご案内中です!
・住宅ローンに自信あります!
・頭金10万円より購入できます。是非ご相談下さい!
・お部屋のご見学は車で2~3件まとめて案内します!
・物件数3000件以上、新築戸建、リノベ物件も多数ご用意しております!
過去に販売していたお部屋の概要 こちらのお部屋の販売は終了いたしました
| 価格 | -万円 |
| 面積 | 58.85㎡ |
| 間取り | 2bedrooms(2LDK) |
| 管理費 | 月額15,300円 修繕積立金:月額13,540円 |
| 所在階 | 2階 |
| お問い合わせ・ご内見のご予約はこちらからお気軽にどうぞ | |
間取りのご紹介です。2LDK、専有面積は58.85㎡。
ROOM2とLDKの仕切り扉は開けて、広々LDKとして利用することも可能です。
※間取り図は別タブで開きますので、確認しながらご覧頂くことが出来ます。
エレベーターを出たら、右へ。階段の前のお部屋です。
角のお部屋です。外階段が近いし2階なので、エレベーターを待たずに階段を使うのも便利で健康的かも知れません。
モニター付きインターフォンがあります。
早速、玄関を開けてみましょう。
人感センサー付きライトとトールシューズボックスがありました。
まずは正面の扉を開けて、ROOM2を見てみましょう。

小部屋感がありますね。3枚扉の引き戸も気になりますが、まずは左横のクローゼットを開けてみましょう。
一人分のよく使うものを収納するのにちょうどいいくらいの大きさですね。
反対側は窓です。
それでは、3枚扉を開けてLDKとの一体感を見てみましょう。
扉は全部しまえるので、広くつながれますね。
奥がリビングになっていて、その後ろ側にキッチンがありますね。
ダイニングの奥には造り付けの収納棚があります。棚の高さは変えられるので、頑張ってオリジナルな見せる収納をしましょう。大きな画面のモニター付きインターフォンや電気スイッチなどが壁にまとまっています。
場所はこちらです。振り返るとキッチンが見えます。
オープンキッチンなので、炊事をしながらリビングダイニングの様子を確認することができますね。
お風呂のセットもお風呂場まで行かずとも、キッチンで操作できます。
キッチンの下部は全部収納になっています。いろいろなものがしまえそうですね。
キッチンに窓があるのも、なかなかポイント☆
では、廊下に戻ってROOM1を見に行きましょう。正面の扉はROOM1ですよ。左の扉はトイレです。そうですね、トイレをサッと見てからROOM1へ行きましょう。
手洗いがあって、その下がちょっとした収納になっていました。
さて、ではROOM1へ行きましょう。左の手前の引き戸は収納です。その隣のドアがROOM1の扉です。
廊下の収納はこんな感じ。玄関先にあると便利なものを置いておくって感じでしょうか?
では、ROOM1へ!左の壁側は壁一面がクローゼットになっています。
圧巻の収納力です。
それでは、洗面室・浴室へ行きましょう。
ちょっとした、タイル張りになっていました。雰囲気が変わりますね。
洗濯機置き場と洗面台横にちょっとした棚が備え付けてあります。
洗面台の横がお風呂場になっています。浴室乾燥機が付いています。
シンプルですが、必要な機能は揃っているお風呂場です。
最後にバルコニーに出て景色を見ます。

正面はお寺です。この景色はしばらく変わらなさそうですね。
2階ですが、割と目線を遮るものもなく、明るい感じです。
以上で朝日シティパリオ高輪台A館のご案内を終わります。
いかがでしたでしょうか??
高輪台駅から徒歩7分のマンションです。
リノベーション済みという事で室内はとてもキレイですよ (っ・ω・)っ
内見のご予約やご質問などございましたらお気軽にお問い合わせくださいませ。
ご連絡お待ちしております。
弊社、不動産Agent 六棒株式会社では、
□リノベーションマンションはほぼ全て仲介手数料無料!
□その他一般仲介物件は仲介手数料20%~30%OFF!
にてお取り扱いしております!※弊社の「Agent Fee=仲介手数料」についてはご案内、ご面談の際に営業担当者よりご説明いたします!
なるべく沢山のお部屋をホームページに掲載したいと思っておりますが、時間的成約もございますので、残念ながらご紹介できるお部屋の一部しか掲載できておりません。
このホームページに掲載中のお部屋、その他サイト等で気になるお部屋、街を歩いていて気になったマンション等々ございましたら是非、弊社営業部までご相談ください!
~不動産Agent 六棒株式会社の特徴~
・一般仲介物件の仲介手数料は20%~30%OFFにてご案内中です!
・リノベーションマンションについてはほぼ全て仲介手数料無料です!
・住宅ローンに自信あります!
・頭金10万円より購入できます。是非ご相談下さい!
・お部屋のご見学は車で2~3件まとめて案内します!
・物件数3000件以上、新築戸建、リノベ物件も多数ご用意しております!
過去に販売していたお部屋の概要 このお部屋の販売は終了いたしました。
| 価格 | -万円 | |
| 面積 | 58.85㎡ | |
| 間取り |
|
|
| 管理費 | 月額15,300円 修繕積立金:月額13,540円 | |
| 所在階 | 11F | |
| お問い合わせ・ご内見のご予約はこちらからお気軽にどうぞ | ||
間取りのご紹介です。2LDK、専有面積は58.85㎡。
最上階、東・南・西の三方角部屋。陽当たり良好です☀
さらにリビングダイニングからはレインボーブリッジがご覧いただけます。
室内は以下のリノベーションをおこなっています。
【リノベーション内容】
■システムキッチン交換、食器棚新規取付、キッチンカウンター新設
■浴室新規交換
■洗面化粧台新規交換
■トイレ新規交換
■フローリング新規貼り替え
■建具交換
■全室クロス貼り替え
■防水パン新規交換
■新規エアコン設置、全居室照明取付け、ハウスクリーニング等
ご内見のご希望・ご質問などございましたら、お気軽にお問い合わせくださいませ♪
過去に販売していたお部屋の概要 このお部屋の販売は終了いたしました。
| 価格 | -万円 |
| 面積 | 30.35㎡ |
| 間取り | 1bedroom(1DK) |
| 管理費 | 月額:7,890円 修繕積立金:月額6,980円 |
| 所在階 | 6階 |
間取りのご紹介です。1DK、30.35㎡。
3方角部屋、陽当たり・眺望良好☀
バルコニーからはレインボーブリッジがご覧いただけます。
【リノベーション内容】
■キッチン・・・システムキッチン(パナソニック)
■浴室・・・ユニットバス(パナソニック)、浴室換気乾燥暖房機付き
■洗面所・・・洗面化粧台 、洗濯水栓、防水パン
■トイレ・・・LIXIL、ウォシュレット機能付き
■その他・・・フローリング貼替、壁・天井クロス張替、フロアタイル貼替、建具・玄関収納交換、給湯器交換、エアコン(1基)、新規照明器具取付、収納棚新設、スイッチ・コンセント交換、ハウスクリーニング
■アフターサービス保証付き
白基調の明るい玄関ホール。玄関横には真ん中部分がカウンターになったシューズBOXが設置されています。一人分の手持ちの靴ならこの中に収まるのではないでしょうか。
カウンター部分にお好みのインテリアや植物を置いてお好みの雰囲気に仕上げる楽しみもありますね♪
玄関をあがると目の前に廊下があり、その先にダイニングキッチンの扉があります。宅急便など急な来訪があっても玄関から居住スペースが見えることはありません。
エアコンが設置されているので引っ越したその日から快適にお過ごしいただけます。
窓側からもご覧ください。
キッチンもお部屋にあわせて白基調。浄水機能付き水栓、3口コンロとスペックもグーです。横に窓があるのでお料理中の匂いや熱もスムーズに解消できそうです。
ダイニングキッチン内には縦長の収納スペースもつくられています。フローリングワイパーや縦型の掃除機を仕舞っておくのによさそうです。
キッチン脇は通路になっており、洗面室や洋室などの扉がこちらに集まっています。
通路には電話台としても使えるカウンターもつくられていました。
カウンター下は収納スペースになっています。
洗面室の中にはバスルーム、洗面化粧台、トイレがまとまっています。
トイレはウォシュレット付き。ペーパーのストックや小物は上の棚へどうぞ。
洗面化粧台は鏡の両脇に収納場所が確保されており、ゴチャゴチャ散らかりがちな小物類もスッキリ仕舞っておけるようになっています。洗面ボウルとカウンターが一体になっているのでお掃除がしやすいのも◎。
バスルームは追い焚き、浴室換気乾燥機能付き。
雨の日や夜のお洗濯も乾燥機があれば安心。いつもカラリと乾いた状態にしておけばカビの発生もグンと減るはず。
洗濯機置場は洗面室を出て、横にあります。使わない時は扉をしめておけば生活感も隠しておけます。
洗面室の向かい側にベットルーム。2面に窓のある明るいお部屋です。
窓は2か所とも二重サッシになっています。
小さめですが、奥行のあるクローゼットがついています。
中にも照明がつくのがうれしいですね。
最後にダイニングキッチンからバルコニーに出てみます。
バルコニーは3.99㎡、南東向き。お洗濯物を干すスペースが足りない時は浴室の乾燥機が頼りになります。
眺望。向かいのお寺を眼下に高層ビルが点々とつづく風景です。。遠くの方にはレインボーブジッジもご覧いただけます。(実際に見るともっとはっきり見えます。)夜景も楽しみですね!




































































































弊社 公式HP
六棒総合研究所
掲載予定物件
価格変更と販売終了物件
ハザードマップ検索
適合証明書.jp
Facebook
Twitter
Instagram