・
□□□□□□□□□□□□□□□□□□□□□□□□□□□□□□□□□□□□□□□
いつも弊社ホームページをご覧頂き誠にありがとうございます。
麻布狸穴ナショナルコートはお陰様で販売を終了致しました。弊社問合せフォームにてご要望頂けましたら、当お部屋でキャンセル等が発生した場合、他のお部屋が販売になりました際にご紹介させて頂きます。
不動産Agent 六棒株式会社
TEL:03‐5413‐5336
□□□□□□□□□□□□□□□□□□□□□□□□□□□□□□□□□□□□□□□
・
本日は都営大江戸線、東京メトロ南北線「麻布十番」駅より徒歩5分、リノベーションマンション 『麻布狸穴ナショナルコート』 をご案内いたします!
都営大江戸線「赤羽橋」駅より徒歩6分、東京メトロ日比谷線「神谷町」駅より徒歩11分からのご利用も可能です。3駅3路線利用可能な利便性の高い立地です。
本日は麻布十番駅改札を5a出口から地上に上がっていきます。
地上に出てみると、本日は気持ちのよいお天気ですねー!
こちらの出口からは首都高速が見え、周辺にはマンションやビルが建ち並んでいます。東京メトロ南北線、都営地下鉄大江戸線がクロスする街、麻布十番。この2線を利用すれば、永田町や目黒、新宿、浜松町、汐留など、都心へのオフィス街へ直通!かつて、バスしか利用できなかった街の利便性は2000年を境に変化しはじめ、古さと新しさが楽しめる街「麻布十番」です。
本日のお部屋へは大きな交差点新一の橋を渡り左へ向かっていきます。その前に麻布十番といえば麻布十番商店街!少しこちらもご紹介です。
こちらが麻布十番商店街です。
季節によっていろいろなイベントがある麻布十番商店街、最近では飲み歩きコンなんかも行われているようです![]()
老舗も多く、ファッション・飲食店・スーパー・生活雑貨さまざまな店舗があり、お休みの日の買い物やランチが楽しみですね♪
本日はお仕事中ですので寄り道はまた次回のお楽しみにしたいと思います。
新一の橋を渡り、歩いていると、だんだん緑豊な住宅街に。
狸穴公園がありました。今日のような天気は公園日和ですね。
こちらの狸穴坂がみえましたらもうすぐ到着!こちらの坂は左側にあります。マンションへは道なりに歩いていきます。
麻布狸穴ナショナルコートから徒歩4分のところにまいばすけっとがありました。
嬉しい品揃いで低価格!大変便利です。
こちらが外観です。ご覧の通り、壁面に太陽が当たっていて陽当り良好です。
エントランスです。安心のオートロック付になります。
オートロック前に管理室があります。管理人さんはちょうどお掃除中でした。ネイビーのタイルのエントランス内はキレイに管理されています。
鮮やかなオレンジ色のエレベーターでお部屋へ。
※今回はオーナーチェンジ物件となります。
お部屋はコチラ ↓ ↓ ↓
階数 :5階
専有面積 :54.43㎡(16.46坪)
バルコニー面積:5.78㎡(1.74坪)
間取り :4DK
月額賃料収入 :150,000円(共益費込)
表面利回り :3.2%
契約期間 :2024/11/01~2027/10/31(定期借家契約)
※管理会社変更可能(変更手数料:賃料の10%+税)
・
以上で麻布狸穴ナショナルコートのご案内を終わります。
ご質問などございましたらお気軽にお問い合わせくださいませ。
ご連絡お待ちしております。
弊社、不動産Agent 六棒株式会社では、
□リノベーションマンションはほぼ全て仲介手数料無料!
□その他一般仲介物件は仲介手数料20%~30%OFF!
にてお取り扱いしております!※弊社の「Agent Fee=仲介手数料」についてはご案内、ご面談の際に営業担当者よりご説明いたします!
なるべく沢山のお部屋をホームページに掲載したいと思っておりますが、時間的成約もございますので、残念ながらご紹介できるお部屋の一部しか掲載できておりません。
このホームページに掲載中のお部屋、その他サイト等で気になるお部屋、街を歩いていて気になったマンション等々ございましたら是非、弊社営業部までご相談ください!
~不動産Agent 六棒株式会社の特徴~
・一般仲介物件の仲介手数料は20%~30%OFFにてご案内中です!
・リノベーションマンションについてはほぼ全て仲介手数料無料です!
・住宅ローンに自信あります!
・頭金10万円より購入できます。是非ご相談下さい!
・お部屋のご見学は車で2~3件まとめて案内します!
・物件数3000件以上、新築戸建、リノベ物件も多数ご用意しております!
過去に販売していたお部屋の概要 こちらのお部屋の販売は終了いたしました
| 価格 | -万円 |
| 面積 | 58.49㎡ |
| 間取り | 1bedrooms(1SLDK) |
| 管理費 | 月額15,500円 修繕積立金:月額18,600円 |
| 所在階 | 2階 |
| お問い合わせ・ご内見のご予約はこちらからお気軽にどうぞ | |
ここで間取り図のご紹介です。
※間取り図は別タブで開きますので、確認しながらご覧いただく事が出来ます。
今回ご紹介するお部屋は2階、間取りは1SLDK、専有面積は58.49㎡。おひとり暮らしやDINKSの方にお勧めのお部屋です。
早速行ってみましょう。

2階でエレベーターを降りて内廊下を進みます。内廊下は雨が吹き込んだりしませんし、防犯やプライバシーの面でもいいですよね。

玄関はレリーフが彫られた木製扉でヴィンテージ感たっぷり。
では、お邪魔します!

うって変わって明るくナチュラルな雰囲気ですね。中間調のフローリングに白のクロス。建具にフローリングより一段明るい木目を使っているので上に広がりを感じます。最近はバリアフリーで段差の少ない上り口が多いのですが、しっかりと高さのある上り口になっています。靴を履く時などに便利で個人的には好みです。

玄関にある扉はシューズインクローゼット!!
これだけ広いと靴だけでなく、スポーツ用品やキャリーバッグなど大きな物も置いておけそうですね。外は内廊下なので光は入りませんが、窓も付いているので換気も可能ですよ。

では、まずは突き当りのドアから…

こちらは約13.2帖のリビング・ダイニング・キッチン。
南向きのバルコニーに面したワイドスパンのお部屋です。窓面積が広くとても明るいですよ。木目と白のシンプルな色使いなので家具も合わせやすそうですね。

マンションでよくある間取りだと、カウンターキッチンの前がダイニング、窓際がリビングとある程度決まってしまっているものですが、真四角のスペースを丸々使えるのでレイアウトの自由度も高くなっています。難しいとも言えますが、いろいろ考えるのは楽しいですよ♬

キッチンは壁付けタイプ。省スペースでお部屋を広く使えます。ただし、ご覧の通りキッチン内が丸見えなので綺麗に保つ努力は必要です。

フローリングより少し濃いブラウンの調理台。お部屋のアクセントにもなっています。

調理台の下には食器洗浄乾燥機とスライドキャビネット。
食器洗浄乾燥機いいですね~!これからの寒さと乾燥の季節、食器洗から解放されるなんて夢のよう。食後をのんびり過ごせるのも最高です♬
スライドキャビネットは出し入れや確認がしやすくとても使いやすいですよ。

上には換気扇と吊戸棚。
オープンキッチンですから調理中は換気扇をお忘れなく!

コンロは3口、グリルも付いて調理器具も充実しています。グリルは魚グリルと呼ばれるほど魚イメージが強いですが、どんなお料理にも使える優れもの。たまには野菜や肉も焼いてみて下さい。一味違います(^^)

水栓は浄水機能付きシャワー水栓。切替えるだけで気軽に美味しいお水を使う事が出来ます。ノズルが伸びてシンクを流したりにも便利ですよ。調理台横には冷蔵庫スペースも確保。

次は、隣のお部屋へ…

こちらは約6帖の洋室。
LDKに隣接する窓のないお部屋です。入口に引き戸を使っているのでデッドスペースもなく、無駄なくスペースを使えますよ。

収納としてクローゼットが付いています。中に衣装ケースなどを置けば外に収納家具は必要ありません。間口が広く使いやすそうですね。

ちなみに、このお部屋は廊下に通じる扉もあり、廊下から直接入ることも出来ます。

扉を開放すればLDKとつなげて使うことも出来ます。家族構成やシチュエーションでフレキシブルに使えるのは嬉しいですよね。

廊下へ戻って、次のお部屋へ…

こちらは約4帖のサービスルーム。
サービスルーム??法律上居室と認められないお部屋を不動産業界ではそう呼んでいます。理由は採光や換気などいろいろあるのですが、採光が原因なことが多いようです。あくまでも法律上の話なので、普通の洋室として使えることがほとんどです。ここなどは窓もなく静かなので寝室に良さそうですね。

収納は無いのかな?と思ったらドアの後ろに隠れていました(笑)ややコンパクトですがハンガーポールの付いたクローゼットです。

こちらは洗濯機スペース?いや、これは洗濯室ですね!
奥には棚も設置されていて、リネンや洗濯グッズなども置けるようになっています。余ったスペースにはランドリーバスケットやワゴンなどいろいろ工夫出来そう。

次はトイレへ…
ドアには、消し忘れや使用中が分かるようにガラスの小窓が付いています。これ意外と大事です。


洗浄便座はTOTO製ウォシュレット。トイレットペーパーのストックに便利な吊戸棚も付いています。ちょっと低めに設置されているのが◎

次は洗面室へ…
洗濯室、トイレ、洗面室には微妙な段差がありました。足の指などぶつけないようご注意ください。

洗面台は身だしなみチェックに便利な三面鏡付き。鏡の間に付けられた照明のおかげで、鏡を見る時に影になったりする事もありません。LEDのおかげで照明環境もずいぶん変わりましたね。

水栓のヘッドは引き出せるので洗面台ボウルを流したりに便利。
収納はご覧の通り!!細々した物が多くなりがちな洗面周りには豊富な収納が有り難いですね。様々なタイプがあって、大きな物から細かい物まで使い勝手よく収まりそうです。

浴室は、ダークブラウンの木目調アクセントパネルで落ち着いた雰囲気。

シャワーヘッドはスライド可能でちょうどいい位置で使えます。
ノーリツ製追い焚き機能付きのユニットバス。「ふろ自動」ボタンひとつでお風呂を沸かすことが出来ます。そのまま保温もしてくれるのでいつでも温かいお風呂に入れますよ。冬の長風呂もこれで安心です(^^)


浴室換気乾燥機は浴室の換気乾燥はもちろんのこと、梅雨の季節は洗濯物乾燥、暑い季節は涼風、寒い季節は暖房など、一年を通して大活躍! 特に「洗濯物乾燥」はあると助かる機能です。雨だけでなく、花粉や黄砂、PM2.5などの時期にもどうぞ。

それでは最後にバルコニーへ…
LDKの左右の窓から出られます。中央は下がFIX窓、上が横スイングで開くタイプの窓。ま~出られなくはありませんが・・・チャレンジする意味ありませんよね(笑)

左側はドアタイプ。左側が一般的な掃き出し窓になっています。

広さは5.78㎡、南向きのバルコニーです。
手摺が格子で開放的!高層階だとあまり開放的なのも困りものですが、2階くらいなら私のような高所恐怖症気味の人間でも全然問題ありません(^^)

前は道幅もあり、建物も4階建て程度とあまり高くありませんので、2階としてはまずまずの眺めだと思います。右の方を見れば狸穴公園の緑も少しだけ見えますよ。緑ってちょっと見えるだけでも癒されますよね♬
・
以上で麻布狸穴ナショナルコートのご案内を終わります。
いかがでしたでしょうか??
麻布十番駅から徒歩5分のマンションです。
リノベーション済みという事で室内はとてもキレイですよ (っ・ω・)っ
内見のご予約やご質問などございましたらお気軽にお問い合わせくださいませ。
ご連絡お待ちしております。
弊社、不動産Agent 六棒株式会社では、
□リノベーションマンションはほぼ全て仲介手数料無料!
□その他一般仲介物件は仲介手数料20%~30%OFF!
にてお取り扱いしております!※弊社の「Agent Fee=仲介手数料」についてはご案内、ご面談の際に営業担当者よりご説明いたします!
なるべく沢山のお部屋をホームページに掲載したいと思っておりますが、時間的成約もございますので、残念ながらご紹介できるお部屋の一部しか掲載できておりません。
このホームページに掲載中のお部屋、その他サイト等で気になるお部屋、街を歩いていて気になったマンション等々ございましたら是非、弊社営業部までご相談ください!
~不動産Agent 六棒株式会社の特徴~
・一般仲介物件の仲介手数料は20%~30%OFFにてご案内中です!
・リノベーションマンションについてはほぼ全て仲介手数料無料です!
・住宅ローンに自信あります!
・頭金10万円より購入できます。是非ご相談下さい!
・お部屋のご見学は車で2~3件まとめて案内します!
・物件数3000件以上、新築戸建、リノベ物件も多数ご用意しております!
過去に販売していたお部屋の概要 このお部屋の販売は終了いたしました。
| 価格 | -万円 |
| 面積 | 67.87㎡ |
| 間取り | 3bedrooms(3LDK) |
| 管理費 | 月額17,900円 修繕積立金:月額21,480円 |
| 所在階 | 3階 |
| お問い合わせ・ご内見のご予約はこちらからお気軽にどうぞ | |
ここで間取り図のご紹介です。
※間取り図は別タブで開きますので、確認しながらご覧いただく事が出来ます。
今回ご紹介のお部屋は3階、間取りは3LDK、専有面積は67.87㎡。
では、早速行ってみましょう!
エレベーターで3階まできました。3階のエレベーターの扉もオレンジ色!毎朝出勤時に元気づけられる色ですね!
共用廊下は内廊下設計。冬場の寒い時期でも、玄関を出てすぐに風に吹かれることはありません。台風上陸時も共用廊下は守られています!
お部屋の玄関ドアは木目調のレトロ感&重厚感漂うものとなっております。素敵です![]()
それではお部屋をご案内して行きましょう♬
玄関扉を開けると広々とした玄関がお出迎え。何やら使われている素材も上質そう?!
玄関を入って左手の壁には窓があります。残念ながら眺望はありません。換気用として玄関に常にフレッシュな空気をもたらしてくれそうです。
窓の下には下足入れがあります。
また、廊下へ上がった所に大型の収納が設置されています。が…棚板等が全く設置されていない納戸のような収納ですので、ご自身で使い易いように造りこんで行きましょう!
振り返って玄関扉側を見てみます。
玄関扉、お部屋の中から見ると更に素敵感が増して見えます!!
玄関の壁の一面にはタイルが貼られています。玄関の照明は人感センサー付きです。人感センサーは消し忘れ防止に役立ってくれますね。地球温暖化対策にちょっとしたことから気遣いを忘れないようにしたいものです!
それにしても玄関扉のディテールはため息ものです…
廊下を進んで行きましょう♬
廊下は一般的な間取りのお部屋よりも幅が広く設計されているようです!写真でも感じますよね?!この広々とした感じ![]()
奥の光が漏れている扉を開けて、リビングダイニングに向かいましょう!
ドア、オープン!!!
玄関扉の印象とはまた違ったオシャレな空間が広がっていました![]()
壁面のアクセントタイルが印象的な空間です。
クロスだけでなくタイルなどをポイント使いすると、空間に深みがでますよね。
リビングダイニングに入ってすぐ右手には扉付の洗濯機置場がありました。家事導線的には短くて良さそうです。洗濯機置場から数歩先の左側には、可動式の棚板が設置されている収納が確保されています。掃除道具をはじめ、リビングルームで家族皆で使いそうなものを収納しておけます。リビング学習するお子様の勉強道具の収納としてもGood!
キッチンはカウンター式です。こちらで毎朝朝食をいただく場面を想像してみると、朝起きるのも辛くなくなるかもしれません。
カウンター上部にはダクトレールが設置されており、お好きな照明を追加することが可能です。
キッチンは吊戸棚のない開放感のあるシックでシンプルなものが採用されています。
この風景、なんとも素敵です!!!
キッチンの収納は引出し式です。奥に収納したものも引き出すだけで簡単に手にとれてしまうので、とても便利です!
レンジフードもコンロもかっこよくまとまっています。
左右のコンロは温度調節可能で炊飯や揚げ物がより簡単に行えます。また、高温炒め機能もあり、パラパラのチャーハンを作りたい方には是非使っていただきたい機能です。
キッチンの水栓は浄水機能付き。レバーを回すだけの簡単操作ですぐに浄水に切り替わります。これでミネラルウォーターを買い忘れて「あーーー!ない!!」ということもなくなります。
ワークトップはL字型で作業スペースたっぷり。黒い天板がオシャレです。
キッチンのコンロ側の隣には調理家電置場にちょうど良さそうな造作家具が設置されていました。一番下にはゴミ箱が3つ並んで入れられる引出し収納がありました。これでゴミの分別もシッカリ行えます。
突き当りの引き戸の向こう側はパントリー収納があります。食器棚置場がない分、先ほどの造作家具とこのパントリーでしっかりとまかなえそうです。
パントリーの扉の隣は冷蔵庫スペースとなっています。
リビングダイニングです。
隣の洋室約6.6畳とは引き戸で仕切られているので、開け放つとご覧のような広々とした空間のできあがり!
引き戸は壁側に完全に引き込める、吊り下げタイプが採用されています。床にレールがないので、スッキリとした印象です。また、引き戸は半透明のガラス入りで、空間を仕切りつつも隣の部屋の光をやわらかく届けてくれる優れものです。
引き戸を閉めれば約6.6畳の独立した洋室となります。6畳を超えてくると広いな!という印象を受けます。
部屋の片側には壁一面のクローゼットがあります。容量のあるクローゼットがあると、物が増えることを想像しても、なんだか安心感がありますね。
廊下へ戻って…
すぐ右手にある扉の中をご案内します。
扉を開けて…
ご覧ください!明かりと空気の流れが確保できる窓のついた洋室です。
こちらの洋室は約5.2畳です。
オープンの造作収納は、収納家具を購入しなくても大丈夫なほど造りこまれています。引き出しもハンガーパイプもちゃんと設置されています。
窓の外はリビングダイニングキッチンです。
もう一つの玄関側の扉へ進んで行きましょう!
扉を開けます!!
明るく広々とした洋室です。広さは約6.6畳。こちらのオープン収納もシッカリと造られています。
幅も十分確保されており、引き出し収納やネクタイかけまでありますよ!
収納内が見えるのが気になる方は、後付でロールカーテンなどを設置してもよいかもしれませんね。
洋室の窓から外を見てみます。隣の建物が迫っているので、採光と通風用として割り切ってしまいましょう♬隣の建物はコンクリート打ち放し仕上げでした。
ではでは、水廻りをご案内します。
トイレから行ってみましょう。
白で統一された清潔感溢れるトイレです。
上部に吊戸棚が設置されています。トイレットペーパーや掃除道具など、トイレも結構収納が必要なので、ありがたいですね!
もちろん、温水暖房便座付。もうこれがなければ生きてはいけないレベルです(笑)
さて、続きまして洗面室です。行ってみましょう♬
コンパクトにまとめられた洗面室です。
デザイン性の高い洗面化粧台はかなりインパクトがあります!
洗面化粧台下は引出し収納となっています。
洗面ボウルや水栓は黒で統一されていて格好良いですね。
鏡の裏は収納です。歯ブラシ類や化粧品などが収納できます。
続いてユニットバスです。
追い炊き機能付きなので、家族の一日のスケジュールがバラバラでも温かいお風呂にはいれますよ!
そしてテレビも設置されています。テレビに見入ってしまって長湯になっても追い炊きすればまた温かいお湯に戻ります!!
一人で寛ぐのにちょうどよいスペース。
浴室暖房乾燥機も設置されています。
ランドリーパイプが2本あるので、それなりの量を干すことができますね!
それでは最後にバルコニーをご案内します。
リビングダイニングに戻ってきました。バルコニーへは南側洋室のサッシ、リビングダイニングの右側のドア、どちらからでも出られます。
南向きで日当たりが良さそうですね![]()
目の前は低めの建物が並んでいるので、あまり圧迫感もなく、青い空を眺めることができます。
・
以上で麻布狸穴ナショナルコートのご案内を終わります。
いかがでしたでしょうか??
麻布十番駅から徒歩5分のマンションです。
リノベーション済みという事で室内はとてもキレイですよ (っ・ω・)っ
内見のご予約やご質問などございましたらお気軽にお問い合わせくださいませ。
ご連絡お待ちしております。
弊社、不動産Agent 六棒株式会社では、
□リノベーションマンションはほぼ全て仲介手数料無料!
□その他一般仲介物件は仲介手数料20%~30%OFF!
にてお取り扱いしております!※弊社の「Agent Fee=仲介手数料」についてはご案内、ご面談の際に営業担当者よりご説明いたします!
なるべく沢山のお部屋をホームページに掲載したいと思っておりますが、時間的成約もございますので、残念ながらご紹介できるお部屋の一部しか掲載できておりません。
このホームページに掲載中のお部屋、その他サイト等で気になるお部屋、街を歩いていて気になったマンション等々ございましたら是非、弊社営業部までご相談ください!
~不動産Agent 六棒株式会社の特徴~
・一般仲介物件の仲介手数料は20%~30%OFFにてご案内中です!
・リノベーションマンションについてはほぼ全て仲介手数料無料です!
・住宅ローンに自信あります!
・頭金10万円より購入できます。是非ご相談下さい!
・お部屋のご見学は車で2~3件まとめて案内します!
・物件数3000件以上、新築戸建、リノベ物件も多数ご用意しております!
過去に販売していたお部屋の概要 このお部屋の販売は終了いたしました。
| 価格 | -万円 |
| 面積 | 58.49㎡ |
| 間取り | 2bedrooms(2LDK) |
| 管理費 | 月額15,500円 修繕積立金:月額18,600円 |
| 所在階 | 3階 |
| お問い合わせ・ご内見のご予約はこちらからお気軽にどうぞ | |
ここで間取り図のご紹介です。
※間取り図は別タブで開きますので、確認しながらご覧いただく事が出来ます。
今回ご紹介するお部屋は3階、間取りは2LDK、専有面積は58.49㎡。一人暮らしからDINKS、そしてお子様1人のご家族にお勧めのお部屋です。
では、早速行ってみましょう。
エレベーターで3階まできました。レトロな雰囲気漂う廊下の重厚感ある扉を開けてご案内して行きます!
お邪魔します!!
共用廊下の印象と全く異なった、最近流行りの内装の玄関が現れました!!
こちらのお部屋には玄関と一体化した土間があります。
土間は自転車を手入れしたり、DIY用スペースにしたり。お部屋とはまた違った半屋外的な使い方ができますね!
玄関の照明は人感センサー付き。夜帰宅して玄関の照明のスイッチを暗闇の中探さなくても、玄関に足を踏み入れただけでパッと明るくなります。
下足入れはご覧の通り、なかなかの収納力です。カウンタータイプなので、カウンター上はお好きなものを素敵に飾りましょう♬
それでは玄関に戻り、前方の扉を開けて進みます。
扉の先にはリビングダイニングがありました!
キッチンと合わせて約13.9畳の空間です。壁が比較的多いので家具のレイアウトも自由度が高そうです!
黒いフレームの窓の外は土間です。
窓を通して互いの空間に照明の明かりをやんわりと伝えることができます。
廊下とリビングダイニングを仕切る扉のガラスも素敵なものがチョイスされています。
リビングダイニングの壁面の一部にはタイルが貼ってあり、タイルの陰影がお部屋をオシャレで雰囲気あるものにしています。
タイルを貼ってある壁側から見るとこんな感じです。
あ!何かお気づきですか?!
リビングダイニングルームに、洗面化粧台が設置されていました!
「帰宅したらまず手洗い!」がきちんと習慣化されそうですし、来客時も便利に使っていただけますね!洗面化粧台のデザインもなかなか素敵です。
洗面化粧台部分は上部に設置されたロールカーテンで隠せるようになっています。
生活感が気になる場合は隠しておきましょう。
キッチンは壁付。グレーで統一されています。
引出し収納が豊富です!これだけあれば食器棚を置かなくても、収納出来ちゃいそうですね。食器洗浄機で家事の負担も軽減されます♪
壁付キッチンの良いところは、吊戸棚収納が設置されていることが多いということです。こちらのキッチンにも吊戸棚収納がありますよ。侮れない収納量です!
コンロは3口、魚焼きグリル付です。最近ではグリルを使ってこじゃれたお料理が作れる便利調理グッズもありますよね!いろいろ試して家飲みしたくなりますね。
キッチンの水栓は浄水機能付き。レバーを回せば簡単に浄水されたお水が出てきますよ。
蛇口は伸ばせるタイプで、シンクのお掃除も楽々♬
シンクの隣が冷蔵庫置場です。
続きまして、キッチンの隣にある引き戸を開けてみましょう。
どんなお部屋でしょうか?!
こちらは約6.6畳の洋室です。
南側に窓が設置されているので、とても明るい印象です。
クローゼットはオープンなものが採用されています。
引出し・棚・ハンガーパイプ、様々なものが収納できるよう工夫されています。
仕切り戸は引込式の吊り扉。扉がスッキリ収納され、床に邪魔なレールもありません。なので…
お部屋をつなげてこんな使い方も。
明るい太陽の光がリビングダイニングキッチンまで届きます。
続いてもう一つの扉を開けて中をご案内します。
こちらも約6.6畳の洋室です。
先ほどの洋室と同様、クローゼットはオープン収納となっています。
リビングダイニングとの境の壁面には明り取りの窓が設置されています。
黒いフレームが白い壁のアクセントになっていますね。
これだけの収納があれば、洋服はだいたい収まってしまいそうです。
クローゼットにしても窓にしても、造り手のセンスが光っています![]()
では、水廻りをご案内します。
まずはトイレから…
白さの光るトイレです!
吊戸棚にはトイレットペーパーのストックやお掃除道具を収納しましょう!
温水暖房便座もちゃんと付いていますのでご安心ください。
続いて浴室へ行ってみましょう!
浴室と廊下には段差があります。慣れるまでは気を付けてください!
脱衣スペースの奥は洗濯機置場です。
このお部屋のように洗面化粧台だけが家族の共有スペースに設置されている場合、誰かが入浴している時に洗面化粧台を使わなければならなくなって、気を使わないといけないということもなさそうです。
ユニットバスです。窓付きで換気もOK!!
テレビ付で長湯しても、追い炊きできるのでまた温めなおして更に長湯できます(笑)
シャワーはスライドバーに設置されているので高さ調整が可能です。
浴室暖房乾燥機付。ランドリーパイプが2本使えるという造り手の気遣いが嬉しいです!
最後にバルコニーをご案内します。
南側洋室の掃出し窓、LDKの右側のドア、どちらからでも出られるワイドなバルコニーです。
格子手摺で採光も通風もより確保できますね。
南向きなのでとても明るいです。
目の前の建物は4階建て程度のものが並んでいます。
お部屋は3階ですが、空が見えますよ!
・
以上で麻布狸穴ナショナルコートのご案内を終わります。
いかがでしたでしょうか??
麻布十番駅から徒歩5分のマンションです。
リノベーション済みという事で室内はとてもキレイですよ (っ・ω・)っ
内見のご予約やご質問などございましたらお気軽にお問い合わせくださいませ。
ご連絡お待ちしております。
弊社、不動産Agent 六棒株式会社では、
□リノベーションマンションはほぼ全て仲介手数料無料!
□その他一般仲介物件は仲介手数料20%~30%OFF!
にてお取り扱いしております!※弊社の「Agent Fee=仲介手数料」についてはご案内、ご面談の際に営業担当者よりご説明いたします!
なるべく沢山のお部屋をホームページに掲載したいと思っておりますが、時間的成約もございますので、残念ながらご紹介できるお部屋の一部しか掲載できておりません。
このホームページに掲載中のお部屋、その他サイト等で気になるお部屋、街を歩いていて気になったマンション等々ございましたら是非、弊社営業部までご相談ください!
~不動産Agent 六棒株式会社の特徴~
・一般仲介物件の仲介手数料は20%~30%OFFにてご案内中です!
・リノベーションマンションについてはほぼ全て仲介手数料無料です!
・住宅ローンに自信あります!
・頭金10万円より購入できます。是非ご相談下さい!
・お部屋のご見学は車で2~3件まとめて案内します!
・物件数3000件以上、新築戸建、リノベ物件も多数ご用意しております!
過去に販売していたお部屋の概要 このお部屋の販売は終了いたしました。
| 価格 | -万円 |
| 面積 | 60.23㎡ |
| 間取り | 2bedrooms(2LDK) |
| 管理費 | 月額16,000円 修繕積立金:月額19,200円 |
| 所在階 | 2階 |
| お問い合わせ・ご内見のご予約はこちらからお気軽にどうぞ | |
ここで間取り図のご紹介です。
※間取り図は別タブで開きますので、確認しながらご覧いただく事が出来ます。
今回ご紹介するお部屋は2階、間取りは2LDK、専有面積は60.23㎡。一人暮らしからDINKS、ご家族でも3名くらいまでならお使いいただけるお部屋です。では、早速行ってみましょう。
オレンジのエレベーターにピンクの廊下!
オリジナリティ溢れるマンションです。
玄関ドアも独特です。マンションの玄関ドアとしては珍しいタイプです。
玄関を開けると、開放的な雰囲気の玄関です。
室内は左に曲がらないと入れない(見えない)ので、プライバシーが守られています。
右の壁面は3枚扉の大型シューズクローゼットになっています。
シューズクローゼットの下部はサッと出せるスリッパ等を置いておくと便利かも知れません。間接照明が明るく足元を照らしてくれます。
さりげなく、木目調だった玄関ドアも内側は白く塗られていますよ。
どことなく、重厚感を感じるフローリングやドアの色の組み合わせですね。
LDKの扉のガラススリットが光を採り入れてくれ、閉塞感がありません。
玄関入ってすぐの扉は洗濯機置場です。吊戸棚はありませんが、カウンターがあります。重さを気にせずに置けるので洗剤なども気兼ねなく置けます。
廊下収納もあります。こちらの棚は可動式ですので、収納するものに合わせてご活用ください。
それでは、LDKへ。ドアを開けて見ましょう。
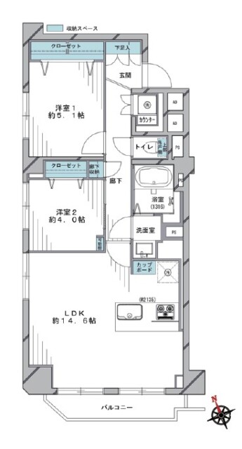
開放的で広々としたLDKです。約14.6帖の広さがあります。
システムキッチンとダイニング家具がモノトーンで統一されています。
一体感が演出されていてお洒落です。
こちらのお部屋は2階なのですが、窓の外も2階建てなので意外と開放的です。
「ザ!港区!!」みたいな風景というより、昔ながらの日本の戸建てが見えます。
アイランドキッチンの一辺が壁に接しているキッチンのことを【ペニンシュラ型システムキッチン】と言います。
一辺が壁に接していることからアイランドキッチンよりも油ハネや水ハネに強いです。
システムキッチンはデッドスペースを極力減らし、大容量の収納を実現しています。
スライドキャビネットは収納力と収納のしやすさを同時に備えていて便利♪
グリル付の三ツ口ガスコンロです。2口以上あると同時に複数の調理ができるので、料理好きな方や2人以上の家族に最適☆
コンロには安全機能だけでなく、お料理を助けてくれる機能も付いていますので、使ってみてください。
換気扇も薄型でお洒落且つ掃除しやすいタイプですね。
浄水機能付き水洗。キッチンの後ろには便利なカップボードが設置されています。
隣は冷蔵庫置き場です。
ビルトイン食洗器も毎日の家事をサポートしてくれます。充実しているキッチン廻りでした。それでは、洗面室に行ってみましょう!
実は、、、洗面室は手直し工事中。入って右側に洗面台が設置されます。浴室もあって脱衣所も兼ねていますが、それほど広くはありません。おひとりなら問題ありませんが、小さいお子様を脱がせたりはリビングで済ませた方が良さそうです^^;)
準備されていたバラバラの洗面台達です(笑)三面鏡付きの、洗面ボウルが広いシャンプードレッサーのようですね。
追い焚き機能付きの1316サイズの浴槽☆
設置作業が終わったばかりで、ちょっと残骸が (;^_^A
浴室乾燥機も装備されています。リノベは住む人の快適性にこだわっていますね。
次は、トイレをチェックしに行きましょう。
アクセントタイルが貼ってあります。
殺風景になりがちなトイレですが、ちょっとタイルがあるだけで大分雰囲気、変わります。
低めが嬉しい吊戸棚です。
洗浄便座はリモコンが見当たりませんが、これから付くと思われます。
では、次のお部屋へ…
おっと、こちらのお部屋は大人の都合によりご覧頂けません・・・すみません”(-“”-)”
(ただのリフォーム中です。)
約4帖の洋室。西向きの窓のあるお部屋です。オープンの収納棚とクローゼットが付いています。玄関側にもう一つ洋室があるので、そちらを見に行きましょう。
シンプルな四角いお部屋で使いやすそうです。
カーテンボックスがさりげなく設置されているのが嬉しいですね。壁一面のクローゼットも大きそうです。
クローゼットは縦横に仕切りがされています。洋服以外にもいろいろ収納できそうです。
お部屋の窓は開けると、安心感のある風景が広がっています。
最後に、バルコニーに出てみましょう。
それでは最後はバルコニーのご紹介。
窓2面分のワイドバルコニーです。格子手摺で採光も通風もより確保できています。
道路を挟んでいるので、すぐ隣には建物が無く開放的です。
しかも、周りの建物は低いので空が見えます。
南向きなので日当たりも良好ですよ。
・
以上で麻布狸穴ナショナルコートのご案内を終わります。
いかがでしたでしょうか??
麻布十番駅から徒歩5分のマンションです。
リノベーション済みという事で室内はとてもキレイですよ (っ・ω・)っ
内見のご予約やご質問などございましたらお気軽にお問い合わせくださいませ。
ご連絡お待ちしております。
弊社、不動産Agent 六棒株式会社では、一般仲介物件は仲介手数料20%~30%OFF!
にてお取り扱いしております!
なるべく沢山のお部屋をホームページに掲載したいと思っておりますが、時間的成約もございますので、残念ながらご紹介できるお部屋の一部しか掲載できておりません。
このホームページに掲載中のお部屋、その他サイト等で気になるお部屋、街を歩いていて気になったマンション等々ございましたら是非、弊社営業部までご相談ください!
~不動産Agent 六棒株式会社の特徴~
・一般仲介物件の仲介手数料は20%~30%OFFにてご案内中です!
・住宅ローンに自信あります!
・頭金10万円より購入できます。是非ご相談下さい!
・お部屋のご見学は車で2~3件まとめて案内します!
・物件数3000件以上、新築戸建、リノベ物件も多数ご用意しております!
過去に販売していたお部屋の概要 このお部屋の販売は終了いたしました。
| 価格 | -万円 |
| 面積 | 21.94㎡ |
| 間取り | 1bedrooms(1R) |
| 管理費 | 月額5800円 修繕積立金:月額6960円 |
| 所在階 | 3F |
| お問い合わせ・ご内見のご予約はこちらからお気軽にどうぞ | |
こちらが今回ご案内させて頂くお部屋の間取りです!!
クリックして頂ければ別タブで開きますので、間取り図を見ながら進んで行きましょう!!
エレベーターを降りると共用廊下です。
内廊下になっていますね( ・`ω・´)
ホテルのような内廊下はなんだか高級感が漂っています。
ピンぽーーーん!!!
「おじゃましましまーーーーー!!!!」
さて、リノベーション済みという事で、玄関からピカピカの室内が出迎えてくれます。
白を基調としているので清潔感もGOODです!! ( ゚ω^ )ゝ
シューズボックスは小さ目です。
まぁ、一人暮らしだとこのくらいで十分かと思います ∠(`・ω・´)
キッチンなども見えますが、まずは奥のお部屋に行ってみましょう!!!
ワンルームなのでこれが全てです!!
広さは約7.2帖。
窓は北向きですが、明るい光が入ってきていますね(☆Д☆)
もはや説明不要でしょう!!
四隅についているダウンライトがさりげなく良い仕事をしています。
改めましてキッチンです。
IHのクッキングヒーターです ( ̄∀ ̄*)
正直な所、ラーメン用のお湯が沸かせれば十分ですよね!!
しかし、一人暮らしの醍醐味は何と言っても「1人焼肉大会inキッチン」です!!
誰にも遠慮することなくジャブジャブ焼いて、がつがつ飲みましょう!!!
潤沢な収納スペース・・・とは言えませんが、俗にいうお1人様サイズですね!!
お料理に拘っている人でなければ特に不便に感じることもないかと思います ( `д´)b
キッチンの正面には・・・
こちらも一人暮らしの代名詞、ユニットバスです。
個人的には、シャワーで流せば掃除があっという間に終るので好きなのですけど。
初めての一人暮らしだと抵抗はあるかもしれませんが、数日も住めば慣れてくるかと思いますヾ(*´∀`*)ノ
トイレはウォシュレット付きです。
こういうさりげない気遣いが出来ているお部屋はなかなかレアですよ ( ̄∀ ̄*)
こちらもリノベーションによってオニューな物に交換されているので、気持ちがいいですよ!!
最後にバルコニーです。
2重サッシになっているので、防音、断熱性にも効果が期待できます (○´ω`○)
北向きのバルコニーではありますが、目の前は駐車場になっているので大きく開けている分、とても明るく感じます。
晴れていれば大きな青空を望めるでしょう!!
バルコニーにはトランクルームが付いています。
季節ものの家電などはこちらに入れておく事が出来ますよ!!
お隣にあるのは・・・・
ゲフンゲフン、いえなんでもありません。
秘密にするわけにもいかないので、
お隣は、知る人ぞ知る?有名なラブホテルになっています。
さすがに麻布という土地柄か、見た目は普通の古いマンションのようですが。
言われなければ気が付かないかもしれませんね。
では、以上で麻布狸穴ナショナルコートのご案内を終わります。
いかがでしたでしょうか??
麻布十番から徒歩5分のマンションです。
リノベーション済みという事で室内はとてもキレイですよ (っ・ω・)っ
内見のご予約やご質問などございましたらお気軽にお問い合わせくださいませ。
ご連絡お待ちしております。
弊社、不動産Agent 六棒株式会社では、
□リノベーションマンションはほぼ全て仲介手数料無料!
□その他一般仲介物件は仲介手数料20%~30%OFF!
にてお取り扱いしております!※弊社の「Agent Fee=仲介手数料」についてはご案内、ご面談の際に営業担当者よりご説明いたします!
なるべく沢山のお部屋をホームページに掲載したいと思っておりますが、時間的成約もございますので、残念ながらご紹介できるお部屋の一部しか掲載できておりません。
このホームページに掲載中のお部屋、その他サイト等で気になるお部屋、街を歩いていて気になったマンション等々ございましたら是非、弊社営業部までご相談ください!
~不動産Agent 六棒株式会社の特徴~
・一般仲介物件の仲介手数料は20%~30%OFFにてご案内中です!
・リノベーションマンションについてはほぼ全て仲介手数料無料です!
・住宅ローンに自信あります!
・頭金10万円より購入できます。是非ご相談下さい!
・お部屋のご見学は車で2~3件まとめて案内します!
・物件数3000件以上、新築戸建、リノベ物件も多数ご用意しております!
過去に販売していたお部屋の概要 このお部屋の販売は終了いたしました。
| 価格 | -万円 |
| 面積 | 60.23㎡ |
| 間取り | 2bedrooms(2LDK) |
| 管理費 | 月額16,000円 修繕積立金:月額9,600円 |
| 所在階 | 3階 |
| お問い合わせ・ご内見のご予約はこちらからお気軽にどうぞ | |
ここで間取りのご紹介です。(2LDK 60.23㎡)
南西角部屋の陽当りバッチリのお部屋です♪
ドアをあけますとこちらが玄関ホールになります。開けてすぐに中がみえないのでプライバシーも守られます。右側にトールサイズとカウンター付の収納が並んであります。
光沢のある濃いブラウンの玄関収納は高級感があります。カウンター部分にはお花を飾ったり写真を飾ったり、これからの冬のイベント毎にインテリアを楽しむのも素敵ですね。
クリスマスツリーの緑がマッチします♪
低めの収納高さのある収納と2種類あると助かりますね。
日々良く履くシューズ、季節によって今は履かない靴などとわけて使うと便利かもしれません。
玄関入って左にこちらの廊下があります。光が射し込んでいる明るいリビング・ダイニングがみえます。
玄関入り右側にある洋室です。壁一面に真っ白なクローゼットがあり、これからの季節、厚手のコートやダウンもバッチリしまえそうです。窓もあり自然換気でき、光も入り寝室にいかがですか~
並びにある少々コンパクトな洋室です。もちろん窓ありクローゼットありの白を基調としたお部屋です。お子様のお部屋や書斎にいかがでしょう~
洗濯機置き場です。玄関入って左にあります。収納バッチリなこちらのスペース、洗剤はもちろん楽々置けちゃいます。かさばるストック類など置くの良いかもしれません!ゴチャゴチャもここならお客様にもみえなく嬉しいスペース!
ウォシュレット付一体型トイレです。一体型になっているのでお掃除もしやすそうですね。
真っ白なトイレはいつもピカピカでいたいですね。吊戸棚にはトイレットペーパーのストックに良いですね。
サニタリールームです。左側に浴室 右側に洗面化粧台です。
追い炊き機能付浴室です。寒い冬は少し時間がたつとお湯も冷めてしましますが追い炊きできれば熱々のお湯に浸かることができますね。ブラウンのアクセントパネルがとてもシックです。ついつい長湯してしまいそうです~風呂蓋も壁にかけられスッキリです。
LDKに入る前にある可動棚です。好みもカゴなどを活用してオシャレにインテリア風に見せる収納なんていかがですか~
光が射し込み白を基調とした明るいリビング・ダイニング・キッチンです。
角には白いカウンターがあります。電話が置けちゃいそうですね。下の部分には目隠しして収納にもなりますね。
嬉しい窓のあるカウンターキッチンです。真っ白なカウンターには小さな緑を置きたくなります♪
シンクも大きく深くて大きなお鍋も気兼ねなくジャブジャブ洗えますね。3口コンロはお料理の時短に大活躍!収納もみやすく整理整頓しやすい引き出しタイプ。調理スペースもしっかりありケーキなど作るときなど準備しやすいですね♪調理スペース下の引き出しには仕切りが付いています。お箸やスプーンに良いですね。
南向きバルコニーです。(4.71㎡)陽当りバッチリな温かさ♪洗濯物も冬でもお天気の日はすぐに乾いてしまいそうです。
眺望です。周囲には建物もありますが道路のスペースがあり気持ちよく青空がみれます。
昔ながらの下町風のたたずまいは残しつつ、見上げると高層ビル。多彩な顔を持つこの街で新しい生活をスタートみてはいかがでしょう~
皆様のご内見、心よりお待ちしております!

















































































































































































































































































